АКЦИОНЕРНАЯ КОМПАНИЯ ПО ТРАНСПОРТУ НЕФТИ "ТРАНСНЕФТЬ"
ОАО "АК "ТРАНСНЕФТЬ"
РУКОВОДЯЩИЙ ДОКУМЕНТ
НОРМЫ ПРОЕКТИРОВАНИЯ ЭЛЕКТРОХИМИЧЕСКОЙ ЗАЩИТЫ МАГИСТРАЛЬНЫХ ТРУБОПРОВОДОВ И СООРУЖЕНИЙ НПС
РД-91.020.00-КТН-149-06
Предисловие
1 Документ разработан ОАО ВНИИСТ, ООО "Институт ВНИИСТ"
2 Утвержден и введен в действие "19" апреля 2006 г.
3 Введен взамен РД 153-39.4-039-99 Нормы проектирования электрохимической защиты магистральных трубопроводов и площадок МН
4 Срок действия - 5 лет
5 Оригинал документа хранится в службе нормирования и технического регулирования ОАО "АК "Транснефть"
6 Документ входит в состав отраслевого информационного фонда ОАО "АК "Транснефть"
Внесено Изменение № 1, утвержденное Первым вице-президентом ОАО "АК "Транснефть" В.И. Кушнаревым 28.03.2008 г.
Руководящий документ "Нормы проектирования электрохимической защиты магистральных трубопроводов и сооружений НПС" определяет методы расчета и проектирования катодной, протекторной и дренажной защиты от коррозии.
В разработке документа принимали участие: ОАО "АК "Транснефть" - к.т.н. Лисин Ю.В., Радченко В.В.; ООО "Институт ВНИИСТ" - д.т.н., профессор Глазов Н.П., к.т.н. Шамшетдинов К.Л., к.т.н. Глазов Н.Н., Киселев В.Д., Овсепян К.А., Сульженко А.Н.; ОАО "Гипротрубопровод" - Насонов О.Н., Торбин С.И.
Содержание
Настоящие "Нормы проектирования электрохимической защиты магистральных трубопроводов и сооружений НПС" разработаны взамен РД 153-39.4-039-99 "Нормы проектирования электрохимической защиты магистральных трубопроводов и площадок МН". При разработке настоящего документа учтены требования международных нормативных документов (ISO 15589-1, ISO/FDIS 15589-2, DNV RP B401 и других) для регламентации требований к электрохимической защите сооружений морских терминалов, критериев защиты сооружений в грунтах высокого удельного электрического сопротивления и др.
С вводом в действие настоящего документа РД 153-39.4-039-99 утрачивает силу.
1.1 Руководящий документ "Нормы проектирования электрохимической защиты магистральных трубопроводов и сооружений НПС" (далее "Нормы") регламентирует требования к электрохимической защиты магистральных нефтепроводов, технологических и вспомогательных трубопроводов НПС, резервуаров и резервуарных парков, а также причальных сооружений морских терминалов.
1.2 РД распространяется на проектирование строящейся, реконструируемой и ремонтируемой электрохимической защиты (катодной, протекторной, дренажной и совместной) от подземной (почвенная коррозия, коррозия блуждающими токами источников постоянного и переменного тока, биологической коррозии) и морской коррозии внешней поверхности следующих сооружений:
- линейной части однониточных и многониточных магистральных нефтепроводов;
- технологических и вспомогательных трубопроводов нефтеперекачивающих станций;
- кожухов на переходах через автомобильные и железные дороги;
- стальных вертикальных резервуаров;
- узлов задвижек и камер приема-пуска диагностических снарядов;
- причальных сооружений морских терминалов.
В настоящем документе использованы нормативные ссылки на следующие документы:
ГОСТ 9.602-89. Сооружения подземные. Общие требования к защите от коррозии
ГОСТ Р 51164-98 Трубопроводы стальные магистральные. Общие требования к защите от коррозии
ГОСТ 23511-79 Радиопомехи индустриальные от электротехнических устройств, эксплуатируемых в жилых домах или подключаемых к их электрическим сетям
ГОСТ 12.2.007.0-75* Изделия электротехнические. Общие требования безопасности
ГОСТ 9.104-79 Покрытия лакокрасочные. Группы условий эксплуатации
ГОСТ 9.032-74 Покрытия лакокрасочные. Группы, технические требования и обозначения
ГОСТ 15150-69 Машины, приборы и другие технические изделия. Исполнения для различных климатических районов. Категории, условия эксплуатации, хранения и транспортирования в части воздействия климатических факторов внешней среды
ГОСТ 14254-96 (МЭК 529-89) Степени защиты, обеспечиваемые оболочками
СНиП 2.05.06-85* Магистральные трубопроводы
СНиП III-42-80* Трубопроводы магистральные. Правила производства и приемки работ
ВСН 009-88 Строительство магистральных и промысловых трубопроводов. Средства и установки электрохимзащиты
ВСН 012-88 Строительство магистральных и промысловых трубопроводов. Контроль качества и приемка работ
РД 106-97 Временные правила применения протяженных гибких анодов при катодной защите газопроводов, компрессорных станций и газовых промыслов Правила устройства электроустановок. Издание 7
РД 153-39.4-056-00 Правила технической эксплуатации магистральных нефтепроводов
РД 153-39.4-067-04* Методы ремонта дефектных участков действующих МН
РД 13.02-40.10.50-КТН-003-1-03 Положение по эксплуатации, техническому обслуживанию и ремонту вдольтрассовых линий электропередачи и средств электрохимической защиты
РД 09-102-95 Методические указания по определению остаточного ресурса потенциально опасных объектов, поднадзорных Госгортехнадзору России
РД 17.01-60.30.00-КТН-007-1-04 Инструкция по контролю состояния изоляции магистральных нефтепроводов методом катодной поляризации
ОТТ-04.00-27.22.00-КТН-005-1-03 Технические требования на заводское полиэтиленовое покрытие труб
ОТТ 04.00-45.21.30-КТН-002-1-03 Технические требования на наружные антикоррозионные покрытия на основе термоусаживающихся полимерных лент, предназначенных для изоляции сварных стыков магистральных нефтепроводов и отводов от них
ТУ 1394-009-172113088-03 Технические условия. Трубы стальные диаметром от 57 до 1220 мм с наружным двух- и трехслойным защитным покрытием на основе экструдированного полиэтилена
ТУ 14-3Р-49-2003 Технические условия. Трубы стальные бесшовные и сварные диаметром 102 - 1420 мм с наружным защитным покрытием на основе экструдированного полиэтилена
ТУ 14-3Р-66-2003 Технические условия. Трубы стальные бесшовные и сварные диаметром 102-1420 мм с наружным трехслойным защитным покрытием на основе экструдированного полиэтилена
ТУ 14-3Р-67-2003 Технические условия. Трубы стальные электросварные диаметром до 1420 мм с наружным антикоррозионным полиэтиленовым покрытием для строительства магистральных нефтепроводов
ISO 15589-1: 2003 (E) Petroleum and Natural gas Industries - Cathodic Protection for Pipeline Transportation Systems - Part 1: On-land Pipelines
ISO/FDIS 15589-2: 2004 (E) Petroleum and Natural gas Industries - Cathodic Protection for Pipeline Transportation Systems - Part 2: Offshore Pipelines
DNV RP B401- 1993 Recommended Practice for Cathodic Protection Design
NACE RP 0176-2003 Standard Recommended Practice. Corrosion control of steel fixed offshore structures associated with petroleum production
Примечание - При использовании настоящим нормативным документов целесообразно проверить действие ссылочных нормативных документов в соответствии с действующим Перечнем законодательных актов и основных нормативно-правовых и распорядительных документов, действующих в сфере магистрального нефтепроводного транспорта. Если ссылочный документ заменен (изменен), то при пользовании настоящим нормативным документом следует руководствоваться замененным (измененным) документом. Если ссылочный документ отменен без замены, то положение, в котором дана ссылка на него, применяется в части, не затрагивающей эту ссылку.
В настоящем документе приняты следующие термины с соответствующими определениями.
3.1 Анодное заземление: устройство, обеспечивающее стекание защитного тока в землю.
3.2 Блок совместной защиты: устройство, обеспечивающее распределение защитного тока между несколькими сооружениями.
3.3 Блуждающие токи: токи в земле, возникающие вследствие работы посторонних источников постоянного или переменного тока (электрифицированный транспорт, сварочные агрегаты, устройства электрохимической защиты посторонних сооружений и пр.).
3.4 Вредное влияние внешних или наведенных токов: возникновение опасных анодных (коррозионных) зон на участках трубопроводов или других объектов в результате работы источников постоянных или переменных токов любого происхождения.
3.5 Временная защита: электрохимическая защита, осуществляемая в период до начала работы запроектированных основных средств защиты.
3.6 Вспомогательный электрод (датчик потенциала): электрод, имитирующий условия катодной поляризации на реально защищаемом трубопроводе.
3.7 Длина защитной зоны: протяженность участка трубопровода, на котором обеспечены защитные потенциалы от единичной установки электрохимической защиты.
3.8 Дренаж: устройство, обеспечивающее отвод блуждающих токов из трубопровода.
3.9 Дренажные токи: электрические токи, отведенные из трубопровода.
3.10 Дренажная линия: проводники, соединяющие минусовую клемму источника постоянного тока с трубопроводом (катодная дренажная линия) и плюсовую клемму - с анодным заземлением (анодная дренажная линия).
3.11 Защитное заземление: заземление, выполняемое в целях электробезопасности.
3.12 Защитный потенциал: катодный потенциал, обеспечивающий требуемое торможение коррозионного процесса.
3.13 Изолирующее соединение: вставка между двумя участками трубопровода, нарушающая его электрическую непрерывность.
3.14 Датчик скорости коррозии (индикатор коррозии): электрод специальной конструкции, подключенный/или не подключенный к трубопроводу, позволяющий по глубине проникновения или электрическому сопротивлению определять скорость коррозии трубопровода.
3.15 Контактное соединение: соединение двух или более проводников.
3.16 Катодный вывод: устройство, предназначенное для создания электрического контакта металлической стенки трубопровода с измерительным прибором, расположенным на поверхности земли.
3.17 Катодная защита: торможение коррозионного процесса посредством сдвига потенциала оголенных участков трубопровода в сторону более отрицательных значений, чем потенциал свободной коррозии этих участков.
3.18 Катодная станция (катодный преобразователь): источник постоянного тока или устройство, преобразующее переменный ток в постоянный.
3.19 Комплексная противокоррозионная защиты: защита от коррозии совместным применением изоляционного покрытия и электрохимической защиты.
3.20 Контрольно-измерительный пункт: устройство, позволяющее выполнять измерения потенциала сооружения.
3.21 Контрольно-диагностический пункт: устройство, позволяющее выполнять измерения потенциала, защитного тока и определения скорости коррозии сооружения.
3.22 Максимальный защитный потенциал: максимальный (по абсолютной величине, без омической составляющей) катодный потенциал, обеспечивающий защиту от коррозии, превышение которого ведет к ускоренному “старению” изоляции и наводороживанию металла трубы.
3.23 Минимальный защитный потенциал: минимальный (по абсолютной величине, без омической составляющей) катодный потенциал, обеспечивающий требуемую степень защиты от коррозии трубопровода.
3.24 Мониторинг противокоррозионной защиты: совокупность мероприятий, направленных на выполнение требований нормативно-технической документации по предупреждению коррозионных отказов и обеспечению промышленной безопасности.
3.25 Поляризационный потенциал: потенциал без омической составляющей (падения напряжения в грунте и изоляции).
3.26 Почвенная коррозия: процесс разрушения металла в результате воздействия агрессивных компонентов, содержащихся в почве (грунте).
3.27 Протектор (гальванический анод) - электрод, выполненный из металла или сплава, имеющего более отрицательный потенциал, чем металл защищаемого трубопровода.
3.28 Протекторная защита: защита трубопровода с помощью протекторов.
3.29 Протяженный гибкий анод: малорастворимый токоотдающий электрод, конструктивно аналогичный кабелю.
3.30 Сопротивление заземления: сопротивление заземленного электрода (электродов), включающее в себя сопротивление растеканию токов в земле и контактное сопротивление на границе раздела электрод-грунт.
3.31 Точка дренажа: место отвода тока из трубопровода при электрохимической защите.
3.32 Установка дренажной защиты: комплекс устройств, обеспечивающий отвод (дренаж) токов из трубопровода в землю или к источнику блуждающих токов.
3.33 Установка катодной защиты: комплекс устройств, состоящий из катодной станции, дренажной линии и анодного заземления, обеспечивающий смещение потенциалов на трубопроводе в отрицательную сторону.
3.34 Установка протекторной защиты: установка, состоящая из нескольких протекторов, подключенных к трубопроводу через специальный контрольно-измерительный пункт.
3.35 Электрод сравнения: электрод, имеющий постоянный электродный потенциал в данных условиях применения.
В настоящем документе приняты следующие сокращения:
а/д - автомобильная дорога;
АЗ - анодное заземление;
ВТД - внутритрубная диагностика;
ГАЗ - глубинное анодное заземление;
ж/д - железная дорога;
ИС - изолирующее соединение;
КДП - контрольно-диагностический пункт;
КИП - контрольно-измерительный пункт;
КТП - комплектная трансформаторная подстанция;
ЛЭП - линия электропередачи;
МН - магистральный нефтепровод;
МСЭ - медно-сульфатный электрод сравнения;
НД - нормативная документация;
НПС - нефтеперекачивающая станция;
ПКЗ - противокоррозионная защита;
ППР - Проект производства работ;
ПТЭ - Правила технической эксплуатации;
РВС - резервуар вертикальный стальной;
СКЗ - станция катодной защиты;
ТЭО - технико-экономическое обоснование;
УДЗ - установка дренажной защиты;
УКЗ - установка катодной защиты;
УПЗ - установка протекторной защиты;
ЩСУ - щит станции управления;
эж/д - электрифицированная железная дорога;
ЭХЗ - электрохимическая защита.
5.1 Нефтепроводы и другие металлические сооружения при всех способах прокладки, кроме надземной, подлежат комплексной защите от коррозии защитными покрытиями и средствами ЭХЗ независимо от коррозионной агрессивности грунта.
5.2 Средства ЭХЗ от коррозии должны быть определены в проекте защиты, который разрабатывается одновременно с проектом нового или реконструируемого сооружения.
5.3 Проекты противокоррозионной, в том числе электрохимической, защиты от подземной коррозии должны проходить экспертизу на соответствие требованиям государственных стандартов и нормативным документам ОАО "АК "Транснефть".
5.4 Затраты на пуско-наладочные работы и на контроль состояния изоляции методом катодной поляризации на строящихся и реконструируемых МН и других сооружениях должны быть предусмотрены в проекте.
5.5 В системе ЭХЗ должны быть использованы средства ЭХЗ, отвечающие техническим требованиям ОАО "АК "Транснефть".
6.1 Основные требования
6.1.1 Защита от коррозии должна быть выполнена комплексно: изоляционными покрытиями и катодной поляризацией независимо от коррозионной агрессивности грунтов.
6.1.2 При параллельной прокладке действующих и проектируемых трубопроводов одного назначения или трубопроводов, принадлежащих одному ведомству, а также для коммуникаций площадок применяется совместная электрохимическая защита. Совместная ЭХЗ осуществляется также в случаях, когда имеется вредное влияния катодной поляризации одних сооружений на другие. Схему совместной защиты выбирает проектная организация, на основе технических, электрических и коррозионных характеристик объектов.
6.1.3. Расчет параметров работы установок ЭХЗ выполняется с учетом прогнозирования их изменений во времени по методикам, изложенным в настоящих Нормах. Расчет параметров ЭХЗ действующих трубопроводов следует производить с учетом результатов комплексного обследования этих трубопроводов.
6.1.4 Срок службы средств ЭХЗ должен быть не менее 15 лет, а для протяженных анодных заземлений, прокладываемых в одной траншее с трубопроводом и под днищем вертикальных стальных резервуаров - не менее 50 лет.
6.1.4. Проектная организация должна выбрать тип, конструкцию и материалы изоляционных покрытий, средства ЭХЗ, изолирующие соединения, КИП, шунтирующие перемычки и другое противокоррозионное оборудование с учетом наличия на них сертификатов качества.
6.2 Состав комплекса изыскательских работ и электрометрических исследований
6.2.1 Изыскания для проектирования МН и площадок НПС должны проводиться по техническому заданию, методика выполнения работ и отчетные материалы должны соответствовать действующим НД.
6.2.2 В процессе изысканий для проектирования необходимы следующие исходные данные:
а) характеристика коррозионных условий:
1) удельное электрическое сопротивление грунтов на глубине прокладки трубопроводов: для линейной части МН - с шагом не менее 100 м и дополнительно во всех местах понижения рельефа (в нижней части); для площадок НПС - удельное электрическое сопротивление грунтов в центре квадратов со стороной, равной 20 м (количество квадратов определяется из общей площади НПС);
2) литологический состав грунта и количество растворимых солей в водной вытяжке грунта не менее чем через 100 м по трассе МН и в не менее 5 точках на площадке НПС;
3) участки МН с уровнем грунтовых вод выше глубины укладки трубопровода;
4) координаты пересечений с водными преградами, автомобильными и железными дорогами;
5) месторасположение электрифицированных железных дорог на постоянном и переменном токе на расстоянии до 10 км от МН, координаты расположения дроссель-трансформаторов и тяговых подстанций в зоне параллельного следования эж/д МН на расстоянии от трубопровода не менее 5 км и средняя и максимальная величина тяговых нагрузок эж/д;
6) разность потенциалов между двумя точками земли по двум взаимно перпендикулярным направлениям при разносе измерительных электродов на 100 м по трассе проектируемого МН, измеряемую через каждые 1000 м, для обнаружения блуждающих токов;
7) опасность биологической коррозии через 1000 м и дополнительно на участках при наличии в грунте пятен серого, черного и синеватого цвета;
8) координаты участков параллельного следования (на расстоянии от МН до 3 км) и пересечений строящегося МН с воздушными и кабельными линиями электропередач и их напряжение, а также угол пересечения;
б) характеристика условий токораспределения (для мест размещения анодных заземлений и гальванических анодов):
1) удельное электрическое сопротивление грунта на глубине укладки подпочвенных анодных заземлителей и гальванических анодов (ниже глубины сезонного промерзания грунта);
2) удельное электрическое сопротивление грунтов на глубину до 150 м для глубинных анодных заземлений в местах предполагаемого их размещений.
в) климатические данные: максимальная и минимальная температуры воздуха, глубина сезонного промерзания грунта;
г) месторасположение и параметры средств ЭХЗ посторонних сооружений (трубопроводов, бронированных кабелей) в местах параллельного следования на расстоянии от МН до 1 км и в местах пересечения с проектируемым нефтепроводом в зоне до 2 км по обе стороны от пересечения;
д) месторасположение и категория источников электроснабжения и технические условия на подключение к ним средств ЭХЗ.
6.2.3 В процессе изысканий должны быть выполнено согласование размещения и подключения средств электрохимической защиты со всеми заинтересованными организациями, в том числе со службами эксплуатации железной дороги на подключение средств дренажной защиты.
6.2.4 При разработке проектной документации на реконструкцию или техническое перевооружение действующих систем ЭХЗ в процессе изысканий необходимо получить следующие данные:
- тип, конструкция изоляционного покрытия подземных трубопроводов. Интегральное сопротивление изоляции и скорость изменения его во времени, наличие дефектов в изоляции (сквозные дефекты и неудовлетворительная адгезия изоляции);
- категории коррозионной опасности участков нефтепровода, анализ данных ВТД и шурфовки с оценкой скорости коррозии;
- координаты и рабочие параметры существующих средств ЭХЗ, их запас по мощности и току, остаточный ресурс анодных заземлений и протекторов, причины перерывов в работе УКЗ;
- координаты участков параллельного следования и пересечений с нефтепроводом воздушных и кабельных линий электропередачи 220 кВ и выше;
- уровень индуцированных напряжений на нефтепроводе и оценка коррозионной опасности переменных токов;
- протяженность защитных зон средств ЭХЗ, координаты участков трубопроводов с неудовлетворительным уровнем защитного потенциала;
- наличие вредного влияния средств ЭХЗ на смежные сооружения;
- состояние противокоррозионной защиты переходов в кожухах через автомобильные и железные дороги, а также переходов через водные преграды.
На предпроектных стадиях (Декларация о намерениях, Обоснование инвестиций) должны быть решены следующие задачи:
- выбор конструкции и материалов изоляционного покрытия трубопровода;
- выбор типа и определение количества средств ЭХЗ;
- рекомендация наиболее рационального варианта системы ЭХЗ в целом, включая отдельные элементы (анодные заземлители, контрольно-измерительные пункты, блоки совместной защиты и др.);
- определение источника электроснабжения средств ЭХЗ.
6.4.1 В состав ТЭО (проекта) и утверждаемой части рабочего проекта должна быть включена следующая документация:
- план трассы проектируемого трубопровода или план проектируемых подземных коммуникаций НПС с размещением устройств ЭХЗ и источников блуждающих токов;
- принципиальные установочные схемы устройств, принятых для электрохимической защиты от коррозии;
- пояснительная записка и ведомость потребности в оборудовании и материалах.
6.4.2 Рабочая документация должна содержать:
- план трассы проектируемого трубопровода с нанесенными линейными сооружениями (трубопроводами, кабелями, линиями электропередачи и др.), с проектируемыми и существующими устройствами ЭХЗ;
- планы размещения проектируемых устройств ЭХЗ с привязкой мест расположения УКЗ, УДЗ, протекторов, анодных заземлений, соединительных дренажных линий и линий электроснабжения;
- места подключения дренажных кабелей к подземным трубопроводам и источникам блуждающих токов, которые необходимо привязать к постоянным ориентирам и к пикетам;
- план инженерных сетей подземных коммуникаций НПС с размещением проектируемых устройств ЭХЗ;
- ведомость размещения контрольно-измерительных пунктов;
- принципиальные монтажные схемы средств ЭХЗ;
- установочные чертежи.
- Спецификацию оборудования и ведомость материалов.
При разработке рабочей документации необходимо использовать типовые проекты.
7.1 Проектируемая электрохимическая защита должна обеспечивать в течение всего срока эксплуатации непрерывную по времени катодную поляризацию сооружений на всем их протяжении (и на всей их поверхности) таким образом, чтобы значения поляризационных потенциалов на трубопроводе имели значение (по абсолютной величине) не меньше минимального и не больше максимального значений.
Значения минимального и максимального защитных потенциалов в зависимости от условий прокладки и эксплуатации трубопровода, согласно ГОСТ Р 51164 - 98 и ISO 15589 - 1, приведены в таблицах 7.1 и 7.2.
Минимальные защитные потенциалы
|
Условия прокладки и эксплуатации сооружений |
Минимальный защитный потенциал (В по МСЭ) |
|
|
Поляризационный |
С омической составляющей |
|
|
Грунты с удельным электрическим сопротивлением не менее 10 Ом×м или содержанием водорастворимых солей не более 1 г на 1 кг грунта или при температуре транспортируемого продукта не более 20 °С |
- 0,85 |
- 0,90 |
|
Грунты с удельным электрическим сопротивлением менее 10 Ом×м, или содержанием водорастворимых солей более 1 г на 1 кг грунта, или опасном влиянии блуждающих токов частотой (50 Гц) и постоянных токов, или при возможной микробиологической коррозии, или при температуре транспортируемого продукта более 20 °С |
- 0,95 |
- 1,05 |
|
Грунты с удельным электрическим сопротивлением от 300 до 1000 Ом×м |
- 0,75 |
- 0,85 |
|
Грунты с удельным электрическим сопротивлением более 1000 Ом×м |
- 0,65 |
- 0,75 |
|
Примечания 1 Для нефтепроводов с температурой транспортируемой не более 5 °С минимальный поляризационный защитный потенциал равен минус 0,80 В относительно медно-сульфатного электрода сравнения. 2 Минимальный защитный потенциал с омической составляющей при температуре транспортируемого продукта от 50 °С до 70 °С - минус 1,10 В; от 70 °С до 100 °С - минус 1,15 В. 3 Для грунтов с удельным электрическим сопротивлением от 300 до 1000 Ом×м смещение поляризационного потенциала относительно естественного потенциала должно быть не менее 200 мВ, а для грунтов с удельным электрическим сопротивлением более 1000 Ом×м - не менее 100 мВ. |
||
Для трубопровода, поврежденного коррозией (более 10 % толщины стенки), минимальные защитные потенциалы должны быть на 50 мВ отрицательнее величин, указанных в таблице 7.1.
Максимальные защитные потенциалы
|
Условия прокладки и эксплуатации сооружений |
Максимальный защитный потенциал по МСЭ, В |
|
|
Поляризационный |
С омической составляющей |
|
|
При прокладке трубопровода с температурой транспортируемого продукта выше 60 °С в грунтах с удельным электрическом сопротивлением менее 10 Ом×м или при подводной прокладке сооружений |
- 1,10 |
- 1,50 |
|
При других условиях прокладки трубопроводов: |
|
|
|
- с битумной изоляцией - с полимерной изоляцией |
- 1,15 - 1,15 |
- 2,50 - 3,50 |
|
Примечание - Для трубопроводов из упрочненных сталей с временным сопротивлением разрыву 588 МПа (60 кгс/мм2) и более не допускаются поляризационные потенциалы более отрицательные чем минус 1,10 В |
||
7.2 На всех вновь построенных и реконструируемых сооружениях должны быть обеспечены только поляризационные потенциалы.
7.3 Электрохимическую защиту технологических и вспомогательных подземных трубопроводов НПС, днищ вертикальных стальных резервуаров и морских терминалов следует проектировать с применением минимальной защитной плотности тока, указанной в разделах 12, 13 и 14.
7.4 Электрохимическую защиту от коррозии следует проектировать с определением на начальный и конечный периоды эксплуатации следующих параметров:
- для установок катодной защиты - защитного тока и напряжения на выходе катодных станций, а также сопротивления анодных заземлений;
- для протекторных установок - защитного тока и сопротивления протекторов.
В проектной документации параметры ЭХЗ на начальный и конечный периоды должны быть приведены в виде таблицы.
7.5 Строительство средств электрохимической защиты трубопроводов, предусмотренных проектом, должно осуществляться одновременно со строительством трубопровода и их следует включать в работу в зонах блуждающего тока в течение периода не более месяца после укладки и засыпки участка трубопровода, а в остальных случаях в течение периода не более 3 месяцев после укладки и засыпки участка трубопровода.
В случае невозможности ввода в эксплуатацию в указанные сроки средств постоянной электрохимической защиты, должна быть запроектирована временная ЭХЗ со сроками ввода в эксплуатацию, соответствующими срокам, указанным выше.
7.6 Система электрохимической защиты от коррозии всего объекта в целом должна быть построена и включена в работу до сдачи трубопровода в эксплуатацию.
7.7 Электрохимическую защиту от коррозии вновь строящихся сооружений необходимо проектировать с учетом действующей электрохимической защиты эксплуатируемых соседних трубопроводов и сооружений и будущего перспективного (до 5 лет) строительства подземных металлических сооружений.
7.8 Для исключения вредного влияния ЭХЗ на окружающую среду анодные заземления, располагаемые в горизонтах питьевой воды, должны быть выполнены из малорастворимых материалов: углеродосодержащих, магнетита или высококремнистого чугуна.
7.9 Установки катодной защиты проектируемых МН должны быть с автоматическим поддержанием защитного потенциала.
Установки катодной и дренажной защиты проектируемых МН должны быть обеспечены телеконтролем и дистанционным регулированием защитного потенциала в точке дренажа, защитного тока и напряжения.
7.10 При использовании автоматических преобразователей катодной защиты необходимо предусматривать установку в точке дренажа медно-сульфатного электрода длительного действия для обеспечения постоянного контроля защитного потенциала.
7.11 При разработке и реализации проекта ЭХЗ необходимо учитывать следующие основные положения:
- разработка проекта ЭХЗ для вновь строящихся трубопроводов и подземных коммуникаций выполняется одновременно с проектированием всего объекта. Для существующих трубопроводов допускается выполнение проектных работ по реконструкции и техническому перевооружению действующей системы ЭХЗ в одну стадию - рабочая документация;
- проектная организация должна иметь лицензию на право проектирования магистральных трубопроводных систем;
- проектная организация обязана осуществлять авторский надзор в период строительства;
- расчет параметров работы установок ЭХЗ выполняется с учетом прогнозирования их изменений во времени по методике, изложенной в настоящих Нормах. Расчет параметров ЭХЗ действующих трубопроводов следует производить с учетом результатов комплексного обследования этих трубопроводов по реальной величине сопротивления изоляции и скорости ее старения.
7.12 Изоляционные покрытия, применяемые на магистральных нефтепроводах и технологических трубопроводах НПС, должны соответствовать требованиям на заводское полиэтиленовое покрытие (ОТТ-04.00-27.22.00-КТН-005-1-03), на наружные антикоррозионные покрытия на основе термоусаживающихся полимерных лент, предназначенных для изоляции магистральных нефтепроводов и отводов от них (ОТТ 04.00-45.21.30-КТН-002-1-03) и техническим условиям: ТУ 1394-009-04005951-99, ТУ 14-3Р-49-2003, ТУ 14-3Р-66-2003, ТУ 14-3Р-67-2003.
7.13 Сопротивление изоляции вновь строящихся и реконструируемых трубопроводов в зависимости от типа изоляции должно соответствовать значениям, указанным в таблице 7.3. Это соответствие обеспечивается контролем состояния изоляции по РД 17.01-60.30.00-КТН-007-1-04.
Значения сопротивления и коэффициента изменения сопротивления изоляции во времени (g) на законченных строительством или реконструкцией участках трубопровода
|
Тип покрытия |
Сопротивление изоляции Ом×м2, не менее |
Коэффициент, g, 1/год |
|
Трех-, двухслойное полимерное покрытие на основе термореактивных смол и полиолефина; покрытие на основе термоусаживающихся материалов |
3·105 |
0,055 |
|
Все остальные покрытия усиленного типа кроме мастичных и полимерно-битумных |
1·105 |
0,08 |
|
Мастичные, полимерно-битумные покрытия усиленного типа и все покрытия нормального типа |
5·104 |
0,11 |
Удельные плотности защитного тока в зависимости от типа изоляционного покрытия и срока службы трубопровода указаны в таблице Б.1 (приложение Б).
7.14 Коэффициент (g), характеризующий скорость изменения сопротивления изоляции во времени, для реконструируемых и вновь строящихся трубопроводов определяют из таблицы 7.3.
7.15 Срок службы подпочвенного и глубинного анодного заземления независимо от условий эксплуатации должен быть не менее 15 лет.
Срок службы протяженных анодных заземлений, укладываемых в одной траншее с трубопроводом, должен быть не менее 50 лет.
Сопротивление растеканию анодных заземлений должно быть не более 2 Ом.
7.16 Соединения строительной длины протяженных анодов и токоотводящих проводов осуществляется соединительными муфтами с термоусаживающейся манжетой в заводских условиях.
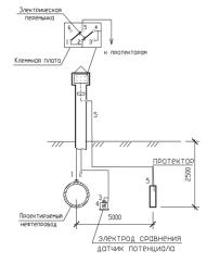
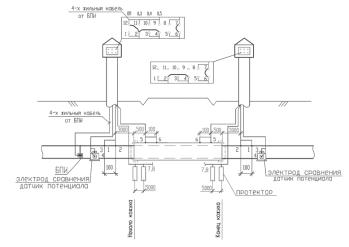
Соединение строительных длин протяженных анодов линейной части МН должно производиться на клеммной плате контрольно-измерительного пункта кабелем с двойной изоляцией сечением медной жилы не менее 25 мм2.
7.17 Все соединения в измерительных цепях ЭХЗ должны выполняться медью, сечением не менее 6 мм2. Соединение точки дренажа и минуса катодной станции должно производится только кабелем из меди с двойной изоляцией и сечением не менее 35 мм2.
7.18 Приварку проводов и кабелей установок ЭХЗ и контрольно-измерительных пунктов к трубопроводу следует производить:
- термитной или электродуговой сваркой к поверхности трубопровода - для труб с нормативным временным сопротивлением разрыву менее 539 МПа (55 кгс/мм2);
- только термитной сваркой с применением медного термита к поверхности трубопровода или электродуговой сваркой к продольным или кольцевым швам - для труб с нормативным временным сопротивлением разрыву 539 МПа (55 кгс/мм2) и более.
Присоединение дренажного кабеля к трубопроводу должно быть выполнено двумя контактами с трубой с расстоянием между ними, равном 100 мм.
7.19 Отдельно стоящие установки катодной и дренажной защиты должны иметь ограждение.
7.20 Изолирующие соединения устанавливаются только на трубопроводах-отводах от МН к сторонним потребителям.
8.1.1 Исходные данные
8.1.1.1 Исходными данными для проектирования катодной защиты строящихся МН являются:
а) конструктивные данные нефтепровода:
1) диаметр;
2) толщина стенки трубы;
3) марка трубной стали, удельное электрическое сопротивление и предел прочности стали;
4) глубина укладки нефтепровода;
5) тип и конструкция изоляционного покрытия нефтепровода;
6) сопротивление изоляционного покрытия и коэффициент изменения этого сопротивления во времени;
б) характеристика коррозионных условий:
1) удельное электрическое сопротивление грунтов на глубине прокладки трубопровода;
2) количество водорастворимых солей в грунте;
3) уровень грунтовых вод;
4) наличие и характеристика блуждающих токов источников постоянного и переменного тока;
5) возможность биологической коррозии;
в) характеристика условий токораспределения (для мест размещения анодных заземлений):
1) удельное электрическое сопротивление грунта на глубине укладки анодных заземлителей (ниже глубины сезонного промерзания грунта);
2) удельное электрическое сопротивление грунтов на глубину до 150 м для глубинных анодных заземлений;
г) рабочая температура перекачиваемой нефти;
д) климатические данные: максимальная и минимальная температуры воздуха;
е) наличие источников электроснабжения вдоль трассы нефтепровода и их характеристика;
ж) координаты узлов запорной и регулирующей арматуры и параметры защитного заземления (при их наличии);
и) данные об особенностях нефтепровода:
1) подводные переходы;
2) переходы через автомобильные и железные дороги;
3) месторасположение НПС;
4) камеры приема-пуска внутритрубных снарядов;
5) координаты пересечения кабельных и воздушных линий электроснабжения (220 кВ и более), участков параллельного следования на расстоянии до 500 м нефтепровода этим линиям;
6) пересечения с подземными металлическими сооружениями и участки параллельного следования.
8.1.1.2 Исходными данными для проектирования катодной защиты эксплуатируемых МН являются данные, перечисленные выше в пункте 8.1.1.1 со следующими особенностями:
- переходное сопротивление трубопровода и сопротивление изоляции, а также скорость изменения его во времени должны быть определены по данным измерений защитных потенциалов вдоль трубопровода и защитного тока УКЗ за не менее чем пятилетний период эксплуатации, предшествующего комплексному обследованию.
8.1.2 Основные этапы проектирования и расчета УКЗ
8.1.2.1 Расчет электрических параметров нефтепровода (переходного и продольного сопротивления, входного (характеристического) сопротивления на начальный и конечный период эксплуатации проектируемых средств ЭХЗ.
8.1.2.2 Определение величины минимального и максимального защитных потенциалов в зависимости от условий прокладки и эксплуатации трубопровода по таблицам 7.1 и 7.2.
8.1.2.3 Предварительный расчет силы защитного тока и длины защитной зоны на конечный период эксплуатации УКЗ.
8.1.2.4 Выбор месторасположения УКЗ.
8.1.2.5 Определение типа, месторасположения и параметров анодного заземления (АЗ).
8.1.2.6 Расчет параметров УКЗ.
8.1.3 Выбор технических решений по катодной защите
8.1.3.1 Выбор месторасположения УКЗ следует производить исходя из длины защитной зоны (плеч защиты), наличия источников электроснабжения. Преимущественно УКЗ следует устанавливать в районе узлов задвижек.
8.1.3.2 Выбор типа АЗ производят исходя из удельного электрического сопротивления грунта и наличия свободной площади:
- в грунтах с удельным электрическим сопротивлением не более 20 Ом×м следует применять сосредоточенные подпочвенные АЗ с использованием малорастворимых электродов, которые следует устанавливать ниже глубины сезонного промерзания и размещать преимущественно на некультивируемых землях;
- при наличии на глубине пластов с удельным сопротивлением в два раза меньшим, чем поверхностные грунты (по данным вертикального электрического зондирования), необходимо использовать ГАЗ.
- при удельном электрическом сопротивлении грунтов более 250 Ом×м в качестве анодных заземлителей следует использовать протяженные аноды с сопротивлением токопроводящего слоя до 1 Ом×м, в грунтах с удельным сопротивлением менее 250 Ом×м применяются глубинные заземлители, а также протяженные аноды с промежуточным слоем с сопротивлением до 3000 Ом×м;
- в скальных и многолетнемерзлых грунтах следует применять протяженные АЗ, укладываемые в траншею вместе с трубопроводом на расстоянии от его поверхности не менее 300 мм, размещение протяженных анодных заземлителей в траншее вместе с трубопроводом показано на рисунке В.2 (приложение В);
- расстояние от сосредоточенного АЗ до ближайшего защищаемого сооружения должно быть не менее 200 м. Для ГАЗ это расстояние должно быть не менее 50 м;
- проектируемое АЗ должно обеспечивать протекание защитного тока в течение заданного срока службы.
8.1.4 Методика расчета параметров УКЗ
8.1.4.1 Исходные данные для расчета:
1) диаметр трубопровода, Dт, м;
2) толщина стенки трубы, dт, мм;
3) сопротивление изоляции Rиз, Ом×м2;
4) удельное электрическое сопротивление грунта, rг, Ом×м;
5) глубина укладки трубопровода Hт, м.
8.1.4.2 Расчет электрических параметров нефтепроводов:
а) продольное сопротивление трубопровода Rт, Ом/м, рассчитывают по формуле:
, (8.1)
где rт - удельное сопротивление материала трубы, Ом·мм2/м (принимается равным 0,245 Ом·мм2/м);
Dт - диаметр трубопровода, м;
dт - толщина стенки трубопровода, мм.
б) сопротивление окружающего трубу грунта (Rp, Ом×м) (сопротивление растеканию трубопровода) определяют по следующему выражению:
, (8.2)
где Нт - глубина залегания (до оси) трубопровода, м;
rг - среднее удельное электрическое сопротивление грунта, Ом×м, вычисляемое по формуле:
, (8.3)
где Lз - длина защитной зоны, м;
Li - длина i-го участка с удельным электрическим сопротивлением ri, м;
n - количество участков грунта.
Выражение (8.2) является трансцендентным и решается методом итераций.
в) сопротивление изоляции трубопровода на срок эксплуатации t, год, рассчитывается по следующей зависимости:
Rиз(t) = Rиз×e-gt, (8.4)
где Rиз(t) - сопротивление изоляции в момент времени эксплуатации t, год, Ом×м2;
Rиз - начальное сопротивление изоляции трубопровода, Ом·м2, выбирается из таблицы 7.3;
g - коэффициент, характеризующий скорость изменения сопротивления изоляции во времени, 1/год, определяется по таблице 7.3.
г) постоянную распространения тока, aт, 1/м, вдоль трубопровода при удельном электрическом сопротивлении грунта менее 50 Ом×м определяют по формуле:
, (8.5)
при удельном электрическом сопротивлении грунта более 50 Ом×м:
, (8.6)
д) входное сопротивление трубопровода, Zт, Ом, определяют по формуле:
, (8.7)
где Lз - длина защитной зоны, м;
cth - гиперболический котангенс.
;
е) если точка дренажа разделяет трубопровод на плечи с различными электрическими параметрами, то входное сопротивление правого (Zпр, Ом) и левого (Zлев, Ом) плеч трубопровода будут соответственно равны:
, (8.8)
, (8.9)
где Rт(пр) и Rт(лев) - продольное сопротивление соответственно правого и левого плеч трубопровода, Ом/м;
Rп(пр) и Rп(лев) - переходное сопротивление на единицу длины МН, соответственно правого и левого плеч трубопровода, Ом×м;
L(пр) и L(лев) - длина соответственно правого и левого плеч трубопровода, м.
Входное сопротивление трубопровода, Zт, Ом, в этом случае определяется выражением:
, (8.10)
8.1.5.3 Расчет установок катодной защиты c подпочвенными и глубинными анодными заземлениями
а) длину защитной зоны (Lз, м) одной УКЗ на конечный период эксплуатации находят по формуле:
, (8.11)
где Uзмин- минимальный защитный потенциал, В*;
_____________
* Потенциалы подставляются в формулу по МСЭ.
Uзмак - максимальный защитный потенциал, В;
y - расстояние между трубопроводом и анодным заземлением, м;
rз - удельное электрическое сопротивление земли в поле токов катодной защиты, Ом×м;
Uе - естественный потенциал трубопровода, В. Определяется по данным изысканий или принимается равным минус 0,55 В по МСЭ;
б) расстояние между трубопроводом и анодным заземлением (кроме протяженного) y, м, определяют по формуле:
, (8.12)
где Р - коэффициент, определяемый по формуле:
, (8.13)
где rз - удельное сопротивление земли в поле токов катодной защиты, Ом×м;
Zт - входное сопротивление трубопровода, Ом, определенное на конечный период эксплуатации данной УКЗ;
в) силу тока катодной установки, Iз, А, определяют на начальный и конечный периоды эксплуатации из выражения:
, (8.14)
г) напряжение на выходе катодного преобразователя, V, В, вычисляют по формуле:
V = 1,3Iз(Zт + Rа + Rпр), (8.15)
где Iз - сила тока катодной установки, А, определяемая на конечный период эксплуатации;
Rа - переходное сопротивление АЗ, Ом:
, (8.16)
где yс - длина спусков провода с опор к катодной станции, анодному заземлению и трубопроводу, м;
S - сечение провода дренажной линии, мм2;
rпр - удельное электрическое сопротивление провода, Ом×мм2/м;
Rпр - сопротивление дренажных проводов, соединяющих катодную станцию с трубопроводом и АЗ, Ом;
д) мощность на выходе катодного преобразователя, W, Вт, определяют по формуле:
W = IзV, (8.17)
е) выбор средств катодной защиты производится в соответствии с результатами расчета защитного тока и напряжения на выходе. При этом необходимо увеличить ток и напряжение на 30 %. При прокладке трубопровода в грунтах высокой коррозионной агрессивности необходимо дополнительно увеличить силу защитного тока и напряжение на выходе катодного преобразователя на 50 % для обеспечения резервирования катодных установок. В соответствии с расчетными значениями защитного тока и напряжения выбирают тип катодного преобразователя.
8.1.5.4 Расчет подпочвенных и глубинных анодных заземлений, основными параметрами которых являются сопротивление растеканию и срок службы:
а) подпочвенное анодное заземление:
1) сопротивление растеканию заземлителя, Rз1, Ом, при вертикальном расположении:
, (8.18)
где rг - удельное электрическое сопротивление грунта, Ом·м;
lа - длина электрода заземлителя, м;
dа - диаметр электрода заземлителя, м;
h - глубина (до середины заземлителя) заложения электрода, м;
2) Сопротивление растеканию заземлителя, Rз1, Ом, при горизонтальном расположении и при lа ³ h:
, (8.19)
где h - глубина заложения электрода, м.
3) сопротивление растеканию заземлителя Rз1, Ом, при горизонтальном расположении и при lа < h
, (8.20)
4) срок службы, Т, год, подпочвенных АЗ, соединенных параллельно, для горизонтального и вертикального расположения электродов рассчитываем по формуле:
, (8.21)
где М - масса анодного заземлителя, кг;
k - коэффициент запаса (k = 0.8);
q - электрохимический эквивалент материала анода, кг/А×год (по данным п. 16.2);
Na - число заземлителей.
Iзср - средний ток защиты катодной станции за период эксплуатации, А, равный:
, (8.22)
где Iн и Iк - защитный ток в начальный и конечный периоды эксплуатации анодного заземления, А.
5) Сопротивление растеканию подпочвенного АЗ Rз, Ом, равно:
, (8.23)
где Rз1 - сопротивление растеканию одиночного анодного заземлителя, Ом;
hэ - коэффициент экранирования, рассчитываемый по формуле:
, (8.24)
где b, c, f - эмпирические коэффициенты (таблица 8.1);
a - расстояние между электродами, м.
Таблица 8.1
Коэффициенты для расчета эффекта экранирования
|
Параметры анодного заземлителя |
b |
c |
f |
|
Вертикальный в коксовой засыпке (la = 1,4 м, da = 0,185 м, h = 1,7 м) |
0,41 |
0,17 |
0,83 |
|
Горизонтальный в коксовой засыпке (la = 1,4 м; da = 0,185 м; h =1,7 м) |
0,49 |
0,15 |
0,71 |
|
Вертикальный (la = 3,0 м; da = 0,1 м; h = 1,5 м) |
0,41 |
0,19 |
0,76 |
|
Горизонтальный (la = 3,0 м; da = 0,1 м; ha = 1,5 м) |
0,36 |
0,18 |
0,80 |
б) Глубинное анодное заземление (из трубных и свайных конструкций или последовательно соединенных одиночных заземлителей в скважине):
1) сопротивление растеканию анодного заземлителя в коксовой засыпке или в другом наполнителе с выходом торца заземлителя на поверхность земли, Rз1, Ом:
, (8.25)
где lа - длина рабочей части глубинного заземления (для последовательного соединения единичных анодов), м:
la @ Nala1, (8.26)
где Na - число анодов в одном анодном заземлителе;
la1 - длина одного анодного заземлителя, м;
rгс - среднее удельное электрического сопротивление грунта по глубине скважины, Ом·м, определяемое как:
, (8.27)
где li - длина i-го участка с удельным электрическим сопротивлением rгi, м;
n - количество участков грунта по глубине скважины с удельным электрическим сопротивлением rгi.
rкз - удельное электрическое сопротивление засыпки, Ом·м;
rа - удельное электрическое сопротивление анодного материала, Ом·м;
dа - диаметр анода, м;
dз - диаметр засыпки, м;
Sа - площадь сечения электрода анода, м2;
2) сопротивление растеканию анодного заземлителя в коксовой засыпке или в другом наполнителе без выхода торца на поверхность земли в коксовой засыпке или в другом наполнителе:
, (8.28)
где h - расстояние от поверхности земли до середины заземлителя, м.
3) сопротивление растеканию анодного заземления Rз, Ом, составленного из Nаз анодных заземлителей, соединенных параллельно, определяют по формуле:
, (8.29)
где Rз1 - сопротивление растеканию одного анодного заземлителя, Ом;
hэ - коэффициент экранирования (формула 8.24);
4) срок службы глубинного анодного заземления Т, год, состоящего из Nаз анодных заземлителей, соединенных параллельно, рассчитывают по формуле:
, (8.30)
где Мз1 - масса одного анодного заземлителя, кг;
Мз1 = Nа·Ma,
где Ма - масса одного анода;
k - коэффициент запаса (k = 0,8);
q - электрохимический эквивалент материала анода, кг/А×год;
Если расчетный период эксплуатации меньше требуемого, то количество анодных заземлителей Nз необходимо увеличить.
kг - коэффициент неоднородности грунта по глубине скважины, определяемый по формуле:
, (8.31)
где lai - длина рабочей части заземлителя, находящейся в i-ом слое грунта, м;
rгi - удельное электрическое сопротивление i-го слоя грунта, Ом×м;
rгk - удельное электрическое сопротивление k-го слоя грунта, имеющего наименьшее сопротивление из n слоев, Ом×м;
lak - длина заземлителя, находящейся в k-ом слое грунта, м;
n - число слоев грунта с различным удельным электрическим сопротивлением, пересекаемых глубинным анодным заземлением.
8.1.5.5 Расчет установок катодной защиты c протяженными анодными заземлениями:
а) длину защитной зоны УКЗ с протяженным АЗ рассчитывают по формуле:
, (8.32)
б) силу тока УКЗ с протяженным АЗ рассчитывают по формуле:
, (8.33)
в) сопротивление растеканию протяженного анода Rзп , Ом×м, равно:
, (8.34)
где dпа; hпа - диаметр и глубина укладки протяженного анода, м;
Rап - продольное сопротивление протяженного анода, Ом/м:
, (8.35)
где rас - удельное электрическое сердечника сопротивление анода, Ом×мм2/м (для меди rа = 0,017 Ом·мм2/м);
Sас - сечение сердечника анода, мм2.
г) входное сопротивление протяженного анода Zпa, Ом, при условии, что точка дренажа разбивает защищаемый участок трубопровода на плечи равной длины, равно:
, (8.36)
где lпа - длина протяженного анодного заземления, м, определяется из таблицы 8.2;
cth - гиперболический котангенс;
aпа - постоянная распространения тока вдоль протяженного анода, 1/м
, (8.37)
д) срок службы протяженного анодного заземления T, год, определяют исходя из максимальной линейной плотности тока в точке подсоединения дренажного кабеля:
, (8.38)
где G - масса токопроводящей резины 1 метра протяженного анода, кг/м, определяемая по формуле:
, (8.39)
gр - удельный вес токопроводящей резины, тн/м3 (gр = 1.3 тн/м3);
k - коэффициент запаса (k = 0,8);
q - электрохимический эквивалент материала анода, кг/А×год;
kг - коэффициент неоднородности грунта,
j(0) - линейная плотность тока анода в точке дренажа, А/м, определяемая по формуле:
j(0) = 0,5aпаIзсрcth(0,5aпаlпа), (8.40)
е) при необходимости увеличения срока службы протяженного анода следует использовать аноды с промежуточным слоем повышенного сопротивления между центральной медной жилой и проводящей резиновой массой. В этом случае сопротивление растекания Rзп, Ом×м, равно:
, (8.41)
где Rпп - сопротивление промежуточного слоя повышенного сопротивления, Ом×м;
dпп - толщина слоя повышенного сопротивления, м;
ж) минимальные длины протяженного анодного заземления для различных значений удельного электрического сопротивления грунта и длины защищаемого участка при сроке службы АЗ, равном 25 лет, приведены в таблице 8.2.
Параметры минимальной длины протяженного анодного заземления
|
Удельное сопротивление грунта Ом×м |
Длина защищаемого участка нефтепровода, м |
|||
|
10000 |
15000 |
20000 |
25000 |
|
|
250 и менее |
600 |
800 |
1000 |
1200 |
|
500 |
900 |
1100 |
1300 |
1500 |
|
1000 |
1500 |
1800 |
2400 |
2900 |
|
3000 |
2500 |
3700 |
5000 |
6200 |
|
10000 |
6000 |
9000 |
12000 |
15000 |
|
50000 |
10000 |
15000 |
20000 |
25000 |
8.2.1 Исходные данные для проектирования
8.2.1.1 Исходными данными для проектирования дренажной защиты строящихся МН являются:
- конструктивные данные нефтепровода по пункту 8.1.1а;
- характеристика коррозионных условий по пункту 8.1.1б;
- координаты пересечения и/или участка сближения проектируемого МН с электрифицированной железной дороги;
- расположение тяговых подстанций и путевых дросселей на участках сближения электрифицированной железной дороги с проектируемым трубопроводом;
- максимальный ток нагрузки тяговых подстанций;
- падение напряжения в отсасывающем фидере определяется по данным службы эксплуатации электрифицированных железных дорог;
- расстояние между трубопроводом и тяговыми подстанциями или путевыми дросселями;
- количество параллельных ниток трубопровода;
- климатические данные: максимальная и минимальная температуры воздуха.
8.2.1.2 Исходными данными для проектирования дренажной защиты эксплуатируемых МН являются:
- параметры существующей дренажной защиты: максимальный, средний и минимальный ток дренажа, реальный запас по току дренирования;
- распределение разности потенциалов труба-земля и поляризационного потенциала на участке, подверженном влиянию блуждающих токов, с определением мест с ненормативным защитным потенциалом.
8.2.2 Основные этапы проектирования дренажной защиты
8.2.2.1 Проектирование дренажной защиты проводится по следующим этапам:
а) для строящихся МН:
1) выбор схемы защиты и места установки защитных устройств.
2) расчет дренажного тока и выбор типа защитного средства.
3) расчет сечения дренажного кабеля.
б) для эксплуатируемых МН:
1) уточнение месторасположения дренажа.
2) выбор дренажа и расчет сечения кабеля.
3) определение параметров дополнительных автоматических УКЗ и их месторасположения.
8.2.3 Методика расчета параметров дренажной защиты
8.2.3.1 Определение тока дренажных установок.
Дренажный ток, iд, А, определяют по формуле:
iд = 0,2iтпK1K2K3K4K5, (8.42)
где K1 - коэффициент, учитывающий расстояние между трубопроводом и электрифицированной железной дорогой;
K2 - коэффициент, учитывающий расстояние от трубопровода до тяговой подстанции;
K3 - коэффициент, учитывающий тип изоляционного покрытия трубопроводов;
K4 - коэффициент, учитывающий срок эксплуатации трубопровода;
K5 - коэффициент, учитывающий количество параллельно уложенных трубопроводов.
Величина коэффициентов K1, K2, K3, K4 и K5 приведены в таблицах 8.3-8.7.
Значение коэффициента K1
|
Расстояние между трубопроводом и электрифицированной железной дорогой, км |
Значение коэффициента K1 |
|
До 0,5 |
0,9 |
|
0,5 - 1 |
0,7 |
|
Более 1 |
0,4 |
Таблица 8.4
Значение коэффициента K2
|
Расстояние от трубопровода до тяговой подстанции э/железной дороги, км |
Значение коэффициента K2 |
|
До 0,5 |
0,9 |
|
0,5 - 1 |
0,6 |
|
1 - 2 |
0,35 |
|
2 - 3 |
0,2 |
|
Более 3 |
0,1 |
Таблица 8.5
Значение коэффициента K3
|
Тип изоляционного покрытия трубопровода |
Значение коэффициента K3 |
|
Трех-, двухслойное полимерное покрытие на основе термореактивных смол и полиолефина; покрытие на основе термоусаживающихся материалов |
0,3 |
|
Все остальные покрытия усиленного типа кроме мастичных и полимерно-битумных |
0,5 |
|
Мастичные и полимерно-битумные покрытия |
0,8 |
|
Все покрытия нормального типа |
0,9 |
Таблица 8.6
Значение коэффициента K4
|
Срок эксплуатации трубопровода, годы |
Значение коэффициента K4 |
|
Менее 3 |
0,5 |
|
5 - 7 |
0,6 |
|
7 - 10 |
0,8 |
|
10 - 15 |
0,9 |
|
Более 15 |
1,0 |
Значение коэффициента K5
|
Количество параллельных трубопроводов |
Значение коэффициента K5 |
|
1 |
0,75 |
|
2 |
0,85 |
|
3 |
0,93 |
|
4 |
0,97 |
|
Более 4 |
1,00 |
8.2.3.2 Расчет сечения дренажного кабеля Sд, мм2:
, (8.43)
где lк - длина дренажного кабеля, м;
rм - удельное сопротивление материала кабеля, Ом×мм2/ м;
DUд - допустимое падение напряжения в дренажной цепи, В.
При подключении дренажного кабеля непосредственно к минусовой шине тяговой подстанции допустимое падение напряжения в дренажной цепи DUд, равно допустимому падению напряжения в дренажном кабеле DUк:
DUд = DUк.
В этом случае величину DUк определяют по данным таблицы 8.8.
Таблица 8.8
Допустимое падение напряжения в дренажном кабеле при подключении его к минусовой шине тяговой подстанции
|
Расстояние между отсасывающим пунктом и трубопроводов, км |
0,2 |
0,5 |
1,0 |
2,0 |
3,0 |
|
Допустимое падение напряжения в дренажном кабеле, В |
10 |
11 |
12 |
13 |
14 |
Допустимое падение напряжения в дренажном кабеле при подключении его к средней точке путевого дросселя
|
Расстояние между трубопроводом и электрифицированнной железной дорогой, км |
0,5 |
1,0 |
2,0 |
3,0 |
|
Допустимое падение напряжения в дренажном кабеле, В |
3 |
5 |
6 |
7 |
При подключении дренажного кабеля к рельсам через среднюю точку путевых дросселей величину DUк находят по таблице 8.9.
В случае подключения дренажного кабеля к отсасывающим фидерам при расчете сечения дренажного кабеля надо учитывать падение напряжения в фидере по формуле:
DUд = DUк + DUф, (8.44)
где DUФ - падение напряжения в отсасывающем фидере определяется по данным Управления электрифицированных железных дорог, В.
DUк - падение напряжения в дренажном кабеле, В.
8.2.4 Выбор технических решений по дренажной защите
8.2.4.1 Защита нефтепроводов от коррозии блуждающими токами осуществляется поляризованными дренажами и/или автоматическими катодными установками.
8.2.4.2 Поляризованные дренажи следует подключать к средним точкам путевых дросселей или сборкам отсасывающих фидеров при согласовании со службой эксплуатации железной дороги.
8.2.4.3 Электрические дренажи устанавливают в анодных и знакопеременных зонах преимущественно в местах сближения железных дорог с нефтепроводами. Подключение электрического дренажа следует производить в зонах с наиболее отрицательными потенциалами рельс-земля.
8.2.4.4 Автоматические катодные станции (преобразователи) следует использовать при удалении на расстояние более 2 км от источников блуждающих токов. Эти станции должны автоматически поддерживать заданное значение поляризационного потенциала;
8.2.4.5 Место установки автоматических катодных станций следует выбирать с учетом расположения катодных зон на рельсах электрифицированного транспорта и наличия участков грунтов с относительно малым удельным электрическим сопротивлением.
8.3.1 Протекторная (гальваническая) защита применяется в следующих случаях:
а) защита кожухов (см. раздел 11);
б) зашита сооружений морских терминалов;
в) защита от вредного влияния переменного тока.
8.3.2 Защита нефтепровода протекторными группами от вредного влияния переменного тока осуществляется при сближении на расстояние менее 500 м или пересечения ЛЭП 220 кВ и выше. Пример схемы подключения протекторов приведена на рисунке В.1 (Приложение В).
8.3.3 Исходными данными для проектирования являются:
- конструктивные данные нефтепровода по п. 8.1.1а.
- характеристика коррозионных условий по п. 8.1.1б.
8.3.4 Методика расчета параметров протекторной защиты
а) расчет протекторных установок заключается в определении:
- длины участка трубопровода, защищаемого протектором;
- силы тока в цепи протектор-труба;
- количества протекторов для защиты участка трубопровода требуемой длины;
- срока службы протекторов.
б) длина защитной зоны одного протектора равна:
, (8.45)
где Uп - стационарный потенциал протектора, В (таблица 8.10);
Ue - естественная потенциал сооружения, В;
Uтзм - минимальная защитная разность потенциалов труба-земля, В;
Rиз - сопротивление изоляции трубопровода, Ом×м2;
Rпт - сопротивление протектора, Ом;
Dт - диаметр трубопровода, м.
В формулу (8.45) подставляют значения Uп, Uтзм и Ue измеренные относительно МСЭ, а Rиз - на конечный срок службы проектируемой протекторной защиты.
в) сила тока в цепи протектор-трубопровод Iп, А, равна:
, (8.46)
Электрохимические характеристики протекторов из сплава на основе магния
|
Наименование характеристик |
Единица измерения |
Величина |
|
Стационарный потенциал по медно-сульфатному электроду сравнения |
В |
- 1,6 |
|
Теоретическая токоотдача |
А×ч/кг |
2330 |
|
Коэффициент полезного действия: - для сплава МП1 |
б/р |
0,65 |
|
- для сплава МП2 |
0,60 |
|
|
Удельное электрическое сопротивление активатора |
Ом×м |
1,6 |
г) Сопротивление протектора при том условии, что la >> da/2 и 4h > la, равно:
, (8.47)
где rг; rа - соответственно удельное электрическое сопротивление грунта и активатора, Ом×м;
da - диаметр комплектного протектора, м;
la - длина комплектного протектора, м;
dэ - диаметр магниевого электрода, м;
h - глубина установки протектора (расстояние от поверхности земли до середины протектора), м.
Для упакованных протекторов типа ПМ5У, ПМ10У, ПМ20У можно пользоваться упрощенной формулой:
Rпт = Arг + Б, (8.48)
где А и Б - коэффициенты, зависящие от размеров протекторов.
В таблице 8.11 приведены значения коэффициентов А и Б при установке протекторов на глубину до 2,5 м.
Таблица 8.11
Значения коэффициентов А и Б
|
Тип протектора |
Коэффициент А, м-1 |
Коэффициент Б, Ом |
|
ПМ5У |
0,57 |
0,24 |
|
ПМ10У |
0,47 |
0,18 |
|
ПМ20У |
0,41 |
0,15 |
д) количество протекторов, необходимое для защиты участка трубопровода, определяют по формулам:
1) для протекторов, распределенных по защищаемому участку трубопровода:
, (8.49)
2) при групповой установке протекторов:
, (8.50)
где lзп- длина участка трубопровода, защищаемая протекторами;
hэ - коэффициент экранирования, определяемый по формуле (для протекторов ПМ5У, ПМ10У и ПМ20У):
, (8.51)
la - длина протектора, м.
е) срок службы протекторов Тп, год вычисляют по формуле:
, (8.52)
где mп - масса протектора, кг;
q - теоретическая токоотдача материала протектора, А×ч/кг;
hи - коэффициент использования материала протектора (hи = 0,90);
hп - коэффициент полезного действия протектора (hп = 0,6);
Iп.ср - средняя сила тока в цепи протектор-труба за планируемый период времени Тп, А;
ж) расчет параметров временной протекторной защиты производится следующим образом:
1) нефтепровод разбивают на участки длиной lз £ 10000 м, выделяя на них места с наименьшим удельным электрическим сопротивлением;
2) количество протекторов на участке нефтепровода длиною lз рассчитывают по формуле:
, (8.53)
где Uтзм - минимальный защитный потенциал трубопровода, В;
Uе - естественный потенциал трубопровода, В;
Uп - электродный потенциал протектора, В;
Rпт - сопротивление единичного протектора, Ом;
Rиз - сопротивление изоляции, Ом×м2;
и) Расчет количества протекторов для исключения вредного влияния на соседние подземные коммуникации производится по формуле:
. (8.54)
9.1 Проектирование совместной защиты многониточных трубопроводов производится в случаях:
- параллельного пролегания защищаемого трубопровода другому подземному металлическому сооружению (трубопроводу или кабелю связи);
- пересечения защищаемого трубопровода с незащищенным сооружением.
9.2 При проектировании ЭХЗ МН должно быть исключено вредное влияние на соседние подземные металлические сооружения, в том числе
- уменьшение по абсолютной величине минимального или увеличение по абсолютной величине максимального защитного потенциала на соседних металлических сооружениях, имеющих катодную поляризацию;
- появление опасности коррозии на соседних сооружениях, ранее не требовавших защиты от нее (опасность коррозии пропорциональна смещению потенциала на этих сооружениях в положительную сторону).
9.3 Полное устранение или уменьшение до безопасных пределов вредного влияния катодной поляризации защищенного сооружения на смежные (параллельные) сооружения, не имеющие электрохимической защиты, должно быть обеспечено следующими способами:
- устройством раздельной или совместной защиты;
- удалением анодного заземления катодной установки, являющегося источником вредного влияния, от незащищенного сооружения на расстояние не менее 3y (y - расстояние между анодным заземлением и защищаемым трубопроводом);
- устройством перемычки в точке дренажа между МН и смежным сооружении;
- установкой протекторов или группы протекторов на смежном подземном сооружении.
9.4 Параллельные магистральные трубопроводы должны быть совместно защищены от коррозии с целью исключения возможного вредного влияния и резервирования средств защиты.
9.5 Расчет параметров установок совместной катодной защиты выполняется, так же как и для одиночных трубопроводов.
9.6 Ток установок совместной катодной защиты определяют из выражения:
, (9.1)
где ii - величина тока, необходимая для защиты i-го трубопровода, А;
n - количество совместно защищаемых трубопроводов.
9.7 Размещение катодных станций на параллельных трубопроводах производят по минимальной длине защитной зоны на конечный период эксплуатации проектируемой совместной катодной защиты.
9.8 В точке дренажа всех параллельных трубопроводов используют электрическую перемычку с целью резервирования катодной защиты на случай отказа в работе одной из защитных установок.
9.9 Точку дренажа установки совместной катодной защиты выбирают, исходя из состояния изоляционного покрытия трубопровода: в общем случае, точку дренажа оборудуют на трубопроводе с наибольшей постоянной распространения тока (наименьшей длиной защитной зоны установки катодной защиты) или, в частном случае, на трубопроводе с худшей изоляцией (требующим большего защитного тока).
9.10 Перемычки должны размыкаться с целью контроля величины тока в перемычке и облегчения наладки электрохимической защиты.
9.11 Если трубопроводы имеют технологическую перемычку на расстоянии от точки дренажа менее 1/4 длины защитного плеча, то электрические перемычки в точках дренажа не устанавливаются.
9.12 Оптимальные схемы совместной катодной защиты параллельных трубопроводов с применением подпочвенных и глубинных АЗ:
- одна катодная установка на все параллельные трубопроводы при общем токе защиты на пятнадцатый год эксплуатации не более 40 А. Анодное заземление может быть расположено по любую сторону от трубопроводов;
- две катодных установки на параллельных трубопроводах при общем токе защиты на пятнадцатый год эксплуатации не более 60 А. Анодные заземления катодных установок могут быть расположены как по одну сторону от трубопроводов, так и по разные стороны. При размещении анодных заземлений по одну сторону от трубопроводов расстояние между ними должно быть не менее 3 их линейных размеров, но не менее 200 м;
- при токе защиты каждого трубопровода более 25 А катодные установки должны быть оборудованы на каждом трубопроводе, а точки дренажа соединяют перемычками;
- при расстоянии между параллельными трубопроводами более 50 м независимо от силы защитного тока целесообразна установка катодных станций на каждом трубопроводе.
9.13 Включение нескольких катодных станций с разными точками дренажа на одно анодное заземление не допускается.
9.14 В случаях, когда напряжения катодной станции недостаточно для обеспечения необходимого защитного тока допускается последовательное соединение двух катодных станций (преобразователей).
9.15 Электрические перемычки должны выполняться только с применением контрольно-измерительных пунктов, клеммы контрольной панели и проводники должны быть рассчитаны на величину защитного тока.
9.16 Электрические перемычки между трубопроводами должны быть установлены только в точках дренажа.
9.17 Для снятия вредного влияния ЭХЗ на посторонние сооружения (трубопроводы, кабели связи и др.) должна быть установлена электрическая перемычка с резисторным блоком (кроме тех случаев, когда это влияние снимают протекторной установкой).
9.18 Подключение перемычек между трубопроводом и кабелем связи должно выполняться в местах расположения соединительных муфт на кабелях связи.
10.1 Проектирование ЭХЗ эксплуатируемых узлов задвижек и камер приема-пуска диагностических снарядов.
10.1.1 Исходные данные для проектирования следует получить в процессе изысканий.
10.1.2 По результатам изысканий должны быть определены следующие данные:
а) координаты и параметры (защитный ток, напряжение и номинальная мощность) ближайшей УКЗ;
б) сопротивления изоляционного покрытия нефтепровода;
в) удельное электрическое сопротивление грунта на глубине залегания МН в районе узлов задвижек и камер приема-пуска не менее чем в 5 точках;
г) Естественный потенциала трубопровода;
д) поляризационный потенциал и разность потенциалов труба-земля при трех режимах ближайшей УКЗ (не нарушая требований по максимальному потенциалу в точке дренажа);
е) удельное электрическое сопротивление грунта в местах возможного размещения анодного заземления дополнительной УКЗ или группы протекторов.
10.1.3 На основании полученных исходных данных определить потребность в дополнительном защитном токе по формуле:
, (10.1)
где Uтзм - минимальный защитный потенциал, В;
Uез - естественный потенциал узла задвижек, В;
Sз - площадь изолированной поверхности узла задвижек или камер приема-пуска диагностических снарядов, м2;
Rпз - сопротивление изоляции узла задвижек или камер приема-пуска диагностических снарядов, Ом×м2.
Необходимость катодной защиты узла задвижек или камер приема-пуска диагностических снарядов существующей УКЗ определяется из выражения:
IУКЗ ≥ 0,7IдеaL, (10.2)
где α, L - соответственно постоянная распространения тока, 1/м, и расстояние между ближайшей УКЗ и узлом задвижек или камеры приема-пуска диагностических снарядов, м;
IУКЗ - защитный ток ближайшей УКЗ, А.
Если правая часть неравенства меньше защитного тока ближайшей УКЗ, то дополнительных мер по катодной защите не требуется. В противном случае следует принять меры по усилению ЭХЗ. При этом следует рассмотреть следующие меры:
- увеличение мощности ближайшей УКЗ;
- установка дополнительной УКЗ.
Решение о выборе той или иной меры зависит от величины тока защиты узла задвижек или камеры приема-пуска диагностических снарядов и удельного электрического сопротивления грунта.
10.2 Проектирование ЭХЗ строящихся узлов задвижек и камер приема-пуска диагностических снарядов.
10.2.1 Узлы задвижек и камер приема-пуска диагностических снарядов должны иметь изоляционное покрытие внешней поверхности, отвечающее тем же требованиям, что и изоляционное покрытие нефтепровода.
10.2.2 Защитное заземление электрооборудования на узлах задвижек и камер приема-пуска диагностических снарядов должно быть выполнено из оцинкованного стального проката.
10.2.3 Необходимый ток для защиты узла задвижек и камер приема-пуска диагностических снарядов следует рассчитывать по формуле (10.1).
10.2.4 Анодное заземление дополнительной УКЗ следует располагать на максимально возможном расстоянии от защитного заземления, но не менее 100 м.
11.1 Проектирование ЭХЗ подводных переходов
11.1.1 На переходах через водные преграды при ширине водоохранной зоны более 500 м на одном из берегов на расстоянии не более 1 км от уреза воды должна быть предусмотрена установка катодной защиты. Допускается размещение установки катодной защиты на совмещенных площадках с береговыми задвижками. При ширине водоохранной зоны менее 500 м проектирование ЭХЗ производиться по требованиям раздела 8.
11.1.2 На переходах через водные преграды по системе "труба в трубе" кожух должен быть защищен катодной установкой.
11.1.3 На действующем трубопроводе проектирование и реконструкция катодной защиты должны производиться на основании результатов изысканий, в состав которых должны включаться измерения смещения потенциала на одном из берегов при включении и выключении установки катодной защиты на другом берегу.
11.1.4 Расчет параметров катодной защиты для участка нефтепровода с подводным переходом производится по методике расчета, приведенной в разделе 8, для начального сопротивления изоляции, равном 104 Ом×м2.
11.1.5 Контрольно-измерительные пункты на подводном переходе устанавливаются в соответствии с требованиями раздела 15.
11.2 Проектирование ЭХЗ кожухов на переходах через железные и автомобильные дороги
11.2.1 Электрохимическая защита кожухов от подземной коррозии осуществляется при удельном электрическом сопротивлении грунта не более 500 Ом×м.
11.2.2 Минимальный защитный потенциал определяют из таблицы 7.1. Для кожухов в грунтах низкой коррозионной агрессивности при удельном электрическом сопротивлении грунта более 100 Ом×м минимальное защитное смещение поляризационного потенциала относительно естественного должно быть не менее 100 мВ (или смещение разности потенциалов с омической составляющей не менее 200 мВ).
11.2.3 Расчет ЭХЗ кожухов осуществляется следующим образом:
а) защитный ток кожуха Iк, А, определяют из выражения:
, (11.1)
где Uкз.м - минимальная защитная разность потенциалов кожух -земля, В;
Uке - естественный потенциал кожуха, В;
Rк(t) - сопротивление кожуха, Ом, через t лет эксплуатации рассчитывается по формуле:
, (11.2)
где Rиз.к - сопротивление изоляции кожуха, Ом·м2;
γ - коэффициент, характеризующий изменение сопротивления изоляции во времени, 1/год;
ρг - удельное электрическое сопротивление грунта, Ом·м;
Dк - диаметр кожуха, м;
Lк - длина кожуха, м;
t - срок службы проектируемой системы ЭХЗ ;
б) количество протекторов, необходимых для защиты кожуха, определяют по формуле:
, (11.3)
где Iп - ток единичного протектора, А. Расчет этой величины производят в соответствии по формулам раздела 8. Выбор типа и определение количества протекторов производится на 15 год эксплуатации.
11.2.4 Проектирование ЭХЗ действующего перехода осуществляется по данным обследования, в процессе которого:
- измеряется естественный потенциал трубопровода и кожуха;
- измеряется сопротивление кожуха.
На основании этих данных по формулам (11.1-11.3) определяют количество и тип протекторов.
12.1 Исходными данными для проектирования электрохимической защиты являются следующие данные:
- план площадки с указанием размещения подземных инженерных сетей и их общей площади;
- удельное электрическое сопротивление грунтов на площадке и за ее пределами на расстоянии не менее 50 м, а также результаты вертикального электрического зондирования грунтов на глубину до 150 м;
- максимальная температура перекачиваемого продукта;
- оценка влияния блуждающих токов от источников постоянного и переменного тока.
12.2 Задачей проектирования является определение количества средств электрохимической защиты, их мощности и размещения.
12.3 Минимальная защитная плотность тока технологических и вспомогательных трубопроводов определяется исходя из данных об удельном электрическом сопротивлении грунта, опасности блуждающих токов и максимальной температуре перекачиваемого продукта (таблица 12.1).
Значения минимальной плотности защитного тока трубопроводов НПС
|
Удельное электрическое сопротивление грунтов, Ом×м |
Наличие опасного влияния блуждающих токов |
Максимальная температура перекачиваемого продукта, °С |
Минимальная плотность защитного тока, мА/м2 |
|
Менее 10 |
Имеется |
Более 20 |
35 |
|
Не имеется |
Менее 20 |
25 |
|
|
10 - 40 |
Имеется |
Более 20 |
25 |
|
Не имеется |
Менее 20 |
17 |
|
|
Более 40 |
Имеется |
Более 20 |
17 |
|
Не имеется |
Менее 20 |
12 |
|
|
Примечания 1 За величину удельного электрического сопротивления грунта принимается ее минимальное значение, полученное на площадке при инженерных изысканиях; 2 За максимальную температуру перекачиваемого продукта принимается максимальная среднесуточная температура этого продукта; 3 Оценка влияния блуждающих токов от источников постоянного и переменного тока производится в соответствии с требованиями действующих НД |
|||
12.4 Суммарный ток защиты трубопроводов НПС, Iпл, А, определяется по формуле:
, (12.1)
где jз.пл - минимальная защитная плотность тока, А/м2;
Si - площадь поверхности i-того трубопровода, м2;
Nпл - общее количество подземных трубопроводов на площадке НПС.
12.5 Количество установок катодной защиты коммуникаций площадки МН NУКЗ, шт, определяется по формуле:
, (12.3)
где Iпл - общая сила защитного тока подземных коммуникаций площадки, А;
Iн - номинальная сила тока катодной станции (преобразователя), определяемая по технической документации, А;
kпл - коэффициент защиты от перегрузки катодных станций (для проектируемых площадок kпл = 0,7, для существующих площадок kпл = 0,85).
12.6 Электрохимическая защита технологических трубопроводов, противопожарного водовода, трубопроводов раствора пенообразователя на НПС должна быть осуществлена установками катодной защиты с протяженными анодными заземлениями.
12.6.1 Требования к протяженным заземлениям:
- заземлители укладываются в одну траншею с трубопроводом. Минимальное расстояние от заземлителя до трубы - 0,3 м;
- тип исполнения заземления - маслобензостойкий;
- для обеспечения пятидесятилетнего срока службы системы ЭХЗ необходимо в проекте предусмотреть резервирование протяженного анодного заземления (рисунок В.2, приложение В).
12.7 Соединения строительных длин протяженных анодов в траншее производится соединительными муфтами с термоусаживающей манжетой.
Проводники от начала и конца протяженного анода на площадке НПС должны быть выведены на коммутационный КИП.
12.8 Электрохимическую защиту днищ резервуаров противопожарного запаса воды, резервуаров статического отстоя, резервуаров-накопителей совместно с их обвязкой дополнительно выполнить станциями катодной защиты с распределенными или сосредоточенными анодными заземлениями.
12.8.1 Требования к месту расположения глубинного анодного заземления:
- наименьшее удельное электрическое сопротивление грунта по данным изысканий при мощности слоя грунта не менее 10 м;
- расположение глубинного анодного заземления относительно НПС: за ограждением на расстоянии не менее 40 м, со стороны наибольшей плотности подземных коммуникаций.
12.9 Катодные станции, глубинные и подпочвенные анодные заземления следует размещать за пределами взрывоопасной и пожароопасной зон.
12.10 На территории НПС необходимо устанавливать контрольно-измерительные пункты в соответствии с требованиями раздела 15.
12.11 При наличии блуждающих токов выбор и расчет параметров средств электрохимической защиты следует производить по указаниям раздела 8.
Если на нефтепроводе предусматривается установка электрических дренажей на расстоянии от НПС до 10 км, то защита от блуждающих токов должна быть осуществлена катодными станциями с автоматическим поддержанием защитного потенциала.
13.1 ЭХЗ новых резервуаров и резервуарных парков НПС состоит из двух систем электрохимической защиты:
- ЭХЗ отдельных резервуаров (каждый резервуар имеет самостоятельную систему ЭХЗ);
- ЭХЗ технологических трубопроводов резервуарного парка.
13.2 ЭХЗ днища вертикального стального резервуара должна проектироваться с применением горизонтальных протяженных анодных заземлений.
Срок службы анодного заземления должен быть не менее 50 лет. Анодное заземление для обеспечения указанного срока службы должно состоять из двух самостоятельных контуров со сроком службы не менее 25 лет, вводимых в эксплуатацию поочередно. Второй контур вводится в эксплуатацию по окончании рабочего ресурса первого контура. Схема расположения анодных заземлителей представлена на рисунке В.3 (приложение В).
13.3 Требования к техническим характеристикам протяженных анодных заземлений, применяемых для защиты днищ резервуаров:
- материал сердечника - многопроволочный медный кабель, сечение не менее 10 мм2;
- тип исполнения заземления - маслобензостойкий.
13.4 Проектирование ЭХЗ технологических трубопроводов резервуарного парка производят по требованиям раздела 12.
13.5 Проектирование ЭХЗ существующих резервуаров и резервуарных парков производят на основании данных обследования коррозионного состояния и состояния противокоррозионной защиты, выполняемого в соответствии с Инструкцией по обследованию технологических и вспомогательных трубопроводов НПС.
13.6 Катодная поляризация средствами ЭХЗ должна обеспечивать на всей поверхности трубопроводов и резервуаров уровень защитных потенциалов в соответствии с требованиями раздела 7 настоящих Норм.
13.7 Для контроля остаточной скорости коррозии и уровня защитных потенциалов на днище РВС необходимо предусмотреть установку датчиков коррозии, неполяризующихся и биметаллических электродов сравнения в количестве, определенном таблицей 13.1. Расположение электродов представлено на рисунке В.3 (приложение В).
Таблица 13.1
Количество измерительных электродов под днищем РВС
|
Наименование измерительных электродов |
Количество измерительных электродов (не менее шт.) для РВС емкостью, м3 |
|||
|
100000 |
50000 |
30000 |
10000 |
|
|
Датчики коррозии |
7 |
4 |
4 |
3 |
|
Неполяризующиеся электроды сравнения |
8 |
8 |
8 |
6 |
|
Биметаллические электроды сравнения |
8 |
4 |
4 |
3 |
Измерительные электроды необходимо размещать между протяженными анодными заземлителями, при чем одну группу измерительных электродов следует разместить в районе центра резервуара.
13.8 Кабели от анодных заземлителей от каждого РВС должны быть выведены в клеммный шкаф, располагаемый за пределами каре резервуара.
Все кабели от измерительных электродов должны быть выведены на одну сторону РВС и подключены к контрольно-измерительному пункту.
13.9 Станции катодной защиты следует размещать за пределами взрывоопасной зоны, по возможности в КТП, ЩСУ или в помещениях с электроприводными задвижками.
13.10 Станции катодной защиты трубопроводов НПС и резервуаров должны обеспечивать автоматическое поддержание требуемой величины защитных потенциалов и телеконтроль защитных потенциалов и защитного тока СКЗ.
13.11 Параметры катодной защиты РВС в зависимости от удельного электрического сопротивления песчаной засыпки и емкости резервуара приведены в таблице 13.2.
ЭХЗ должна обеспечивать на внешней поверхности днища резервуара минимальную защитную плотность тока 0,0022 А/м2.
Таблица 13.2
Параметры катодной защиты днищ РВС
|
Параметры |
Емкость РВС, м3 |
||||
|
100000 |
50000 |
20000 |
10000 |
5000 |
|
|
Количество анодов: |
|
|
|
|
|
|
Основного контура |
24 |
15 |
10 |
8 |
5 |
|
Резервного контура |
23 |
14 |
9 |
7 |
5 |
|
Ток защиты, А |
39,0 |
15,3 |
7,15 |
4,65 |
2,0 |
|
Мощность УКЗ, кВт |
1,2 |
0,6 |
0,24 |
0,24 |
0,24 |
|
Примечания 1 При расчете мощности УКЗ удельное электрическое сопротивление грунта обратной засыпки принято - 100 Ом×м; 2 Диаметр анода - 0,036 м; 3 Сечение медного сердечника анода - 10 мм2 |
|||||
13.12 При ЭХЗ резервуарных парков анодные заземления размещаются непосредственно на площадке парка либо вне ее.
13.13 Расчет ЭХЗ резервуарных парков проводится по следующим параметрам:
- суммарный ток защиты Iзп, А, резервуарного парка определяется по формуле:
, (13.13)
где jзп - минимальная защитная плотность тока коммуникаций, А/м2 (определяется из таблицы 12.1);
Si - площадь поверхности i-того трубопровода, м2;
Nп - общее количество подземных трубопроводов на площадке резервуарного парка.
- количество СКЗ определяется по формуле:
, (13.14)
где Iн - номинальная сила тока катодной станции (преобразователя), определяемая по технической документации, А.
14.1 Металлические конструкции терминала подвержены коррозионному воздействию агрессивной среды в четырех зонах:
Первая зона - зона погружения металлических конструкций в дно, где металл находится в контакте с грунтом, насыщенным морской водой;
Вторая зона - зона контакта металлической конструкции с морской водой;
Третья зона - зона периодического смачивания, где металл периодически контактирует с морской водой;
Четвертая зона - атмосферная зона, где металл контактирует с морской атмосферой.
14.2 Во всех зонах металл должен быть защищен покрытием, предотвращающим непосредственный контакт с коррозионной средой.
14.3 Методы ЭХЗ могут эффективно применяться для защиты металлических конструкций только в первых двух зонах.
14.4 ЭХЗ терминала осуществляют либо катодными установками, либо гальваническими анодами (протекторами), либо сочетанием катодных установок и протекторов.
14.5 Защитный ток IЗ для площади поверхности S конкретной конструкции вычисляется по формуле:
IЗ = SfiЗ , (14.1)
где S - площадь поверхности металлических конструкций терминала, м2;
f - коэффициент оголения;
iЗ - защитная плотность тока, т.е. средняя плотность катодного защитного тока на предполагаемой открытой поверхности металла, подверженной воздействию морской воды, А/м2.
Значения плотности тока в зависимости от свойств морской воды по NACE RP0176-2003 представлены в таблице 14.1.
Таблица 14.1
Защитная плотность тока стали в морской воде
|
Удельное сопротивление морской воды, Ом×м |
Температура воды, ОС |
Волновое воздействие |
Водное течение |
Защитная плотность тока, А/м2 |
|
|
0,20 |
22 |
Среднее |
Среднее |
0,055 |
|
|
0,24 |
15 |
Среднее |
Среднее |
0,09 |
|
|
0,26-0,33 |
0-12 |
Высокое |
Среднее |
0,09 |
|
|
0,15 |
30 |
Среднее |
Низкое |
0,065 |
|
|
0,23-0,30 |
12-18 |
Высокое |
Среднее |
0,009 |
|
|
0,20 |
15-20 |
Среднее |
Высокое |
0,065 |
|
|
0,20-0,30 |
5-21 |
Низкое |
Низкое |
0,065 |
|
|
0,19 |
24 |
Среднее |
Среднее |
0,055 |
|
|
0,18 |
30 |
Низкое |
Низкое |
0,035 |
14.6 Минимальный защитный потенциал для стали в морской воде равен минус 0,85 В по насыщенному медно-сульфатному электроду сравнения или минус 0,80 В по хлор-серебренному электроду сравнения.
14.7 Коэффициент оголения f по ISO/FDIS 15589-2 2004, является определяющим при расчете величины требуемого защитного тока.
f = a + bt, (14.2)
где t - расчетный срок эксплуатации объекта, определяемый заказчиком;
а - начальное значение коэффициента оголения (повреждения) (t =0);
b - среднее ежегодное увеличение коэффициента оголения.
14.8 Значения а и b приведены в таблице 14.2 (по ISO/FDIS 15589-2 2004).
Таблица 14.2
Коэффициенты оголения изоляционных покрытий
|
Тип изоляционного покрытия |
а |
b |
|
Мастичные покрытия с утяжеляющим обетонированием |
0,010 |
0,0005 |
|
Эпоксидное покрытие с утяжеляющим обетонированием |
0,010 |
0,0005 |
|
Эпоксидное покрытие |
0,020 |
0,0010 |
|
Эластомерные материалы (полихлоропрен) |
0,005 |
0,0002 |
|
Многослойное покрытие из полиэтилена или полипропилена с эпоксидной грунтовкой |
0,005 |
0,0002 |
|
Многослойное покрытие из полиэтилена или полипропилена с эпоксидной грунтовкой и утяжеляющим обетонированием |
0,0002 |
0,0001 |
|
Теплоизоляционные системы |
0,0002 |
0,0001 |
14.9 В зависимости от величины требуемого защитного тока выбирают мощность катодного преобразователя и их количество.
14.10 Анодные заземления следует проектировать с применением малорастворимых анодных материалов.
14.11 Анодные заземления следует располагать в местах, где исключено их повреждение, либо необходимо предусмотреть защиту от этих повреждений.
14.12 Протекторная защита стальных конструкций в морской воде с соленостью более 3 % осуществляется гальваническими анодами из сплавов на основе алюминия и цинка, электрохимические параметры, которых приведены в пункте 16.3. При низкой солености воды могут быть использованы гальванические аноды из сплава на основе магния.
15.1 Контрольно-измерительные пункты и контрольно-диагностические пункты на вновь проектируемых и реконструируемых сооружениях должны отвечать следующим требованиям:
- быть окрашенными в оранжевый цвет;
- иметь маркировку и привязку к трассе (с точностью ±10 м);
- конструкция пункта должна исключать доступ посторонних лиц к контрольному щитку.
15.2 КИП для контроля поляризационного потенциала по ГОСТ 9.602 должен иметь контрольный щиток с клеммами для присоединения катодного вывода от трубопровода и проводов (кабелей) от стационарного электрода сравнения и вспомогательного электрода (датчика потенциала). Схема подключения представлена на рисунке В.4а (приложение В).
15.3 КИП для контроля работы протекторов, анодных заземлений и электрических перемычек должен иметь не менее двух клемм для присоединения объектов измерения.
15.4 КИП для контроля совместной электрохимической защиты нескольких трубопроводов должен иметь контрольный щиток для присоединения катодных выводов, проводников от стационарных электродов сравнения и датчиков для измерения поляризационного потенциала каждого трубопровода.
15.5 КДП должен иметь щиток с клеммами для присоединения: двух контрольных проводов от трубопровода для измерения тока в трубопроводе, проводников от стационарного электрода сравнения, вспомогательного электрода и датчиков коррозии. Схема подключения КДП представлена на рисунке В.4б (приложение В).
15.6 КДП, оборудованные контрольными проводами от трубопровода для измерения тока в трубопроводе и датчиком коррозии, необходимо устанавливать в точках дренажа (рисунок В.5, приложение В) и на подводных переходах шириной водоохраной зоны более 500 м на обоих берегах.
15.7 КИПы для контроля защиты трубопровода и кожуха должны быть установлены на обоих концах кожуха, и иметь щиток с клеммами, соединенными с трубопроводом и кожухом, электродами сравнения и датчиками поляризационного потенциала (рисунок В.6, приложение В). КИП может быть совмещен с датчиками коррозии, при их установке на переходе через автомобильные или железные дороги.
15.8 КИП устанавливают над осью трубопровода со смещением не далее 0,2 м от точки подключения к трубопроводу контрольного провода.
15.9 На магистральных нефтепроводах КИП подключают:
- на каждом километре (не реже, чем через 500 м при пересечении трубопроводом зоны действия блуждающих токов или грунтов с высокой коррозионной агрессивностью);
- на расстоянии трех диаметров трубопровода от точек дренажа установок электрохимической защиты (за исключением одиночных протекторов) и от электрических перемычек;
- на расстоянии 30 м от площадок задвижек;
- на границе зон защиты между соседними УКЗ и устанавливают датчики коррозии;
- по одному на каждом берегу подводных переходов МН длиной меньше 500 м с датчиками для измерения поляризационного потенциала;
- на каждой нитке подводного перехода МН с шириной водоохраной зоны более 500 м по два на обоих берегах для контроля потенциала и тока в трубопроводе (по падению напряжения) с расстоянием между ними равном 100 м. Каждый КИП должен иметь 2 катодных вывода с расстоянием между контактами, равном 10±0,1 м (рисунок В.7, приложение В);
- у пересечения трубопроводов с другими металлическими сооружениями;
- в культурной и осваиваемой зонах: у дорог, арыков, коллекторов и других естественных и искусственных образований.
При многониточной системе трубопроводов КИП устанавливают на каждом трубопроводе на одном поперечнике.
15.10 На подземных технологических и вспомогательных трубопроводах НПС и резервуарных парков провода КИП подключают:
- к коммуникациям длиной более 50 м посередине с интервалом не более 50 м;
- на расстоянии не менее трех диаметров трубопровода от точек дренажа установок электрохимической защиты;
- в местах пересечения коммуникаций;
- в местах изменения направления при длине участка коммуникации более 50 м;
- в местах сближения коммуникаций с сосредоточенными анодными заземлениями при расстоянии между ними до 50 м;
- не менее, чем в четырех диаметрально противоположных точках по периметру внешней поверхности резервуаров (подключение кабелей к РВС следует производить с одной стороны резервуара).
15.11 Допускается не устанавливать контрольно-измерительные пункты в указанных местах (кроме точек дренажа установок катодной, протекторной и дренажной защиты), если обеспечена возможность электрического контакта с трубопроводом и резервуаром.
15.12 В местах подключения контрольного провода к трубопроводу должна быть обеспечена возможность контакта неполяризующегося электрода сравнения с грунтом в зафиксированной на поверхности земли точке.
15.13 Средства ЭХЗ нефтепроводов, проложенные в условиях высокой коррозионной опасности, должны иметь телеконтроль и телеуправление. Это требование распространяется на средства, расположенные на узлах крановых задвижек. При проектировании средств ЭХЗ необходимо выбрать преобразователи, блок контроля которых имеет выход к проектируемой системе автоматики и телемеханики.
16.1 Требования к катодным преобразователям и дренажам
16.1.1 Все элементы катодных преобразователей (катодных станций) и дренажей должны обеспечивать вероятность их безотказной работы на наработку 10000 ч не менее 0,9 (при доверительной вероятности 0,8).
16.1.2 Катодные станции, поляризованные автоматические и неавтоматические, а также дренажи должны иметь плавную или ступенчатую регулировку выходных параметров по напряжению или току от 10 до 100 % номинальных значений.
16.1.3 Пульсация тока на выходе катодных станций допускается не более 3 % на всех режимах.
16.1.4 Катодные преобразователи и дренажи должны обеспечивать безопасность обслуживания по классу защиту 01 по ГОСТ 12.2.007.
16.1.5 Уровень шума, создаваемый катодными преобразователями и дренажами, на всех частотах не должен превышать 60 дБ.
16.1.6 Катодные станции, автоматические поляризованные и дренажи должны иметь защиту от атмосферных перенапряжений на сторонах питания, нагрузки и блока управления; напряжение срабатывания защиты по стороне питания и нагрузки должно быть менее обратного напряжения применяемых вентилей, но не менее 250 В.
16.1.7 Уровень индустриальных радиопомех, создаваемых катодными станциями и дренажами, не должен превышать значений, предусмотренных ГОСТ 23511; уровень гармонических составляющих тока защиты при подключении к рельсовым сетям железных дорог не должен превышать норм ГОСТ 9.602.
16.1.8 По условиям эксплуатации окрашенные поверхности катодных станций и дренажей должны относиться к категории размещения группы условий эксплуатации У1 по ГОСТ 9.104, иметь показатели внешнего вида не ниже IV класса по ГОСТ 9.032, и окраска изделий должна быть светлых тонов.
16.1.9 Конструкция и схема катодных станций и дренажей должны обеспечивать непрерывную работу без профилактического обслуживания и ремонта не менее 6 месяцев.
16.1.10 Автоматические устройства катодной защиты должны обеспечивать стабильность тока или потенциала с погрешностью, не превышающей 2,5 % заданного значения.
16.1.11 Катодные станции и дренажи должны соответствовать ГОСТ 15150 в части:
- климатического исполнения У категории размещения I для работы при температурах от минус 45 °С до 45 °С в атмосфере типа П и при относительной влажности до 98 % при температуре 25 °С;
- климатического исполнения ХЛ категории размещения I для работы при температурах от минус 60 °С до 40 °С в атмосфере типа П и при относительной влажности до 98 % при температуре 25 °С.
16.1.12 Катодные станции и дренажи должны иметь степень защиты от воздействия окружающей среды и от соприкосновения с токоведущими частями не ниже IР34 ГОСТ 14254 (для автоматических поляризованных дренажей допускается степень защиты не менее IP23 при условии обеспечения степени защиты IP34 для блоков управления), допускать транспортирование по условию п. 8 и хранение по условиям п. 5, для южных районов - по условиям п. 6 ГОСТ 15150 и соответствовать требованиям безопасности ГОСТ 12.2.007.0 и "Правилам устройства электроустановок".
16.1.13 Коэффициент полезного действия катодных станций должен быть не менее 70 %.
16.1.14 Соединительные кабели в установках катодной и дренажной защиты должны иметь полимерную шланговую изоляцию токоведущих жил без металлической оболочки с пластмассовым шланговым покровом.
16.1.15 Максимальная температура обмоток трансформатора и дросселя не должна превышать 120 °С при максимальной температуре эксплуатации.
16.1.16 Входное сопротивление измерительных и регулирующих устройств на выходах подключения электродов сравнения автоматических катодных станций и дренажей должно быть не менее 10 МОм.
16.1.17 Состав комплекта запасных частей и инструментов катодных станций и дренажей должен определяться, исходя из параметров надежности их элементов, и обеспечивать работу устройств не менее 50 % всего срока их службы.
16.1.18 Все новые средства электрохимической защиты должны быть подвергнуты эксплуатационным испытаниям (в течение не менее одного года) на соответствие требованиям настоящего документа в тех почвенно-климатических условиях, для которых предназначены данные средства.
(Измененная редакция, Изм. № 1)
16.1.19 Средства катодной и дренажной защиты должны быть сопряжены с системой автоматики и телемеханики с целью дистанционного контроля и регулирования защитного потенциала сооружений.
16.2 Требования к анодным заземлителям
16.2.1 Срок службы анодного заземлителя вместе контактным узлом и токоподводящем кабелем должен быть не менее 15 лет при максимально допустимой по техническим условиям анодной плотности тока (для протяженных анодных заземлений, укладываемых в одну траншею с трубопроводом - не менее 30 лет).
16.2.2 Скорость растворения анодного материала не должна превышать:
-для высококремнистого чугуна - 0,3 кг/А∙год;
-для графитопласта - 0,6 кг/А∙год;
-для графитонаполненного эластопласта (гибких протяженных анодов) - 0,6 кг/А∙год;
-для магнетита - 0,03 кг/А∙год;
-для окислов металлов на титановой подложке - 0,01 кг/А∙год.
16.2.3 Контактный узел электродов анодного заземления и токоотводящего провода должны иметь изоляцию с сопротивлением не менее 0,5 МОм и выдерживать напряжение постоянного тока не менее 5 кВ на 1 мм толщины изоляции.
16.3 Требования к гальваническим анодам
16.3.1 Гальванические аноды должны иметь электрохимические параметры, указанные в таблице 16.1.
16.3.2 Гальванические аноды должны быть изготовлены из сплавов на основе магния, алюминия или цинка, обладающих стабильным во время эксплуатации электродным потенциалом.
При отключении от трубопровода протектор не должен самопассивироваться и при подключении должен восстанавливать прежнюю силу защитного тока.
Гальванические аноды, предназначенные для использования в грунтовых условиях, должны быть размещены в активаторе.
Электрохимические параметры гальванических анодов
|
Материал анода (сплав) |
Условия эксплуатации |
Электродный потенциал по МСЭ, В (не более) |
Практический электрохимический эквивалент, А∙год/кг (не менее) |
|
Магний |
В грунте |
- 1,55 |
0,145 |
|
В воде с соленостью £ 3 % |
- 1,5 |
0,140 |
|
|
Алюминий |
В морской воде |
- 1,05 |
0,285 |
|
Морские донные отложения |
- 1,00 |
0,228 |
|
|
Цинк |
В морской воде |
- 1,03 |
0,089 |
|
Морские донные отложения |
- 0,98 |
0,086 |
16.4 Требования к диодно-резисторным блокам
Диодно-резисторные блоки должны иметь следующие параметры:
а) количество каналов - от 1 до 4;
б) номинальный ток канала - не менее 10 А;
в) сопротивление каждого канала - 0,24 Ом ±10 %;
г) степень защиты блока от воздействия окружающей среды и соприкосновения с токоведущими частями - не ниже IP34 по ГОСТ 14354;
д) блок должен иметь легко заменяемую защиту от атмосферных (грозовых) перенапряжений;
е) блоки должны иметь следующие показатели надежности:
1) наработка на отказ с вероятностью 0,9 - не менее 25000 ч;
2) установленный срок службы с вероятностью 0,9 - не менее 20 лет (обеспечивается комплектом запасных частей);
ж) климатическое исполнение должно соответствовать требованиям к катодным преобразователям (п. 16.1).
16.5 Требования к долговременным электродам сравнения
Долговременные электроды сравнения должны иметь следующие параметры:
а) собственный потенциал медно-сульфатного электрода сравнения по отношению к хлорсеребряному электроду - 0,120±0,015 В;
б) сопротивление - не более 100 Ом;
в) диапазон рабочих температур - от минус 40 до плюс 45 °С;
г) срок службы - не менее 10 лет.
16.6 Требования к контрольно-измерительным пунктам
Контрольно-измерительные пункты (КИП) должны иметь следующие параметры:
а) иметь крышку с антивандальным замком;
б) клеммную панель с клеммами:
1) измерительными - до 48 шт.;
2) силовыми - до 8 шт.;
в) срок службы - не менее 30 лет.
А.1.1 УКЗ с подпочвенным АЗ
Исходные данные:
- диаметр нефтепровода Dт = 1,02 м;
- толщина стенки трубы dт = 10 мм;
- удельное сопротивление стали трубы rт = 0,245 Ом·мм2/м;
- среднее удельное сопротивление грунта rг = 50 Ом×м (рассчитывается по данным измерений удельного электрического сопротивления грунта по трассе нефтепровода);
- глубина укладки нефтепровода Hт =1,5 м;
- сопротивление изоляции Rиз = 1×105 Ом×м2;
- срок службы проектируемой катодной защиты T = 15 лет;
- коэффициент изменения сопротивления изоляции во времени g = 0,08 год-1;
- естественный потенциал трубопровода Uе = минус 0,55 В;
- минимальный защитный потенциал Uзмин = минус 0,90 В;
- максимальный защитный потенциал Uзмак = минус 1,5 В;
- удельное электрическое сопротивление грунта в поле токов катодной защиты rз = 20 Ом×м;
- удельное электрическое сопротивление земли в месте расположения анодного заземления rга = 10 Ом×м;
- длина защитной зоны Lз = 25000 м.
Расчет:
Продольное сопротивление нефтепровода (формула 8.1):
Ом/м.
Сопротивление растеканию нефтепровода (формула 8.2):
Ом×м.
Расчет производится путем итераций. На первой итерации в правую часть уравнения подставляем Rр = 100 Ом×м и рассчитываем Rр в левой части. Полученное значение Rр подставляем опять в правую часть. Для удовлетворительной точности расчета (5 %) достаточно 2-3 итераций.
Сопротивление изоляции трубопровода на пятнадцатый год эксплуатации (формула 8.4):
Rиз(15) = 1×105×е-0,08×15 = 30100 Ом×м2;
Постоянная распространения тока вдоль нефтепровода на пятнадцатый год эксплуатации (формула 8.6):
м-1.
Входное сопротивление нефтепровода на 15-й год эксплуатации (формула 8.7):
Ом.
Параметр Р (формула 8.13):

Расстояние между трубопроводом и анодным заземлением (формула 8.12):
м.
Принимаем y = 200 м (по п. 8.1.4).
Длина защитной зоны одной УКЗ на конечный период эксплуатации (формула 8.11):
м.
Уравнение решают методом последовательного приближения. Начальное значение определяют без учета последнего члена в знаменателе. Длина защитной зоны (с точностью до третьей значащей цифры) может быть рассчитана с помощью двух - трех итераций.
Расчетная величина значительно больше заданной длины защитной зоны. Уменьшим максимальный защитный потенциал до величины Uзмак = -1,0 В. Тогда длина защитной зоны одной УКЗ составит
м.
Ток УКЗ на конечный период эксплуатации (формула 8.14):
A.
Постоянная распространения тока вдоль нефтепровода на начальный период эксплуатации (формула 8.6):
м-1.
Входное сопротивление нефтепровода на начальный период эксплуатации (формула 8.7):
Ом;
Ток УКЗ на начальный период эксплуатации (формула 8.14):
A
В качестве анода выбран электрод с параметрами: la = 1,5 м, da = 0,07 м, М = 40 кг, q = 0,3 кг/A·год. Расстояние между анодами а = 2,25 м.
Сопротивление растеканию 1 электрода заземления при его вертикальном расположении (формула 8.18):
Ом.
Средний ток защиты катодной станции за период эксплуатации (формула 8.22):
A.
Срок службы единичного анодного заземления (формула 8.21):
года.
Необходимое число анодов 1 шт.
Напряжение на выходе УКЗ (формула 8.15) (сопротивлением проводов пренебрегаем):
V = 1,3×2,36(0,232 + 4,14) = 13,4 В.
Мощность катодной станции (формула 8.17):
W = 13,4×2,36 = 31,7 Вт.
А.1.2 УКЗ с протяженным АЗ
Исходные данные указаны в п. "УКЗ с подпочвенным АЗ".
Дополнительные исходные данные:
- удельное электрическое сопротивление грунта rг = 260 Ом×м;
- диаметр протяженного АЗ dпа = 0,036 м;
- глубина укладки протяженного АЗ hпа = 2 м;
- площадь сечения сердечника протяженного АЗ , Sac = 25 мм2;
- скорость растворения протяженного АЗ, q = 0,6 кг/А×год;
- удельное электрическое сопротивление сердечника протяженного АЗ, rас = 0,017 Ом×мм2/м;
- коэффициент неоднородности грунта, kг = 5;
- коэффициент запаса, kз = 0,8;
- удельный вес токопроводящей резины, g = 1,3 тн/м3;
- срок службы протяженного АЗ 25 лет.
Расчет:
Сопротивление растеканию нефтепровода (формула 8.2):
Ом×м.
Сопротивление изоляции трубопровода на пятидесятый год эксплуатации (формула 8.4):
Rиз(50) = 1×105×е-0,08×50 = 1830 Ом×м2.
Постоянная распространения тока вдоль нефтепровода на пятидесятый год эксплуатации (формула 8.6):
м-1.
Входное сопротивление нефтепровода на пятидесятый год эксплуатации (формула 8.7):
Ом.
Длина защитной зоны УКЗ с протяженным АЗ (формула 8.32):
м
Уменьшим максимальный защитный потенциал до величины Uзмак = -1,25 В. Тогда длина защитной зоны одной УКЗ составит
м.
Сила тока УКЗ с протяженным АЗ (формула 8.33):
А
Продольное сопротивление протяженного анода (формула 8.35):
Ом/м.
Сопротивление растеканию протяженного анода (формула 8.34):
Ом×м.
Постоянная распространения тока вдоль протяженного анода (формула 8.37):
1/м.
По таблице 8.2 выбираем lпa = 1200 м.
Входное сопротивление протяженного анода при условии, что точка дренажа разбивает защищаемый участок трубопровода на плечи равной длины (формула 8.36):
Ом.
Масса токопроводящей резины 1 метра протяженного анода (формула 8.39):
кг/м.
Линейная плотность тока анода в точке дренажа, А/м (формула 8.40):
j(0) = 0,5×1,0×10-3×0,75×9,88cth(0,5×1,0×10-3×1200) = 0,007 А/м.
Срок службы протяженного анодного заземления определяют исходя из максимальной линейной плотности тока в точке подсоединения дренажного кабеля (формула 8.38):
лет.
Протяженное АЗ проходит по сроку службы при наличии резервной линии протяженного АЗ.
Напряжение на выходе УКЗ (формула 8.15) (сопротивлением проводов пренебрегаем):
V = 1,3×9,88(0,059 + 0,64) = 8,98 В.
Мощность катодной станции (формула 8.17):
W = 9,88×8,98 = 88,7 Вт.
Проведем расчет для протяженного АЗ со слоем повышенного сопротивления Rпп=3000 Ом·м и толщине слоя 10 мм.
Сопротивление растеканию протяженного анода (формула 8.41):
Ом×м.
Постоянная распространения тока вдоль протяженного анода (формула 8.37):
1/м.
По таблице 8.2 выбираем lпa = 1200 м.
Входное сопротивление протяженного АЗ (формула 8.36):
Ом.
Линейная плотность тока анода в точке дренажа, А/м (формула 8.40):
j(0) = 0,5×8,5×10-4×0,75×9,88cth(0,5×8,5×10-4×1200) = 0,0068 А/м.
Срок службы протяженного анодного заземления определяют исходя из максимальной линейной плотности тока в точке подсоединения дренажного кабеля (формула 8.38):
лет.
Протяженное АЗ со слоем повышенного сопротивления 3000 Ом×м проходит по сроку службы при наличии резервной линии протяженного АЗ.
Напряжение на выходе УКЗ (формула 8.15) (сопротивлением проводов пренебрегаем):
V = 1,3×9,88(0,059 + 0,88) = 12,1 В.
Мощность катодной станции (формула 8.17):
W = 9,88×12,1 = 120 Вт.
А.2 Расчет протекторной защиты
Исходные данные:
- сопротивление изоляции Rиз = 5·104 Ом×м2;
- коэффициент старения изоляции g = 0,11 год-1;
- срок эксплуатации протекторной защиты T = 15 лет;
- стационарный потенциал протектора Uп = минус 1,60 В;
- естественный потенциал трубопровода Uе = минус 0,55 В;
- минимальный защитный потенциал Uм = минус 0,9 В;
- среднее удельное электрическое сопротивление грунта rг = 20 Ом×м (рассчитывается по данным измерений удельного электрического сопротивления грунта по трассе нефтепровода);
- теоретическая токоотдача материала протектора, q = 2330 А×ч/кг;
- коэффициент полезного действия протектора hп = 0,6;
- длина участка трубопровода, которую необходимо защитить протекторами lз = 10000 м.
Расчет:
Сопротивление изоляции трубопровода на пятнадцатый год эксплуатации (формула 8.4):
Rиз(15) = 5×104×е-0,11×15 = 9600 Ом·м2.
Сопротивление одного протектора типа ПМ10У (формула 8.48):
Rрп = 0,47·20 + 0,18 = 9,58 Ом.
Сопротивлением проводов пренебрегаем.
Длина защитной зоны одного протектора (формула 8.45):
м.
Ток в цепи протектор-трубопровод (формула 8.46):
А.
Прогнозируемый срок службы протектора (формула 8.52):
лет.
Поскольку срок службы протекторной защиты составляет 15 лет, то выбранный тип протектора имеет большой запас по сроку службы. Если выбрать протектор типа ПМ5У, то для него:
Rрп = 0,57·20 + 0,24 = 11,6 Ом;
А;
лет.
Выбираем в качестве протекторов ПМ5У.
Количество протекторов, равномерно распределенных по защищаемому участку трубопровода длиной 10 км (коэффициент экранирования ≈ 1):
.
Исходные данные:
- диаметр кожуха Dк = 1,5 м;
- длина кожуха Lк = 100 м;
- удельное электрическое сопротивление грунта rг = 20 Ом·м;
- сопротивление изоляции кожуха Rиз.к = 1·104 Ом·м2;
- коэффициент старения изоляции кожуха g = 0,125 год-1;
- срок действия протекторной защиты кожуха T = 15 лет;
- естественный потенциал кожуха Uке = минус 0,55 В;
- минимальный защитная разность потенциалов кожух-земля Uкз.м = минус 0,9 В;
Расчет:
Сопротивление кожуха (формула 11.2):
Ом.
Защитный ток кожуха (формула 11.1):
А
В примере расчета протекторной защиты протекторов (см. выше), было показано, что в грунте с rг = 20 Ом·м требуемый срок службы 15 лет обеспечивают протекторы ПМ5У, каждый из которых создает ток 0,057 А. Используем это значение тока и для кожуха, поскольку Uке= Uе. Тогда количество протекторов, необходимых для защиты кожуха равно (формула 11.3):
.
Принимаем число протекторов равным 3.
Исходные данные:
- расстояние между трубопроводом и электрифицированной железной дорогой - 0,5 км;
- расстояние от трубопровода до тяговой подстанции э/железной дороги - 4 км;
- изоляционное покрытие трубопровода - нормального типа;
срок службы дренажной защиты - 15 лет;
- количество параллельных трубопроводов - 1;
- ток нагрузки тяговой подстанции, iТП = 8000 А;
- длина дренажного кабеля, lк = 500 м;
- удельное сопротивление материала кабеля, rм = 0,02 Ом·мм2/ м;
- дренажный кабель подсоединяется к средней точке путевого дросселя.
Расчет:
Для расчета дренажного тока на основании данных таблиц 8.3-8.9 принимаем следующие значения коэффициентов:
- коэффициент, учитывающий расстояние между трубопроводом и электрифицированной железной дорогой, (для расстояния 0,5-1 км К1 = 0,4);
- коэффициент, учитывающий расстояние от трубопровода до тяговой подстанции, (для расстояния более 3 км К2 = 0,1);
- коэффициент, учитывающий тип изоляционного покрытия трубопроводов, (для покрытия нормального типа К3 = 0,9);
- коэффициент, учитывающий срок эксплуатации трубопровода (для срока эксплуатации 15 лет К4 = 0,9);
- коэффициент, учитывающий количество параллельно уложенных трубопроводов, (для одной нитки К5 = 0,75);
- допустимое падение напряжения в дренажном кабеле DUд = DUк = 3 В.
Дренажный ток не должен превышать (формула 8.42):
iд = 0,2×8000×0,4×0,1×0,9×0,9×0,75 = 38,9 А.
Сечение дренажного кабеля (формула 8.43):
мм2
.
Удельные плотности защитного тока в зависимости от типа изоляционного покрытия нефтепроводов представлены в таблице Б.1.
|
Длительность эксплуатации, годы |
Удельные нормы расхода защитного тока (мкА/м2) в зависимости от сопротивления изоляции (Ом×м2) |
|||
|
10000 |
50000 |
100000 |
300000 |
|
|
0 |
60 |
12 |
6,0 |
2,0 |
|
1 |
68 |
13,5 |
6,5 |
2,1 |
|
2 |
76 |
15 |
7,0 |
2,3 |
|
3 |
86 |
17 |
7,6 |
2,4 |
|
4 |
97 |
19 |
8,3 |
2,5 |
|
5 |
109 |
22 |
9,0 |
2,7 |
|
6 |
123 |
25 |
9,7 |
2,9 |
|
7 |
138 |
28 |
10,5 |
3,0 |
|
8 |
157 |
31 |
11,4 |
3,2 |
|
9 |
177 |
35 |
12,3 |
3,4 |
|
10 |
199 |
40 |
13,4 |
3,6 |
|
11 |
225 |
45 |
14,5 |
3,9 |
|
12 |
253 |
51 |
15,7 |
4,1 |
|
13 |
285 |
57 |
17,0 |
4,4 |
|
14 |
320 |
64 |
18,4 |
4,6 |
|
15 |
360 |
73 |
20 |
4,9 |
|
16 |
410 |
82 |
22 |
5,2 |
|
17 |
460 |
93 |
23 |
5,6 |
|
18 |
520 |
110 |
25 |
5,9 |
|
19 |
590 |
120 |
27 |
6,3 |
|
20 |
660 |
130 |
30 |
6,6 |
|
21 |
745 |
150 |
3 |
7,1 |
|
22 |
840 |
170 |
35 |
7,5 |
|
23 |
950 |
190 |
38 |
8,0 |
|
24 |
1070 |
210 |
41 |
8,4 |
|
25 |
1200 |
240 |
44 |
9,0 |
|
26 |
1360 |
270 |
48 |
9,5 |
|
27 |
1530 |
310 |
52 |
10,1 |
|
28 |
1730 |
350 |
56 |
10,7 |
|
29 |
1950 |
390 |
61 |
11,4 |
|
30 |
2200 |
440 |
66 |
12,1 |
|
32 |
2790 |
560 |
78 |
13,6 |
|
34 |
3550 |
710 |
91 |
15,4 |
|
36 |
4500 |
910 |
107 |
17,3 |
|
38 |
5740 |
1150 |
125 |
20 |
|
40 |
7290 |
1460 |
147 |
22 |

Рисунок В.1 - Схема подключения протекторных групп к нефтепроводу на участках пересечения/сближения с ЛЭП 220 кВ и более
План размещения анодов под днищем резервуара. М 1:200

Рисунок В.2 - Схема расположения протяженных анодных заземлителей, уложенных в одну траншею с нефтепроводом

Рисунок В. 4 - Схема подключения КИП к нефтепроводу:
а) КИП для измерения поляризационного потенциала;
б) КДП с блоком пластин-индикаторов (БПИ).

Рисунок В.5 - Монтажные схемы подключения УКЗ к нефтепроводу и расстановка КИП в точке дренажа и задвижки

Рисунок В.6 - Схема подключения протекторных групп на кожухах на переходах нефтепровода через автомобильные и железные дороги

Рисунок В.7 - Схема размещения КИП на подводных переходах протяженностью водоохраной зоны более 500 м
Дренажная защита

Протекторная защита трубы и кожуха


ЭХЗ днища резервуара
Исходные данные
|
Диаметр вертикального резервуара, м |
60 |
|
Срок службы проектируемой защиты, год |
25 |
|
Удельное электрическое сопротивление песчаной подушки под днищем, Ом∙м |
100 |
|
Расстояние от днища резервуара до центра анода, м |
0,8 |
|
Минимальная защитная плотность тока на наружной поверхности днища, А/м2 |
0,004 |
|
Площадь сечения медной жилы анода, мм2 |
16 |
|
Электрохимический эквивалент анода, кг/A∙год |
0,5 |
|
Диаметр анода, м |
0,036 |
Результаты расчетов
|
Ширина защитной зоны анода, м |
2,1 |
|
|
|
|
|
|
|
|
|
|
|
|
|
|
|
|
|
|
|
|
|
|
|
|
|
|
|
|
|
Количество анодов |
29 |
|
|
|
|
|
|
|
|
|
|
|
|
|
|
|
|
|
|
|
|
|
|
|
|
|
|
|
|
|
Длина анодов, м |
15,6 |
26,6 |
33,7 |
39,1 |
43,4 |
47 |
50 |
52,5 |
54,6 |
56,3 |
57,7 |
58,7 |
59,4 |
59,9 |
60 |
59,9 |
59,4 |
58,7 |
57,7 |
56,3 |
54,6 |
52,5 |
50 |
47 |
43,4 |
39,1 |
33,7 |
26,6 |
15,6 |
|
Ток УКЗ, А |
22,8 |
|
|
|
|
|
|
|
|
|
|
|
|
|
|
|
|
|
|
|
|
|
|
|
|
|
|
|
|
|
Напряжение УКЗ, В |
50,9 |
|
|
|
|
|
|
|
|
|
|
|
|
|
|
|
|
|
|
|
|
|
|
|
|
|
|
|
|
|
Мощность УКЗ, Вт |
1162 |
|
|
|
|
|
|
|
|
|
|
|
|
|
|
|
|
|
|
|
|
|
|
|
|
|
|
|
|