Система нормативных документов в строительстве
СВОД ПРАВИЛ ПО ПРОЕКТИРОВАНИЮ И СТРОИТЕЛЬСТВУ
ГЕРОНТОЛОГИЧЕСКИЕ ЦЕНТРЫ.
ДОМА СЕСТРИНСКОГО УХОДА. ХОСПИСЫ
СП 35-113-2004
Москва
2008
ПРЕДИСЛОВИЕ
1 РАЗРАБОТАН ГУП «Научно-проектный институт учебно-воспитательных, торгово-бытовых и досуговых зданий» (Институт общественных зданий) Госстроя России и ЗАО «Архитектурное проектно-исследовательское объединение - Центр» (АПИО-Центр)
2 ВНЕСЕН Министерством труда и социального развития Российской Федерации, Государственным комитетом Российской Федерации по строительству и жилищно-коммунальному комплексу
3 ПРЕДСТАВЛЕН Управлением архитектуры и проектных работ, Управлением стандартизации, технического нормирования и сертификации Госстроя России
4 УТВЕРЖДЕН приказом директора ОАО «Институт общественных зданий» от 24 декабря 2007 года № 21
5 ВВЕДЕН ВПЕРВЫЕ
Содержание
Процесс старения населения России ставит перед современным обществом вопросы обеспечения старшего поколения социальной поддержкой в рамках системы социальной защиты. Среди различных форм социальной помощи пожилым гражданам особая роль отводится специализированным стационарным учреждениям.
Свод правил СП 35-113-2004 «Геронтологические центры. Дома сестринского ухода. Хосписы» разработан в соответствии и в развитие Государственного контракта № 24-03-05/00 от 17.09.2000 г. между Минтрудом России и Госстроем России о сотрудничестве по выполнению мероприятий Федеральной целевой программы «Старшее поколение», утвержденной постановлением Правительства Российской Федерации от 21 сентября 2000 № 706.
Свод правил разрабатывается в составе базового блока нормативных документов 35 комплекса, развивает и дополняет требования СНиП 35-01-2001 «Доступность зданий и сооружений для маломобильных групп населения».
Свод правил содержит рекомендательные нормы и правила и является документом федерального уровня. В данной разработке учтен опыт отечественных и зарубежных специалистов в освещаемой области, а также новые разработки различных авторов и творческих коллективов.
Согласован Государственной противопожарной службой МВД России, Госсанэпиднадзором Минздрава России, Главэкспертизой России.
В тексте и графической части Свода правил частично использованы следующие материалы:
МГСН 4.01-94 «Хосписы»
МГСН 4.12-97 «Лечебно-профилактические учреждения»
«Пособие по проектированию учреждений здравоохранения» (к СНиП 2.08.02-89). (М.: ГипроНИИздрав, 1990)
«Рекомендации по проектированию домов сестринского ухода» (Москомархитектура. -М : ГУП «Ниац», 1997)
Положение о геронтологическом центре «Переделкино» Министерства социальной защиты населения Российской Федерации от 4 мая 1994 г. № 62.
«Организационные основы развития социальных учреждений геронтологического профиля». Итоговый отчет НИИ экспертизы трудоспособности и организации труда инвалидов (д-р мед. наук, профессор Н. Ф. Дементьева)
«Жилая среда для инвалида» (М.: Стройиздат, 1990 (Арх. Х. Ю. Калмет).
Работа выполнена авторским коллективом в следующем составе: Руководитель работ по разделу III Федеральной целевой программы «Старшее поколение» - канд. архитектуры A. M. Гарнец, отв. исполнители: канд. архитектуры Л. А. Смывина (рук. темы), архитектор Т. В. Серикова, при участии канд. архитектуры Л. Ф. Сидорковой (ЗАО «Гипроздрав - НПЦ по объектам здравоохранения и отдыха»).
Компьютерная графика - архитектор Т. В. Серикова.
Свод правил по проектированию и строительству
|
Геронтологические центры. Gerontological centers of Social protection system. |
1.1. Свод правил устанавливает основные положения и требования к размещению, участку, территории, функциональной организации и архитектурно-планировочным решениям стационарных учреждений социального обслуживания пожилых людей: геронтологические центры, дома (отделения) сестринского ухода, хосписы.
1.2. Свод правил является обязательным документом при проведении проектных и предпроектных работ по созданию новых объектов, при обустройстве помещений учреждений стационарного пребывания пожилых людей независимо от их ведомственной принадлежности и форм собственности, при их экспертизе, приемке приемочной комиссией, при сертификации учреждений (отделений), а также при решении вопросов правового характера.
1.3. Документ предназначен для применения органами архитектуры и градостроительства, органами социальной поддержки населения, общественными фондами и независимыми собственниками объектов.
В настоящем Своде правил приведены ссылки на следующие документы:
СНиП 35-01-2001 «Доступность зданий и сооружений для маломобильных групп населения»
МГСН 4.12-97 «Лечебно-профилактические учреждения»
Пособие по проектированию учреждений здравоохранения (к СНиП 2.08.02-89)
СанПиН 5179-90 «Санитарные правила устройства, оборудования и эксплуатации больниц, родильных домов и других лечебных стационаров».
Приказ МЗ РСФСР № 19 от 01.02.91 г. «Об организации домов сестринского ухода, хосписов и отделений сестринского ухода многопрофильных и специализированных больниц».
Положение о геронтологическом центре «Переделкино» Министерства социальной защиты населения Российской Федерации от 4 мая 1994 г. № 62.
МГСН 4.01-94 «Хосписы».
3.1. Геронтологический центр системы социальной защиты (ГРЦ) является многопрофильным стационарным учреждением системы социальной защиты населения, осуществляющим медико-санитарное и социально-бытовое обслуживание пожилых людей, направленное на восстановление и укрепление их физической и духовной активности с целью реабилитации и интеграции в общество. ГРЦ является также учебной базой в области геронтологии и гериатрии, ведет научно-практическую деятельность, направленную на апробацию и совершенствование действующих форм и видов стационарных учреждений для пожилых.
3.2. Основными задачами ГРЦ являются:
- социальная защита прав и свобод граждан преклонного возраста, проживающих в Центре,
- их медико-социальное обслуживание,
- проведение по дифференцированным программам мероприятий, направленных на социально-бытовую реабилитацию и интеграцию обслуживаемых в общество,
- совершенствование социально-бытовой и психологической приспособляемости лиц, находящихся на постельном и полупостельном режиме содержания к условиям центра,
- апробация, обобщение и внедрение в практику передового зарубежного и отечественного опыта (новых лекарственных средств, вариантов сбалансированного питания и др.),
- подготовка и обучение специалистов геронтологов (врачей, средний медицинский персонал и т.д.).
3.3. В соответствии с основными задачами ГРЦ осуществляет:
- прием и размещение пожилых людей по отделениям с учетом тяжести состояния и проведение возможных мероприятий по их социально-бытовой адаптации к новым условиям и реабилитации,
- квалифицированное медицинское обслуживание, своевременную диагностику скрыто протекающих патологий, осложнений и обострений хронических заболеваний,
- организацию совместно с лечебно-профилактическими учреждениями консультативной помощи обслуживаемым лицам и перевод их в случае необходимости в соответствующие учреждения органов здравоохранения для оказания специализированной помощи,
- организацию трудотерапии проживающих, направленной на укрепление их здоровья,
- организацию рационального питания проживающих с учетом требований геродиетики,
- социально-бытовое обслуживание, оказание психологической помощи проживающим и их родственникам, содействие в реализации предоставленных проживающим льгот и преимуществ (проезд, санаторное лечение и др.),
- проведение учебных семинаров, симпозиумов по повышению квалификации и первичной специализации сотрудников стационарных учреждений социально-медицинского обслуживания.
3.4. Геронтологические центры как медико-социальные учреждения существуют двух видов - для лиц старших возрастов с сомато-неврологической патологией и геронтопсихиатрические центры (ГРПЦ) - для пожилых людей с личностными изменениями и интеллектуально-мнестическими расстройствами как следствие нервно-психических заболеваний.
ГРЦ предназначены для постоянного проживания и временного пребывания лиц от 65 лет и старше, а ГРПЦ - от 55 лет и старше.
3.5. Кроме геронтологических центров, альтернативными стационарными учреждениями для пожилых граждан являются дома сестринского ухода.
3.6. Дома сестринского ухода (ДСУ) - больничные учреждения, предназначенные для проведения курса поддерживающего лечения больным преимущественно пожилого, старческого возраста и одиноким, страдающим хроническими заболеваниями и нуждающимся в медицинской и социальной помощи.
Основные положения концепции домов сестринского ухода приведены в справочном приложении А.
3.7. Отделения сестринского ухода организуются в составе многопрофильных и специализированных больниц для взрослого населения. Задачи и функции этих отделений соответствуют задачам и функциям домов сестринского ухода.
3.8. Вместимость домов и отделений сестринского ухода определяется расчетом исходя из показателя потребности в учреждениях медико-социальной помощи и численности взрослого населения, проживающего в районе их обслуживания.
Мощность домов сестринского ухода рекомендуется в пределах от 100 до 200 коек.
Вместимость палатных отделений дома сестринского ухода и отделений сестринского ухода в составе многопрофильных и специализированных больниц для взрослого населения рекомендуется в пределах от 25 до 50 коек.
3.9. Для пожилых граждан, преимущественно онкологических больных в терминальной стадии болезни, в целях оказания медицинской, социальной и психологической помощи существуют такие стационарные учреждения здравоохранения, как хосписы.
Основные положения концепции хосписов приведены в справочном приложении А.
3.10. Хосписы рекомендуется предусматривать для жилых районов с населением 250 тыс. чел. и более.
При соответствующем обосновании допускается предусматривать хосписы в жилых районах с меньшей численностью населения.
Мощность стационаров хосписов рекомендуется в пределах от 25 до 30 коек.
4.1. Геронтологические центры, дома сестринского ухода и хосписы следует размещать на обособленных участках в озелененных районах селитебной зоны, пригородной зоне, вдали от промышленных и коммунальных предприятий.
Геронтологические центры следует максимально приближать к местам проживания потенциальных пользователей этих учреждений.
ГРЦ, в котором предусмотрены все виды стационарного и полустационарного обслуживания лиц старших возрастов, рекомендуется располагать в центре крупного города, имеющего медицинский институт, который может обеспечить учебный процесс для врачей и среднего медицинского персонала, специализирующихся по геронтологии.
Расположение ГРЦ в малонаселенном районе, в загородной зоне создает определенные препятствия пожилым людям для посещений отделений дневного пребывания, отделений 5-дневного пребывания и консультативного приема, поэтому такие отделения нецелесообразно создавать в его структуре.
Геронтопсихиатрический центр рекомендуется располагать в населенном районе города для обеспечения доступности посещений его отделений возможно большему числу лиц пожилого возраста, нуждающихся в реабилитации в амбулаторных условиях.
Дома сестринского ухода рекомендуется размещать на территориях многопрофильных больниц в отдельно стоящих зданиях, а отделения сестринского ухода - в лечебных корпусах многопрофильных или специализированных больниц для взрослого населения.
4.2. Здания следует размещать, как правило, не ближе 30 м от красных линий застройки и жилых зданий.
При строительстве домов сестринского ухода в районах затесненной застройки, а также на территории действующих больниц это расстояние может быть уменьшено, вплоть до красной линии застройки.
4.3. При выборе участков для строительства рекомендуется предусматривать доступность проезда к учреждениям пожилых людей и их родственников и, по возможности, близость к действующим зданиям для богослужения.
4.4. На земельных участках геронтологических центров, домов сестринского ухода и хосписов следует предусматривать следующие основные зоны:
- жилую, включающую само здание геронтологического центра, дома сестринского ухода или хосписа, и подходы и подъезды к нему;
- садово-парковую с местами для отдыха, площадкой для лечебной физкультуры, аэросоляриями и терренкуром;
- хозяйственную с гаражом для служебных автомобилей.
Зонирование участка необходимо проводить с учетом организации удобных кратчайших связей от отдельных групп помещений в здании с соответствующими зонами и площадками на участке.
4.5. Минимальные расчетные параметры земельных участков при стационарных учреждениях социального обслуживания престарелых рекомендуется принимать по таблице 4.1.
Таблица 4.1
|
Тип стационарного учреждения |
Вместимость, человек |
Размер участка, м2 на 1 человека |
|
Геронтологический центр |
200 |
125 |
|
Геронтопсихиатрический центр |
200 |
100 |
|
Дом сестринского ухода |
100-200 |
60 |
|
Хоспис |
25-30 |
500 |
Примечание. В расчетных параметрах не учтены площади гаража и летней стоянки для автомашин.
При строительстве стационарных учреждений для пожилых людей на территории действующих больниц, а также на вновь осваиваемых участках в районах с затесненной застройкой площадь земельного участка при соответствующем обосновании может быть уменьшена, но не более чем на 20-25 %.
4.5. Земельные участки стационарных учреждений для пожилых людей должны иметь сплошное ограждение высотой не менее 1,6 м.
По периметру ограждения с внутренней стороны рекомендуется полоса зеленых насаждений шириной не менее 5 м, высотой не менее 2 м.
Допускается не ограждать земельные участки домов сестринского ухода, расположенных на территории больниц.
4.6. Площадь под зелеными насаждениями и газонами (включая участки овощных, плодово-ягодных культур и цветочно-декоративных растений) должна составлять не менее 60 % площади участка.
При озеленении участка нужно учитывать местные условия, применять наиболее распространенные в данной местности породы деревьев, кустарников, трав и цветов, подбирая их по разному времени цветения.
4.7. В вечернее время участок должен освещаться из расчета обеспечения освещенности на земле не менее 20 лк при лампах накаливания и не менее 40 лк - при люминесцентных лампах.
4.8. При проектировании садово-парковой зоны следует стремиться к достижению эффектов естественного и живописного ландшафта.
4.9. Средствами ландшафтной архитектуры следует предусматривать устройство удобных мест отдыха, с использованием разнообразных малых архитектурных форм беседок, фонтанчиков, небольших водоемов, светильников, скамеек и др.
4.10. Прогулочные маршруты и места для отдыха должны учитывать возможность использования кресел-колясок.
Ширину пешеходных дорожек следует принимать не менее 1,8 м, уклон - не более 5°. На поворотах и через каждые 6 м необходимо устраивать площадки для отдыха.
4.11. На земельных участках геронтологических центров, домов сестринского ухода и хосписов следует размещать только функционально связанные с ними здания и сооружения.
На территории геронтологических центров по заданию на проектирование допускается размещение гостиниц для приезжих пациентов, их пребывания в течение консультации и обследования, для родственников проживающих, а также медицинских учебных заведений.
При соответствующем обосновании на участке геронтологических центров допускается размещать плодовый сад, огород, теплицу.
4.12. Хозяйственную зону следует размещать со стороны рабочих помещений пищеблока.
При расположении хозяйственных площадок следует учитывать ориентацию спальных комнат, чтобы шум от площадок не мешал отдыхающим.
4.13. На земельных участках следует предусматривать подъездные пути к главному входу, хозяйственной зоне, службе приготовления пищи, выездной службе домов сестринского ухода и хосписов, помещению для временного хранения трупов и другим службам, требующим транспортного обеспечения.
Подъездные пути не следует проектировать перед окнами помещений для проживания.
Подъезд к наружному выходу помещения для хранения трупов должен быть отделен от подъездных путей к другим службам и помещениям.
4.14. При наличии в структуре дома сестринского ухода или хосписа выездной бригады, обеспечивающей проведение лечения и ухода за больными на дому, следует предусматривать гараж и летнюю стоянку автомашин.
4.15. Вокруг зданий со стационарами независимо от этажности следует предусматривать круговой проезд для пожарных автомашин шириной не менее 3,5 м при этажности до 5-ти включительно и шириной не менее 4,2 м при высоте зданий 6-9 этажей.
5.1. Структура и состав учреждений определяются заданием на проектирование с учетом задач и функций этих учреждений.
Функционально-планировочное решение должно быть простым и четким и обеспечивать для проживающих комфортные бытовые условия проживания.
5.2. Функциональная структура геронтологических центров определяется с учетом:
- дифференциации пожилых людей на группы по степени обслуживания, состоянию здоровья и потребности в социальном и медицинском уходе,
- обеспечения каждой группы пожилых людей комплексом помещений для проживания и обслуживания,
- обеспечения удобной взаимосвязи жилых помещений с помещениями обслуживающего назначения.
5.3. Геронтологические центры, как правило, могут включать:
1. Профильные жилые отделения:
- отделение постоянного проживания, включая отделения «Милосердие»,
- реабилитационное отделение временного пребывания,
- отделение 5-дневного пребывания,
- отделение дневного пребывания,
2. Медицинскую группу помещений.
3. Социально-реабилитационное отделение.
4. Отделение лечебно-трудовой реабилитации.
5. Научно-исследовательские, методические и информационные помещения.
6. Административно-хозяйственные помещения.
7. Пищеблок.
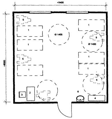
Схема функциональных связей групп помещений геронтологического центра с наиболее полным числом функциональных служб представлена на рис. 1.
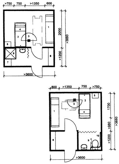
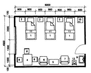
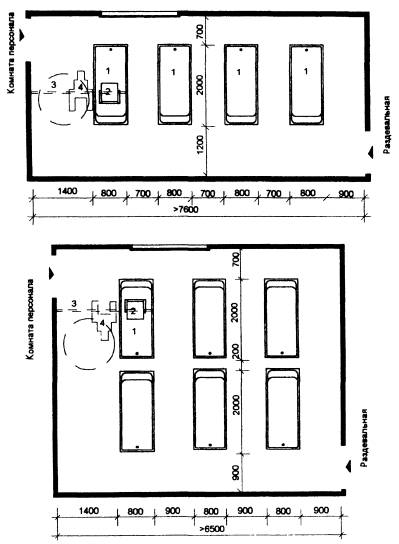
5.4. Отделение для постоянного проживания предназначено для пожилых людей с сохранной двигательной активностью и способностью к самообслуживанию. Оно может включать: жилые комнаты на 1-го и 2-х человек с приближенными санузлами и душевыми, комнату дневного пребывания, бытовую комнату, комнату сестры-хозяйки, комнату медсестры, процедурную, пост дежурной медсестры, вспомогательные помещения. Вместимость отделения постоянного проживания рекомендуется в пределах от 100 до 150 коек.
5.5. Отделение «Милосердие» предназначено для пожилых людей с ограниченной подвижностью и не способных к самообслуживанию. В отделении «Милосердие» рекомендуется предусмотреть палату интенсивной терапии, процедурные кабинеты, кабинет врача, ванную с подъемником, буфетную с моечной посуды, комнату сестры-хозяйки, пост дежурной медсестры. Вместимость такого отделения рекомендуется от 25 до 50 коек.
5.6. Реабилитационное отделение временного пребывания (от 30 дней до 6 месяцев) и отделение 5-дневного пребывания состоят из жилых комнат на 1 и 2-х человек с приближенными санузлами и душевыми, комнат дневного пребывания, комнаты медсестры и вспомогательных помещений. Вместимость отделения временного пребывания рекомендуется 50 человек. Вместимость отделения 5-дневного пребывания - 20 человек.

Рис. 1. Функциональные связи групп помещений геронтологического центра
5.7. Отделение дневного пребывания включает комнаты отдыха на 1 и 2 человек, гостиную для дневного пребывания, буфет-раздаточную, столовую, комнату медсестры. Отделение дневного пребывания рекомендуется организовывать на 20-30 человек.
5.8. Медицинская группа помещений, обслуживающая все структурные подразделения, должна иметь кабинеты врачей-консультантов (окулиста, невропатолога, психотерапевта), кабинет стоматолога, гинеколога, физиотерапии, зал ЛФК, кабинеты массажа, изолятор, лабораторию, диагностический кабинет.
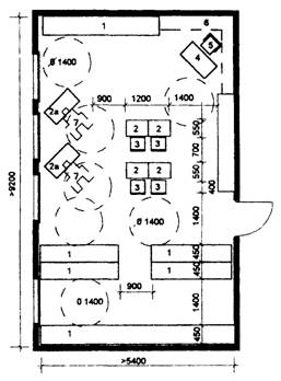
5.9. Социальное реабилитационное отделение может включать зрительный зал с фойе, библиотеку-читальню, клубные помещения, кружковые комнаты, кабинет психолога.
5.10. Отделение лечебно-трудовой реабилитации может включать универсальные лечебно-трудовые мастерские и земельные участки.
5.11. Состав административно-хозяйственных помещений определяется заданием на проектирование для обеспечения работы администрации, бухгалтерии, службы социально-медицинской статистики, архива, а также хозяйственных служб.
5.12. Научно-исследовательские, методические и информационные помещения могут включать: кабинет заведующего кафедрой гериатрии и геронтологии, кабинеты профессоров, доцентов, учебные кабинеты, аудитории для занятий со студентами, учебные и научно-исследовательские лабораторные помещения, конференц-залы, аудитории, учебные процедурные и др. помещения. Состав и площади этих помещений определяются заданием на проектирование.
5.13. Примерная структура геронтопсихиатрического центра:
1. Профильные жилые отделения:
- отделение постоянного проживания на 200-250 мест, включая 4-5 отделений «Милосердие» на 25 коек каждое,
- реабилитационное отделение временного пребывания на 30-50 мест,
- отделение 5-дневного пребывания на 20-30 мест,
- отделение дневного пребывания на 20-30 мест.
2. Медицинская группа помещений.
3. Социально- реабилитационное отделение.
4. Отделение лечебно-трудовой реабилитации.
5. Научно-исследовательские, методические и информационные помещения.
6. Административно-хозяйственные помещения.
7. Пищеблок.
8. Лечебно-реабилитационное отделение, административные помещения и отделение социальной реабилитации включают те же помещения и службы, которые представлены в ГРЦ.
5.14. Функциональная структура дома сестринского ухода включает следующие основные группы помещений:
- вестибюльная группа помещений;
- приемное отделение;
- палатные отделения;
- специализированные и вспомогательные кабинеты и помещения;
- служебно-бытовые помещения;
- помещения службы приготовления пищи;
- помещения хозяйственных служб.
5.15. Все группы помещений дома сестринского ухода изолированы и связаны через нейтральную зону.
Принципиальную схему функциональной взаимосвязи отдельных групп помещений см. на рис. 2.

Рис. 2. Схема функциональных связей групп помещений дома сестринского ухода
Допустимо некоторые группы помещений, исключая спальные, проектировать проходными.
5.16. Вестибюльная группа помещений включает гардероб уличной одежды посетителей и персонала, помещения для встреч посетителей с лечащими врачами, помещения для приема передач.
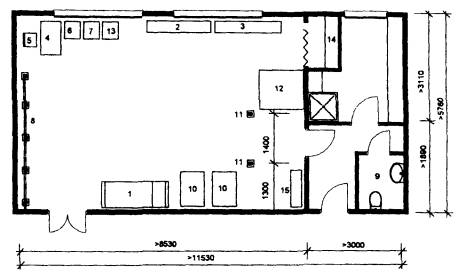
5.17. Приемное отделение включает вестибюль-ожидальную, регистратуру, смотровые, санитарные пропускники, процедурную, уборные, вспомогательные помещения.
5.18. В состав палатных отделений, где осуществляется лечение, наблюдение и уход за больными, следует включать пространства социальной активности: комнаты отдыха или дневные комнаты, буфеты на этажах и др., комнаты медицинского осмотра и лечения, консультационные комнаты, помещения обслуживания жильцов, пост сестринского ухода и процедурная комната, кладовые и помещения для хранения медицинского оборудования, кресел-колясок и костылей и пр.
5.19. В состав специализированных и вспомогательных кабинетов и помещений, используемых больными всех палатных отделений и персоналом дома, входят:
- лаборатория срочных анализов,
- кабинет электро-светолечения,
- кабинеты врача функциональной диагностики,
- психотерапевта,
- социального работника,
- кабинеты врачей-консультантов.
Для домов сестринского ухода, проектируемых вне территории больниц, эта группа дополняется стерилизационной, аптечным распределительным пунктом, помещением морга.
5.20. Состав служебно-бытовых помещений определяется заданием на проектирование и должен обеспечить работу администрации, бухгалтерии, медархива и медстатистики.
5.21. Помещения службы приготовления пищи проектируются только для домов, расположенных вне территории больниц. Их состав определяется в соответствии с действующими СНиП в зависимости от расчетной вместимости дома.
По заданию на проектирование определяется и состав хозяйственно-эксплуатационных помещений.
5.22. Хосписы рекомендуется предусматривать для городов и жилых районов с населением 250 тыс. человек и более. Вместимость стационаров хосписов рекомендуются в пределах от 25 до 30 коек.
5.23. В состав помещений хосписов следует включать:
- помещения вестибюльной группы и приема больных (вестибюль-гардеробная, справочная, санузлы, смотровая комната, санпропускник для больных, помещение для кресел-колясок);
- стационар (1-2-4-коечные палаты с санузлами в шлюзах, пост дежурной сестры, процедурная, перевязочная, помещение для отдыха больных, зимний сад, молитвенная, помещения для подогрева пищи);
- медицинские помещения (кабинет заведующего, ординаторская, кабинет психотерапевта, комната старшей медсестры, комната медперсонала);
- помещения для отдыха родственников и добровольных помощников;
- бытовые помещения (помещение для мытья и стерилизации суден), клеенок и т.д., для хранения грязного белья, дезинфекционных средств и предметов уборки, ванная с душем и подъемником для больных;
- помещение для кресел-колясок и каталок;
- клизменную, комнату личной гигиены персонала (уборные для персонала и посетителей);
- помещение морга (помещение для хранения трупов с холодильной установкой, траурное помещение);
- помещение выездной службы (кабинеты заведующего, старшей медсестры, выездных бригад, комнаты шоферов, санузлы);
- административно-хозяйственную, бытовую и вспомогательную службы;
- службы приготовления пищи.
Принципиальная схема функциональной взаимосвязи отдельных групп помещений хосписов дана на рис. 3.

Рис. 3. Схема функциональных связей групп помещений хосписа
6.1. Здания геронтологических центров, домов сестринского ухода и хосписов следует проектировать не ниже II степени огнестойкости.
6.2. Архитектура геронтологических центров, домов сестринского ухода и хосписов должна носить характер жилого дома.
6.3. Жилые и общественные помещения геронтологических центров, домов сестринского ухода могут располагаться в одном или нескольких зданиях. При размещении их в одном здании они должны быть разделены несгораемыми перегородками с пределом огнестойкости не менее REI 45; в случае размещения домов-интернатов в нескольких зданиях между ними предусматриваются теплые переходы, выполненные из несгораемых материалов. Предел огнестойкости стен каждого здания в местах присоединения к ним переходов в габаритах переходов должен составлять R 120.
6.4. Для предупреждения травматизма лиц с ограниченной подвижностью, немощностью и неадекватным поведением одним из основных требований к организации предназначенных для них групп помещений и отдельных помещений является требование обеспечения видимости пожилых людей персоналом при организации их проживания и получения процедур.
В психогериатрических отделениях требования видимости или возможной доступности пациентов распространяются и на те помещения, которые предназначены для их уединенного пребывания.
6.5. Входы в здания, пандусы и лестницы, лифты и подъемники, вспомогательные средства и приспособления разгрузочного типа (поручни, ручки, рычаги и т.д.) следует проектировать в соответствии с требованиями СНиП 35-01.
6.6. Жилые группы для нуждающихся в постоянном уходе следует размещать не выше третьего этажа, а для передвигающихся на креслах-колясках - не выше второго этажа.
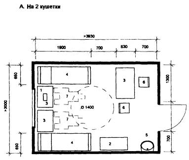
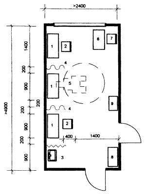
Ширина жилых комнат для нуждающихся в постоянном уходе и инвалидов, передвигающихся на креслах-колясках, а также процедурных должна быть не менее 3,3 м.
Глубина жилых комнат, комнат отдыха, кабинетов врачей и медсестер не должна быть более 6 м, а кабинетов врачей-консультантов - не менее 6 м. Отношение глубины к ширине в жилых комнатах следует принимать не более 2:1.
6.7. В цокольном и подвальном этажах допускается размещение складских помещений, гардеробных и санитарных узлов для персонала, ремонтных мастерских, мусоросборников, помещений для временного хранения трупов, а в подвальном этаже - также помещений вентиляционных систем, тепловых пунктов и водомерных узлов.
В цокольном и подвальном этажах не следует располагать помещения, связанные с применением и хранением сгораемых материалов и несгораемых материалов в сгораемой упаковке.
Помещения для вентиляционного оборудования, охлаждаемые камеры с машинными отделениями, бойлерные с насосными установками, ремонтные мастерские, машинные отделения лифтов и подъёмников, производственные помещения и обеденные залы столовых, мусоросборные камеры запрещается размещать смежно с жилыми комнатами, кабинетами врачей, а также над и под ними.
6.8. Ширина коридоров жилых отделений и служебных помещений должна быть 2 м; коридоры не должны иметь местных сужений и выступающих частей.
Общие коридоры должны иметь выходы не менее чем на две лестничные клетки. Использование наружных пожарных лестниц для эвакуации проживающих в зданиях геронтологических центров, домов сестринского ухода не допускается.
Расстояние по коридору из наиболее удаленных помещений (кроме уборных, умывальных, ванных, душевых и других подсобных помещений), расположенных между лестничными клетками, между лестничной клеткой и пандусом или наружными выходами, должно быть не более 35 м, а из помещений с выходами в тупиковый коридор - не более 15 м.
6.9. Ширина лестничных площадок и маршей эвакуационных лестничных клеток в палатных корпусах должна быть не менее 1,35 м, наружных дверей - не менее ширины маршей лестниц.
Лестничные марши должны иметь двусторонние поручни.
6.10. Ширина дверного проема в помещениях для больных - не менее 1,1 м, в других помещениях - не менее 0,9 м.
6.11. Противопожарные двери с пределом огнестойкости не менее EI 30 следует устанавливать:
- в перегородках и стенах, отделяющих жилые помещения от общественных;
- в стенах, отделяющих жилой корпус от теплого перехода в блоки с общественными помещениями;
- в помещениях, связанных с хранением и обработкой сгораемых материалов;
- в перегородках, отделяющих лифтовой холл от поэтажных коридоров.
Противопожарные двери должны быть оборудованы закрывателями, магнитными защелками, уплотняющими прокладками в притворах.
6.12. Во всех климатических районах ориентация окон жилых комнат и комнат отдыха в пределах сектора горизонта от 280 до 80° не допускается.
В III и IV климатических районах проемы окон и балконных дверей помещений долговременного пребывания проживающих, кабинетов врачей и помещений медицинского персонала, обращенных на сектор горизонта от 200 до 290°, должны быть оборудованы регулируемыми солнцезащитными устройствами из несгораемых материалов.
Ручки штанговых затворов фрамуг в жилых комнатах должны располагаться на высоте не более 1,2 м от пола.
При жилых комнатах геронтологических центров, домов сестринского ухода и хосписов следует предусматривать лоджии и балконы глубиной не менее 1,6 м.
6.13. Внутренняя отделка помещений геронтологических центров, домов сестринского ухода, хосписов должна быть выполнена из материалов, разрешенных органами и учреждениями Роспотребнадзора, соответствовать их функциональному назначению и способствовать созданию условий, максимально приближенных к домашним.
Санитарно-гигиенические качества внутренней отделки помещений должны соответствовать требованиям СанПиН 5179-90.
При выборе материалов внутренней отделки помещений отдыха, помещений социально-трудовой реабилитации, залов ЛФК, гардеробных помещений следует также учитывать необходимость снижения шума с помощью звукопоглощающей облицовки и штучных звукопоглотителей.
6.14. В геронтологических центрах, домах сестринского ухода и хосписах следует предусматривать:
- настенные поручни из материалов по горючести группы Г1 по обеим сторонам вдоль коридоров и лестничных клеток;
- подлокотники и поручни в санитарных узлах;
- отделку строительными материалами группы НГ и Г1 коридоров, лестничных клеток и помещений, составляющих пути эвакуации, а также зальных помещений.
6.15. Помещения вестибюля должны быть удобно связаны с помещениями для приема гостей, для бесед посетителей с лечащими врачами, а также с помещениями для приема передач проживающим. При вестибюле должны находиться справочная, киоск для литературы, газет и пр., уборные для посетителей.
Площадь вестибюля-гардеробной для посетителей рекомендуется принимать из расчета не менее 0,5 м2 на одного посетителя.
Число посетителей геронтологических центров принимается равным 70 % количества коек.
Примерный состав и площади помещений вестибюльной группы геронтологического центра на 250 мест приведены в таблице 6.1.
Таблица 6.1
|
№ п.п. |
Наименование помещений |
Площадь, м2 (не менее) |
|
1 |
Вестибюль, гардероб для посетителей, пост дежурного персонала |
88 |
|
2 |
Комната приема гостей проживающих |
12 |
|
3 |
Телефоны-автоматы |
1,5 |
|
4 |
Уборные при вестибюле 3 + 3 |
6 |
|
5 |
Киоск |
6 |
|
|
Итого: |
113,5 |
6.16. Приемно-карантинное отделение осуществляет прием, регистрацию и распределение пожилых людей по отделениям, устанавливает предварительный диагноз, оказывает необходимую медицинскую помощь, проводит санитарную обработку. Приемное отделение включает вестибюль-ожидальную, смотровую, санитарный пропускник, процедурную, уборные, вспомогательные помещения.
Приемно-карантинное отделение следует размещать на первом этаже здания. Примерный состав и площади приемно-карантинного отделения приведены в таблице 6.2.
Таблица 6.2
|
№ п.п. |
Наименование помещений |
Площадь, м2 (не менее) |
Количество помещений |
|
1 |
Вестибюль-ожидальная с уборной |
12 |
1 |
|
2 |
Смотровая-ожидальная с санузлом |
10+10 |
1 |
|
3 |
Санитарный пропускник: |
|
|
|
Раздевальная |
6 |
1 |
|
|
Ванная с душем и подъемником |
14 |
1 |
|
|
Одевальная |
6 |
1 |
|
|
4 |
Палата-изолятор одноместная со шлюзом и санузлом |
14 |
2 |
|
5 |
Палата на 4 койки со шлюзом и санузлом |
42 |
2 |
|
6 |
Процедурная |
12 |
1 |
|
7 |
Комната персонала |
10 |
1 |
|
8 |
Помещение для хранения предметов уборки с поливочным краном и сушкой |
4 |
1 |
|
9 |
Уборная для пациентов |
3 |
1 |
|
10 |
Уборная для персонала |
3 |
1 |
|
11 |
Место для хранения каталок |
2 |
1 |
|
12 |
Буфет-пост |
4 |
1 |
|
|
Итого: |
208 |
|
6.17. Нормативная площадь жилых помещений на одного и двух человек составляет 12 и 18 м2.
В отделении для постоянного проживания рекомендуются следующие типы жилых комнат: отдельные комнаты на одного человека - до 80 %, жилые комнаты на двух человек - 20 %.
Жилые комнаты на 3 человека не рекомендуются по той причине, что у жильцов утрачивается чувство собственности и независимости поведения.
6.18. В жилом помещении выделяются несколько основных функциональных зон:
- сна,
- дневного пребывания и отдыха,
- санитарно-гигиеническая,
- приема пищи,
- пользования шкафами и полками.
Эти зоны должны быть приспособлены для временного выполнения дополнительных функций.
К кровати, располагающейся в зоне сна, необходимо предусмотреть свободный подход с двух сторон (с торца и с боковой стороны, лучше справа от лежащего) для возможности обслуживания медицинским персоналом. Зона дневного пребывания и отдыха должна быть приспособлена для приема друзей и знакомых, а также для занятий каким-либо домашним трудом (вязанье, вышивание, шитье). Кроме того, ограниченная подвижность пожилых людей, часто оставляющая единственную связь с миром через окна и балконы, обусловливает важность зон подхода к окну и выхода на балкон.
6.19. Жилые группы. Норма площади на одного человека - 1,5 м2. Норма площади на человека в инвалидной коляске - 3 м2. Доля пользующихся инвалидными колясками принимается 20 % общей численности проживающих.
На одну-две жилые группы предусматриваются по одному посту дежурного персонала, а также комната дежурной медсестры, процедурная.
Пост дежурной сестры организуется при жилых отделениях таким образом, чтобы в поле зрения сестры находились все комнаты. Пост дежурной медсестры может быть размещен в специальном помещении, открытом в коридор.
В составе отделения предусматривается кабинет врача-геронтолога (медицинской сестры отделения).
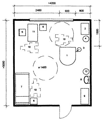
6.20. Примерный состав и площади отделения постоянного проживания приведены в таблице 6.3.
Таблица 6.3
|
№ п.п. |
Наименование помещений |
Площадь, м2 (не менее) |
Количество помещений |
|
1. Жилая комната на 10 мест |
|||
|
1.1 |
Жилая комната на 1-го человека |
12 |
8 |
|
|
Прихожая |
3 |
1 |
|
|
Санузел с душевой |
3 |
1 |
|
1.2 |
Жилая комната на 2 человека |
18 |
1 |
|
|
Прихожая |
3 |
1 |
|
|
Санузел с душевой |
3 |
1 |
|
1.3 |
Пост дежурной медсестры |
6 |
1 |
|
1.4 |
Процедурная |
14 |
1 |
|
1.5 |
Клизменная со шлюзом и уборной |
8+2+2 |
1 |
|
1.6 |
Ванная комната с душем |
12 |
1 |
|
1.7 |
Помещение дневного пребывания |
20 |
1 |
|
1.8 |
Кухня (для самостоятельного приготовления пищи) |
16 |
1 |
|
1.9 |
Курительная |
8 |
1 |
|
1.10 |
Помещение для бытовых нужд с местами для стирки и сушки мелких вещей, сушки одежды и обуви |
10 |
1 |
|
1.11 |
Комната санитарки |
10 |
1 |
|
1.12 |
Уборная персонала со шлюзом и умывальником |
3 |
1 |
|
1.13 |
Помещение для: |
|
|
|
мытья и стерилизации суден, мытья и сушки клеенок, |
8 |
1 |
|
|
сортировки и временного хранения грязного белья, |
4 |
1 |
|
|
хранения предметов уборки с трапом, поливочным краном и сушкой |
4 |
1 |
|
|
|
Итого: |
295 |
|
|
2. Общие помещения 2-х жилых групп |
|||
|
2.1 |
Кухня-раздаточная с оборудованием для мытья и стерилизации посуды |
25 |
1 |
|
2.2 |
Столовая |
50 |
|
|
2.3 |
Кабинет врача |
12 |
1 |
|
2.4 |
Комната дежурной медицинской сестры |
10 |
1 |
|
2.5 |
Процедурная |
12 |
1 |
|
2.6 |
Бельевая |
15 |
1 |
|
2.7 |
Комната сестры-хозяйки |
10 |
1 |
|
2.8 |
Санитарная комната |
15 |
1 |
|
2.9 |
Уборная персонала (3×2) |
6 |
1 |
|
|
Итого: |
155 |
|
|
3. Общие помещения отделения |
|||
|
3.1 |
Кабинет заведующего отделением с местом для компьютера |
16 |
1 |
|
3.2 |
Комната старшей медицинской сестры |
14 |
1 |
|
3.3 |
Комната персонала |
10 |
1 |
|
3.4 |
Помещение для хранения переносной физиотерапевтической аппаратуры |
12 |
1 |
|
3.5 |
Комната личной гигиены персонала |
6 |
1 |
|
3.6 |
Помещение для хранения каталок |
10 |
1 |
|
3.7 |
Уборная для персонала |
3 |
2 |
|
3.8 |
Итого: |
74 |
|
|
|
Всего: |
524 |
|
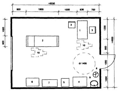
6.21. Соотношение комнат различной вместимости в отделении «Милосердие» определяется заданием на проектирование. Примерный состав и площадь помещений отделения «Милосердие» на 25 мест приведены в таблице 6.4.
Таблица 6.4
|
№ п.п. |
Наименование помещений |
Площадь, м2 (не менее) |
Количество помещений |
|
1. Жилая группа на 25 мест |
|||
|
1.1 |
Жилая комната на 1 человека с прихожей, уборной и душевой (12+3+3+2) |
20 |
19 |
|
1.2 |
Жилая комната на 2 человека с прихожей, уборной и душевой (9×2+3+3+2) |
26 |
3 |
|
1.3 |
Пост дежурной медсестры |
6 |
1 |
|
1.4 |
Процедурная |
12 |
1 |
|
1.5 |
Клизменная со шлюзом и уборной |
8+2+2 |
1 |
|
1.6 |
Ванная комната с душем и подъемником |
12+2 |
1 |
|
1.7 |
Помещение для мытья и стерилизации суден, мытья и сушки клеенок |
8 |
1 |
|
сортировки и временного хранения грязного белья |
4 |
1 |
|
|
хранения предметов уборки с трапом, поливочным краном и сушкой |
4 |
1 |
|
|
1.8 |
Кладовая чистого белья |
4 |
1 |
|
1.9 |
Помещение дневного пребывания |
25 |
1 |
|
|
Итого: |
537 |
|
|
2. Общие помещения отделения |
|||
|
2.1 |
Кабинет заведующего отделением с местом для компьютера |
16 |
1 |
|
2.2 |
Комната старшей медицинской сестры |
14 |
1 |
|
2.3 |
Комната сестры-хозяйки |
10 |
1 |
|
2.4 |
Помещение для бытового обслуживания |
16 |
1 |
|
2.5 |
Комната персонала |
10 |
1 |
|
2.6 |
Буфетная с оборудованием для мытья посуды |
22 |
1 |
|
2.7 |
Помещение для хранения переносной физиотерапевтической аппаратуры |
12 |
1 |
|
2.8 |
Комната личной гигиены персонала |
6 |
1 |
|
2.9 |
Помещение для хранения каталок |
10 |
1 |
|
2.10 |
Уборная для персонала |
3 |
2 |
|
2.11 |
Комната для сушки верхней одежды и обуви |
15 |
1 |
|
|
Итого: |
134 |
|
|
|
Всего: |
671 |
|
6.22. Примерный состав и площадь реабилитационного отделения временного пребывания на 50 мест приведены в таблице 6.5.
Таблица 6.5
|
№п.п. |
Наименование помещений |
Площадь, м2 (не менее) |
Количество помещений |
|
1. Жилая группа на 25 мест |
|||
|
1.1 |
Жилая комната на 1 человека с прихожей, уборной и душевой (12+3+3+2) |
20 |
19 |
|
1.2 |
Жилая комната на 2 человека с прихожей, уборной и душевой (9×2+3+3+2) |
26 |
3 |
|
1.3 |
Пост дежурной медсестры |
6 |
1 |
|
1.4 |
Клизменная со шлюзом и уборной |
8+2+2 |
1 |
|
1.5 |
Ванная комната с душем и подъемником |
12+2 |
1 |
|
1.6 |
Помещение для: |
|
|
|
мытья и стерилизации суден, мытья и сушки клеенок |
8 |
||
|
сортировки и временного хранения грязного белья |
4 |
||
|
хранения предметов уборки с трапом, поливочным краном и сушкой |
4 |
||
|
1.7 |
Кладовая чистого белья |
4 |
1 |
|
1.8 |
Уборная персонала со шлюзом и умывальником |
3 |
1 |
|
1.9 |
Комната санитарки |
10 |
1 |
|
1.10 |
Помещение дневного пребывания |
25 |
2 |
|
1.11 |
Курительная |
8 |
1 |
|
1.12 |
Кухня (для самостоятельного приготовления пищи) |
16 |
1 |
|
|
Итого: |
597 |
|
|
2. Общие помещения 2-х жилых групп |
|||
|
2.1 |
Кухня-раздаточная с оборудованием для мытья и стерилизации посуды |
25 |
1 |
|
2.2 |
Столовая |
70 |
|
|
2.3 |
Кабинет врача |
12 |
1 |
|
2.4 |
Комната дежурной медицинской сестры |
10 |
1 |
|
2.5 |
Процедурная |
12 |
1 |
|
2.6 |
Бельевая |
15 |
1 |
|
2.7 |
Комната сестры-хозяйки |
10 |
1 |
|
2.8 |
Санитарная комната |
15 |
1 |
|
2.9 |
Уборная персонала (3×2) |
6 |
1 |
|
|
Итого: |
175 |
|
|
3. Общие помещения отделения |
|||
|
3.1 |
Кабинет заведующего отделением с местом для компьютера |
16 |
1 |
|
3.2 |
Комната старшей медицинской сестры |
14 |
1 |
|
3.3 |
Комната сестры-хозяйки |
10 |
1 |
|
3.4 |
Помещение для бытового самообслуживания |
16 |
1 |
|
3.5 |
Комната персонала |
10 |
1 |
|
3.6 |
Буфетная с оборудованием для мытья посуды |
22 |
1 |
|
3.7 |
Помещение для хранения переносной физиотерапевтической аппаратуры |
12 |
1 |
|
3.8 |
Кладовая хранения мягкого инвентаря |
10 |
1 |
|
3.9 |
Комната личной гигиены персонала |
6 |
1 |
|
3.10 |
Помещение для хранения каталок |
10 |
1 |
|
3.11 |
Уборная для персонала |
3 |
1 |
|
3.12 |
Комната для сушки верхней одежды и обуви |
15 |
1 |
|
3.13 |
Помещение для встречи с родственниками |
48 |
1 |
|
|
Итого: |
154 |
|
|
|
Всего: |
925 |
|
6.23. Примерный состав и площади помещений отделения 5-дневного пребывания на 20 человек приведены в таблице 6.6.
Таблица 6.6
|
№ п.п. |
Наименование помещений |
Площадь, м2 (не менее) |
Количество помещений |
|
1. Жилая группа на 20 человек |
|||
|
1.1 |
Жилая комната на 1 человека с прихожей, уборной и душевой (12+3+3+2) |
20 |
6 |
|
1.2 |
Жилая комната на 2 человека с прихожей, уборной и душевой (9×2+3+3+2) |
26 |
4 |
|
1.3 |
Жилая комната на 3 человека с прихожей, уборной и душевой (9×3+3+3+2) |
35 |
2 |
|
1.4 |
Пост дежурной медсестры |
6 |
1 |
|
1.5 |
Процедурная |
12 |
1 |
|
1.6 |
Клизменная со шлюзом и уборной (8+2+2) |
12 |
1 |
|
1.7 |
Помещения для: |
|
|
|
мытья и стерилизации суден, мытья и сушки клеенок |
8 |
1 |
|
|
сортировки и временного хранения грязного белья |
4 |
1 |
|
|
хранения предметов уборки с трапом, поливочным краном и сушкой |
4 |
1 |
|
|
1.8 |
Кладовая чистого белья |
4 |
1 |
|
1.9 |
Помещение дневного пребывания |
20 |
2 |
|
1.10 |
Курительная |
8 |
1 |
|
1.11 |
Столовая |
30 |
1 |
|
|
Итого: |
422 |
|
|
2. Общие помещения отделения |
|||
|
2.1 |
Кабинет заведующего отделением с местом для компьютера |
16 |
1 |
|
2.2 |
Комната старшей медицинской сестры |
14 |
1 |
|
2.3 |
Комната сестры-хозяйки |
10 |
1 |
|
2.4 |
Помещение для бытового самообслуживания |
16 |
1 |
|
2.5 |
Комната персонала |
10 |
1 |
|
2.6 |
Буфетная с оборудованием для мытья посуды |
22 |
1 |
|
2.7 |
Помещение для хранения переносной физиотерапевтической аппаратуры |
12 |
1 |
|
2.8 |
Кладовая хранения мягкого инвентаря |
10 |
1 |
|
2.9 |
Комната личной гигиены персонала |
6 |
1 |
|
2.10 |
Помещение для хранения каталок |
10 |
1 |
|
2.11 |
Уборная для персонала |
3 |
2 |
|
2.12 |
Комната для сушки верхней одежды и обуви |
15 |
1 |
|
2.13 |
Помещение для встречи с родственниками |
48 |
1 |
|
|
Итого: |
195 |
|
|
|
Всего: |
617 |
|
6.24. Примерный состав и площади помещений отделения дневного пребывания представлены в таблице 6.7.
6.25. Площадь помещения гостиной для дневного пребывания следует принимать из расчета 3,6 м2 на 1 человека.
Таблица 6.7
|
№ п.п. |
Наименование помещений |
Площадь, м2 (не менее) |
||
|
|
|
на 10 мест |
на 20 мест |
на 30 мест |
|
1 |
Комната отдыха на 1 человека |
9 |
9 |
9 |
|
1 |
Комната отдыха на 2 человека |
- |
18 |
18 |
|
2 |
Помещение гостиной для дневного пребывания |
36 |
36+36 |
36+36+36 |
|
3 |
Уборная (3+3) |
6 |
6 |
6 |
|
4 |
Буфетная с оборудованием для мытья и стерилизации посуды |
18 |
25 |
25 |
|
5 |
Столовая |
16 |
25 |
50 |
|
6 |
Кабинет заведующего отделением |
16 |
16 |
16 |
|
7 |
Кабинет психолога |
- |
12 |
12 |
|
8 |
Кабинет социального работника |
- |
12 |
12 |
|
9 |
Помещение для терапии занятостью |
- |
24 |
48 |
|
10 |
Комната старшей медицинской сестры |
12 |
12 |
12 |
|
11 |
Комната сестры-хозяйки |
- |
10 |
10 |
|
12 |
Комната персонала |
10 |
10 |
10 |
|
13 |
Гардероб персонала с душевыми кабинами, комнатой личной гигиены и уборной |
12 |
16 |
18 |
|
14 |
Процедурная |
18 |
18 |
18 |
|
15 |
Помещение арттерапии |
24 |
24 |
36 |
|
16 |
Душевые кабины для больных |
3 |
6 |
6 |
|
18 |
Комнаты личной гигиены |
3 |
5 |
5+5 |
|
19 |
Умывальная |
4 (на 2 умывальника с ножной ванной) |
6 (на 3 умывальника с ножной ванной) |
10 (на 5 умывальников с ножной ванной) |
|
20 |
Кабинет инструктора по трудотерапии |
- |
14 |
14+14 |
|
|
Итого: |
268 |
523 |
759 |
6.26. Рекомендуемый состав и площади помещений геронтопсихиатрического отделения на 50 коек приведены в таблице А1 приложения А.
6.27. Медицинская группа помещений, обслуживающая все структурные подразделения, состоит из отделения врачебно-консультативного приема, диагностического (кабинета) отделения, лечебно-восстановительного отделения.
6.28. Число и состав кабинетов врачебного приема определяются заданием на проектирование для каждого конкретного случая.
6.29. Лечебно-восстановительное отделение планировочно подразделяется на три группы:
- помещения физиотерапии,
- помещения водолечения и грязелечения,
- помещения ЛФК и массажа.
Это связано с различными требованиями к уровню влажности, электробезопасности и отделке помещений.
6.30. Для предупреждения травматизма пожилых людей одним из основных требований к организации предназначенных для них групп помещений и отдельных помещений является:
- требование обеспечения видимости пациента персоналом в помещениях водолечения, физиотерапии и др., получение процедур в которых в обычных условиях связано с временным отсутствием персонала,
- требование обеспечения доступности персонала в помещения, предназначенные для уединенного пребывания пациентов.
6.31. В целях обеспечения наблюдения за состоянием больного лечебные ванны устанавливаются так, чтобы дневной свет падал на его лицо.
6.32. Ширина прохода из раздевалки в кабинеты водолечения, ЛФК и др. не может быть менее 1м.
6.33. Ширина кабины ванного зала должна быть не менее 2 м, но не менее одной кабины каждого профиля должно быть шириной не менее 2,3 м, что обеспечивает пользование кабиной больных с ограниченной подвижностью суставов.
6.34. При гидромассажной ванне целесообразно устанавливать подъемник для помещения в ванну больных с ограниченной подвижностью суставов и ослаблением мышечного тонуса.
6.35. Площадь кабины для приема радоновых ванн по соображениям техники безопасности должна быть не менее 10-12 м2.
6.36. Гидромассажную ванну следует устанавливать так, чтобы к ней был обеспечен подход с трех сторон.
6.37. Для улучшения обзора персоналом за состоянием лиц старших возрастов лечебные ванны должны размещаться только в общем зале.
6.38. Для лечения искусственными сероводородными ваннами следует предусматривать отдельное помещение в тупиковом отсеке, изолированном от других процедурных комнат.
6.39. Примерный состав и площади помещений медицинского назначения рекомендуется принимать по таблице 6.8.
Таблица 6.8
|
№ п.п. |
Наименование помещений |
Мощность отделения (посещений в смену) |
||
|
до 100 |
от 100 до 200 |
свыше 200 |
||
|
Площадь, м2 (не менее) |
||||
|
1. Входная группа помещений |
||||
|
1.1 |
Вестибюль с аптечным киоском |
18 |
21 |
34 |
|
1.2 |
Гардероб для посетителей и персонала |
6 |
11 |
16 |
|
1.3 |
Регистратура с картохранилищем и медицинским архивом |
12 |
10+12 |
10+12 |
|
1.4 |
Уборная для посетителей |
6 |
6 |
6+6 |
|
|
Итого: |
42 |
54 |
84 |
|
2. Отделение врачебно-консультативного приема |
||||
|
2.1 |
Кабинет заведующего отделением |
- |
- |
16 |
|
2.2 |
Кабинет врача терапевта-геронтолога |
15×2 |
15×3 |
15×4 |
|
2.3 |
Кабинет эндокринолога |
- |
- |
15 |
|
2.4 |
Кабинет врача-хирурга |
18 |
18 |
18 |
|
2.5 |
Кабинет врача травматолога-ортопеда |
- |
- |
18 |
|
Процедурная-перевязочная |
|
|
22 |
|
|
2.6 |
Кабинет врача-невропатолога |
15 |
15 |
15 |
|
2.7 |
Процедурная иглорефлексотерапии со стерилизационной |
20+6 |
20+6 |
20+6 |
|
Кабинет врача |
15 |
15 |
15 |
|
|
2.8 |
Психотерапевтический кабинет: |
|
|
|
|
кабинет психотерапевта, кабинет индивидуальной терапии |
12 |
12 |
12 |
|
|
лаборантская для психологических исследований |
20 |
20 |
20 |
|
|
архив при лаборантской |
12 |
12 |
12 |
|
|
кабинет групповой психотерапии со шлюзом |
24+2 |
24+2 |
24+2 |
|
|
2.9 |
Кабинет врача-гинеколога (с двумя кабинами для раздевания) |
|
18+3+3 |
18+3+3 |
|
Процедурный кабинет с гинекологическим креслом (с двумя кабинами для раздевания) |
18+3+3 |
18+3+3 |
||
|
2.10 |
Кабинет врача-оториноларинголога со звукоизолированной кабиной |
|
18+8 |
18+8 |
|
Кабинет для исследования вестибулярного аппарата |
18 |
18 |
||
|
2.11 |
Кабинет врача-офтальмолога с темной комнатой |
- |
18+8 |
18+8 |
|
2.12 |
Кабинет врача-дерматолога со шлюзом |
- |
- |
18+2 |
|
Процедурная со сливом |
|
|
20 |
|
|
2.13 |
Стоматологический кабинет |
24 |
24 |
24 |
|
2.14 |
Кабинет специалиста по социальной работе |
12 |
12 |
12+12 |
|
2.15 |
Кабинет юридической помощи |
12 |
12 |
12 |
|
2.16 |
Кладовая хранения чистого белья |
4 |
4 |
4 |
|
2.17 |
Кладовая хранения грязного белья |
4 |
4 |
4 |
|
2.18 |
Кладовая хранения предметов уборки помещений |
2 |
2 |
2 |
|
2.19 |
Комната личной гигиены персонала |
3 |
3 |
3 |
|
2.20 |
Уборные |
3+3 |
3+3 |
3+3 |
|
|
Итого: |
263 |
338 |
519 |
|
3. Диагностическое отделение |
||||
|
3.1. Отделение функциональной диагностики |
||||
|
3.1.1 |
Кабинет зав. Отделением |
- |
12 |
12 |
|
3.1.2 |
Кабинет функциональной диагностики: |
|
- |
- |
|
кабинет врача |
12 |
|
|
|
|
диагностический кабинет |
20 |
|
|
|
|
кабина для переодевания |
4 |
|
|
|
|
3.1.3 |
Кабинет электроэнцефалографии, реоэлектроэнцефалографии, миографии, полиэлектрокардиографии: |
- |
|
|
|
диагностический кабинет |
|
18 |
18 |
|
|
экранированная кабина |
|
8 |
8 |
|
|
кабина для переодевания |
|
4 |
4 |
|
|
3.1.4 |
Кабинет исследования внешнего дыхания |
- |
- |
20 |
|
3.1.5 |
Кабинет исследования нарушений регионарного кровообращения и функциональных исследований желудка: |
|
|
|
|
диагностический кабинет |
24 |
|||
|
кабина для переодевания |
4 |
|||
|
3.1.6 |
Кабинет ультразвуковых исследований: |
|
|
|
|
диагностический кабинет |
18+18 |
18+18 |
||
|
кабина для переодевания |
4+4 |
4+4 |
||
|
3.1.7 |
Кабинет тепловидения: |
- |
- |
|
|
диагностический кабинет |
|
|
18 |
|
|
кабина для переодевания и адаптации |
|
|
4 |
|
|
помещение кондиционера |
|
|
6 |
|
|
фотокомната |
|
|
6 |
|
|
помещение для хранения жидкого азота |
|
|
4 |
|
|
кабинет врача |
|
|
10 |
|
|
архив |
|
|
6 |
|
|
3.1.8 |
Кабинет длительного ЭКГ-контроля |
- |
12 |
12 |
|
3.1.9 |
Кабинет психологических исследований |
16 |
16 |
- |
|
3.1.10 |
Кладовая переносной аппаратуры |
10 |
10 |
10 |
|
3.1.11 |
Ожидальная |
6 |
10 |
14 |
|
3.1.12 |
Кабинет заведующего отделением |
- |
12 |
12 |
|
3.1.13 |
Ординаторская |
- |
12 |
12 |
|
3.1.14 |
Комната старшей медсестры |
- |
12 |
12 |
|
3.1.15 |
Кабинет инженера: |
- |
- |
|
|
кабинет |
|
|
12 |
|
|
мастерская для текущего ремонта и профилактики оборудования |
|
|
18 |
|
|
3.1.16 |
Помещение хранения предметов уборки с трапом, краном, сушкой |
- |
4 |
4 |
|
3.1.17 |
Уборные |
3+3 |
3+3 |
3+3 |
|
|
Итого: |
74 |
176 |
292 |
|
3.2. Клинико-диагностические лаборатории |
||||
|
3.2.1 |
Кабинет заведующего лабораторией |
- |
- |
10 |
|
3.2.2 |
Помещение приема, регистрации, сортировки проб |
- |
- |
4+6 |
|
3.2.3 |
Помещение взятия проб крови |
- |
- |
9 |
|
3.2.4 |
Ожидальная |
- |
- |
3 |
|
|
Клинико-диагностическая группа |
|
|
|
|
3.2.5 |
Общеклиническая лаборантская |
- |
- |
12 |
|
3.2.6 |
Гематологическая лаборантская |
- |
- |
12 |
|
3.2.7 |
Микроскопическая |
- |
_ |
14 |
|
3.2.8 |
Помещение для окраски мазков |
- |
- |
12 |
|
|
Биохимическая группа |
|
|
|
|
3.2.8 |
Лаборантская биохимическая |
- |
. |
12 |
|
3.2.10 |
Лаборантская для гормональных исследований |
- |
- |
12 |
|
3.2.11 |
Помещение для работы с пламенным фотометром |
- |
- |
8 |
|
3.2.12 |
Помещение для работы с автоанализаторами |
- |
- |
13 |
|
|
Бактериологическая группа |
|
|
|
|
3.2.13 |
Помещение приема и регистрации анализов |
- |
- |
6 |
|
3.2.14 |
Лаборантская для санитарно-бактериологических исследований |
- |
- |
12+12 |
|
3.2.15 |
Бокс с предбоксом |
- |
- |
8 |
|
3.2.16 |
Лаборантская для серологических исследований |
- |
- |
12 |
|
3.2.17 |
Автоклавная |
- |
- |
10+10 |
|
3.2.18 |
Моечная |
- |
- |
12 |
|
3.2.19 |
Средоварочная |
- |
- |
8 |
|
3.2.20 |
Помещение хранения сред |
- |
- |
4 |
|
|
Итого: |
|
|
223 |
|
|
Общие помещения |
|
|
|
|
3.2.21 |
Центрифужная |
- |
- |
21 |
|
3.2.22 |
Моечная |
- |
- |
12 |
|
3.2.23 |
Весовая |
- |
- |
12 |
|
3.2.24 |
Дистилляционная |
- |
- |
6 |
|
3.2.25 |
Материальная для хранение запасных частей, посуды |
- |
- |
8 |
|
бельевая |
|
|
4 |
|
|
3.2.26 |
Помещения хранения: |
- |
- |
|
|
ядовитых веществ |
|
|
6 |
|
|
легковоспламеняющихся и горючих жидкостей |
|
|
6 |
|
|
кислот и щелочей |
|
|
4+4 |
|
|
3.2.27 |
Помещение приготовления реактивов |
- |
- |
12 |
|
3.2.28 |
Комната контроля качества (для клинико-гематологической и биохимической групп) |
- |
- |
12 |
|
3.2.29 |
Гардероб домашней и рабочей одежды |
- |
- |
12 |
|
3.2.30 |
Душевая с кабиной личной гигиены |
- |
- |
3+3 |
|
3.2.31 |
Уборная |
- |
- |
3 |
|
3.2.32 |
Кладовая дезинфицирующих средств |
- |
- |
3 |
|
3.2.33 |
Комната персонала |
- |
- |
12 |
|
3.2.34 |
Кладовая предметов уборки |
- |
- |
4 |
|
|
Итого: |
|
|
147 |
|
3.3. Патопсихологическая лаборатория |
||||
|
3.3.1 |
Кабинет заведующего |
- |
- |
15 |
|
3.3.2 |
Кабинет психолога |
- |
- |
12 |
|
3.3.3 ' |
Смотровой кабинет |
- |
- |
10+10 |
|
3.3.4 |
Кабинет инструментальных методов исследования |
- |
- |
20 |
|
3.3.5 |
Помещение для хранения документации и материалов |
- |
- |
12 |
|
3.3.6 |
Ожидальная |
- |
- |
10 |
|
3.3.7 |
Уборная для больных |
- |
- |
3+3 |
|
3.3.8 |
Уборная для персонала |
- |
- |
3 |
|
|
Итого: |
|
|
98 |
|
|
Всего по диагностическому отделению: |
74 |
176 |
760 |
|
4. Лечебно-восстановительное отделение |
||||
|
14.1. Специализированные лечебные кабинеты |
||||
|
4.1.1 |
Кабинет иглорефлексотерапии: |
- |
- |
|
|
кабинет врача |
- |
- |
12 |
|
|
процедурная |
- |
- |
18 |
|
|
4.1.2 |
Фитобар: |
- |
- |
|
|
подсобное помещение |
- |
10 |
10 |
|
|
торговый зал |
- |
18 |
18 |
|
|
|
Итого: |
- |
28 |
58 |
|
4.2. Физиотерапевтическое отделение |
||||
|
|
Электросвето- и теплолечение |
|
|
|
|
4.2.1 |
Кабинет электролечения с местом для медсестры (гальванизация, электрофорез, аппарат франклинизации, дарсонвализации, диатермии), 6 м2 на 1 кушетку |
12+6 |
30+6 |
54+6 |
|
4.2.2 |
Кабинет для светолечения (кварцевая лампа, соллюкс, световая ванна и др.) |
12 |
18 |
24 |
|
4.2.3 |
Помещение для обработки прокладок при кабинетах электро-светолечения |
8 |
8 |
8 |
|
4.2.4 |
Кабинет УВЧ |
- |
12 |
24 |
|
4.2.5 |
Кабинет КВЧ |
- |
12 |
12+12 |
|
4.2.6 |
Кабинет лечения электросном с аппаратной и шлюзом |
12+6+2 |
24+6+2 |
(24+6+2)×2 |
|
4.2.7 |
Комната отдыха |
12 |
24 |
42 |
|
4.2.8 |
Кабинет аэрофитотерапии |
- |
16 |
16 |
|
4.2.9 |
Кабинет лазерной терапии |
- |
- |
14 |
|
4.2.10 |
Место для ожидания процедур |
8 |
22 |
48 |
|
|
Итого: |
65 |
180 |
300 |
|
4.2.11 |
Оксигенотерапия |
|
|
|
|
4.2.12 |
Палата кислородотерапии |
- |
12 |
12 |
|
4.2.13 |
Комната для приема кислородных коктейлей на 4 места |
- |
- |
12 |
|
4.2.14 |
Ожидальная |
- |
2 |
4 |
|
|
Итого: |
- |
14 |
24 |
|
4.3. Отделение водолечения и лечебной физкультуры |
||||
|
4.3.1 |
Водолечение |
|
|
|
|
4.3.2 |
Ванный зал с ваннами для отсеков: |
|
|
|
|
зал (8 м2 на 1 ванну) |
16 |
24 |
32 |
|
|
кабина для раздевания 2 м2 (по 2 на каждую ванну) |
8 |
12 |
16 |
|
|
4.3.3 |
Помещение для ванны подводного душа-массажа с кабинами для раздевания |
10+4 |
16+4 |
16+4 |
|
4.3.4 |
Зал лечебных душей: |
|
|
|
|
- душевой зал |
5 |
10 |
25 |
|
|
- раздевальная |
10 |
10 |
10 |
|
|
4.3.5 |
Помещения радоновых ванн: |
- |
- |
|
|
ванный зал и душ |
|
|
16+3 |
|
|
помещение для приготовления растворов |
|
|
10 |
|
|
кабина для раздевания |
|
|
4 |
|
|
4.3.6 |
Комната для персонала с душевой кабиной |
- |
- |
8+3 |
|
4.3.7 |
Ожидальная при кабинетах водолечения |
5 |
8 |
14 |
|
|
Итого: |
58 |
84 |
161 |
|
4.4. Лечебная физкультура, массаж |
||||
|
4.4.1 |
Зал ЛФК для занятий малых групп с раздевальной и инвентарной |
20 (на 4 чел.) |
45 (на 9 чел.) |
60 (на 12 чел.) |
|
4.4.2 |
Зал для занятий на тренажерах |
- |
30 |
45 |
|
|
Кабинеты лечебного массажа: |
|
|
|
|
4.4.3 |
Процедурная |
12 |
16 |
16 |
|
4.4.4. |
Кабинет баромассажа |
- |
- |
14 |
|
4.4.5 |
Раздевальные |
6 |
12 |
16 |
|
4.4.6 |
Душевые |
5 |
5 |
10 |
|
4.4.7 |
Бассейн |
- |
90 (на 5 чел) |
135 (на 7 чел.) |
|
4.4.8 |
Инструкторская-инвентарная |
9 |
12 |
12 |
|
4.4.9 |
Помещение для ожидания |
6 |
26 |
37 |
|
4.4.10 |
Комната отдыха при залах ЛФК и бассейне |
12 |
28+16 |
38+22 |
|
|
Итого: |
70 |
280 |
405 |
|
4.5. Общие помещения отделения |
||||
|
4.5.1 |
Кабинет заведующего отделением |
12 |
12 |
12 |
|
4.5.2 |
Кабинет врача-физиотерапевта |
- |
- |
12 |
|
4.5.3 |
Кабинет врача ЛФК |
- |
- |
12 |
|
4.5.4 |
Кабинет инструктора-методиста ЛФК |
- |
10 |
10 |
|
4.5.5 |
Кладовая чистого белья |
4 |
4 |
4 |
|
4.5.6 |
Кладовая предметов уборки с трапом, краном, сушкой, хранением дезсредств и временным хранением грязного белья |
4 |
6 |
6 |
|
4.5.7 |
Кладовая переносной аппаратуры |
12 |
12 |
18 |
|
4.5.8 |
Комната персонала |
8 |
10 |
12 |
|
4.5.9 |
Уборные для больных |
4 |
4+4 |
6+6 |
|
|
Итого: |
44 |
70 |
98 |
|
|
Всего по лечебно-восстановительному отделению: |
167 |
376 |
641 |
|
|
Всего: |
546 |
942 |
2001 |
6.40. В структуре социально-реабилитационного отделения следует предусматривать зрительный зал с фойе, библиотеку-читальню, клубные помещения, кружковые комнаты.
6.41. Снижение подвижности части лиц старшего поколения, ограничивающие их контакты с природой, обусловливает необходимость организации «зимнего сада», который одновременно может выполнять функции трудотерапии для желающих выращивать растения.
6.42. Рекомендуется использовать универсальную кружковую комнату, стандартный набор мебели в которой соответствуют методам арттерапии, используемым для восстановления речи в постинсультных состояниях и при различных психических заболеваниях, свойственных лицам старшего поколения. Это должны быть помещения для хоровых занятий и для различных видов ручного творчества (лепка, рисование, резьба, вышивка и др.)
6.43. Библиотека-читальня должна обеспечивать открытый доступ к
книгам и организовываться с возможностью продвижения посетителей (в т.ч. на креслах-колясках) вдоль стеллажей с книгами. При этом расстояние между стеллажами должно быть не менее
6.44. Число мест в зрительном зале необходимо принимать в расчете на 100 % способных к частичному самообслуживанию.
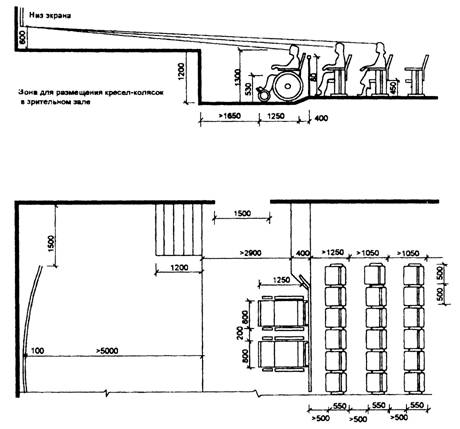
В зрительном зале должны быть установлены полумягкие кресла с неоткидными сиденьями, неподвижно прикрепленные к полу. Для передвигающихся на креслах-колясках следует устраивать свободные площадки перед эстрадой или в конце
зала и дополнительный проем-выезд из зала шириной не менее
6.45. Примерный состав и площади социально-реабилитационного отделения приведены в таблице 6.9.
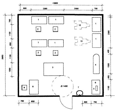
Таблица 6.9
|
№ п.п. |
Наименование помещений |
Площадь,
м2 |
Количество |
|
1 |
Зрительный зал с эстрадой |
80 |
1 |
|
2 |
Фойе при зале |
24 |
1 |
|
3 |
Библиотека |
28 |
1 |
|
4 |
Кружковые комнаты |
36 |
2 |
|
5 |
Кабинет арттерапии |
36 |
1 |
|
6 |
Гостиная |
36 |
1 |
|
7 |
Зимний сад с аквариумом |
18 |
1 |
|
8 |
Фитобар при гостиной |
12 |
1 |
|
9 |
Кабинет юриста |
12 |
1 |
|
10 |
Кладовая предметов уборки |
4 |
1 |
|
11 |
Уборные |
3 |
2 |
|
12 |
Спортивный зал |
36 |
1 |
|
13 |
Инвентарная |
6 |
1 |
|
|
Итого: |
334 |
1 |
6.46. Предусматриваемые в геронтологических центрах лечебно-трудовые мастерские необходимо размещать на первом этаже и отделять от других помещений противопожарными стенами и перекрытием или размещать в отдельном корпусе, соединенным с основным зданием теплым переходом. Мастерские должны иметь отдельный выход.
Количество мест в лечебно-трудовых мастерских, их профиль, состав и площади помещений определяются заданием на проектирование.
Площади помещений мастерских следует принимать из расчета
Площади кладовых готовой продукции, материалов и инструментов следует принимать из расчета
6.47. Примерный состав и площади административно-хозяйственных помещений геронтологического центра приведены в таблице 6.10.
Таблица 6.10
|
№ |
Наименование помещений |
Площадь
по- |
|
1 |
Кабинет директора центра |
24 |
|
2 |
Приемная директора центра |
12 |
|
3 |
Кабинет заместителя директора по лечебной части |
18 |
|
4 |
Кабинет заместителя директора по АХЧ |
10 |
|
5 |
Кабинет старшей медицинской сестры |
12 |
|
6 |
Комната инженерно-технического персонала |
10+10 |
|
7 |
Комната сестры-хозяйки |
9 |
|
8 |
Бухгалтерия + касса |
20+8 |
|
9 |
Канцелярия |
12 |
|
10 |
Буфет для персонала: |
|
|
зал с раздаточной |
48 |
|
|
подсобное помещение |
10 |
|
|
моечная столовой посуды |
10 |
|
|
11 |
Комната личной гигиены с душевой кабиной |
3+3 |
|
12 |
Уборные |
3×4 |
|
13 |
Помещение для занятий с персоналом (конференц-зал) |
80 |
|
14 |
Комната для младшего медицинского персонала |
9 |
|
15 |
Кладовая для хранения чистого белья |
4 |
|
16 |
Кладовая для хранения грязного белья |
4 |
|
17 |
Кладовая хозяйственного инвентаря |
24 |
|
18 |
Мастерская ремонтно-эксплуатационной службы |
28 |
|
19 |
Кладовая предметов уборки с поливочным краном, сушкой и трапом |
4 |
|
20 |
Центральное стерилизационное отделение: |
|
|
помещение приема и подготовки материалов к стерилизации |
12 |
|
|
стерилизационная |
18 |
|
|
помещение хранения и выдачи материалов |
12 |
|
|
|
Итого: |
426 |
6.48. Площадь вестибюля-гардеробной для посетителей дома сестринского ухода рекомендуется принимать из расчета не менее
6.49. Площадь гардеробной уличной одежды для персонала следует принимать не менее
6.50. Примерный состав и площади помещений вестибюльной группы дома сестринского ухода на 200 коек приведены в таблице 6.11.
Таблица 6.11
|
№ |
Наименование помещений |
Площадь, м2 |
количество |
|
1 |
Вестибюль-гардеробная для посетителей |
70 |
1 |
|
2 |
Гардеробная уличной одежды персонала |
10 |
1 |
|
3 |
Помещение для бесед посетителей с лечащими врачами |
10 |
1 |
|
4 |
Помещение для приема передач больным |
10 |
1 |
|
5 |
Справочная |
4 |
1 |
|
6 |
Киоск |
6 |
1 |
|
7 |
Уборная для посетителей |
3 |
2 |
|
|
Итого: |
116 |
|
6.51. Приемное отделение следует размещать на первом этаже здания дома сестринского ухода.
6.52. Поток поступающих больных рекомендуется разделять на два: мужской и женский. На каждый поток следует предусматривать одну смотровую и один санпропускник.
Примерный состав и площади приемного отделения приведены в таблице 6.12.
Таблица 6.12
|
№ |
Наименование помещений |
Площадь,
м2 |
Количество |
|
1 |
Вестибюль-ожидальная |
18 |
1 |
|
2 |
Регистратура |
8 |
1 |
|
з |
Кладовая для временного хранения вещей больных |
8 |
1 |
|
4 |
Смотровая с гинекологическим креслом |
18 |
1 |
|
5 |
Смотровая без гинекологического кресла |
12 |
1 |
|
6 |
Санитарный пропускник для больных: |
|
|
|
раздевальная |
6 |
2 |
|
|
ванная с душем и подъемником |
14 |
2 |
|
|
одевальная |
6 |
2 |
|
|
7 |
Процедурная |
12 |
1 |
|
8 |
Кабинет заведующего (врача) приемным отделением |
10 |
1 |
|
9 |
Комната персонала |
6 |
1 |
|
10 |
Помещение для хранения предметов уборки |
4 |
1 |
|
11 |
Уборная для больных |
3 |
2 |
|
12 |
Уборная для персонала |
3 |
1 |
|
13 |
Помещение (место) для хранения каталок и кресел-колясок |
10 |
1 |
|
|
Итого: |
164 |
|
6.53. Площадь однокоечных палат (без учета площади шлюзов и санузлов) следует принимать не менее
Площадь палат на 2 койки и более (без учета площади шлюзов и санузлов) следует принимать из расчета
Палаты следует проектировать со шлюзом, встроенными шкафами и санитарным узлом (с входом из шлюза), состоящим из уборной, умывальника и душа.
Вместимость палат домов сестринского ухода рекомендуется не более 3-х коек.
Соотношение палат различной коечной вместимости определяется заданием на проектирование.
6.54. Посты дежурных медсестер следует принимать из расчета на один пост не более 25 пациентов.
6.55. Площадь помещений дневного пребывания пожилых людей следует принимать из расчета
6.56. В состав палатной секции должны быть включены кабинет массажа и кабинет лечебной физкультуры для индивидуальных занятий.
6.57. Площадь столовой для пожилых людей следует принимать из
расчета
При организации питания в палатах допускается проектирование палатного отделения без столовой.
6.58. Примерный состав и площади помещений палатного отделения на 50 коек приведены в таблице 6.13.
Таблица 6.13
|
№ |
Наименование помещений |
Площадь, м2 |
Количество |
|
А. Палатная секция на 25 коек |
|||
|
1 |
Палата на 1 койку со шлюзом, встроенными шкафами и санитарным узлом |
20 |
3 |
|
2 |
Палата на 2 койки со шлюзом, встроенными шкафами и санитарным узлом |
24 |
5 |
|
3 |
Палата на 3 койки со шлюзом, встроенными шкафами и санитарным узлом |
33 |
4 |
|
4 |
Пост дежурной медицинской сестры |
6 |
1 |
|
5 |
Процедурная |
12 |
1 |
|
6 |
Клизменная (со шлюзом) |
10 |
1 |
|
7 |
Ванная с подъемником |
14 |
1 |
|
8 |
Помещение для дневного пребывания больных |
25 |
1 |
|
9 |
Кабинет массажа |
12 |
1 |
|
10 |
Кабинет лечебной физкультуры для индивидуальных занятий |
12 |
1 |
|
11 |
Помещение для мытья и стерилизации суден, мытья и сушки клеенок |
8 |
1 |
|
12 |
Помещение для сортировки и временного хранения грязного белья |
4 |
1 |
|
13 |
Помещение для хранения дезсредств и предметов уборки с трапом, краном и сушкой |
4 |
1 |
|
|
Итого: |
419 |
|
|
Б. Помещения общие на отделение |
|||
|
14 |
Кабинет заведующего |
12 |
1 |
|
15 |
Кабинет врача |
10 |
1 |
|
16 |
Комната старшей медицинской сестры с местом для хранения медикаментов |
12 |
1 |
|
17 |
Комната сестры-хозяйки с помещением для временного хранения грязного белья |
16 |
1 |
|
18 |
Процедурная |
18 |
1 |
|
19 |
Помещение для хранения переносной аппаратуры |
12 |
1 |
|
20 |
Столовая |
30 |
1 |
|
21 |
Буфетная с моечной |
18 |
1 |
|
22 |
Помещение для индивидуального разогрева домашней пищи |
6 |
1 |
|
23 |
Помещение для богослужения |
16 |
1 |
|
24 |
Комната для отдыха добровольных помощников |
12 |
1 |
|
25 |
Кладовые: |
|
1 |
|
чистого белья |
4 |
|
|
|
хранения мягкого инвентаря |
10 |
|
|
|
26 |
Помещение (место) для хранения кресел-колясок |
10 |
1 |
|
27 |
Комната психологической и психоэмоциональной разгрузки персонала (со шлюзом) |
18 |
1 |
|
28 |
Комната персонала |
10 |
1 |
|
29 |
Душевая персонала |
3 |
1 |
|
30 |
Уборная для персонала (со шлюзом и умывальником) |
3 |
1 |
|
|
Уборная для посетителей (со шлюзом и умывальником) |
3 |
1 |
|
|
Итого: |
219 |
|
|
|
Всего по палатному отделению: |
1057 |
|
6.59. Специализированные и вспомогательные кабинеты и помещения рекомендуется располагать на 1-м этаже здания домов сестринского ухода.
6.60 Примерный состав и площади специализированных и вспомогательных кабинетов и помещений приведены в таблице 6.14.
Таблица 6.14
|
№ |
Наименование помещений |
Площадь, м2 |
Количество |
|
1 |
Лаборатория срочных анализов |
16 |
1 |
|
2 |
Кабинет врача функциональной (ЭКГ) диагностики |
12 |
1 |
|
3 |
Кабинет психотерапевта |
12 |
1 |
|
4 |
Кабинет врача-консультанта |
12 |
2 |
|
5 |
Кабинет социального работника (юриста) |
12 |
1 |
|
6 |
Централизованная стерилизационная*: |
|
|
|
помещение приема и подготовки инструментов и материалов |
9 |
1 |
|
|
моечная |
10 |
1 |
|
|
стерилизационная |
12 |
1 |
|
|
помещение хранения и выдачи материалов |
9 |
1 |
|
|
7 |
Аптечный распределительный пункт*: |
|
|
|
распаковочная |
8 |
1 |
|
|
комната для хранения и выдачи лекарственных средств |
12 |
1 |
|
|
помещение для хранения наркотических средств |
4 |
1 |
|
|
8 |
Помещение для временного хранения трупов с холодильной установкой (с отдельным наружным выходом)* |
18 |
1 |
|
|
Итого: |
158 |
|
* Предусматривается для домов сестринского ухода, расположенных вне территории больниц.
6.61. Примерный состав и площадь служебно-бытовых помещений дома сестринского ухода на 200 коек приведены в таблице 6.15. Площадь конференц-зала определяется из расчета
Площадь гардеробной для домашней одежды определяется из расчета
Таблица 6.15
|
№ п.п. |
Наименование помещений |
Площадь,
м2 |
Количество |
|
1 |
Кабинет главного врача (директора) |
20 |
1 |
|
2 |
Приемная |
10 |
1 |
|
3 |
Кабинет заместителя главного врача (директора) по лечебной части |
15 |
1 |
|
4 |
Кабинет заместителя главного врача (директора) по административно-хозяйственной части |
10 |
1 |
|
5 |
Комната главной медицинской сестры |
10 |
1 |
|
6 |
Комната благотворительных организаций |
12 |
1 |
|
7 |
Кабинет медицинской статистики |
12 |
1 |
|
8 |
Бухгалтерия с кассой |
18 |
1 |
|
9 |
Медицинский архив |
60 |
1 |
|
10 |
Помещение пожарного поста |
15 |
1 |
|
11 |
Комната личной гигиены с душевой кабиной |
6 |
1 |
|
12 |
Уборная для персонала |
3 |
2 |
|
|
Итого: |
194 |
|
6.62. Состав и площади помещений выездной службы определяются заданием на проектирование.
Примерный состав и площади помещений выездной службы приведены в таблице 6.16.
Таблица 6.16
|
№ |
Наименование помещений |
Площадь,
м2 |
Количество |
|
1 |
Кабинет заведующего |
12 |
1 |
|
2 |
Комната старшей медицинской сестры с местом для хранения медикаментов |
12 |
1 |
|
3 |
Комната выездных бригад с местом для диспетчера: |
|
|
|
на 1 бригаду |
22 |
1 |
|
|
на 2 бригады |
24 |
1 |
|
|
на 3 бригады |
38 |
1 |
|
|
4 |
Комната шоферов |
10 |
1 |
|
5 |
Уборная для персонала |
3 |
1 |
6.63. Состав и площади помещений службы приготовления пищи зависят от мощности стационара дома сестринского ухода и определяются заданием на проектирование в соответствии с Пособием по проектированию учреждений здравоохранения (к СНиП 2.08.02).
6.64. Состав и площади центральной бельевой, кладовых, складских помещений, прачечной, дезкамерного блока, помещений службы эксплуатации, мастерских и других помещений хозяйственного назначения следует определять заданием на проектирование по расчету исходя из мощности дома сестринского ухода и местных условий.
6.65. Здания хосписов должны быть не выше двух этажей с размещением стационара на первом этаже.
6.66. Структура и состав помещений хосписов определяются заданием на проектирование с учетом задач и функций этих учреждений.
6.67. Площадь вестибюля-гардеробной для посетителей рекомендуется принимать из расчета не менее
6.68. Площадь палат на 1 койку следует принимать не менее
6.69. Вместимость палат стационаров хосписов должна быть не более 4 коек.
6.70. Посты дежурных медицинских сестер следует проектировать не менее
6.71. Площадь комнаты выездных бригад с местом для диспетчера в зависимости от количества бригад рекомендуется принимать по таблице 6.16.
6.72. Службу приготовления пищи следует проектировать в обособленных отсеках зданий хосписов с отдельными служебными и хозяйственными входами и технологической связью с палатами.
6.73. Примерная структура, состав и площади помещений хосписа со стационаром на 30 коек приведены в таблице А.2 приложения А.
7.1. Инженерное оборудование геронтологических центров, домов сестринского ухода, хосписов (лифты и подъемники, отопление, вентиляция, кондиционирование воздуха, водоснабжение, канализация, газоснабжение, снабжение медицинскими газами, трубопроводы вакуумной сети и сжатого воздуха, электротехнические устройства и искусственное освещение, противопожарная и охранная сигнализация) следует проектировать в соответствии с требованиями действующих нормативных документов в строительстве и Пособия по проектированию учреждений здравоохранения (к СНиП 2.08.02).
7.2. В жилых комнатах и палатах следует предусматривать приточно-вытяжную вентиляцию с обменом воздуха на одного человека 40 м3/час. Размещать приток и вытяжку следует так, чтобы свежий воздух промывал помещение (по диагонали).
7.3 Краны в умывальниках и душах должны быть с термостатическими регуляторами, исключающими подачу воды температурой более 50°С.
7.4. В курительных следует предусматривать интенсивный воздухообмен из условия подачи свежего воздуха в объеме не менее
7.5. Нагревательные приборы систем центрального отопления, трубы отопительной, газовой, водопроводной или канализационной системы, а также любые заземленные предметы в помещениях должны быть закрыты щитами из электроизолирующих материалов по всему протяжению и до высоты, недоступной прикосновению больных и персонала во время проведения процедур.
7.6. Давление горячей и холодной воды должно быть одинаковым (2-2,5 атмосферы).
7.7. Электрическая проводка и пусковые устройства в помещениях, связанных с проведением водных процедур, должны быть выполнены в герметическом исполнении.
7.8. При организации углекислых, кислородных, азотных, жемчужных ванн для баллонов с углекислотой и азотом следует предусматривать место вне помещения для ванн на расстоянии не менее
7.9. В помещении для сероводородных ванн следует предусматривать самостоятельную приточно-вытяжную вентиляцию. Вытяжная труба для выброса воздуха должна быть выведена выше конька кровли здания не менее чем на
Вся арматура (краны, ручки и т.д.) должна быть из коррозионно-устойчивых материалов (пластмассы и др.). В помещении для приготовления растворов следует предусматривать вытяжной шкаф. Скорость движения воздуха в рабочем проеме вытяжного шкафа должна быть не менее 0,7 м/сек.
7.10. В помещении радоновых ванн следует предусматривать вытяжной
шкаф для хранения порционных склянок с раствором радона. Место забора
воздуха для вентиляции должно находиться на расстоянии не менее
7.11. Помещение подготовки прокладок при кабинетах электросветолечения и помещение для подогрева парафина и озокерита при кабинетах теплолечения должны быть изолированы и иметь свою вентиляцию (вытяжной шкаф).
Таблица А.1
|
№ |
Наименование помещений |
Площадь,
м2 |
Количество |
|
|
Шлюз при входе в отделение |
4 |
|
|
|
1. Палатная секция на 25 коек для острых больных |
|
|
|
1.1 |
Отсек на 12 коек для больных с ограниченным режимом: |
|
|
|
палата на 4 койки |
36 |
3 |
|
|
комната для приема пищи |
16 |
1 |
|
|
уборная с умывальной (3+3) |
6 |
1 |
|
|
пост медицинской сестры |
6 |
1 |
|
|
1.2 |
Палата на 1 койку со шлюзом, уборной и душевой в шлюзе (9+3+3+2) |
17 |
1 |
|
1.3 |
Палата на 2 койки |
18 |
2 |
|
1.4 |
Палата на 4 койки |
32 |
2 |
|
1.5 |
Пост дежурной медицинской сестры |
6 |
1 |
|
1.6 |
Процедурная с двумя изолированными зонами - стерильной и нестерильной |
24 |
1 |
|
1.7 |
Клизменная со шлюзом и уборной |
8+2+2 |
1 |
|
1.8 |
Ванная комната с душем и подъемником |
12+2 |
1 |
|
1.9 |
Уборные |
3 |
2 |
|
1.10 |
Умывальная на 3 умывальника с ножной ванной |
8 |
1 |
|
1.11 |
Помещения для: |
|
|
|
мытья и стерилизации суден, горшков, мытья и сушки клеенок |
8 |
1 |
|
|
сортировки и временного хранения грязного белья |
4 |
1 |
|
|
хранения предметов уборки с трапом, поливочным краном и сушкой |
4 |
1 |
|
|
1.12 |
Кладовая чистого белья |
4 |
1 |
|
1.13 |
Помещение дневного пребывания больных |
22 |
1 |
|
1.14 |
Комната личной гигиены |
5 |
1 |
|
1.15 |
Курительная |
8 |
1 |
|
1.16 |
Столовая |
24 |
1 |
|
1.17 |
Блок интенсивной терапии на 2 койки (7+7+4) |
18 |
1 |
|
1.18 |
Зал ЛФК для занятий малых групп |
36 |
1 |
|
1.19 |
Кабинет массажа на 1 кушетку |
12 |
1 |
|
|
Итого: |
465 |
|
|
|
2. Отделение «Милосердие» на 25 коек |
|
|
|
2.1 |
Палата на 1 койку со шлюзом, уборной и душевой в шлюзе (9+3+3+2) |
17 |
3 |
|
2.2 |
Палата на 2 койки со шлюзом, уборной и душевой шлюзе(9×2+3+3+2) |
26 |
11 |
|
2.3 |
Пост дежурной медицинской сестры |
6 |
1 |
|
2.4 |
Процедурная |
12 |
1 |
|
2.5 |
Клизменная со шлюзом и уборной (8+2+2) |
12 |
1 |
|
2.6 |
Ванная комната с душем и подъемником (12+2) |
14 |
1 |
|
2.7 |
Помещения для: |
|
|
|
мытья и стерилизации суден, горшков, мытья и сушки клеенок |
8 |
1 |
|
|
сортировки и временного хранения грязного белья |
4 |
1 |
|
|
хранения предметов уборки с трапом, поливочным краном и сушкой |
4 |
1 |
|
|
2.8 |
Кладовая чистого белья |
4 |
1 |
|
2.9 |
Помещение дневного пребывания больных |
24 |
1 |
|
|
Итого: |
425 |
|
|
|
3. Общие помещения отделения |
|
|
|
3.1 |
Кабинет заведующего отделением с местом для компьютера (12+4) |
16 |
1 |
|
3.2 |
Комната старшей медицинской сестры с местом для компьютера (10+4) |
14 |
1 |
|
3.3 |
Комната сестры-хозяйки |
10 |
1 |
|
3.4 |
Помещение для бытового самообслуживания больных |
16 |
1 |
|
3.5 |
Помещения психотерапии: |
|
|
|
кабинет врача-психотерапевта |
12 |
1 |
|
|
кабинет психотерапии со шлюзом (24+2) |
26 |
1 |
|
|
3.6 |
Комната персонала |
10 |
1 |
|
3.7 |
Процедурная аминазиновая |
22 |
1 |
|
3.8 |
Буфетная с оборудованием для мытья посуды |
22 |
1 |
|
3.9 |
Помещение для хранения переносной физиотерапевтической аппаратуры |
12 |
1 |
|
3.10 |
Комната личной гигиены персонала |
5 |
1 |
|
3.11 |
Помещение для хранения каталок |
10 |
1 |
|
3.12 |
Уборная для персонала |
3 |
1 |
|
3.13 |
Комната для сушки верхней одежды и обуви больных |
15 |
1 |
|
3.14 |
Помещение для бесед с лечащими врачами |
10 |
1 |
|
3.15 |
Помещение для встречи с родственниками |
48 |
1 |
|
3.16 |
Гардероб персонала |
12 |
1 |
|
3.17 |
Кабинеты врачей- психиатров |
12+12 |
1 |
|
3.18 |
Кабинет психолога |
12 |
1 |
|
3.19 |
Кабинет социального работника |
12 |
1 |
|
3.20 |
Помещения для бытовой реабилитации: |
|
|
|
|
макет жилой квартиры с оборудованием и стендами для восстановления бытовых навыков |
36 |
1 |
|
|
кабинет с имитацией входов в общественный транспорт |
36 |
1 |
|
3.21 |
Кладовая хранения мягкого инвентаря |
10 |
1 |
|
|
Итого: |
396 |
|
|
|
Всего: |
1286 |
|
Таблица А.2
|
№ |
Функциональные группы и перечень помещений |
Площадь,
м2 |
Количество |
|
|
1. Помещения вестибюльной группы и приема больных |
|
|
|
1.1 |
Вестибюль-гардеробная для посетителей |
36 |
1 |
|
1.2 |
Гардеробная уличной одежды для персонала |
5 |
1 |
|
1.3 |
Справочная |
4 |
1 |
|
1.4 |
Киоск |
6 |
2 |
|
1.5 |
Уборная для посетителей пои вестибюле |
3 |
1 |
|
1.6 |
Смотровая с гинекологическим креслом |
18 |
1 |
|
1.7 |
Санитарный пропускник для больных: |
|
|
|
раздевальная |
6 |
1 |
|
|
ванная с душем с подъемником |
14 |
1 |
|
|
одевальная |
6 |
1 |
|
|
1.8 |
Помещение (место) для хранения каталок и кресел-колясок |
4 |
1 |
|
1.9 |
Уборная для больных |
3 |
1 |
|
|
Итого: |
111 |
|
|
|
2. Стационар на 30 коек |
|
|
|
2.1 |
Палата на 1 койку со шлюзом, встроенными шкафами и санитарным узлом |
22 |
4 |
|
2.2 |
Палата на 2 койки со шлюзом, встроенными шкафами и санитарным узлом |
28 |
3 |
|
2.3 |
Палата на 4 койки со шлюзом, встроенными шкафами и санитарным узлом |
48 |
5 |
|
2.4 |
Пост дежурной медицинской сестры |
6 |
6 |
|
2.5 |
Процедурная с гинекологическим креслом (со сливом) и шлюзом |
22 |
1 |
|
2.6 |
Перевязочная |
22 |
1 |
|
2.7 |
Помещение для группового отдыха больных в дневное время |
30 |
1 |
|
2.8 |
Зимний сад |
50 |
1 |
|
2.9 |
Молитвенная |
20 |
1 |
|
2.10 |
Помещение для индивидуального разогрева домашней пищи |
10 |
1 |
|
|
Итого: |
602 |
|
|
|
3. Выездная служба |
|
|
|
3.1 |
Кабинет заведующего |
12 |
1 |
|
3.2 |
Комната старшей медицинской сестры с местом для хранения медикаментов |
12 |
1 |
|
3.3 |
Комната выездных бригад с местом для диспетчера |
38 |
1 |
|
3.4 |
Комната шоферов |
10 |
1 |
|
3.5 |
Уборная для персонала |
3 |
1 |
|
|
Итого: |
75 |
|
|
|
4. Административно-хозяйственная, бытовая и вспомогательная службы |
|
|
|
4.1 |
Кабинет директора с приемной |
28 |
1 |
|
4.2 |
Кабинет зам. Директора по медчасти |
15 |
1 |
|
4.3 |
Кабинет зам. Директора по административно-хозяйственной части |
10 |
1 |
|
4.4 |
Кабинет социального работника |
10 |
1 |
|
4.5 |
Комната главной медсестры |
10 |
1 |
|
4.6 |
Комната благотворительных организаций |
10 |
1 |
|
4.7 |
Конференц-зал |
43 |
1 |
|
4.8 |
Медицинская библиотека |
12 |
1 |
|
4.9 |
Кабинет мед. Статистики с архивом |
24 |
1 |
|
4.10 |
Бухгалтерия с кассой |
18 |
1 |
|
4.11 |
Комната сестры-хозяйки |
10 |
1 |
|
4.12 |
Центральная бельевая |
12 |
1 |
|
4.13 |
Кладовая хранения мягкого инвентаря |
10 |
1 |
|
4.14 |
Кладовая хранения жесткого инвентаря |
18 |
1 |
|
4.15 |
Кладовая хранения временно списанного инвентаря |
18 |
1 |
|
4.16 |
Мастерская |
18 |
1 |
|
4.17 |
Буфет для персонала: |
|
|
|
зал с раздаточной |
24 |
1 |
|
|
подсобное помещение |
6 |
1 |
|
|
моечная столовой посуды |
8 |
1 |
|
|
4.18 |
Комната психологической разгрузки персонала |
j 8 |
2 |
|
4!19 |
Сауна для персонала: |
|
|
|
раздевальная |
10 |
1 |
|
|
душевая |
3 |
1 |
|
|
кабина сухого жара |
6 |
1 |
|
|
бассейн |
15 |
1 |
|
|
уборная |
3 |
1 |
|
|
4.20 |
Централизованная стерилизационная: |
|
|
|
помещение приема и подготовки инструментов |
9 |
1 |
|
|
моечная |
10 |
1 |
|
|
стерилизационная |
12 |
1 |
|
|
помещение хранения и выдачи материалов |
9 |
1 |
|
|
4.21 |
Аптечный распределительный пункт: |
|
|
|
распаковочная комната для хранения и выдачи |
8 |
1 |
|
|
лекарственных средств |
12 |
1 |
|
|
помещение для хранения наркотических средств |
4 |
1 |
|
|
4.22 |
Дезкамерный блок: |
|
|
|
помещение приема и сортировки вещей |
5 |
|
|
|
помещение выдачи вещей |
5 |
|
|
|
загрузочное помещение дезинфекционной камеры |
9 |
|
|
|
разгрузочное помещение дезинфекционной камеры |
12 |
|
|
|
кладовая хлорной извести |
4 |
|
|
|
кладовая дезинфицирующих средств |
2 |
|
|
|
гардероб персонала с душем |
4 |
|
|
|
уборная |
3 |
|
|
|
кладовая предметов уборки с поливочным краном, трапом и сушкой |
6 |
|
|
|
комната персонала |
8 |
|
|
|
4.23 |
Прачечная: |
|
|
|
помещение приема и сортировки белья |
6 |
|
|
|
стиральный цех (постирочная) |
18 |
|
|
|
сушильно-гладильный цех |
15 |
|
|
|
кладовая стиральных средств |
4 |
|
|
|
комната персонала |
8 |
|
|
|
комната личной гигиены персонала с душевой кабиной, уборная |
6+3 |
|
|
|
4.24 |
Помещение для хранения предметов уборки |
4 |
1 |
|
4.25 |
Уборная для персонала |
3 |
2 |
|
|
Итого: |
549 |
|
|
|
5. Служба приготовления пищи хосписов |
|
|
|
5.1 |
Производственные помещения: |
|
|
|
5.2 |
Помещение первичной обработки овощей |
10 |
1 |
|
5.3 |
Цex заготовки овощей |
8 |
1 |
|
5.4 |
Цех заготовки мяса, птицы и рыбы |
10 |
1 |
|
5.5 |
Варочный цex |
30 |
1 |
|
5.6 |
Холодная заготовочная |
6 |
1 |
|
5.7 |
Цex мучных изделий |
8 |
1 |
|
5.8 |
Моечная кухонной посуды |
6 |
1 |
|
5.9 |
Кладовая суточного запаса продуктов |
6 |
1 |
|
5.10 |
Экспедиция (с наружным выходом) |
6 |
1 |
|
5.11 |
Столовая для больных: |
|
|
|
обеденный зал |
38 |
|
|
|
моечная с оборудованием для мытья столовой и кухонной посуды |
22 |
|
|
|
5.12 |
Складские помещения: |
|
|
|
5.13 |
Охлаждаемые камеры для хранения: |
|
|
|
мяса и рыбы |
6 |
1 |
|
|
молочных продуктов, фруктов и зелени |
6 |
1 |
|
|
отходов со шлюзом, оборудованным поливочным краном, трапом для мытья бачков (с отдельным наружным выходом) |
6 |
1 |
|
|
5.14 |
Помещение холодильной установки |
9 |
1 |
|
5.15 |
Кладовая сухих продуктов |
6 |
1 |
|
5.16 |
Кладовая хлеба |
4 |
1 |
|
5.17 |
Кладовая овощей |
6 |
1 |
|
5.18 |
Загрузочная |
6 |
1 |
|
5.19 |
Тарная |
6 |
1 |
|
5.20 |
Кладовая белья |
5 |
1 |
|
5.21 |
Кладовая инвентаря |
5 |
1 |
|
5.22 |
Гардеробные, душевые, уборные для персонала с комнатой личной гигиены |
13 |
1 |
|
5.23 |
Кладовая предметов уборки помещений с поливочным краном, трапом и сушкой |
6 |
1 |
|
5.24 |
Комната медицинской сестры диетического питания |
8 |
1 |
|
5.25 |
Помещение хранения и мытья тележек и тары, применяемых для транспортировки пищи |
8 |
1 |
|
5.26 |
Комната персонала |
8 |
1 |
|
|
Итого: |
255 |
|
|
|
6. Специализированные и вспомогательные помещения |
|
|
|
6.1 |
Кабинет заведующего |
12 |
1 |
|
6.2 |
Ординаторская |
16 |
1 |
|
6.3 |
Кабинет врача-психотерапевта |
12 |
1 |
|
6.4 |
Комната старшей медицинской сестры с местом для хранения медикаментов |
12 |
1 |
|
6.5 |
Комната среднего (младшего) медицинского персонала с гардеробной для домашней и рабочей одежды |
28 |
2 |
|
6.6 |
Комната для ночного отдыха родственников больных |
12 |
3 |
|
6.7 |
Комната для отдыха добровольных помощников |
12 |
1 |
|
6.8 |
Помещение для хранения переносной аппаратуры |
12 |
1 |
|
6.9 |
Помещение для мытья и стерилизации суден, горшков, мытья и сушки клеенок |
8 |
1 |
|
6.10 |
Помещение для сбора и временного хранения грязного белья |
8 |
1 |
|
6.11 |
Помещение для хранения дезсредств и предметов уборки с трапом, краном и сушкой |
4 |
1 |
|
6.12 |
Ванная с душем и подъемником для больных |
14 |
1 |
|
6.13 |
Кладовая чистого белья |
4 |
1 |
|
6.14 |
Помещение для хранения каталок и кресел-колясок |
6 |
1 |
|
6.15 |
Комната личной гигиены персонала с душевой кабиной |
6 |
2 |
|
6.16 |
Клизменная (со шлюзом) |
10 |
1 |
|
6.17 |
Уборная для персонала (со шлюзом и умывальником) |
3 |
2 |
|
6.18 |
Уборная для посетителей (со шлюзом и умывальником) |
3 |
1 |
|
6.19 |
Помещение для хранения трупов с холодильной установкой (с отдельным наружным выходом) |
18 |
1 |
|
6.20 |
Траурное помещение |
22 |
1 |
|
|
Итого: |
277 |
|
|
|
Всего: |
1602 |
|
1. Общие положения
1.1. Дом (отделение) сестринского ухода и хоспис организуются на базе отдельных участковых больниц сельской местности, городских многопрофильных и специализированных (психиатрических, противотуберкулезных, онкологических и т.д.) больниц по решению местных органов здравоохранения.
1.2. Дом (отделение) сестринского ухода предназначается для проведения курса поддерживающего лечения больным преимущественно пожилого и старческого возраста, одиноким, страдающим хроническими заболеваниями и нуждающимся в медицинском и социальном уходе.
1.3. Для проведения симптоматического лечения больных в терминальных стадиях, организации им квалифицированного ухода, социально-психологической помощи больным и их родственникам создаются благотворительные медицинские учреждения - хосписы.
1.4. Мощность дома сестринского ухода определяется исходя из существующих условий и потребности органами здравоохранения; мощность отделения - главным врачом больницы.
1.5. Штаты дома (отделения) сестринского ухода и хосписа определяются руководителями лечебно-профилактического учреждения, в зависимости от объема оказываемой медико-социальной помощи и в пределах фонда заработной платы в соответствии с примерным штатным расписанием. Для консультации больных могут приглашаться на договорной основе специалисты по реабилитации, психотерапевты, юристы.
К лечению и уходу могут привлекаться в установленном порядке члены общественных религиозных организаций, благотворительных обществ и ассоциаций.
Медицинский персонал домов (отделений) сестринского ухода и хосписов на договорных или иных условиях может оказывать необходимую помощь по проведению лечения и ухода больным на дому.
2. Задачи и функции дома (отделения) сестринского ухода
2.1. Основной задачей дома (отделения) сестринского ухода является повышение доступности медико-социальной помощи лицам пожилого и старческого возраста, страдающим хроническими заболеваниями.
2.2. В соответствии с поставленной задачей дом (отделение) сестринского ухода осуществляет:
- прием, размещение больных и престарелых соответственно профилю заболевания и тяжести их состояния;
- квалифицированный медицинский уход за больными и престарелыми;
- социальное обслуживание больных и престарелых;
- своевременное выполнение врачебных назначений и процедур, медицинскую реабилитацию больных и престарелых с элементами трудотерапии;
- динамическое наблюдение за состоянием больных и престарелых;
- своевременную диагностику осложнений или обострений хронических заболеваний;
- выписку больных в сроки, установленные органами здравоохранения и закрепленные в договоре (соглашении);
- оформление одиноких престарелых граждан в дома-интернаты.
2.3. Основные задачи хосписа:
- формирование новой фирмы медицинского и социального обслуживания инкурабельных больных - благотворительной медицины;
- повышение доступности стационарной медицинской помощи больным терминальной стадии и улучшение им медицинской помощи на дому;
- проведение симптоматического лечения больных в терминальных стадиях, организация им квалифицированного ухода с применением психотерапевтических и традиционных методик;
- подбор и проведение необходимой обезболивающей терапии;
- оказание социально-психологической помощи больным и родственникам, обучение родственников навыкам ухода за тяжелобольными.
Приложение 1 к приказу Минздрава
РСФСР от 1 февраля
Раздел 7. Общие данные

Рис. 1 Антропометрия пожилого человека

Рис. 2 Зоны досягаемости пожилого человека
Раздел 2. Помещения жилых групп и отделений

ЭКСПЛИКАЦИЯ ОБОРУДОВАНИЯ
1. Кровать; 2. Полка для книг; 3. Тумбочка; 4. Стол; 5. Стул; 6. Кресло; 7. Торшер; 8. Инвалидная коляска; 9. Комбинированный шкаф.
Рис. 3 Одноместная жилая комната

ЭКСПЛИКАЦИЯ ОБОРУДОВАНИЯ
1. Кровать; 2. Полка для книг; 3. Тумбочка; 4. Комбинированный шкаф; 5. Стол; 6. Стул; 7. Кресло; 8. Торшер; 9. Банкетка; 10. Инвалидная коляска.
Рис. 4
Жилые комнаты на 2
и 3
человека

ЭКСПЛИКАЦИЯ ОБОРУДОВАНИЯ
1. Ванная; 2. Унитаз; 3. Душевой поддон; 4. Умывальник; 5. Инвалидная коляска; 6. Поворотное кресло.
Рис. 5 ![]()
Планировочные схемы санузлов

ЭКСПЛИКАЦИЯ ОБОРУДОВАНИЯ
1.
Кушетка медицинская 2. Ванна прямобортная 3. Подъемник для перемещения в ванну
4. Сиденье съемное для ванны 5. Тумбочка 6. Скамья для раздевания 7. Сиденье
пристенное 8. Душ 9. Напольный или настенный поручень на высоте
Рис. 6 Ванные комнаты для группы жилых помещений

ЭКСПЛИКАЦИЯ ОБОРУДОВАНИЯ
1. Стол обеденный 180×90; 2. Стол обеденный 140×90; 3. Стул; 4. Инвалидная коляска; 5. Диван; 6. Кресло; 7. Журнальный столик; 8. Торшер; 9. Стол-стойка; 10. Табурет; 11. Телевизор; 12. Холодильник; 13. Кухонный стол; 14. Подвесные шкафы; 15. Электроплита с воздухоочистителем; 16. Мойка; 17. Посудомоечная машина; 18. Лоджия; 19. Откидной тобогган.
Рис. 7 ![]()
![]()
Общая комната-столовая и кухня
Раздел 3. Помещения жилых групп и отделений «Милосердие», хосписов и домов сестринского ухода

ЭКСПЛИКАЦИЯ ОБОРУДОВАНИЯ
1. Кровать функциональная; 2. Тумбочка прикроватная; 3. Инвалидное кресло-коляска; 4. Стол; 5. Стол журнальный; 6. Кресло-кровать; 7. Кресло для отдыха; 8. Стул с подлокотниками; 9. Умывальник; 10. Холодильник; 11. Столик надкроватный; 12. Кресло-судно передвижное.
Рис. 8 Жилая комната на 1 человека

ЭКСПЛИКАЦИЯ ОБОРУДОВАНИЯ
1. Кровать функциональная; 2. Тумбочка прикроватная; 3. Инвалидное кресло-каталка; 4. Стол; 5. Стол журнальный; 6. Кресло-кровать; 7. Кресло для отдыха; 8. Стул с подлокотниками; 9. Умывальник; 10. Холодильник; 11. Столик надкроватный; 12. Кресло-судно передвижное;
Рис. 9 ![]()
![]()
Жилая комната на 2
человека

ЭКСПЛИКАЦИЯ ОБОРУДОВАНИЯ
1. Кровать функциональная; 2. Тумбочка прикроватная; 3. Инвалидное кресло-каталка; 4. Стол; 5. Стол журнальный; 6. Кресло-кровать; 7. Кресло для отдыха; 8. Стул с подлокотниками; 9. Умывальник; 10. Холодильник; 11. Столик надкроватный; 12. Кресло-судно передвижное;
Рис. 10 ![]()
![]()
Жилая комната на 3
человека

ЭКСПЛИКАЦИЯ ОБОРУДОВАНИЯ
1. Кушетка медицинская; 2. Ванна прямобортная; 3. Тумба прикроватная; 4. Табурет; 5. Умывальник; 6. Шкаф для медико-хозяйственных принадлежностей; 7. Полотенцесушитель; 8. Вешалка на 2 крючка; 9. Подъемник для перемещения больного в ванну 10. Каталка; 11. Душ.
Рис. 11 Планировочные схемы санитарно-гигиенических зон

ЭКСПЛИКАЦИЯ ОБОРУДОВАНИЯ
1. Кресло для отдыха; 2. Диван; 3. Телевизор с видеоплеером; 4. Тумба под телевизор; 5. Журнальный столик; 6. Подцветочница; 7. Инвалидное кресло;
Рис. 12
Комната дневного пребывания

ЭКСПЛИКАЦИЯ ОБОРУДОВАНИЯ
1. Кресло для отдыха; 2. Диван; 3. Стул с подлокотниками; 4. Стол обеденный; 5. Телевизор с видеоплеером; 6. Подцветочница; 7. Журнальный столик; 8. Мойка; 9. Электроплита с воздухоочистителем; 10. Холодильник; 11. Подвесной шкаф для посуды; 12. Посудомоечная машина.
Рис. 13 Общая комната-столовая и кухня

ЭКСПЛИКАЦИЯ ОБОРУДОВАНИЯ
1. Шкаф доборный; 2. Стол производственный; 3. Шкаф для посуды с сушкой; 4. Тележка ресторанная; 5. Стол обеденный; 6. Стул с подлокотниками; 7. Ведро педальное; 8. Холодильник; 9. Мойка; 10. Столик-термос для перевозки пищи; 11. Посудомоечная машина; 12. Бойлер; 13. Электроплита с воздухоочистителем.
Рис. 14 Кухня-доготовочная на одну жилую группу
Раздел 4. Помещения социально-реабилитационного отделения

ЭКСПЛИКАЦИЯ ОБОРУДОВАНИЯ
1. Стеллаж для открытого хранения книг; 2. Стол для занятий; 2а. Стол для занятий инвалида-колясочника; 3. Стул с подлокотниками; 4. Стол для абонементного обслуживания; 5. Кресло рабочее; 6. Полки подвесные; 7. Инвалидная коляска.
Рис. 15 Библиотека с читальным залом

Рис. 16 Зрительный зал

Рис. 17
Места в залах общественного питания

ЭКСПЛИКАЦИЯ ОБОРУДОВАНИЯ
1. Стол обеденный; 1а. Стол резервный; 2. Стул с подлокотниками; 3. Инвалидная коляска; 4. Комбинированная стенка; 5. Холодильник; 6. Мойка; 7. Электроплита с воздухоочистителем; 8. Стол-шкаф кухонный; 9. Сервировочная стойка, разделочный стол-шкаф; 10. Табурет.
Рис. 18
Кабинет социально-бытовой адаптации

ЭКСПЛИКАЦИЯ ОБОРУДОВАНИЯ
1. Швейная машина; 2. Стул с подлокотниками; 3. Стол раскроечный; 4. Гладильный стол; 5. Гладильный пресс; 6. Рабочий стол; 7. Умывальник керамический; 8. Стол инструктора; 9. Стул; 10. Инвалидная коляска.
Рис. 19 Швейная мастерская

ЭКСПЛИКАЦИЯ ОБОРУДОВАНИЯ
1. Стол рабочий; 2. Стол ремонта телерадиоаппаратуры; 3. Стул; 4. Стол-зонт; 5. Стол инструктора; 6. Стул; 7. Умывальник керамический; 8. Инвалидная коляска;
Рис. 20
Ремонтная мастерская
Раздел 5. Помещения медицинского назначения

ЭКСПЛИКАЦИЯ ОБОРУДОВАНИЯ
1. Стол врача 1а. Стол компьютерный 2. Кушетка смотровая 3. Коляска инвалидная 4. Шкаф врача 5. Кресло рабочее 6. Умывальник 7. Весы медицинские 8. Ростомер 9. Стул с подлокотниками 10. Столик инструментальный.
Рис. 21 Кабинет врача-гериатра

ЭКСПЛИКАЦИЯ ОБОРУДОВАНИЯ
1. Стол врача; 2. Стул офисный; 3. Таблица; 4. Кушетка смотровая; 5. Столик инструментальный; 6. Шкаф медицинский; 7. Холодильник бытовой; 8. Умывальник керамический; 9. Стол палатный; 10. Офтальмоскоп; 11. Табурет винтовой; 12. Периметр настольный с регистрирующим устройством; 13. Бачок для отходов; 14. Светозащитный занавес; 15. Стул с подлокотниками; 16. Столик манипуляционный.
Рис. 22
Кабинет консультативного приема

ЭКСПЛИКАЦИЯ ОБОРУДОВАНИЯ
1. Кресло гинекологическое; 2. Столик инструментальный; 3. Светильник однорефлекторный передвижной; 4. Стул винтовой; 5, 6. Стул; 7. Кушетка; 8. Умывальник керамический; 9. Шкаф медицинский; 10. Инвалидная коляска; 11. Стол врача; 12. Бачок для мусора.
Рис. 23
Кабинет гинеколога, уролога

ЭКСПЛИКАЦИЯ ОБОРУДОВАНИЯ
1. Кресло стоматологическое; 2. Установка стоматологическая универсальная; 3. Столик стоматологический; 4. Стул стоматологический; 5. Стол врача; 6. Шкаф медицинский одностворчатый; 7. Столик инструментальный; 8. Стул; 9. Плевательница; 10. Бачок для отходов; 11. Инвалидная коляска.
Рис. 24 Кабинет ортопедической стоматологии

ЭКСПЛИКАЦИЯ ОБОРУДОВАНИЯ
1. Стоп врача; 2. Стул офисный; 3. Шкаф медицинский; 4. Кушетка смотровая; 5. Умывальник керамический; 6. Стол палатный; 7. Зеркало; 8. Стеллаж библиотечный; 9. Инвалидная коляска; 10. Стул с подлокотниками; 11. Стул медицинский.
Рис. 25 ![]()
![]()
Кабинет логопеда

ЭКСПЛИКАЦИЯ ОБОРУДОВАНИЯ
1. Стол медсестры; 2. Кушетка смотровая; 3. Стул; 4. Стол палатный; 5. Холодильник бытовой; 6. Шкаф медицинский; 7. Столик инструментальный; 8. Бачок для отходов; 9. Умывальник керамический; 10. Инвалидная коляска.
Рис. 26 Процедурная

ЭКСПЛИКАЦИЯ ОБОРУДОВАНИЯ
1. Кушетка смотровая; 2. Стол палатный; 3. Стул; 4. Шкаф медицинский; 5. Раковина керамическая; 6. Шкаф вытяжной; 7. Холодильник; 8. Инструментальный столик; 9. Инвалидная коляска.
Рис. 27 ![]()
![]()
Аминозиновый кабинет

ЭКСПЛИКАЦИЯ ОБОРУДОВАНИЯ
1. Стол медсестры; 2. Тумбочка прикроватная; 3. Стул полумягкий; 4. Шкаф для поста дежурной медсестры; 5. Система наблюдения; 6. Прикроватное устройство; 7. Кровать функциональная; 8. Столик инструментальный; 9. Штатив для длительных вливаний; 10. Отсасыватель хирургический; 11. Дефибрилятор импульсный; 12. Аппарат иск. вент. легких; 13. Холодильник бытовой; 14. Облучатель бактерицидный; 15. Слив больничный; 16. Умывальник; 17. Мойка чугунная.
Рис. 28
Палата интенсивной терапии

ЭКСПЛИКАЦИЯ ОБОРУДОВАНИЯ
1. Кушетка процедурная; 2. Стол для переносной аппаратуры; 3. Стул с подлокотниками; 4. Инвалидная коляска.
Рис. 29 Кабинеты электросветолечения

ЭКСПЛИКАЦИЯ ОБОРУДОВАНИЯ
1. Аппарат для проведения электросна; 2. Шкаф медицинский; 3. Стол; 4. Кровать для сна; 5. Умывальник керамический; 6. Стул; 7. Инвалидная коляска.
Рис. 30
Кабинет лечения электросном

ЭКСПЛИКАЦИЯ ОБОРУДОВАНИЯ
1. Аппарат для проведения электросна; 2. Шкаф медицинский; 3. Стол; 4. Кровать для сна; 5. Умывальник керамический; 6. Стул; 7. Инвалидная коляска.
Рис. 31 Кабинет лечения электросном

ЭКСПЛИКАЦИЯ ОБОРУДОВАНИЯ
1. Стационарная ингаляционная установка; 2. Стул с подлокотниками; 3. Умывальник; 4. Экран; 5. Инвалидная коляска; 6. Стол врача; 7. Стул полумягкий; 8. Шкаф медицинский; 9. Столик инструментальный.
Рис. 32 ![]()
![]()
Ингаляторий на 3
места

ЭКСПЛИКАЦИЯ ОБОРУДОВАНИЯ
1. Кушетка смотровая; 2. Тумбочка прикроватная; 3. Стол медсестры; 4. Стул медицинский полумягкий; 5. Инвалидная коляска.
Рис. 33 Кабинет озокерито- и парофинолечения

ЭКСПЛИКАЦИЯ ОБОРУДОВАНИЯ
1. Ванна керамическая ангобированная; 2. Душ; 3. Поворотное кресло; 4. Подъемник для помещения больного в ванну; 5. Инвалидная коляска.
Рис. 34
Фрагмент кабинета водолечения

ЭКСПЛИКАЦИЯ ОБОРУДОВАНИЯ
1. Ванна; 2. Подвесное кресло; 3. Трос или балка; 4. Инвалидная коляска.
Рис. 35
Планировочные схемы ванных залов

ЭКСПЛИКАЦИЯ ОБОРУДОВАНИЯ
1. Ванна подводного массажа; 2. Аппарат для подводного массажа; 3. Подъемник для помещения больного в ванну; 4. Банкетка; 5. Вешалка на два крючка; 6. Полотенцесушитель; 7. Умывальник керамический; Ведро педальное; 9. Инвалидная коляска.
Рис. 36 Кабинет подводного массажа

ЭКСПЛИКАЦИЯ ОБОРУДОВАНИЯ
1. Стол палатный; 2. Стул медицинский; 3. Кушетка смотровая.
Рис. 37 Бассейн для группы 5 человек

ЭКСПЛИКАЦИЯ ОБОРУДОВАНИЯ
1. Кушетка смотровая; 2. Скамья универсальная; 3. Скамья гимнастическая; 4. Стол врача; 5. Стул медицинский; 6. Весы медицинские; 7. Ростомер; 8. Гимнастическая стенка; 9. Умывальник; 10. Место для тренажера; 11. Снаряды подвесные гимнастические; 12. Ковер гимнастический; 13. Столик передвижной; 14. Стеллаж деревянный; 15. Комплект аппаратов для механотерапии.
Рис. 38 Зал ЛФК

ЭКСПЛИКАЦИЯ ОБОРУДОВАНИЯ
1. Кушетка для массажа; 2. Стол для массажа; 3. Стол врача; 4. Шкаф медицинский; 5. Стул; 6. Умывальник; 7. Табурет винтовой; 8. Скамейка-подставка для ног; 9. Ширма трехстворчатая; 10. Стул с подлокотниками.
Рис. 39
Кабинет массажа

ЭКСПЛИКАЦИЯ ОБОРУДОВАНИЯ
1. Место для тренажера; 2. Стол медицинской сестры; 3. Стул; 4. Шкаф; 5. Инвалидная коляска; 6. Умывальник.
Рис. 40
Кабинет механотерапии
|
Ключевые слова: функциональные группы помещений, архитектурно-планировочные решения, геронтологические центры, дома сестринского ухода, хосписы. |