Нормативные документы размещены исключительно с целью ознакомления учащихся ВУЗов, техникумов и училищ.
Объявления:

ВЕДОМСТВЕННЫЕ СТРОИТЕЛЬНЫЕ НОРМЫ

ТРЕБОВАНИЯ К ПРОЕКТИРОВАНИЮ
ОБЪЕКТОВ ПО ПРОИЗВОДСТВУ МИНЕРАЛЬНЫХ УДОБРЕНИЙ С ПРИМЕНЕНИЕМ БЛОКОВ

ТЕХНОЛОГИЯ ПРОИЗВОДСТВА

ВСН 514-89                                                                                      ВСН 25-89

Минмонтажспецстрой СССР                                                           Минудобрений СССР

МИНИСТЕРСТВО МОНТАЖНЫХ И СПЕЦИАЛЬНЫХ
СТРОИТЕЛЬНЫХ РАБОТ СССР

Москва 1989

РАЗРАБОТАНЫ ВНИИмонтажспецстроем Минмонтажспецстроя СССР (инженеры В.Я. Эйдельман - руководитель разработки, А.Л. Прудовая, Л.Г. Коновалова, В.И. Ивашин, Е.Ю. Исакова, Л.Е. Лоскутова, Е.А. Гуляев, О.Ю. Тарасова, М.Е. Григорьева)

ПОДГОТОВЛЕНЫ К УТВЕРЖДЕНИЮ Главным научно-техническим управлением Минмонтажспецстроя СССР (Г.А. Сукальский, Ю.А. Литвак)

Главным управлением проектирования и капитального строительства Минудобрений СССР

Вводятся впервые

Министерство монтажных и специальных строительных работ СССР (Минмонтажспецстрой СССР)

Министерство по производству минеральных удобрений СССР (Минудобрений СССР)

Ведомственные строительные нормы

ВСН 514-89

Минмонтажспецстрой СССР

ВСН 25-89

Минудобрений СССР

Требования к проектированию объектов по производству минеральных удобрений с применением блоков. Технология производства

Вводятся впервые

Настоящие нормы распространяются на проектирование объектов по производству минеральных удобрений с применением блоков.

Нормы устанавливают требования к разработке блоков, подлежащих сборке организациями Минмонтажспецстроя СССР на своих производственных базах или при объектных площадках укрупнительной сборки; к расположению оборудования и трубопроводов.

Нормы обязательны для применения в рабочих проектах (проектах) и рабочей документации для строительства объектов по производству минеральных удобрений, а также других производств, размещаемых на предприятиях Минудобрений СССР (далее - объект строительства), а также при составлении заданий на разработку блоков, собираемых на производственных базах Минмонтажспецстроя СССР, и технологических комплексов.

1. ОБЩИЕ ПОЛОЖЕНИЯ

1.1. Проектирование осуществляется в соответствии с приказом Минудобрений СССР и Минмонтажспецстроя СССР от 30 июня 1967 г. № 296/294 (п. 3) и требованиями настоящих ВСН.

1.2. Технологическую часть рабочего проекта (проекта) и рабочей документации следует разрабатывать как систему технологических блоков (далее - блоков) и блоков коммуникаций (разработанных в составе проекта или примененных) в соответствии с номенклатурой, приведенной в обязательном приложении 1.

Внесены:

Главным научно-техническим управлением Минмонтажспецстроя СССР

Главным управлением проектирования и капитального строительства Минудобрений СССР

Утверждены:

Минмонтажспецстроем СССР

24 марта 1989 г.

Минудобрений СССР

17 марта 1989 г.

Срок введения в действие
15 апреля 1989 г.

1.3. В задании на проектирование должно быть записано: рабочий проект (проект) и рабочую документацию разрабатывать с применением блоков в соответствии с "Исходными данными (монтажными) на разработку проектной документации с применением блоков" (обязательное приложение 2).

Исходные данные являются неотъемлемой частью задания на проектирование и приводятся в приложении к нему.

Контроль за выполнением исходных данных при разработке рабочего проекта (проекта) и рабочей документации осуществляет Гипрохиммонтаж, при составлении заключений по рабочему проекту (проекту) - органы экспертизы и заказчик, а при приемке документации для производства работ - заказчик.

1.4. Проектные организации при разработке проекта (рабочего проекта) согласовывают состав, габаритные размеры и массу поставочных узлов, принятых в рабочем проекте (проекте), с Гипрохиммонтажем Минмонтажспецстроя СССР.

1.5. Термины, применяемые в настоящих ВСН, приведены в приложении 4.

2. ТРЕБОВАНИЯ К ТЕХНИЧЕСКИМ РЕШЕНИЯМ ОБЪЕКТОВ С ПРИМЕНЕНИЕМ БЛОКОВ

2.1. Общие требования

2.1.1. При разработке рабочего проекта (проекта) и рабочей документации должны быть обеспечены:

преимущественное применение блоков группы сложности III (обязательное приложение 1);

автономность блоков от строительных конструкций (для их сборки независимо от строительной готовности);

исключение в границах блока колонн, балок, плит зданий и сооружений, коммуникаций других блоков;

максимальное сокращение вспомогательных конструкций за счет использования инвентарных средств для обслуживания и ремонта передвижных грузоподъемных средств, обеспечения агрегатно-узлового метода ремонта и др.;

унификация проектных решений блоков и их составных частей, использование документации на ранее разработанные блоки;

соединение взаимно пересекающихся блоков коммуникаций с помощью вставок. которые должны включать вводы и выводы трубопроводов, идущих в поперечном направлении, лестничные клетки, переходы, П-образные компенсаторы;

сведение к минимуму мокрых процессов подливки, замоноличивания и огнезащиты при установке и закреплении блоков.

2.2. Требования к технологическому блоку

2.2.1. В состав блоков следует включать машины, аппараты, первичные средства контроля и управления первичных исполнительных механизмов, регулирующих и отсечных клапанов и первичных отборных устройств, трубопроводы, вспомогательные конструкции (опорные, обслуживающие и др.), тепловую изоляцию и химзащиту.

2.2.2. В проекте блока должны быть обеспечены:

агрегирование составных частей блока на общих опорных конструкциях в минимальное количество (n) сборочных единиц; агрегирование отключающей, регулирующей и предохранительной арматуры в минимальное количество узлов управления. Лучшее решение блоков I, II и III групп сложности соответствует n = 1. Составные части блока, не агрегированные на общих опорных конструкциях, должны иметь самостоятельные опоры, которые устанавливают и закрепляют на фундаментах, перекрытиях и других строительных конструкциях;

применение типовых проектов лестниц и площадок для обслуживания;

применение стандартных составных частей трубопроводов, в том числе отборных устройств КИПиА, фильтров, применение типовых проектных решений узлов регулирующих клапанов и конденсационных устройств;

жесткость конструкции сборочных единиц, сохранение их целостности при перевозке и установке в проектное положение, а также пуск в эксплуатацию без разборки и ревизии;

применение гибких базовых конструкций в сочетании с инвентарными средствами для создания жесткости при транспортировании и монтаже;

возможность объединения поставочных узлов в монтажные узлы (вставки, разъемы);

минимум входных и выходных трубопроводов за счет объединения их в пределах блока;

совмещение аппаратов различных функций в корпусе одного аппарата, применение погруженных насосов, компенсаторов температурных направлений и др.;

использование несущей способности оборудования для крепления труб, площадок и другого оборудования;

компактность расположения оборудования в блоке за счет сокращения (в пределах действующих норм) расстояния между аппаратами, входящими в блок.

2.3. Требования к блоку коммуникаций

2.3.1. Блок коммуникаций должен включать в себя:

опорные конструкции (в дальнейшем - пролетные строения) под все виды межблочных коммуникаций (технологические, КИПиА, электроснабжения, противопожарные, вентиляционные системы и др.);

технологические трубопроводы;

средства защиты кабельных проводок и импульсных линий от атмосферных воздействий и огня, проходные площадки, переходные мостики.

2.3.2. В проекте блока коммуникаций должны быть обеспечены:

унификация опорных конструкций, зонирование технологических коммуникаций, импульсных линий и электропроводок; минимальные затраты материала на опорные конструкции; жесткость опорных конструкций пролетного строения, сохранение целостности при перевозке и установке в проектное положение с технологическими трубопроводами, покрытыми теплоизоляционными материалами;

доступность для обслуживания в процессе эксплуатации и производства сварочных работ при соединении блоков коммуникаций.

2.4. Требования к компоновке технологического узла технологической части объекта

2.4.1. Компоновка технологического узла из блоков должна обеспечить:

зонирование коммуникаций (блоки коммуникаций);

минимум межблочных связей, что достигается технологической последовательностью расположения блоков;

наличие монтажных зон;

возможность автономного монтажа блоков.

2.4.2. При компоновке технологического узла допустимо двух- и трехрядное расположение блоков с учетом ширины установки, определяемой противопожарными нормами.

3. ТРЕБОВАНИЯ К ЗАДАНИЮ НА ПРОЕКТИРОВАНИЕ

3.1. Общие требования

3.1.1. Задание на проектирование объекта с применением блоков должно составляться в соответствии с действующим нормативным документом в Минудобрении и п. 1.3 настоящих ВСН.

3.1.2. Исходные данные подготавливаются Гипрохиммонтажем по поручению разработчика задания на проектирование и являются его неотъемлемой частью.

3.1.3. Разработка ТЭО (ТЭР) и рабочего проекта (проекта) должна выполняться на основе исходных данных Гипрохиммонтажа на проектирование с применением блоков.

3.2. Исходные данные

3.2.1. Исходные данные, которые представляет Гипрохиммонтаж, должны включать в себя следующие разделы:

3.2.2. "Общие технические требования", где приводятся:

ссылки на нормативные документы, пособия, руководящие материалы (РМ), содержащие требования и технические решения по проектированию объектов с применением блоков;

требования к разработке ПОС, где указывают, что в ПОС должны быть отражены все принципиальные решения, связанные с применением блоков, а также с совместной работой всех организаций Минмонтажспецстроя СССР (по изоляции, химзащите, монтажу оборудования в блоках, электрооборудования, КИПиА и др.). При необходимости указывают дефицит производственных мощностей для сборки, транспортирования и монтажа блоков коммуникаций, объем необходимых капитальных вложений для расширения производственной базы;

приобретение транспортных и грузоподъемных средств, строительство дорог, причалов и т.п. в требованиях к стройгенплану указывают размеры площадок укрупнительной сборки монтажных узлов из поставочных (при необходимости), требования к дорогам и стоянкам большегрузных кранов;

условия комплектования.

3.2.3. "Условия производства монтажных работ", где приводят:

размеры и массу блоков и поставочных узлов, собираемых на производственной базе Минмонтажспецстроя СССР;

расстояние от производственной базы до места монтажа;

транспортные средства для перевозки блоков и поставочных узлов;

грузоподъемные средства для монтажа блоков.

3.2.4. "Требования к отдельным частям проекта" (в том числе к системам автоматизации, электроснабжения, тепловой изоляции, химзащите, промвентиляции и к строительной части проекта - фундаментам и др.), в которых приводят данные, полученные Гипрохиммонтажем от специализированных институтов Минмонтажспецстроя СССР.

3.2.5. Другие требования (по решению монтажных и других заинтересованных организаций), в том числе основание для разработки исходных данных (монтажных) - наименование и номер документа генпроектировщика, треста и других организаций, представляющих исходные материалы.

3.3. Пример исходных данных приведен в обязательном приложении 2.

4. ТЕХНОЛОГИЧЕСКАЯ ЧАСТЬ РАБОЧЕГО ПРОЕКТА (ПРОЕКТА)

4.1. Разработку технологической части рабочего проекта (проекта) для строительства объекта с применением блоков осуществляют в следующем порядке (обязательное приложение 3):

разрабатывают технологическую схему с определением состава блоков. Проектные организации при разработке рабочего проекта (проекта) согласовывают состав, габаритные размеры и массу блоков, принятых в рабочем проекте (проекте), с Гипрохиммонтажем. Состав блоков должен приниматься в соответствии с приложением 1 к данному документу;

по схеме группируют блоки одного наименования и рассматривают возможность внутрипроектной унификации;

определяют компоновку (с разработкой эскиза на блок) и габаритные размеры блока;

компонуют технологический узел из блоков;

выдают задания смежным отделам.

4.2. Состав и правила оформления технологической части рабочего проекта (проекта) принимают в соответствии со стандартами СПДС, действующими нормативными документами с учетом следующих дополнений:

блок-схема (в состав проекта не включают, а используют при разработке рабочей документации при необходимости);

эскизы блоков (в состав проекта не включают, а используют при разработке рабочей документации);

по оформлению: на технологическую схему наносят границы блоков; на чертеже расположения оборудования показывают контуры и маркировку блоков.

5. РАБОЧАЯ ДОКУМЕНТАЦИЯ

5.1. Перед разработкой рабочей документации следует в соответствии с заключением экспертизы по проекту уточнить:

а) состав блоков;

б) перечень средств для ремонта;

в) перечень средств для транспортирования и монтажа;

г) условия поставки оборудования (технологический комплекс или разрозненное оборудование).

Исходные данные по "а" - разработчик рабочей документации; по "б" и "г" - заказчик; по "в" - Гипрохиммонтаж.

5.2. Рабочие чертежи блоков и рабочие чертежи марки ТХ выполняют по ГОСТ 21.401-88.


Приложение 1

Обязательное

НОМЕНКЛАТУРА БЛОКОВ

Блок

Обозначение

Группа сложности

Состав блока

 

Основной аппарат

Узлы вспомогательного назначения

 

теплообмена

нагнетания

хранения

перекачки

фильтрации

вакуумирования

компримирования

Абсорбции

БА

III

Абсорбер

+

+

+

+

-

+

+

Адсорбции

БАд

I

Адсорбер

-

-

-

-

-

-

-

Вакуумирования

БВак

III

Вакуум-насос

+

+

+

-

-

-

-

Дистилляции

БД

III

Колонна

+

+

+

+

-

+

-

Конденсации

БКон

III

Кожухотрубчатый теплообменник

+

+

+

-

-

-

-

Компримирования

БКом

I

Компрессор

-

-

-

-

-

-

-

Нагрева

БНаг

I

Печь

-

-

-

-

-

-

-

Нагнетания

БН

I

Насос

-

-

-

-

-

-

-

Отстаивания

БОт

III

Отстойник

+

+

+

-

-

-

-

Охлаждения

БОх

I

Холодильник

-

-

-

-

-

-

-

Перекачки

БП

II

Емкость

-

+

-

-

-

-

-

Смешения

Бсмеш

III

Смеситель

+

+

+

-

-

-

-

Сушки

Бсуш

III

Сушилка

+

+

+

-

-

+

+

Фильтрования

БФ

III

Фильтр

+

+

+

+

-

+

+

Химпроцесса

БХ

III

Реактор

+

+

+

+

+

+

+

Хранения

БХр

I

Емкость

-

-

-

-

-

-

-

Экстрагирования

БЭ

III

Экстрактор

+

+

+

-

-

+

+

Примечания: 1. Состав блоков указан ориентировочно.

2. Для узлов вспомогательного назначения используют, как правило, блоки группы I. Если блоки группы I входят в состав блоков групп II и III, а групп I и II в группу III, они являются узлами соответствующего блока.

3. Группа I - блок, состоящий из аппаратов и машин одного наименования. Группа II - блок вспомогательного назначения одного наименования. Группа III - блок в составе основного аппарата двух и более узлов вспомогательного назначения.

4. При необходимости номенклатура блоков может быть расширена.


Приложение 2

Обязательное

УТВЕРЖДАЮ

Главный инженер института

Гипрохиммонтаж

________________________

"___" _____________ 198 г.

ИСХОДНЫЕ ДАННЫЕ (МОНТАЖНЫЕ) НА РАЗРАБОТКУ ПРОЕКТНОЙ ДОКУМЕНТАЦИИ С ПРИМЕНЕНИЕМ БЛОКОВ

___________________________________________________________________________

(наименование объекта строительства, комплекса, производства, установки)

___________________________________________________________________________

1. Общие технические требования

1.1. В проектно-сметной документации должно быть обеспечено выполнение требований нормативных документов:

ВСН 514/25-89 "Требования к проектированию объектов по производству минеральных удобрений с применением блоков. Технология производства".

Постановление ГКНТ СССР, Госплана СССР, Госстандарта СССР, Госснаба СССР от 12 декабря 1986 г. № 617/233/9/184/53 об утверждении "Положения о проектировании, производстве, поставке, вводе в эксплуатацию, наладке и доводке комплексов, машин, оборудования и приборов, поставляемых комплектно потребителям".

СНиП 3.01.01-85 "Организация строительного производства".

СНиП 3.05.05-84 "Технологическое оборудование и технологические трубопроводы".

ГОСТ 24444-87 "Оборудование технологическое. Общие требования монтажной технологичности".

ГОСТ 21.401-88 "Система проектной документации для строительства. Технология производства. Основные требования к рабочим чертежам".

___________________________________________________________________________

(наименование новых нормативных документов по мере их выхода)

___________________________________________________________________________

1.2. При разработке рекомендуется использовать методические документы:

"Рекомендации по типизации блоков основных процессов химической технологии" ВНИИмонтажспецстроя (М., 1986).

"Рекомендации по классификации архитектурно-строительных решений промышленных объектов в комплектно-блочном пополнении" ЦНИИПромзданий (М., 1986).

Пособие "Образцы выполнения рабочей документации марки ТХ" ВНИИмонтажспецстроя (М., 1988).

Пособие "Образцы выполнения рабочих чертежей технологического блока" ВНИИмонтажспецстроя (М., 1988).

1.3. При разработке проектной документации на стадии "Рабочий проект (проект)" в ПОСе или исходных данных для ПОСа, передаваемых проектной субподрядной организацией генпроектировщику, должны устанавливаться допустимые размеры и масса поставочных и монтажных узлов, необходимость площадки укрупнительной сборки (полигон), дорог.

1.4. При разработке РД (рабочая документация) предусмотреть агрегирование на общих базовых конструкциях оборудования в составе блока в поставочные и монтажные узлы, размеры которых принять в соответствии с ПОС.

1.5. Условия комплектования.

2. Условия производства монтажных работ

2.1. Предельные размеры и масса поставочных узлов, собираемых на производственной базе Минмонтажспецстроя СССР _____________________________

(наименование базы)

длина, м, до                                                                   _____________________________

ширина, м, до                                                                _____________________________

высота, м, до                                                                 _____________________________

масса, т, до                                                                    _____________________________

_____________________________

2.2. Расстояние от производственной базы до места монтажа, км, до

_____________________________

2.3. Транспортные средства перевозки поставочных и монтажных узлов

_____________________________

_____________________________

_____________________________

(типы и марка)

2.4. Грузоподъемные средства для монтажа блоков

_____________________________

_____________________________

_____________________________

(типы и марка)

_____________________________

_____________________________

3. Требования к отдельным частям проекта

(по представлению специализированных и других организаций Минмонтажспецстроя СССР)

3.1. Строительная часть                                               _____________________________

_____________________________

_____________________________

_____________________________

3.2. Электроснабжение                                                _____________________________

3.3. Автоматизация                                                      _____________________________

3.4. Тепловая изоляция                                                _____________________________

3.5. Антикоррозионная защита                                   _____________________________

_____________________________

3.6. Сантехнические устройства

и промышленная вентиляция                                          _____________________________

4. Другие требования

(по решению монтажных и других заинтересованных организаций)

_____________________________

_____________________________

_____________________________

5. Основание

для разработки исходных данных (монтажных)

_____________________________

(наименование и номер документа

генпроектировщика, треста и других

организаций, представляющих исходные

данные)

Разработчик исходных данных

(представитель Гипрохиммонтажа)      ______________     _________________________

подпись                                   Ф.И.О., должность

Приложение 3

Обязательное

ПРАВИЛА ВЫПОЛНЕНИЯ ТЕХНОЛОГИЧЕСКОЙ ЧАСТИ РАБОЧЕГО ПРОЕКТА (ПРОЕКТА)

1. Технологическая схема

1.1. На технологическую схему штрихпунктирными линиями наносят границы блоков.

1.2. Состав блока определяют в соответствии с обязательным приложением 1.

1.3. Блокам дают обозначения:

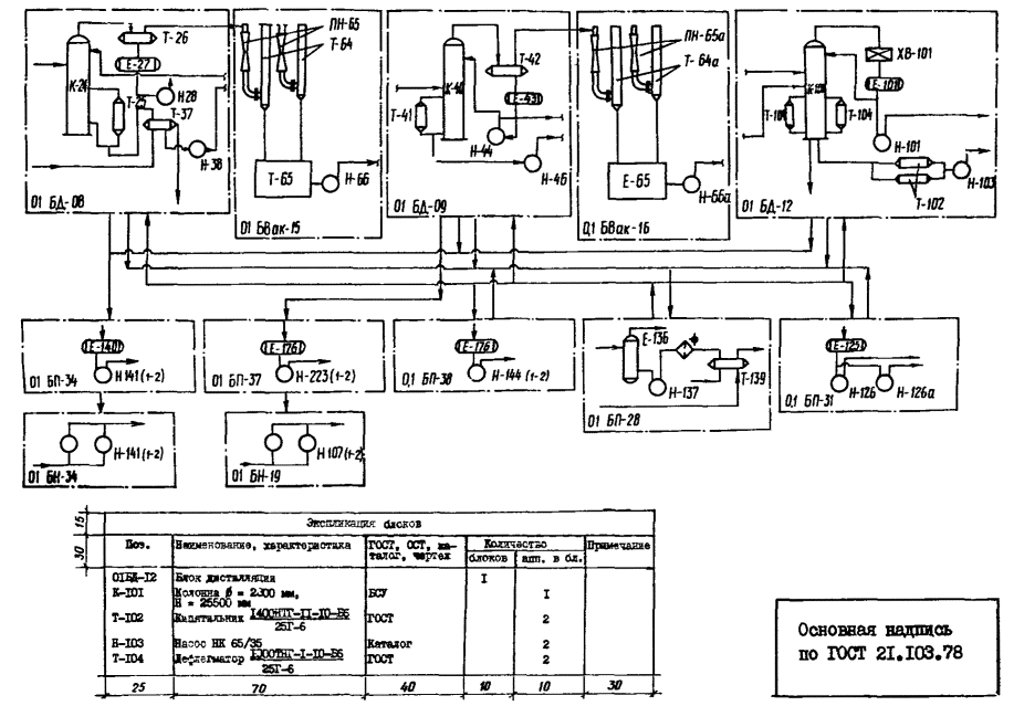
Пример обозначения: 01 БД - 12,

где 01 - номер технологического узла;

БД - блок дистилляции - по номенклатуре (обязательное приложение 1);

12 - номер по порядку.

1.4. На схеме приводят экспликацию оборудования по блокам.

1.5. Рекомендуемое оформление схемы приведено на рис. 1.

2. Компоновка блока

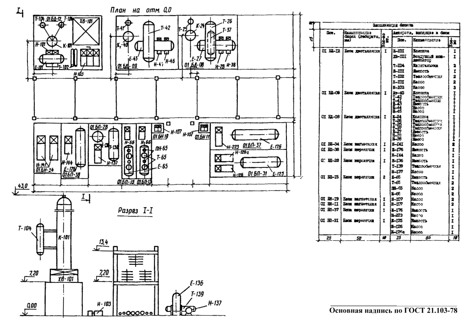
2.1. Компоновку осуществляют на опорной модульной сетке с ячейками размерами 1500´1500 мм. Размеры блока в плане должны быть кратными 1500, конфигурация блока - прямоугольной. По периметру блока должна быть оставлена зона, свободная от оборудования, шириной 375 мм.

Пример компоновки блока приведен на рис. 2 и 3.

При компоновке блока должны быть предусмотрены:

трассировка основных трубопроводов, определяющих компоновку и размер блока;

демонтаж оборудования или отдельных его узлов передвижными грузоподъемными или другими грузоподъемными средствами, указанными в задании на проектирование;

компактность расположения оборудования с соблюдением минимальных нормативных разрывов между машинами и аппаратами.

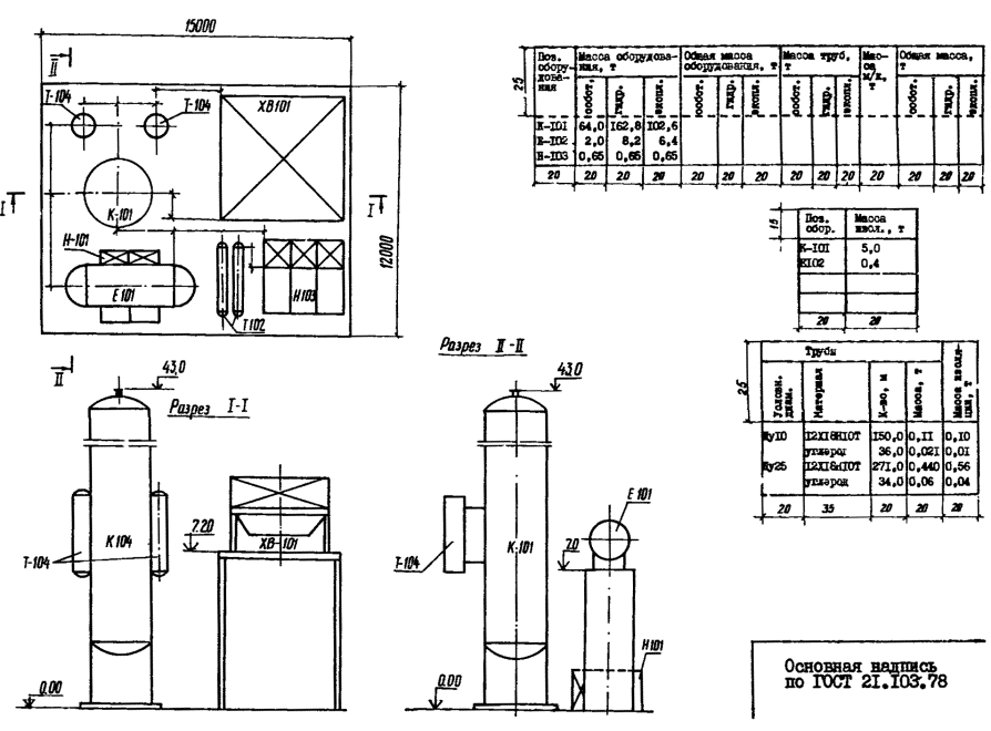
2.2. Выполняют эскиз блока (пример приведен на рис. 4). На эскизе приводят план и разрез блока, необходимые для понимания его компоновки, и экспликацию на блок. На эскизе блока наносят оси блока, привязочные размеры оборудования к осям блоков и габаритные размеры. При заполнении граф экспликации, касающихся массы блока, следует учитывать все составляющие блока (оборудование, трубопроводы, металлоконструкции, изоляцию и т.д.). Масса трубопроводов и металлоконструкций может быть ориентировочно определена для блоков группы сложности I:

Мтр = 0,25 + 0,3 Моб;

Ммк = 0,1 + 0,15 Моб;

Моб - масса оборудования;

Мтр - масса трубопроводов;

Ммк - масса металлоконструкций.


Рис. 1. Пример разбивки технологической схемы на блоки


Рис. 2. Пример выбора конфигурации и геометрических параметров блока

Рис. 3. Компоновка блоков группы сложности II

3. Компоновка технологического узла из блоков

3.1. Компоновку технологического узла осуществляют на основе следующих элементов: технологических блоков, блоков коммуникаций и оборудования, не входящего в блоки.

3.2. Для компоновки технологического узла необходима следующая информация:

полный набор блоков с размерами компоновочных габаритов и вводами-выводами коммуникаций;

отметки расположения блоков.


Рис. 4. Пример выполнения эскиза блока

Рис. 5. Пример выполнения компоновки технологического узла


3.3. Компоновку объекта осуществляют в такой последовательности (рис. 5):

на опорной модульной сетке (1500´1500 мм) намечают трассу технического коридора;

с обеих сторон технического коридора определяют зоны размещения блоков; при этом связь между двумя рядом стоящими блоками осуществляется по грани примыкания блоков друг к другу; связь с другими блоками, вход (выход) с установки и связь с коллекторами прокладывают в техническом коридоре;

намечают места расположения лестничных клеток, проходов и пр.;

в соответствии с блок-схемой и информацией о блоках, а также исходя из энергетических потерь, расхода легированных труб и др. определяют объемно-планировочную структуру объекта;

на основе информации о блоках составляют схему трассировки технологических коммуникаций;

определяют ширину и количество ярусов технического коридора в такой последовательности: определяют количество технологических трубопроводов, проходящих по коридору; определяют наличие в техническом коридоре электроснабжения, КИПиА, вентиляции и т.д.; определяют схему их зонирования.

Рис. 6. Схемы формирования объекта:

а - однорядная; б - многорядная

Рис. 7. Схемы трассировки технического коридора:

1 - технический коридор; 2 - зоны размещения блоков

3.4. По компоновочным габаритам блоков и отметкам их расположения с учетом размеров технического коридора определяют габариты и количество этажей объекта.

3.5. Блоки можно компоновать по двум схемам - однорядной и многорядной.

3.6. При компоновке технологического узла блоки устанавливают вплотную друг к другу по компоновочному габариту. Допускается из условия эксплуатации, ремонта предусмотреть необходимые разрывы.

3.7. Трассировка технического коридора, а следовательно, и компоновка объекта в целом в зависимости от конкретных условий может быть линейной, крестовой, фигурной и пр. (рис. 6 и 7).

3.8. Оформляют чертеж компоновки объекта. Пример выполнения приведен на черт. 5. На чертеже приводят планы, разрезы и экспликацию блоков и наносят:

размеры объекта;

размеры блоков;

привязочные размеры блоков к строительным конструкциям;

позиции блоков.

3.9. В соответствии с разработанной компоновкой технологического узла на эскизе блока уточняют ориентацию трубопроводов.

Приложение 4

Обязательное

ТЕРМИНОЛОГИЯ

Термин

Определение

Объект

Совокупность технологических узлов и межузловых связей

Увел технологический

По ГОСТ 21.401 - 88

Блок-схема

Схема, определяющая взаимосвязь блоков

Технический коридор

Часть установки, в которой сосредотачиваются все виды внеблочных коммуникаций

Блок технологический

Блок оборудования, предназначенный для осуществления теплообменных, массообменных, газообменных, гидродинамических, химических, биологических и механических процессов

Блок агрегированного оборудования

Блок оборудования

Блок, предназначенный для реализации технологических и инженерных функций, а также функций контроля и управления в системе объекта.

Примечания: 1. В состав блоков оборудования включают машины, аппараты, приборы, опорные конструкции под них и связи между ними, а также другие изделия.

2. Блоки оборудования поставляют и устанавливают в проектное положение целиком или частями - поставочными и монтажными узлами. Поставочный узел - блок оборудования или его часть, габаритные размеры и масса которых соответствуют транспортным средствам, предусмотренным проектом организации строительства. Монтажный узел - блок оборудования или его часть, масса и габаритные размеры которых соответствуют грузоподъемным средствам, предусмотренным проектом организации строительства

Блок коммуникаций

Объединенные в сборочную единицу коммуникации и опорные конструкции под них

Узел вспомогательного назначения (УВН)

Часть блока групп II и III, выполняющая вспомогательные технологические функции

Опорная конструкция

Конструкция, на которой собирают составные части блока.

Примечание. Следует различать постоянные опорные конструкции, используемые при эксплуатации блока, и временные (инвентарные), используемые для транспортирования и установки в проектное положение

Заводская готовность

Уровень завершенности изготовления изделия при передаче его в монтаж.

Примечания: 1. Завершенность изготовления измеряется трудоемкостью монтажа или эквивалентными показателями (количество ПУ, соединений и т.п.).

2. Правила определения уровня заводской готовности устанавливают в нормативных документах

Монтажная готовность

Уровень завершенности сборки изделия перед его установкой в проектное положение

СОДЕРЖАНИЕ

1. Общие положения. 1

2. Требования к техническим решениям объектов с применением блоков. 2

3. Требования к заданию на проектирование. 3

4. Технологическая часть рабочего проекта (проекта) 4

5. Рабочая документация. 4

Приложение 1 Номенклатура блоков. 5

Приложение 2 Исходные данные (монтажные) на разработку проектной документации с применением блоков. 6

Приложение 3 Правила выполнения технологической части рабочего проекта (проекта) 7

Приложение 4 Терминология. 13

 

2008-2013. ГОСТы, СНиПы, СанПиНы - Нормативные документы - стандарты.