ПРАВИТЕЛЬСТВО МОСКВЫ
МОСКОМАРХИТЕКТУРА
РЕКОМЕНДАЦИИ
по реконструкции сети и зданий
предприятий торговли, общественного питания и бытового обслуживания при
комплексной реконструкции районов пятиэтажной застройки первых этапов
индустриального домостроения
2000
ПРЕДИСЛОВИЕ
1. РАЗРАБОТАНЫ Московским научно-исследовательским и проектным институтом типологии, экспериментального проектирования (МНИИТЭП ) Авторы: - канд. арх. К.Л. Красильникова (руководитель темы), канд. техн. наук В.А. Максименко, при участии канд. арх. К.М. Амбарцумян.
2. СОГЛАСОВАНЫ с Департаментом потребительского рынка и услуг, Москомархитектурой.
3. ПОДГОТОВЛЕНЫ к утверждению и изданию Управлением перспективного проектирования и нормативов Москомархитектуры (архитектор Л.А. Шалов, инженер Ю.Б. Щипанов).
4. УТВЕРЖДЕНЫ Указанием Москомархитектуры от 01.06.00 № 22
Содержание
|
6.1. Общие принципы модернизации и реконструкции зданий. ВАРИАНТЫ РАЗМЕЩЕНИЯ ПРЕДПРИЯТИЙ ТОРГОВЛИ, ОБЩЕСТВЕННОГО ПИТАНИЯ, БЫТОВОГО ОБСЛУЖИВАНИЯ
|
Настоящие Рекомендации разработаны в дополнение к нормативно-методическим документам в строительстве, действующим на территории г. Москвы, и распространяются на проектирование реконструкции и модернизации сети и зданий предприятий торговли, общественного питания, бытового обслуживания при комплексной реконструкции районов пятиэтажной застройки первых этапов индустриального домостроения.
Рекомендации представляют собой методическое пособие, позволяющее выбрать оптимальный вариант модернизации сети торгово-бытового обслуживания для различных приемов комплексной реконструкции жилых районов (микрорайонов) пятиэтажной застройки, а также оптимальные варианты реконструкции зданий предприятий торговли, общественного питания и бытового обслуживания в этих районах.
Рекомендации содержат предложения по номенклатуре предприятий и вариантам их размещения во встроенных, встроенно-пристроенных или отдельно стоящих зданиях.
Проблема комплексной реконструкции пятиэтажной жилой застройки первых этапов индустриального домостроения находится сейчас в ряду главных задач отечественного градостроительства.
Научно-исследовательские и проектно-экспериментальные работы в области массовой застройки жилых районов и микрорайонов, где параллельно с жилищным строительством предусматривалось строительство общественных зданий, широко развернулись уже в послевоенный период.
Академией строительства и архитектуры СССР в это время была разработана градостроительная концепция формирования жилой застройки и системы культурно-бытового обслуживания населения, в соответствии с которой каждому градостроительному образованию должна была соответствовать ступень обслуживания: жилому району - периодическое обслуживание, микрорайону - повседневное и приближенное.
В дальнейшем, эти положения были закреплены в нормативных документах: Строительных нормах и правилах (СНиП) «Планировка и застройка городских и сельских поселений» 2.07.01-89, «Нормах и правилах проектирования планировки и застройки Москвы» МГСН 1.01-99.
С конца 50-х - начала 60-х годов в Москве и других городах Советского Союза, в соответствии с названной выше градостроительной концепцией, разворачивается комплексная застройка жилых районов пятиэтажными домами первого периода индустриального домостроения и общественными зданиями.
Эти районы явились полигоном для отработки основных принципов формирования жилой застройки системы культурно-бытового обслуживания и типов жилых и общественных зданий.
За прошедшие десятилетия произошло физическое и моральное старение жилых и общественных зданий, что перестало соответствовать достижениям научно-технического прогресса, новым технологиям, современным требованиям к комфорту и архитектурно-пространственному решению жилой среды. Все это привело к необходимости комплексной реконструкции жилой застройки прошедшего периода.
Постановлением Правительства Москвы от 24.10.95 года № 876 «О ходе реализации программы комплексной реконструкции массовой жилой застройки первого периода индустриального домостроения на период до 2000 года» определены районы пятиэтажной застройки, подлежащие комплексной реконструкции в период 1997-2000 годов.
В связи с этим московскими организациями (НИИиПИ Генплана, ОАО Моспроект, Моспроект 2, ГУЛ МНИИТЭПом) был разработан ряд проектных предложений и проектов застройки по комплексной реконструкции районов: Новые Черемушки, Хорошево-Мневники, Квартал 32-33 на Проспекте Вернадского, Волхонка-Зил и др. Многие из них воплощаются в жизнь.
Как правило, основное внимание в этих проектах сосредоточено на реконструкции жилых домов, тогда как предложения по модернизации сети и зданий предприятий торгово-бытового обслуживания практически отсутствуют.
Анализ существующего положения сетей обслуживания показывает, что потребность в предприятиях торговли, общественного питания и бытового обслуживания при комплексной реконструкции возрастает в среднем в 1,5-2 раза, что объясняется увеличением как населения в районах, так и самих нормативов обеспеченности предприятиями обслуживания, по сравнению с 60-ми годами.
Реконструкция сети и зданий торгово-бытового обслуживания решает задачу не только обеспечения потребности населения в предприятиях, но и создания полноценной архитектурно-пространственной среды.
В качестве основного градостроительного элемента в районах пятиэтажной застройки первого этапа индустриального домостроения был принят микрорайон, территория которого составляла от 20 до 40-45 га с населением от 6-8 до 12-14 тыс. человек.
Для таких микрорайонов в САКБ (позднее МНИИТЭП) с середины 50-х годов началась разработка типовых проектов блоков обслуживания, включающих предприятия торговли, общественного питания, бытового обслуживания, отделения связи и пр., предназначенных для обеспечения населения основными видами повседневного обслуживания в пределах пешеходной доступности. Из сочетания этих блоков составлялись микрорайонные центры обслуживания.
Однако строительство микрорайонных центров в московской практике не получило широкого применения. Несколько подобных центров построено в Новых Черемушках - 10й экспериментальный квартал, 24-25 кварталы, квартал 32-33 на Проспекте Вернадского и др. В дальнейшем осуществлялось в основном строительство отдельных блоков обслуживания.
Организация системы торгово-бытового обслуживания в районах комплексной пятиэтажной застройки первого периода индустриального домостроения почти повсеместно представляет картину, характерную для конца 50-х начала 60-х годов. Это отдельно стоящие двухэтажные блоки обслуживания, расположенные вдоль магистралей между 5 этажными жилыми домами, обращенными торцами или фасадами к улице (Кузьминки, Хорошево-Мневники, Волхонка-Зил и др.)
Блоки обслуживания, существующие сегодня в районах реконструкции пятиэтажной застройки - это 2-х этажные кирпичные здания с внутренним железобетонным каркасом (с шагом 6´6 м) или продольной кирпичной стеной, различных конфигураций. Их можно условно подразделить на 4 основные группы (см. таблицу 1):
1 группа - серии IХ-01-18, IХ-01-19, IХ-01-21 (размеры в плане 48´12 м, с подвалом);
2 группа - серии IХ-01-14, IХ-01-22, IХ-01-25, IХ-01-27, IХ-01-28 (размеры в плане 24´12 м, с подвалом и IX-01-11, без подвала);
3 группа - серии IХ-01-12А и IХ-01-29А (размеры в плане 36´18 м и 42´18 м, с подвалом);
4 группа - с продольной кирпичной стеной серии IХ-01-10 (размер в плане 26,40´12 м), IХ-01-24, IХ-01-07, IХ-01-26, IХ-01-23 (размеры в плане 24´12 м, с подвалом и без подвала).
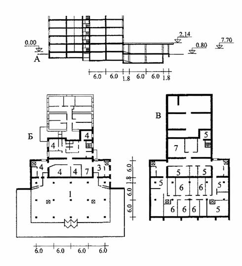
Блоки обслуживания различаются составом и мощностью предприятий. Блоки обслуживания 1 группы - типовые проекты IХ-01-18 и IХ-01-19, включают продовольственные и промтоварные магазины, торговой площадью около 400 м2 (на 1 этаже) и предприятия бытового обслуживания: комбинат бытового обслуживания (КБО), или ателье пошива верхнего платья (на 2 этаже), а типовой проект IХ-01-21 - двухэтажный универмаг, торговой площадью около 800 м2 (рис. 1, 2).
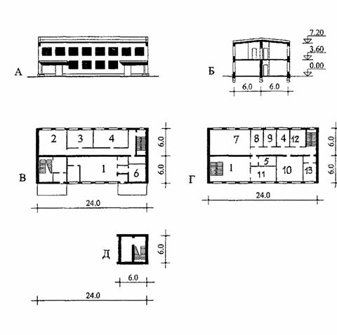
Блоки обслуживания 2 группы (типовые проекты IХ-01-14, IХ-01-15) включают продовольственный и промтоварный магазины, торговой площадью порядка 200 м2 - на 1 этаже, комбинат бытового обслуживания, или мастерские ремонта белья и вязки трикотажа, или мастерские ремонта обуви - на 2 этаже (рис. 5). В других блоках обслуживания запроектированы магазин книги (на двух этажах), булочная и галантерея (на 2-ом этаже), столовая на 80 мест и комбинат бытового обслуживания (на 2-ом этаже), продовольственный магазин и пирожковая (на 2-ом этаже), отделение связи.
Блоки обслуживания 3 группы (трехпролетные) включают достаточно крупные предприятия общественного питания. В типовом проекте IХ-01-12А запроектирована в 2-х этажах столовая с 3 залами на 194 места и закусочная на 76 мест общей вместимостью 270 мест (рис. 3, 4); В другом проекте - столовая-заготовочная с обеденными залами на 80 мест и магазином кулинария.
Блоки обслуживания 4 группы (с продольной кирпичной стеной) - включают в основном предприятия бытового и административно-хозяйственного назначения: домоуправление, аптека, парикмахерская, отделение милиции, комбинат бытового обслуживания и др. (рис. 6).
Рис. 1. ТИПОВОЙ ПРОЕКТ IХ-01-21
Универсальный магазин (непродовольственный) торговой площадью 800 м2
А - фасад, Б - план первого этажа, В - план второго этажа, Г - план подвала.
1 - торговый зал, 2 - приемочные, 3 - подготовка товаров, 4 – административные помещения, 5 - кладовые, 6 - бытовые помещения, 7 - хозяйственный двор
Рабочая площадь 1397 м2. Полезная площадь 1529 м2.
Рис. 2. ТИПОВОЙ ПРОЕКТ IX-01-18
Продовольственный магазин, торговой площадью 404 м2 (1 этаж, подвал), комбинат бытового обслуживания (2 этаж).
А – фасад, Б - план 1 этажа, Г - план подвала.
1 - торговый зал, 2 - стол заказов, 3 - приемочные, 4 - контора, 5 - кладовые продуктов, 6 - холодильные камеры, 7 - бытовые и подсобные помещения, 8 - кладовая стола заказов, 9 - хозяйственный двор.
В - план второго этажа.
10 - зал приема заказов, 11 - производственные цеха, 12 - примерочные, 13 - кладовые, 14 - кладовая химчистки, 15 - административно-бытовые помещения.
Рабочая площадь магазина - 883 м2. Полезная площадь - 963 м2
Рабочая площадь КБО - 408 м2. Полезная площадь КБО - 497 м2.
Рис. 3. ТИПОВОЙ ПРОЕКТ IХ-01-12А
Столовая и закусочная на 270 мест.
А - фасад, Б - план первого этажа.
1 - вестибюль с гардеробом, 2 - закусочная, 3 - обеденный зал, 4 - горячий цех, 6 - производственные цеха, 7 - холодильные камеры, 8 - моечная посуды, 9 - хозяйственный двор, 10 - склад тары, 11 - летнее кафе /терраса/.
Рабочая площадь - 1570 м2. Полезная площадь - 1830 м2.
Рис. 4. ТИПОВОЙ ПРОЕКТ IХ-01-12А
Столовая закусочная на 270 мест.
А - разрез 1-1, Б - план 2 этажа, В - план подвала.
1 - обеденные залы, 2 - горячие цеха, 3 - холодные цеха, 4 - производственные цеха, 5 - моечные посуды, 6 - холодильные камеры, 7 - кладовые продуктов, 8 - административно-бытовые помещения.
Рис. 5. ТИПОВОЙ ПРОЕКТ IХ-01-15
Промтоварный магазин торговой площадью 200 м2 (1 этаж и подвал) мастерская ремонта обуви,(2 этаж)
А - фасад, Б - разрез, В - план 1 этажа, Г - план 2 этажа, Д - план подвала
1 - торговый зал, 2 - загрузочные, 3 - контора, 4 - кладовые, 5 - бытовые помещения, 6 - технические помещения, 7 - хозяйственный двор, 8 - прием и выдача заказов, 9 - производственный цех, 10 - починка резиновой обуви, 11 - заготовочная, 12 - кладовая, 13 - окраска обуви, 14 - административно-бытовые помещения
Рабочая площадь магазина - 451 м2, полезная площадь - 463 м2.
Рабочая площадь мастерской - 195 м2, полезная площадь - 218 м2.
Вариант - типовой проект IХ-01-14.
Продовольственный магазин торговой площадью 200 м2 (1 этаж и подвал), мастерская ремонта белья и вязки трикотажных изделий (2 этаж).
Рис. 6. ТИПОВОЙ ПРОЕКТ IХ-01-24
Комбинат бытового обслуживания
А - фасад, Б - разрез, В - план 1 этажа, Г - план 2 этажа, Д - план подвала.
1 - салоны, 2 - ремонт верхнего платья, 3 - ремонт трикотажа, 4 - ремонт легкого платья, 5 - кладовые, 6 - комната персонала, 7 - ремонт обуви, 8 - ремонт кукол, 9 - ремонт кожгалантереи, 10 - ремонт головных уборов, 11 - ремонт часов, 12 - гардероб, 13 - контора
Рабочая площадь - 378,8 м2, Полезная площадь - 463 м2.
Большинство блоков обслуживания имеют хозяйственный двор с заднего фасада, предназначенный для размещения подсобных помещений, складирования и загрузки товаров. Почти все блоки обслуживания имеют подвалы, где размещаются кладовые и другие подсобные помещения.
В середине 60-х годов в МНИИТЭПе были запроектированы 9 и 12 этажные жилые дома со встроенными целиком в габариты здания и встроенно-пристроенными предприятиями обслуживания.
Включение в пятиэтажную застройку 9 и 12 этажных жилых домов предназначалось для увеличения плотности жилого фонда и архитектурного оформления магистралей.
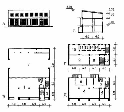
Таковы типовые проекты 9 этажных крупнопанельных домов серии 1-515-4/9 М со встроенными продовольственными или промтоварными магазинами. Магазины значительной вместимости (торговой площадью 900 м2) занимают весь первый этаж и подвал, с загрузкой с 2-х торцов здания (рис. 7).
Встроенно-пристроенные к жилым домам блоки обслуживания - одноэтажные, с внутренним железобетонным каркасом, включают продовольственные и непродовольственные магазины, различающиеся площадями и конфигурацией. Все они с подвалами и загрузкой с торцов магазинов. Это достаточно крупные предприятия. Таковы встроенно-пристроенные к 12 этажным домам продовольственный магазин, торговой площадью 730 м2, (типовой проект серии 11-18-31-12), продовольственный и промтоварный магазины, торговой площадью соответственно 620 м2 и 640 м2 (типовые проекты П-18-31/12А).
Два других магазина меньшей вместимости (продовольственный, торговой площадью 415 м2, и промтоварный, торговой площадью 430 м2) также встроенно-пристроенные к 12 этажным домам (типовые проекты П-18-21/12 и П-18-21/12А), рис. 8.
Начиная с 70-х годов МНИИТЭПом были разработаны типовые проекты 1-2-х этажных зданий в каркасно-панельных конструкциях (серии IХ-16, IХ-17 - унифицированные объемы). Они включают магазины продовольственные и непродовольственные (на 20, 30, 50 рабочих мест), кафе-столовые на 150, 200 посадочных мест, мастерские бытового обслуживания, отделения связи - в расчете на обслуживание более крупных микрорайонов на 10-12, 15 и 18 тыс. жителей. Однако в пятиэтажной застройке первого этапа индустриального домостроения они применения практически не имели.
В более поздний период, с началом строительства 16-17 этажных жилых домов типовых серий П-44, П-3 и др., система обслуживания дополняется встроенными и встроенно-пристроенными предприятиями торговли и бытового обслуживания в первых этажах этих зданий.

Рис. 7. 9 ЭТАЖНЫЙ КРУПНОПАНЕЛЬНЫЙ ДОМ СЕРИИ 1-515- 4/9 М
с продовольственным магазином торговой площадью - 890 м2
А - фасад, Б - план 1 этажа, В - план подвала.
1 - торговый зал, 2 - кафетерий и стол заказов, 3 - разгрузочные, 4 - административно-бытовые помещения, 5 - кладовые продуктов, 6 - холодильные камеры, 7 - кладовые тары.
Рис. 8. 12 ЭТАЖНЫЙ ЖИЛОЙ ДОМ СЕРИИ П-18-21/12
со встроенно-пристроенным продовольственным магазином торговой площадью 414 м2
А - разрез, Б - план 1 этажа, В - план подвала.
1 - торговый зал, 2 - стол заказов, 3 - загрузочные, 4 - административно-бытовые помещения, 5 - кладовые продуктов, 6 - охлаждаемые камеры, 7 - кладовые тары, 8 - техническое подполье жилого дома.
Рабочая площадь - 950 м2. Полезная площадь - 1060 м2.
В результате к середине 90-х годов - началу периода комплексной реконструкции, система обслуживания районов пятиэтажной застройки слагается из отдельно стоящих двухэтажных зданий торгово-бытового обслуживания (реже центров), разработанных в 50-х годах, в сочетании с предприятиями обслуживания встроенными, встроенно-пристроенными и пристроенными к 9-12-17 этажным жилым домам разного периода строительства, расположенными по периметру микрорайонов вдоль магистралей.
Предприятия обслуживания, встроенные в габариты пятиэтажных домов встречаются значительно реже. Это в основном небольшие предприятия бытового обслуживания (приемные пункты прачечных и химчисток) иди мелкие магазины (булочные, продукты). Пятиэтажные жилые дома со встроенными предприятиями обслуживания располагаются чаще всего внутри жилой застройки вдоль пешеходных улиц.
4.1. При проведении модернизации сети предприятий необходимо соблюдать основные принципы организации системы торгово-бытового обслуживания - обеспечения проживающего населения товарами и услугами повседневной необходимости в пределах пешеходной доступности (500 м).
Реконструктивные мероприятия должны быть направлены на сохранение и восполнение сети социально значимыми объектами приближенного, повседневного и периодического обслуживания в жилых районах (микрорайонах) и на формирование из них торгово-бытовых комплексов (центров).
Основными предприятиями повседневной необходимости должны явиться: универсальный продовольственный магазин умеренных цен, типа «Универсам», магазины «продукты», «диетические продукты»; непродовольственные магазины с полным ассортиментом: хозтовары, бытовая химия, галантерея-парфюмерия, товары для детей и др.; предприятия общественного питания: кафе, закусочные, столовые, диетические столовые, магазины кулинарии; предприятия бытового обслуживания: приемные пункты прачечных и химчисток, прачечные самообслуживания, мини-прачечные и мини-химчистки, мастерские мелкого ремонта обуви, металлоизделий, кожгалантереи и др., ателье по пошиву и ремонту одежды, головных уборов и трикотажных изделий, парикмахерские, фотографии, бюро услуг и пр.
Они должны рассчитываться и назначаться в соответствии с нормативными показателями МГСН 1-01-99 «Нормы и правила проектирования планировки и застройки Москвы», МГСН 4-13-97 «Предприятия розничной торговли», МГСН 4-14-98 «Предприятия общественного питания», МГСН 4-18-99 «Предприятия бытового обслуживания населения».
4.2. Модернизацию сети предприятий торгово-бытового обслуживания рекомендуется проводить в следующих направлениях;
- модернизация существующих центров и блоков обслуживания без изменения функционального назначения предприятий;
- реконструкция существующих центров и блоков обслуживания, возможно с расширением объема предприятий, а при необходимости перепрофилированием в другие по функциональному назначению предприятия;
- дополнение существующей сети новыми предприятиями повседневного и приближенного обслуживания, размещаемыми в нижних этажах жилых домов или в пристроенных объемах к новым и реконструируемым домам;
- строительство многофункциональных зданий и общественных центров с предприятиями городского значения - преимущественно вдоль крупных магистралей или в общественных зонах.
4.3. Вышеперечисленные направления модернизации сети предприятий торгово-бытового обслуживания должны корреспондироваться с приемами комплексной реконструкции районов (микрорайонов), которые можно подразделить на три основных варианта.
Вариант 1. Преобладание реконструкции жилого фонда с сохранением части опорных зданий и с незначительным новым строительством.
Примером может служить проект застройки квартала 82 Хорошево-Мневники, разработанный проектной территориальной мастерской Северо-Западного Административного Округа НИиПИ Генплана. Здесь предусматривается в основном реконструкция пятиэтажных домов: надстраиваемый жилой фонд составляет 72 %, тогда как новое строительство: надстройка -14,6 %, а новые жилые дома - 7,0 % (два 17 этажных здания вдоль проспекта Маршала Жукова).
В таком варианте существующие центры и блоки обслуживания, соответствующие сегодняшним требованиям, целесообразно сохранять и модернизировать без изменения функционального назначения предприятий.
Общественные здания, менее сохранившиеся и морально устаревшие, следует реконструировать возможно с перепрофилированием предприятий. При необходимости возможно увеличение объема - посредством пристраивания и надстраивания существующих зданий.
Для дополнения сети можно рекомендовать размещение предприятий во встроенных, встроенно-пристроенных и пристроенных объемах к реконструируемым и новым жилым домам.
Номенклатура встроенных предприятий в соответствии с требованиями МГСН 3.01-96 «Жилые здания» и МГСН 4.18-99 «Предприятия бытового обслуживания населения», должна включать предприятия бытового обслуживания небольшой вместимости (приемные пункты прачечных и химчисток, прачечные самообслуживания, мастерские мелкого ремонта, бюро обслуживания, парикмахерские, ателье проката и др.) продовольственные и непродовольственные магазины торговой площадью до 250 м2 (встроенные) и до 400 м2 (встроенно-пристроенные), кафе и закусочные до 50 мест.
Вариант 2. Преобладание в микрорайонах (кварталах) нового строительства многоэтажных жилых домов со сносом основного жилого фонда - пятиэтажных домов «неперспективных» типовых серий, (кроме 9-12 этажных зданий более позднего периода строительства).
Например в проекте застройки квартала 24-25 Новых Черемушках, разработанном мастерской 12 ОАО Моспроект предусматривается сохранение как опорных только 9 и 16 этажные жилые дома (что составляет приблизительно 13 % от общего жилого фонда), тогда как почти все пятиэтажные здания сносятся, кроме четырех жилых домов, подлежащих реконструкции. Квартал застраивается 16-17 этажными зданиями по типовым проектам.
В проекте застройки квартала 27-32 Волхонки-Зил, выполненном мастерской 13 ОАО Моспроект, предусматривается также сохранение только 12-14 этажных жилых домов при полной замене пятиэтажных на 16-17 этажные здания серии П-44 (рис. 10).
В этих микрорайонах, значительно увеличивается население (почти в 2 раза), в связи с чем возрастает доля строительства новых предприятий торговли, общественного питания, бытового обслуживания. Здесь наиболее экономически целесообразным решением явится размещение дополнительных предприятий повседневного и приближенного обслуживания в нижних этажах новых многоэтажных домов и пристройках к ним.
Учитывая более широкие конструктивные возможности новых жилых зданий, номенклатура встроенных и встроенно-пристроенных предприятий может быть расширена и дополнена более крупными магазинами (универсамы, диетические продукты, специализированные продовольственные и непродовольственные), а также крупными предприятиями бытового обслуживания.
Во вновь строящихся многофункциональных зданиях и общественных центрах, расположенных вдоль крупных магистралей и на примыкающих к кварталам общественных территориях, возможно размещение разнообразных предприятий торгово-бытового обслуживания городского значения.
Существующие в микрорайонах блоки обслуживания целесообразно модернизировать и реконструировать. Для создания масштабного архитектурного комплекса, их можно объединять с жилыми домами переходами, формируя стилобаты вновь строящихся многоэтажных зданий.
Вариант 3. Сочетание нового строительства многоэтажных жилых домов в микрорайоне с реконструкцией жилых зданий и сохранением опорного жилого фонда в разных пропорциях. Пропорциональные соотношения нового, реконструируемого и опорного жилого фонда могут быть равными или с преобладанием объемов реконструируемого и сохраняемого жилого фонда до 80 % по отношению к новому строительству.
В этом варианте рекомендуется применять все вышеуказанные приемы модернизации сети: капитальный ремонт существующих центров и блоков обслуживания с сохранением функционального назначения предприятий;
реконструкция с увеличением объема здания, а при необходимости с перепрофилированием предприятий блоков обслуживания.
Для дополнения сети рекомендуется, как в первом варианте комплексной реконструкции, размещение небольших по вместимости предприятий торговли, общественного питания и особенно, бытового обслуживания в нижних этажах новых и реконструируемых жилых домов, или пристройках к ним.
Подобное решение сети предприятий торгово-бытового обслуживания предлагается в проекте реконструкции района Новые Черемушки (квартал 22-23), разработанном в мастерской 12 ОАО Моспроект. Здесь сохраняются и модернизируются двухэтажные общественные здания - вдоль ул. Гарибальди; реконструируются (расширяются и надстраиваются) существующие Дом Моды и ресторан - вдоль бульвара (ул. Новочеремушкинская), встраиваются и пристраиваются во вновь строящиеся 17 этажные жилые дома вдоль бульвара и в многофункциональный комплекс (по Профсоюзной ул.) новые предприятия торговли, общественного питания и бытового обслуживания.
5.1. Необходимым условием модернизации сети при комплексной реконструкции пятиэтажной застройки является определение номенклатуры и типов предприятий торговли, общественного питания, бытового обслуживания в дополнение к существующим предприятиям в соответствии с сегодняшними требованиями.
В настоящее время в проектах застройки технико-экономические характеристики ограничиваются расчетом сетей с приведением лишь количества объектов, без указания их назначения и специализации. В существующих условиях это предоставляет возможность местным властям обойти интересы и потребности населения в товарах и предметах первой необходимости и размещать предприятия по принципу их доходности.
5.2. Расчет сети и определение типов предприятий торговли, общественного питания и бытового обслуживания должен учитывать: вариант сложившейся системы торгово-бытового обслуживания, наличие существующего фонда общественных зданий в реконструируемом жилом районе (микрорайоне, квартале) и соседних прилегающих территориях; объем реконструктивных мероприятий, численность и демографию населения (до и после реконструкции) в каждом конкретном районе.
5.3. Выбор целесообразного размещения предприятий торговли, общественного питания, бытового обслуживания - в отдельно стоящих зданиях, во встроенных или встроенно-пристроенных объемах к жилым домам, зависит от ряда факторов: варианта комплексной реконструкции, состояния и наличия блоков обслуживания, а также конструктивных и объемно-планировочных решений вновь строящихся и существующих жилых домов. Рекомендуемые варианты размещения предприятий приводятся в приложении № 1.
5.4. Методика определения типов предприятий включает:
определение потребности населения в различных видах торгово-бытового обслуживания приближенного, повседневного и периодического назначения, которое производится из расчета сети, основанного на проектируемой численности населения (при норме 20 м2 на человека) и расчетных показателях, в соответствии с нормативами, приведенными в МГСН 1-01-99. «Нормы и правила проектирования планировки и застройки Москвы»;
- выявление состава и мощностей (вместимости) существующих предприятий (по результатам натурных обследований и данным администрации района);
- обследование существующих предприятий с целью определения возможности сохранения их или сноса;
- вычисление необходимых мощностей (вместимости) предприятий торговли, общественного питания бытового обслуживания как разницы между расчетными и существующими (сохраняемыми) предприятиями;
- определение номенклатуры дополнительных предприятий торговли, общественного питания и бытового обслуживания и количества объектов;
- определение типов предприятий, предназначенных для модернизации реконструкции или нового строительства и рекомендации по их объемно-пространственному решению во взаимосвязи с вариантом комплексной реконструкции микрорайона (квартала).
5.5. Расчет сети и определение типов предприятий торговли, общественного питания и бытового обслуживания для нового строительства, реконструкции и модернизации существующих объектов обслуживания для конкретных районов приводится в Приложении 1 и 2.
Для детального анализа выбраны два диаметрально противоположные варианта комплексной реконструкции: это проект застройки квартала 81 Хорошево-Мневники, разработанный мастерской 18 ОАО Моспроект (рис. 9). Здесь преобладает реконструируемый и сохраняемый жилой фонд, при незначительном новом строительстве (порядка 23 %). В проекте застройки квартала 27-32 Волхонка-Зил, наоборот преобладает новое строительство (до 88 % от объема всего жилого фонда) без реконструкции (рис. 10).
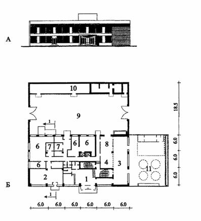
5.6. В результате проведенного расчета сети предприятий торгово-бытового обслуживания и в соответствии с вышеизложенными приемами модернизации сети в квартале 81 Хорошево-Мневники рекомендуется:
- Реконструировать с увеличением объема здания 2 этажный блок обслуживания, расположенный на углу главной магистрали - проспекта Маршала Жукова и бульвара генерала Карбышева, и перепрофилировать предприятия. На 1 этаже вместо магазина «Диета» разместить продовольственный магазин с универсальным ассортиментом (типа Универсам). На 2-ом этаже частично перепрофилировать имеющиеся специализированные непродовольственные магазины и дополнить их более полным ассортиментом товаров.
- Разместить во встроенно-пристроенных объемах к новым 17 этажным жилым домам (на проспекте Маршала Жукова) дополнительные предприятия общественного питания и предприятия бытового обслуживания: салон красоты, вынесенный из блока обслуживания, а также фото-ателье.
Реконструированный 2 этажный блок обслуживания в сочетании с новыми встроенно-пристроенными объемами составит местный линейный торгово-бытовой центр, имеющий продолжение в квартале 82 по проспекту Маршала Жукова.
Предприятия приближенного обслуживания (магазины «продукты», кафе, мастерские мелкого ремонта, приемные пункты прачечных и химчисток) целесообразно разместить в первых этажах вновь построенных 17 этажных жилых домов (серии П-44).
Предприятия городского значения, размещенные в первых этажах 9 этажных жилых домов, построенных в 60 годы вдоль городской магистрали Народного Ополчения, следует сохранить, а при необходимости - модернизировать.
Рис. 9. СХЕМА РАЗМЕЩЕНИЯ ПРЕДПРИЯТИЙ ТОРГОВО-БЫТОВОГО ОБСЛУЖИВАНИЯ В КВАРТАЛЕ 81 ХОРОШЕВО-МНЕВНИКИ

Рис. 10. СХЕМА РАЗМЕЩЕНИЯ ПРЕДПРИЯТИЙ ТОРГОВО-БЫТОВОГО ОБСЛУЖИВАНИЯ В КВАРТАЛЕ 27-32 «ВОЛХОНКА-ЗИЛ»
5.7. Модернизация сети и типов зданий предприятий торгово-бытового обслуживания в квартале 27-32 Волхонка-Зил ориентированы на значительное увеличение количества и мощностей предприятий, ввиду роста населения почти в 2 раза (в следствии большого объема нового строительства) Рис. 10.
В соответствии с разработанными приемами модернизации сети предлагается:
- сохранить и модернизировать без перепрофилирования два 2 этажных блока обслуживания на Симферопольском бульваре.
- реконструировать с увеличением объема здания 2 этажный блок обслуживания, расположенный на углу Симферопольского и Чонгарского бульваров, разместив в нем магазины самообслуживания - продовольственный на 1 этаже, непродовольственный на 2 этаже.
Наряду с реконструкцией существующих блоков обслуживания предусматривается строительство новых дополнительных предприятий обслуживания. Их рекомендуется размещать во встроенно-пристроенных объемах к 17 этажным жилым домам.
Продовольственный магазин самообслуживания, торговой площадью 400 м2 предлагается (как и в проекте застройки) разместить во встроенно-пристроенном объеме к жилому дому П-44/17, расположенному на углу Ялтинской улицы и Чонгарского бульвара.
Недостающие по расчету непродовольственные магазины, предприятия общественного питания и бытового обслуживания целесообразно разместить во встроенных и встроенно-пристроенных объемах к 17 этажным жилым домам, выходящим на магистрали.
6.1.1. Результат проведенного анализа опыта проектирования и строительства зданий предприятий торговли, общественного питания, бытового обслуживания, а также натурные обследования их эксплуатации, позволяет определить в какой степени существующие объекты соответствуют современным, нормативным требованиям, предъявляемым к этим предприятиям (МГСН 4.13-97 «Предприятия розничной торговли», МГСН 4.14-98 «Предприятия общественного питания», МГСН 4.18-99 «Предприятия бытового обслуживания населения»).
6.1.2. В 2-х этажных блоках обслуживания (типовые проекты серий IX-01 запроектированные САКБ - МНИИТЭПом) отмечаются следующие несоответствия нормативным требованиям.
По предприятиям торговли:
- увеличенные состав и площади складских и подсобных помещений по отношению к торговым площадям;
- устаревшая технология загрузки и движения продовольственных товаров, усложняющая применение контейнеров;
- загрузка товаров из открытых дворов без требуемого нормами перепада уровней для разгрузки с машины (минимум 1,10 м).
По предприятиям общественного питания:
- ограниченная номенклатура предприятий (столовые, закусочная и магазин кулинарии) и завышенная вместимость обеденных залов;
- загрузка продуктами из открытых дворов без нормативной высоты рампы.
По предприятиям бытового обслуживания:
- несоответствие типов предприятий (по величине и составу помещений) перечню типов предприятий и видов услуг, рекомендуемому в МГСН 4.18-99 «Предприятия бытового обслуживания населения».
6.1.3. Анализ натурных обследований существующих блоков обслуживания показал, что в большинстве случаев на сегодняшний день они функционируют не по назначению: перепрофилируются по принципу доходности предприятий без учета потребностей населения, например, в районе Хорошево-Мневники (квартал 75) единственный продовольственный магазин, размещенный в микрорайонном блоке обслуживания, заменен на магазин по продаже дорогих автомашин и запчастей к ним, а предприятия питания - на продажу холодильного оборудования для ресторанов.
Хозяйственные открытые дворы блоков обслуживания также не функционируют в соответствии с их назначением: большей частью они находятся в запущенном состоянии, сильно загрязнены и завалены пустой тарой.
6.1.4. Вместе с тем, объемно-планировочное и конструктивное решение этих общественных зданий с внутренним каркасом дает возможность перепланировки предприятий в соответствии с нормативными требованиями и потребностями населения. Кирпичные стены и столбы с главного фасада позволяют использовать современные материалы, создавая качественный и современный облик фасадов и интерьеров зданий.
6.1.5. С учетом нормативных требований к предприятиям, потребностями населения и дефицита территории в условиях реконструкции, предусматриваются два направления преобразования устаревших зданий:
- модернизация, проводимая без изменения габаритов и увеличения объема здания;
- реконструкция, осуществляемая с увеличением габаритов и объема здания, посредством пристроек и надстроек.
6.1.6. Модернизацию блоков обслуживания без изменения габаритов здания возможно осуществлять в двух вариантах:
Вариант А - без изменения внутренней планировки - при сохранении функционального назначения предприятия;
Вариант Б - с частичной внутренней перепланировкой помещений, с переносом перегородок (или их изъятием) в соответствии с изменением состава и площадей помещений. В этом случае возможно перепрофилирование предприятия. Лестнично-лифтовые узлы, сохраняются без изменения.
6.1.7. Реконструкцию блоков обслуживания наиболее рационально осуществлять в трех вариантах:
Вариант В - одноэтажная или двухэтажная пристройка со стороны заднего фасада (на месте хозяйственного двора), иди с боковых фасадов - с внутренней перепланировкой и с перепрофилированием предприятий (частичным или полным).
Вариант Г - надстройка зданий - с внутренней перепланировкой помещений и с перепрофилированием предприятий (частичным или полным);
Вариант Д - смешанный, надстройка здания и пристройка - с изменением функционального назначения предприятий.
Вышеперечисленные варианты модернизации и реконструкции типовых проектов приведены в таблице 1.
6.2.1. Примерами модернизации блоков обслуживания без изменения габаритов зданий и без внутренней перепланировки помещений (вариант А) может служить типовой проект IХ-01-21 двухэтажного здания универмага, торговой площадью 800 м2.
В соответствии с нормативными требованиями здесь следует запроектировать загрузку с перепадом уровней. Для размещения дебаркадера и сопутствующих ему помещений можно использовать частично территорию хозяйственного двора (рис. 14).
Типовой проект IХ-01-24, где размещен комбинат бытового обслуживания (КБО) полезной площадью 463 м2 предлагается модернизировать с перепланировкой в многоотраслевое комплексное предприятие той же площади (вариант Б)
6.2.2. Примерами реконструкции блоков обслуживания с увеличением габаритов и объемов здания посредством пристроек могут служить типовые проекты IХ-01-18, I-01-19, IХ-01-15, IХ-01-14.
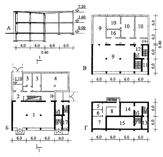
Типовой проект IХ-01-18 2-х этажного здания продовольственного магазина торговой площадью 414 м2 (на 1 этаже) и комбината бытового обслуживания (на 2 этаже) целесообразно реконструировать с изменением специализации предприятий (вариант В), рис. 11, 12.
Предлагается разместить в блоке обслуживания предприятия торговли, обеспечивающее повседневное обслуживание населения. Это продовольственный магазин типа «Универсам» с умеренными ценами, торговой площадью 400 м2, и непродовольственный магазин с полным ассортиментом товаров (хозтовары, бытовая химия, галантерея-парфюмерия и пр.).
К торговому залу «Универсам», размещенному в 1 этаже пристраивается с заднего фасада одноэтажный объем - на месте хозяйственного двора. Здесь будут размещаться помещения приема, хранения и подготовки товаров, подсобные и служебно-бытовые - в одном уровне с торговым залом. Загрузка организована в соответствии с технологическими требованиями в закрытом помещении с перепадом уровня пола на 1,10 м для разгрузки машин.
ПРЕДЛАГАЕМЫЕ
ВАРИАНТЫ МОДЕРНИЗАЦИИ
ИЛИ РЕКОНСТРУКЦИИ ЗДАНИЙ ПРЕДПРИЯТИЙ ТОРГОВЛИ ОБЩЕСТВЕННОГО ПИТАНИЯ, БЫТОВОГО
ОБСЛУЖИВАНИЯ
|
Типовые проекты 2-х этажных блоков обслуживания |
Состав помещений |
Вариант модернизации или реконструкции |
|
1 |
2 |
3 |
|
ГРУППА 1
|
IХ-01-18 · продовольственный магазин торговой площадью 404 м2 (1 этаж) комбинат бытового обслуживания, ателье пошива верхнего платья (2 этаж) |
|
|
IХ-01-19 · промтоварный магазин торговой площадью 404 м2 (1 этаж) · ателье пошива верхнего платья или комбинат бытового обслуживания (2 этаж) |
|
|
|
IХ-01-21 · универсальный непродовольственный магазин торговой площадью 800 м2 |
|
|
|
ГРУППА 2
|
IХ-01-14 · продовольственный магазин торговой площадью 190 м2 (1 этаж) · мастерская починки белья и вязки (2 этаж) |
|
|
IХ-01-15 · промтоварный магазин торговой площадью 190 м2 (1 этаж) · мастерская починки обуви (2 этаж) |
|
|
|
IХ-01-22 · продовольственный магазин торговой площадью 200 м2 (1 этаж) · пирожковая на 42 места |
|
|
|
IХ-01-25 · столовая на 80 мест (1 этаж) · комбинат бытового обслуживания (2 этаж) |
|
|
|
IХ-01-27 · книжный магазин торговой площадью 404 м2 |
|
|
|
IХ-01-28 · булочная торговой площадью 113 м2 (1 этаж) · галантерея торговой площадью 203 м2 (2 этаж) |
|
|
|
IХ-01-11 · отделение связи |
|
|
|
3 ГРУППА
|
IХ-01-12А (36.0´18.0) · столовая на 194 места и закусочная на 76 мест |
|
|
IХ-01-29А (42.0´18.0) · столовая-заготовочная с обеденными залами на 180 мест и магазином кулинарии на 5 рабочих мест |
|
|
|
4 ГРУППА
|
IХ-01-07 · аптека · парикмахерская |
|
|
IХ-01-23 · комбинат ремонта мебели |
|
|
|
IХ-01-24 · комбинат бытового обслуживания |
|
|
|
IХ-01-26 · отделение милиции |
|
|
|
|
IХ-01-10 · административно-хозяйственный блок |
|
|
УСЛОВНЫЕ ОБОЗНАЧЕНИЯ
|
|
|
На 2-ом этаже в результате перепланировки помещений (изъятия перегородок) запроектирован торговый зал непродовольственного магазина с доставкой товаров из подвала, где размещаются его складские помещения. Загрузочное помещение располагается, также как и для продовольственного магазина, в объеме одноэтажной пристройки, в строгом соответствии с нормативными требованиями.
Конструкция пристройки может быть достаточно проста: перекрытие в виде сборной железобетонной большепролетной плиты, опирающейся на железобетонные колонны, поставленные по поперечным осям здания с шагом 6 м, и вновь возведенную наружную стену из кирпича.
Аналогичная планировка предлагается для типового проекта IХ-01-19 2 этажного здания, где на 1-ом этаже располагается промтоварный магазин, а на 2-ом этаже - ателье пошива верхнего платья.
Типовой проект IХ-01-15 2-х этажного здания промтоварного магазина, торговой площадью 200 м2 (на 1-ом этаже) и мастерской ремонта обуви (на 2-ом этаже) рекомендуется реконструировать посредством двухэтажной пристройки с заднего фасада на месте хозяйственного двора (рис. 13).
Это позволит запроектировать в обоих этажах современные магазины:
на 1-ом этаже - продовольственный магазин «Продукты»;
на 2-ом этаже - непродовольственный магазин с товарами повседневной необходимости (галантерея-парфюмерия, хозтовары и пр.).
В обоих магазинах помещения приема, хранения, подготовки товаров и подсобные помещения размещаются в одном уровне с торговыми залами, служебно-бытовые помещения - в подвале.
Загрузочные помещения проектируются в соответствии с нормативными требованиями: в закрытом (частично) помещении и с перепадом уровней пола на 1,10 м. Административно-бытовые и технические помещения обоих магазинов размещаются в подвале.
Конструктивное решение двухэтажной пристройки может быть аналогично конструкции существующего здания - с внутренним железобетонным каркасом и наружными кирпичными стенами, перекрытие - железобетонные плиты, кровля плоская с внутренним водостоком.
Подобное решение может быть предложено для типового проекта IХ-01-14, где на первом этаже располагается продовольственный магазин, торговой площадью 200 м2, а на 2-ом этаже мастерская ремонта белья и вязки трикотажных изделий.
6.2.3. Реконструкция блоков обслуживания, посредством надстройки (вариант Г) наиболее целесообразна для трехпролетных зданий. Это типовые проекты IХ-01-12А и IХ-01-29А с предприятиями общественного питания.
Например, типовой проект IХ-01-29А (столовая-заготовочная с магазином кулинарии) можно преобразовать в торговый центр:
Рис. 11. ПРИМЕР РЕКОНСТРУКЦИИ ТИПОВОГО ПРОЕКТА IХ-01-18
А - фасад, Б - план первого этажа,
1 - торговый зал продовольственного магазина типа «Универсам» (404 м2), 2 - загрузочная, 3 - контора, 4 - складские помещения, 5 - холодильные камеры, 6 - кладовая тары, 7 - стол заказов, 8 - подсобная стола заказов, 9 - комната персонала, 10 - гардероб, 11 - театральная касса.
Рабочая площадь - 796 м2. Полезная площадь - 870 м2.
- существующее здание
- пристройка.
Рис. 12. ПРИМЕР РЕКОНСТРУКЦИИ ТИПОВОГО ПРОЕКТА IХ-01-18
А - разрез 1-1, Б - план подвала. 1 - торговый зал непродовольственного магазина (404 м2), 2 - приемочная, 3 - подготовка товаров, 4 - контора, 5 - складские помещения, 6 - комната персонала, 7 - гардероб, 8 - кладовая тары, 9 - технические помещения, 10 - подсобная стола заказов.
Рабочая площадь - 872 м2. Полезная площадь - 976 м2.
- существующее здание
- пристройка.
Рис. 13. ПРИМЕР РЕКОНСТРУКЦИИ ТИПОВОГО ПРОЕКТА IХ-01-15
А - разрез 1-1, Б - план первого этажа.
1 - торговый зал продовольственного магазина (200 м2), 2 - загрузочная, 3 - охлаждаемые камеры, 4 - складские помещения в подвале, 5 - контора, 6 - комната персонала, 7 - гардероб, 8 - кладовая тары.
Рабочая площадь - 418 м2. Полезная площадь - 480 м2.
В - план второго этажа, Г - план подвала.
9 - торговый зал непродовольственного магазина (260 м2), 10 - складские помещения, 11 - контора, 12 - приемочная, 13 - комната персонала, 14 - гардероб, 15 - технические помещения, 16 - подготовка товаров, 17 - театральная касса.
Рабочая площадь - 499 м2. Полезная площадь - 558 м2.
- существующее здание
- пристройка.
Например, типовой проект IХ-01-29А (столовая-заготовочная с магазином кулинарии) можно преобразовать в торговый центр:
на 1-ом этаже запроектировать универсам, торговой площадью 430 м2, 2-ой и 3-ий этажи отвести для современных небольших предприятий общественного питания: кафе общего типа и закусочные специализированные, магазин кулинарии - на 2-ом этаже; бары (пивной, молочный) с помещениями досуга - на 3-ем этаже (рис. 15).
Надстройка здания может быть выполнена в тех же конструкциях, что и само здание: железобетонный каркас и наружные кирпичные стены, покрытие - аналогично перекрытиям этажей. Возможно перекрытие фермой.
Решение о надстройке зданий должно приниматься по результатам технического обследования здания. При надстраивании этажей необходимо исследовать несущую способность конструкций и фундаментов здания, а также возможность соответствия плит перекрытия характеру новых нагрузок на него.
6.2.4. Задания на проектирование реконструкции и модернизации зданий предприятий торговли, общественного питания и бытового обслуживания необходимо согласовывать с Департаментом потребительских товаров и услуг и органами Госсанэпидемнадзора.
Инженерное и технологическое оборудование реконструируемых и модернизируемых зданий следует проектировать в соответствии с требованиями нормативных документов, действующих на территории г. Москвы.
Рис. 14. ПРИМЕР РЕШЕНИЯ
ЗАГРУЗКИ ТОВАРОВ
СУЩЕСТВУЮЩЕГО УНИВЕРМАГА
1. Торговый зал 2. Приемочная 3. Загрузочная рампа
Рис. 15. ПРИМЕР РЕШЕНИЯ
НАДСТРОЙКИ ОБСЛУЖИВАНИЯ
/ТИПОВОЙ ПРОЕКТ IХ-01-29А/
1. Продовольственный магазин типа «Универсам»
2. Кафе общего типа, закусочные специализированные, магазин кулинарии
3. Бары, помещения досуга
- существующие здания
- надстройка
|
№№ |
Наименования предприятий |
Вместимость (мощность) |
Рекомендуемые варианты размещения |
||
|
п/п |
встроенные |
встроенно-пристроенные |
отдельно стоящие |
||
|
1 |
2 |
3 |
4 |
5 |
6 |
|
|
ПРЕДПРИЯТИЯ ТОРГОВЛИ |
м2 общей площади |
|
|
|
|
|
Продовольственные магазины |
|
|
|
|
|
|
Магазины с универсальным ассортиментом |
|
|
|
|
|
1 |
«универсам» (супермаркет) |
250 |
+ |
+ |
+*) |
|
гастроном |
от 400 до 650 |
- |
+ |
+ |
|
|
более 650 |
- |
- |
+ |
||
|
2 |
диетические продукты, продукты |
до 200 |
+ |
+ |
+*) |
|
200-400 |
- |
+ |
+ |
||
|
более 400 |
- |
- |
+ |
||
|
Специализированные магазины с широким ассортиментом |
|
|
|
|
|
|
3 |
хлеб, кондитерский |
100-200 |
+ |
+ |
- |
|
200-400 |
- |
+ |
+*) |
||
|
более 400 |
- |
- |
+ |
||
|
4 |
рыба, мясо |
100-200 |
+ |
+ |
- |
|
более 200 |
- |
+ |
+ |
||
|
5 |
овощи-фрукты |
100-200 |
+ |
+ |
- |
|
более 200 |
- |
+ |
+ |
||
|
Специализированные магазины с узким или ограниченным ассортиментом |
|
|
|
|
|
|
6 |
мини-продукты (минимаркет) |
100-200 |
+ |
+ |
+*) |
|
7 |
соки-джемы, напитки Непродовольственные магазины Магазины с универсальным ассортиментом |
100-200 |
+ |
+ |
- |
|
|
|
|
|
||
|
|
|
|
|
||
|
8 |
универмаг, детский мир, |
до 400 |
+ |
+ |
+*) |
|
400-650 |
+ |
+ |
+ |
||
|
650-1300 |
- |
+ |
+ |
||
|
более 1300 |
|
|
|
||
|
Специализированные магазины с широким ассортиментом |
м общей площади |
|
|
|
|
|
9 |
товары для новобрачных, |
до 400 |
+ |
+ |
+*) |
|
для женщин, для мужчин |
400-650 |
- |
+ |
+ |
|
|
для молодежи, для детей, |
более 650 |
- |
- |
+ |
|
|
для ветеранов одежда, обувь, малыш |
|
|
|
|
|
|
Специализированные магазины с полным ассортиментом |
|
|
|
|
|
|
10 |
галантерея-парфюмерия, |
100-200 |
+ |
+ |
- |
|
радио-аудио-видео, |
|
|
|
|
|
|
оргтехника, часы, |
200-400 |
+ |
+ |
+*) |
|
|
ювелирные изделия |
более 400 |
- |
- |
+ |
|
|
Специализированные магазины с узким или ограниченным ассортиментом |
|
|
|
|
|
|
11 |
книги, цветы, природа, семена, |
100-200 |
+ |
+ |
- |
|
охотник |
200-400 |
+ |
+ |
+*) |
|
|
|
более 400 |
|
|
|
|
|
12 |
комиссионный, антикварный |
100 и менее |
+ |
+ |
- |
|
200-400 |
+ |
+ |
+*) |
||
|
более 400 |
- |
+ |
+ |
||
|
|
ПРЕДПРИЯТИЯ ОБЩЕСТВЕННОГО ПИТАНИЯ |
места |
|
|
|
|
1 |
ресторан |
до 50 |
+ |
+ |
+*) |
|
более 50 |
- |
+ |
+ |
||
|
2 |
бар винный, пивной, молочный, |
до 50 |
+ |
+ |
+*) |
|
гриль |
более 50 |
- |
- |
+ |
|
|
3 |
кафе общего типа |
до 50 |
+ |
+ |
+*) |
|
более 50 |
- |
|
+ |
||
|
4 |
кафе специализированное (мороженое, детское, кондитерская, молочное) |
до 50 |
+ |
+ |
+*) |
|
более 50 |
- |
- |
+ |
||
|
5 |
столовая общедоступная, диетическая |
до 50 |
+ |
+ |
+*) |
|
более 50 |
- |
- |
+ |
||
|
6 |
закусочная общего типа специализированная (шашлычная, котлетная, сосисочная, пельменная, блинная, пирожковая, пончиковая, чебуречная, чайная и пр.) |
до 50 |
+ |
+ |
+*) |
|
более 50 |
- |
- |
+ |
||
|
7 |
магазин кулинарии |
м2 торговой площади |
|
|
|
|
до 150 |
+ |
+ |
- |
||
|
более 150 |
- |
- |
+*) |
||
|
|
ПРЕДПРИЯТИЯ БЫТОВОГО ОБСЛУЖИВАНИЯ |
м общей площади |
|
|
|
|
1 |
Многоотраслевое комплексное предприятие |
до 500 |
- |
+ |
+*) |
|
более 500 |
- |
- |
+ |
||
|
2 |
Дом Моды |
до 300 |
+ |
+ |
- |
|
до 500 |
- |
+ |
+ |
||
|
более 500 |
- |
- |
+ |
||
|
3 |
Ателье по пошиву и ремонту одежды, головных уборов и трикотажных изделий (с различным набором видов услуг) |
до 300 |
+ |
+ |
- |
|
до 500 |
- |
+ |
+*) |
||
|
более 500 |
- |
- |
+ |
||
|
4 |
Мастерские по ремонту обуви (срочный, мелкий, средний) |
до 100 |
+ |
+ |
- |
|
более 100 |
- |
- |
+*) |
||
|
5 |
Мастерские по изготовлению и ремонту металлоизделий и кожгалантереи (с различным набором видов услуг) |
до 100 |
+ |
+ |
- |
|
до 150 |
- |
+ |
+*) |
||
|
более 150 |
- |
- |
+ |
||
|
6 |
Мастерские по ремонту бытовых машин и приборов |
до 100 |
+ |
+ |
- |
|
более 100 |
- |
- |
+ |
||
|
7 |
Мастерские по ремонту часов и ювелирных изделий |
до 100 |
+ |
+ |
- |
|
до 150 |
- |
+ |
+*) |
||
|
Мастерские по изготовлению ювелирных изделий |
более 150 |
- |
- |
+ |
|
|
8 |
Парикмахерские (с различным набором видов услуг) |
до 100 |
+ |
+ |
- |
|
до 150 |
- |
+ |
+*) |
||
|
более 150 |
- |
- |
+ |
||
|
9 |
Фотографии |
до 100 |
+ |
+ |
- |
|
до 150 |
- |
+ |
+*) |
||
|
более 150 |
- |
- |
+ |
||
|
10 |
Многоотраслевые комплексные приемные пункты типа «Мультисервис» |
до 200 |
+ |
+ |
- |
|
до 300 |
- |
+ |
+*) |
||
|
более 300 |
- |
- |
+ |
||
|
11 |
Бюро посреднических услуг |
до 100 |
+ |
+ |
- |
|
более 100 |
+ |
+ |
+*) |
||
|
12 |
Ателье проката |
до 200 |
+ |
+ |
- |
|
до 300 |
- |
+ |
+*) |
||
|
более 300 |
- |
- |
+ |
||
|
13 |
Приемные пункты прачечной |
до 100 |
+ |
+ |
- |
|
более 100 |
- |
- |
+*) |
||
|
14 |
Прачечная самообслуживания |
до 150 |
+ |
+ |
- |
|
более 150 |
- |
- |
+*) |
||
|
15 |
Мини-прачечная |
до 350-400 |
- |
- |
+*) |
|
16 |
Приемные пункты химчистки |
до 100 |
+ |
+ |
- |
|
более 100 |
- |
- |
+*) |
||
|
17 |
Мини-химчистки |
до 200-250 |
- |
- |
+*) |
Знаком * отмечены предприятия, рекомендуемые для размещения в составе торгово-бытовых центров и кооперированных зданий.
Примечание:
1) В графе 4 указаны максимальные площади для зданий с широким шагом поперечных несущих стен и каркасных.
2) При специальных объемно-планировочных, конструктивных и инженерно-технологических решениях жилых домов допускается встроенные и встроенно-пристроенные предприятия свыше указанных мощностей - при условии их согласования с органами санитарного и пожарного надзора.
3) Предприятия общественного питания вместимостью не более 50 мест допускается размещать во встроенных и встроенно-пристроенных помещениях жилых домов при режиме функционирования до 23 часов без оркестрового сопровождения.
4) Магазины кулинарии площадью не более 150 м2 допускается размещать в жилых домах при условии отсутствия технологических процессов.
1. Расчет нормативной обеспеченности населения квартала предприятиями торговли, общественного питания, бытового обслуживания (расчетная численность населения 15 тыс. человек) см. таблицу 1.
Таблица 1
|
№№ п/п |
Наименование предприятий |
Норма на 1000 чел. |
Всего по норме |
|
1. |
Продовольственные магазины, м2 торг. площ. |
80 |
1200 |
|
2. |
Непродовольственные магазины, м2 торг. площ. |
40 |
600 |
|
3. |
Предприятия общественного питания, мест |
11 |
165 |
|
4. |
Предприятия бытового обслуживания, раб. мест |
1,5 повседн. услуги
1,64 периодич. услуги |
|
|
5. |
Приемный пункт прачечной, химчистки объект на жилую группу |
1 |
- |
2. Перечень существующих предприятий культурно-бытового обслуживания в квартале № 81, их тип и мощность по данным на 1998 г. приведены в таблице 2.
|
№ № п/п |
Наименование предприятия |
Адрес |
Мощность (вместимость) |
Характеристика строения |
|
1 |
2 |
3 |
4 |
5 |
|
1. |
Продовольственный магазин № 10 «Диета» |
пр-т Жукова д. 4 |
439 м2 торг. площ. |
Отдельно стоящее двухэтажное каменное здание (1 этаж) |
|
2. |
Магазины - мебель, кухни для дома. Парикмахерская - салон красоты |
пр-т Жукова д. 4 |
495 м2 общей площ. |
Отдельно стоящее двухэтажное каменное здание (2 этаж) |
|
3. |
Булочная № 445 |
ул. Народного Ополчения, 27 |
78,1 м2 торг. площ. |
Встроенно-пристроенный к жилому дому |
|
4. |
Магазин «Детские товары» фирмы «Детский мир» |
ул. Народного Ополчения, 21 |
170 м2 торг. площ. |
Встроенный в 1-й этаж жилого дома |
|
5. |
Магазин «Медицинские инструменты» |
ул. Народного Ополчения, 29 |
964,4 м2 торг. площ. |
Встроенный в 1-й этаж жилого дома |
|
6. |
Магазин «Цветные камни» «Экспорт-самоцветы» Министерства геологии |
ул. Народного Ополчения, 29 |
396,8 м2 торг. площ. |
Встроенный в 1-й этаж жилого дома |
|
7. |
Магазин № 45 «Союзпечать» |
ул. Народного Ополчения д. 23 к. 1 |
151 м2 торг. площ. |
Встроенный в 1-й этаж жилого дома |
|
8. |
Столовая от ресторана «Серебряный бор» (Областное Управление связи) |
ул. Народного Ополчения д. 29к. |
32 места |
На территории Областного управления связи |
|
9. |
Ателье № 2 пошива верхней мужской и женской одежды |
ул. Народного Ополчения д. 23 к. 1 |
72 раб. места |
Встроено в 1-й этаж жилого дома |
3. Результат обследования состояния зданий и помещений показал, что все предприятия могут быть сохранены, модернизированы и реконструированы.
4. Расчет необходимых для модернизации сети дополнительных мощностей (вместимостей) предприятий торговли, общественного питания и бытового обслуживания приведен в таблице 3.
Таблица 3
|
№№ п/п |
Наименование предприятий |
Требуется по норме |
Обеспечиваются |
||
|
Всего |
из них |
||||
|
сохраняются |
дополняются |
||||
|
1 |
2 |
3 |
4 |
5 |
6 |
|
1. |
Продовольственные магазины (м2 торг. площ.) |
1200 |
1117 |
517 |
600 |
|
2. |
Непродовольственные магазины (м2 торг. площ.) |
600 |
400 |
3317* |
400 |
|
3. |
Предприятия общественного питания (мест) |
165 |
157 |
32 |
125 |
|
4. |
Предприятия бытового обслуживания (раб. места) |
47 |
45 |
72** |
45 |
|
5. |
Приемные пункты прачечной, химчистки (объект) |
2 |
2 |
- |
2 |
Примечание.
* Сохраняемые непродовольственные магазины в расчёты не включены как предприятия городского значения.
** Ателье на 72 раб. места как предприятие городского значения в расчёт не включено.
5. Рекомендуемая номенклатура дополнительных предприятий торговли, общественного питания, бытового обслуживания для модернизации сети предприятий обслуживания населения квартала дана в таблице 4.
Таблица 4
|
№№ п/п |
Наименование предприятий |
Мощность (вместимость) |
Характеристика объемно-планировочного решения |
|
1 |
2 |
3 |
4 |
|
|
I. ПРЕДПРИЯТИЯ ТОРГОВЛИ |
м2 торг. площ. |
|
|
1. |
Продовольственный магазин типа «Универсам» Непродовольственный магазин, специализированный с полным ассортиментом |
|
двухэтажное отдельно стоящее здание (реконструкция) |
|
2. |
Магазин «Продукты» |
150 |
встроенный |
|
3. |
Магазин «Продукты» |
200 |
встроенный |
|
4. |
Магазин «Диетические продукты» |
250 |
встроенный |
|
|
II. ПРЕДПРИЯТИЯ ОБЩЕСТВЕННОГО ПИТАНИЯ |
мест |
|
|
5. |
Кафе общего типа |
50 |
встроенно-пристроенное |
|
6. |
Кафе специализированное |
50 |
встроенно-пристроенное |
|
7. |
Закусочная специализированная |
25 |
встроенное |
|
|
III. ПРЕДПРИЯТИЯ БЫТОВОГО ОБСЛУЖИВАНИЯ |
раб. мест |
|
|
8. |
Салон красоты |
10 |
встроенно-пристроенный |
|
9. |
Фотоателье |
10 |
встроенно-пристроенное |
|
|
Мастерские мелкого ремонта: |
раб. мест |
|
|
10. |
- обуви |
5 |
встроенные |
|
11. |
- часы и ювелирные изделия |
5 |
встроенные |
|
12. |
- металлоремонт |
5 |
встроенные |
|
13. |
Парикмахерская |
5 |
встроенные |
|
14. |
Многоотраслевой комплексный приемный пункт типа «Мультисервис» |
5 |
встроенные |
|
|
|
объект |
|
|
15. |
Приемный пункт прачечной |
1 |
встроенный |
|
16. |
Приемный пункт химчистки |
1 |
встроенный |
Примечание:
Нумерацию предприятий обслуживания (графа 1) см. на рис. 9
1. Расчет нормативной обеспеченности населения квартала предприятиями торговли, общественного питания, бытового обслуживания см. таблицу 1 (расчетная численность населения -12,5 тыс. чел.).
|
№№ п/п |
Наименование предприятий |
Норма на 1000 чел. |
Всего по норме |
|
1. |
Продовольственные магазины, м торг. площ. |
80 |
1000 |
|
2. |
Непродовольственные магазины, м торг. площ. |
40 |
500 |
|
3. |
Предприятия общественного питания, мест |
11 |
138 |
|
4. |
Предприятия бытового обслуживания, раб. мест |
1,5 (повседн. услуги) 1,64 (периодич. услуги) |
40 |
|
5. |
Приемные пункты химчистки, прачечной, объект на жилую группу |
1 |
2 |
Перечень существующих предприятий культурно-бытового обслуживания в квартале 27-32, их тип и мощность по данным на 1998 г. приведены в таблице 2.
Таблица 2
|
№№ п/п |
Наименование предприятия |
Адрес |
Мощность (вместимость) |
Характеристика, этажность |
|
1 |
2 |
3 |
4 |
5 |
|
1. |
Продовольственный магазин |
Симферопольский бульвар, д. 17А |
300 м2 торг. площ., 600 м2 общ. площ. |
отдельно стоящее двухэтажное каменное здание |
|
2 |
Булочная-кондитерская |
|
124 м2 торг. площ. |
|
|
227 м2 общ. площ. |
||||
|
3. |
Магазин «Продукты» |
Симферопольский бульвар, д. 25 |
465 м2 торг. площ. 1270 м2 общ. площ. |
отдельно стоящее двухэтажное каменное здание |
|
4. |
Ремонт радиоаппаратуры «Былина-Сервис» |
25 раб. мест 495 м2 общ. площ. |
||
|
5. |
Магазин «Мебель» |
Чонгарский бульвар, д. 19 |
620 м2 торг. площ. |
отдельно стоящее двухэтажное каменное здание |
|
6. |
«Ателье» пошива и ремонта женской и мужской одежды |
24 раб. м. 480 м2 общ. площ. |
||
|
7 |
Магазин «Овощи-Фрукты» |
Черноморский бульвар, д. 12А |
210 м2 торг. площ. 575 м2 общ. площ. |
отдельно стоящее двухэтажное каменное здание |
|
8. |
Ремонт мебели, пошив драпировок |
6 раб. мест 130 м2 общ. площ. |
||
|
9. |
Магазин «Диета» |
Ялтинская ул. д. 1 |
545 м2 общ. площ. |
встроенные в 5-ти |
|
10. |
Магазин «Культтовары» |
550 м2 общ. площ. |
этажный жилой дом (сносятся) |
3. Результат обследования состояния блоков обслуживания показал, что все здания могут быть сохранены, модернизированы и реконструированы кроме предприятий, встроенных в жилые дома.
4. Расчет необходимых для модернизации сети дополнительных мощностей (вместимостей) предприятий торговли, общественного питания и бытового обслуживания приведен в таблице 3.
Таблица 3
|
№№ п/п |
Наименование предприятий |
Требуются по норме |
Обеспечиваются |
||
|
Всего |
из них |
||||
|
сохраняются |
дополняются |
||||
|
1 |
2 |
3 |
4 |
5 |
6 |
|
1 |
Продовольственные магазины (м2 торг. площ.) |
1000 |
1514 |
889 |
625 |
|
2. |
Непродовольственные магазины (м2 торг. площ.) |
500 |
500 |
620* |
500 |
|
3. |
Предприятия общественного питания (мест) |
138 |
140 |
- |
140 |
|
4. |
Предприятия бытового обслуживания раб. мест |
40 |
30 |
55** |
30 |
|
5. |
Приемные пункты прачечных, химчисток (объекты) |
2 |
2 |
- |
2 |
Примечание:
* Сохраняемый специализированный магазин «Мебель» в расчет не включен, как предприятие городского значения.
** Предприятия бытового обслуживания «Ателье», ремонт радиоаппаратуры «Былина-Сервис», ремонт мебели в расчет не включены, как предприятия городского значения.
5. Рекомендуемая номенклатура дополнительных предприятии торговли, общественного питания и бытового обслуживания для модернизации сети предприятий обслуживания населения квартала дана в таблице 4.
Таблица 4
|
№№ п/п |
Наименование предприятий |
Мощность (вместимость) |
Характеристика объемно-планировочного решения |
|
1 |
2 |
3 |
4 |
|
|
I. ПРЕДПРИЯТИЯ ТОРГОВЛИ |
м2 торг. площ. |
|
|
1. |
Продовольственный магазин типа «Универсам» |
625 |
Встроенно-пристр. к 17-эт. жилому дому П-44 |
|
2. |
Продовольственный магазин: Продукты, овощи-фрукты |
200 |
двухэтажное отдельно стоящее здание |
|
3. |
Непродовольственный магазин |
200 |
(реконструкция) |
|
4. |
Магазин «Хозтовары» |
150 |
встроенный |
|
5. |
Магазин «Галантерея-парфюмерия» |
150 |
встроенный |
|
|
II. ПРЕДПРИЯТИЯ ОБЩЕСТВЕННОГО ПИТАНИЯ |
мест |
|
|
6. |
Кафе общего типа |
50 |
встроенное |
|
7. |
Кафе специализированное |
50 |
встроенное |
|
8. |
Закусочная |
25 |
встроенная |
|
9. |
Пирожковая |
15 |
встроенная |
|
|
III. ПРЕДПРИЯТИЯ БЫТОВОГО ОБСЛУЖИВАНИЯ |
раб. мест |
|
|
1. |
Парикмахерская |
5 |
встроенные |
|
2. |
Фотография |
3 |
встроенные |
|
|
Мастерские мелкого ремонта: |
|
|
|
3. |
обуви |
5 |
встроенные |
|
4. |
часов и ювелирных изделий |
4 |
встроенные |
|
5. |
металлоизделий и кожгалантереи |
5 |
встроенные |
|
6. |
бытовых машин и приборов |
5 |
встроенные |
|
7. |
Многоотраслевые комплексные приемные пункты типа «Мультисервис» |
3 |
встроенные |
|
объект |
|||
|
8. |
Приемный пункт прачечной и прачечная самообслуживания |
1 |
встроенный |
|
9. |
Приемный пункт химчистки |
1 |
встроенный |
|
10. |
Ремонт мебели, пошив драпировок |
|
пристройка к магазину мебель (реконструкция) |
Примечание:
Нумерацию предприятий обслуживания (графа 1) см. на рис. 10
ПРЕДПРИЯТИЯ ТОРГОВЛИ
(извлечение из МГСН 4.13-97)
|
Наименование предприятий и классификационные группы |
Удельные показатели в м2 минимальной площади групп помещений на 10 м2 торговой площади |
||||
|
торговая площадь |
помещения приема, хранения и подготовки товаров к продаже |
подсобные помещения |
служебно-бытовые помещения |
||
|
1 |
2 |
3 |
4 |
5 |
|
|
А. ПРОДОВОЛЬСТВЕННЫЕ МАГАЗИНЫ |
|||||
|
Магазины с универсальным ассортиментом - универсам, гастроном, диета и пр. (IП) |
|
|
|
|
|
|
торговой площадью 400 м2 |
10,0 |
3,0 |
0,9 |
1,1 |
|
|
дополнительно на каждые 10 м2 торговой площади |
|
2,0 |
0,8 |
0,6 |
|
|
Специализированные магазины с широким ассортиментом – «Хлеб», «Кондитерский» (IIП) |
|
|
|
|
|
|
торговой площадью 250 м2 |
10,0 |
2,0 |
0,7 |
0,9 |
|
|
дополнительно на каждые 10 м2 торговой площади |
|
1,5 |
0,5 |
0,5 |
|
|
Специализированные магазины - «Рыба», «Мясо» (IIIП) |
|
|
|
|
|
|
торговой площадью 250 м2 |
10,0 |
2,5 |
0,9 |
1,0 |
|
|
дополнительно на каждые 10 м2 торговой площади |
|
1,8 |
0,6 |
0,6 |
|
|
Специализированные магазины - «Овощи-фрукты» (IVП) |
|
|
|
|
|
|
торговой площадью 250 м2 |
10,0 |
2,2 |
1,0 |
1,0 |
|
|
дополнительно на каждые 10 м2 торговой площади |
|
1,8 |
0,7 |
0,6 |
|
|
Б. НЕПРОДОВОЛЬСТВЕННЫЕ МАГАЗИНЫ |
|||||
|
Специализированные магазины с полным ассортиментом - Хозтовары, Бытовая химия. Бытовая техника и пр. (IIIН) |
|
|
|
|
|
|
торговой площадью 250 м2 |
10,0 |
3,5 |
1,0 |
1,0 |
|
|
дополнительно на каждые 10 м2 торговой площади |
|
2,8 |
0,3 |
0,6 |
|
|
Специализированные магазины - «Галантерея-парфюмерия», «Радио-аудио-видео-фототовары», «Ювелирные изделия», «Часы» и пр. (IVН) |
|
|
|
|
|
|
торговой площадью 250 м2 |
10,0 |
2,0 |
0,6 |
0,8 |
|
|
дополнительно на каждые 10 м2 торговой площади |
|
1,5 |
0,3 |
0,6 |
|
ПРЕДПРИЯТИЯ ОБЩЕСТВЕННОГО ПИТАНИЯ
(на основе МГСН 4.14-98)
|
№№ п/п |
Предприятия |
Удельные показатели минимальной площади (в м2) групп помещений на 1 место |
|||
|
для посетителей (в т ч. зал) |
производственные |
приема и хранения продуктов |
служебно-бытовые |
||
|
1. |
Кафе, закусочные общего типа, кафе специализированные (молодежное, молочное, детское) |
1,9-1,8* |
1,1-1,5* |
0,44-0,48* |
0,6-0,7* |
|
- на 50 мест |
(1,2-1,4*) |
|
|
|
|
|
- на последующее место |
1,96-1,75* |
0,5-0,72* |
0,26-0,3 |
0,28-0,32 |
|
|
2. |
Кафе - кондитерское |
2,0 |
1,58 |
0,4 |
0,52 |
|
- на 50 мест |
(1,6) |
|
|
|
|
|
- на последующее место |
1,84 |
0,84 |
0,2 |
0,48 |
|
|
3. |
Кафе-мороженое |
1,9 |
0,8 |
0,36 |
0,4 |
|
- на 50 мест |
(1,4) |
|
|
|
|
|
- на последующее место |
1,68 |
0,26 |
0,16 |
0,8 |
|
|
4. |
Закусочные специализированные |
2,0 |
0,52 |
0,2 |
0,6-0,7* |
|
- на 50 мест |
(1,2) |
|
|
|
|
|
- на последующее место |
1,8 |
0,32 |
0,2 |
0,28-0,32* |
|
|
5 |
Столовые общедоступные |
2,3 |
1,5 |
0,8 |
0,56 |
|
- на 50 мест |
(1,8) |
|
|
|
|
|
- на последующее место |
2,12 |
0,6 |
0,3 |
0,28 |
|
|
6. |
Пивные бары |
2,15 |
0,45-0,58* |
0,92-0,86 |
0,46 |
|
- на 50 мест |
|
|
|
|
|
|
- на последующее место |
1,88 |
0,4-0,48 |
0,4 |
0,4 |
|
ПРЕДПРИЯТИЯ БЫТОВОГО ОБСЛУЖИВАНИЯ
(извлечение из МГСН 4.18-99)
|
№№ п/п |
Предприятия |
Удельные показатели минимальной площади групп помещений в м2 на 1 раб место |
||
|
для посетителей |
производственные |
складские и подсобные |
||
|
1 |
2 |
3 |
4 |
5 |
|
1 |
Ателье пошива и ремонта одежды, головных уборов и трикотажных изделий |
1,5-2,0 |
6,0 |
1,0 |
|
2 |
Мастерские ремонта обуви |
1,5 |
8,0 |
2,0 |
|
3 |
Мастерские ремонта металлоизделий и кожгалантереи |
1,5 |
6,0 |
2,0 |
|
4 |
Мастерские ремонта бытовых машин и приборов |
2,0 |
6,0 |
2,0 |
|
5 |
Мастерские ремонта часов и ювелирных изделий |
1,5 |
4,5 |
1,0 |
|
6 |
Мастерские ремонта радиоэлектронной аппаратуры |
1,5 |
8,0 |
2,0 |
|
7 |
Мастерские ремонта мебели |
2,0 |
12,0 |
3,0 |
|
8 |
Парикмахерская |
1,5 |
6,0 |
1,0 |
|
9 |
Фотография |
2,5 |
18,0 (зал) 10,0 (лаборатории) |
1,0 |
|
10 |
Многоотраслевой комплексный приемный пункт типа «Мультисервис» |
6,0 |
- |
10,0 |
|
11 |
Приемный пункт химчистки |
6,0 |
- |
16,0 |
|
12 |
Приемный пункт прачечной |
6,0 |
- |
20,0 |
Примечания
1 В предприятиях торговли приводятся площади групп неторговых помещений в зависимости от классификационной группы магазинов (см. МГСН 4.13-97).
2 В предприятиях общественного питания со значком (*) приводятся площади помещений при обслуживании официантами.
3 Показатели производственных помещений приняты при форме производства на полуфабрикатах.
4 В предприятиях бытового обслуживания площади служебно-бытовых помещений следует принимать для всех предприятий одинаково, в зависимости от количества рабочих мест (см. МГСН 4.18-99).