Приказ Министерства промышленности и торговли РФ от 30 декабря 2009 г. № 1215
"Об утверждении нормативных методических документов, регулирующих функционирование и эксплуатацию аэродромов экспериментальной авиации"
В соответствии с Положением о Министерстве промышленности и торговли Российской Федерации, утвержденным постановлением Правительства Российской Федерации от 5 июня 2008 г. № 438 (Собрание законодательства Российской Федерации, 2008, № 24, ст. 2868; № 42, ст. 4825; № 46, ст. 5337; 2009, № 3, ст. 378; № 6, ст. 738; № 11, ст. 1316; № 33, ст. 4088), поручением Правительства Российской Федерации от 8 июля 2008 г. № СИ-П7-4100 и в целях государственного регулирования деятельности аэродромов экспериментальной авиации приказываю:
1. Утвердить прилагаемые Нормы годности к эксплуатации аэродромов экспериментальной авиации и Руководство по эксплуатационному содержанию аэродромов экспериментальной авиации.
2. Контроль за исполнением настоящего приказа возложить на заместителя Министра Мантурова Д.В.
Министр В.Б. Христенко
Зарегистрировано в Минюсте РФ 5 апреля 2010 г.
Регистрационный № 16822
Нормы
годности к эксплуатации аэродромов экспериментальной авиации
(НГЭА ЭА)
Содержание
1.1. Настоящие Нормы годности к эксплуатации аэродромов экспериментальной авиации (НГЭА ЭА) разработаны в соответствии с Воздушным кодексом Российской Федерации*(1), на основе обобщения отечественной и зарубежной практики сертификации аэродромов*(2), результатов научных исследований по обеспечению безопасности полетов воздушных судов, с учетом действующих в Российской Федерации нормативных документов, содержащих государственные требования к аэродромам и их оборудованию, а также с учетом международных стандартов и рекомендуемой практики Международной организации гражданской авиации (ИКАО)*(3).
В настоящих Нормах годности к эксплуатации аэродромов экспериментальной авиации (далее - Нормы) содержатся требования, выполнение которых является необходимым условием обеспечения безопасности полетов воздушных судов на аэродромах экспериментальной авиации*(4), имеющих взлетно-посадочные полосы с искусственным покрытием и в районах аэродромов экспериментальной авиации.
Настоящие Нормы обязательны для соблюдения всеми юридическими лицами и гражданами, участвующими в проектировании, строительстве, приемке, сертификации, эксплуатации и ремонте аэродромов экспериментальной авиации.
1.2. Аэродром экспериментальной авиации допускается к эксплуатации после того, как будет установлено его соответствие требованиям настоящих Норм.
Порядок допуска аэродромов экспериментальной авиации к эксплуатации устанавливается уполномоченным органом в области оборонной промышленности.*(5)
1.3. В случае если аэродром экспериментальной авиации является аэродромом совместного базирования экспериментальных и гражданских воздушных судов или аэродромом совместного использования, он должен отвечать требованиям, предъявляемым к гражданским аэродромам.
1.4. В случае если аэродром экспериментальной авиации является аэродромом совместного базирования экспериментальных воздушных судов и государственных воздушных судов или аэродромом совместного использования, он должен отвечать требованиям, предъявляемым к аэродромам государственной авиации.
1.5. Таблицы и рисунки, на которые делаются ссылки в настоящих Нормах, составляют часть соответствующих требований.
1.6. Методы оценки соответствия аэродромов требованиям настоящих Норм содержатся в Методиках оценки соответствия нормам годности к эксплуатации аэродромов экспериментальной авиации, которые являются приложением к настоящим Нормам.
1.7. В настоящих Нормах применяются следующие основные понятия:*(6)
1) боковая полоса безопасности (далее - БПБ) - участок, прилегающий к краю искусственного покрытия и подготовленный таким образом, чтобы обеспечить переход от искусственного покрытия к прилегающей поверхности;
2) взлетно-посадочная полоса (далее - ВПП) - определенный прямоугольный участок сухопутного аэродрома, подготовленный для посадки и взлета воздушных судов;
3) дальность видимости на ВПП - расстояние, в пределах которого пилот воздушного судна, находящегося на осевой линии ВПП, может видеть маркировочные знаки на поверхности ВПП или огни, ограничивающие ВПП или обозначающие ее осевую линию;
4) классификационное число воздушного судна (далее - ACN) - число, выражающее относительное воздействие воздушного судна на искусственное покрытие для установленной категории стандартной прочности основания;
5) классификационное число покрытия (далее - PCN) - число, выражающее несущую способность искусственного покрытия для эксплуатации без ограничений;
6) контрольная точка аэродрома - точка, определяющая географическое местоположение аэродрома;
7) летная полоса (далее - ЛП) - определенный участок, который включает ВПП и концевую полосу торможения, если таковая имеется, и который предназначен для:
уменьшения риска повреждения воздушных судов, выкатившихся за пределы ВПП,
обеспечения безопасности воздушных судов, пролетающих над ней во время взлета или посадки;
8) маркер - объект, устанавливаемый над уровнем земли для обозначения препятствия или границы;
9) маркировочный знак (маркировка) - символ или группа символов, располагаемых на поверхности рабочей площади для передачи аэронавигационной информации;
10) место стоянки (далее - МС) - выделенный участок на перроне, предназначенный для стоянки воздушного судна;
11) необорудованная взлетно-посадочная полоса - ВПП, предназначенная для воздушных судов, выполняющих визуальный заход на посадку;
12) оборудованная взлетно-посадочная полоса - один из следующих типов ВПП, предназначенных для воздушных судов, выполняющих заход на посадку по приборам:
а) ВПП, оборудованная для неточного захода на посадку - ВПП, оборудованная визуальными средствами и каким-либо видом невизуальных средств, обеспечивающими по крайней мере наведение воздушного судна в направлении захода на посадку с прямой;
б) ВПП, оборудованная для точного захода на посадку по категории I - ВПП, оборудованная системой ILS*(7) и/или системой MLS*(8) и визуальными средствами, предназначенными для захода на посадку с высотой принятия решения не менее 60 м (200 фут) и либо при видимости не менее 800 м, либо при дальности видимости на ВПП не менее 550 м;
в) ВПП, оборудованная для точного захода на посадку по категории II - ВПП, оборудованная системой ILS и/или системой MLS и визуальными средствами, предназначенными для захода на посадку с высотой принятия решения менее 60 м (200 фут), но не менее 30 м (100 фут) и при дальности видимости на ВПП не менее 350 м;
г) ВПП, оборудованная для точного захода на посадку по категории III - ВПП, оборудованная системой ILS и/или системой MLS, действующей до и вдоль всей поверхности ВПП и предназначенной:
А - для захода на посадку и посадки с высотой принятия решения менее 30 м (100 фут) или без ограничения по высоте принятия решения и при дальности видимости на ВПП не менее 200 м;
В - для захода на посадку и посадки с высотой принятия решения менее 15 м (50 фут) или без ограничения по высоте принятия решения и при дальности видимости на ВПП менее 200 м, но не менее 50 м;
С - для захода на посадку и посадки без ограничений по высоте принятия решения и дальности видимости на ВПП;
13) перрон - определенная площадь сухопутного аэродрома, предназначенная для размещения воздушных судов в целях посадки или высадки пассажиров, погрузки или выгрузки почты или грузов, заправки, стоянки или технического обслуживания;
14) порог ВПП - начало участка ВПП, который может использоваться для посадки;
15) препятствие - все неподвижные (временные или постоянные) и подвижные объекты или части их, которые размещены в зоне, предназначенной для движения воздушных судов по поверхности, или которые возвышаются над определенной поверхностью, предназначенной для обеспечения безопасности воздушных судов в полете;
16) рулежная дорожка (далее - РД) - определенный путь на сухопутном аэродроме, установленный для руления воздушных судов и предназначенный для соединения одной части аэродрома с другой, в том числе:
а) полоса руления воздушного судна на стоянке - часть перрона, обозначенная как рулежная дорожка и предназначенная для обеспечения подхода только к местам стоянки воздушных судов;
б) перронная рулежная дорожка - часть системы рулежных дорожек, расположенная на перроне и предназначенная для обеспечения маршрута руления через перрон;
в) скоростная выводная рулежная дорожка - рулежная дорожка, соединенная с ВПП под острым углом и позволяющая выполнившим посадку самолетам сходить с ВПП на более высоких скоростях, чем те скорости, которые достигаются на других выводных рулежных дорожках, и тем самым сводить к минимуму время нахождения на ВПП;
17) смещенный порог ВПП - порог, расположенный не у торца ВПП.
1.8. Основные сокращения, применяемые в настоящих Нормах
ACN - классификационное число воздушного судна
АРП - автоматический радиопеленгатор
АС УВД - автоматизированная система управления воздушным движением
АСС - аварийно-спасательная станция
БПРМ - ближний приводной радиомаркерный пункт
БМРМ - ближний маркерный радиомаяк
ВС - воздушное судно
ГВПП - грунтовая взлетно-посадочная полоса
ГРМ - глиссадный радиомаяк
ДПК - диспетчерский пункт круга
ДПРМ - дальний приводной радиомаркерный пункт
ДМРМ - дальний маркерный радиомаяк
ДПП - диспетчерский пункт подхода
ДПР - диспетчерский пункт руления
ДПСП - диспетчерский пункт системы посадки
ИВПП - взлетно-посадочная полоса с искусственным покрытием
ИПП - инструкция по производству постов в районе аэродрома
КДП - командно-диспетчерский пункт
КРМ - курсовой радиомаяк
ЛП - летная полоса
МРЛ - метеорологический радиолокатор
МРМ - маркерный радиомаяк
ОВИ - огни высокой интенсивности
ОМИ - огни малой интенсивности
ОРЛ-А - обзорный радиолокатор аэродромный
ОСП - оборудование системы посадки
ПА - аэродромный пожарный автомобиль
ПВП - правила визуальных полетов
ПДП - пункт диспетчера посадки
ПДСР - пункт диспетчера старта и руления
ПРЛ - посадочный радиолокатор
ПМРЦ - приемный радиоцентр
ППП - правила полетов по приборам
ПРЦ - передающий радиоцентр
PCN - классификационное число искусственного покрытия элемента аэродрома
РГМ - разность глубин модуляции
РЛС ОЛП - радиолокационная станция обзора летного поля
РМА - всенаправленный (азимутальный) УКВ радиомаяк
РМД - дальномерное измерительное устройство
РМС - радиомаячная система
РСБН - радиомаячная система ближней навигации
РСП - радиолокационная система посадки
СДП - стартовый диспетчерский пункт
СКП - стартовый командный пункт
ССО - светосигнальное оборудование
УВД - управление воздушным движением
УТПЗ - уровень требуемой пожарной защиты
ЩГП - щит гарантированного питания
2.1. Каждому аэродрому экспериментальной авиации (далее - АЭ) должен быть определен его класс. Класс аэродрома определяется:
а) на аэродромах, имеющих одну ИВПП - классом ИВПП;
б) на аэродромах, имеющих две или более ИВПП, - классом ИВПП, имеющей наибольшую длину в стандартных условиях.
Класс ИВПП определяется длиной ИВПП в стандартных условиях согласно таблице 2.1.
|
Показатель |
Класс ИВПП |
|||
|
Минимальная длина ИВПП в стандартных условиях*, м |
Более 2600 |
2100 |
1500 |
1000 |
|
Класс аэродрома экспериментальной авиации |
I |
II |
III |
IV |
|
_________________ * Перевод длины ИВПП на аэродромах экспериментальной авиации из расчетных в стандартные производится по методике, изложенной в приложении к настоящим Нормам (Методики оценки соответствия Нормам годности к эксплуатации аэродромов ЭА, Глава II). |
||||
3.1.1. На аэродроме для каждого направления взлета и посадки должны быть установлены следующие располагаемые дистанции:
располагаемая дистанция разбега;
располагаемая дистанция взлета;
располагаемая дистанция прерванного взлета;
располагаемая посадочная дистанция.
3.2.1. Ширина ИВПП должна быть по всей длине постоянной и не менее:
60 м - для аэродромов класса I;
42 м - для аэродромов класса II;
32 м - для аэродромов класса III;
28 м - для аэродромов класса IV.
Для аэродромов класса I минимальную ширину ИВПП допускается принимать равной 45 м. При этом должны быть предусмотрены укрепленные обочины такой ширины, чтобы расстояние от оси ИВПП до внешних кромок каждой из обочин было не менее 30 м.
3.2.2. При отсутствии РД, примыкающей к концевому участку ИВПП для разворота ВС должно предусматриваться уширение ИВПП. Ширина ИВПП в местах уширения должна быть не менее:
75 м - для аэродромов классов I, II;
45 м - для аэродромов классов III, IV.
3.2.3. Длина концевых полос безопасности (КПБ) должна быть не менее: 150 м для аэродромов классов I, II, III и 120 м для аэродромов класса IV.
3.2.4. На КПБ должны предусматриваться укрепленные участки. Ширина укрепленного участка КПБ должна быть не менее ширины ИВПП, а длина не менее:
50 м - для аэродромов класса I и II;
20 м - для аэродромов класса III и IV.
3.2.5. С каждой стороны ИВПП должны быть предусмотрены боковые полосы безопасности (БПБ). Ширина БПБ должна быть не менее:
50 м - для аэродромов класса I;
25 м - для аэродромов классов II, III и IV.
3.2.6. Продольный профиль ИВПП должен обеспечивать взаимную видимость двух точек, находящихся на высоте 3 м от поверхности ИВПП и на расстоянии менее половины ее длины.
3.2.7. Продольные и поперечные уклоны ИВПП должны быть не более приведенных в таблице 3.1.
Таблица 3.1
|
Наименование уклона |
Все классы аэродромов |
|
1 |
2 |
|
Максимальный продольный |
0,015 |
|
Средний продольный |
0,010 |
|
Максимальный поперечный |
0,015 |
3.2.8. В документах аэронавигационной информации для каждой ИВПП должен быть приведен продольный профиль ИВПП с указанием фактических уклонов.
3.2.9. В целях определения минимальных параметров: ширины РД, обочин РД, удаления РД от препятствий - для каждой РД должны быть установлены индексы самолетов, эксплуатируемых на данных РД аэродрома. Индекс самолета устанавливается в соответствии с таблицей 3.2.
|
Индекс самолета |
Размах крыла, м |
Колея шасси по внешним авиашинам*,**, м |
|
1 |
2 |
3 |
|
1 |
До 24 |
До 4 |
|
2 |
От 24 до 32 |
От 4 до 6 |
|
3 |
От 24 до 32 |
От 6 до 9 |
|
4 |
От 32 до 42 |
От 9 до 10,5 |
|
5 |
От 32 до 42 |
От 10,5 до 12,5 |
|
6 |
От 42 до 65 |
От 10,5 до 14 |
|
7 |
От 65 до 80 |
От 14 до 16 |
|
* Колея шасси по внешним авиашинам - расстояние между внешними кромками колес основного шасси. |
||
|
** Если индексы самолета по размаху крыла и колее шасси различны, то принимается больший из индексов. |
||
3.2.10. Ширина РД должна быть не менее:
7,0 м - для ВС индекса 1;
10,0 м - для ВС индекса 2;
13,0 м - для ВС индекса 3;
17,0 м - для ВС индекса 4 (14 м для самолетов с индексом 4 при колее шасси по внешним авиашинам до 7,5 м);
19,0 м - для ВС индекса 5;
22,5 м - для ВС индекса 6 (18 м для самолетов с индексом 6 при колее шасси по внешним авиашинам до 9,5 м, 21 м при колее шасси по внешним авиашинам до 12,5 м);
25,0 м - для ВС индекса 7 (22,5 м для ВС индекса 7 размахом крыла от 65 до 75 м и колеей шасси по внешним авиашинам до 10,5 м).
3.2.11. С двух сторон РД, предназначенных для руления самолетов с индексом 4, 5, 6 или 7, должны быть предусмотрены обочины (для РД с покрытием - укрепленные обочины). Общая ширина РД и обочин должна быть не менее:
27,0 м - для ВС индекса 4;
29,0 м - для ВС индекса 5;
40,5 м - для ВС индекса 6 (31 м для самолетов с индексом 6 при расстоянии между осями внешних двигателей до 27 м, 39 м для самолетов с индексом 6 при колее шасси по внешним авиашинам до 12,5 м);
44,0 м - для ВС индекса 7 (40,5 м для самолетов с индексом 7 при расстоянии между осями внешних двигателей до 36 м).
3.2.12. Расстояние между осевой линией РД и неподвижными препятствиями должно быть не менее:
25,0 м - для ВС индекса 1;
29,5 м - для ВС индексов 2, 3;
38,0 м - для ВС индексов 4, 5;
47,5 м - для ВС индекса 6;
57,5 м - для ВС индекса 7 (55 м для ВС с размахом крыла от 65 до 75 м и колеей шасси по внешним авиашинам до 10,5 м).
Указанные расстояния не относятся к путям руления на местах стоянок.
3.2.13. Значение расстояния между осевыми линиями параллельных РД с искусственными покрытиями и без искусственных покрытий принимается не менее приведенного в таблице 3.3.
Таблица 3.3
|
Индекс самолета |
Расстояние между осевыми линиями параллельных РД, м, для индексов самолетов |
||||
|
1 |
2, 3 |
4, 5 |
6 |
7 |
|
|
1 |
38 |
42,5 |
51 |
63 |
70,5(68) |
|
2, 3 |
42,5 |
47 |
55,5 |
67,5 |
75(72,5) |
|
4, 5 |
51 |
55,5 |
61 |
73 |
80,5(78) |
|
6 |
63 |
67,5 |
73 |
85 |
92,5(90) |
|
7 |
70,5(68)* |
75(72,5) |
80,5(78) |
92,5(90) |
100(97,5) |
|
* Значения в скобках даны для самолетов индекса 7 с размахом крыла от 65 до 75 м и колеей шасси по внешним авиашинам до 10,5 м. |
|||||
3.2.14. Радиус закругления РД с искусственными покрытиями по внутренней кромке покрытия при примыкании к ИВПП должен быть не менее:
10 м - для ВС индекса 1;
20 м - для ВС индекса 2;
30 м - для ВС индекса 3;
50 м - для ВС индексов 4, 5, 6, 7.
В случае если поворот самолета с РД производится только в одну сторону, то закругление с другой стороны РД может не предусматриваться.
3.2.15. Для обеспечения требований по авиационной безопасности*(9) на аэродроме:
предусматривается устройство ограждения по всему периметру с отделением от производственной зоны;
контрольно-пропускной режим осуществляется по всему периметру.
3.3.1. Искусственные покрытия должны выдерживать нагрузки, возникающие при движении и стоянке воздушных судов.
3.3.2. Для каждой ИВПП, РД и МС (площадки) должна быть определена и указана в инструкции по производству полетов (ИПП) на аэродроме и в документах аэронавигационной информации несущая способность искусственных покрытий.
3.3.3. Несущая способность искусственного покрытия, предназначенного для эксплуатации воздушных судов с массой более 5700 кг, определяется по методу "Классификационное число воздушного судна - классификационное число покрытия (ACN-PCN)" с представлением следующих данных:
классификационное число покрытия (PCN);
тип покрытия;
категория прочности основания;
категория максимально допустимого давления в пневматике;
метод оценки.
Допускается указывать значения PCN, действие которых ограничено конкретным сезоном года с указанием сроков действия данного ограничения.
При отсутствии расчетных значений классификационного числа воздушного судна (ACN)*(10) воздушного судна допускается использовать значения, полученные от разработчиков авиационной техники.
3.3.4. Классификационные числа покрытий PCN должны быть не ниже классификационных чисел эксплуатируемых ВС (ACN).
Если значения PCN менее значений ACN, необходимо вводить ограничения по массе и/или интенсивности движения ВС.
3.3.5. При введении на аэродроме ограничений в части массы и/или интенсивности движения ВС, а также сроков действия значений PCN (например, на зимний сезон) они отражаются в ИПП и документах аэронавигационной информации.
3.3.6. Данные о несущей способности искусственных покрытий, предназначенных для использования ВС с массой 5700 кг и менее, должны включать:
максимально допустимую массу ВС;
максимально допустимое давление в пневматиках.
3.3.7. Требуется соответствие показателей несущей способности ГВПП, прочности и плотности грунта для эксплуатируемых типов ВС.
3.4.1. На поверхности искусственных покрытий аэродрома не должно быть:
посторонних предметов или продуктов разрушения покрытия;
оголенных стержней арматуры;
уступов между соседними плитами и кромками трещин высотой более 30 мм (для ИВПП - 25 мм);
уступов поверхности на укрепленных обочинах на ИВПП и РД более 50 мм;
наплывов мастики высотой более 15 мм;
выбоин и раковин с наименьшим размером в плане более 50 мм и глубиной более 30 мм (для ИВПП - 25 мм), не залитых мастикой;
сколов кромок плит и трещин шириной более 30 мм и глубиной более 25 мм, не залитых мастикой;
волнообразования, образующих просвет под трехметровой рейкой более 25 мм (кроме вершин двускатного профиля и дождеприемных лотков).
3.4.2. Грунтовая поверхность летной полосы должна сопрягаться в одном уровне со всеми искусственными покрытиями аэродрома. На грунтовой поверхности не должно быть:
колей от колес воздушных судов глубиной, превышающей максимально допустимую величину, указанную в руководстве по летной эксплуатации, участков с разрыхленным, неуплотненным грунтом;
не спланированных участков, на которых застаивается вода после выпадения осадков или при таянии снега;
посторонних предметов, которые могут привести к поломке шасси или попасть в воздухозаборники двигателей воздушных судов.
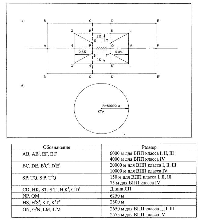
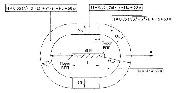
4.1.2. Выявлению подлежат препятствия, высота которых превышает:
а) уровень земли в пределах летной полосы за исключением огней светосигнальной системы, контрольной антенны курсового радиомаяка, уголковых отражателей ПРЛ, имеющих легкую и ломкую конструкцию;
б) высоту поверхности с наклоном 0,8% на участках GSS'G' и LTT'L' (рисунок 4.1). Началом отсчета высоты поверхности является высота рельефа на продолжении осевой линии ВПП в конце ЛП;
в) высоту поверхности с наклоном 2% на участках GSTL и G'S'T'L' (рисунок 4.1). Началом отсчета высоты поверхности является высота ближайшей точки профиля оси ВПП или ее продолжения в пределах летной полосы;
г) 50 м относительно уровня самого низкого порога ВПП в зоне ВЕЕ'В' (рисунок 4.1);
д) 100 м относительно уровня самого низкого порога ВПП в пределах круга с радиусом 50 км с центром в КТА (рисунок 4.1).
Если на некотором участке (участках) круга полеты запрещены, то выявление препятствий в пределах такого участка сводится к определению наивысшего (наивысших) препятствия (препятствий).
Кроме того, должны быть получены данные о высоте и расположении препятствий, которые представляют опасность для выполнения полетов.

Рис. 4.1. Зоны и поверхности для выявления препятствий
Необорудованная ВПП и ВПП для захода на посадку по приборам
4.2.1. Для необорудованной ВПП и ВПП для захода на посадку по приборам устанавливаются следующие поверхности ограничения препятствий:
внешняя горизонтальная поверхность (рисунок 4.2);
коническая поверхность (рисунки 4.2, 4.3);
внутренняя горизонтальная поверхность (рисунки 4.2-4.4);
поверхность захода на посадку (рисунки 4.2, 4.3);
переходные поверхности (рисунки 4.2, 4.3).
Относительные высоты, размеры и наклоны данных поверхностей указаны в таблице 4.1.

Рис. 4.2. Поверхности ограничения препятствий


Рис. 4.4. Внутренняя горизонтальная поверхность
Поверхность захода на посадку имеет:
нижнюю границу установленной длины, расположенную горизонтально на заданном расстоянии перед порогом ВПП, перпендикулярно и симметрично осевой линии ВПП;
две боковые границы, начинающиеся от концов внутренней границы и равномерно расходящиеся под установленным углом к продолжению осевой линии ВПП;
верхнюю границу, параллельную нижней границе.
Высота нижней границы поверхности захода на посадку соответствует высоте средней точки порога ВПП.
Наклон поверхности захода на посадку измеряется в вертикальной плоскости, содержащей осевую линию ВПП.
Переходная поверхность является контрольной поверхностью ограничения естественных и тех искусственных препятствий, которые не размещены вблизи ВПП (здания и сооружения, воздушные суда на местах стоянки, осветительные мачты и т.п.).
Наклон переходной поверхности измеряется в вертикальной плоскости, перпендикулярной оси ВПП или ее продолжению.
Переходная поверхность имеет:
нижнюю границу, начинающуюся у пересечения боковой границы поверхности захода на посадку с внутренней горизонтальной поверхностью и продолжающуюся вниз вдоль боковой границы поверхности захода на посадку и далее на расстоянии, равном половине длины нижней границы поверхности захода на посадку;
верхнюю границу, расположенную в плоскости внутренней горизонтальной поверхности.
Высота нижней границы поверхности является в общем случае переменной величиной. Высота точки на этой границе равна:
вдоль боковой границы поверхности захода на посадку - превышению поверхности захода на посадку в этой точке;
вдоль ВПП - превышению ближайшей точки осевой линии ВПП или ее продолжения.
4.2.2. Объекты, возвышающиеся над любой из поверхностей, указанных в пункте 4.2.1 необходимо, насколько это практически возможно, устранять.
ВПП точного захода на посадку I, II, III категорий
внешняя горизонтальная поверхность;
коническая поверхность;
внутренняя горизонтальная поверхность;
поверхность захода на посадку;
переходные поверхности;
внутренняя поверхность захода на посадку (рисунок 4.5);
внутренние переходные поверхности;
поверхность прерванной посадки.
Относительные высоты, размеры и наклоны данных поверхностей указаны в таблице 4.1.
Характеристики внешней горизонтальной поверхности, конической поверхности, внутренней горизонтальной поверхности, поверхности захода на посадку и переходной поверхности приведены в пункте 4.2.1.

Рис. 4.5. Поверхности ограничения препятствий
Внутренняя поверхность захода на посадку имеет:
нижнюю границу, совпадающую с нижней границей поверхности захода на посадку, но имеющую меньшую длину;
две боковые границы, начинающиеся у концов нижней границы;
верхнюю границу, параллельную нижней границе.
Внутренняя переходная поверхность (рисунок 4.5) является контрольной поверхностью ограничения тех препятствий, которые должны располагаться вблизи ВПП (навигационные средства, метеоприборы, СДП, воздушные суда на РД и другие транспортные средства, движущиеся по установленным маршрутам). Наклон внутренней переходной поверхности измеряется в вертикальной плоскости, проходящей перпендикулярно осевой линии ВПП или ее продолжению.
Внутренняя переходная поверхность имеет:
нижнюю границу, начинающуюся от конца верхней границы внутренней поверхности захода на посадку и простирающуюся вдоль боковой границы этой поверхности и далее вдоль летной полосы параллельно осевой линии ВПП, а затем по боковой границе поверхности прерванной посадки до конца верхней границы этой поверхности;
верхнюю границу, расположенную на высоте 60 м относительно высоты аэродрома.
Высота нижней границы внутренней переходной поверхности является в общем случае переменной величиной и равна:
вдоль боковой границы внутренней поверхности захода на посадку и поверхности прерванной посадки - превышению соответствующей поверхности в рассматриваемой точке;
вдоль ВПП - превышению ближайшей точки на осевой линии ВПП.
Часть внутренней переходной поверхности, расположенная вдоль ВПП, является криволинейной при криволинейном профиле ВПП или представляет собой плоскость при прямолинейном профиле ВПП. Верхняя граница внутренней переходной поверхности также является криволинейной или прямолинейной в зависимости от профиля ВПП.
Поверхность прерванной посадки (рисунок 4.5) имеет:
нижнюю границу, проходящую перпендикулярно к осевой линии ВПП на заданном расстоянии за порогом ВПП;
две боковые границы, начинающиеся у концов нижней границы и равномерно расходящиеся под заданным углом от вертикальной плоскости, содержащей осевую линию ВПП;
верхнюю границу, параллельную нижней границе и расположенную на высоте 60 м относительно высоты аэродрома.
Высота нижней границы равняется превышению осевой линии ВПП в месте расположения нижней границы.
Наклон поверхности прерванной посадки измеряется в вертикальной плоскости, содержащей осевую линию ВПП.
4.2.4. Объекты, возвышающиеся над любой из поверхностей, указанных в пункте 4.2.3 необходимо, насколько это практически возможно, устранять.
Неподвижные объекты не должны выступать за внутреннюю поверхность захода на посадку, внутренние переходные поверхности и поверхность прерванной посадки, за исключением объектов на ломком основании, которые по своему функциональному назначению должны располагаться в пределах этой поверхности. При использовании ВПП для посадки над этой поверхностью не должны возвышаться подвижные объекты.
|
Поверхность и ее параметры |
Необорудованная ВПП |
ВПП для захода на посадку по приборам |
ВПП точного захода на посадку I, II, III категорий |
|||
|
Класс |
ВПП |
Класс |
ВПП |
Класс |
ВПП |
|
|
I, II, III |
IV |
I, II, III |
IV |
I, II, III |
IV |
|
|
1 |
2 |
3 |
4 |
5 |
6 |
7 |
|
ВНЕШНЯЯ ГОРИЗОНТАЛЬНАЯ |
|
|
|
|
|
|
|
Радиус (R), м |
15000 |
8000 |
15000 |
8000 |
15000 |
8000 |
|
Высота (относительно высоты аэродрома), м |
150 |
110 |
150 |
110 |
150 |
110 |
|
КОНИЧЕСКАЯ |
|
|
|
|
|
|
|
Наклон, % |
5 |
5 |
5 |
5 |
5 |
5 |
|
Высота (относительно внутренней горизонтальной поверхности), м |
100 |
60 |
100 |
60 |
100 |
60 |
|
ВНУТРЕННЯЯ ГОРИЗОНТАЛЬНАЯ |
|
|
|
|
|
|
|
Радиус (r), м |
4000 |
3500 |
4000 |
3500 |
4000 |
3500 |
|
Высота (относительно высоты аэродрома), м |
50 |
50 |
50 |
50 |
50 |
50 |
|
ЗАХОДА НА ПОСАДКУ |
|
|
|
|
|
|
|
Длина нижней границы, м |
150 |
80 |
300 |
150 |
300 |
150 |
|
Расстояние от порога, м |
60 |
60 |
60 |
60 |
60 |
60 |
|
Расхождение в каждую сторону, % |
10 |
10 |
15 |
15 |
15 |
15 |
|
Первый сектор: |
3000 |
2500 |
3000 |
2500 |
3000 |
3000 |
|
- длина, м |
2,5 |
3,33 |
2 |
2,5 |
2 |
2,5 |
|
- наклон, % |
|
|
|
|
|
|
|
Второй сектор: |
- |
- |
3600 |
- |
3600 |
12000 |
|
- длина, м |
- |
- |
2,5 |
- |
2,5 |
3,0 |
|
- наклон, % |
|
|
|
|
|
|
|
Горизонтальный сектор |
- |
- |
8400 |
- |
8400 |
- |
|
- длина, м |
- |
- |
15000 |
- |
15000 |
15000 |
|
Общая длина |
|
|
|
|
|
|
|
ВНУТРЕННЯЯ ЗАХОДА НА ПОСАДКУ |
- |
- |
- |
- |
120 |
90 |
|
Длина нижней границы, м |
- |
- |
- |
- |
60 |
60 |
|
Расстояние от порога, м |
- |
- |
- |
- |
2 |
2,5 |
|
Наклон, % |
- |
- |
- |
- |
900 |
900 |
|
Длина, м |
|
|
|
|
|
|
|
ПЕРЕХОДНАЯ |
14,3 |
20 |
14,3 |
20 |
14,3 |
20 |
|
Наклон, % |
|
|
|
|
|
|
|
ВНУТРЕННЯЯ ПЕРЕХОДНАЯ |
- |
- |
- |
- |
33,3 |
40 |
|
Наклон, % |
|
|
|
|
|
|
|
ПРЕРВАННОЙ ПОСАДКИ |
- |
|
- |
- |
120 |
90 |
|
Длина нижней границы, м |
- |
- |
- |
- |
1800* |
1800* |
|
Расстояние от порога, м |
- |
- |
- |
- |
10 |
10 |
|
Расхождение в каждую сторону, % |
- |
- |
- |
- |
3,33 |
4 |
|
Наклон, % |
|
|
|
|
|
|
|
* Расстояние принимается равным 1800 м или расстоянию от порога ВПП до конца ВПП, в зависимости от того, что меньше. |
||||||
ВПП для взлета
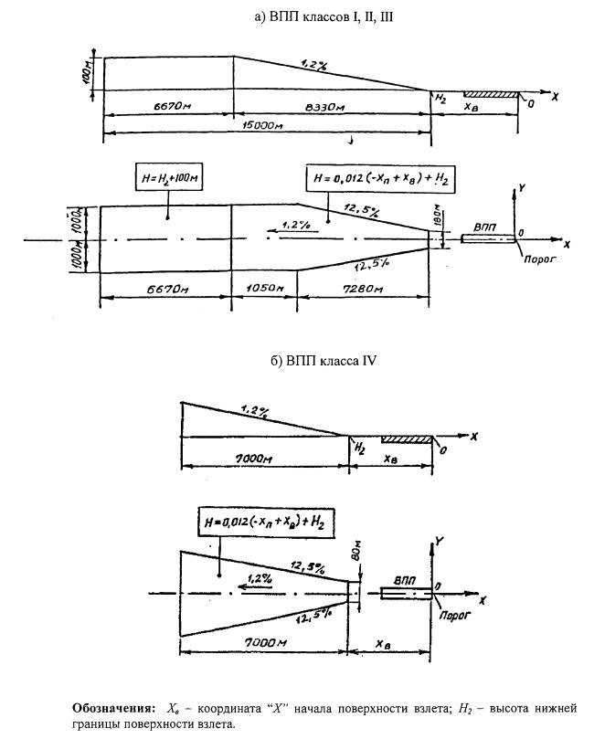
4.2.5. Параметры поверхности взлета для направления ВПП, используемого для взлета, приведены в таблице 4.2.
Таблица 4.2
|
Параметр поверхности взлета |
Класс ВПП |
|
|
I, II, III |
IV |
|
|
1 |
2 |
3 |
|
Длина нижней границы, м |
180 |
80 |
|
Расхождение в каждую сторону, % |
12,5 |
12,5 |
|
Длина, м |
15000 |
7000 |
|
Длина верхней границы, м |
2000 |
1830 |
|
Наклон, % |
1,6 |
3,33 |
Поверхность взлета (рисунок 4.1) имеет:
а) нижнюю границу установленной длины, расположенную горизонтально в конце летной полосы перпендикулярно и симметрично осевой линии ВПП;
б) две боковые границы, начинающиеся у концов нижней границы и равномерно расходящиеся под установленным углом от линии пути ВС при взлете:
до ширины 2000 м и затем продолжающиеся параллельно до верхней границы для ВПП классов I, II, III;
до верхней границы установленной длины для ВПП класса IV;
в) верхнюю границу, проходящую горизонтально и перпендикулярно указанной линии пути при взлете.
При прямолинейной линии пути расхождение боковых границ и конечная ширина поверхности отсчитывается от продолжения осевой линии ВПП, а при криволинейной - от установленной в плане линии пути набора высоты после взлета.
Высота нижней границы поверхности взлета равна высоте наивысшей точки местности на продолжении осевой линии ВПП в пределах от конца ВПП до конца летной полосы.
При прямолинейной поверхности взлета наклон поверхности взлета измеряется в вертикальной плоскости, содержащей осевую линию ВПП.
При криволинейной поверхности взлета наклон поверхности взлета измеряется в вертикальной поверхности, содержащей установленную линию пути ВС при взлете.
4.2.6. Объекты, возвышающиеся над поверхностью взлета, рекомендуется устранять.
4.3.1. Учет препятствий при взлете. Препятствия, расположенные в пределах границ поверхности взлета в соответствии с пунктом 4.2.5 настоящих Норм и превышающие поверхность с наклоном 1,2% или высоту 100 м относительно уровня нижней границы поверхности взлета (в зависимости от того, что меньше), включаются в ИПП, с указанием о необходимости их учета при определении максимальной взлетной массы воздушного судна.
При расчете безопасных высот пролета препятствий должны учитываться все препятствия, расположенные в зонах учета препятствий в соответствии с п. 4.1.2 настоящих Норм, предусмотренных для соответствующей радиотехнической системы посадки.
Безопасные высоты пролета препятствий устанавливаются для каждого направления посадки и указываются в ИПП.
5.1.1. На ИВПП аэродромов наносятся следующие маркировочные знаки (рисунки 5.1, 5.2): порога, продольной оси полосы, зоны фиксированного расстояния, зоны приземления, линии выхода с ИВПП на РД на участке сопряжения РД с ИВПП и цифровые знаки посадочного магнитного путевого угла (далее - ПМПУ).
5.1.2 Расположение маркировочных знаков на ИВПП, их размеры и количество должны соответствовать таблице 5.1. Цифровые знаки ПМПУ и знаки обозначения параллельных ВПП должны располагаться в соответствии с рисунками 5.1, 5.2.
5.1.3. Параллельные ИВПП дополнительно со стороны захода на посадку маркируются латинскими буквами "L" (левая) и "R" (правая), которые располагаются между знаками порога и цифровыми знаками ПМТУ. Цифровые знаки ПМПУ и знаки обозначения параллельных ИВПП должны располагаться согласно рисунку 5.2.
5.1.4. Маркировка осевой линии ИВПП наносится по продольной оси ИВПП.
5.1.5. Линия выхода с ИВПП на РД на участке сопряжения РД с ИВПП должна начинаться не менее, чем за 60 м до криволинейного участка перехода ее в осевую линию РД и располагаться параллельно осевой линии ИВПП.
5.1.6. На участках пересечения взлетно-посадочных полос маркировка главной ИВПП должна сохраняться, а вспомогательной - прерываться.
5.1.7. Маркировочные знаки края ИВПП следует наносить на ИВПП точного захода на посадку I, II, III категорий. Маркировка края должна прерываться в местах примыкания РД к ИВПП и в местах пересечения ВПП.
5.1.8. При постоянно и временно смещенном пороге к новой маркировке порога должна добавляться поперечная линия шириной 1,8 м. Все маркировочные знаки, предшествующие смещенному порогу, должны быть ликвидированы, за исключением маркировки осевой линии ИВПП, полосы которой преобразуются в стрелки-указатели (рисунок 5.2.).
5.1.9. Все маркировочные знаки ИВПП должны быть окрашены в белый цвет.

Рис. 5.1. Схема маркировки аэродрома

|
Параметр |
Элемент маркировки |
|||||||||
|
Порог |
Осевая линия |
Зона приземления |
Зона фиксированного расстояния |
Край ВПП точного захода на посадку I, II, III категорий |
||||||
|
Класс ВПП |
||||||||||
|
I-IV |
I-III |
IV |
I |
II |
III |
IV |
I |
II |
||
|
Расстояние от края ВПП, м |
3,0 |
- |
- |
- |
- |
- |
- |
- |
- |
1,0 |
|
Расстояние от конца ВПП, м |
6,0-15,0 |
- |
- |
- |
- |
- |
- |
- |
- |
- |
|
Размеры знака, м: |
|
|
|
|
|
|
|
|
|
|
|
длина, не менее |
30,0 |
30,0 |
30,0 |
22,5 |
22,5 |
22,5 |
22,5 |
50,0 |
50,0 |
В зависимости от длины |
|
ширина |
1,8-2,0 |
0,5 |
0,3 |
3,0 |
3,0 |
3,0 |
3,0 |
8,0 |
8,0 |
ВПП 0,9 |
|
Расстояние от начала маркировки порога, м |
- |
63,0 (78,0) |
63,0 (78,0) |
150,0 |
150,0 |
150,0 |
150,0 |
300,0 |
300,0 |
33 |
|
Количество полос, шт. |
В зависимости от ширины ВПП |
В зависимости от длины ВПП |
12 |
8 |
6 |
4 |
2 |
2 |
2 |
|
|
Расстояние между внутренними сторонами знаков, ближайшими к оси ВПП, м |
3,6-4,0 |
|
|
22,5 |
18,0-22 ,5 |
18,0-22 ,5 |
18,0 |
22,5 |
18,0-22 ,5 |
В зависимости от ширины ВПП |
|
Расстояние между знаками, м |
1,8-2,0 |
30,0 |
30,0 |
150,0 |
150,0 |
150,0 |
150,0 |
- |
- |
- |
|
1. На ВПП точного захода на посадку II, III категорий осевая линия должна иметь ширину 0,9 м. 2. Маркировка осевой линии ВПП должна располагаться вдоль продольной оси ВПП. 3. Значения параметров в скобках используются при маркировке параллельных ВПП. 4. Количество знаков зоны приземления дано с учетом знаков фиксированного расстояния для одного курса посадки. 5. Маркировочные знаки ВПП: осевой линии, зоны приземления, зоны фиксированного расстояния, края ВПП и ПМПУ располагаются от начала маркировки порога. |
||||||||||
5.2.1. На покрытии РД должны быть нанесены маркировочные знаки осевой линии, мест ожидания ВС согласно рисунку 5.1.
5.2.2. Маркировка осевой линии РД на прямолинейных и криволинейных участках, а также на пересечениях РД, должна быть сплошной линией шириной 0,15 м.
На прямолинейном участке РД маркировку осевой линии следует наносить по продольной оси.
На криволинейном участке РД маркировка осевой линии должна быть нанесена по кривой максимально возможного для данных условий радиуса.
Расстояние от внутреннего края РД до маркировочной линии на криволинейном участке должно обеспечивать минимально допустимое удаление колес ВС от края РД при рулении по данному участку.
5.2.3. Маркировка места ожидания ВС должна быть выполнена согласно рисунку 5.1.
5.2.4. Маркировка места ожидания ВС на РД, примыкающей к ВПП, оборудованной РМС, должна располагаться с соблюдением следующих требований:
расстояние от осевой линии ИВПП до маркировки места ожидания воздушного судна на РД должно составлять не менее 120 м;
маркировка места ожидания воздушного судна на РД не должна располагаться в пределах критических зон РМС;
ни одна из частей воздушного судна не должна располагаться в пределах летной полосы.
5.2.5. Маркировка места ожидания ВС на РД, примыкающей к ВПП, не оборудованной РМС, должна располагаться с соблюдением следующих требований:
расстояние от осевой линии ИВПП до знака места ожидания воздушных судов должно составлять: не менее 90 м для ИВПП класса I, II; 75 м для ВПП класса III, IV;
ни одна из частей ВС не должна находиться в пределах летной полосы.
5.2.6. Маркировочные знаки РД должны быть окрашены в желтый (оранжевый) цвет.
5.3.1. Места стоянок (площадки) должны иметь точную геодезическую привязку.
На местах стоянок (площадках) должны быть нанесены маркировочные знаки:
оси руления ВС (линии заруливания, разворотов и выруливания);
Т-образный знак остановки ВС и спецмашин;
номер стоянки;
границы зон повышенной опасности для обслуживающего ВС авиационным персоналом
при гонках двигателей;
пути движения спецмашин при обслуживании ВС.
5.3.2. Ось руления ВС на местах стоянок (площадках) на прямоугольных и криволинейных участках маркируется также как РД.
5.3.3. Маркировка проводится в соответствии с утвержденной схемой расстановки ВС на местах стоянок (площадках). При этом интервал между концевыми обтекателями крыльев рядом стоящих ВС должны быть:
для ВС с одним авиационным двигателям - не менее 2 м;
для ВС с двумя авиационными двигателями - не менее 3 м;
для ВС с четырьмя и более авиационными двигателями - не менее 5 м.
Для ВС с изменяющейся стреловидностью крыла интервалы определяются при минимальном угле стреловидности.
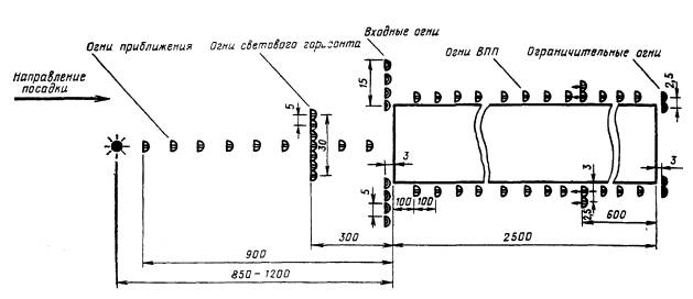
5.4.1. На аэродроме должны быть установлены дневные ориентиры по оси ИВПП между ДПРМ и БПРМ, а также призмы для обозначения боковых границ полосы подхода, боковых границ ИВПП, начала и конца ИВПП, зоны приземления согласно рисунку 5.3.
5.5.1. Приведенный в настоящем разделе перечень объектов, подлежащих маркировке, не означает, что не допускается дневная маркировка иных объектов, которые, по мнению эксплуатанта аэродрома, нуждаются в такой маркировке.
5.5.2. Маркируются все искусственные препятствия, расположенные в пределах приаэродромной территории, высота которых превышает условные поверхности ограничения высот препятствий в соответствии с главой IV настоящих Норм или превышает 100 м.
Кроме того, в полосах воздушных подходов маркировке подлежат искусственные препятствия, превышающие уровень порога ИВПП:
а) на 1 м и более - на расстоянии до 1 км от конца летной полосы;
б) на 10 м и более - на расстоянии от 1 до 4 км от конца летной полосы;
в) на 50 м и более - на расстоянии от 4 км от конца летной полосы до конца полосы воздушных подходов.
5.5.3. Дневная маркировка высотных препятствий должна отчетливо выделяться на фоне местности, быть визуально видной со всех направлений и иметь два резко отличающихся друг от друга маркировочных цвета: красный (оранжевый) и белый.
5.5.4. Дневная маркировка должна наноситься на объекты УВД, радионавигации и посадки (исключая КДП), предназначенные для обслуживания полетов и расположенные в пределах ограждения аэродрома.
5.5.5. Допускается отсутствие маркировки на памятниках архитектуры и истории, культовых сооружениях, зданиях за пределами ограждения аэродрома. Также допускается отсутствие маркировки на трубах и других сооружениях из красного кирпича и на объектах, "затененных" более высокими маркированными неподвижными объектами.

5.5.6. Объекты, подлежащие маркировке и имеющие практически сплошные поверхности, окрашиваются следующим образом:
в шахматном порядке прямоугольниками (квадратами) со стороной 1,5-3,0 м, если проекции поверхностей объекта на любую вертикальную плоскость составляют или превышают 4,5 м в обоих измерениях, причем углы окрашиваются в темный цвет;
чередующимися по цвету полосами шириной 0,5-3,0 м перпендикулярно большему измерению, если одна из сторон объекта в горизонтальном или вертикальном измерении составляет или более 1,5 м, а другая сторона составляет или менее 4,5 м, причем крайние полосы окрашиваются в темный цвет.
5.5.7. Объекты (трубы, теле- и метеомачты, опоры линий электропередач и др.):
при высоте до 100 м должны маркироваться от верхней точки до линии пересечения с поверхностью ограничения препятствий, но не менее чем на 1/3 их высоты, чередующимися по цвету горизонтальными полосами шириной 0,5-6,0 м. Минимальное число чередующихся полос - три;
при высоте более 100 м должны маркироваться от верха до основания чередующимися по цвету полосами.
При нанесении маркировки*(11) руководствуются следующими соотношениями высоты объекта и ширины маркировочной полосы:
|
Высота сооружения, м |
Ширина полосы |
|
От 100 до 210 |
1/7 высоты объекта |
|
От 210 до 270 |
1/9 |
|
От 270 до 330 |
1/11 |
|
От 330 до 390 |
1/13 |
|
От 390 до 450 |
1/15 |
|
От 450 до 510 |
1/17 |
|
От 510 до 570 |
1/19 |
|
От 570 до 630 |
1/21 |
|
Крайние полосы окрашиваются в темный цвет. |
|
5.6.1. На аэродромах круглосуточного действия светоограждение должны иметь все неподвижные объекты, подлежащие дневной маркировке (рисунок 5.4).
Допускается отсутствие светоограждения на памятниках и культовых сооружениях, а также на объектах, "затененных" более высоким неподвижным объектом, имеющим светоограждение.
5.6.2. Светоограждению подлежат объекты радиосветотехнического и метеорологического оборудования расположенные на территории аэродрома.
5.6.3. Препятствия должны иметь световое ограждение на самой верхней части (точке) и ниже ярусами через каждые 45 м (не более), при этом в верхних точках препятствий должны быть установлены два заградительных огня, работающих одновременно.
5.6.4. При светоограждении труб или других сооружений аналогичного назначения верхние огни следует устанавливать ниже верхней точки на 1,5-3 м.

5.6.5. Заградительные огни, которые устанавливаются на объектах, находящихся на курсах взлета и посадки воздушных судов (ДПРМ, БПРМ, КРМ и т.п.), должны быть размещены на линии, перпендикулярной оси ИВПП, с интервалом между огнями не менее 3 м. При этом огонь должен быть сдвоенной конструкции.
5.6.6. Протяженные в горизонтальной плоскости препятствия (здания) должны иметь светоограждение в продольном направлении, при этом интервал между огнями не должен превышать 45 м.
5.6.7. Количество и расположение заградительных огней должно быть таким, чтобы с любого направления полета было видно не менее двух огней.
5.6.8. Заградительные огни на неподвижных объектах должны быть огнями красного цвета постоянного излучения.
6.1.1. Радиотехническое оборудование (далее - РТО) должно функционировать в условиях одновременной работы с другими радиоэлектронными средствами в реальных условиях эксплуатации с требуемым качеством при воздействии на них непреднамеренных радиопомех.
6.1.2. РТО должно эксплуатироваться в пределах установленного или продленного ресурса (срока службы). Выработавшее установленный ресурс РТО и не прошедшее процедуру продления, не используется для обеспечения полетов.
6.1.3. Состояние подъездных путей должно обеспечивать беспрепятственное прибытие обслуживающего персонала на все объекты радиотехнического оборудования в любое время года.
6.1.4. Для категорированных аэродромов требуется соответствие радиомаячной системы посадки категории не ниже устанавливаемой категории.
6.1.5. Для обеспечения необходимого минимума посадки аэродрома соответствующее направление ВПП оборудуется комплексом радиотехнических средств в подвижном или стационарном варианте в соответствии с таблицей 6.1.
При этом на аэродроме устанавливается светосигнальное оборудование в соответствии с требованиями главы VII настоящих Норм.
|
Состав оборудования |
Некатегорированные аэродромы, оборудованные по схеме |
Категорированные аэродромы |
||||
|
ОСП |
ОСП с РСП |
ОСП с РСП РСБН и РМС |
I |
II |
III |
|
|
Приводные радиомаркерные пункты |
+ * |
+ |
+ |
+ |
+ |
+ |
|
Автоматический радиопеленгатор (АРП) |
+ |
+ |
+ |
+ |
+ |
+ |
|
Радиолокационная система посадки (РСП)** |
- |
+ |
+ |
+ |
+ |
+ |
|
Радиотехническая система ближней навигации (РСБН) |
- |
- |
+ |
+ |
+ |
+ |
|
Азимутальный радиомаяк системы VOR |
- |
- |
- |
- |
+ |
+ |
|
Дальномерный радиомаяк (приемоответчик системы DME/H) |
- |
- |
- |
- |
+ |
+ |
|
Радиомаячные системы посадки (РМС) |
- |
- |
+ |
+ |
+ |
+ |
|
Средства радио и проводной связи |
+ |
+ |
+ |
+ |
+ |
+ |
|
Средства объективного контроля |
+ |
+ |
+ |
+ |
+ |
+ |
|
Централизованная система дистанционного управления и контроля технического состояния средств связи и РТО |
- |
- |
- |
+ *** |
+ |
+ |
|
_________________________ * Знак "+" обозначает, что наличие оборудования обязательно. ** Радиолокационные системы посадки типа РСП-6МН, РСП-10 для обеспечения полетов при метеоминимуме I-III категорий использовать запрещается. *** Допускается применение штатных выносных устройств, входящих в комплект средств РТО. |
||||||
6.2.1. Радиотехнические средства на аэродроме размещаются в пределах допусков, установленных типовой схемой размещения (рисунок 6) в зависимости от особенностей аэродрома и требований электромагнитной совместимости. Местность установки средств должна соответствовать требованиям эксплуатационной документации.
6.2.2. Ориентирование антенных систем средств РТО при развертывании проводится:
УКВ радиопеленгаторов, диспетчерских радиолокаторов по магнитному меридиану;
РСБН - по истинному меридиану;
РМА - по магнитному меридиану;
посадочных радиолокаторов, курсовых и глиссадных радиомаяков, ретрансляторов-дальномеров инструментальных систем захода самолетов на посадку, а также маркерных радиомаяков на аэродроме - относительно оси ВПП (направлений захода на посадку).

Рис. 6. Типовая схема размещения радиотехнических средств аэродромов экспериментальной авиации.
Радиомаячные системы
6.2.3. Антенная система КРМ устанавливается на продолжении оси ВПП со стороны, противоположной направлению захода на посадку, а расстояние до конца ВПП должно обеспечивать безопасную высоту пролета над препятствиями. Боковое смещение антенны от продолжения осевой линии ВПП не допускается.
6.2.4. При совместной установке на аэродроме РМС метрового и дециметрового диапазонов, допускается установка антенны курса дециметрового радиомаяка со смещением ее центра вправо или влево от продолжения оси ВПП на расстояние до 22,5 м. При этом зазор между крайними точками антенн метрового и дециметрового диапазонов должен быть не менее 10 м при антенне метрового диапазона директорного типа и не менее 5 м при антенне метрового диапазона с параболическим отражателем.
При смещении относительно оси ВПП антенна должна быть ориентирована таким образом, чтобы плоскость курса пересекала плоскость, содержащую ось данной ВПП, над точкой установки ближнего маркерного радиомаяка.
6.2.5. ГРМ должен устанавливаться во всех случаях, когда это возможно, со стороны, противоположной участку застройки аэродрома и рулежных дорожек.
Дальность установки антенной системы ГРМ от начала ВПП выбирается с таким расчетом, чтобы спрямленная часть линии глиссады проходила через опорную точку (над началом ВПП) на высоте, обеспечивающей безопасный пролет ВС над препятствиями и безопасную посадку на ВПП.
6.2.6. Высота опорной точки должна быть как можно ближе к оптимальной величине (15+3/-0) м. В отдельных случаях допускается высота опорной точки (15+3/-3) м для ИЛС I категории.
6.2.7. Номинальный угол наклона глиссады должен устанавливаться в пределах от 2 до 4 градусов. Рекомендуется устанавливать номинальный угол наклона глиссады, равным 3 градусам. Угол наклона более 3 градусов может устанавливаться только тогда, когда окружающие условия исключают возможность установки угла 3 градуса.
6.2.8. В случае, если условия местности не удовлетворяют требованиям, приведенным в эксплуатационной документации, окончательное заключение о пригодности к эксплуатации РМС на данном аэродроме принимается лицом, утверждающим Акт летной проверки.
Приводные радиостанции и маркерные радиомаяки
6.2.9. Антенные системы ближней, дальней приводных радиостанций и маркерных радиомаяков рекомендуется размещать на продолжении осевой линии ВПП, на удалениях от порога ВПП в соответствии с типовой схемой. В зависимости от условий местности допускается боковое смещение от продолжения осевой линии ВПП для БПРМ не более ±15 м, а для ДПРМ не более ±75 м.
Высота антенных мачт БПРМ выбирается с учетом требований к ограничению высоты препятствий. На равнинной местности она может составлять от 6,5 до 10 м при размещении антенны на удалениях от начала ВПП 850 и 1200 м соответственно.
Автоматический радиопеленгатор
6.2.10. Автоматический радиопеленгатор устанавливается в районе РСП, а на аэродромах, не оборудованных РМС - в районе ДПРМ с основным курсом посадки на удалении до ±500 м от него.
Радиотехническая система ближней навигации
6.2.11. Геодезическая привязка производится согласно эксплуатационной документации РСБН в прямоугольных координатах (X, Y) с предельной ошибкой _10 м, в географических координатах (широта В, долгота L) с точностью ±1 мин. Результаты геодезических работ оформляются актом геодезической привязки РСБН.
6.2.12. Размещая наземный радиомаяк РСБН, необходимо учитывать:
при использовании для обеспечения полетов в зоне аэродрома устанавливать на расстоянии не более 600 м от осевой линии ВПП и не далее 1200 м от центра ВПП;
при наличии двух и более ВПП установку РСБН рекомендуется производить относительно основной ВПП (ВПП высшего класса);
при установке на одной позиции двух РСБН они должны располагаться относительно друг друга на расстоянии 50 м, при этом должно исключаться экранирование направлений основных маршрутов полета и направлений посадки;
запрещается оборудовать позицию ближе 500 м от РСП и стоянок самолетов.
6.2.13. В случае невозможности удовлетворения всех требований к условиям местности РСБН должен устанавливаться так, чтобы обеспечить устойчивую работу в зонах наибольшей интенсивности полетов (в том числе в направлении посадочного курса).
Радиолокационная система посадки
6.2.14. Радиолокационная система посадки в зависимости от условий местности устанавливается слева или справа от ВПП.
Допускается развертывание на позиции двух и более РСП, без затенения зоны обзора ДРЛ в секторах прохождения основных контролируемых маршрутов полета в районе аэродрома элементами неработающей системы.
ПРЛ должен быть расположен на аэродроме и настроен таким образом, чтобы он обеспечивал обзор в секторе, который начинается в точке, расположенной на расстоянии 150 м от точки приземления в направлении посадки. Угол по азимуту этого сектора должен составлять ±5 градусов относительно осевой линии ВПП, а угол места - от -1 градус до +6 градусов (рисунок 6.1).

Рис. 6.1. Схема размещения посадочного радиолокатора.
Радиомаячные системы посадки
6.3.1. В состав РМС посадки должны входить:
курсовой радиомаяк с контрольным устройством;
глиссадный радиомаяк с контрольным устройством;
маркерные радиомаяки - ближний (БМРМ) и дальний (ДМРМ);
ретранслятор дальномера для РМС дециметрового диапазона волн;
устройство дистанционного управления и контроля работы радиомаяков.
6.3.2. Включение и выключение радиомаяков, ретранслятора дальномера, а также выбор рабочего комплекта должны осуществляться дистанционно (с командно-диспетчерского пункта).
6.3.3. Аппаратура радиомаяков должна иметь 100%-ный резерв (кроме антенно-фидерных устройств и элементов дистанционного управления).
6.3.4. Переключение с неисправного комплекта аппаратуры радиомаяка на резервный должно осуществляться автоматически.
6.3.5. На аэродроме определяются и маркируются критические зоны КРМ и ГРМ, которые образуют критическую зону РМС. Размеры зоны указаны на рисунках 6.2-6.5. Размеры критической зоны в задней полусфере антенной системы определяются в соответствии с эксплуатационной документацией на конкретный тип оборудования. Зоны ожидания ВС перед выруливанием на ВПП должны находиться вне критической зоны РМС. В местах пересечения внутриаэродромными дорогами критической зоны РМС должны быть установлены дорожные знаки "Проезд без остановки запрещен" и щиты с надписью "Зона РМС. Проезд без разрешения диспетчера запрещен".
6.3.6. Документы, определяющие действия группы руководства полетами, содержат указания о недопущении нахождения в критических зонах КРМ и ГРМ ВС или других транспортных средств с момента выполнения ВС начала снижения по глиссаде.

Рис. 6.2. Критическая зона КРМ

Рис. 6.3. Критическая зона ГРМ (вариант I)
Размеры на рисунках 6.2-6.5 даны в метрах
Д - расстояние от антенны ГРМ до порога ВПП

Рис. 6.4. Критическая зона ГРМ (вариант II)

Рис. 6.5. Критическая зона системы посадки
Курсовой радиомаяк I и II категорий дециметрового диапазона волн
6.3.7. Зависимость коэффициента разнослышимости от углового отклонения.
Коэффициент разнослышимости должен линейно возрастать при угловом отклонении в горизонтальной плоскости от линии курса, где он равен нулю, до углов, где он равен 38%.
От углов, где коэффициент разнослышимости равен 38%, до углов ±10° коэффициент разнослышимости должен быть не менее 38%.
При отклонении от углов ±10° до углов ±15° в горизонтальной плоскости не должно быть уменьшения коэффициента разнослышимости до нуля и не должно быть изменения знака коэффициента разнослышимости.
6.3.8. Основные эксплуатационные параметры КРМ I и II категорий соответствуют показателям, приведенным в таблице 6.2.
6.3.9. Для КРМ I категории допуски на искривление линии курса не должны превышать величин, приведенных в таблице 6.3.
6.3.10. Для КРМ II категории допуски на искривление линии курса не должны превышать величин, приведенных в таблице 6.4.
Таблица 6.2
|
№ п/п |
Наименование параметра |
Величина параметра |
|
|
I категории |
II категории |
||
|
1 |
Зона действия в горизонтальной плоскости (рисунок 6.6) ограничивается секторами вправо и влево относительно линий заданного курса, град, не менее |
15 |
15 |
|
2 |
Дальность действия в секторе +-10° относительно заданной линии курса в направлении захода на посадку от порога ВПП, км, не менее |
45 |
45 |
|
3 |
Номинальная ширина сектора курса у начала ВПП, м |
210 |
210 |
|
4 |
Крутизна характеристики по линейному отклонению на краях полусектора курса должна устанавливаться у опорной точки (в соответствии с номинальной шириной сектора курса) пределах |
33 (1+- 0,075) /СК/2 %/град |
0,314 (1+-0,075) %/м |
|
5 |
Отклонение крутизны характеристики от установленного значения, %, не более |
17 |
17 |
|
6 |
Асимметрия крутизны характеристики, %, не более |
7,5 |
7,5 |
|
7 |
Отклонение линии курса от оси ВПП у начала ВПП, не более |
10,5 |
7,5 |
Таблица 6.3
|
Удаление от начала ВПП |
Амплитуда искривлений коэффициента разнослышимости, %, не более |
|
От 45 до 7 км |
6,6 |
|
От 7 до 1 км |
От 6,6 до 3,2 |
|
От 1 км до удаления, соответствующего высоте 30 м на глиссаде |
3,2 |
Таблица 6.4
|
Удаление от начала ВПП |
Амплитуда искривлений коэффициента разнослышимости, %, не более |
|
От границы зоны действия до 7 км |
6,6 |
|
От 7 до 1 км |
От 6,6 до 1,1 (уменьшение линейное) |
|
От 1 км до опорной точки |
1,1 |

Рис 6.6 Зона действия КРМ (ДМВ) I и II категорий в горизонтальной плоскости
6.3.11. Контрольная аппаратура КРМ I категории в комплексе с аппаратурой резервирования должна автоматически обеспечивать контроль параметров и переключение на горячий резерв при их аварийном изменении согласно эксплуатационной документации.
6.3.12. Контрольная аппаратура КРМ II категории в комплексе с аппаратурой резервирования должна не более, чем за 5 с автоматически обеспечивать сигнализацию, допусковый контроль и переключение на горячий резерв при аварийных изменениях параметров радиомаяка согласно эксплуатационной документации.
Глиссадный радиомаяк I и II категорий дециметрового диапазона волн
6.3.13. Зависимость коэффициента разнослышимости от углового отклонения.
При отклонении от линии глиссады вверх коэффициент разнослышимости должен возрастать до угла 1,75Q относительно горизонта или, если он достигает величины 41,5% при углах менее 1,75Q, быть не менее 41,5% до угла 1,75Q относительно горизонта.
При отклонении от линии глиссады вниз коэффициент разнослышимости должен возрастать до величины 41,5% до угла не менее 0,3Q относительно горизонта. Если КРС достигает 41,5% при отклонении до углов более чем 0,45Q относительно горизонта, то коэффициент разнослышимости должен быть не менее 41,5% до угла 0,45Q.
6.3.14. Основные эксплуатационные параметры ГРМ I и II категорий должны соответствовать показателям, приведенным в таблице 6.5.
Таблица 6.5
|
№ п/п |
Наименование параметра |
Величина параметра |
|
|
I категории |
II категории |
||
|
1 |
Зона действия в вертикальной плоскости (рисунок 6.7.) ограничивается углами относительно линии горизонта: |
|
|
|
|
выше глиссады - по возрастанию величины коэффициента разнослышимости до значения, град, не менее…………………. |
1,75 Q |
1,75 Q |
|
|
ниже глиссады - по уменьшению величины коэффициента разнослышимости до значения 41,5% град, не более………………… |
0,45 Q |
0,45 Q |
|
|
ниже глиссады - по возрастанию величины коэффициента разнослышимости до значения 41,5% град, не менее………………… |
0,3 Q |
0,3 Q |
|
|
|
|
|
|
2 |
Дальность действия в направлении захода на посадку, км, не менее |
18 |
18 |
|
3 |
Границы полусектора выше и ниже глиссады должны устанавливаться относительно глиссады, град: |
|
|
|
|
ниже глиссады………………………….. |
(0,07 -0,14) Q |
(0,12 +-0,02) Q |
|
|
выше глиссады………………………….. |
|
(0,12 + 0,02) Q |
|
|
|
(0,07 -0,14) Q |
(0,12 -0,05) Q |
|
4 |
Асимметрия крутизны характеристики, %, не более……………………………….. |
19 |
19 |
|
5 |
Отклонение средней линии глиссады, измерение контрольной аппаратурой ГРМ от установленного положения, град, не более…. |
0,075Q |
0,075Q |
6.3.15. Для ГРМ I категории допуск на искривление линии глиссады не должен превышать величины, соответствующей значению КРС=6,6%, в пределах дальности от 18 км до дальности, соответствующей высоте 30 м на глиссаде.
6.3.16. Для ГРМ II категории допуск на искривление линии глиссады не должен превышать величин, приведенных в таблице 6.6.
6.3.17. Контрольная аппаратура ГРМ I категории в комплексе с аппаратурой резервирования обеспечивается автоматический допусковый контроль параметров и переключение на горячий резерв при их аварийном изменении согласно эксплуатационной документации (при II категории не более чем за 2 секунды).
Ретранслятор радиодальномера I и II категорий
6.3.18. Основные эксплуатационные параметры ретранслятора радиодальномера должны соответствовать показателям, приведенным в таблице 6.7.

Рис. 6.7. Зона действия ГРМ (ДМВ) I и II категорий в вертикальной плоскости.
Таблица 6.6
|
Удаление от начала ВПП |
Амплитуда искривлений коэффициента разнослышимости, %, не более |
|
От границы зоны действия до 7 км |
6,6 |
|
От 7 до 1 км |
От 6,6 до 4,4 (уменьшение линейное) |
|
От 1 км до опорной точки |
4,4 |
Таблица 6.7
|
№ п/п |
Наименование параметра |
Величина параметра |
|
1 |
Зона действия: |
|
|
|
в горизонтальной плоскости (рисунок 6.8.) ограничивается секторами вправо и влево относительно линии заданного курса, град, не менее……………………………… |
15 |
|
|
в вертикальной плоскости (рисунок 6.9.) ограничивается сектором относительно линии горизонта, град |
От 0,85 до 7 |
|
|
по дальности в направлении захода на посадку, км, не менее |
50 |
|
2 |
Погрешность определения дальности с учетом погрешностей наземной и бортовой аппаратуры, м, не более |
+-250 |

Рис. 6.8. Зона действия РД в горизонтальной плоскости.

Рис. 6.9. Зона действия РД в вертикальной плоскости.
Системы посадки метрового диапазона волн
6.3.19. В состав системы посадки должны входить:
курсовой радиомаяк;
глиссадный радиомаяк;
маркерные радиомаяки - ближний (БМРМ) и дальний (ДМРМ);
оборудование дистанционного управления и индикации технического состояния в пункте управления.
Вместо ближнего или (и) дальнего маркерных радиомаяков допускается использование дальномерного оборудования ДМЕ/Н.
6.3.20. Параметры по резервированию и требования по маркировке критических зон аналогичны требованиям, содержащимся в пунктах 6.3.1.2-6.3.1.5 настоящих Норм.
Курсовой радиомаяк, работающий по принципу ИЛС
6.3.21. Отклонение несущей частоты КРМ от присвоенной не должно превышать:
±0,005% для одночастотного маяка;
±0,002% для двухчастотного маяка.
6.3.22. Глубина модуляции несущих частот сигналами 90 и 150 Гц вдоль линии курса должна быть 20±2%.
6.3.23. Зона действия в горизонтальной плоскости должна быть ограничена секторами не менее 35 градусов вправо и влево от линии курса (рисунок 6.10).
При использовании других средств, обеспечивающих вход ВС в зону действия КРМ, для КРМ I и II категорий допускается сужение зоны действия до _10 градусов в горизонтальной плоскости относительно линии курса.

Рис. 6.10. Зона действия КРМ в горизонтальной плоскости.
6.3.24. Зона действия в вертикальной плоскости (рисунок 6.11) должна быть ограничена сверху прямой, проходящей через электрический центр антенной системы под углом не менее 7 градусов к горизонту.
За пределами зоны действия КРМ в вертикальной плоскости его излучение должно быть по возможности минимальным.

Рис. 6.11. Зона действия КРМ в вертикальной плоскости.
6.3.25. Зона действия КРМ по дальности (рисунок 6.11) со стороны захода на посадку на высоте 600 м и выше над порогом ВПП или 300 м над самой высокой точкой на промежуточном и конечном этапах захода на посадку (берется большее превышение над порогом ВПП) должна быть:
а) не менее 46 км в пределах горизонтального сектора +10 градусов относительно линии курса;
б) не менее 32 км в пределах горизонтального сектора от ±10 градусов до ±35 градусов относительно линии курса.
Допускается уменьшение зоны действия КРМ по дальности вследствие ограничений по использованию воздушного пространства.
Для КРМ с сектором действия ±10 градусов требования по дальности в секторах от ±10 градусов до ±35 градусов относительно линии курса не предъявляются.
6.3.26. Напряженность поля КРМ в любой точке зоны действия должна быть не менее 40 мкВ/м (-114 дБ Вт/м2), кроме того:
а) в пределах сектора курса на глиссаде ИЛС на удалении 18 км от КРМ напряженность поля должна быть не менее 90 мкВ/м (-107 дБ Вт/м2) для КРМ категории I и 100 мкВ/м (-106 дБ Вт/м2) для КРМ категорий II и III;
б) в точке, расположенной на высоте 15 м над порогом ВПП для КРМ II категории и 6 м для КРМ III категории напряженность поля возрастает до величины не менее 200 мкВ/м (-100 дБ Вт/м2);
в) от точки, расположенной на высоте 6 м над порогом ВПП, до точки, расположенной на высоте 4 м над осевой линией ВПП на расстоянии 300 м от порога ВПП и далее на высоте 4 м вдоль ВПП в направлении КРМ напряженность поля КРМ III категории должна быть не менее 100 мкВ/м (-100 дБ Вт/м2).
6.3.27. Характер изменения РГМ в секторе:
а) от линии курса до углов с РГМ = 0,180 должно быть монотонное (в основном линейное) увеличение РГМ;
б) от углов с РГМ = 0,180 до углов ±10 градусов РГМ должна быть не менее 0,180;
в) от углов ±10 градусов до углов ±35 градусов РГМ должна быть не менее 0,155.
Примечание. Для КРМ с зоной действия ±10 градусов требования к характеру изменения РГМ за пределами зоны действия не предъявляются.
6.3.28. Искривления линии курса КРМ I категории (95% вероятности) должна быть не более, на участках:
а) от границы зоны действия до точки А - 0,031 РГМ;
б) от точки А до точки В (рисунок 6.12) уменьшается по линейному закону от величины 0,031 РГМ в точке А до величины 0,015 РГМ в точке В;
в) от точки В до точки С - 0,015 РГМ.
6.3.29. Искривления линии курса КРМ II и III категории (95% вероятности) должна быть не более (рисунок 6.13) на участках:
а) от границы зоны действия до точки А - 0,031 РГМ;
б) от точки А до точки В уменьшается по линейному закону от величины 0,031 РГМ в точке А до величины 0,005 РГМ в точке В;
в) от точки В до точки С - 0,005 РГМ;
г) от точки С до опорной точки - 0,005 РГМ;
для КРМ III категории:
д) от опорной точки до точки Д - 0,005 РГМ;
е) от точки Д до точки Е должна увеличиваться по линейному закону от 0,005 РГМ в точке Д до 0,01 РГМ в точке Е.

6.3.30. Пределы, в которых должна поддерживаться средняя линия курса относительно осевой линии ВПП у опорной точки должна быть не более:
а) ±10,5 м для КРМ I категории;
б) ±7,5 м для КРМ II категории;
в) ±3,0 м для КРМ III категории.
6.3.31. Номинальная чувствительность к смещению от линии курса должна быть 0,00145 РГМ/м. Максимальный угол сектора курса не должен превышать 6 градусов.
Пределы, в которых должна поддерживаться чувствительность к смещению КРМ (отклонение от номинального значения), не более:
а) ±17% для КРМ I категории;
б) ±17% для КРМ II категории (поддержание чувствительности осуществляется в пределах ±10% от номинального значения);
в) ±10% для КРМ III категории.
6.3.32. Сигнал опознавания передается на несущей частоте КРМ и не должен влиять на основные функции курсового радиомаяка.
6.3.33. Сигнал опознавания передается международным кодом Морзе и состоять из трех букв. Первая буква "И", вторая и третья - код аэродрома или ВПП.
6.3.34. Автоматическая система контроля передает предупреждение в пункты управления и приводит или к прекращению излучения, или к снятию сигналов модуляции 90 и 150 Гц и составляющей опознавания с несущей частоты, или к переходу на более низкую категорию (для II и III категории) в течение времени, не более:
10 с для КРМ I категории;
5 с для КРМ II категории;
2 с для КРМ III категории;
при возникновении любого из следующих условий:
а) смещении средней линии курса относительно осевой линии ВПП, приведенное к порогу ВПП, более:
±10,5 м для КРМ I категории;
±7,5 м для КРМ II категории;
±6 м для КРМ III категории.
б) уменьшении мощности излучения для КРМ с одной несущей до 50%;
в) уменьшении мощности излучения для каждой несущей для КРМ II и III категорий с двумя несущими до 80%;
г) изменение чувствительности к смещению более чем на 17% от номинальной величины.
Под пунктами управления понимаются пункты управления работой оборудования и пункты управления воздушным движением.

Глиссадный радиомаяк, работающий по принципу ИЛС
6.3.35. Отклонения несущей частоты ГРМ от присвоенной:
±0,005% - для одночастотного маяка;
±0,002% - для двухчастотного маяка.
6.3.36. Глубина модуляции несущих частот сигналами 90 и 150 Гц вдоль линии глиссады находится в пределах 40±2,5%.
6.3.37. Зона действия в горизонтальной плоскости (рисунок 6.14.) ограничивается сектором вправо и влево относительно линии курса, не менее 8 градусов.
6.3.38. Зона действия в вертикальной плоскости (рисунок 6.15.) ограничивается углами относительно горизонта:
а) выше усредненного значения глиссады, не менее 1,75Q;
б) ниже усредненного значения глиссады ГРМ, не менее 0,45Q, или до угла 0,30Q для обеспечения гарантированного входа в глиссаду.

Рис. 6.14. Зона действия ГРМ в горизонтальной плоскости.
6.3.39. Зона действия по дальности в направлении захода на посадку (рисунок 6.14.) составляет не менее 18 км.
6.3.40. Напряженность поля в зоне действия составляет, не менее 400 мкВ/м (-95 дБВт/м) и обеспечивается до высоты 30 м для ГРМ I категории и 15 м для ГРМ II и III категорий над горизонтальной плоскостью, проходящей через порог ВПП.
6.3.41. Изменение РГМ от усредненного значения глиссады до угла 0,30Q должно иметь плавный характер и увеличиваться до величины РГМ=0,22. Если РГМ достигает значения 0,22 при углах, больших 0,45Q, то значение РГМ должно быть не менее 0,22 вплоть до угла 0,45Q или до угла 0,30Q.
6.3.42. Искривления линии глиссады (вероятность 0,95) должна быть не более, на участках:
а) от границы зоны действия до точки С 0,035 РГМ для ГРМ I категории;
б) от границы зоны действия до точки А 0,035 РГМ для ГРМ II и III категории;
в) от точки А до точки В должна уменьшаться по линейному закону от величины 0,035 РГМ в точке А до величины 0,023 РГМ в точке В для ГРМ II и III категории;
г) от точки В до опорной точки 0,023 РГМ для ГРМ II и III категории.
6.3.43. Угол наклона усредненной глиссады относительно номинальной должен поддерживаться в пределах ±0,075Q для ГРМ I и II категорий и ±0,04Q для ГРМ III категории.
6.3.44. Номинальная чувствительность к угловому смещению ГРМ должна соответствовать РГМ=0,0875 при угловом смещении:

Рис. 6.15. Зона действия ГРМ в вертикальной плоскости.
а) ниже усредненной глиссады:
(0,12+0,02/-0,05)Q для ГРМ I категории;
(0,12±0,02)Q для ГРМ II и III категорий.
б) выше усредненной глиссады:
(0,12+0,02/-0,05)Q для ГРМ I категории;
(0,12+0,02/-0,05)Q для ГРМ II категории;
(0,12±0,02)Q для ГРМ III категории.
6.3.45. Чувствительность к угловому смещению ГРМ относительно номинального значения поддерживается в пределах, не более:
±25% для ГРМ I категории;
±20% для ГРМ II категории;
±15% для ГРМ III категории.
6.3.46. Автоматическая система контроля передает предупреждение в пункты управления и обеспечивать прекращение излучения в течение времени, не более 6 сек для ГРМ I категории и 2 сек для ГРМ II и III категории при возникновении любого из следующих условий:
а) отклонение угла наклона глиссады от его номинального значения на величину более 0,075Q (вниз) и более 0,1Q (вверх);
б) уменьшении мощности излучения до 50%;
в) уменьшении мощности излучения до 80% для каждой несущей частоты при использовании ГРМ с двумя несущими частотами, если при этом обеспечивается необходимое качество захода на посадку;
г) уменьшении мощности излучения от 80% до 50% для каждой несущей частоты для ГРМ II и III категории с двумя несущими частотами;
д) изменении чувствительности к угловому смещению от установленного номинального значения на величину более ±25%.
Курсовой радиомаяк I категории, работающий по принципу системы посадки (СП)
6.3.47. Зона действия КРМ в горизонтальной плоскости в секторах ±10 градусов составляет не менее 45 км.
Допускается уменьшение зоны действия КРМ по дальности вследствие ограничения использования воздушного пространства.
6.3.48. Зона действия в вертикальной плоскости ограничивается снизу прямой, проходящей через центр антенной системы и точку над порогом ВПП на высоте 5 м, и далее от этой точки прямой, образующей угол к горизонту не более 0,85 градусов.
6.3.49. Зона действия в вертикальной плоскости ограничивается прямой, проходящей через центр антенной системы под углом к горизонту не менее 7 градусов.
6.3.50. Линия курса в опорной точке относительно осевой линии ВПП поддерживается в пределах ±10,5 м.
6.3.51. Значения искривления линии курса для вероятности 0,95:
а) не более 3,5% на участке от границы зоны действия до точки А;
б) линейно уменьшаются до 1,7% на участке от точки А до точки В;
в) не более 1,7% на участке от точки В до точки С.
6.3.52. Номинальная чувствительность к поперечному смещению от линии курса в опорной точке - 0,167%/м. Превышение максимального угла сектора курса не более 6 градусов. Если угол сектора курса менее 4 градусов, то ширина сектора курса устанавливается по возможности ближе к величине 210 м.
6.3.53. Отклонение чувствительности к смещению от номинального значения в пределах не более ±17%.
6.3.54. Превышение влияния вертикально поляризованной составляющей электромагнитного поля на сигнал управления, при полете ВС на линии курса с креном ±20 градусов относительно горизонта, не более 1,8%.
6.3.55. Изменение глубины модуляции КРМ в секторе:
а) от линии курса до углов с М=20,5% - в основном линейное, причем глубина модуляции возрастает;
б) от углов, где М=20,5% до углов _10 градусов - не менее 20,5%.
Глубина модуляции КРМ в пределах от угла ±10 градусов до угла + /-15 градусов не должна уменьшаться до нуля и менять знак.
6.3.56. Система автоматического контроля срабатывает в следующих случаях:
а) при смещении линии курса относительно осевой линии ВПП в опорной точке более ±10,5 м;
б) при отклонении чувствительности к смещению от номинального значения более ±17%;
в) при уменьшении мощности излучения от номинального значения более 50%.
Глиссадный радиомаяк I категории, работающий по принципу СП
6.3.57. Размеры зоны действия в горизонтальной плоскости в секторе ±8 градусов относительно осевой линии ВПП составляют не менее 18 км.
6.3.58. Зона действия в вертикальной плоскости:
а) выше глиссады 1,75Q;
б) ниже глиссады 0,45Q или под меньшим углом, вплоть до 0,30Q.
6.3.59. Угол глиссады поддерживается относительно номинального значения в пределах ±0,075Q.
6.3.60. Соответствие номинальной чувствительности к смещению РГМ=0,0875 при угловом отклонении:
а) выше глиссады + (0,12+0,02/-0,05) Q;
б) ниже глиссады - (0,12+0,02/-0,05) Q.
6.3.61. Пределы отклонения чувствительности к угловому смещению от номинального значения - не более ±25%.
6.3.62. Изменение РГМ от усредненного значения глиссады до угла 0,30Q имеет характер плавного увеличения до 0,22 РГМ. Значение РГМ для безопасного захода на посадку составляет не менее 0,22 при условии, что РГМ=0,22 достигается при углах больших, чем 0,45Q, вплоть до угла 0,45Q или до угла 0,30Q.
6.3.63. Значение искривления глиссады при вероятности 0,95 на участке от границы зоны действия до точки на высоте 30 м на глиссаде составляет не более 0,035 РГМ.
6.3.64. Асимметрия чувствительности к угловому смещению - не более 19%.
6.3.65. Система автоматического контроля срабатывает:
а) при смещении угла наклона глиссады относительно номинального значения более ±0,075Q;
б) при отклонении чувствительности к смещению от номинального значения более ±25%;
в) при уменьшении мощности излучения от номинального значения более чем на 50%.
Радиотехническая система ближней навигации
6.3.66. Радиотехническая система ближней навигации (РСБН) обеспечивает излучение сигналов для измерения на борту ВС текущих значений азимута и наклонной дальности относительно точки установки наземного радиомаяка.
6.3.67. Значение погрешности измерения координат на борту ВС составляет:
при измерении дальности - не более 0,5 км;
при измерении азимута - не более 0,5°;
при вероятности 95%.
6.3.68. Дальность действия радиомаяка РСБН при углах закрытия не более 0,25° составляет:
при Н=500 м - не менее 70 км;
при Н=1000 м - не менее 90 км;
при Н=3000 м - не менее 150 км.
6.3.69. Управление работой РСБН, а также индикация его состояния, осуществляется в дистанционном и местном режимах.
Система посадки
6.3.70. В состав системы посадки ОСП должны входить ближний приводной радиомаркерный пункт (БПРМ), дальний приводной радиомаркерный пункт (ДПРМ).
БПРМ и ДПРМ должны включать в себя приводную радиостанцию (далее - ПРС) и маркерный радиомаяк (МРМ). МРМ могут использоваться из состава РМС.
Приводные радиостанции
6.3.71. ПРС должна иметь возможность настройки на выделенную частоту в диапазоне от 150 до 1750 кГц.
6.3.72. Характеристики радиоизлучения приводной радиостанции должны соответствовать классам А2А (режим работы "привод") и А3Е (режим работы "связь") без разрыва несущей. При этом должен быть обеспечен автоматический режим передачи сигнала опознавания.
6.3.73. ПРС должна иметь опознавательный сигнал, передаваемый кодом Морзе (ДПРМ - двухбуквенный, БПРМ - однобуквенный).
6.3.74. Дальность действия ПРС в режиме работы "привод" по радиокомпасу составляет:
ближней приводной радиостанции - не менее 50 км;
дальней приводной радиостанции - не менее 150 км. При этом погрешность значений курсовых углов, получаемых на борту ВС не должна превышать _5 градусов.
6.3.75. Управление работой ПРС, а также индикация ее состояния, осуществляется в дистанционном и местном режимах.
6.3.76. Условия, при которых система автоматического контроля ПРС за время не более 2 секунд отключает работающий комплект аппаратуры, включает резервный, а также обеспечивает аварийную сигнализацию в пунктах управления:
снижение тока в антенном контуре более чем на 40%;
уменьшение глубины амплитудной модуляции несущей более чем на 50%;
прекращение подачи сигнала опознавания.
Маркерные радиомаяки
6.3.77. Отклонение несущей частоты МРМ от присвоенной не должно превышать 0,01% (±0,005% для вновь вводимых МРМ).
6.3.78. Отклонение частот модулирующих сигналов от их номинальных значений не должно превышать ±2,5%.
6.3.79. Зона действия МРМ на линии курса и глиссады должна быть:
ближнего МРМ (300± 100) м;
дальнего МРМ (600±200) м.
6.3.80. Напряженность поля на границе зоны действия должна быть не менее 1,5 мВ/м.
6.3.81. Возрастание напряженности поля от границы зоны действия МРМ к ее середине должно составлять, по крайней мере, 3 мВ/м.
6.3.82. Сигналы опознавания МРМ должны быть:
ближнего МРМ - непрерывная передача 6 точек в секунду;
дальнего МРМ - непрерывная передача 2 тире в секунду.
6.3.83. Система автоматического контроля должна срабатывать и передавать предупреждения в пункт управления:
а) при уменьшении выходной мощности от номинальной более 50%;
б) при уменьшении глубины амплитудной модуляции несущей более 50%;
в) при прекращении модуляции или манипуляции.
Автоматический радиопеленгатор
6.3.84. Радиопеленгатор должен обеспечивать устойчивое пеленгование сигналов бортовых радиостанций при длительности передачи не менее 0,5 секунды.
6.3.85. Погрешность пеленгования по индикатору АРП на рабочем месте диспетчера должна быть не более 2,5 градусов (1,5° для доплеровских пеленгаторов с большой антенной базой).
6.3.86. Дальность действия АРП при допустимых углах закрытия должна быть не менее 70 км на высоте 1000 м и не менее 130 км на высоте 3000 м.
Допускается уменьшение дальности действия в зависимости от условий местности.
6.3.87. Управление работой АРП, а также индикация его состояния должны осуществляться в дистанционном и местном режимах.
Радиолокационные средства обеспечения полетов
ОРЛ-А (первичный радиолокатор)
6.3.88. Обзорный радиолокатор должен обеспечивать получение и трансляцию для группы руководства полетами радиолокационной информации о воздушной обстановке в пределах зоны диспетчерского радиолокатора.
Допускается отсутствие радиолокационной информации в трех-пяти обзорах подряд от ВС, совершающего маневр разворота или пролетающего по маршруту на участке с тангенциальным направлением скорости при выполнении полета по стандартному маршруту захода на посадку.
6.3.89. При нулевых углах закрытия дальность действия ОРЛ-А должна быть не менее 50 или 100 км (для УВД в районе аэродрома) и 160 км (для УВД в районе аэроузла).
6.3.90. Точностные характеристики должны быть не хуже:
по дальности: 15% от расстояния до цели или 150 м (в зависимости от того, что больше) (по экрану выносного индикатора кругового обзора ОРЛ-А без аппаратуры передачи информации (далее - АПОИ);
по азимуту: ±2° (по экрану выносного ОРЛ-А без АПОИ);
среднеквадратическая ошибка (далее - СКО) на выходе АПОИ должна быть:
150 и 200 м соответственно дальности действия 50-100 км и 160 км,
0,4° по азимуту.
6.3.91. Разрешающая способность должна быть не хуже 1% от расстояния до цели или 230 м (в зависимости от того, что больше) по дальности и 4° по азимуту.
6.3.92. Период обновления радиолокационной информации должен быть не более 6 секунд.
Вторичный радиолокатор
6.3.93. На экранах индикаторов руководителей полетов должны отсутствовать ложные отметки ВС, вызванные:
ответными сигналами аппаратуры ВС на запросы, излучаемые боковыми лепестками диаграммы направленности антенны;
отраженными от местных предметов ответными сигналами аппаратуры ВС на запросы, излучаемые главным лепестком диаграммы направленности антенны.
Допускается появление точечных ложных отметок ВС в течение 1-2 обзоров (влияние боковых лепестков) и/или в течение 2-3 обзоров (влияние отраженных сигналов).
6.3.94. При нулевых углах закрытия дальности действия ВРЛ должны быть не менее 160 км.
6.3.95. Ошибка определения координат ВС (СКО на выходе АПОИ) должна быть не более 200 м по дальности и 0,2° по азимуту.
6.3.96. Разрешающая способность (на выходе АПОИ) должна быть не хуже 1000 м по дальности и 4° по азимуту.
6.3.97. Точность совмещения на индикаторе координатных отметок первичного и вторичного радиолокаторов должна быть не хуже:
по дальности 500 м;
по азимуту 8 минут при встроенном и 30 минут при автономном размещении.
6.3.98. Период обновления радиолокационной информации должен быть не более 6 секунд.
Посадочный радиолокатор
6.3.99. Погрешность в определении отклонения ВС от номинальной линии курса должна составлять не более 0,6% расстояния от антенны радиолокатора плюс 10% фактического отклонения от нее, либо 9 м (в зависимости от того, что больше).
6.3.100. Погрешность в определении отклонения ВС от номинальной глиссады должна составлять не более 0,4% расстояния от антенны ПРЛ плюс 10% фактического линейного отклонения от номинальной глиссады, либо 6 м (в зависимости от того, что больше).
6.3.101. Погрешность в определении расстояния от ВС до точки приземления не должна превышать 30 м плюс 3% расстояния от нее.
6.3.102. Разрешающая способность должна быть не хуже:
120 м по дальности;
1,2° по азимуту (курсу);
0,6° по углу места.
6.3.103. Период обновления радиолокационной информации должен быть не более 1 секунды.
6.3.104. На направлениях посадки, обслуживаемых посадочным радиолокатором и системой точного захода на посадку, должны выбираться одинаковые номинальные углы наклона глиссады.
Кроме того, должно быть обеспечено совпадение электронных линий курса и глиссады, формируемых на экране ПРЛ, с линиями курса и глиссады РМС.
Азимутальный радиомаяк ВОР
6.3.105. Радиомаяк должен обеспечивать в требуемой рабочей зоне:
излучение навигационных сигналов для измерения на борту ВС его магнитного азимута;
излучение сигнала опознавания;
возможность передачи радиотелефонных сигналов на борт ВС.
6.3.106. Погрешность информации об азимуте, измеренная на расстоянии приблизительно четырех длин волн, для углов места от 0 до 40 градусов, должна составлять не более ±2 градусов при вероятности 95%.
6.3.107. Общая погрешность наземного радиомаяка, вносимая в эксплуатационную погрешность системы ВОР, не должна превышать ±3,5 градусов при вероятности 95%.
6.3.108. Радиомаяк должен работать на частоте несущей, присвоенной из частотного диапазона 108-117,975 МГц. Отклонение рабочей частоты от присвоенной не должно превышать ±0,002%.
6.3.109. Частоты модулирующих сигналов должны быть равны:
9960±100 Гц - поднесущей;
30±0,3 Гц - "переменной фазы" и "опорной фазы";
1020±50 Гц - опознавания маяка.
6.3.110. Должно быть обеспечено четкое, правильное и разборчивое опознавание маяка на борту ВС, а также отсутствие влияния сигнала опознавания на обеспечение основной навигационной функции маяка (передача информации об азимуте).
Сигнал опознавания должен передаваться кодом Морзе с использованием двух или трех букв и со скоростью, соответствующей примерно 7-ми словам в минуту с периодичностью не менее 30 секунд.
6.3.111. Автоматическая система контроля должна выдавать соответствующую сигнализацию об отказах в пункт управления и исключать сигналы опорной и переменной фазы, либо полностью прекращать излучение маяка при появлении одного из следующих условий:
а) изменение более чем на ±1 градус информации об азимуте в точке установки выносного контрольного устройства;
б) уменьшение на 15% в месте расположения контрольного устройства составляющих модуляции уровня напряжения радиочастотных сигналов, либо поднесущей, либо сигналов модуляции по амплитуде с частотой 30 Гц, либо тех и других;
в) пропадание сигнала опознавания;
г) отказ аппаратуры контроля.
6.3.112. В тех случаях, когда ВОР установлен на аэродроме, должен(ы) быть определен(ы) пункт(ы) проверки бортового оборудования ВОР.
Погрешность определения азимута в пункте проверки бортового оборудования ВОР должна быть не более ±2°.
Приемоответчик ДМЕ/Н
6.3.113. Наземный приемоответчик системы ДМЕ должен обеспечивать прием и излучение сигналов для определения на борту ВС наклонной дальности от контрольной точки установки радиомаяка ДМЕ/Н до ВС.
6.3.114. Зона действия приемоответчика должна быть:
при взаимодействии с ВОР не менее зоны действия ВОР;
при взаимодействии с ИЛС не менее зоны действия КРМ и ГРМ.
6.3.115. Приемоответчик ДМЕ/Н должен работать на частоте несущей, присвоенной из частотного диапазона 960-1215 МГц. Отклонение рабочей частоты от присвоенной не должно превышать ±0,002%.
6.3.116. Радиоимпульсы ответа дальности должны иметь следующим параметры:
длительность импульса на уровне 0,5 должна быть равна 3,5±0,5 мкс;
передний фронт должен быть не более 3 мкс;
задний фронт должен быть не более 3,5 мкс.
6.3.117. Ошибка измерения дальности, вносимая ДМЕ/Н в эксплуатационную ошибку измерения дальности на борту ВС, не должна превышать 150 м, а при взаимодействии ДМЕ/Н с оборудованием ИЛС должна быть не более 75 м (при вероятности Р=0,95).
6.3.118. Система автоматического контроля приемоответчика должна отключать работающий комплект аппаратуры, включать резервный комплект (при его наличии) и прекращать радиоизлучение при отказе комплектов, а также обеспечивать аварийную сигнализацию в пунктах при:
изменении задержки запросных импульсов в приемоответчике на ±1 мкс (навигация) или на ±0,5 мкс (посадка) и более;
отказе контрольного устройства.
6.3.119. При взаимодействии ДМЕ с ВОР антенна приемоответчика должна располагаться или на одной и той же вертикальной оси с антенной ВОР, или на расстоянии, не превышающем 600 м от антенны ВОР.
При использовании оборудования ДМЕ и ВОР для целей посадки, разнесенность их антенн не должна превышать 30 м.
Для обеспечения полетов ВС днем в сложных метеоусловиях и ночью на аэродроме устанавливается светотехническое оборудование.
Светотехническое оборудование предназначено для светового обозначения ВПП и ее участков, подходов к ней, обозначения РД и их расположения, а также управления движением ВС по аэродрому с целью обеспечения экипажей ВС визуальной информацией при выполнении взлета, посадки и руления воздушных судов.
Светотехническое оборудование включает:
светосигнальное оборудование;
кодовые (импульсные) маяки;
аэродромные прожекторные станции.
Выбор типа светосигнального оборудования, устанавливаемого на ВПП, определяется задачами, решаемыми на конкретном аэродроме с учетом специфических особенностей воздушных судов, эксплуатируемых на нем.
7.1.1. Система светосигнального оборудования должна состоять из подсистем огней, приведенных в таблицах 7.1, 7.2 и 7.3.
До выработки ресурса (срока службы) разрешается использование светосигнального оборудования "Луч-2", "Луч-4", "АС-59У", и их модификаций "Луч-6(7)", "Маркер-У", "Свеча-1,(2),(3)", ОПИ с желтым цветом излучения огней.
Состав светосигнального оборудования направления ВПП
|
Наименование подсистемы огней |
Системы светосигнального оборудования развернутого по схеме |
|||
|
ССП-1 |
ССП-0 |
СП-1, СП-2 |
СП-2-0 |
|
|
Огни импульсной линии |
+* |
- |
+ |
- |
|
Огни подхода |
- |
- |
+ |
+ |
|
Подсистема огней приближения: |
|
|
|
|
|
- огни приближения центрального ряда; |
+ |
+ |
- |
- |
|
- огни посадочного светового горизонта; |
+ |
+ |
+ |
+ |
|
- огни приближения бокового ряда; |
- |
- |
+ |
+ |
|
Огни ВПП |
+ |
+ |
+ |
+ |
|
Огни разрешения и запрещения посадки (входные огни ВПП) |
+ |
+ |
+ |
+ |
|
Ограничительные огни ВПП |
+ |
+ |
+ |
+ |
|
Огни направления взлета |
- |
- |
+ |
+ |
|
Огни взлетного светового горизонта |
- |
- |
+ |
+ |
|
* Знак "+" обозначает обязательное наличие оборудования, знак "-" обозначает, что применение не требуется |
||||
Состав светосигнального оборудования направления ВПП
|
Наименование подсистемы огней |
Системы светосигнального оборудования развернутого по схеме |
|||
|
ОМИ |
ОВИ-1*(1 ) |
ОВИ-2*(1) |
ОВИ-3*(1) |
|
|
Подсистема огней приближения: |
|
|
|
|
|
- огни приближения центрального ряда и световых горизонтов;*(3) |
-*(2) |
+ |
+ |
+ |
|
- огни приближения бокового ряда; |
- |
- |
+ |
+ |
|
Боковые огни ВПП |
+ |
+ |
+ |
+ |
|
Входные огни ВПП |
+ |
+ |
+ |
+ |
|
Фланговые огни |
+*(4) |
-*(5) |
-*(5) |
-*(5) |
|
Ограничительные огни ВПП |
+ |
+ |
+ |
+ |
|
Осевые огни ВПП |
- |
-*(6) |
+ |
+ |
|
Огни зоны приземления |
- |
- |
+ |
+ |
|
Огни знака приземления |
+ |
+ |
- |
- |
|
Огни уширений ВПП*(7) |
+ |
+ |
+ |
+ |
|
*(1) Подсистема огней приближения, боковые, входные и ограничительные огни ВПП, огни знака приземления, в системах ОВИ-1, ОВИ-2 и ОВИ-3 могут содержать дополнительные огни малой интенсивности, установленные по схемам, приведенным на рисунках 7.2 (А) и 7.3. |
||||
|
*(2) При установке подсистемы огней приближения к ней предъявляются требования пунктов 7.2.1-7.2.11. |
||||
|
*(3) Допускается установка импульсных огней приближения, если огни приближения центрального ряда представляют собой линейные огни. |
||||
|
*(4) Предусматриваются на ВПП, на которых смещен порог. |
||||
|
*(5) Могут устанавливаться для улучшения заметности порога ВПП. |
||||
|
*(6) Осевые огни ВПП следует предусматривать на ВПП шириной более 60 м во вновь устанавливаемых системах ССО. |
||||
|
*(7) Устанавливаются при наличии уширений ВПП. |
||||
Состав рулежного светосигнального оборудования
|
Наименование подсистемы огней |
Системы светосигнального оборудования развернутого по схеме |
|||
|
ОМИ СП-1 СП-2 |
ОВИ-1 ССП-1 |
ОВИ-2 |
ОВИ-3 |
|
|
Боковые огни РД |
+ |
+ |
|
+ *(1) |
|
Осевые огни РД |
- |
- |
|
+ |
|
Стоп-огни |
- |
- |
|
+ |
|
Огни мест ожидания у ВПП |
+*(2),*(3) |
+*(2),*(3) |
|
- |
|
Аэродромные знаки*(4) |
+ *(3) |
+ *(3) |
|
+ |
|
Светофоры |
+ *(5) |
+ *(5) |
|
- |
|
*(1) Необязательны при наличии осевых огней РД. |
||||
|
*(2) Устанавливаются, если место ожидания не обозначено знаками обозначения ВПП. |
||||
|
*(3) Обязательны только в составе ССО типа ОМИ и ОВИ. |
||||
|
*(4) В отношении конкретных знаков см. раздел 7.12. |
||||
|
*(5) Обязательны только в составе ССО типа ССП-1, СП-1, СП-2. |
||||
7.1.2. ВПП (направление) точного захода на посадку I категории должна быть оснащена системой светосигнального оборудования развернутого по схеме ССП-1 или ОВИ-1, II категории - системой ОВИ-2, III категории - системой ОВИ-3.
Подсистема огней приближения
7.2.1. Подсистемы огней приближения устанавливаются по схемам, приведенным на рисунках 7.1, 7.2 и 7.4.
7.2.2. Подсистема огней приближения состоит из ряда огней, установленных на продолжении осевой линии ВПП на протяжении до 900 м от порога ВПП, и ряда огней, образующих световой горизонт на расстоянии 300±12 м от порога ВПП шириной 18±2 м (при протяженности огней центрального ряда 420 м и менее) или 30±3 м (при протяженности огней центрального ряда более 420 м).
Протяженность огней 900 м не означает ее предельной величины.
7.2.3. Если линия огней приближения короче 300 м, то огни центрального ряда должны представлять собой линейные огни шириной 3¸4,5 м.
7.2.4. Огни светового горизонта располагаются по горизонтальной прямой, перпендикулярной к линии огней центрального ряда, и таким образом, чтобы эта линия делила их пополам. Световой горизонт шириной 18 м должен состоять из 8 огней, шириной 30 м - из 10 огней. Интервалы между огнями светового горизонта должны быть равными. При ширине светового горизонта 30 м допускаются разрывы по обе стороны от продолжения осевой линии ВПП, не более 6 м каждый.

Рис. 7.1. Схемы расположения огней приближения системы ОМИ (вариант 1).

Рис. 7.2. Схемы расположения огней приближения системы ОМИ (вариант 2).
7.2.5. Огни, образующие центральный ряд, располагаются с продольным интервалом 60±5 м. Для улучшения ориентации можно использовать интервалы 30±3 м. Ближайший огонь располагается на расстоянии либо 60±5 м, либо 30±3 м от порога ВПП, в зависимости от интервала, установленного для огней центрального ряда.
7.2.6. Одиночные огни или середины линейных огней центрального ряда устанавливаются на продолжении осевой линии ВПП.
7.2.7. Световые горизонты и линейные огни размещаются перпендикулярно центральному ряду огней приближения.
7.2.8. В подсистеме огней приближения не допускается отсутствие более одного огня (одиночного или линейного) центрального ряда, а также огня, ближайшего к порогу ВПП.
7.2.9. Если ВПП имеет смещенный порог, огни приближения центрального ряда на участке между торцом ВПП и смещенным порогом могут не устанавливаться. При смещении порога более чем на 312 м световые горизонты устанавливаются на флангах ВПП и располагаются на расстоянии 300±12 м от порога ВПП. Внутренние огни таких горизонтов устанавливаются на продолжении линии боковых огней ВПП. Каждый горизонт имеет длину 10±1 м и состоит из пяти огней.
7.2.10. Огни в подсистеме огней приближения являются огнями белого цвета.
7.2.11. Каждый огонь центрального ряда состоит из:
а) одиночного источника света; или
б) линейного огня шириной 3 м¸4,5 м. Интервал между одиночными огнями в линейном огне не должен превышать 1,5 м.
Боковые огни ВПП
7.2.12. Боковые огни ВПП устанавливаются по схемам, приведенным на рисунках 7.3 и 7.4.
7.2.13. Боковые огни располагаются вдоль всей длины ВПП двумя параллельными рядами на одинаковом удалении от осевой линии ВПП на расстоянии не более 3 м от края ВПП.
7.2.14. Боковые огни располагаются с одинаковыми интервалами не более 60 м. Огни, располагаемые по обе стороны от оси ВПП, находятся на линиях, проходящих под прямым углом к этой оси. На пересечениях ВПП, ВПП и РД и уширениях ВПП огни могут располагаться неравномерно или не устанавливаться вообще при условии, что расстояние между соседними боковыми огнями не будет превышать 180 м.
7.2.15. Боковые огни являются огнями белого цвета за исключением того, что:
а) огни у конца ВПП на участке протяженностью 600 м или в одну треть длины ВПП, в зависимости от того, что меньше, являются огнями желтого цвета с излучением в направлении ВС, заходящего на посадку или взлетающего с ВПП;
б) при наличии смещенного порога ВПП огни между началом ВПП и смещенным порогом являются огнями красного цвета с излучением в направлении ВС, заходящего на посадку.
Огни уширений ВПП

Рис. 7.3. Схема расположения огней ВПП системы ОМИ.

Рис. 7.4. Схема расположения огней системы ОМИ при смещенном пороге.
7.2.17. Огни уширений ВПП являются огнями желтого цвета и экранируются со стороны захода на посадку.
Входные огни ВПП и фланговые входные огни
7.2.18. Входные огни располагаются в ряд под прямым углом к оси ВПП не далее 3 м от порога ВПП. При этом крайние входные огни устанавливаются на продолжении линии боковых огней ВПП (рисунок 7.3).
7.2.19. Входные огни должны состоять не менее, чем из десяти огней, и располагаться:
а) с одинаковыми интервалами между рядами боковых огней;
б) двумя группами симметрично осевой линии ВПП, при этом в каждой группе огни устанавливаются с одинаковыми интервалами и разрыв между этими группами должен равняться поперечному расстоянию между маркировочными знаками зоны приземления или этот разрыв должен составлять не более половины расстояния между рядами боковых огней ВПП. В эксплуатируемых системах светосигнального оборудования допускается использование входных огней, расположенных двумя группами в количестве не менее трех огней в группе с интервалом 3±0,3 м.
7.2.20. Фланговые входные огни располагаются двумя группами, симметрично осевой линии, у порога ВПП. Каждая группа образуется, по крайней мере, пятью огнями, устанавливаемыми с равными интервалами на линии длиной не менее 10 мс внешней стороны от линии боковых огней ВПП и под прямым углом к последней, при этом ближайший к ВПП огонь каждого светового горизонта находится на одной линии с боковыми огнями (рисунок 7.4).
7.2.21. Входные огни ВПП и фланговые входные огни являются однонаправленными огнями зеленого цвета с излучением в направлении ВС, заходящего на посадку.
Ограничительные огни ВПП
7.2.22. Ограничительные огни ВПП располагаются на линии, перпендикулярной к оси ВПП не далее 3 м от торца ВПП с внешней стороны (рисунки 7.3 и 7.4).
7.2.23. Ограничительные огни должны состоять не менее, чем из шести огней, и располагаться:
а) с одинаковыми интервалами между рядами боковых огней; или
б) двумя группами симметрично осевой линии ВПП, при этом в каждой группе огни устанавливаются с одинаковыми интервалами и разрыв между этими группами должен составлять не более половины расстояния между рядами боковых огней ВПП. В эксплуатируемых системах светосигнального оборудования допускается расположение ограничительных огней, аналогичное расположению входных огней, указанных в подпункте "б" пункта 7.2.19.
7.2.24. Ограничительные огни ВПП являются однонаправленными огнями красного цвета с излучением в направлении ВПП.
Огни знака приземления
7.2.25. Огни знака приземления устанавливаются с двух сторон ВПП перпендикулярно линии боковых огней ВПП:
а) на расстоянии 300±30 м от порога ВПП в количестве не менее пяти огней с каждой стороны - на ВПП класса I, II. В эксплуатируемых системах светосигнального оборудования допускается использование не менее трех огней с каждой стороны ВПП;
б) на расстоянии от порога ВПП порядка 0,1 длины ВПП, но не менее 150 м, в количестве не менее трех огней с каждой стороны - на ВПП класса III, IV.
7.2.26. Интервалы между огнями знака приземления, а также между ближайшим к ВПП огнем знака приземления и линией боковых огней, должны быть равными и составлять 2¸3 м.
7.2.27. Огни знака приземления являются направленными огнями белого цвета с излучением в направлении ВС, заходящего на посадку.
Подсистема огней приближения
7.3.1. Подсистемы огней приближения устанавливаются по схемам, приведенным на рисунках 7.5 и 7.6.
7.3.2. Подсистема огней приближения состоит из огней центрального ряда, установленных на продолжении осевой линии ВПП на протяжении 900 м от порога ВПП (но не менее 870 м), и ряда огней, образующих световой горизонт шириной 30_3 м на расстоянии 300±12 м от порога ВПП.
Установка системы огней приближения протяженностью менее 870 м приводит к эксплуатационным ограничениям.
7.3.3. Огни светового горизонта располагаются по горизонтальной прямой, перпендикулярной к линии огней центрального ряда, таким образом, чтобы эта линия делила их пополам. Световой горизонт должен состоять из 10 огней. Интервалы между огнями светового горизонта должны быть равными. Допускаются разрывы по обе стороны от продолжения осевой линии ВПП, не более 6 м каждый.

Рис. 7.5. Схема расположения огней приближения системы ОВИ-1 (по центральному ряду).

Рис. 7.6. Схема расположения огней приближения системы ОВИ-1 (с пятью световыми горизонтами).
7.3.4. Огни, образующие центральный ряд, располагаются с продольным интервалом в 30±3 м, при этом ближайший огонь располагается на расстоянии 30±3 м от порога ВПП. Продольный интервал между огнями центрального ряда устанавливается следующим образом: один огонь (или группа огней) располагался в центре каждого светового горизонта, а промежуточные огни центрального ряда располагаются, по возможности, равномерно между соседними световыми горизонтами или порогом ВПП.
7.3.5. Если осевая линия состоит из огней, указанных в подпункте "а" пункта 7.3.11, то дополнительно к световому горизонту, предусмотренному на расстоянии 300 м от порога ВПП, устанавливаются огни светового горизонта на расстоянии 150 м, 450 м, 600 м и 750 м от порога ВПП. Огни светового горизонта располагаются по горизонтальной прямой, перпендикулярной к линии огней центрального ряда, таким образом, чтобы эта линия делила их пополам. Интервалы между огнями светового горизонта должны быть равными. Допускаются разрывы по обе стороны от продолжения осевой линии ВПП, не более 6 м каждый.
7.3.6. Там, где в подсистему включены дополнительные световые горизонты, указанные в пункте 7.3.5, их внешние огни находятся на двух прямых линиях, сходящихся на осевой линии ВПП в точке, расположенной на расстоянии 300 м за порогом ВПП.
7.3.7. Одиночные огни, середины сдвоенных или линейных огней центрального ряда устанавливаются на продолжении осевой линии ВПП.
7.3.8. Световые горизонты и линейные огни располагаются перпендикулярно центральному ряду системы огней приближения.
7.3.9. В подсистеме огней приближения не допускается отсутствие более одного огня (одиночного или линейного) центрального ряда, при этом отсутствие огня, ближайшего к порогу ВПП, и огня в начале линии огней приближения не допускается.
7.3.10. На ВПП со смещенным порогом подсистема огней приближения устанавливается по таким же схемам, что и на ВПП, где порог совпадает с ее торцом.
а) одиночного источника света на ближнем к ВПП участке осевой линии длиной 300 м, сдвоенных источников света - на среднем участке осевой линии длиной 300 м и строенных источников света - на дальнем участке осевой линии длиной 300 м; или
б) линейного огня.
7.3.12. Длина линейного огня составляет не менее 4 м. Одиночные источники света (огни) в линейном огне располагаются с одинаковыми интервалами, не превышающими 1,5 м.
7.3.13. Если устанавливаются импульсные огни приближения, то они должны располагаться у каждого линейного огня приближения за пределами 300 м от порога ВПП и производить вспышки белого цвета в установленной последовательности в направлении от самого дальнего огня до самого ближнего к порогу ВПП огня.
Боковые огни ВПП
7.3.14. Боковые огни ВПП устанавливаются по схемам, приведенным на рисунках 7.7 и 7.8.
7.3.15. Боковые огни располагаются вдоль всей длины ВПП двумя параллельными рядами на одинаковом удалении от осевой линии ВПП на расстоянии не более 3 м от края ВПП.

Рис. 7.7. Схема расположения огней ВПП системы ОВИ-1.

Рис. 7.8. Схема расположения системы ОВИ-1 при смещенном пороге ВПП.
7.3.16. Боковые огни располагаются с одинаковыми интервалами не более 60 м. Огни, располагаемые по обе стороны от оси ВПП, находятся на линиях, проходящих под прямым углом к ее оси. На пересечениях ВПП, ВПП и РД и уширениях ВПП боковые огни могут располагаться неравномерно или не устанавливаться вообще при условии, что:
а) на ВПП установлены осевые огни ВПП; или
б) расстояние между соседними боковыми огнями ВПП не будет превышать 120 м.
7.3.17. Боковые огни являются огнями белого цвета за исключением того, что:
а) огни ВПП на участке протяженностью 600 м у конца являются огнями желтого цвета с излучением в направлении ВС, заходящего на посадку или взлетающего с ВПП;
б) при наличии смещенного порога ВПП огни между началом ВПП и смещенным порогом являются огнями красного цвета с излучением в направлении ВС, заходящего на посадку.
7.3.18. Если в качестве боковых огней используются прожекторы, то они должны быть дополнены огнями кругового обзора.
Огни уширений ВПП
7.3.19. Расположение и характеристики огней уширений ВПП должны соответствовать пунктам 7.2.16, 7.2.17.
Входные огни ВПП и фланговые входные огни
7.3.20. Если порог совпадает с торцом ВПП, входные огни располагаются в ряд под прямым углом к оси ВПП, как можно ближе к торцу ВПП, и в любом случае не далее 3 м за его пределами. При этом крайние входные огни устанавливаются на продолжении линии посадочных огней (рисунок 7.7).
7.3.21. При наличии смещенного порога ВПП входные огни размещаются в ряд под прямым углом к оси ВПП у смещенного порога (рисунок 7.8).
7.3.22. Входные огни состоят, по крайней мере, из такого количества огней, которое окажется необходимым для того, чтобы они равномерно располагались между рядами боковых огней с интервалом в 3 м.
7.3.23. Входные огни должны быть:
а) расположены с одинаковыми интервалами между рядами боковых огней; или
б) расположены двумя группами симметрично осевой линии ВПП, при этом в каждой группе огни устанавливаются с одинаковыми интервалами и разрыв между этими группами должен равняться поперечному расстоянию между маркировочными знаками зоны приземления. Допускается разрыв между группами равный не более половины расстояния между рядами боковых огней ВПП.
7.3.24. Фланговые входные огни располагаются двумя группами, симметрично осевой линии, у порога ВПП. Каждая группа образуется, по крайней мере, пятью огнями, устанавливаемыми на линии длиной не менее 10 мс внешней стороны от линии боковых огней ВПП и под прямым углом к последней, при этом ближайший к ВПП огонь каждого светового горизонта находится на одной линии с боковыми огнями (рисунок 7.8).
7.3.25. Входные огни ВПП и фланговые входные огни являются однонаправленными огнями зеленого цвета с излучением в направлении ВС, заходящего на посадку.
Ограничительные огни ВПП
7.3.26. Ограничительные огни ВПП располагаются на линии, перпендикулярной к оси ВПП, как можно ближе к торцу ВПП, и в любом случае не далее 3 м с внешней стороны от торца ВПП (рисунки 7.7 и 7.8).
7.3.27. Ограничительные огни должны состоять не менее, чем из шести огней, расположенных с одинаковыми интервалами между рядами боковых огней или двумя группами симметрично осевой линии ВПП, при этом в каждой группе огни устанавливаются с одинаковыми интервалами и разрыв между этими группами должен составлять не более половины расстояния между рядами боковых огней ВПП.
7.3.28. Ограничительные огни ВПП являются однонаправленными огнями красного цвета с излучением в направлении ВПП.
Осевые огни ВПП
7.3.29. Осевые огни ВПП располагаются по осевой линии ВПП, за исключением случаев, когда огни могут быть смещены на одинаковое расстояние в одну сторону от осевой линии ВПП, как правило до 60 см (но не более 75 см), если практически невозможно разместить их по осевой линии.
7.3.30. Осевые огни ВПП располагаются в пределах от порога до конца ВПП с продольными интервалами, равными половине расстояния между боковыми огнями ВПП.
7.3.31. Осевые огни являются огнями белого цвета на участке от порога ВПП до точки, расположенной на расстоянии 900 м от конца ВПП, чередующимися (попарно) красными и белыми - в пределах от 900 м до 300 м от конца ВПП, красными - от точки, расположенной на расстоянии 300 м от конца ВПП, до ее конца.
Огни знака приземления
7.3.32. Огни знака приземления устанавливаются с двух сторон ВПП перпендикулярно линии боковых огней ВПП на расстоянии 300±30 м от порога ВПП, в количестве не менее пяти огней с каждой стороны.
7.3.33. Интервалы между огнями знака приземления, а также между ближайшим к ВПП огнем знака приземления и линией боковых огней ВПП, должны быть равными и составлять 2¸3 м.
7.3.34. Огни знака приземления являются направленными огнями белого цвета с излучением в направлении ВС, заходящего на посадку.
Подсистема огней приближения
7.4.1. Подсистемы огней приближения устанавливаются по схемам, приведенным на рисунках 7.9 и 7.10.
7.4.2. Подсистема огней приближения состоит из огней центрального ряда, установленных на продолжении осевой линии ВПП на протяжении 900 м от порога ВПП (но не менее 870 м). Кроме этого, система имеет два боковых ряда огней на протяжении 270 м от порога ВПП и два световых горизонта, расположенных на расстояниях 150 м и 300 м от порога ВПП.
Протяженность в 900 м основана на обеспечении полетов в условиях I, II и III категорий. Уменьшенные протяженности могут обеспечивать полеты в условиях II и III категорий, но будут исключать полеты в условиях категории I.
7.4.3. Огни, образующие центральный ряд, располагаются с продольным интервалом в 30±3 м, при этом ближайший огонь располагается на расстоянии 30±3 м от порога ВПП. Продольный интервал между огнями центрального ряда следует устанавливать таким образом, чтобы линейный огонь находился в центре каждого светового горизонта, а промежуточные огни центрального ряда располагались, по возможности, равномерно между соседними световыми горизонтами или порогом ВПП.
7.4.4. Огни, образующие боковые ряды, размещаются по обе стороны от осевой линии с такими же продольными интервалами, как и огни центрального ряда, причем ближайший огонь располагается на расстоянии 30±3 м от порога ВПП. Поперечный интервал между внутренними огнями боковых рядов составляет не менее 18 м и не более 22,5 м (предпочтительнее 18 м), но в любом случае поперечный интервал равняется расстоянию между рядами огней зоны приземления.
7.4.5. Световой горизонт, предусмотренный на расстоянии 150±6 м от порога ВПП, заполняет разрывы между огнями центрального ряда и огнями бокового ряда.
7.4.6. Световой горизонт, предусмотренный на расстоянии 300±12 м от порога ВПП, продолжается по обе стороны от огней центрального ряда на расстоянии 15±1,5 м от продолженной осевой линии ВПП.
7.4.7. Если осевая линия за пределами 300 м от порога ВПП состоит из огней, указанных в пункте 7.4.14, предусматриваются дополнительные световые горизонты на расстоянии 450, 600 и 750 м от порога ВПП.
7.4.8. Там, где в подсистему включены дополнительные световые горизонты, указанные в пункте 7.4.7, их внешние огни лежат на двух прямых линиях, сходящихся на осевой линии ВПП в точке, расположенной на расстоянии 300 м за порогом ВПП.
7.4.9. Середины сдвоенных или линейных огней центрального ряда устанавливаются на продолжении осевой линии ВПП.
7.4.10. Световые горизонты и линейные огни следует располагать перпендикулярно центральному ряду системы огней приближения.
7.4.11. В системе огней приближения не допускается отсутствие более одного огня центрального ряда (одиночного или линейного), при этом отсутствие огня, ближайшего к порогу ВПП, и огня в начале линии огней приближения не допускается.
7.4.12. На ВПП со смещенным порогом подсистема огней приближения устанавливается по таким же схемам, что и на ВПП, где порог совпадает с ее торцом.
7.4.13. Огни центрального ряда подсистемы огней приближения на первых 300 м от порога ВПП представляют собой линейные огни белого цвета.
7.4.14. За пределами 300 м от порога ВПП каждый блок огня центрального ряда состоит из линейного огня, подобного тем, которые расположены на первых 300 м от порога ВПП или сдвоенных источников света на среднем участке осевой линии длиной 300 м и строенных источников света на дальнем от ВПП участке осевой линии длиной 300 м.
Все огни являются огнями белого цвета.
7.4.15. Длина линейного огня составляет не менее 4 м. Одиночные источники света (огни) в линейном огне располагаются с одинаковыми интервалами, не превышающими 1,5 м.
7.4.16. Если устанавливаются импульсные огни приближения, то они должны располагаться у каждого линейного огня приближения за пределами 300 м от порога ВПП и производить вспышки белого цвета в установленной последовательности в направлении от самого дальнего огня до самого ближнего к порогу ВПП огня.
7.4.17. Боковой ряд состоит из линейных огней красного цвета. Длина линейного огня, количество в нем огней и интервал между ними такие же, как и у линейных огней зоны приземления.
7.4.18. Огни, образующие световые горизонты, представляют собой огни белого цвета. Интервал между равномерно размещаемыми огнями не превышает 2,7 м.

Рис. 7.9. Схема расположения огней приближения систем ОВИ-2 и ОВИ-3.

Рис. 7.10. Схема расположения огней приближения систем ОВИ-2 и ОВИ-3.
Боковые огни ВПП
7.4.19. Боковые огни ВПП устанавливаются по схемам, приведенным на рисунках 7.11 и 7.12.
7.4.20. Боковые огни располагаются вдоль всей длины ВПП двумя параллельными рядами на одинаковом удалении от осевой линии ВПП на расстоянии не более 3 м от края ВПП.
7.4.21. Боковые огни располагаются с одинаковыми интервалами не более 60 м. Огни, располагаемые по обе стороны от оси ВПП, находятся на линиях, проходящих под прямым углом к этой оси. На пересечениях ВПП, ВПП и РД и уширениях ВПП огни могут располагаться неравномерно или не устанавливаться.
7.4.22. Боковые огни являются огнями белого цвета за исключением того, что:
а) огни у конца ВПП на участке протяженностью 600 м или в одну треть длины ВПП, в зависимости от того, что меньше, являются огнями желтого цвета и излучают свет в направлении ВС, заходящего на посадку или взлетающего с ВПП;
б) при наличии смещенного порога ВПП огни между началом ВПП и смещенным порогом являются огнями красного цвета с излучением в направлении ВС, заходящего на посадку.
7.4.23. Если в качестве боковых огней используются прожекторы, они должны быть дополнены огнями кругового обзора.
Огни уширений ВПП
7.4.24. Расположение и характеристики огней уширений ВПП должны соответствовать пунктам 7.2.16, 7.2.17.
Входные огни ВПП и фланговые входные огни
7.4.25. Если порог совпадает с торцом ВПП входные огни располагаются в ряд под прямым углом к оси ВПП, как можно ближе к торцу ВПП, во всех случаях не далее 3 м от него. При этом крайние входные огни устанавливаются на продолжении линии боковых огней ВПП (рисунок 7.11).
7.4.26. При наличии смещенного порога ВПП входные огни размещаются в ряд под прямым углом к оси ВПП у смещенного порога (рисунок 7.12).
7.4.27. Входные огни состоят из огней, равномерно расположенных между рядами боковых огней с интервалом не более 3 м.
7.4.28. Фланговые входные огни располагаются двумя группами, симметрично осевой линии, у порога ВПП. Каждая группа образуется, по крайней мере, пятью огнями, устанавливаемыми на линии длиной не менее 10 м с внешней стороны от линии боковых огней ВПП и под прямым углом к последней, при этом ближайший к ВПП огонь каждого светового горизонта находится на одной линии с боковыми огнями ВПП (рисунок 7.12).

Рис. 7.11. Схема расположения огней ВПП систем ОВИ-2 и ОВИ-3.

Рис. 7.12. Схема расположения огней систем ОВИ-2 и ОВИ-3 при смещенном пороге ВПП.
7.4.29. Входные огни ВПП и входные огни фланговых горизонтов являются однонаправленными огнями зеленого цвета с излучением в направлении ВС, заходящего на посадку.
Ограничительные огни ВПП
7.4.30. Ограничительные огни ВПП располагаются на прямой линии под прямым углом к оси ВПП, как можно ближе к ее торцу, и во всех случаях не далее 3 м с внешней стороны от торца ВПП (рисунки 7.11 и 7.12).
7.4.31. Ограничительные огни должны состоять не менее, чем из шести огней, и расположенных:
а) с одинаковыми интервалами между рядами боковых огней; или
б) двумя группами симметрично осевой линии ВПП, при этом в каждой группе огни устанавливаются с одинаковыми интервалами и разрыв между этими группами должен составлять не более половины расстояния между рядами боковых огней ВПП.
7.4.32. Ограничительные огни ВПП являются однонаправленными огнями красного цвета с излучением в направлении ВПП.
Осевые огни ВПП
7.4.33. Осевые огни ВПП располагаются по осевой линии ВПП, за исключением случаев, когда огни могут быть смещены на одинаковое расстояние в одну сторону от осевой линии ВПП как правило до 60 м, но не более 75 м, если невозможно практически разместить их по осевой линии.
7.4.34. Осевые огни ВПП располагаются в пределах от порога до конца ВПП с одинаковыми продольными интервалами, равными 1/4 интервала между боковыми огнями ВПП, что составляет 12,5¸15 м. В системах ОВИ-2 при обеспечении уровня эксплуатационной надежности допускается увеличение продольного интервала между огнями до 30 м (рисунок 7.11).
Необходимый уровень эксплуатационной надежности обеспечивается в том случае, если в любое время работает не менее 95% осевых огней ВПП.
7.4.35. Осевые огни являются огнями белого цвета на участке от порога ВПП до точки, расположенной на расстоянии 900 м от конца ВПП, чередующимися (попарно) красными и белыми - в пределах от 900 м до 300 м от конца ВПП; и красными - от точки, расположенной на расстоянии 300 м от конца ВПП, до ее конца.
Огни зоны приземления
7.4.36. Огни зоны приземления устанавливаются на протяжении 900±30 м, начиная от порога ВПП, по схеме, образуемой парами линейных огней, расположенных симметрично осевой линии ВПП. Поперечное расстояние между внутренними огнями пары линейных огней равняется поперечному расстоянию, выбранному для маркировочных знаков зоны приземления. Продольное расстояние между линейными огнями равно либо 1/2 интервала между боковыми огнями ВПП, (не более 30 м), либо равно интервалу между боковыми огнями ВПП (не более 60 м) (рисунок 7.11).
7.4.37. Линейный огонь должен состоять по крайней мере из трех огней с интервалом между ними не более 1,5 м и иметь длину 3¸4,5 м.
7.4.38. Огни зоны приземления являются однонаправленными огнями белого цвета.
7.5.1. Светосигнальное оборудование системы ССП-1 устанавливается по схеме, приведенной на рисунке 7.13.
Огни импульсной линии
7.5.2. Огни импульсной линии устанавливаются на продолжении оси ВПП через каждые (50±5) м и боковом смещении от оси ВПП до 1,5 м. Цвет излучения первых 14 огней - желтый, последующих 7 огней - красный.
Огни приближения
7.5.3. Огни приближения состоят из трех рядов огней. Огни центрального ряда располагаются на продолжении оси ВПП через каждые (100±3) м. Огни боковых рядов устанавливаются симметрично относительно центрального ряда на интервале (3±0,3) м. Цвет излучения огней - желтый.
Огни светового горизонта
7.5.4. Огни светового горизонта включают две группы из пяти огней, устанавливаемых на линии, перпендикулярной оси ВПП, в (300±3) м от начала ВПП. Удаление каждой группы от огней приближения и расстояние между огнями в группе (2,5±0,25) м. Цвет излучения огней - желтый.
Входные огни ВПП
7.5.5. Входные огни устанавливаются на расстоянии 3 м от начала ВПП на линии, перпендикулярной оси ВПП. Расстояние между огнями (2,5±0,25) м, при этом третий огонь (нумерация от оси ВПП) устанавливается на продолжении линий огней ВПП. Цвет излучения огней - зеленый.
Огни ВПП
7.5.6. Огни взлетно-посадочной полосы устанавливаются вдоль боковых границ ВПП на удалении не более 3 м от последних. Расстояние между огнями не более (100±10) м, а между огнями, обозначающими последние 600 м ВПП, (2,5±0,25) м. Режим работы огней, обозначающих 600 м, проблесковый с частотой 45 проблесков в минуту. Цвет излучения всех огней - желтый.
Ограничительные огни ВПП
7.5.7. Ограничительные огни (постоянного горения) устанавливаются на одной линии с входными огнями группами по два огня с левой и правой стороны оси ВПП. Расстояние между огнями и удаление от линий огней ВПП (2,5±0,25) м. Цвет излучения огней - красный.
7.6.1. Светосигнальное оборудование системы ССП-0 устанавливается по схеме, приведенной на рисунке 7.14.
7.6.2. Схема ССП-0 представляет собой упрощенный вариант схемы ССП-1 и предназначена для развертывания на оперативных аэродромах.

Рис. 7.13. Схема расположения огней системы ССП-1

Рис. 7.14. Схема размещения огней системы ССП-0
7.7.1. Светосигнальное оборудование систем СП-1 и СП-2 устанавливается по схеме, приведенной на рисунке 7.15.
Огни импульсной линии
7.7.2. Огни импульсной линии устанавливаются:
19 огней на продолжении оси ВПП со стороны захода воздушных судов на посадку через каждые (100±5) м при боковом смещении от оси до 1,5 м. Цвет излучения первых 8 огней - белый, последующих 8 - желтый и 3 - красный;
3 огня в линии посадочного светового горизонта: два из них в левой группе этих огней в 1,5 м слева от четвертого и пятого огней постоянного горения соответственно (нумерация от продолжения оси ВПП) и один в правой группе в 1,5 м справа от четвертого огня. Цвет излучения огней - красный;
3 огня в полосе приближения: два из них через 10 м в 1,5 м слева от пятого огня левого ряда и один в 1,5 м справа от пятого огня правого ряда огней приближения. Цвет излучения огней - красный.
Огни подхода
7.7.3. Огни подхода постоянного горения устанавливаются на продолжении оси ВПП через каждые (200±10) м в количестве 8 шт., причем первый огонь устанавливается в (100±5) м от линии огней посадочного светового горизонта, боковым смещением огней от оси ВПП не более 2 м. Цвет излучения огней - красный.
Огни посадочного горизонта
7.7.4. Огни посадочного светового горизонта устанавливаются на расстоянии 850-1200 м от начала ВПП, как правило, в створе с БПРМ на линии, перпендикулярной продолжению оси ВПП, с допустимыми отклонениями:
от горизонта по вертикали - не более 0,1 м;
от перпендикуляра к оси ВПП - не более 0,2 м.
Расстояние от продолжения оси ВПП до первых огней светового горизонта (20±2) м, между огнями (10±1) м.
В отдельных случаях в зависимости от условий местности допускается переносить линию огней светового горизонта от БПРМ на расстояние до 150 м в сторону ВПП и на расстояние до 100 м в противоположную сторону. Цвет излучения огней - желтый.
Огни приближения
7.7.5. Огни приближения устанавливаются между началом ВПП и БПРМ параллельно продолжению оси ВПП, с двух сторон на одинаковом расстоянии от оси (40-50 м). В каждом ряду устанавливается по девять огней, расстояние между ними 85-120 м (в зависимости от удаления БПРМ от ВПП). Цвет излучения огней - красный.
Входные огни ВПП
7.7.6. Огни разрешения, запрещения посадки (входные огни) устанавливаются на расстоянии не более 3 м от начала ВПП на линии, перпендикулярной оси ВПП. Расстояние между огнями (2,5±0,25) м. Режим работы проблесковый, с частотой 90 проблесков в минуту. Цвет излучения огней разрешения посадки - зеленый, запрещения - красный.
Огни ВПП
7.7.7. Огни взлетно-посадочной полосы устанавливаются вдоль боковых границ ВПП на удалении не более 3 м от последних. Расстояние между огнями для стационарных систем (50±5) м, для подвижных (100±10) м, а между огнями, обозначающими последние 600 м ВПП, (3±0,3) м. Цвет излучения огней ВПП - белый, но огни последних 600 м должны излучать желтый свет в направлении посадки.
Ограничительные огни ВПП
7.7.8. Ограничительные огни устанавливаются на линии огней разрешения, запрещения посадки, удаление первого огня (5±0,5) м от продолжения линии огней ВПП, а второго (10±1) м. Режим работы проблесковый, с частотой 45 проблесков в минуту. Цвет излучения огней - красный.
Огни направления взлета
7.7.9. Огни направления взлета устанавливаются на продолжении оси ВПП в (100±10) м от линии огней взлетного горизонта. Расстояние между огнями (200±20) м. Цвет излучения огней - красный.
Огни взлетного горизонта
7.7.10. Огни взлетного светового горизонта устанавливаются в соответствии с пунктом 7.7.4. Цвет излучения огней - желтый.
7.8.1. Светосигнальное оборудование системы СП-2-0 устанавливается по схеме, приведенной на рисунке 7.16.
7.8.2. Схема СП-2-0 представляет собой упрощенный вариант схемы СП-2 и предназначена для развертывания на оперативных аэродромах.

Рис. 7.15. Схема размещения огней систем СП-1 и СП-2

Рис. 7.16. Схема размещения огней системы СП-2-0

Рис. 7.17. Схема расстановки прожекторов
Условные обозначения светосигнального оборудования

7.9.1. На аэродромах со светосигнальным оборудованием, развернутым по схемам ССП-1, ССП-0, СП-1 и СП-2 на продолжении оси ВПП в районе БПРМ устанавливаются кодовые (импульсные) маяки.
Допускается отклонение кодового маяка от места установки БПРМ по оси ВПП до 100 м с боковым смещением 15 м.
7.9.2. На аэродромах со светосигнальным оборудованием, развернутым по схемам ССП-1, ССП-0 кодовые маяки устанавливаются с обоих направлений посадки (допускается применение импульсных маяков). Режим работы кодового маяка - кодовый, двухбуквенным сигналом опознавания, аналогичному сигналу опознавания ДПРМ. Режим работы импульсного маяка - импульсный, 30-60 проблесков в минуту. Цвет излучения - белый.
7.9.3. На аэродроме со светосигнальным оборудованием, развернутым по схемам СП-1, СП-2, устанавливается кодовый маяк типа КНС (только на основном направлении). КНС должен работать в кодовом режиме двухбуквенным сигналом опознавания, аналогичным сигналу опознавания ДПРМ основного направления посадки. Цвет излучения - красный.
7.10.1. На аэродромах со светосигнальным оборудованием, развернутым по схемам ССП-1, ССП-0, СП-1, СП-2, СП-2-0 вдоль одной из сторон ВПП устанавливаются 3-4 прожекторные станции. Первая по заходу на посадку устанавливается с углом рассеивания в горизонтальной плоскости 15 град, а остальные - с углом рассеивания 55 град.
Места установки аэродромных прожекторных станций определяются в зависимости от типов ВС и особенностей аэродрома. Рекомендуемые варианты размещения аэродромных прожекторных станций приведены на рисунке 7.17.
Во время дневных полетов в сложных метеоусловиях при необходимости аэродромные прожекторные станции устанавливаются со снятыми рассеивателями и их лучи направляются навстречу самолетам, идущим на посадку, под углом 3 град к горизонту.
7.10.2. Установленные на аэродроме прожекторные станции не должны выходить за условные плоскости ограничений препятствий.
Боковые огни РД
7.11.1. Боковые огни РД на прямолинейном участке РД устанавливаются с одинаковым продольным интервалом, не превышающим 60 м. На поворотах РД с радиусом до 400 м огни устанавливаются с интервалами, не превышающими 15 м, а с радиусом более 400 м - с интервалом не более 30 м.
На аэродромах со светосигнальным оборудованием, развернутым по схемам ССП-1, ССП-0, СП-1, СП-2, СП-2-0 допускается установка боковых огней РД с интервалами 100±10 м на прямолинейных участках. В местах поворота РД и примыкания к ВПП устанавливаются сдвоенные рулежные огни на расстоянии 3 м один от другого.
7.11.2. Боковые огни РД устанавливаются на расстоянии не более 3 м от края РД и являются огнями синего цвета.
На аэродромах со светосигнальным оборудованием, развернутым по схемам ССП-1, ССП-0, СП-1, СП-2, СП-2-0 допускается установка боковых огней РД на удалении до 5 м от края РД.
Стоп-огни
7.11.3. Стоп-огни располагаются поперек РД в месте ожидания при рулении у ВПП с интервалом в 3 м в количестве не менее четырех. На каждом конце линии стоп-огней допускается устанавливать по паре дополнительных надземных огней красного цвета, расположенных на расстоянии не менее 3 м от края РД.
7.11.4. Стоп-огни являются однонаправленными огнями красного цвета с излучением в направлении ВС, приближающегося к ВПП.
7.11.5. Стоп-огни с выборочным включением работают совместно, по крайней мере, с тремя осевыми огнями РД, удаленными от стоп-огней на расстояние не менее 90 м в направлении продолжения движения ВС от стоп-огней.
Огни мест ожидания у ВПП
7.11.6. Огни мест ожидания у ВПП устанавливаются на пересечении РД/ВПП у маркировки места ожидания при рулении с каждой стороны РД и располагаются на расстоянии не более 7 м от установленного края искусственного покрытия РД.
7.11.7. Огни мест ожидания у ВПП являются сдвоенными огнями красного цвета и излучают свет в направлении ВС, приближающегося к ВПП.
Светофоры
7.11.8. На аэродромах со светосигнальным оборудованием, развернутым по схемам ССП-1, ССП-0, СП-1, СП-2, СП-2-0 на РД устанавливаются светофоры на расстоянии 10-12 м от левой границы РД и до 30-50 м в сторону ВПП от линии предварительного старта.
7.12.1. Знаки, содержащие обязательные для исполнения инструкции, включают в себя знаки обозначения ВПП (магнитных курсов посадки), знаки мест ожидания у ВПП I, II или III категории, знаки места ожидания у ВПП и знаки "Въезд запрещен".
7.12.2. Указательные знаки включают в себя знаки направления движения, знаки местоположения, знаки места назначения, знаки освобождения ВПП.
7.12.3. Требования пунктов 7.12.23., 7.12.26. не означают, что указанное оборудование должно устанавливаться в обязательном порядке.
7.12.4. Аэродромные знаки (далее - знаки) должны быть с внутренним подсветом. Допускается применение знаков только со светоотражающим покрытием для необорудованных ВПП и ВПП захода на посадку по приборам.
7.12.5. Знаки, располагаемые вблизи ВПП и РД, устанавливаются достаточно низко, чтобы обеспечить достаточный запас расстояния до винтов и гондол двигателей воздушных судов. Высота установленного знака не превышает 1,1 м для ВПП класса I, II, III и 0,9 м для ВПП класса IV.
7.12.6. Аэродромные знаки, кроме знаков обозначения ВПП и знаков места ожидания I, II, III категории, должны быть размещены на расстоянии 10-21 м от края РД и 8-15 м от края ВПП классов I, II, III и на расстоянии 5-12 м от края РД и 3-12 м от края ВПП классов IV, с левой стороны РД. В случае невозможности установки знаков с левой стороны, они устанавливаются с правой стороны РД.
Знаки обозначения ВПП и знаки места ожидания I, II, III категории устанавливаются на расстоянии 10-21 м от края РД для ВПП классов I, II, III и 5-12 м от края РД для ВПП классов IV.
7.12.7. Указательный знак, кроме знака местоположения, не располагается совместно со знаком, содержащим обязательные для исполнения инструкции.
7.12.8. Знаки, содержащие обязательные для исполнения инструкции, и указательные знаки располагаются лицевой стороной в направлении ВС или транспортного средства, приближающегося к знакам.
7.12.9. Знаки, содержащие обязательные для исполнения инструкции, состоят из надписи белого цвета на красном фоне и располагается с каждой стороны РД или ВПП.
7.12.10. Указательные знаки, кроме знака местоположения, состоят из надписи черного цвета на желтом фоне.
7.12.11. Знак местоположения состоит из надписи желтого цвета на черном фоне, и там, где установлен только один этот знак, он имеет окантовку желтого цвета.
7.12.12. Место ожидания у ВПП должно обозначаться устанавливаемыми у маркировки с обеих сторон РД знаками обозначения ВПП, совместно с которыми могут использоваться знаки местоположения.
На действующих аэродромах до реконструкции рулежного оборудования, допускается вместо знаков обозначения ВПП применение сдвоенных огней, устанавливаемых с обеих сторон РД не далее 7 м от края (огни должны быть постоянного излучения красного цвета и видны при приближении к ВПП) или знаков с символами PMC (ILS), CAT I, CAT II, CAT III. В этом случае кроме вышеуказанных знаков и огней устанавливаются знаки магнитных курсов согласно требованиям пункта 7.12.3.
7.12.13. Знаки "Въезд запрещен" устанавливаются в начале зоны, въезд в которую запрещен.
7.12.14. Надпись на знаке обозначения ВПП состоит из обозначения магнитных курсов посадки.
Если знак обозначения ВПП устанавливается вблизи конца ВПП, то надпись может состоять из обозначения магнитного курса только данного конца ВПП. При наличии на аэродроме двух параллельных ВПП надпись на знаке обозначения ВПП может быть дополнена номером ВПП или обозначением левой или правой ВПП.
7.12.15. Надпись на знаке места ожидания у ВПП I, II или III категории или совместно II/III категории в соответствующих случаях состоит из букв и цифр CAT I, CAT II, CAT III или CATII/III.
Указательные знаки
7.12.16. В местах пересечения или разветвления РД и в местах примыканий РД к РД должны быть установлены совместно знаки местоположения и направления движения, располагаемые на расстоянии 30-35 м от начала поворота.
На действующих аэродромах до реконструкции рулежного оборудования, допускается вместо устанавливаемых совместно знаков местоположения и направления движения применение знаков обозначения РД и направления движения.
7.12.17. Указательные знаки располагаются с левой стороны РД. При отсутствии такой возможности знаки допускается устанавливать с правой стороны РД. Знак направления движения на пересечении типа "Т" допускается располагать на противоположной стороне пересечения, лицевой стороной к РД.
7.12.18. Знак направления движения при сходе с ВПП располагается на стороне схода.
7.12.19. Знаки местоположения устанавливаются на РД, выходящих с перрона.
7.12.20. При совместном использовании знака местоположения и знаков направления движения все знаки направления движения, относящиеся к левым поворотам или движению по прямой, располагаются с левой стороны от знака местоположения, а все знаки, относящиеся к правым поворотам, располагаются с правой стороны от знака местоположения. Когда место примыкания включает в себя одну пересекающую РД, знак местоположения может быть расположен с левой стороны.
7.12.21. При совместном использовании знака местоположения со знаком обозначения ВПП знак местоположения РД устанавливается с внешней стороны.
7.12.22. Надпись на знаке направления движения состоит из буквенного, цифрового или буквенно-цифрового сообщения, указывающего РД, а также соответствующим образом ориентированной стрелки или стрелок.
7.12.24. Стрелка в знаках направления движения и места назначения должна находиться в левой части знака, если необходимо выполнить левый поворот или продолжить движение по прямой, и в правой части знака, если необходимо выполнить правый поворот.
7.12.25. Надпись на знаке местоположения состоит из обозначения местоположения РД, ВПП или другого искусственного покрытия, на котором находится или на которое выходит воздушное судно, и не содержит стрелок.
7.12.26. Условное обозначение на знаке освобождения ВПП отображает маркировку места ожидания у ВПП.
7.13.1. Углы установки огней в системах ОМИ, ОВИ-1, ОВИ-2 и ОВИ-3, ССП-1, СП-1, СП-2 приведены в таблицах 7.4, 7.5, 7.6 и 7.7.
Таблица 7.4
Углы установки огней в системах ОМИ
|
№ п/п |
Наименование огней |
Углы установки огней в вертикальной плоскости, град. |
Сходимость, град. |
|
1 |
Огни приближения центрального ряда и светового горизонта, расположенные на расстоянии от порога ВПП: порог ВПП - 315 м |
4,0 (4,0) |
0 |
|
|
316 м - 475 м |
5,0 (5,0) |
0 |
|
|
476 м - 640 м |
6,0 (5,0) |
0 |
|
|
641 м - 805 м |
7,0 (6,0) |
0 |
|
|
806 м и более |
8,0 (6,0) |
0 |
|
2 |
Огни ВПП (боковые, входные, фланговые входные, ограничительные, знака приземления, огни светового горизонта при смещенном пороге ВПП) |
3,0 (4,0) |
3,0 |
|
При установке огней учитываются угол возвышения и сходимость световых пучков, определяемые конструкцией огней. В скобках приведены значения углов установки огней, используемых в качестве дополнительных огней в системах ОВИ-1, ОВИ-2, ОВИ-3. |
|||
Таблица 7.5
Углы установки огней в системах ОВИ-1, ОВИ-2
|
№ п/п |
Наименование огней |
Углы установки огней в вертикальной плоскости, град. |
Сходимость, град. |
|
1 |
Огни приближения центрального ряда и световых горизонтов, расположенные на расстоянии от порога ВПП: |
|
|
|
|
порог ВПП - 300 м |
4,5 |
0 |
|
|
301 м - 450 м |
5,0 |
0 |
|
|
451 м - 600 м |
5,5 |
0 |
|
|
601 м и более |
6,0 |
0 |
|
2 |
Огни приближения бокового ряда |
5,5 |
2,0 |
|
3 |
Боковые огни ВПП при ширине ВПП: |
|
|
|
|
до 60 м |
3,5 |
3,5 |
|
|
60 м и более |
3,5 |
4,5 |
|
4 |
Входные огни ВПП |
3,5 |
2,0 |
|
5 |
Фланговые входные огни |
3,5 |
2,0 |
|
6 |
Ограничительные огни ВПП |
2,5 |
0 |
|
7 |
Осевые огни ВПП, расположенные с интервалом: |
|
|
|
|
15 м |
4,5 |
0 |
|
|
30 м |
3,5 |
0 |
|
8 |
Огни зоны приземления |
3,0 |
1,5 |
|
9 |
Огни знака приземления |
3,0 |
2,0 |
|
При установке линзовых или углубленных огней учитываются угол возвышения и сходимость световых пучков, определяемые конструкцией огней. Огни в световых горизонтах, расположенные дальше 22,5 м от осевой линии, имеют сходимость 2°. |
|||
Таблица 7.6
Углы установки огней в системах ОВИ-3
|
№ п/п |
Наименование огней |
Углы установки огней в вертикальной плоскости, град. |
Сходимость, град. |
|
1 |
Огни приближения центрального ряда и световых горизонтов, расположенные на расстоянии от порога ВПП: |
|
|
|
|
порог ВПП - 315 м |
5,5 |
0 |
|
|
316 м - 475 м |
6,0 |
0 |
|
|
476 м - 640 м |
7,0 |
0 |
|
|
641 м и более |
8,0 |
0 |
|
2 |
Огни приближения бокового ряда, расположенные на расстоянии от порога ВПП: |
|
|
|
|
порог ВПП - 115 м |
5,5 |
2,0 |
|
|
116 м - 215 м |
6,0 |
2,0 |
|
|
216 м и далее |
6,5 |
2,0 |
|
3 |
Боковые огни ВПП при ширине ВПП: |
|
|
|
|
до 60 м |
3,5 |
3,5 |
|
|
60 м и более |
3,5 |
4,5 |
|
4 |
Входные огни ВПП |
5,5 |
3,5 |
|
5 |
Фланговые входные огни |
5,5 |
2,0 |
|
6 |
Ограничительные огни ВПП |
2,5 |
0 |
|
7 |
Осевые огни ВПП |
4,5 |
0 |
|
8 |
Огни зоны приземления |
5,5 |
4,0 |
|
При установке линзовых или углубленных огней учитываются угол возвышения и сходимость световых пучков, определяемые конструкцией огней. Огни в световых горизонтах, расположенные дальше 22,5 м от осевой линии, имеют сходимость 2°. |
|||
Таблица 7.7
Углы установки огней в системах ССП-1, СП-1, СП-2
|
№ п.п. |
Наименование огней |
Установочные углы огней схем СП-1, 2, [град] |
Установочные углы огней схем ССП-1, [град] |
||||
|
№ огня |
в горизонтальной плоскости |
в вертикальной плоскости |
№ огня |
в горизонтальной плоскости |
в вертикальной плоскости |
||
|
1 |
Огни подхода постоянного горения |
1-2 |
0 |
9 |
|
|
|
|
3-4 |
0 |
8 |
|
|
|
||
|
5-6 |
0 |
7 |
|
|
|
||
|
7-8 |
0 |
6 |
|
|
|
||
|
2 |
Огни импульсной линии |
1-4 |
0 |
9 |
1-11 |
0 |
6 |
|
5-8 |
0 |
8 |
12-15 |
0 |
5 |
||
|
9-12 |
0 |
7 |
16-19 |
0 |
4 |
||
|
13-16 |
0 |
6 |
20-21 |
0 |
3 |
||
|
17-19 |
0 |
5 |
|
|
|
||
|
3 |
Огни приближения постоянного горения |
1-2 |
3 |
6 |
1-2 |
0 |
6 |
|
3-4 |
3 |
5 |
3-4 |
0 |
Б |
||
|
5-6 |
3 |
4 |
5-6 |
0 |
4 |
||
|
7-8 |
3 |
3 |
7-8 |
0 |
3 |
||
|
9 |
3 |
2 |
9 |
0 |
2 |
||
|
4 |
Огни посадочного светового горизонта |
1 |
1 |
6 |
1-10 |
0 |
3 |
|
2-3 |
2 |
6 |
|||||
|
4-5 |
3 |
6 |
|||||
|
6 |
4 |
6 |
|||||
|
5 |
Входные огни |
- |
0 |
2,5 |
- |
2,5 |
2,5 |
|
6 |
Огни ВПП |
- |
2,5 к оси ВПП |
2,5 |
- |
2,5 к оси ВПП |
2,5 |
|
7 |
Ограничительные огни |
- |
2,5 к оси ВПП |
1 |
- |
0 |
0 |
|
8 |
Огни взлетного светового горизонта |
1 |
1 |
0 |
- |
- |
- |
|
2-3 |
2 |
0 |
- |
- |
- |
||
|
4-5 |
3 |
0 |
- |
- |
- |
||
|
6 |
4 |
0 |
- |
- |
- |
||
|
9 |
Огни направления взлета |
1- |
0 |
0 |
|
|
|
7.13.2. Нумерация огней производится по направлениям захода на посадку. В посадочном и взлетном горизонтах (схемы СП-1, СП-2) от продолжения оси ВПП.
7.13.3. Угол разворота осевых огни РД и стоп-огней линии на прямолинейных участках составляет 0°; на криволинейных участках световые пучки указанных огней должны быть развернуты внутрь на 15,75° по отношению к касательной к криволинейному контуру. Углы установки осевых огней РД и огней линии "стоп" в вертикальной плоскости определяются конструкцией огней.
7.14.1. Высота огней ВПП (боковых, входных, ограничительных и уширения), а также огней РД надземного типа не должна превышать 45 см. Допускается увеличение высоты указанных огней при условии, что обеспечивается запас расстояния до винтов и гондол двигателей воздушных судов.
7.14.2. Основание опорной конструкции огней, указанных в пункте 7.14.1, не должно выступать над поверхностью земли или покрытия. При этом ослабленное сечение ломкой муфты должно находиться всегда на уровне поверхности.
7.15.1. В системах ОМИ, ОВИ-1, ОВИ-2 и ОВИ-3 применяется последовательное электропитание от стабилизированных источников (регуляторов яркости). В системах ОМИ допускается параллельное электропитание.
7.15.2. Электропитание должно осуществляться не менее чем по двум кабельным линиям от двух источников питания для следующих огней:
а) огней приближения центрального ряда и световых горизонтов в системах ОВИ-1, ОВИ-2 и ОВИ-3;
б) боковых огней приближения;
в) боковых огней ВПП в системах ОВИ-1, ОВИ-2, ОВИ-3;
г) входных огней ВПП и фланговых входных огней в системах ОВИ-1, ОВИ-2, ОВИ-3;
д) ограничительных огней в системах ОВИ-1, ОВИ-2, ОВИ-3;
е) осевых огней ВПП;
ж) огней зоны приземления;
при этом может осуществляться совместное электропитание следующих огней:
з) огней приближения центрального ряда и световых горизонтов, входных огней ВПП и фланговых входных огней в системах ОВИ-1, ОВИ-2, ОВИ-3;
и) боковых, входных и ограничительных огней ВПП, фланговых входных огней, огней знака приземления в системах ОВИ-1, ОВИ-2 и ОВИ-3;
Вышеуказанные требования не означают, что для электропитания иных подсистем огней требуется более одной кабельной линии.
7.15.3. Сопротивление изоляции кабельных линий последовательного питания огней должно быть не менее 1 МОм, а для кабельных линий напряжением до 1000 В - не менее 0,5 МОм.
7.15.4. Выходные токи или напряжение источников электропитания огней должны обеспечивать ступени яркости огней, указанных в таблицах 7.8 и 7.9.
7.16.1. В системах ОВИ-1, ОВИ-2, ОВИ-3 должно быть предусмотрено регулирование яркости огней не менее чем пятью ступенями в соотношении 1:3: 100%, 30%, 10%, 3% и 1% от номинального значения средней силы света.
7.16.2. В системах ОМИ, установленных на оборудованных ВПП, а также для глиссадных огней должно быть предусмотрено регулирование яркости огней не менее чем тремя ступенями: 100%, 30% и 10%. В системах ОМИ, в которых используются боковые огни ВПП с силой света в направлении захода на посадку или взлета от 200 кд до 500 кд, должно быть предусмотрено регулирование яркости огней не менее чем двумя ступенями: 100% и 30%.
7.16.3. В системах ОМИ, установленных на необорудованных ВПП, а также в системах ОМИ, в которых используются боковые огни ВПП с силой света в направлении захода на посадку или взлета до 200 кд, регулирование яркости не требуется.
7.16.4. Для боковых огней РД и аэродромных знаков должно быть предусмотрено регулирование яркости не менее, чем двумя ступенями: 100% и 30%.
7.16.5. В системах ОМИ яркость огней должна регулироваться в соответствии с таблицей 7.8.
7.16.6. В системах ОВИ-1, ОВИ-2, ОВИ-3 яркость огней должна регулироваться в соответствии с таблицей 7.9.
Регулирование яркости огней системы ОМИ
|
Метеорологическая дальность видимости, км (время суток) |
Ступени яркости огней (% силы света) |
|||
|
Огни приближения и ВПП |
Боковые огни РД и знаки*,** |
Глиссадные огни |
Огни ВПП высокой интенсивности*** |
|
|
> 4 (ночь) |
3-4 (10-30) |
4 (30) |
3 (10) |
1 (1) |
|
4 - > 2 (ночь) |
4-5 (30-100) |
4 (30) |
4 (30) |
2 (3) |
|
£ 2 (день и ночь) |
5 (100) |
5 (100) |
5 (100) |
3 (10) |
|
* Допускается совместное регулирование яркости боковых огней РД (и знаков) и огней ВПП. |
||||
|
** В графе указаны рекомендуемые значения ступеней яркости. При использовании рулежных огней с силой света более 10 кд могут использоваться ступени яркости на одну ступень ниже. |
||||
|
*** Указаны ступени яркости огней ВПП из систем с огнями высокой интенсивности при их совместном использовании с огнями приближения из системы ОМИ. |
||||
Регулирование яркости огней систем ОВИ-1, ОВИ-2, ОВИ-3
|
Метеорологическая дальность видимости, км (время суток) |
Номер группы (кнопки) |
Ступени яркости огней, % |
||||||||
|
Огни приближения |
Огни ВПП (входные, боковые, ограничительные) |
Огни зоны приземления |
Осевые огни ВПП |
Глиссадные огни |
Боковые огни РД и знаки*(1) |
|||||
|
КО |
ПО |
КО |
ПО |
линзовые |
||||||
|
> 6 (ночь) |
1 |
30 |
-(1)*(2 ) |
10 |
-(1)*(3) |
1 |
1 |
1 |
10 |
30 |
|
6 - > 4 (ночь) > 8 (сумерки) |
2 |
100 |
-(1)*(2 ) |
30 |
-(3)*(3) |
3 |
1 |
1 |
10 |
30 |
|
4 - > 2 (ночь) 8 - > 5 (сумерки) |
3 |
100 |
3 |
30 |
3 |
3*(4) |
3 |
3 |
30 |
30 |
|
2 - > 1 (ночь) 5 - > 1 (сумерки) |
4 |
- |
10 |
30 |
10 |
10 |
10 |
10 |
30 |
100 |
|
|
|
|
|
|
|
|
|
|
|
|
|
£ 1 (ночь, сумерки) 2 - > 1 (день) |
5 |
- |
30 |
30 |
30 |
30 |
30 |
30 |
100 |
100 |
|
£ 1 (день) |
6 |
- |
100 |
30 |
100 |
100 |
100 |
100 |
100 |
100 |
|
*(1) В графе указаны рекомендуемые значения ступеней яркости. При использовании рулежных огней с силой света более 10 кд могут использоваться яркости на одну ступень ниже. |
||||||||||
|
*(2) В скобках указаны ступени яркости прожекторных огней приближения при отсутствии огней кругового обзора. |
||||||||||
|
*(3) В скобках указаны ступени яркости прожекторных входных и ограничительных огней ВПП при отсутствии огней кругового обзора. |
||||||||||
|
*(4) При схеме расположения огней приближения по центральному ряду (рисунки 7.5, 7.9) допускается использование линзовых огней в 3-й группе на 10%-й ступени яркости. |
||||||||||
7.16.7. В системах ОМИ, в которых сила света боковых огней ВПП составляет более 1000 кд, должны сохраняться следующие соотношения силы света огней различного назначения к силе света боковых огней ВПП:
а) центральный ряд огней приближения и светового горизонта: 1,5-2,0;
б) входные огни ВПП и фланговые входные огни: 1,0-1,5;
в) ограничительные огни ВПП: 0,25-0,5.
В случае совместного использования огней малой интенсивности с огнями высокой интенсивности (например, центрального ряда огней приближения и световых горизонтов системы ОМИ с боковыми огнями ВПП системы ОВИ-I и т.д.) сбалансированность системы должна обеспечиваться соответствующей регулировкой яркости огней высокой интенсивности.
7.17.1. Органы управления (панели или пульты) светосигнальными средствами посадки и руления размещаются на рабочих местах диспетчеров в соответствующих пунктах УВД.
7.17.2. При регулировании яркости огней с панели оперативного управления диспетчера посадки должна обеспечиваться непрерывная работа огней без их погасания или мигания.
7.17.3. Аппаратура дистанционного управления защищается от несанкционированного вмешательства.
Системы ОМИ
7.17.4. Аппаратура дистанционного управления должна обеспечивать:
а) выбор направления посадки;
б) выбор режима работы светосигнального оборудования: "Посадка" - "Взлет";
в) раздельное или групповое управление и регулирование яркости системы огней приближения, огней ВПП, боковых огней РД в соответствии с таблицей 7.8, а также сигнализацию их состояния (включено, выключено);
г) аварийную световую и звуковую (отключаемую) сигнализацию.
Системы ОВИ-1, ОВИ-2, ОВИ-3
7.17.5. Аппаратура дистанционного управления обеспечивает:
а) набор светосигнальных средств посадки (руления) в группы и регулировку яркости огней в соответствии с таблицей 7.9;
б) световую сигнализацию о состоянии управляемых светосигнальных средств на устройствах отображения информации соответствующих диспетчеров;
в) общую световую и звуковую (отключаемую) аварийную сигнализацию у дежурного персонала и соответствующего диспетчера;
г) возможность управления светосигнальными средствами посадки и руления с рабочего места дежурного персонала после передачи управления от соответствующего диспетчера;
д) сохранение командной информации при пропадании напряжения на КДП, обрыве линий связи, выходе из строя оборудования на КДП, кратковременном исчезновении напряжения в ТП.
Требование подпункта "д" не распространяется на оборудование, управляемое с пульта диспетчера старта.
7.17.6. С панели управления диспетчера посадки аппаратура обеспечивает:
а) выбор направления посадки;
б) выбор режима работы светосигнального оборудования: "Посадка" - "Взлет";
в) групповое включение огней;
г) возможность индивидуального управления (независимо от операций, указанных в подпунктах "б" и "в") огнями зоны приземления и осевыми огнями ВПП;
д) управление импульсными огнями;
е) световую сигнализацию операций, указанных в подпунктах "а"-"д".
7.17.7. С панели управления диспетчера руления аппаратура должна обеспечивать:
а) включение всех стоп-огней одновременно;
б) выбор и включение маршрутов руления по аэродрому;
в) регулировку яркости рулежных огней и/или осевых огней РД;
г) включение всех рулежных огней и аэродромных знаков независимо от включения маршрутов руления.
7.17.8. С панели управления диспетчера старта аппаратура должна обеспечивать индивидуальное включение (выключение) осевых огней при выходе на ВПП с выключением (включением) соответствующих стоп-огней.
7.17.9. Требования пунктов 7.17.7, 7.17.8 касаются средств руления, необходимых для системы ОВИ-3. Состав аппаратуры для систем ОВИ-1 и ОВИ-2 определяется индивидуально для каждого конкретного аэродрома.
8.1.1. На аэродроме должны проводиться:
наблюдения за состоянием погоды;
доведение метеоинформации до органов УВД, экипажей ВС, служб аэродрома и ее регистрация.
8.1.2. Для метеорологического оборудования аэродрома и соответствующей контрольно-измерительной аппаратуры требуется своевременное прохождение метрологической поверки.
8.1.3. На каждый экземпляр метеооборудования оформляется эксплуатационная документация, в соответствии с которой производится его эксплуатация в пределах назначенного или продленного ресурса (срока службы).
8.2.1. На аэродроме должны производиться:
а) регулярные метеорологические наблюдения с выпуском сводок:
через 30 минут в период полетов;
через 1 час при отсутствии полетов;
б) специальные наблюдения с выпуском специальных сводок, при ухудшениях или улучшениях условий погоды на аэродроме;
в) наблюдения по запросу группы руководства полетов (далее - ГРП).
8.2.2. При обеспечении посадки ВС на ВПП точного захода на посадку II, III категорий наблюдения за дальностью видимости на ВПП, видимостью, высотой нижней границы облаков (вертикальной видимостью), параметрами ветра должны проводиться, а результаты передаваться на средства отображения (блоки индикации) автоматически не реже, чем через 1 мин.
8.2.3. На аэродроме должны проводиться измерения или наблюдения:
дальности видимости;
дальности видимости на ВПП;
направления и скорости ветра
количества, формы и высоты нижней границы облаков (далее - ВНГО), а также вертикальной видимости (далее - ВВ);
температуры и влажности воздуха;
атмосферного давления, а также за явлениями погоды.
8.3.1. Пределы погрешности измерения метеовеличин приведены в таблице 8.1.
Таблица 8.1
|
Метеовеличины |
Предел допускаемой погрешности измерения* |
Диапазон измерения |
|
1 |
2 |
3 |
|
1. Видимость |
±20% |
от 20 до 150 м |
|
|
±15% |
от 150 до 250 м |
|
|
±10% |
от 250 до 2000 м |
|
2. Высота нижней границы облаков (вертикальная видимость), Н |
±15 м |
от 15 до 30 м |
|
|
±20 м |
от 30 до 100 м |
|
|
± (0,1Н + 10) м |
от 100 до 1000 м |
|
3. Направление ветра |
±10 град |
от 0 до 360 град |
|
4. Осредненная скорость ветра |
±1 м/с |
от 1.5 до 10 м/с |
|
|
±10% |
от 10 до 40 м/с |
|
5. Максимальная скорость ветра (порывы) |
±2 м/с |
от 3 до 10 м/с |
|
|
±10% |
от 10 до 50 м/с |
|
6. Давление, приведенное к уровню порога ВПП |
±0,5 гПа |
от 600 до 1080 гПа |
|
7. Температура воздуха |
±1 град. С |
от -60 до +50 град С |
|
8. Относительная влажность воздуха |
±5% при температуре выше 0 град С |
от 30 до 100% |
|
|
±10% при температуре ниже 0 град С |
|
|
* Указанная в таблице точность относится только к инструментальным измерениям. |
||
8.4.1. Минимальный состав метеооборудования ВПП (направлений взлета и посадки) должен соответствовать таблице 8.2 и 8.3.
|
Метеооборудование |
ВПП (направления) точного захода на посадку I категории |
ВПП (направления) захода на посадку по приборам и необорудованные ВПП классов |
||
|
I, II |
III |
IV |
||
|
1 |
2 |
3 |
4 |
5 |
|
1. Измерители-регистраторы дальности видимости для одного и двух направлений взлета и посадки ВПП, комплект |
3 |
3*(1), *(2) |
2*(3) |
|
|
2. Щиты-ориентиры видимости, комплект: |
|
|
|
|
|
для одного направления взлета и посадки ВПП; |
|
|
1*(4) |
1*(4) |
|
для двух направлений взлета и посадки ВПП |
|
|
2*(4) |
1*(4) |
|
3. Измерители высоты нижней границы облаков (вертикальной видимости) для одного и двух направлений взлета и посадки ВПП, комплект |
1*(5) |
1*(5) |
1*(5) |
1*(5) |
|
4. Дистанционные измерители ВНГО (вертикальной видимости), комплект: |
|
|
|
|
|
для одного направления взлета и посадки ВПП; |
1 |
1 |
1 |
1 |
|
для двух направлений взлета и посадки ВПП |
2 |
2 |
2 |
2*(6) |
|
5. Измерители параметров ветра, комплект: |
|
|
|
|
|
для одного направления взлета и посадки ВПП; |
1*(7) |
1*(7) |
1*(7) |
1*(7) |
|
для двух направлений взлета и посадки ВПП |
2*(7) |
2*(7) |
2*(7) |
1*(7) |
|
6. Измерители атмосферного давления для одного и двух направлений взлета и посадки ВПП, шт. |
1 |
1 |
1 |
1 |
|
7. Измерители температуры и влажности воздуха для одного и двух направлений взлета и посадки ВПП, комплект |
1 |
1 |
1 |
1 |
|
8. Ветровой конус, комплект: |
|
|
|
|
|
для одного направления взлета и посадки ВПП; |
1*(8) |
1*(8) |
1*(8) |
1*(8) |
|
для двух направлений взлета и посадки ВПП |
2*(8) |
2*(8) |
2*(8) |
2*(8) |
______________________________
*(1) На ВПП класса II при фактической длине полосы 2000 м и менее допускается устанавливать 2 измерителя-регистратора дальности видимости.
*(2) Допускается установка щитов-ориентиров видимости по одному комплекту на каждое направление.
*(3) Измерители-регистраторы дальности видимости для ВПП класса III являются рекомендуемыми.
*(4) На ВПП классов III и IV где имеются измерители-регистраторы дальности видимости, щиты-ориентиры видимости могут не устанавливаться (распространяется на направления, оборудованные для захода на посадку по приборам).
*(5) Рекомендуемое оборудование для ВПП (направления) захода на посадку по приборам.
*(6) На ВПП класса IV допускается устанавливать один дистанционный измеритель для любого направления, оборудованного для захода на посадку по приборам.
*(7) На аэродромах, где местные условия приводят к значительным изменениям параметров ветра на различных участках ВПП, должны устанавливаться дополнительные датчики.
*(8) Рекомендуемое оборудование.
|
Метеооборудование |
Количество направлений взлета и посадки ВПП точного захода на посадку II и III категорий |
|
|
одно |
два |
|
|
1 |
2 |
3 |
|
1. Специализированные ЭВМ, обеспечивающие автоматические вычисления и выдачу на средства отображения и регистрации видимости, дальности видимости на ВПП, ВНГО (вертикальной видимости), параметров ветра, атмосферного давления, температуры и влажности воздуха, комплект. |
2 |
2 |
|
2. Первичные измерительные преобразователи дальности-видимости, комплект |
3 |
3 |
|
3. Первичные измерительные преобразователи ВНГО (вертикальной видимости), комплект |
1 |
2 |
|
4. Измерители ВНГО (вертикальной видимости), комплект |
1* |
1* |
|
5. Первичные измерительные преобразователи параметров ветра, комплект |
1 |
2 |
|
6. Первичные измерительные преобразователи атмосферного давления, шт. |
1 |
1 |
|
7. Первичные измерительные преобразователи температуры и влажности воздуха, комплект |
1 |
1 |
|
8. Средства регистрации выдаваемой метеоинформации, шт. |
1** |
1** |
______________________________
* Рекомендуемое оборудование.
** Если в составе метеооборудования имеются персональные компьютеры, они могут использоваться в качестве средств регистрации выдаваемой метеоинформации.
У середины ВПП на направлениях взлета и посадки при длине ВПП 2000 м и менее измерители-регистраторы видимости не устанавливаются;
При определении расположения измерителей на конкретной ВПП следует учитывать местные особенности, связанные с возможными локальными ухудшениями видимости и ее длиной.
Пульты управления (указатели) и регистраторы устанавливаются в рабочем помещении метеонаблюдателей.
8.5.2. Щиты-ориентиры видимости должны устанавливаться вдоль ВПП на участке от СДП (или специально определенного для наблюдений места при его отсутствии) к середине ВПП на расстояниях 400, 800, 1000, 1500 и 2000 м и на других расстояниях, соответствующих минимумам взлета и посадки ВС, указанным в инструкции по производству полетов, но не более 2000 м.
8.5.3. Размеры щитов-ориентиров должны быть не менее:
1,5 х 1,5 м для щитов, устанавливаемых на расстоянии до 800 м включительно;
2,5 х 2,0 м для щитов, устанавливаемых на расстоянии от 800 до 1500 м включительно;
3,0 х 2,0 м для щитов, устанавливаемых на расстоянии от 1500 м и более.
8.5.4. Щиты-ориентиры видимости должны быть окрашены:
в черный и белый цвета (в виде четырех, расположенных в шахматном порядке клеток), если они с места наблюдения проецируются на возвышенность, горы, лес и другие объекты;
в черный цвет, если они с места наблюдения проецируются на фоне неба.
8.5.5. Для определения дальности видимости огней в темное время суток на щитах-ориентирах должны устанавливаться одиночные источники света (электролампочки мощностью 60 Вт) с посекционным или раздельным включением (выключением) с места наблюдения.
8.5.6. Измерители высоты нижней границы облаков (вертикальной видимости) следует устанавливать:
первичные измерительные преобразователи ВНГО (ВВ) - в местах, репрезентативных для аэродрома в целом;
пульты управления - в рабочих помещениях метеонаблюдателей.
первичные измерительные преобразователи ВНГО - у БПРМ или в зоне захода на посадку на расстоянии 850-1200 м от порога ВПП;
указатели ВНГО (ВВ) - в рабочих помещениях метеонаблюдателей.
8.5.8. Измерители параметров ветра должны устанавливаться:
первичные измерители-преобразователи параметров ветра - по возможности ближе к зонам приземления и отрыва ВС, на расстоянии не более 200 м от осевой линии ВПП на мачтах или столбах на высоте 6-10 м относительно ближайшей точки осевой линии ВПП;
указатели (пульты) параметров ветра - в рабочих помещениях метеонаблюдателей и диспетчера старта. При наличии блоков индикации метеовеличин указатели параметров ветра у диспетчера старта не устанавливаются.
Ветровые конусы должны располагаться у ВПП таким образом, чтобы они были видны с ВС, находящегося в полете, или на рабочей площади аэродрома, так, чтобы на них не оказывали воздействие возмущения воздуха, создаваемые близко расположенными объектами.
8.5.9. Измерители атмосферного давления должны устанавливаться в рабочих помещениях метеонаблюдателей. Допускается их установка вне этих помещений. В этом случае должна быть обеспечена передача информации о давлении в рабочее помещение метеонаблюдателей.
8.5.10. Измерители температуры и влажности воздуха должны устанавливаться на метеоплощадке. Допускается установка датчиков измерителей температуры и влажности воздуха вне метеоплощадок. В этом случае должна быть обеспечена передача информации о температуре и влажности воздуха в рабочее помещение метеонаблюдателей.
8.5.11. Автоматизированные метеорологические измерительные системы должны устанавливаться:
специализированные ЭВМ - в рабочих помещениях метеонаблюдателей;
первичные измерители-преобразователи - в соответствии с пунктами 8.5.1, 8.5.7, 8.5.8, 8.5.9 и 8.5.10;
средства регистрации передаваемой органам УВД метеоинформации - в рабочих помещениях метеонаблюдателей.
8.6.1. Для направлений ВПП точного захода на посадку I, II, и III категорий на ВПП захода на посадку по приборам и необорудованных классов I и II метеоинформация, указанная в пункте 8.6.2 Норм, должна передаваться на средства отображения, которые устанавливаются на КДП (рабочее место старшего РП), в рабочих помещениях синоптиков и метеонаблюдателей (контрольный) и диспетчера АДП.
Для ВПП захода на посадку по приборам и необорудованных классов III и IV средства отображения являются рекомендуемыми. При их отсутствии передача метеоинформации осуществляется по громкоговорящей и телефонной связи.
дальность видимости на ВПП (2-3 значения при инструментальных наблюдениях и одно значение при визуальных наблюдениях):
видимость (минимальное значение);
высота нижней границы облаков (вертикальная видимость);
количество облаков (общее и нижнего яруса);
направление ветра, исправленное на магнитное склонение;
средняя скорость ветра;
максимальная скорость ветра (порывы);
давление, приведенное к уровню порога ВПП;
наличие на аэродроме или в районе аэродрома опасных для авиации метеорологических явлений;
температура воздуха;
относительная влажность воздуха или температура точки росы;
время окончания обработки измерений (наблюдений).
8.6.3. Вся передаваемая на средства отображения метеоинформация должна фиксироваться на технических средствах регистрации.
Метеоинформация, передаваемая по радиоканалу метеовещания, по громкоговорящей и телефонной связи должна документироваться магнитофонной звукозаписью.
Данные метеорологических наблюдений с борта ВС должны регистрироваться в специальном журнале.
8.6.4. Для линии связи, предназначенной для передачи сигналов от первичных измерительных преобразователей метеовеличин до указателей (регистраторов), а также для передачи метеоинформации на средства отображения (блоки индикации), требования изложены в эксплуатационной документации на тип метеооборудования.
9.1.1. Для управления полетами на аэродроме оборудуются:
командно-диспетчерский пункт (КДП);
стартовый командный пункт (СКП);
вспомогательный командный пункт (ВСКП).
9.1.2. КДП размещается, как правило, на траверзе центра ВПП, с таким расчетом, чтобы обеспечить управление полетами ВС в зоне визуального контроля.
9.1.3. СКП размещается, как правило, в районе исполнительного старта (зоны приземления) на боковом удалении от оси ВПП - 120-180 м и от торца ВПП - 200-450 м. Возможна совместная установка СКП с ГРМ.
9.1.4. ВСКП размещается с обратного направления ВПП, как правило, в районе исполнительного старта (зоны приземления) обратного курса посадки на боковом удалении от оси ВПП 120-180 м и от торца ВПП - 200-450 м*(12). Возможна совместная установка ВСКП с ГРМ.
9.1.5. На аэродромах совместного базирования для обеспечения полетов ВС в районе аэродрома, их посадки и движения по летному полю на КДП (СКП), как правило, в общих залах УВД организуются диспетчерские пункты службы движения гражданской авиации:
Круга (ДПК)
Посадки (ПДП)
Старта (СДП)
Руления (ДПР)
Количество диспетчерских пунктов создается в зависимости от интенсивности воздушного движения и оборудуются они силами и средствами гражданской авиации, в соответствии с нормами годности эксплуатации гражданских аэродромов.
9.2.1. На КДП оборудуются рабочие места старшего руководителя полетов, РП в зоне посадки, РП в ближней и РП в дальней зонах.
9.2.2. На СКП (ВСКП) оборудуются рабочие места руководителей полетов в зоне визуального контроля.
9.2.3. Рабочие места лиц ГРП, а также диспетчерских пунктов службы движения гражданской авиации (на аэродромах совместного базирования), оснащаются типовым оборудованием.
9.2.4. Средства электросвязи
9.2.4.1. На аэродроме для обеспечения УВД организовываются следующие функциональные сети электросвязи:
а) воздушная электросвязь для обеспечения радиосвязи между лицами группы руководства полетами и ВС.
б) наземная электросвязь:
проводная связь для оперативного взаимодействия между лицами группы руководства полетами и службами авиапредприятия;
воздушная электросвязь (внутриаэродромная радиосвязь) для взаимодействия между лицами группы руководства полетами и подвижными объектами (спецавтотранспорт).
Средства воздушной электросвязи
9.2.4.2. Средства воздушной радиосвязи должны обеспечивать устойчивую связь с экипажами воздушных судов на дальностях, определенных эксплуатационной документацией радиостанций с оценкой качества связи не ниже "удовлетворительно".
9.2.4.3 На КДП, СКП, ВСКП предусматривается установка 1-2 УКВ радиостанций со средствами звукозаписи, запитываемых от химических источников электропитания. Включение этих радиостанций и средств звукозаписи должно осуществляться автоматически при отказе электропитания КДП, СКП, ВСКП и принудительно с соответствующих рабочих мест лиц ГРП.
9.2.4.4. Каждый канал воздушной электросвязи должен иметь основной и резервный комплекты приемного и передающего устройства (либо приемопередающего устройства) с антенно-фидерной системой. Канал метеовещания должен иметь основной и резервный комплекты передающего устройства с антенно-фидерной системой.
9.2.4.5. Приемно-передающее оборудование должно работать на частоте несущей, присвоенной из диапазона частот 118-137 МГц. При этом шаг сетки частот несущих должен быть 8,33 кГц или 25 кГц. Отклонение рабочей частоты от присвоенной не должно превышать ±0,0001% для сетки частот 8,33 кГц и ±0,002% для сетки частот 25 кГц.
9.2.4.6. Выходная мощность передатчика, нагруженного на антенно-фидерное устройство с волновым сопротивлением 50 Ом, должна быть не менее 5 Вт.
9.2.4.7. Коэффициент бегущей волны АФУ передающих и приемных средств должен быть не менее 0,5.
9.2.4.8. Диапазон частот передаваемых речевых сообщений должен составлять 300-2700 Гц для сетки частот с шагом 25 кГц и 300-2500 Гц для сетки частот с шагом 8,33 кГц.
9.2.4.9. Глубина амплитудной модуляции несущей речевым сигналом должна быть не менее 85% (радиоизлучение класса А3Е).
9.2.4.10. Чувствительность приемника при отношении сигнал/шум на его выходе, равном 5 дБВ, должна быть не хуже 3 мкВ.
9.2.4.11. Уровень НЧ сигнала на нагрузке приемника в 600 Ом должен быть 0,25-1,5 В.
Средства проводной связи
9.2.4.12. Средства проводной связи должны обеспечивать воспроизведение звуковых частот с оценкой качества связи не ниже "удовлетворительно".
9.2.4.13. Аппаратура проводной связи должна обеспечивать связь по каналам в дуплексном и (или) симплексном режимах.
Средства внутриаэродромной радиосвязи
9.2.4.14. Средства внутриаэродромной радиосвязи должны обеспечивать беспоисковую, бесподстроечную связь лиц ГРП с подвижными объектами, с оценкой качества связи не ниже "удовлетворительно".
9.2.4.15. Разнос частот между соседними каналами - не менее 25 кГц.
9.2.4.16. Радиостанция должна обеспечивать непрерывную круглосуточную работу в режиме дежурного приема, а также в режиме приема и передачи при ведении радиообмена.
9.2.5. Средства объективного контроля
9.2.5.1. Документирование информации, получаемой лицами ГРП по каналам воздушной и наземной связи, а также переговоров между ними на КДП, СКП, ВСКП в реальном масштабе времени на протяжении всего периода обеспечения полетов должно производиться средствами звукозаписи.
9.2.5.2. Средства звукозаписи должны обеспечивать регистрацию на звуконосителе сигналов текущего времени с точностью не хуже 30 секунд в сутки.
9.2.5.3. Средства звукозаписи должны устанавливаться в отдельном помещении, исключающем доступ посторонних лиц.
9.2.5.4. Звукозапись и воспроизведение переговоров должны производиться без посторонних помех с оценкой не ниже "удовлетворительно".
9.2.5.5. Документирование радиолокационной информации РСП должно производиться путем фотографирования индикаторов рабочих мест РБЗ, РЗП или другим способом, обеспечивающим запись и воспроизведение информации в реальном масштабе времени.
10.1.1. Электроснабжение аэродромов классов I и II должно осуществляться не менее чем от двух независимых взаимно резервирующих источников питания электроэнергией.
Электроснабжение аэродромов III и IV класса допускается осуществлять от одного источника централизованного электроснабжения или местной электростанции.
10.1.2. Пропускная способность каждой линии электропередачи от взаимно резервирующих источников питания электроэнергией должна, как минимум, обеспечивать в после аварийном режиме, с учетом допустимой перегрузки, электрическую нагрузку объектов аэродрома первой и особой группы первой категории.
10.1.3. Электроснабжение ССО, объектов УВД, радионавигации, посадки и связи должно осуществляться от щитов гарантированного питания электроэнергией.
10.1.4. К щитам гарантированного питания должно подключаться только технологическое и вспомогательное оборудование (рабочее и аварийное освещение, технологические обогрев, вентиляция, кондиционирование, пожарно-охранная сигнализация, система пожаротушения).
10.1.5. Категории надежности электроснабжения устройств дистанционного управления, контроля и отображения информации должны быть не ниже категорий электроснабжения соответствующих объектов УВД, радиооборудования, светосигнального и метеорологического оборудования.
10.1.6. Не менее двух источников питания потребителей особой группы первой категории постоянно находятся под напряжением в соответствии с одним из следующих вариантов электроснабжения:
1) от двух внешних независимых источников (по двум кабельным линиям через два трансформатора) и автономного источника:
дизель-электрического агрегата, резервирующего каждый из внешних независимых источников;
статического или маховикового агрегата бесперебойного питания;
аккумуляторных батарей;
источников бесперебойного питания.
2) от одного внешнего источника, одного дизель-электрического агрегата и одного из автономных источников:
дизель-электрического агрегата, резервирующего каждый из внешних независимых источников;
статического или маховикового агрегата бесперебойного питания;
аккумуляторных батарей;
источников бесперебойного питания.
10.1.7. При одном внешнем источнике и двух автономных дизель-электрических агрегатах в качестве основного должен использоваться любой из дизелей с автоматическим резервированием его внешним источником со временем перехода на него за время не более 1 секунды, с последующим переходом с внешнего источника на резервный автономный дизель-электрический агрегат со временем перехода не более 15 секунд.
10.1.8. Электропитание основных и резервных комплектов оборудования объекта должно предусматриваться от разных секций шин низковольтного распределительного устройства.
10.1.9. Потребители электроэнергии первой категории обеспечиваются электроэнергией не менее, чем от двух независимых взаимно резервирующих источников электроэнергии (с автоматической коммутацией), один из которых должен быть автономным.
На аэродромах III и IV классов допускается не устанавливать автономные источники электропитания при наличии на объекте двух вводов электроэнергии от внешних независимых источников.
10.1.10. Электроприемники второй категории рекомендуется обеспечивать электроэнергией от двух независимых взаимно резервирующих источников питания, и перерыв их электроснабжения при нарушении электроснабжения от одного из источников питания допускается на время, необходимое для включения резервного питания действиями дежурного персонала или выездной оперативной бригады.
10.1.11. Категории потребителей электроэнергии по степени надежности электроснабжения и максимально допустимое время перерывов в их электропитании должны соответствовать приведенным в таблице 10.1.
Требования по степени надежности электроснабжения относятся к щиту гарантированного питания объекта.
10.2.1. Дизель-электрические агрегаты должны быть автоматизированы. Степень автоматизации должна быть не ниже второй для потребителей I категории и ОГ I категории.
10.2.2. Мощность каждого агрегата должна обеспечивать максимальную нагрузку всех подключенных к данному объекту электроприемников особой группы первой категории и первой категории, а также потребителей электроэнергии, обеспечивающих их работу и обслуживание.
10.2.3. Аккумуляторные батареи или источники бесперебойного питания, используемые в качестве резервных источников питания, должны обеспечивать работу потребителей, отнесенных по степени надежности к ОГ I категории, в течение не менее 15 мин.
Таблица 10.1
Категории потребителей электроэнергии по степени надежности электроснабжения и максимально допустимое время перерывов в их электропитании
|
№ п/п |
Наименование потребителя электроэнергии |
ВПП захода на посадку по приборам |
ВПП точного захода на посадку I категории |
ВПП точного захода на посадку II, III категории |
|||
|
Категория потребителя электроэнергии |
Максимально допустимое время перерыва в электропитании, с |
Категория потребителя электроэнергии |
Максимально допустимое время перерыва в электропитании, с |
Категория потребителя электроэнергии |
Максимально допустимое время перерыва в электропитании, с |
||
|
1 |
2 |
3 |
4 |
5 |
6 |
7 |
8 |
|
1 |
Светосигнальное оборудование: |
|
|
|
|
|
|
|
|
а) огни приближения |
II (I) |
*(1) (60) |
ОГ |
15 (1) |
ОГ |
1 |
|
|
б) огни ВПП: |
|
|
|
|
|
|
|
|
входные |
II (I) |
*(1) (60) |
ОГ |
15 (1) |
ОГ |
1 |
|
|
боковые ограничительные |
II (I) |
*(1) (60) |
ОГ |
15 (1) |
ОГ |
1 |
|
|
осевые |
- |
- |
ОГ |
15 (1) |
ОГ |
1 |
|
|
зоны приземления |
- |
- |
- |
|
ОГ |
1 |
|
|
в) огни РД и аэродромные знаки |
II (I) |
*(1) (60) |
I |
15 |
I |
15 |
|
|
г) стоп-огни |
- |
- |
- |
- |
ОГ |
1 |
|
2 |
Кодовый маяк аэродромной прожекторной станции |
II (I) |
*(1) (60) |
1 |
15 |
1 |
15 |
|
3 |
Оборудование системы посадки ОСП (БПРМ, ДПРМ) |
II (I) |
*(1) (60) |
I |
60 |
I |
60 |
|
4 |
Радиомаячная система посадки: |
|
|
|
|
|
|
|
|
КРМ |
II (I) |
*(1) (60) |
ОГ |
15 (1) |
ОГ |
0 |
|
|
ГРМ |
II (I) |
*(1) (60) |
ОГ |
15 (1) |
ОГ |
0 |
|
|
БМРМ |
II (I) |
*(1) (60) |
I |
60 |
I |
1 |
|
|
ДМРМ |
II (I) |
*(1) (60) |
I |
60 |
I |
10 |
|
5 |
Диспетчерские пункты УВД (кроме СДП) |
|
|
|
|
|
|
|
|
средства авиационной воздушной связи |
I |
*(1) (1) |
I (ОГ) |
15 (1) |
I (ОГ) |
15 (1) |
|
|
диспетчерские пульты и средства авиационной наземной связи |
I |
*(1) (60) |
I (ОГ) |
15 |
I (ОГ) |
15 (1) |
|
6 |
Диспетчерский пункт СДП |
|
|
|
|
|
|
|
|
средства авиационной воздушной связи |
II (I) |
*(1) (1) |
I |
15 (1) |
I |
15 (1) |
|
|
диспетчерские пульты |
II (I) |
*(1) (60) |
I |
60 |
I |
15 |
|
7 |
Метеорологическое оборудование аэродромов (регистраторы дальности видимости, измерители высоты облаков и др.) |
II (I) |
*(1) (60) |
I |
60 |
I |
60 |
|
8 |
Средства радиолокационного контроля и радионавигации: |
|
|
|
|
|
|
|
|
ОРЛ-А |
II |
*(1) |
I |
60 |
I |
60 |
|
|
ПРЛ |
II |
*(1) |
I |
60 |
I |
60 |
|
|
радиолокационная станция обзора летного поля (РЛС ОЛП) |
- |
- |
- |
- |
I |
15*(3) |
|
|
АРП |
II (I) |
*(1) (60) |
I |
60 |
I |
60 |
|
|
МРЛ |
II |
*(1) |
II |
*(1) |
II |
*(1) |
|
|
ОПРС |
II |
*(1) |
I |
60 |
I |
60 |
|
|
РСБН |
II |
*(1) |
I |
*(1) |
I |
*(1) |
|
|
ВОР |
I |
60 |
I |
60 |
I |
60 |
|
|
ДМЕ |
I |
60 |
I |
60 |
I |
60 |
|
9 |
Радиоцентры: |
|
|
|
|
|
|
|
|
ПРЦ |
II ( I ) |
*(1) (60) |
I |
60 |
I |
60 |
|
|
ПМРЦ |
II ( I ) |
*(1) (60) |
I |
60 |
I |
60 |
|
10 |
Заградительные огни на аэродроме*(4) |
II ( I ) |
*(1) (60) |
I |
60 |
I |
60 |
|
*(1) Время перехода на резервный источник электропитания устанавливается в инструкции по резервированию при наличии на этих объектах постоянного обслуживающего персонала. |
|||||||
|
*(2) Допускается электропитание по одной кабельной линии от ЩГП ближайшего объекта 1-й категории. |
|||||||
|
*(3) При установке РЛС ОЛП на аэродроме, имеющем ВПП точного захода на посадку III категории, время перерыва в электропитании должно быть не более 1 секунды. |
|||||||
|
*(4) Категория надежности заградительных огней вне территории аэродрома определяется категорией объекта на котором они расположены. |
|||||||
Значения, указанные в скобках, соответствуют объектам после проведенных мероприятий по реконструкции системы электроснабжения.
11.1.1. Аэродром должен быть обеспечен поисково-спасательным вертолетом (вертолетами), осуществляющим радиотехнический и визуальный поиск потерпевших бедствие, доставку и десантирование СПДГ (в том числе, с помощью парашютов, спусковых устройств, лебедки) аварийно-спасательного имущества и снаряжения, подъем с помощью лебедки, вывод НПСГ к месту бедствия, а также имеющим возможность посадки на необозначенную площадку.
Поисково-спасательное обеспечение аэродрома допускается осуществлять с использованием вертолета (вертолетов), базирующегося на другом аэродроме (аэродромах), в том числе, находящемся в ведении другого федерального органа исполнительной власти.
11.1.2. На аэродроме должно быть наземное транспортное средство (средства) высокой проходимости, выбираемое с учетом географических и климатических условий местности района аэродрома, для проведения поисково-спасательных работ, обеспечивающее доставку НПСГ, аварийно-спасательного имущества и снаряжения и оборудованное средствами воздушной электросвязи с КДП и поисково-спасательными ВС.
11.1.3. Аэродром обеспечивается комплектом аварийно-спасательного имущества и снаряжения, в составе, определенном в соответствии с Федеральными авиационными правилами поиска и спасания в Российской Федерации*(13). Данное имущество и снаряжение при вылете (выходе) на поисково-спасательные работы должно находиться на поисково-спасательном ВС и наземном транспортном средстве (средствах).
Должно быть предусмотрено транспортное средство (средства) для доставки аварийно-спасательного имущества и снаряжения, хранящегося отдельно, к поисково-спасательному ВС.
11.1.4. На аэродроме должен быть ультракоротковолновый радиопеленгатор для приема радиосигналов на аварийных частотах, в том числе 121,5 МГц и 243,0 МГц.
11.1.5. Аэродром, где взлет и посадка ВС производится над морем или крупным водоемом, должен быть обеспечен плавучим транспортным средством, обеспечивающим проведение поисково-спасательных работ на воде в дневное и ночное время суток, оснащенным набором индивидуальных и/или групповых плавсредств и средствами для воздушной электросвязи с КДП и передвижным командным пунктом.
Поисково-спасательное обеспечение допускается осуществлять с использованием плавсредств, находящихся в хозяйственном ведении других юридических лиц на основе договорных отношений.
11.1.6. На аэродроме должно быть помещение для дежурного экипажа поисково-спасательного ВС, оборудованное в соответствии с требованиями, определенными в соответствии с Федеральными авиационными правилами поиска и спасания в Российской Федерации*(13). При необходимости должно быть предусмотрено транспортное средство (автомобиль) для своевременной доставки дежурного экипажа к поисково-спасательному ВС.
11.1.7. На аэродроме должна быть предусмотрена стоянка для поисково-спасательного ВС, обеспечивающая, по своему расположению и оснащению, возможность вылета на поисково-спасательные работы в нормативное время (не более 30 мин. летом и не более 45 мин. зимой).
Стоянка должна быть оборудована радиотелефонной связью с КДП и электропитанием для запуска двигателей ВС.
11.2.1. На аэродроме определяется и указывается в плане тушения пожара на ВС категория каждой ВПП по уровню требуемой пожарной защиты (далее - УТПЗ) воздушных судов, выполняющих полеты на аэродроме в зависимости от габаритных размеров фюзеляжа ВС в соответствии с таблицей 10.1.
Нумерация таблиц приводится в соответствии с источником
Таблица 10.1.
|
Длина фюзеляжа наибольшего ВС, м |
Категория ВПП по УТПЗ |
Максимальная ширина фюзеляжа наибольшего ВС, м |
|
1 |
2 |
3 |
|
От 0 до 9, но не включая 9 |
1 |
2 |
|
От 9 до 12, но не включая 12 |
2 |
2 |
|
От 12 до 18, но не включая 18 |
3 |
3 |
|
От 18 до 24, но не включая 24 |
4 |
4 |
|
От 24 до 28, но не включая 28 |
5 |
4 |
|
От 28 до 39, но не включая 39 |
6 |
5 |
|
От 39 до 49, но не включая 49 |
7 |
5 |
|
От 49 до 61, но не включая 61 |
8 |
7 |
|
От 61 до 76, но не включая 76 |
9 |
7 |
|
От 76 до 90, но не включая 90 |
10 |
8 |
Категория ВПП определяется по длине фюзеляжа наибольшего ВС, при этом, если максимальная ширина фюзеляжа наибольшего ВС превышает значение, указанное в столбце 3 таблицы 10.1, категория, определенная по длине фюзеляжа, должна быть повышена на единицу (за исключением десятой).
11.2.2. Для обеспечения установленного ВС, на аэродроме должны быть аэродромные пожарные автомобили (далее - ПА), допущенные для тушения пожаров на ВС, укомплектованные съемным пожарно-техническим и аварийно-спасательным оборудованием согласно ведомости комплектации, установленной предприятием-изготовителем ПА, оснащенные средствами радиосвязи с КДП и пожарным депо.
Количество аэродромных ПА, находящихся на дежурстве, огнетушащих веществ (далее - ОТВ) и суммарная производительность лафетных стволов, имеющихся на этих ПА, должно быть не менее, приведенных в таблице 10.2. пункта.
Таблица 10.2
|
Категория ВПП по УТПЗ |
Количество ПА |
Количество водопенных ОТВ (вода и пенообразователь), кг (л) |
Количество газовых ОТВ, кг |
Суммарная производительность подачи водопенных ОТВ, кг/с (л/с) |
|
1 |
2 |
3 |
4 |
5 |
|
1 |
1 |
1100 |
30 |
6 |
|
2 |
1 |
2100 |
30 |
14 |
|
3 |
1 |
2800 |
30 |
20 |
|
4 |
2 |
8000 |
50 |
60 |
|
5 |
2 |
10400 |
70 |
80 |
|
6 |
3 |
13100 |
90 |
100 |
|
7 |
3 |
15800 |
120 |
130 |
|
8 |
3 |
23200 |
150 |
180 |
|
9 |
4 |
28000 |
200 |
220 |
|
10 |
4 |
34000 |
250 |
270 |
11.2.3. Поисково-спасательное обеспечение допускается осуществлять с использованием пожарных автомобилей, находящихся в хозяйственном ведении других юридических лиц на основе договорных отношений.
11.2.4. Время развертывания пожарных автомобилей, обеспечивающих установленный УТПЗ, в любой точке ВПП не должен превышать 3-х мин. (первого ПА) и 4-х мин. (других ПА), от момента начала подачи пены из лафетного ствола.
11.2.5. На аэродроме должен быть не менее чем двукратный запас пенообразователя по отношению к количеству, находящемуся на аэродромных ПА, обеспечивающих установленный уровень требуемой пожарной защиты ПС и не менее 2-х пунктов для заправки ПА водой.
11.2.6. На аэродроме должно быть пожарное депо, обеспечивающее размещение и требуемые условия дежурства аэродромных ПА и пожарно-спасательных расчетов.
Пожарное депо должно быть оборудовано средствами сигнализации тревоги (звуковыми и световыми), оповещения и связи с КДП и подразделением ГО и ЧС организации-эксплуатанта аэродрома.
11.2.7. На аэродроме, при необходимости, в целях обеспечения требуемого времени развертывания ПА должны быть предусмотрены временный или постоянный пожарный пост (посты) для дежурства ПА и пожарно-спасательных расчетов при полетах ВС.
11.2.8. На аэродроме должен быть санитарный автомобиль, оснащенный требуемым медицинским оборудованием, инструментом, медикаментами и материалами, а также средствами радиосвязи с КДП.
11.2.9. Аэродром должен быть обеспечен транспортными средствами для оперативной доставки пострадавших с места происшествия в лечебные учреждения.
Поисково-спасательное обеспечение допускается осуществлять с использованием вышеуказанных транспортных средств, находящихся в собственности или хозяйственном ведении других юридических лиц на основе договорных отношений.
11.2.10. Для эвакуации аварийных ВС, потерявших возможность двигаться, на аэродроме должны быть:
средства подъема и страховки: домкраты и подъемники гидравлические (штатные), подставки (ложементы), аварийные пневматические подъемники, компрессор низкого давления;
средства буксировки (транспортировки): тягачи аэродромные, трактор, бульдозеры прицепы (трайлеры) тросы буксировочные транспортные водила (штатные);
вспомогательное оборудование и материалы, комплект колес по типу эксплуатируемой на аэродроме техники, инструмент для демонтажа и монтажа колес, заглушки входных и выходных устройств двигателя, упорные колодки, шланги для слива топлива, лопаты, ломы, кувалды, топоры, метлы, шпалы, щиты из досок и фанеры, плиты металлические, огнетушители, кирпич стандартный, щебенка и т.п.
11.3.1. На аэродроме должен быть стационарный командный пункт (СКП) для обеспечения руководства и координации аварийно-спасательных работ, оснащенный средствами для объявления тревоги и оповещения:
экипажа поисково-спасательного ВС;
наземной поисково-спасательной группы;
спасательной парашютно-десантной группы;
пожарно-спасательных расчетов, и для связи с:
передвижным командным пунктом;
командно-диспетчерским пунктом аэродрома;
подразделением ГО и ЧС авиационной организации-эксплуатанта аэродрома;
службами и подразделениями авиационной организации-эксплуатанта аэродрома;
пунктом оперативной связи управления по делам гражданской обороны и чрезвычайных ситуаций (ГО и ЧС);
взаимодействующими организациями и предприятиями;
административными и правоохранительными органами.
Допускается совмещение СКП с командно-диспетчерским пунктом аэродрома.
11.3.2. На аэродроме должен быть передвижной командный пункт (ПКП) для руководства аварийно-спасательными работами на месте происшествия, выполненный на транспортном средстве повышенной проходимости и оснащенный громкоговорящей установкой или мегафоном, биноклем и средствами воздушной связи с:
стационарным командным пунктом (или/и КДП);
подразделением ГО и ЧС авиационной организации - эксплуатанта аэродрома;
аэродромными пожарными автомобилями (руководителем тушения пожара);
транспортным средством для поисково-спасательных работ;
плавучими транспортными средствами (при их наличии).
______________________________
*(1) Федеральный закон от 19 марта 1997 г. № 60-ФЗ (Собрание законодательства Российской Федерации, 1997, № 12, ст. 1383; 2004, № 35, ст. 3607; № 45, ст. 4377; 2005, № 13, ст. 1078; 2006, № 30, ст. 3290; 2007, № 1 (ч. 1), ст. 29, № 50, ст. 6245; 2008, № 29 (ч. 1), ст. 3418, № 30 (ч. 2), ст. 3616; 2009, № 1, ст. 17, № 29, ст. 3616).
*(2) Аэродром - участок земли или акватория с расположенными на нем зданиями, сооружениями и оборудованием, предназначенный для взлета, посадки, руления и стоянки воздушных судов (статья 40 Воздушного кодекса Российской Федерации).
*(3) Международная организация гражданской авиации - специализированное учреждение Организации Объединенных Наций, созданное и выполняющее задачи в соответствии с Конвенцией о международной гражданской авиации (Чикаго, 7 декабря 1944, Doc 7300; 2000, Doc 7300/3).
*(4) Экспериментальная авиация - авиация, используемая для проведения опытно-конструкторских, экспериментальных, научно-испытательных работ, а также испытаний авиационной и другой техники (статья 23 Воздушного кодекса Российской Федерации).
*(5) Часть 2 статьи 49 Воздушного кодекса Российской Федерации.
*(6) В настоящих Нормах основные понятия применяются в соответствии с приложением 14 (4-е издание, июль 2004, включающее поправки 1-6 (2004), поправку 7 (2005), поправки 8-9 (2006)), статьи 37 Конвенции о международной гражданской авиации (ИКАО; Чикаго, 7 декабря 1944, Doc 7300; 2000, Doc 7300/3).
*(7) Система ILS - система посадки по приборам в соответствии с положениями пункта 2.1, главы 2, тома 1, приложения 10 (5-е издание, июль 1996, включающее поправки 1-71 (1996), поправки 73-74 (2000), поправку 76 (2001), поправку 77 (2002), поправку 79 (2004), поправку 80 (2005), поправку 81 (2006)), статьи 37 Конвенции о международной гражданской авиации (ИКАО; Чикаго, 7 декабря 1944, Doc 7300; 2000, Doc 7300/3).
*(8) Система MLS - микроволновая система посадки в соответствии с положениями пункта 2.1, главы 2, тома 1, приложения 10 (5-е издание, июль 1996, включающее поправки 1-71 (1996), поправки 73-74 (2000), поправку 76 (2001), поправку 77 (2002), поправку 79 (2004), поправку 80 (2005), поправку 81 (2006)), статьи 37 Конвенции о международной гражданской авиации (ИКАО; Чикаго, 7 декабря 1944, Doc 7300; 2000, Doc 7300/3).
*(9) Требования по авиационной безопасности содержатся в Главе XII Воздушного кодекса Российской Федерации и Федеральных авиационных правилах "Требования авиационной безопасности к аэропортам", утвержденных приказом Минтранса России от 28 декабря 2005 г. № 142, зарегистрирован в Минюсте России 28 декабря 2005 г., регистрационный номер 7321 (в редакции приказа Минтранса России от 31 января 2008 г. № 20 - зарегистрирован в Минюсте России 21 февраля 2008 г., регистрационный № 11207).
*(10) Определение классификационного числа воздушного судна осуществляется в соответствии с частью 3 (DOC 9157-AN/901, 1983) Конвенции о международной гражданской авиации (ИКАО; Чикаго, 7 декабря 1944, Doc 7300; 2000, Doc 7300/3).
*(11) Нанесение маркировки осуществляется в соответствии с положениями главы 6, приложения 14 (4-е издание, июль 2004, включающее поправки 1-6 (2004), поправку 7 (2005), поправки 8-9 (2006)), статьи 37 Конвенции о международной гражданской авиации (ИКАО; Чикаго, 7 декабря 1944, Doc 7300; 2000, Doc 7300/3).
*(12) Если взлет и посадка с одной ВПП осуществляются с противоположными курсами, то в этих случаях СКП располагается в районе зоны приземления, а ВСКП - в районе исполнительного старта.
*(13) Постановление Правительства Российской Федерации от 15 июля 2008 г. № 530 (Собрание законодательства Российской Федерации, 2008, № 29 (ч. 2), ст. 3525).
к
Нормам годности к эксплуатации
аэродромов экспериментальной авиации
Настоящие Методики оценки соответствия (далее - Методики) являются приложением к Нормам годности к эксплуатации аэродромов экспериментальной авиации и предназначены для оценки соответствия характеристик и параметров аэродромов требованиям Норм.
Методики содержат перечень технологических операций, необходимых для оценки соответствия характеристик и параметров комплекса аэродрома требованиям настоящих Норм. Оценка соответствия производится по результатам наземных и летных проверок комплекса аэродрома и их сопоставление с требованиями Норм.
В целях удобства практического использования настоящей Методики нумерация ее глав, разделов и пунктов приведена в соответствие с нумерацией глав, разделов и пунктов Норм.
По результатам оценки соответствия характеристик и параметров комплекса аэродрома требованиям настоящих Норм составляются таблицы соответствия, которые должны быть подписаны руководителем авиационной организации и заверены печатью. Порядок и примеры заполнения таблиц соответствия приведены в каждой главе Методик.
2.1. Для определения класса ИВПП необходимо определить длину ИВПП в стандартных условиях. Длина ИВПП в стандартных условиях (Lст) определяется по формуле
,
где Lф - фактическая длина ИВПП, м; определяется по исполнительной документации (на строительство или реконструкцию ВПП), а при ее отсутствии - по материалам обследования аэродрома;
Кр - поправочный коэффициент, учитывающий высоту ИВПП над уровнем моря, м:
![]()
(НИВПП - наивысшая точка поверхности ИВПП относительно уровня моря; определяется по исполнительному продольному профилю ИВПП, м);
Кt - поправочный коэффициент, учитывающий температуру воздуха на аэродроме:
![]()
(tрасч=1,07×t13-3° - расчетная температура воздуха на аэродроме, °С;
t13 - среднемесячная температура воздуха на аэродроме в 13 ч самого жаркого месяца в году, °С; принимается по климатологическим справочникам;
tст - температура стандартной атмосферы от высоты расположения аэродрома над уровнем моря, °С; принимается по графику, представленному на рисунке 2.1);
Кi - поправочный коэффициент, учитывающий средний продольный уклон ИВПП; определяется по следующим формулам:
при Lф£1000 м. Кi=1+5×iср
при Lф>1000 м. Кi=1+9×iср
(iср - средний продольный уклон ИВПП, определяется отношением разности отметок высот концов ИВПП к фактической длине ИВПП; отметки высот концов определяются по исполнительному профилю ИВПП).
Класс ИВПП определяется в результате сопоставления фактической длины ИВПП, приведенной к стандартным условиям, с классификационными длинами ИВПП в стандартных условиях, указанными в таблице 2.1 Норм.
Класс ИВПП указывается при заполнении таблицы соответствия физических характеристик и маркировки элементов аэродрома (таблица 3.2 главы III Методик).
Класс аэродрома определяется:
а) на однополосных аэродромах - классом ИВПП;
б) на многополосных аэродромах - классом ИВПП, имеющей наибольшую длину в стандартных условиях.
Расчет длин в стандартных условиях и определение класса аэродрома (ИВПП) производятся при вводе нового аэродрома (ИВПП) в эксплуатацию и после реконструкции (удлинения) ИВПП.
Результаты заносятся в Акт обследования аэродрома.

Рис. 2.1. Зависимость температуры стандартной атмосферы от высоты аэродрома над уровнем моря
3.1. Методика определения располагаемых дистанций для взлета и посадки
3.1.1. На аэродроме устанавливаются:
а) для каждого направления взлета:
располагаемая длина разбега (далее - РДР);
располагаемая взлетная дистанция (далее - РВД);
располагаемая дистанция прерванного взлета (далее - РДПВ);
б) для каждого направления посадки:
располагаемая посадочная дистанция (далее - РПД).
Если на данной ИВПП допускается взлет от промежуточных (не примыкающих к концам ВПП) РД, то РДР, РДВ и РДПВ определяются от каждой из таких РД. При этом за начало дистанции принимается место пересечения осевой линии РД с осевой линией ИВПП.
Значения располагаемых дистанций вносятся в таблицу 3.1.
Таблица 3.1 заполняется в следующем порядке:
графа 1 - указывается пункт 3.1.1 Норм;
графа 2 - указываются значения дистанций, причем указываются взлетные дистанции от всех РД, от которых разрешен взлет;
графа 3 - указываются номера подтверждающих документов: инструкция по производству полетов в районе аэродрома (далее - ИПП) и используемые для определения дистанций документы (например, технический паспорт аэродрома, исполнительная документация, акт обследования аэродрома и его элементов);
графа 4 - указывается соответствие располагаемых дистанций требованиям пункта 3.1.1 Норм;
графа 5 - при необходимости указываются сведения об особенностях использования ВПП для полетов (в случае одностороннего использования ВПП - взлет только с МК =_____, посадка только с МК =_____, а также дополнительные сведения, такие как наличие и длина КПБ).
При наличии на аэродроме двух и более ИВПП таблица 3.1. заполняется для каждой ИВПП отдельно.
Таблица 3.1
(образец заполнения)
Таблица соответствия
располагаемых дистанций ВПП аэродрома___________________________
(наименование)
требованиям Норм годности к эксплуатации аэродромов экспериментальной авиации
|
Пункт НГЭА ЭА |
Результаты проверки |
Подтверждающий документ |
Соответствие НГЭА ЭА |
Примечание |
|
1 |
2 |
3 |
4 |
5 |
|
3.1.1. |
МКпос = 31° |
1,2 |
Соответствует |
Длина КПБ - 200 м |
|
|
РДР = 3100 м |
|
|
|
|
|
РВД = 3300 м |
|
|
|
|
|
РДПВ = 3100 м |
|
|
|
|
|
РПД = 3100 м |
|
|
|
|
|
МКпос = 211° |
1,2 |
Соответствует |
Длина КПБ - 300 м |
|
|
РДР = 3100 м |
|
|
|
|
|
РВД = 3400 м |
|
|
|
|
|
РДПВ = 3100 м |
|
|
|
|
|
РПД = 3100 м |
|
|
|
Подтверждающие документы:
1. Инструкция по производству полетов в районе аэродрома________________,
(наименование)
утвержденная "___"_________20 г.;
2. Акт обследования аэродрома_______________и его элементов, утвержденный
(наименование)
"___"__________20 г.
Руководитель авиационной организации ЭА ________ _________ _________
(подпись) (Ф.И.О.) (дата)
М.П.
3.2. Методика оценки соответствия геометрических размеров элементов аэродрома
3.2.1. Ширина ИВПП определяется по исполнительной документации (на строительство или реконструкцию ИВПП). При отсутствии указанной документации ширина ИВПП определяется по материалам обследования аэродрома (ИВПП). Если ИВПП имеет участки различной ширины, то в качестве ее ширины принимается наименьшее значение.
3.2.2. Наличие уширения ИВПП при отсутствии РД на концевом участке определяется визуальным осмотром. Ширина ИВПП с уширением (отрезок АБ на рисунке 3.1) определяется по исполнительной документации (на строительство или реконструкцию ИВПП). При отсутствии указанной документации ширина ИВПП с уширением определяется по материалам обследования аэродрома (ИВПП).

3.2.3. Длина участка КПБ определяется по данным исполнительной документации и/или материалам обследования аэродрома.
Если длина участка КПБ за концом ИВПП менее нормативной из-за сложного рельефа местности или препятствий, необходимо проверить, учтено ли это при назначении располагаемых дистанций. Располагаемые дистанции должны быть определены с учетом недостаточной длины участка КПБ за концом ИВПП.
3.2.4. Размеры укрепленных участков КПБ перед порогом ИВПП определяются по исполнительной документации (на строительство, реконструкцию или усиление ИВПП). При отсутствии указанной документации их размеры определяются при обследовании путем измерений внутренней и внешней ширины укрепленного участка (для участка, имеющего форму трапеции, соответственно отрезки ВГ и ДЕ на рисунке 3.1) и длины участка (отрезок ЛМ на рисунке 3.1).
3.2.5. Размеры боковых полос безопасности (БПБ) определяются по исполнительной документации и/или материалам обследования.
3.2.6-3.2.8. Предназначенный для включения в ИПП продольный профиль ИВПП представляет собой в общем случае ломаную линию, отражающую основные изменения профиля ИВПП по ее оси (пример продольного профиля приведен на рисунке 3.2).
Этот профиль может быть получен по данным геодезической съемки продольного профиля ИВПП и ЛП, выполненной с шагом не более 100 м, или по данным исполнительной геодезической съемки ИВПП.
На продольном профиле должны быть указаны уклоны участков, расположенных между точками излома, и абсолютные высоты концов (порогов) ИВПП, концов КПБ, а также точек излома (рисунке 3.2).
Линию продольного профиля за пределами ИВПП по продолжению ее оси рекомендуется наносить пунктирной линией.
Горизонтальный масштаб может быть принят 1:25000 или 1:50000. Соотношение горизонтального и вертикального масштабов обычно принимается равным 10:1 или близким к этому значению.
Продольный уклон участка ИВПП определяется по формуле:
,
где Нн, Нк - отметки по оси начала и конца участка ИВПП, м;
Lф - фактическая длина участка ИВПП.
Средний продольный уклон ИВПП определяется как отношение разности отметок начала и конца ИВПП к ее длине.

3.2.9. Определение индекса самолета для каждой РД производится в следующем порядке:
1) согласно ИПП для каждой РД определяются индексы всех ВС, эксплуатируемых на данной РД, включая ВС, использующих аэродром в качестве запасного;
2) из определенных индексов ВС для каждой РД выбирается наибольший, по которому производится оценка соответствия размеров и характеристик РД по пунктам 3.2.11-3.2.16 Норм;
3) ВС в зависимости от размаха крыла и колеи шасси по внешним шинам имеют следующие индексы:
|
Тип ВС |
Индекс ВС |
|
Ан-2, Ан-28, Л-410 |
1 |
|
Як-40, Ан-72, Ан-74 |
2 |
|
Ан-24, Ан-26, Ан-30, Ан-32, Ил-14, Ил-114 |
3 |
|
Ту-134, Як-42, Ил-18, Ан-12, Ту-204 |
4 |
|
Ту-154 |
5 |
|
Ил-62, Ил-76, Ил-86, Ил-96 |
6 |
|
Ан-124 |
7 |
Для иных ВС порядок определения индекса следующий:
а) по размаху крыла - в соответствии с колонкой 2 таблицы 3.2 Норм определяется индекс по размаху крыла;
б) по колее шасси по внешним шинам (сумма значений ширины колеи шасси, колеи тележки и шины) - в соответствии с колонкой 3 таблицы 3.2 Норм определяется индекс по колее шасси;
в) из двух индексов, определенных по подпунктам "а" и "б", выбирается наибольший, по которому и определяется индекс данного ВС.
3.2.10. Ширина РД определяется по исполнительной документации (на строительство, реконструкцию или усиление РД). При отсутствии указанной документации ширина РД определяется по материалам обследования аэродрома (РД).
3.2.11. Общая ширина РД и двух укрепленных обочин определяется по исполнительной документации (на строительство, реконструкцию или усиление РД). При отсутствии указанной документации общая ширина РД и двух укрепленных обочин определяется путем измерений. На криволинейных участках ширина РД определяется по перпендикуляру к осевой линии РД в месте измерения.
3.2.12. Расстояние между осевой линией РД и неподвижными препятствиями определяется по материалам обследования аэродрома.
При обследовании это расстояние устанавливается путем измерений, производимых перпендикулярно осевой линии РД.
3.2.13. Расстояние между осевыми линиями параллельных РД определяется с использованием измерений, производимых перпендикулярно осевой линии РД. Расстояние между осями параллельных РД следует определять в случае, если последнее не превышает 100 м.
3.2.14. Радиусы закругления РД с искусственными покрытиями по внутренней кромке покрытий при примыкании к ИВПП определяются по исполнительной документации (на строительство, реконструкцию или усиление РД). При отсутствии указанной документации радиусы закругления РД определяются по материалам обследования аэродрома (РД).
Если закругление кромки покрытия РД выполнено по ломаной линии, и в исполнительной документации не указан фактический радиус закругления, он определяется в следующем порядке (рисунок 3.3):
на плане закругления покрытия РД (в исполнительной документации или на копии чертежа) проводится биссектриса угла, образуемого внутренними кромками покрытий ИВПП и РД;
из точек начала закругления А и В проводятся перпендикуляры до пересечения с биссектрисой (точки О1 и О2);
измеряются расстояния АО1 и ВО2, определяется наименьшее из них;
наименьшее расстояние (ВО2 на рисунке 3.3) принимается за фактический радиус закругления РД.

Рис. 3.3. Схема определения радиуса закругления РД в месте примыкания к ИВПП
3.2.15. Наличие на аэродроме ограждения его периметра определяется при обследовании аэродрома визуально.
Результаты работ по оценке соответствия для каждой ВПП с относящимися к ней РД заносятся в таблицу соответствия физических характеристик и дневной маркировки элементов аэродрома (таблица 3.2).
Порядок заполнения таблицы 3.2 следующий:
графа 1 - указываются номера рассматриваемых пунктов Норм (пункты главы 2, главы 5, а также раздела 3.2);
графа 2 - указываются фактические параметры элементов аэродрома (за исключением длины ИВПП, указываемой для стандартных условий), определенные по результатам проверок, при этом: ширина ИВПП с уширением указывается в случае отсутствия РД, примыкающей к концу ИВПП; ширина РД и двух укрепленных обочин указывается для всех РД при эксплуатации на них ВС индексов 4, 5, 6 и 7;
графа 3 - указывается порядковый номер подтверждающего документа. В качестве подтверждающих документов могут использоваться:
по пунктам 2.1, 3.2.5, 3.2.12-3.2.14, 3.2.16 и по разделам 5.1-5.6 - акт обследования аэродрома и его элементов;
по пунктам 3.2.1, 3.2.2, 3.2.4, 3.2.10, 3.2.11, 3.2.15 - исполнительная проектная документация;
по пунктам 3.2.3, 3.2.6-3.2.8 - исполнительный профиль летной полосы и ИПП;
по пункту 3.2.9 - Инструкция по производству полетов в районе аэродрома;
графа 4 - указываются результаты сопоставления итогов проверок и испытаний с требованиями Норм и делается запись:
"Соответствует" - в случае соответствия оцениваемого параметра требованиям Норм;
"Эквивалентно соответствует" - в случае наличия заключения об обеспечении эквивалентного уровня безопасности полетов при имеющемся отступлении от требований Норм;
"Не соответствует" - в случае несоответствия оцениваемого параметра требованиям Норм и отсутствия вышеуказанного заключения;
графа 5 - в случае наличия отступлений от требований Норм указываются номера, даты и названия документов, в соответствии с которыми авиационной организацией выполнены мероприятия по обеспечению эквивалентного уровня безопасности полетов, а также отражается дополнительная информация, поясняющая, при необходимости, содержание других граф таблицы.
Оценка соответствия элементов аэродрома по методикам, изложенным в настоящем разделе Методик, производится при вводе в эксплуатацию вновь построенного аэродрома или отдельных его элементов и после реконструкции как аэродрома, так и его элементов.
Таблица 3.2
(образец заполнения)
Таблица соответствия
физических характеристик и дневной маркировки элементов
аэродрома________________________
(наименование)
требованиям Норм годности к эксплуатации аэродромов экспериментальной авиации
ИВПП № 1, МКпос = 31°/211°
|
Пункт НГЭА ЭА |
Результаты проверок и испытаний |
Подтверждающий документ |
Соответствие НГЭА ЭА |
Примечание |
|
1 |
2 |
3 |
4 |
5 |
|
2.1. |
Длина ИВПП в стандартных условиях - 2740 м (класс ИВПП - I). Класс аэродрома - 1 |
1, 3 |
Соответствует |
Заключение аккредитованного НИИ |
|
3.2.1. |
Ширина ИВПП - 60 м |
2 |
Соответствует |
|
|
3.2.2. |
Ширина ИВПП с уширением: |
|
|
|
|
|
с МКпос = 31° - 75 м |
2 |
Соответствует |
|
|
|
с МКпос = 211° - уширение отсутствует, примыкает РД № 2 |
|
|
|
|
3.2.3. |
Длина концевых полос безопасности (КПБ): |
4 |
Соответствует |
|
|
|
с МКпос = 31°- 200 м |
|
|
|
|
|
с МКпос = 211°- 300 м |
|
|
|
|
3.2.4. |
Длина укрепленных участков КПБ перед порогом ИВПП: |
2 |
Соответствует |
|
|
|
с МКпос = 31°- 50 м |
|
|
|
|
|
с МКпос = 311°- 50 м |
|
|
|
|
3.2.5. |
Ширина боковых полос безопасности (БПБ) - 80 м |
1 |
Соответствует |
|
|
3.2.6. |
Продольный профиль ИВПП обеспечивает взаимную видимость двух точек, находящихся на высоте 3 м от поверхности ИВПП и на расстоянии менее половины ее длины |
4 |
Соответствует |
|
|
3.2.7. |
Продольные и поперечные уклоны ИВПП: |
4 |
Соответствует |
|
|
|
максимальный продольный уклон -0,015 |
|
|
|
|
|
средний продольный уклон - 0,010 |
|
|
|
|
|
максимальный поперечный - 0,015 |
|
|
|
|
3.2.8. |
Продольный профиль внесен в ИПП |
4 |
Соответствует |
|
|
3.2.9. |
МРД № 1 - ВС индекса 7 |
5 |
Соответствует |
|
|
|
РД № 2 - ВС индекса 7 |
|
|
|
|
|
РД № 3 - ВС индекса 6 |
|
|
|
|
|
РД № 4 - ВС индекса 5 |
|
|
|
|
3.2.10 |
Ширина РД: |
|
|
|
|
|
МРД № 1 - 25,0 м |
2 |
Соответствует |
|
|
|
РД № 2 - 22,5 м |
2 |
Соответствует |
|
|
|
РД № 3 - 21,0 м |
2 |
Соответствует |
|
|
|
РД № 4 - 18,0 м |
2 |
Эквивалентно соответствует |
Заключение об обеспечении эквивалентного уровня безопасности полетов, утв. 15.11.2002 г.* |
|
3.2.11 |
Общая ширина РД и двух укрепленных обочин: |
2 |
Соответствует |
|
|
|
МРД № 1 - 44,0 м |
|
|
|
|
|
РД № 2 - 40,5 м |
|
|
|
|
|
РД № 3 - 39,0 м |
|
|
|
|
|
РД № 4 - 29,0 м |
|
|
|
|
3.2.12 |
Расстояние между осевой линией РД и неподвижными препятствиями: |
2 |
Соответствует |
|
|
|
МРД № 1 и мачта - 57,5 м |
|
|
|
|
|
РД № 2 и здание - 55,0 м |
|
|
|
|
|
РД № 3 и ограждение аэродрома -47,0 м |
|
|
|
|
|
РД № 4 и будка - 38,0 м |
|
|
|
|
3.2.13 |
Расстояние между осевой линией пути руления на местах стоянок и неподвижными препятствиями: |
2 |
Соответствует |
|
|
|
осевая линия пути руления на перроне и мачта освещения - 47,5 м |
|
|
|
|
3.2.14 |
Расстояние между осевыми линиями параллельных РД: |
2 |
Соответствует |
|
|
|
РД № 2 и РД № 3 - 150,0 м |
|
|
|
|
3.2.15 |
Радиус закругления покрытия РД с искусственным покрытием при примыкании к ИВПП: |
|
|
|
|
|
РД № 2 - 50,0 м |
2 |
Соответствует |
|
|
|
РД № 3 - 50,0 м |
2 |
Соответствует |
|
|
|
РД № 4 - 45,0 м |
2 |
Соответствует |
|
|
|
|
2 |
Эквивалентно соответствует |
Заключение об обеспечении эквивалентного уровня безопасности полетов, утв. 15.11.2002 г.* |
|
3.2.16 |
Аэродром имеет ограждение по всему периметру |
1 |
Соответствует |
|
|
5.1-5.3 |
На ИВПП, МРД № 1, РД № 2, РД № 3, РД № 4 и местах стоянок (площадках) нанесены необходимые маркировочные знаки соответствующего размера и цвета |
1 |
Соответствует |
|
|
5.4. |
На аэродроме установлены дневные ориентиры по оси ИВПП между ДПРМ и БПРМ, а также призмы для обозначения боковых границ полосы подхода, боковых границ ИВПП, начала и конца ИВПП, зоны приземления |
1 |
Соответствует |
|
|
5.5. |
Все объекты и препятствия, подлежащие маркировке, промаркированы. |
1 |
Соответствует |
|
|
|
Цвет - красный и белый. |
|
|
|
|
5.6. |
Светоограждение препятствий и объектов имеется |
1 |
Соответствует |
|
Подтверждающие документы:
1. Акт обследования аэродрома____________и его элементов, утвержденный ______;
(наименование) (дата)
2. Исполнительная документация___________________________________________;
(наименование исполнителя проекта)
3. Заключение___________о классе аэродрома и прочности искусственных покрытий;
(наименование исполнителя проекта)
элементов аэродрома____________________________, утвержденное____________;
(наименование) (дата)
4. Отчет по геодезической съемке высотных объектов в районе аэродрома_________
(наименование
_________________________________________;
аэродрома и наименование исполнителя проекта)
5. Инструкция по производству полетов в районе аэродрома____________________,
(наименование)
утвержденной______.
(дата)
Руководитель авиационной организации ЭА ________ __________________ ________
(подпись) (Ф.И.О.) (дата)
М.П.
Председатель комиссии __________________ ____________________ ___________
(подпись) (Ф.И.О.) (дата)
Члены комиссии _________________ ________________ __________
(подпись) (Ф.И.О.) (дата)
_________________ ________________ __________
(подпись) (Ф.И.О.) (дата)
3.3. Методика оценки несущей способности искусственных покрытий аэродрома
3.3.1. Определение прочности искусственных покрытий элементов аэродрома производится при вводе в эксплуатацию вновь построенного аэродрома (или отдельных элементов аэродрома), в процессе эксплуатации аэродрома (не реже одного раза в пять лет), в том числе после реконструкции (усиления).
По результатам обследования состояния аэродромных покрытий и оценки их прочности заполняется таблица соответствия прочности и состояния искусственных покрытий аэродрома (таблица 3.3).
Порядок заполнения таблицы следующий:
графа 1 - указываются пункты Норм по порядку;
графа 2 - указываются элементы аэродрома, на которых имеются искусственные покрытия, и приводится описание состояния поверхности покрытий;
графа 3 - приводятся результаты расчета прочности искусственных покрытий по каждому элементу аэродрома (при наличии на каком-либо элементе аэродрома участков покрытия, имеющих различные числа PCN, в таблицу заносится число PCN, соответствующее минимальному значению Fн);
графа 4 - приводятся классификационные числа ВС (ACN), эксплуатируемых на данном элементе аэродрома согласно ИПП, в соответствии с типом покрытия и категорией прочности основания, указанными в графе 3;
графа 5 - указывается порядковый номер подтверждающего документа. В качестве подтверждающего документа могут быть использованы:
инструкция по производству полетов в районе аэродрома;
акт обследования аэродрома и его элементов;
заключение научно-исследовательской или проектной организации и др.
графа 6 - указываются результаты сопоставления результатов проверок и испытаний (графы 3 и 4) с требованиями Норм и делается запись:
"Соответствует" - в случае соответствия оцениваемого параметра требованиям Норм;
"Эквивалентно соответствует" - в случае наличия заключения об обеспечении эквивалентного уровня безопасности полетов при имеющемся отступлении от требований Норм;
"Не соответствует" - в случае несоответствия оцениваемого параметра требованиям Норм и отсутствия вышеуказанного заключения;
графа 7 - в случае отступлений от требований Норм указываются номера, даты и названия документов, в соответствии с которыми авиационной организацией выполнены мероприятия по обеспечению эквивалентного уровня безопасности полетов, а также ограничения интенсивности движения ВС по элементам аэродрома при PCN < ACN и дополнительная информация, поясняющая порядок заполнения других граф таблицы.
Пример заполнения таблицы 3.3 приводится далее.
3.4. Методика оценки соответствия состояния аэродромных покрытий
Фактическое состояние поверхности искусственных покрытий аэродрома проверяется следующим образом:
3.4.1-3.4.2. Наличие посторонних предметов или продуктов разрушения покрытия, оголенных стержней арматуры на поверхности искусственных покрытий ИВПП, РД, перронов, укрепленных участков КПБ, примыкающих к торцам ИВПП, укрепленных обочин ИВПП и РД определяется визуально.
Размеры уступов в швах между соседними плитами или кромками трещин, наплывы мастики, выбоины и сколы кромок плит (рисунки 3.4) на всей поверхности искусственных покрытий ИВПП, РД, перронов, укрепленных участков КПБ, примыкающих к торцам ИВПП, и укрепленных обочин ИВПП и РД определяются с помощью линейки.

Рис. 3.4. Схема по определению размеров сколов и выбоин в плане
Волнообразования измеряются с помощью трехметровой рейки и промерника (линейки) на всей поверхности ИВПП.
Результаты обследования состояния поверхности искусственных покрытий аэродрома заносятся в таблице 3.3.
Обследование фактического состояния поверхности искусственных покрытий аэродрома производится два раза в год. Результаты оформляются Актом обследования аэродрома и его элементов.
Таблица 3.3
(образец заполнения)
Таблица соответствия
прочности и состояния поверхности искусственных покрытий
аэродрома_______________________
(наименование)
требованиям Норм годности к эксплуатации аэродромов экспериментальной авиации
ИВПП № 1, МКпос = 31°/211°
|
Пункт НГЭА ЭА |
Результаты проверок и оценки прочности покрытий |
Типы эксплуатируемых ВС и их классификационные числа ACN |
Подтверждающий документ |
Соответствие НГЭА ЭА |
Примечание |
|
|
Элементы аэродрома |
Индекс прочности искусственных покрытий, PCN |
|||||
|
1 |
2 |
3 |
4 |
5 |
6 |
7 |
|
3.3.1. |
ИВПП 31°/211° |
PCN |
Ан-124-100 -49 |
2, 3 |
Соответствует |
|
|
|
|
55/R/B/X/T |
Ил-96 - 43 |
|
|
|
|
|
|
|
Ил-76ТД - 36 |
|
|
|
|
|
|
|
Ил-76Т - 32 |
|
|
|
|
|
|
|
Ил-86 - 31 |
|
|
|
|
|
|
|
Ту-154 - 25 и классом ниже |
|
|
|
|
3.3.1. |
МРД № 1 |
PCN |
Ан-124-100 -49 |
2, 3 |
Соответствует |
|
|
|
РД № 2 |
50/R/B/X/T |
Ил-96 - 43 |
|
|
|
|
|
|
|
Ил-76ТД - 36 |
|
|
|
|
|
|
|
Ил-76Т - 32 |
|
|
|
|
|
|
|
Ил-86 - 31 |
|
|
|
|
|
|
|
Ту-154 - 25 и классом ниже |
|
|
|
|
3.3.1. |
РД № 3 |
PCN |
Ил-96 - 46 |
2, 3 |
Соответствует |
|
|
|
|
50/F/B/X/T |
Ил-86 - 36 |
|
|
|
|
|
|
|
Ил-76ТД - 32 |
|
|
|
|
|
|
|
Ил-76Т - 27 |
|
|
|
|
|
|
|
Ту-154 - 24 и классом ниже |
|
|
|
|
3.3.1. |
РД № 4 |
PCN |
Ту-154 - 24 |
2, 3 |
Соответствует |
Допускается эксплуатация ВС типа: - Ту-154 с ограничением интенсивности 20 рулений в сутки |
|
|
|
20/F/B/X/T |
Ан-12 - 18 |
|
|
|
|
|
|
|
Як-42 - 16 |
|
|
|
|
|
|
|
Ту-134 - 13 и классом ниже |
|
|
|
|
3.3.1. |
Места стоянок |
PCN |
Ан-124-100 -49 |
2, 3 |
Соответствует |
|
|
|
(МС 1-25) |
50/R/B/X/T |
Ил-96 - 43 |
|
|
|
|
|
|
|
Ил-76ТД - 36 |
|
|
|
|
|
|
|
Ил-76Т - 32 |
|
|
|
|
|
|
|
Ил-86 - 31 |
|
|
|
|
|
|
|
Ту-154 - 25 и классом ниже |
|
|
|
|
3.4.1. |
На поверхности искусственных покрытий ИВПП, МРД № 1, РД № 2, РД № 3, РД № 4, перрона (МС 1-25), укрепленных участков КПБ, примыкающих к торцам ИВПП, укрепленных обочин МРД № 1, РД № 2, РД № 3 и РД № 4 недопустимые дефекты отсутствуют |
|
|
1 |
Соответствует |
|
|
3.4.2. |
Грунтовая поверхность летной полосы сопрягается в одном уровне со всеми искусственными покрытиями аэродрома. На грунтовой поверхности недопустимые дефекты отсутствуют |
|
|
1 |
Соответствует |
|
Подтверждающие документы:
1. Акт обследования аэродрома______________и его элементов, утвержденный _______.
(наименование) (дата)
2. Заключение______________о классе аэродрома и прочности искусственных покрытий;
(наименование исполнителя проекта)
элементов аэродрома_______________________________, утвержденное_____________;
(наименование) (дата)
3. Инструкция по производству полетов в районе аэродрома_________________________,
(наименование)
утвержденной __________.
(дата)
Руководитель авиационной организации ЭА ___________ ______________ ____________
(подпись) (Ф.И.О.) (дата)
М.П.
Председатель комиссии __________________ _________________________ ___________
(подпись) (Ф.И.О.) (дата)
Члены комиссии _________________ ________________ __________
(подпись) (Ф.И.О.) (дата)
_________________ ________________ __________
(подпись) (Ф.И.О.) (дата)
Безопасность и эффективность использования аэродрома в значительной степени зависит от искусственных и естественных объектов на аэродроме и в пределах приаэродромной территории. Они влияют на минимумы для взлета и посадки, взлетную массу воздушных судов, а также на маршруты полета в районе аэродрома. В связи с этим определенные районы воздушного пространства вокруг аэродрома следует рассматривать как его неотъемлемую часть. Авиационным организациям экспериментальной авиации необходимо устанавливать эффективный контроль за препятствиями в этих районах.
Для обеспечения соответствия главы IV Норм необходимо:
а) получить данные о препятствиях;
б) выполнить мероприятия по ограничению и устранению препятствий;
в) учесть препятствия при установлении схем вылета и захода на посадку;
г) включить информацию о препятствиях в ИПП и соответствующие документы аэронавигационной информации.
Авиационной организацией оформляются следующие документы:
акт обследования препятствий в районе аэродрома (в дальнейшем по тексту - Акт обследования препятствий);
таблица соответствия (таблица 4.1) препятствий в районе аэродрома требованиям Норм (в дальнейшем по тексту - Таблица соответствия).
Таблица 4.1
Таблица соответствия
препятствий аэродрома ________________________________________требованиям Норм
годности к
(наименование)
эксплуатации аэродромов экспериментальной авиации
|
Пункт НГЭА ЭА |
Результаты проверок и испытаний |
Подтверждающий документ |
Соответствие НГЭА ЭА |
Примечание |
|
|
|
|
|
|
Руководитель авиационной организации ЭА ___________ __________ __________
(подпись) (Ф.И.О.) (дата)
М.П.
Председатель комиссии ____________ ______________ ___________
(подпись) (Ф.И.О.) (дата)
Члены комиссии _________________ ________________ __________
(подпись) (Ф.И.О.) (дата)
_________________ ________________ __________
(подпись) (Ф.И.О.) (дата)
4.1. Выявление препятствий
4.1.1. Данные о высоте и расположении препятствий должны быть получены с учетом положений пунктов 4.1.1.1-4.1.1.7.
Для выполнения съемки препятствий могут привлекаться организации, имеющие право выполнять геодезические и топографические работы.
4.1.1.1. Выявлению подлежат препятствия, высота которых превышает:
а) уровень земли в пределах летной полосы за исключением огней светосигнальной системы, контрольной антенны курсового радиомаяка, уголковых отражателей ПРЛ, имеющих легкую и ломкую конструкцию;
б) высоту поверхности с наклоном 0,8% на участках GSS'G' и LTT'L' (рисунок 4.1). Началом отсчета высоты поверхности является высота рельефа на продолжении осевой линии ВПП в конце ЛП;
в) высоту поверхности с наклоном 2% на участках GSTL и G'ST'L' (рисунок 4.1). Началом отсчета высоты поверхности является высота ближайшей точки профиля оси ВПП или ее продолжения в пределах летной полосы;
г) 50 м относительно уровня самого низкого порога ВПП в зоне BEE'В' (рисунок 4.1);
д) 100 м относительно уровня самого низкого порога ВПП в пределах круга с радиусом 50 км с центром в КТА (рисунок 4.1).
Если на некотором участке (участках) круга полеты запрещены, то выявление препятствий в пределах такого участка сводится к определению наивысшего (наивысших) препятствия (препятствий).
Кроме того, должны быть получены данные о высоте и расположении препятствий, которые, по мнению эксплуатанта аэродрома, могут представлять опасность для выполнения полетов.

Рис. 4.1. Зоны и поверхности для выявления препятствий.
4.1.1.2. Для получения данных о препятствиях необходимо:
а) произвести топографическую съемку естественных и искусственных препятствий (для получения данных о рельефе местности допускается использование соответствующих топографических карт) в пределах зон, показанных на рисунке 4.1.
б) использовать любой приемлемый источник данных (данные съемки, карты, акты по согласованию строительства и т.д.) о препятствиях в пределах круга радиуса 50 км с центром в КТА (рисунок 4.1б).
4.1.1.3. Точность определения координат и высот препятствий должна быть не ниже (рисунок 4.1):
а) в зонах GSS'G' и TLL'T': горизонтальные расстояния - 5 м на линиях SS' и ТТ' с последующим понижением точности в пропорции 1/500 от расстояний до линий SS' и ТТ' соответственно; высота препятствий - 0,5 м на первых 300 м от линий SS' и ТТ' с последующим понижением точности в пропорции 1/1000 от расстояний до линий SS' и ТТ' соответственно;
б) в зонах GLTS, G'L'T'S' и в зоне ВЕЕ'В':
горизонтальные расстояния - 5 м в пределах 5000 м от КТА и 12 м за пределами этого расстояния; высота препятствий - 1 м в пределах 2000 м от КТА с последующим понижением точности в пропорции 1/1000 от расстояния до КТА, но во всех случаях не хуже 10 м;
в) в пределах круга за пределами зоны ВЕЕ'В':
горизонтальные расстояния - 50 м, высота препятствий - 10 м.
4.1.1.4. Положение препятствий указывается в прямоугольной и полярной системах координат.
Для представления данных о препятствиях по аэродрому в целом наиболее удобна полярная система с началом в КТА (рисунок 4.2) и азимутами, отсчитываемыми от проходящего через КТА истинного меридиана.
При подготовке расчетных таблиц используется прямоугольная система координат ХОУ. Ее началом является средняя точка соответствующего порога ВПП (рисунок 4.3).
Оси ОХ и ОУ располагаются горизонтально, причем ось ОХ направлена по продолжению оси ВПП так, что положительные значения по оси ОХ измеряются в направлении, противоположном направлению захода на посадку, а положительные значения по оси ОУ измеряются вправо относительно направления захода на посадку.
Высоты препятствий указываются относительно среднего уровня моря (в абсолютных отметках).
Преобразование полярных координат препятствия в прямоугольные выполняется по формулам:
;
,
где Хn, Уn - прямоугольные координаты препятствия;
Sn - расстояние от КТА до препятствия;
An - истинный азимут с КТА на препятствие;
Aвnn - истинный азимут ВПП в направлении того порога, который выбран в качестве начала координат ХОУ;
Хкma, Укma - прямоугольные координаты КТА в выбранной системе координат ХОУ.

Рис. 4.2. Взаимное расположение полярной и прямоугольной систем координат.

Рис. 4.3. Расположение начала координат ХОУ
Преобразование прямоугольных координат препятствия (Хn, Уn) в полярные (Sn, An) выполняется в следующем порядке.
Вначале определяется расстояние от КТА до препятствия:
.
Истинный азимут Аn препятствия определяется в зависимости от знака функций:
,

и составляет:
а) при Р > 0 и Q > 0
![]()
где
;
б) при Р > 0 и Q < 0
;
в) при Р < 0 и Q < 0
;
г) при Р < 0 и Q > 0
![]()
4.1.1.5. При выявлении препятствий следует обращать особое внимание на такие объекты, как антенны и сооружения радиотехнического и метеорологического оборудования, а также на временные и подвижные объекты (например, воздушные суда на РД, местах стоянки или на предварительном старте, транспортные средства, движущиеся по автомобильным или железным дорогам, крупногабаритные механизмы, складские краны). Также необходимо учитывать изменение высоты сооружений в процессе их строительства и высоту строительного оборудования (например, строительных кранов). При изменении высоты строящихся сооружений, высоты и расположения используемого строительного оборудования в акт обследования препятствий вносятся соответствующие уточнения.
4.1.1.6. При выявлении препятствий следует различать точечные и протяженные препятствия. К первым относятся мачты, трубы, отдельные деревья и т.п., ко вторым - здания, возвышенности, линии электропередач, дороги, лесные массивы и т.п.
Точечное препятствие представляется абсолютной высотой его вершины и двумя координатами Хn, Уn в прямоугольной и/или Sn, Аn в полярной системе координат.
Протяженное препятствие небольших с точки зрения аэронавигации линейных размеров также представляется в виде точечного.
Если препятствие имеет значительную протяженность или если представление протяженного препятствия в виде точечного приводит к неоправданным эксплуатационным ограничениям, такое препятствие представляется в виде нескольких точечных препятствий.
Количество, расположение и высота таких точечных препятствий должны быть такими, чтобы достаточно полно отобразить форму протяженного препятствия.
Для направлений ВПП, оборудованных РМС I, II и III категории, протяженные препятствия, расположенные вблизи летной полосы, представляются в виде набора точечных препятствий, расстояние между которыми не должно превышать:
60 м по оси У;
100 м по оси X.
Ниже изложен общий подход к представлению некоторых часто встречающихся протяженных препятствий точечными.
а) Здание. Препятствие такого типа представляется абсолютной высотой его наивысшей точки и координатами (Хn, Уn и/или Sn, Аn) той точки здания, которая имеет наименьшее удаление от осевой линии ВПП или ее продолжения. Если здание расположено на продолжении осевой линии ВПП, координата Хn определяется по ближайшей к порогу ВПП части здания, а координата Уn = 0.
б) Возвышенность. Если вершина возвышенности расположена в зоне ВЕЕ'В', показанной на рисунке 4.1, в состав данных о препятствиях вносятся, кроме вершины, склоны возвышенности в виде сечений двумя вертикальными плоскостями, одна из которых перпендикулярна, а другая параллельна продолжению осевой линии ВПП. Склоны представляются в виде ряда точечных препятствий, высота каждого из которых отличается от высоты соседнего на 10 или 20 м (соответственно горизонталям на топографических картах или иных геодезических материалах), как показано на рисунке 4.4.
Для более удаленных возвышенностей могут быть приняты большие интервалы разбиения по высоте, например, 40 или 50 м. Если вершина возвышенности находится на продолжении осевой линии ВПП, в состав данных вносятся вершина возвышенности и ряд точечных препятствий, соответствующих сечению возвышенности по продолжению оси ВПП. Если склон возвышенности пересекает продолжение оси ВПП, представляются данные по той части склона, которая расположена от вершины возвышенности до продолжения осевой линии ВПП.
При наличии леса или кустарника на возвышенности и отсутствии данных об их высоте все соответствующие высоты увеличиваются на 20 м.
в) Линии электропередач. Линии электропередач разбиваются на несколько участков, например, по числу опор. Данные о расположении каждого препятствия (участка ЛЭП) представляются согласно рисунку 4.5. Высотой каждого препятствия является наибольшая высота ЛЭП на соответствующем участке. При возникновении неоправданных эксплуатационных ограничений интервал разбиения ЛЭП на участки следует уменьшить, что позволит более точно представить препятствие такого типа.
г) Дорога. Дорога, как и линия электропередач, разбивается на несколько участков. Координаты каждого точечного препятствия (участка дороги) представляются аналогично случаю линии электропередачи (рисунок 4.4), а высота точечного препятствия принимается равной:
максимальной высоте полотна автомобильной дороги плюс 5 м;
максимальной высоте полотна железной дороги плюс 5,5 м.
Опоры освещения автомобильных дорог или опоры контактной подвески железных дорог представляются соответственно как одиночные точечные препятствия и как линия электропередачи. Высота транспорта (5 м и 5,5 м соответственно) в этих случаях не учитывается.

Рис. 4.4. Представление возвышенности

д) Лесной массив. Данные о лесных массивах представляются только в тех случаях, когда они находятся в пределах зоны ВЕЕ'В', показанной на рисунке 4.1. Лесной массив на равнинной местности представляется его границей, наиболее приближенной к ВПП или продолжению ее оси. Граница разбивается на участки, достаточно полно отражающие ее характер как по горизонтали, так и по вертикали (интервалы разбиения принимаются равными 50-100 м или более при отсутствии существенного изменения по высоте или по направлению) (рисунок 4.6). Высотой каждого точечного препятствия (участка границы леса) является наибольшая высота вершин деревьев. Если массив расположен на возвышенности, данные представляются согласно положениям подпункта "б" пункта 4.1.1.6.
4.1.1.7. Результаты топографо-геодезических работ по выявлению препятствий и определению их координат и высот должны содержать следующие разделы:
а) общая часть, в которой указываются документы, которые используются при проведении топографо-геодезических работ, перечень инструментов, исходных пунктов, а также указываются материалы, использованные при проведении камеральных работ;
б) раздел (разделы), где указываются методы определения координат и высот препятствий, в том числе описание моделей, принятых для представления данных о препятствиях;
в) перечень препятствий аэродрома с указанием их полярных и прямоугольных координат и абсолютных высот;
г) данные об истинном азимуте ВПП, прямоугольных координатах КТА относительно порогов ВПП, длине ВПП, расстояниях до смещенных порогов (при их наличии);
д) графический материал с указанием профиля ЛП по оси ВПП и ее продолжению, расположения КТА и порогов ВПП и, при необходимости, препятствий относительно ВПП.

Рис. 4.6. Представление лесного массива
4.1.1.8. На основании результатов топографо-геодезических работ оформляется акт обследования препятствий в районе аэродрома, в который вносится информация о препятствиях, подлежащих выявлению согласно пункту 4.1.1 Норм.
В указанный акт обследования включается перечень препятствий аэродрома, утвержденный руководством авиационной организации экспериментальной авиации.
Периодически (ориентировочно не реже одного раза в год) авиационной организацией проверяется соответствие акта обследования фактическому состоянию препятствий на аэродроме и в его окрестностях. Выполнение проверок фиксируется в листе регистрации акта обследования. Специалистами авиационной организации, проводившими проверку, оформляется протокол в произвольной форме, который после утверждения руководителем авиационной организации, включается в акт обследования в качестве приложения.
При изменении количества препятствий (устранении существующих, появлении новых), при изменении их координат и высот (перенос или замена существующих объектов, мест стоянок воздушных судов, изменение положения порога ВПП и т.д.) в протокол вносятся соответствующие данные со ссылкой на подтверждающую документацию (например, на документацию по согласованию строительства, замену РТС, установку строительного оборудования и т.п.) или на проведенные измерения.
После получения данных о препятствиях с учетом результатов периодических проверок фактического состояния препятствий на аэродроме и в его окрестностях в таблице соответствия указывается по пункту 4.1.1:
в графе 2 - "Получены данные о высоте и расположении препятствий";
в графе 4 - "Соответствует".
4.2. Ограничение препятствий
Необорудованная ВПП и ВПП для захода на посадку по приборам
4.2.1.1. Для проведения мероприятий по устранению препятствий, указанных в Нормах (пункт 4.2.1), необходимо определить перечень препятствий, выступающих за поверхности ограничения препятствий: внешнюю горизонтальную, коническую, внутреннюю горизонтальную, захода на посадку и переходные. Этот перечень составляется с помощью расчетных таблиц и планов поверхностей. Кроме того, планы поверхностей используются при оценке допустимости строительства в районе аэродрома новых и увеличения высоты существующих препятствий.
Планы и расчетные таблицы включаются в состав акта обследования препятствий.
Масштаб планов выбирается с учетом особенностей конкретного аэродрома (количество и длина ВПП, количество препятствий и плотность их расположения и т.д.), но во всех случаях масштаб должен быть не менее: 1:100000 для внешней горизонтальной поверхности; 1:50 000 для внутренней горизонтальной, конической, захода на посадку и переходных поверхностей.
На планы должны быть нанесены все препятствия, возвышающиеся над ограничительными поверхностями с указанием размеров.
4.2.1.3. Размеры внешней горизонтальной поверхности рекомендуется устанавливать соответственно размерам зон учета препятствий, которые использую тся для построения схем маневрирования в районе аэродрома. Допускается принимать внешнюю горизонтальную поверхность в виде круга с центром в КТА и радиусом 15000 м для аэродромов класса I, II, III и 8000 м для аэродромов класса IV (рисунок 4.7).
Внешняя горизонтальная поверхность располагается на высоте 150 м над уровнем аэродрома классов I, II, III и на высоте 110 м над уровнем аэродрома класса IV.

4.2.1.4. Построение внешних границ внутренней горизонтальной и конической поверхностей показано на рисунках 4.8 и 4.9.
Для аэродромов с ВПП различных классов внутренняя горизонтальная поверхность формируется радиусами, соответствующими классу каждой ВПП. Высота конической поверхности на таких аэродромах определяется высотой конической поверхности, устанавливаемой Нормами для ВПП наивысшего класса.
Для нанесения на план внешней границы конической поверхности необходимо радиусы внутренней горизонтальной поверхности (см. таблицу 4.1 Норм) увеличить на:
![]()
для аэродромов с ВПП класса I, II, III или на:
![]()
для аэродромов, не имеющих ВПП класса I, II, III.
На планы рекомендуется наносить формулы определения высоты ограничительных поверхностей. Эти формулы получаются подстановкой конкретных значений высоты аэродрома и радиуса r в формулы, приведенные на рисунках 4.8 и 4.9.
Например, для На=100 м и r = 4000 м высота внутренней горизонтальной поверхности будет равна:
![]()
На план наносится: "НВГ=150 м".
Аналогично, для части конической поверхности, расположенной со стороны порога ВПП:
.
На план наносится:
"
".
Обозначения: Н - высота поверхности ограничения препятствий; На - высота аэродрома; L - расстояние между порогами; r = 4000 м - аэродромы класса I, II, III; r = 3500 м - аэродромы класса IV; Dr = 2000 м - аэродромы класса I, II, III; Dr = 1200 м - аэродромы класса IV

Рис. 4.8. План внутренней горизонтальной и конической поверхностей для аэродрома с одной ВПП

Рис. 4.9. План внутренней горизонтальной и конической поверхностей для аэродрома с двумя ВПП
4.2.1.5. Планы поверхности захода на посадку и переходных поверхностей показаны на рисунках 4.10 и 4.11.
Внешняя граница той части переходной поверхности, которая расположена сбоку от ЛП (линия АВ на рисунках 4.10 и 4.11), криволинейна, т.к. расстояние от каждой точки линии АВ до осевой линии ЛП зависит от продольного профиля ЛП.
Расстояние (в метрах) от осевой линии ЛП до точки на этой границе равно:
500+7(На-Но) - для ВПП класса I, II, III,
325+5 (На-Но) - для ВПП класса IV,
где: На - абсолютная высота аэродрома;
Но - абсолютная высота осевой линии ЛП, соответствующая координате X точки на границе переходной поверхности.
При построении планов согласно рисункам 4.10 и 4.11 эта линия может быть показана прямой, соединяющей точки А и В.
Длина второго и горизонтального секторов поверхности захода на посадку ВПП класса I, II или III зависит от высоты горизонтального сектора (НГ), которая равна:
НГ=На+150
Показанная на рисунке 4.10 точка С, в которой заканчивается зона переходной поверхности, может располагаться в пределах длины как первого, так и второго сектора поверхности захода на посадку, в зависимости от соотношения высоты аэродрома На и порога ВПП (Нl).
На плане поверхности захода на посадку и переходной поверхности используется только прямоугольная система координат ХОУ, связанная с порогом ВПП, в направлении которого выполняется заход на посадку. Соответствующие оси координат указываются на плане (рисунки 4.10 и 4.11).
На эти планы также рекомендуется наносить формулы определения высоты ограничительных поверхностей. Эти формулы получаются подстановкой конкретных значений высоты порога ВПП (Нl) и высоты аэродрома (На) в формулы, приведенные на рисунках 4.10 и 4.11.

Рис. 4.10. План поверхности захода на посадку и переходных поверхностей для ВПП класса А, Б, В и Г

Рис. 4.11. План поверхности захода на посадку и переходных поверхностей для ВПП класса Д и Е
4.2.1.6. Поверхность захода на посадку и внутренняя горизонтальная или коническая поверхность могут иметь общие зоны. Для ограничения и устранения препятствий, находящихся одновременно как в зоне поверхности захода на посадку, так и в зоне внутренней горизонтальной или конической поверхности, должна использоваться та поверхность, которая в месте расположения препятствия имеет меньшую высоту.
Пример взаимного расположения поверхностей ограничения препятствий с учетом их высоты показан на рисунках 4.12 и 4.13.
В целях более наглядного представления расположения препятствий и облегчения принятия решений при согласовании строительства высотных объектов на прилегающей к аэродрому территории рекомендуется строить планы, аналогичные показанному на рисунке 4.13, для каждого направления полетов, желательно непосредственно на карте М 1:100 000. Такие планы могут включаться в акт обследования препятствий.
4.2.1.7. Для каждого аэродрома заполняются следующие одинаковые по форме расчетные таблицы (таблица 4.2):
а) расчетная таблица для внешней горизонтальной, внутренней горизонтальной и конической поверхностей (одна таблица - таблица 4.2.1);
б) расчетная таблица для поверхности захода на посадку и переходной поверхности (по одной на каждое направление захода на посадку - таблица 4.2.2 и т.д.).
Порядок заполнения расчетных таблиц 4.2 следующий:
в заголовке таблицы указывается наименование аэродрома и название тех поверхностей ограничения препятствий, для которых составляется данная таблица. При необходимости, указывается направление полета (МК = ....). Кроме того, в заголовке таблицы указывается порог ВПП, выбранный в качестве начала отсчета координат ХОУ ("Начало координат - порог ВПП с МКпос = ...");
в графах с 1 по 6 указываются данные о препятствиях, расположенных в зонах соответствующих поверхностей. Если одно и то же препятствие попадает в зоны нескольких поверхностей, оно вносится в соответствующие расчетные таблицы;
в графе 6 указывается высота осевой линии ЛП, соответствующая координате "X" препятствий, расположенных в зоне шириной ±750 м по обе стороны от оси летной полосы;
в графе 7 указывается обозначение соответствующей поверхности ограничения препятствий: ВШ - внешняя горизонтальная, К - коническая, ВГ - внутренняя горизонтальная, ЗП - захода на посадку, П - переходная;
в графе 8 указывается абсолютная высота (Н) ограничительной поверхности, вычисленная по приведенным на рисунках 4.8-4.11 формулам для значений координат Х и У препятствия.
Вследствие значительной сложности формы конической поверхности в случае аэродрома с несколькими ВПП ее высота в месте расположения препятствия определяется с помощью плана.
Для этого на плане замеряется кратчайшее расстояние (по перпендикуляру) от препятствия до границы внутренней горизонтальной поверхности (DL). Высота конической поверхности в месте расположения препятствия равна
Н=0,05DL+50м;
в графе 9 указывается разность (Нn-Н) между высотой препятствия (Нn) и высотой ограничивающей поверхности (Н);
в графе 10 для препятствий, возвышающихся над ограничительной поверхностью, указывается: "Критическое препятствие".
В этих расчетных таблицах координаты X, У (графы 3 и 4) и высоты препятствий (графа 5) указываются в соответствии с перечнем препятствий аэродрома, а высота поверхности ограничения препятствий (графа 8) указывается с округлением до 0,1 м.
Превышение препятствия над ограничительной поверхностью (графа 9) указывается с округлением до 0,1 м.
4.2.1.8. Препятствия, определенные во всех расчетных таблицах как критические, сводятся в единую таблицу "Критические препятствия по аэродрому..." (таблица 4.3).
Порядок заполнения таблицы 4.3 следующий:
в графах с 1 по 6 указываются данные о расположении и высоте критических препятствий, причем положение этих препятствий указывается в полярной системе координат, поскольку данная таблица является общей по аэродрому. Номера и наименование препятствий в ней указываются в соответствии с перечнем препятствий аэродрома;
в графе 7 указывается ограничивающая поверхность. Если препятствие пересекает одновременно несколько поверхностей, в графе 7 указывается каждая из этих поверхностей;
в графе 8 указывается величина возвышения препятствия над каждой из ограничивающих поверхностей;
в графе 9 указываются мероприятия по устранению критических препятствий.


Рис. 4.13. План взаимного расположения поверхностей ограничения для ВПП классов I, II, III
Расчетная таблица
для______________________________________________________________________________________
(указывается наименование поверхностей ограничения препятствий и, при
необходимости, МК =___)
_________________________________________________________________________________________
Аэродром___________________Начало координат ХОУ - порог ВПП с МКпос =___
|
№ препятствия* |
Наименование препятствия |
Расстояние от порога ВПП, м (Х) |
Расстояние от оси ВПП или ее продолжения, м (У) |
Абсолютная отметка препятствия, м (Нn) |
Абсолютная отметка оси ВПП, соответствующая координате Х, м * (Но) |
Поверхность ограничения препятствий |
Абсолютная высота ограничивающей поверхности, м (Н) |
Превышение препятствия над ограничивающей поверхностью, м (Нn - Н) |
Примечание |
|
1 |
2 |
3 |
4 |
5 |
6 |
7 |
8 |
9 |
10 |
|
|
|
|
|
|
|
|
|
|
|
|
* Номера и наименование препятствий проставляются в соответствии с перечнем препятствий аэродрома. ** Заполняется только в расчетных таблицах для поверхности захода на посадку, переходных поверхностей, внутренней поверхности захода на посадку, внутренних переходных поверхностей и поверхности прерванной посадки для препятствий, расположенных не далее 750 м в каждую сторону от оси ВПП в пределах длины ЛП. |
|||||||||
Критические препятствия по аэродрому
________________________________
(наименование)
|
№ препятствия* |
Наименование препятствия |
Удаление от КТА, м (Sn) |
Истинный азимут (Аn) |
Абсолютная
отметка препятствия м ( |
Ограничивающая поверхность |
Превышение препятствия над ограничивающей поверхностью, м |
Мероприятия по устранению критических препятствий |
|
|
град. |
мин. |
|||||||
|
1 |
2 |
3 |
4 |
5 |
6 |
7 |
8 |
9 |
|
|
|
|
|
|
|
|
|
|
|
|
|
|||||||
|
* Номера и наименование препятствий проставляются в соответствии с перечнем препятствий аэродрома. |
||||||||
4.2.1.9. Выявление всех критических препятствий и проведение мер по их устранению означает соответствие требованиям пункта 4.2.1 Норм.
В этом случае в таблице соответствия указывается:
в графе 2 - "Определен перечень критических препятствий в пределах поверхностей ограничения препятствий (внешняя горизонтальная, коническая, внутренняя горизонтальная, захода на посадку и переходные) и приняты меры по их устранению";
в графе 4 - "Соответствует".
ВПП точного захода на посадку I, II, III категорий
Нумерация пунктов приводится в соответствии с источником
4.2.3. Требования Норм по ограничению и устранению препятствий для аэродромов с ВПП, оборудованными для точного захода на посадку по минимумам I, II или III категории (пункт 4.2.3 Норм) кроме всех требований Норм по ограничению и устранению препятствий для ВПП, оборудованных для захода на посадку по приборам (пункт 4.2.1 Норм), включают дополнительные требования по обеспечению вблизи ВПП свободного от препятствий воздушного пространства, ограниченного следующими поверхностями:
внутренней поверхностью захода на посадку;
внутренними переходными поверхностями;
поверхностью прерванной посадки.
Расположение этих поверхностей относительно ВПП и переходных поверхностей показано на рисунке 4.14.

4.2.4. Для проведения мероприятий по устранению существующих препятствий, выступающих за внешнюю горизонтальную поверхность, коническую поверхность, внутреннюю горизонтальную поверхность, поверхность захода на посадку и переходные поверхности, указанных в Нормах (пункт 4.2.4), необходимо руководствоваться пунктами 4.2.1.1-4.2.1.7 настоящих Методик.
Отсутствие препятствий, выступающих за внутреннюю поверхность захода на посадку (ВЗП), внутренние переходные поверхности (ВП) и поверхность прерванной посадки (ПП), подтверждается с использованием соответствующих планов (рисунки 4.15 и 4.16) и расчетных таблиц (таблица 4.4), составляемых для каждого направления, оборудованного для точного захода на посадку по минимумам I, II, III категории.


Планы подготавливаются аналогично пунктам 4.2.1.2-4.2.1.4 настоящих Методик с использованием масштаба не менее 1:20 000.
Выявление всех критических препятствий и проведение мер по их устранению означает соответствие требованиям пункта 4.2.2 Норм.
В этом случае в таблице соответствия указывается:
в графе 2 - "Определен перечень критических препятствий в пределах поверхностей ограничения препятствий (внешняя горизонтальная, коническая, внутренняя горизонтальная, захода на посадку и переходные) и приняты меры по их устранению";
"Препятствия, возвышающиеся над внутренней поверхностью захода на посадку, внутренними переходными поверхностями и поверхностью прерванной посадки с МК = .___, отсутствуют";
в графе 4 - "Соответствует".
ВПП для взлета
Нумерация пунктов приводится в соответствии с источником
4.2.5. Требование Норм по ограничению и устранению препятствий для взлета предусматривает создание для каждого направления взлета некоторого свободного от препятствий воздушного пространства, в пределах которого воздушное судно при продолженном взлете может достичь некоторой минимальной высоты, на которой возможен заход на посадку на аэродроме вылета или разгон для дальнейшего выхода на схему вылета и следования по ней. Это воздушное пространство определяется поверхностью взлета (рисунок 4.17).
Поверхность взлета устанавливается вдоль траектории продолженного взлета. Как правило, такой траекторией (в плане) является продолжение осевой линии ВПП.

Рис. 4.17. План поверхности взлета.
4.2.5.1. План поверхности взлета подготавливается для каждого направления взлета в том же масштабе, что и планы поверхностей захода на посадку и переходных поверхностей.
Это позволяет совмещать эти планы для рассматриваемого направления полетов, т.е. выполнять их на одном листе.
При построении плана поверхности взлета используется прямоугольная система координат ХОУ, связанная с порогом ВПП, от которого начинается разбег при взлете (рисунок 4.17). Соответствующие оси координат указываются на плане.
4.2.5.2. Для каждого направления взлета необходимо заполнить расчетную таблицу (таблица 3.4), причем целесообразно ее объединить с расчетной таблицей для поверхности захода на посадку и переходных поверхностей для того же направления полета.
Порядок заполнения расчетной таблицы для поверхности взлета (или той части объединенной таблицы, которая относится к взлету), следующий:
в графах с 1 по 5 указываются данные о препятствиях, расположенных в пределах поверхности взлета (рисунок 4.17);
в графе 6 делается прочерк;
в графе 7 указывается обозначение поверхности взлета (В);
в графе 8 указывается абсолютная высота поверхности взлета в месте расположения препятствия, определяемая по формуле на рисунке 4.17. Необходимое для подстановки в формулу расстояние D определяется по формуле:
;
в графе 9 указывается разность (Нn-Н) между высотой препятствия (Нn) и высотой ограничивающей поверхности (Н);
в графе 10 по препятствиям, возвышающимся над поверхностью взлета, указывается: "Критическое препятствие".
В зависимости от соотношения высоты аэродрома (На и высоты нижней границы поверхности взлета (Н2) зона поверхности взлета может иметь такие общие части с зонами внутренней горизонтальной и конической поверхностей, в которых внутренняя горизонтальная поверхность или коническая поверхность находятся ниже поверхности взлета и, таким образом, являются ограничивающими поверхностями. Пример такого расположения поверхностей и образования ими результирующей поверхности ограничения препятствий показан на рисунках 4.12 и 4.13.
4.2.5.3. Выявление всех критических препятствий в пределах поверхности взлета и определение мер по их устранению означает соответствие требованиям пункта 4.2.5 Норм.
В этом случае в таблице соответствия указывается:
в графе 2 - "Определен перечень критических препятствий в пределах поверхности взлета и намечены меры по их устранению";
в графе 4 - "Соответствует".
4.3. Учет препятствий при посадке и взлете
4.3.1. Для выполнения требований пункта 4.3.1 Норм в части представления данных о препятствиях необходимо определить препятствия в пределах поверхности взлета, которые возвышаются над информационной поверхностью (рисунок 4.18). Такие препятствия выявляются с помощью расчетных таблиц, составляемых для каждого направления взлета (таблица 4.4).
Порядок заполнения таблиц 4.4 следующий:
в графы с 1 по 5 вносятся данные о расположении и высоте препятствий, расположенных в пределах поверхности взлета;
в графе 6 указывается расстояние D от начала поверхности взлета до препятствия. Расстояние D определяется по формуле:
;
в графе 7 указывается абсолютная высота информационной поверхности в месте расположения препятствия H (рисунок 4.18);
в графе 8 указывается разность (Нn-Н) между абсолютной высотой препятствия Нn и высотой информационной поверхности Н с соответствующим знаком;
в графе 9 по препятствиям, возвышающимся над информационной поверхностью, указывается: "Внесено в таблицу 4.5".
Препятствия, возвышающиеся над информационной поверхностью, вносятся в таблицу 4.5 "Препятствия, которые необходимо учитывать при определении максимальной взлетной массы ВС". При отсутствии таких препятствий на данном направлении взлета в таблице 4.5 по данному направлению взлета делается запись: "Отсутствуют препятствия, возвышающиеся над информационной поверхностью".
Порядок заполнения таблицы 4.5 следующий:
в графе 1 указывается № препятствия в соответствии с перечнем препятствий аэродрома;
в графе 2 указывается наименование препятствия, возвышающегося над информационной поверхностью;
в графе 3 указывается
расстояние от препятствия до конца ВПП со стороны взлета, определяемое как
;
в графе 4 указывается превышение препятствия над уровнем конца ВПП со стороны взлета (Нв), т.е. величина Нn-Нв.
Таблица 4.5 вносится в Инструкцию по производству полетов и в Акт обследования препятствий.
После составления таблицы 4.5 в таблице соответствия указывается:
в графе 2 - "Препятствия, возвышающиеся над информационной поверхностью в направлении взлета, указаны отдельно в инструкции по производству полетов";
в графе 4 - "Соответствует".

Расчетная таблица
для определения препятствий, возвышающихся над информационной поверхностью в
направлении взлета с МК взл =________
Аэродром_____________________________
(наименование)
Начало координат ХОУ - порог ВПП с МКпос =__________
|
№ препятствия* |
Наименование препятствия |
Расстояние от порога ВПП, м (X) |
Расстояние от оси ВПП или ее продолжения, м (У) |
Абсолютная отметка препятствия, м (Н_п) |
Расстояние D, м |
Абсолютная высота информационной поверхности, м (Н) |
Превышение препятствия над информационной поверхностью, м (Н п - Н) |
Примечание |
|
1 |
2 |
3 |
4 |
5 |
6 |
7 |
8 |
9 |
|
|
|
|
|
|
|
|
|
|
|
* Номера и наименования препятствий проставляются в соответствии с перечнем препятствий аэродрома. |
||||||||
Препятствия, которые необходимо учитывать
при определении
максимальной взлетной массы ВС на аэродроме____________________
(наименование)
|
№ препятствия |
Наименование препятствия |
Расстояние до конца ВПП, м |
Высота над уровнем конца ВПП, м |
|
1 |
2 |
3 |
4 |
|
МКвзл=____ |
|||
|
|
|
|
|
|
|
|
|
|
|
|
|
|
|
|
МКвзл=____ |
|||
|
|
|
|
|
4.3.2. Для выполнения требований пункта 4.3.2 Норм применяются положения, указанные в "Единой методике определения минимумов аэродромов для взлета и посадки воздушных судов" и других нормативных документах.
При выполнении требований по учету препятствий при посадке в таблице соответствия указывается:
в графе 2 - "Препятствия, выявленные согласно раздела 4.1 Норм, учтены:
при установлении минимальных безопасных высот пролета препятствий (таблица 4.6);
при установлении высот полета на промежуточном этапе захода на посадку;
при установлении высот полета по аэродромному кругу;
при установлении минимальных безопасных высот (МБВ) в районе аэродрома";
в графе 4 - "Соответствует".
Таблица 4.6
Минимальные безопасные высоты пролета препятствий
|
Категория ВС |
Категория РМС |
РСП (ПРЛ) |
ОСП |
ОПРС |
Примечание |
|
|
I |
II |
|||||
|
1 |
2 |
3 |
4 |
5 |
6 |
7 |
|
МКпос=____ |
||||||
|
А |
|
|
|
|
|
|
|
В |
|
|
|
|
|
|
|
С |
|
|
|
|
|
|
|
D |
|
|
|
|
|
|
|
Е |
|
|
|
|
|
|
|
МКпос=____ |
||||||
|
А |
|
|
|
|
|
|
|
В |
|
|
|
|
|
|
|
С |
|
|
|
|
|
|
|
D |
|
|
|
|
|
|
|
Е |
|
|
|
|
|
|
5.1. Методика оценки соответствия маркировки покрытий ИВПП
5.1.1. Оценка соответствия маркировки покрытий ИВПП производится как визуально, так и инструментально с помощью измерительных инструментов. В процессе проверки соответствия определяются наличие, количество и размеры, а также взаиморасположение знаков: порога ИВПП, зон фиксированного расстояния и приземления, обозначения ПМПУ, центра ИВПП (КТА) и продольной оси полосы.
5.1.2. Для определения необходимого количества маркировочных полос обозначения порога ИВПП в зависимости от ширины ИВПП целесообразно руководствоваться следующими результатами расчета:
|
Ширина ИВПП, м |
60 и более |
40 |
32 |
28 |
|
Количество маркировочных полос порога |
14 |
10 |
8 |
6 |
5.1.3. При параллельных ИВПП визуально определяется наличие знаков "L" и "R" и измеряются расстояния между знаками порога и ПМПУ.
5.1.4. Маркировка осевой линии ВПП определяется визуальным и инструментальным способом.
5.1.5. Визуально определяется линия выхода с ИВПП на РД на участке сопряжения РД с ИВПП, которая должна начинаться не менее, чем за 60 м до криволинейного участка перехода ее в осевую линию РД и располагаться параллельно осевой линии ИВПП.
5.1.6. В местах пересечения ИВПП проверяется сохранность маркировки главной ИВПП и прерывание маркировки вспомогательной ИВПП.
5.1.7. На ИВПП точного захода на посадку I, II или III категории устанавливают наличие маркировки края ИВПП, ее размер (ширина) и расположение, а также определяют, прерывается ли маркировка края в местах примыкания РД к ВПП и в местах пересечения ИВПП.
5.1.8. При постоянно или временно смещенном пороге ИВПП определяются: наличие, размеры и расположение поперечной линии, обозначающей смещенный порог; стрелок-указателей, преобразованных из старой маркировки осевой полосы. Необходимо также убедиться в ликвидации всех остальных маркировочных знаков на неиспользуемом участке ИВПП.
5.1.9. Визуально оценивается цвет всех маркировочных знаков ИВПП.
5.2. Методика оценки соответствия маркировки рулежных дорожек с искусственным покрытием
5.2.1. При оценке соответствия маркировки РД визуально и инструментально устанавливаются наличие, размеры и расположение маркировочных знаков продольной оси, мест ожидания на РД и боковых маркировочных полос (при их необходимости).
Боковые маркировочные полосы наносятся для обозначения ненесущих покрытий РД, а также трудно различимых покрытий обочин РД от покрытий самих РД.
5.2.2. Измеряется ширина маркировочной полосы осевой линии РД.
5.2.3. Протяженность маркировочной линии оси РД, продолженной параллельно оси ВПП, определяется инструментально (рисунок 5.1).
5.2.4.-5.2.5. Удаленность маркировки места ожидания на РД от оборудованных и необорудованных ВПП определяется с помощью измерительных инструментов. Измерения производятся перпендикулярно к осевой линии ВПП.
5.2.6. Цвет всех маркировочных знаков РД оценивается визуально.

5.3. Методика оценки соответствия маркировки мест стоянок (площадок)
5.3.1-5.3.3. Проверяется наличие геодезической привязки мест стоянок (площадок). Визуально определяется наличие маркировочных знаков:
оси руления ВС (линии заруливания, разворотов и выруливания);
Т-образный знак остановки ВС и спецмашин;
номер стоянки;
границы зон повышенной опасности для обслуживающего ВС авиационным персоналом
при гонках двигателей;
пути движения спецмашин при обслуживании ВС.
В соответствии с утвержденной схемой расстановки ВС на местах стоянок (площадках) определяется интервал между концевыми обтекателями крыльев рядом стоящих ВС.
5.4. Методика оценки соответствия дневных ориентиров и призм
5.4.1. Визуально проверяется наличие на аэродроме установленных дневных ориентиров по оси ИВПП между ДПРМ и БПРМ, а также призм для обозначения боковых границ полосы подхода, боковых границ ИВПП, начала и конца ИВПП, зоны приземления.
5.5. Методика оценки соответствия дневной маркировки препятствий и объектов
5.5.1-5.5.7. Проверяется наличие маркировки на всех неподвижных постоянных и временных объектах и сооружениях, которые в соответствии с требованиями Главы IV Норм и Главы IV Методик должны быть замаркированы.
Проверяется наличие маркировки на объектах УВД, радионавигации и посадки, расположенных в пределах ограждения аэродрома.
Визуально оценивается цвет маркировочных знаков на объектах и сооружениях.
5.6. Методика оценки соответствия светоограждения препятствий и объектов
5.6.1.-5.6.8. Наличие оборудования светоограждения на объектах РСТО, УВД и других объектах непосредственно на аэродроме проверяется внешним осмотром.
Проверка светоограждения объектов других ведомств, расположенных в пределах приаэродромной территории, которые определены согласно требованиям Норм, производится по документам согласования на разрешение строительства с указанием схемы размещения, электропитания, управления и характеристик (типа) установленного оборудования, а также внешним осмотром. Правильность расположения огней по ярусам, а также правильность и качество световой маркировки объектов проверяются по документации на установку объектов и внешним осмотром (визуально).
Оценка соответствия РТО Нормам производится на основе наземных и летных проверок, состава, размещения, параметров имеющегося на аэродроме оборудования и сопоставления полученных результатов с требованиями Норм.
Результаты проверок заносятся в таблицы соответствия для РТО (таблицы 6.1 и 6.2).
Примеры заполнения таблиц соответствия (по общим требованиям таблицы 6.1, по радиотехническому оборудованию - таблица 6.2) приводятся далее (см. соответствующие разделы данной главы).
Порядок заполнения таблиц соответствия следующий:
графа 1 - указываются номера оцениваемых пунктов Норм;
графа 2 - указываются результаты проверок и испытаний по соответствующим пунктам Норм;
графа 3 - указывается порядковый номер подтверждающего документа;
в качестве подтверждающего документа могут быть: ИПП в районе аэродрома; акт приемки в эксплуатацию объекта; акт летной проверки; протокол наземной проверки и др.
Перечень подтверждающих документов указывается после каждого вида оборудования, оцениваемого на соответствие Нормам.
графа 4 - указываются результаты сопоставления итогов проверок и испытаний с требованиями Норм и делается запись:
"Соответствует" - в случае соответствия оцениваемого параметра требованиям Норм;
"Эквивалентно соответствует" - в случае наличия заключения об обеспечении эквивалентного уровня безопасности полетов при имеющемся отступлении от Норм;
"Не соответствует" - в случае несоответствия оцениваемого параметра требованиям Норм и отсутствия вышеуказанного заключения;
графа 5 - при наличии отступлений от Норм указываются номера, даты и названия документов, в соответствии с которыми авиационной организацией выполнены мероприятия по обеспечению эквивалентного уровня безопасности полетов, а также отражается дополнительная информация, поясняющая (при необходимости) содержание записей в других графах таблицы.
По пунктам Норм, имеющим рекомендательный характер, в графе 2 указываются фактические значения результатов проверки, в графе 4 - ставится прочерк, в графе 5 - указывается: "Рекомендация".
Если на аэродроме не установлено какое-либо оборудование, то подраздел таблицы соответствия на данный вид оборудования не заполняется и делается запись: "Оборудование не установлено".
Если на аэродроме установлено несколько комплектов оборудования (например, два РСБН, два ПРЛ) на одной ИВПП, то таблица соответствия заполняется на каждый комплект оборудования.
6.1. Методика оценки соответствия общим требованиям к РТО полетов аэродрома
6.1.1. Оценка соответствия параметров и характеристик РТО требованиям эксплуатационной документации производится в ходе проверки функционирования конкретного РТО в реальных условиях эксплуатации при одновременной работе радиотехнических средств, установленных на аэродроме.
6.1.2. Оценка соответствия производится путем проверки соответствующих записей в формулярах на конкретный тип оборудования.
6.1.3. Состояние подъездных путей проверяется визуально при объезде объектов РТО.
6.1.4. Оценка соответствия по данному пункту производится в ходе проверки формуляров (паспортов) и удостоверений годности к эксплуатации оборудования, указанного в таблице 6.1. Норм.
Категория оборудования РМС определяется по формуляру и удостоверению годности, а категория эксплуатируемого направления посадки - по Сборнику аэронавигационной информации.
Категория оборудования РМС не должна быть ниже категории эксплуатируемого направления посадки.
Все результаты проверок и оценок заносятся в таблицу соответствия радиосветотехнического оборудования аэродрома общим требованиям Норм (таблица 6.1).
6.2. Методика оценки соответствия требований к размещению РТО
Проводится проверка документации на установку и приемки в эксплуатацию конкретного типа оборудования.
6.2.1. Оценка правильности размещения антенн РМС (КРМ, ГРМ) производится при проверке соответствия документации на установку радиомаяков требованиям Норм.
Оценка угла наклона глиссады выполняется путем проверки значения угла наклона глиссады направления посадки, указанного в ИПП.
Оценка высоты опорной точки ИЛС (СП) выполняется в соответствии с действующим руководством по летной проверке радиомаяков систем посадки. Для расчета опорной точки ИЛС (СП) ГРМ I категории используется участок глиссады на удалении от 7400 до 1050 м, для ГРМ II и III категории - на удалении от 1830 до 300 м.
6.2.2.-6.2.4. Проверка размещения БПРС, ДПРС, БМРМ, ДМРМ, АРП, РСБН производится при оценке соответствия документации на их установку Нормам или при сравнении данных геодезической съемки с положениями Норм.
6.2.5. Проверка правильности размещения и регулировки ПРЛ производится при оценке соответствия документации на установку радиолокатора на аэродроме требованиям Норм. Качество регулировки проверяется на соответствие требованиям эксплуатационной документации на конкретный тип оборудования.
6.3. Методики оценки соответствия требований к РТО
6.3.1. Методика оценки соответствия радиомаячных систем посадки
Дециметровый диапазон волн
6.3.1.1. Оценка состава оборудования данной системы выполняется визуально путем проверки наличия оборудования на аэродроме.
6.3.1.2.-6.3.1.4. Оценка соответствия производится в ходе проверки функционирования конкретного типа оборудования.
6.3.1.5.-6.3.1.6 Размеры критических зон КРМ и ГРМ оцениваются по "Схеме расположения критических зон КРМ и ГРМ", приводимой в ИПП в районе аэродрома. Проверка маркировки мест ожидания ВС на РД и наличия дорожных знаков и щитов в местах пересечения критических зон с внутриаэродромными дорогами производится визуально.
6.3.1.7.-6.3.1.18. Оценка параметров радиомаяков и ретранслятора радиодальномера производится по результатам наземных проверок, проводимых в соответствии с регламентом технического обслуживания, изложенным в действующей эксплуатационной документации, и летных проверок в соответствии с программами и методиками, изложенными в действующем руководстве по летной проверке наземных средств радиосветотехнического обеспечения полетов и связи.
Метровый диапазон волн
6.3.1.19 Оценка состава оборудования данной системы выполняется визуально путем проверки наличия оборудования на аэродроме.
6.3.1.20. Оценка параметров производится в соответствии с пунктами 6.3.1.2.-6.3.1.5.
6.3.1.21.-6.3.1.65. Оценка параметров радиомаяков производится по результатам наземных проверок, проводимых в соответствии с регламентом технического обслуживания, изложенным в действующей эксплуатационной документации, и летных проверок в соответствии с программами и методиками по летной проверке наземных средств радиосветотехнического обеспечения полетов и связи.
Проверка срабатывания системы автоматического контроля при уменьшении мощности излучения КРМ и ГРМ (50% для одночастотного и 80% для двухчастотного) производится при выполнении полетов по оценке зоны действия КРМ и ГРМ и структуры курса и глиссады. В акте летной проверки, в графе "Примечание", делается запись о значении мощности излучения, при котором выполнялась данная проверка.
6.3.2. Методика оценки соответствия радиотехнической системы ближней навигации (РСБН)
6.3.2.1.-6.3.2.2. Проверка обеспечения непрерывности измерения текущих значений азимута и дальности на борту ВС с заданной погрешностью измерения производится в соответствии с программой и методикой летной проверки наземных радиотехнических систем ближней навигации.
6.3.2.3. Дальность действия маяка РСБН оценивается в соответствии с программами и методиками по летной проверке наземных средств радиосветотехнического обеспечения полетов и связи и эксплуатационной документацией на оборудование данного типа.
6.3.2.4. Проверка системы контроля, дистанционного и местного управления выполняется в соответствии с эксплуатационной документацией на оборудование данного типа.
6.3.3. Методика оценки соответствия системы посадки ОСП
Приводные радиостанции
6.3.3.1. Оценка состава системы посадки ОСП производится путем проверки фактического наличия на объектах ОСП оборудования, а также наличия формуляров на эти изделия.
6.3.3.2.-6.3.3.5. Оценка параметров и характеристик приводных радиостанций производится по результатам наземных проверок в соответствии с программами и методиками, изложенными в руководстве по летной проверке наземных средств радиосветотехнического обеспечения полетов и связи.
6.3.3.6.-6.3.3.7. Проверка правильности работы автоматической системы контроля и управление работой ПРС в дистанционном и местном режимах производится согласно эксплуатационной документации на оборудование данного типа.
Маркерные радиомаяки
6.3.3.8.-6.3.3.13. Оценка параметров маркерных радиомаяков систем посадки I, II или III категории для направлений посадки, на которых установлена система посадки ИЛС (СП) производится в соответствии с действующими программой и методикой летной проверки приводных радиостанций для направлений посадки, на которых отсутствует система посадки ИЛС (СП).
6.3.3.14. Проверка правильности работы автоматической системы контроля, и управление работой МРМ в дистанционном и местном режимах производится согласно эксплуатационной документации на оборудование данного типа.
Автоматический радиопеленгатор (АРП)
6.3.3.15.-6.3.3.16. Проверка обеспечения уверенного пеленгования ВС в секторах прохождения контролируемых маршрутов полета в районе аэродрома и оценка среднеквадратичной погрешности АРП по индикатору производятся согласно программе и методике летных испытаний АРП.
6.3.3.17-6.3.3.18. Оценка дальности пеленгования и управления работой радиопеленгатора выполняется в соответствии с руководством по летной проверке наземных средств радиосветотехнического обеспечения полетов и связи, а также эксплуатационной документацией на оборудование данного типа.
6.3.4. Методика оценки соответствия радиолокационных средств обеспечения полетов
ОРЛ-А (Первичный радиолокатор)
6.3.4.1. Отсутствие или наличие радиолокационной информации, а также ложных отметок, определяется визуально на рабочих местах пунктов УВД.
6.3.4.2.-6.3.4.5. Проверка вероятности обнаружения ВС на контролируемых маршрутах полетов и вероятности получения дополнительной информации, дальности действия, точностных характеристик, разрешающей способности и периодичности обновления радиолокационной информации выполняется в соответствии с программами и методиками наземных и летных проверок радиолокационных средств УВД, а также эксплуатационной документацией на оборудование данного типа.
Вторичный радиолокатор
6.3.4.6. Отсутствие или наличие радиолокационной информации, а также ложных отметок, определяется визуально на рабочих местах пунктов УВД.
6.3.4.7.-6.3.4.11. Проверка вероятности обнаружения ВС на контролируемых маршрутах полетов и вероятности получения дополнительной информации, дальности действия, точностных характеристик, разрешающей способности и периодичности обновления радиолокационной информации выполняется в соответствии с программами и методиками наземных и летных проверок радиолокационных средств УВД, а также эксплуатационной документацией на оборудование данного типа.
ПРЛ (Посадочный радиолокатор)
6.3.4.12.-6.3.4.14. Проверка зоны действия ПРЛ, а также максимально допустимых погрешностей определения расстояния от ВС до точки приземления и отклонения ВС от линии курса и заданной траектории снижения производится в соответствии с действующими программой и методикой наземных и летных проверок радиолокационных средств УВД.
Расчет вероятности обнаружения ВС производится в соответствии с эксплуатационной документацией.
6.3.4.15.-6.3.4.16. Оценка разрешающей способности ПРЛ и периодичности обновления радиолокационной информации выполняется в соответствии с программами и методиками наземных и летных проверок радиолокационных средств УВД, а также эксплуатационной документацией на оборудование данного типа.
6.3.4.17. Проверка совпадения электронных линий курса и глиссады, формируемых на экране ПРЛ, с линиями курса и глиссады ИЛС производится визуально при заходе ВС на посадку по ИЛС. Диспетчер посадки предупреждает экипаж о проведении проверки и необходимости выдерживания ВС на линиях курса и глиссады ИЛС. При этом отметка на экране ПРЛ должна находиться на электронных линиях курса и глиссады. Проверка совпадения производится на участке от точки входа в глиссаду до отметки на расстоянии 1000 м от порога ВПП.
6.3.5. Методика оценки соответствия радиолокационной станции обзора летного поля (РЛС ОЛП)
6.3.5.1.-6.3.5.5. Оценка технических параметров РЛС обзора летного поля по обеспечению обнаружения ВС и транспортных средств, а также оценка отображаемой на экране индикатора информации, проводятся в соответствии с эксплуатационной документацией на оборудование данного типа и актами проверки точностных характеристик РЛС ОЛП при вводе.
6.3.6. Оценка соответствия параметров радиомаяка системы ВОР (VOR)
6.3.6.1.-6.3.6.8. Проверка технических параметров маяка проводится в соответствии с действующим руководством по летной проверке наземных средств радиосветотехнического обеспечения полетов и связи и эксплуатационной документацией на оборудование данного типа.
6.3.7. Оценка соответствия параметров приемоответчика системы ДМЕ/Н
6.3.7.1.-6.3.7.7. Проверка параметров приемоответчика выполняется в соответствии с руководством по летной проверке наземных средств радиосветотехнического обеспечения полетов и связи и эксплуатационной документацией на оборудование данного типа.
(образец заполнения)
Таблица соответствия
радиосветотехнического оборудования аэродрома________________________
(наименование
аэродрома)
общим требованиям Норм годности к эксплуатации аэродромов экспериментальной
авиации
|
Пункты НГЭА ЭА |
Результаты проверок и испытаний |
Подтверждающий документ |
Соответствие НГЭА ЭА |
Примечание |
|
1 |
2 |
3 |
4 |
5 |
|
6.1.1. |
Оборудование имеет эксплуатационную документацию предприятия-изготовителя |
3; 4 |
Соответствует |
|
|
6.1.2. |
Оборудование обеспечивает выполнение своих функций с требуемым качеством в реальных условиях эксплуатации |
1; 2 |
Соответствует |
|
|
6.1.3. |
Оборудование эксплуатируется в пределах срока службы |
5; 6 |
Соответствует |
|
|
6.1.4. |
Состояние подъездных путей к объектам удовлетворительное |
3 |
Соответствует |
|
|
6.1.5-6.1.6. |
Направление посадки с МКпос-100° оборудовано по I категории: |
5; 6 |
Соответствует |
|
|
|
РМС типа СП-80 - I категории; |
|
|
|
|
|
ССО типа Д-2 - I категории |
|
|
|
|
|
Направление посадки с МКпос-180° некатегорировано: |
|
|
|
|
|
- РМС типа ПРМГ-76У - без категории; |
|
|
|
|
|
- ССО типа "Свеча" - без категории |
|
|
|
|
Подтверждающие документы: |
||||
|
1. Акты летных проверок РТО. |
||||
|
2. Протоколы наземных проверок РТО. |
||||
|
3. Протокол проверки средств РТО и диспетчерских пунктов аэродрома. |
||||
|
4. Протокол проверки по ССО. |
||||
|
5. Удостоверение годности на ССО типа Д-2. |
||||
|
6. Формуляры на РМС СП-80 зав. № 100, ПРМГ-76У зав. № 150. |
||||
Руководитель авиационной организации ЭА _________ __________ _______
(подпись) (Ф.И.О.) (дата)
М.П.
(образец заполнения)
Таблица соответствия
радиотехнического оборудования и диспетчерских пунктов УВД аэродрома
______________________требованиям Норм годности к
(наименование аэродрома)
эксплуатации аэродромов экспериментальной авиации
|
Пункт НГЭА ЭА |
Результаты проверок и испытаний |
Подтверждающий документ |
Соответствие НГЭА ЭА |
Примечание |
|
1 |
2 |
3 |
4 |
5 |
|
Размещение радиотехнического оборудования. |
||||
|
6.2. |
Размещение РТО соответствует типовой схеме |
1, 4 |
Соответствует |
|
|
6.2.1.1- |
МКпос=100° |
2, 3, 4 |
Соответствует |
|
|
6.2.1.4. |
Размещение КРМ и ГРМ соответствует требованиям Норм. |
|
|
|
|
|
УНГ = 2 град 50 мин |
|
|
|
|
|
Нот = 17,1 м |
|
|
|
|
|
МКпос=280° |
|
|
|
|
|
Размещение КРМ, ГРМ и ретранслятора радиодальномера соответствует требованиям Норм. |
|
|
|
|
|
УНГ = 2 град 50 мин |
|
|
|
|
|
Нот = 16,1 м |
|
|
|
|
6.2.2.1. |
Антенны приводных радиостанций размещены от порога ВПП на удалении: |
2, 4 |
- |
Рекомендация |
|
|
МКпос=100° |
|
|
|
|
|
БПРС - 1000 м |
|
|
|
|
|
ДПРС - 4500 м |
|
|
|
|
|
МКпос=280°: |
|
|
|
|
|
БПРС - 900 м |
|
|
|
|
|
ДПРС - 4000 м |
|
|
|
|
6.2.2.1. |
Размещение маркерных радиомаяков обеспечивает выполнение их функционального назначения, при этом удаление от порога ВПП составляет: |
2, 4 |
- |
Рекомендация |
|
|
МКпос=100° |
|
|
|
|
|
БМРМ - 1000 м |
|
|
|
|
|
ДМРМ - 4500 м |
|
|
|
|
|
МКпос=280° |
|
|
|
|
|
БМРМ - 900 м |
|
|
|
|
|
ДМРМ - 4000 м |
|
|
|
|
6.2.3.1. |
Автоматический пеленгатор установлен в соответствии с требованиями Норм |
2, 4 |
- |
Рекомендация |
|
6.2.4.1-6.2.4.3. |
Радиотехническая система ближней навигации установлена в соответствии с требованиями Норм |
2, 4 |
|
Рекомендация |
|
6.2.5.1. |
Оборудование системы посадки (ОСП) установлено в соответствии с требованиями Норм |
2, 4 |
|
Рекомендация |
|
|
Подтверждающие документы: |
|||
|
|
1. Типовая схема размещения. |
|||
|
|
2. Документация на установку соответствующего типа оборудования: проект, арх. № |
|||
|
|
3. Акт летной проверки РМС. |
|||
|
|
4. ИПП в районе аэродрома (наименование аэродрома). |
|||
|
Радиомаячная система посадки (дециметровый диапазон волн) МК пос - 280° |
||||
|
6.3.1.1. |
Состав оборудования полный |
1 |
Соответствует |
|
|
6.3.1.2-6.3.1.4. |
Работоспособность оборудования обеспечивается в соответствии с Нормами |
2, 4 |
Соответствует |
|
|
6.3.1.5, 6.3.1.6. |
Критические зоны КРМ и ГРМ отмаркированы в местах ожидания ВС. Размеры критических зон КРМ и ГРМ |
1, 2 |
Соответствует |
|
|
|
соответствуют требованиям Норм |
|
|
|
|
6.3.1.7-6.3.1.17 |
Параметры КРМ и ГРМ удовлетворяют требованиям Норм (без категории) |
3, 4 |
Соответствует |
|
|
6.3.1.18 |
Параметры ретранслятора радиодальномера удовлетворяют требованиям Норм |
1, 5 |
Соответствует |
|
|
|
Подтверждающие документы: |
|||
|
|
1. Протокол проверки РТО. |
|||
|
|
2. ИПП в районе аэродрома (наименование аэродрома). |
|||
|
|
3. Акты летных проверок РМС. |
|||
|
|
4. Протоколы наземной проверки РМС. |
|||
|
|
5. Протокол проверки ретранслятора радиодальномера. |
|||
|
Метровый диапазон волн МК пос - 100° |
||||
|
6.3.1.19 |
Состав оборудования полный |
1 |
Соответствует |
|
|
6.3.1.20 |
Работоспособность оборудования обеспечивается. Критические зоны КРМ и ГРМ отмаркированы в местах ожидания ВС. Размеры критических зон КРМ и ГРМ соответствуют требованиям Норм |
1, 2 |
Соответствует |
|
|
6.3.1.21 6.3.1.46 |
Параметры КРМ и ГРМ (принцип работы ИЛС) удовлетворяют требованиям Норм (категория I) |
3, 4 |
Соответствует |
|
|
|
Подтверждающие документы: |
|||
|
|
1. Протокол проверки РТО. |
|||
|
|
2. ИПП в районе аэродрома (наименование аэродрома). |
|||
|
|
3. Акты летных проверок РМС. |
|||
|
|
4. Протоколы наземной проверки РМС. |
|||
|
Радиотехническая система ближней навигации (РСБН) |
||||
|
6.3.2.1. |
РСБН обеспечивает выполнение своих функций согласно ЭД |
1, 2 |
Соответствует |
|
|
6.3.2.2. |
Погрешности измерения дальности и азимута РСБН удовлетворяют требованиям Норм, непрерывность измерения дальности и азимута обеспечивается |
1, 2 |
Соответствует |
|
|
6.3.2.3. |
Дальность действия РСБН-4Н составляет 200 км при Н=3000 м |
1 |
Соответствует |
|
|
6.3.2.4. |
Управление работой РСБН, а также индикация ее состояния осуществляется в дистанционном и местном режимах |
2 |
Соответствует |
|
|
|
Подтверждающие документы: |
|||
|
|
1. Акт летной проверки. |
|||
|
|
2. Протокол наземной проверки. |
|||
|
Система посадки ОСП МК пос -100° |
||||
|
6.3.3.1. |
Состав оборудования полный. МРМ используются из состава системы посадки СП-80 |
1, 2 |
Соответствует |
|
|
6.3.3.2, 6.3.3.5. |
Характеристики излучения, дальность действия ПРС обеспечиваются согласно требованиям Норм |
3, 5 |
Соответствует |
|
|
6.3.3.3. |
Характеристики радиоизлучения ПРС соответствуют классам А2А и А3Е без разрыва несущей. При этом обеспечен автоматический режим подачи сигнала опознавания |
3, 5 |
Соответствует |
|
|
6.3.3.4. |
Опознавательный сигнал ПРС передается кодом Морзе |
3, 4, 5 |
Соответствует |
|
|
6.3.3.6. |
Управление работой приводных радиостанций, а также индикация их состояния осуществляется в дистанционном и местном режимах |
4, 5 |
Соответствует |
|
|
6.3.3.7. |
Автоматическая система контроля приводных радиостанций обеспечивает выполнение своих функций. |
4, 5 |
Соответствует |
|
|
|
Подтверждающие документы: |
|||
|
|
1. Протокол проверки РТО. |
|||
|
|
2. ИПП в районе аэродрома (наименование аэродрома). |
|||
|
|
3. Акт летной проверки ПРС. |
|||
|
|
4. Протоколы наземной проверки ПРС. |
|||
|
|
5. Техническое описание ПРС. |
|||
|
МК пос - 280° |
||||
|
6.3.3.1. |
Состав оборудования полный. |
1, 2 |
Соответствует |
|
|
6.3.3.2, 6.3.3.5. |
Характеристики излучения, дальность действия ПРС обеспечиваются согласно требованиям Норм |
3, 5 |
Соответствует |
|
|
6.3.3.3. |
Характеристики радиоизлучения ПРС соответствуют классам А2А и А3Е без разрыва несущей. При этом обеспечен автоматический режим подачи сигнала опознавания |
3, 5 |
Соответствует |
|
|
6.3.3.4. |
Опознавательный сигнал ПРС передается кодом Морзе |
3, 4, 5 |
Соответствует |
|
|
6.3.3.6. |
Управление работой приводных радиостанций, а также индикация их состояния осуществляется в дистанционном и местном режимах |
4, 5 |
Соответствует |
|
|
6.3.3.7. |
Автоматическая система контроля приводных радиостанций обеспечивает выполнение своих функций. |
4, 5 |
Соответствует |
|
|
|
Подтверждающие документы: |
|||
|
|
1. Протокол проверки РТО. |
|||
|
|
2. ИПП в районе аэродрома (наименование аэродрома). |
|||
|
|
3. Акт летной проверки ПРС. |
|||
|
|
4. Протоколы наземной проверки ПРС. |
|||
|
|
5. Техническое описание ПРС. |
|||
|
Маркерные радиомаяки МК пос - 100° |
||||
|
6.3.3.8, 6.3.3.9. |
Девиация частот МРМ соответствует требованиям Норм |
2 |
Соответствует |
|
|
6.3.3.10 6.3.3.13 |
Характеристики излучения, зона действия, сигналы опознавания МРМ обеспечиваются согласно требованиям Норм |
1, 2, 3 |
Соответствует |
|
|
6.3.3.14 |
Автоматическая система контроля обеспечивает выполнение своих функций. |
2 |
Соответствует |
|
|
|
Подтверждающие документы: |
|||
|
|
1. Акт летной проверки |
|||
|
|
2. Протоколы наземной проверки. |
|||
|
|
3. ИПП в районе аэродрома (наименование аэродрома) |
|||
|
МК пос - 280° |
||||
|
6.3.3.8, 6.3.3.9. |
Девиация частот МРМ соответствует требованиям Норм |
2 |
Соответствует |
|
|
6.3.3.10 6.3.3.13 |
Характеристики излучения, зона действия, сигналы опознавания МРМ обеспечиваются согласно требованиям Норм |
1, 2, 3 |
Соответствует |
|
|
6.3.3.14 |
Автоматическая система контроля обеспечивает выполнение своих функций. |
2 |
Соответствует |
|
|
|
Подтверждающие документы: |
|||
|
|
1. Акт летной проверки. |
|||
|
|
2. Протоколы наземной проверки. |
|||
|
|
3. ИПП в районе аэродрома (наименование аэродрома). |
|||
|
Автоматический радиопеленгатор (АРП ) |
||||
|
6.3.3.15 |
АРП типа АРП-75 обеспечивает уверенное пеленгование ВС на контролируемых маршрутах в районе аэродрома |
1 |
Соответствует |
|
|
6.3.3.16 |
Все каналы АРП обеспечивают среднеквадратическую погрешность пеленгования по индикатору на рабочем месте диспетчера не более 1,5 град. |
1 |
Соответствует |
|
|
6.3.3.17 |
Дальность пеленгования ВС, оборудованного радиостанцией мощностью 5 Вт, составляет: 70 км на Н=1000 м и 130 км на Н=3000 м |
1 |
Соответствует |
|
|
6.3.3.18 |
Управление работой АРП, а также индикация его состояния осуществляется в дистанционном и местном режимах |
2 |
Соответствует |
|
|
|
Подтверждающие документы: |
|||
|
|
1. Акты летной проверки. |
|||
|
|
2. Протоколы наземной проверки. |
|||
|
Радиолокационная система посадки ОРЛ-А (Первичный радиолокатор) |
||||
|
6.3.4.1. |
ОРЛ-А типа Иртыш-СКУ обеспечивает обнаружение ВС на контролируемых маршрутах полетов в районе аэродрома. На экранах индикаторов диспетчеров УВД отсутствуют ложные отметки ВС |
1 |
Соответствует |
|
|
6.3.4.2-6.3.4.5. |
Зона действия, период обновления информации, точностные характеристики и разрешающая способность по азимуту и дальности обеспечиваются в соответствии с требованиями ЭД и Норм. |
1, 2 |
Соответствует |
|
|
|
Подтверждающие документы: |
|||
|
|
1. Акт летной проверки. |
|||
|
|
2. Протоколы наземной проверки. |
|||
|
Вторичный радиолокатор |
||||
|
6.3.4.6. |
ВРЛ обеспечивает обнаружение ВС на контролируемых маршрутах полетов в районе аэродрома. На экранах индикаторов диспетчеров УВД отсутствуют ложные отметки ВС |
1 |
Соответствует |
|
|
6.3.4.7. |
Дальность действия ВРЛ составляет - 160 км |
1 |
Соответствует |
|
|
6.3.4.8-6.3.4.11 |
Период обновления информации, точностные характеристики и разрешающая способность по азимуту и дальности обеспечиваются в соответствии с требованиями ЭД и Норм. |
1, 2 |
Соответствует |
|
|
|
Подтверждающие документы: |
|||
|
|
1. Акт летной проверки. |
|||
|
|
2. Протоколы наземной проверки. |
|||
|
Посадочный радиолокатор (ПРЛ) МК пос - 100° и МК пос - 280° |
||||
|
6.3.4.12 .-6.3.4. 14. |
ПРЛ типа РП-5Г обеспечивает выдачу на диспетчерские пункты УВД радиолокационной информации о местоположении ВС с эффективной отражающей поверхностью 15 м2 и более относительно линий курса и глиссады с вероятностью обнаружения 0,9 Максимально допустимые погрешности по дальности, курсу и глиссаде удовлетворяют Нормам. |
1 |
Соответствует |
|
|
6.3.4.15 |
Разрешающая способность не хуже: 120 м по дальности; 1,2° по азимуту (курсу); 0,6° по углу места |
1 |
Соответствует |
|
|
6.3.4.16 |
Радиолокационная информация обновляется каждую секунду |
1, 2 |
Соответствует |
|
|
6.3.4.17 |
Линии курса и глиссады ПРЛ и ИЛС совпадают |
1, 2, 3 |
Соответствует |
|
|
|
Подтверждающие документы: |
|||
|
|
1. Акт летной проверки. |
|||
|
|
2. Протоколы наземной проверки. |
|||
|
|
3. ИПП в районе аэродрома (наименование аэродрома). |
|||
|
Радиолокационная станция обзора летного поля |
||||
|
6.3.5.1. |
РЛС ОЛП обеспечивает обнаружение ВС и транспортных средств, находящихся на ВПП и РД, с вероятностью 0,9 |
1 |
Соответствует |
|
|
6.3.5.2-6.3.5.4. |
Зона действия, угол обзора, точностные характеристики и разрешающая способность по азимуту и дальности обеспечиваются в соответствии с требованиями Норм |
1 |
Соответствует |
|
|
6.3.5.5. |
Система автоматического контроля обеспечивает контроль работоспособности РЛС и передает в пункт управления информацию о ее техническом состоянии |
1 |
Соответствует |
|
|
|
Подтверждающие документы: |
|||
|
|
1. Протоколы наземной проверки точностных характеристик РЛС ОЛП. |
|||
|
Азимутальный радиомаяк системы ВОР |
||||
|
6.3.6.1. |
Непрерывность измерения азимута обеспечивается в требуемой рабочей зоне |
2 |
Соответствует |
|
|
6.3.6.2-6.3.6.6. |
Технические характеристики радиомаяка удовлетворяют требованиям Норм. |
1, 2 |
Соответствует |
|
|
6.3.6.7. |
Система автоматического контроля обеспечивает контроль работоспособности маяка и передает в пункт управления информацию о ее техническом состоянии |
1 |
Соответствует |
|
|
6.3.6.8. |
Пункта проверки бортового оборудования ВОР нет. |
|
- |
|
|
|
Подтверждающие документы: |
|||
|
|
1. Протоколы наземной проверки. |
|||
|
|
2. Акт летной проверки. |
|||
|
Приемоответчик системы ДМЕ |
||||
|
6.3.7.1. |
Непрерывность измерения наклонной дальности обеспечивается в требуемой рабочей зоне |
2 |
Соответствует |
|
|
6.3.7.2. |
Зона действия приемоответчика соответствует требованиям Норм. |
2 |
|
|
|
6.3.7.3-6.3.7.5. |
Технические характеристики приемоответчика удовлетворяют требованиям Норм. |
1, 2 |
Соответствует |
|
|
6.3.7.6. |
Система автоматического контроля обеспечивает контроль работоспособности маяка и передает в пункт управления информацию о ее техническом состоянии |
1 |
Соответствует |
|
|
|
Подтверждающие документы: |
|||
|
|
1. Протоколы наземной проверки. |
|||
|
|
2. Акт летной проверки. |
|||
Руководитель авиационной организации ЭА _________ __________ _______
(подпись) (Ф.И.О.) (дата)
М.П.
Оценка соответствия светотехнического оборудования Нормам производится на основе наземных и летных проверок состава, размещения, параметров и характеристик имеющегося на аэродроме оборудования и сопоставления полученных результатов с требованиями Норм.
Результаты проверки светотехнического оборудования должны быть сведены в таблицу соответствия (таблица 7). Пример заполнения таблицы соответствия приводится далее (таблица соответствия составляется для каждого направления посадки).
Порядок заполнения таблицы 7 следующий:
графа 1 - указываются номера пунктов Норм, на соответствие которым проверяется оборудование;
графа 2 - указываются результаты проверок и испытаний по соответствующим пунктам Норм;
графа 3 - указываются подтверждающий документ;
графа 4 - указываются результаты сопоставления итогов проверок с требованиями Норм и делается запись:
"Соответствует" - в случае соответствия оцениваемого параметра требованиям Норм;
"Эквивалентно соответствует" - в случае наличия заключения об обеспечении эквивалентного уровня безопасности полетов при имеющемся отступлении от требований Норм;
"Не соответствует" - в случае несоответствия оцениваемого параметра требованиям Норм и отсутствия вышеуказанного заключения;
графа 5 - в случае наличия отступлений указываются номера, даты и названия документов, в соответствии с которыми авиационной организацией выполнены мероприятия по обеспечению эквивалентного уровня безопасности полетов, а также отражается дополнительная информация, поясняющая содержание других граф таблицы.
В конце таблицы 7 указываются подтверждающие документы. В качестве подтверждающих документов для заполнения таблиц соответствия по светотехническому оборудованию должны быть подготовлены акт наземной проверки и акт летной проверки.
Акт наземной проверки включает в себя следующее:
результаты испытаний по всем пунктам главы VII Норм, относящимся к данному аэродрому, с указанием всех подсистем огней средств посадки, взлета и руления;
действительное местоположение огней, знаков и указателей относительно элементов аэродрома (в метрах) и их цвета;
реализованное электропитание каждой подсистемы огней (число кабельных колец);
минимальное сопротивление изоляции кабельных линий;
Документы соответствия светотехнического оборудования аэродрома и его объектов требованиям Норм, подтверждаются руководителем авиационного предприятия.
7.1.1, 7.1.2. Сравнивается состав огней, входящих в систему светосигнального оборудования (ССО), по их назначению на соответствие таблицы 7.1, 7.2 и 7.3 Норм.
7.2.1-7.11.15, 7.12.1-7.12.23, 7.13.1, 7.13.2. Соответствие схемы расположения огней, кодовых (импульсных) маяков, аэродромных прожекторных станций и аэродромных знаков требованиям Норм определяется по исполнительной документации проекта на установку оборудования, внешним осмотром, а также летной проверкой.
Измеряются расстояния между огнями и элементами аэродрома, и полученные результаты сравниваются с требованиями Норм.
В процессе внешнего осмотра сравнивается тип арматур огней, указателей и источников света и проверяется их соответствие технической документации на установленное оборудование.
При летной проверке производится сопоставление фактического состава, расположения и цветности светосигнального посадочного оборудования и рулежного оборудования с требованиями Норм к перечисленным параметрам. Одновременно определяется отсутствие заметных отклонений в интервалах между огнями.
Посадочное светосигнальное оборудование проверяется при заходах на посадку, посадках и взлетах. При заходах на посадку производится также фотографирование системы.
Летная проверка правильности регулировки световых пучков огней приближения, световых горизонтов и входных огней производится при заходах на посадку по нормальной глиссаде с уходом на второй круг. Проверка огней производится с расстояния, обеспечивающего различение огней системы после входа в глиссаду. Боковые и осевые огни ИВПП и огни зоны приземления проверяются при посадке, пробеге после посадки и взлете.
При переключении ступеней яркости визуально убеждаются в отсутствии темновых промежутков.
Летная проверка ССО производится согласно действующей программе. По ее итогам составляется акт летной проверки.
Огни можно считать исправными и правильно отрегулированными, если отсутствуют пропуски огней или огни, резко отличающиеся от других по яркости.
7.14.1, 7.14.2. Высота верхней точки огня или светового указателя измеряется от уровня края ИВПП или РД.
7.15.1, 7.15.2. Непосредственно на трансформаторной подстанции (далее - ТП) внешним осмотром определяется фактическое количество кабельных линий и источников питания в каждой из подсистем по действующим нормам.
7.15.3. Сопротивление изоляции кабельных колец измеряется мегомметром на 2,5 кВ и сравнивается с требованиями Норм.
При проведении испытаний высоковольтных кабелей с резиновой изоляцией напряжение, прикладываемое к кабельной цепи, по отношению к земле должно быть:
6 кВ постоянного тока в течение 1 мин - для кабелей до 3 кВ;
10 кВ постоянного тока в течение 1 мин - для кабелей до 5-6 кВ.
7.15.4. Сравниваются измеренные на каждой ступени значения выходных токов регуляторов яркости со значениями выходных токов, приведенными в эксплуатационной документации. Измерения проводятся с помощью амперметра электродинамической или электромагнитной системы класса точности не ниже 0,5 в выходной цепи каждого регулятора, питающего кабельное кольцо с фактической нагрузкой.
7.16.1-7.16.7. Регулировка яркости огней по ступеням проверяется путем включения их с ПОУ диспетчера посадки и проверки правильности включения регуляторов яркости на заданную ступень в соответствии с таблицей 7.8 и 7.9 Норм.
Правильность регулировки яркости рулежных огней и неуправляемых световых указателей проверяется при рулении переключением их яркости на 10, 30, 100% (5, 20, 100%) диспетчером руления, а правильность включения управляемых световых указателей и светофоров проверяется их включением по основным маршрутам руления с ПОУ соответствующих диспетчеров.
Проверка сохранности командной информации производится следующим образом: с ПОУ диспетчера посадки подаются команды на включение светосигнального оборудования; после включения оборудования снимается питание с аппаратуры дистанционного управления на КПД. При этом светосигнальные средства должны оставаться во включенном состоянии с поданными до выключения аппаратуры управления командами.
Проверка сохранности командной информации производится только для систем ОВИ-2, ОВИ-3.
7.17.1-7.17.8. Проверки производятся путем включения светосигнального оборудования с ПОУ диспетчера посадки, руления и старта. При этом аппаратура должна обеспечивать необходимые функции по управлению светосигнальным оборудованием в соответствии с технической документацией на тип оборудования и контролю за ним.
(образец заполнения для ОМИ)
Таблица соответствия светотехнического
оборудования
аэродрома___________________________ ___, МК пос-271
(наименование аэродрома)
|
Пункты НГЭА ЭА |
Результаты проверок и испытаний |
Подтверждающий документ |
Соответствие НГЭА ЭА |
Примечание |
|
1 |
2 |
3 |
4 |
5 |
|
7.1.1, 7.1.2. |
Состав оборудования согласно таблиц 7.2 и 7.3 Норм огни приближения и СГ входные огни ограничительные огни посадочные огни огни уширения ВПП огни знака приземления боковые рулежные огни и знаки |
1 |
Соответствует |
|
|
7.2.1. |
Схема расположения посадочного оборудования ОМИ согласно рисунку 7.1 |
1, 2 |
Соответствует |
|
|
7.2.2 -7.2.27. |
Расположение огней на местности согласно Норм |
1 |
Соответствует |
|
|
7.9.1, 7.9.2 |
На аэродроме с МК пос-271 установлен кодовый маяк Режим работы - кодовый, двухбуквенный Сигнал опознования - аналогичен ДПРМ |
1 |
Соответствует |
|
|
7.10.1 |
На аэродроме с МК пос-271 установлены прожекторные станции в количестве 3 штук (по варианту Б рисунка 7.17) |
1 |
Соответствует |
|
|
7.10.2 |
Установленные станции не выступают за условные плоскости ограничения препятствий |
1 |
Соответствует |
|
|
7.11.1, 7.11.2, 7.11.13, 7.11.14, 7.12.1- 7.12.3, 7.12.5- 7.12.7, 7.12.9, 7.12.11, 7.12.13, 7.12.16, 7.12.19, 7.12.21. |
Рулежное оборудование размещено согласно требованиям Норм |
1 |
Соответствует |
|
|
7.13.1. |
Углы установки световых пучков огней соответствуют таблице 7.4 |
1 |
Соответствует |
|
|
7.14.1, |
Высота надземных огней, аэродромных знаков и |
1 |
Соответствует |
|
|
7.14.2 |
указателей согласно требованиям Норм |
|
|
|
|
7.15.1. |
Электропитание подсистем огней согласно требованиям Норм |
1 |
Соответствует |
|
|
7.15.3. |
Сопротивление изоляции кабельных линий согласно требованиям Нормам |
1 |
Соответствует |
|
|
7.16.2, 7.16.4. |
Регулирование яркости огней согласно таблице 7.8 |
1 |
Соответствует |
|
|
7.17.2, 7.17.4. |
Аппаратура дистанционного управления обеспечивает управление и контроль за состоянием светосигнальных средств, задействованных на аэродроме. Набор групп огней и ступени яркости согласно таблице 7.8 Темновой промежуток при переключении ступеней яркости огней отсутствует |
1 |
Соответствует |
|
Подтверждающие документы:
1. Акт наземной проверки светотехнического оборудования;
2. Акт летной проверки светотехнического оборудования.
Руководитель авиационной организации ЭА __________ ______________ ___________
(подпись) (Ф.И.О.) (дата)
М.П.
8.1. Общие положения
Оценка соответствия метеорологического оборудования требованиям Норм производится на основе наземных проверок состава, размещения и технических параметров метеооборудования, а также достаточности метеоинформации, необходимой для обеспечения взлета и посадки ВС.
По результатам оценки соответствия метеооборудования аэродромов заполняется таблица соответствия метеорологического оборудования требованиям Норм (таблица 8). Пример заполнения таблицы соответствия приводится далее.
Порядок заполнения таблицы 8 следующий:
заголовок таблицы - вписываются названия аэродрома, класс и номер ИВПП, магнитные курсы посадки и категория направления посадки;
графа 1 - указывается номер оцениваемого пункта Норм;
графа 2 - указываются тип метеооборудования, его характеристики и количество установленных комплектов; при отсутствии метеооборудования некоторых типов указывается его наименование и ставится прочерк; кроме того, в графе 2 приводится краткое описание (суть) отступления от требований Норм;
графа 3 - делается запись:
"Соответствует" - в случае соответствия оцениваемого параметра требованиям Норм;
"Эквивалентно соответствует" - в случае наличия заключения об обеспечении эквивалентного уровня безопасности полетов на аэродроме при имеющемся отступлении от требований Норм.
графа 4 - в случае наличия отступлений от требований Норм указываются номера, даты и названия документов, в соответствии с которыми авиационной организацией выполнены мероприятия по обеспечению эквивалентного уровня безопасности полетов, а также сведения, поясняющие, при необходимости, заполнение других граф таблицы.
Результаты оценки соответствия по пунктам 8.2.2 и 8.6.5 Норм вносятся в таблицу 8 только для аэродромов, имеющих ИВПП (направлений) точного захода на посадку II и III категорий. При всех прочих вариантах оборудованности ИВПП (направлений) ставится прочерк.
В конце таблицы 8 указывается подтверждающий документ. Документом, подтверждающим соответствие метеооборудования аэродрома, является акт проверки метеооборудования аэродрома на соответствие требованиям Норм.
Акт составляется по результатам проверки комиссией и подтверждается руководством авиационной организации ЭА и авиационной метеорологической станции (далее - АМСГ). В акте должны быть отражены:
наличие эксплуатационной документации на все установленное на аэродроме метеооборудование, своевременность и регулярность проведения регламентных работ и наличие записи об этом в формулярах и паспортах, время и результаты проверки средств измерения метеовеличин;
состав метеооборудования аэродрома, высота и место установки первичных измерительных преобразователей метеовеличин относительно ИВПП;
объем метеоинформации, передаваемой на выносные средства отображения;
технические характеристики метеооборудования;
технические характеристики линий связи по последней проверке их базой эксплуатации радиотехнического оборудования и связи;
другие характеристики, предусмотренные требованиями главы VIII Норм.
Акт должен содержать вывод о соответствии метеооборудования аэродрома требованиям Норм.
К акту прилагается схема размещения метеооборудования относительно ИВПП, в которой указываются расстояния до размещенных первичных измерительных преобразователей метеовеличин относительно ИВПП, длина линий связи, соединяющих первичные измерительные преобразователи с указателями (регистраторами) или специализированными ЭВМ, места установки средств отображения метеоинформации, подтвержденная руководителями авиационных организаций ЭА и АМСГ.
8.1.1. Проверка проведения наблюдений за состоянием погоды и доведением метеоинформации до органов УВД, экипажей ВС, служб аэродрома и осуществления ее регистрации производится путем визуального осмотра наличия средств отображения или громкоговорящей связи у потребителей и сличения регистрируемой на телеграфном аппарате или персональных компьютерах и высвечиваемой на средствах отображения (блоках индикации) метеоинформации.
8.1.2. Проверяется своевременность прохождения метрологической поверки метеооборудования аэродрома и соответствующей контрольно-измерительной аппаратуры.
8.1.3. Проверяется наличие эксплуатационной документации на все метеооборудование, установленное на аэродроме. Проверяется своевременность и регулярность проведения регламентных работ на метеооборудовании и наличие записей об этом в формулярах и паспортах, время и результаты проверки средств измерения метеовеличин.
8.2. Методика оценки соответствия метеоинформации и метеонаблюдений
8.2.1. Проведение метеорологических наблюдений с выпуском сводок и передачи на средства отображения метеоинформации производится методом сличения регистрируемой на телеграфном аппарате или персональных компьютерах и высвечиваемой на средствах отображения (блоках индикации) метеоинформации, или проверяется магнитофонная запись метеоинформации, передаваемой по радиоканалу метеовещания, по громкоговорящей, телефонной связи. Метеоинформация, высвечиваемая на средствах отображения (блоках индикации), должна быть идентичной регистрируемой и по объему, и по значению метеовеличин. Для проверки используется громкоговорящая и телефонная связь.
Так же определяется и фактическое время между моментами окончания измерений (наблюдений) метеовеличин, их обработки и моментами поступления (высвечивания) на выносные средства отображения (блоки индикации).
Среднее (фактическое) время между последующими сменами метеоинформации на средствах отображения (блоках индикации), моментами окончания наблюдений, обработки их результатов и поступления (высвечивания) метеоинформации на выносные средства отображения (блоки индикации) вносится в Акт проверки метеооборудования аэродрома.
8.2.2. Обеспеченность обновления метеоинформации через 1 мин. проверяется методом определения фактического времени между последующими сменами метеоинформации на средствах отображения (на выносных и контрольном пультах). Проверка обновления метеоинформации производится непрерывно в течение не менее 10 мин. Для определения фактического времени обновления метеоинформации на средствах отображения используется секундомер.
8.2.3. Оценка соответствия проведения измерений или наблюдений за видимостью, видимостью на ИВПП, направлением и скоростью ветра, количеством, формой и высотой облаков (вертикальной видимости), температуры и влажности воздуха, атмосферного давления и явлениями погоды проверяется путем визуального осмотра наличия и работы установленного на аэродроме метеооборудования и передачи на средства отображения (блоки индикации) требуемой Нормами метеоинформации.
8.3. Методика оценки соответствия технических требований
8.3.1. Оценка обеспеченности измерения метеовеличин в диапазонах и с пределами допускаемых погрешностей измерения, указанными в таблице 8.1 Норм, производится методом проверки работоспособности всех средств измерения метеовеличин, установленных на аэродроме.
Проверка работоспособности средств измерения метеовеличин производится по эксплуатационной документации на соответствующее средство измерения метеовеличины.
Подтверждающими документами являются записи о проверке работоспособности и технического обслуживания в формуляре на изделие или результаты ведомственной поверки средств измерений.
8.4. Методика оценки соответствия состава метеооборудования
8.4.1. Проверяется фактическое наличие установленного на аэродроме метеооборудования и производится сравнение с требованиями к составу метеооборудования в соответствии с категорией направления или классом ИВПП, указанному в таблице 8.2 и 8.3 Норм.
Результаты оценки фактического состава метеооборудования вносятся в Акт проверки метеооборудования аэродрома и в таблицу соответствия.
8.5. Методика оценки соответствия размещения метеооборудования
8.5.1 и 8.5.8. Оценка соответствия требованиям размещения измерителей - регистраторов видимости и измерителей параметров ветра требованиям Норм производится путем определения расстояний и высот, а также путем визуальной оценки обеспечения репрезентативности измерений, указанных в Нормах (пункты 8.5.1 и 8.5.8).
Для определения расстояний и высот используется акт обследования препятствий в районе аэродрома, содержащий данные о расположении и высоте метеоприборов, а также данные о высотах соответствующих точек осевой линии ИВПП.
Размещение пультов управления (указателей) и регистраторов, а также пультов (указателей) параметров ветра оценивается визуально, т.е. определяется их наличие в рабочих помещениях метеонаблюдателей. При отсутствии блоков индикации метеовеличин проверяется наличие указателей параметров ветра у диспетчера старта.
При оценке соответствия определяется тип измерителей-регистраторов видимости (РДВ-3, ФИ-1 и др.), тип измерителей параметров ветра или первичных измерительных преобразователей.
Размещение ветровых конусов оценивается визуально.
Результаты оценки заносятся:
в акт проверки метеооборудования аэродрома - высоты установки блоков (основных и вспомогательных) первичных измерительных преобразователей видимости и параметров ветра относительно ближайшей точки осевой линии ИВПП;
в схему размещения метеооборудования относительно ИВПП - расстояния от порогов ИВПП до первичных измерительных преобразователей видимости, а также расстояния от осевой линии ИВПП до первичных измерительных преобразователей видимости и параметров ветра.
8.5.2. Производится измерение расстояний от места наблюдения до каждого щита-ориентира видимости в направлении к середине ИВПП.
Для измерения используются рулетки измерительные типа РС-50, РС-100 или аналогичные.
Результаты измерения фактических расстояний вносятся в схему размещения метеооборудования относительно ИВПП.
8.5.3. Производится измерение линейных размеров щитов-ориентиров видимости с помощью рулетки измерительного типа РС-50.
8.5.4. Оценка соответствия правильности и состояния окраски щитов-ориентиров видимости производится визуально с пункта наблюдения за МДВ.
8.5.5. Визуально с пункта наблюдений за МДВ определяется наличие на каждом щите-ориентире одиночного источника света, проверяется возможность посекционного или раздельного включения (выключения) их с места наблюдений за МДВ.
Осмотром электроламп на каждом щите-ориентире проверяется соответствие их мощности номиналу (60 Вт).
8.5.6. Размещение измерителей высоты нижней границы облаков (ВНГО) или вертикальной видимости (ВВ) оценивается визуально. При этом определяется удаленность установки первичных измерительных преобразователей ВНГО (ВВ) от рабочих помещений метеонаблюдателей, а также наличие пультов управления на рабочих местах метеонаблюдателей.
8.5.7. Оценка соответствия требованиям размещения дистанционных измерителей ВНГО (ВВ) производится визуально. При этом определяются наличие и установка:
первичных измерительных преобразователей ВНГО (ВВ) на БПРМ или в зоне захода на посадку на расстоянии 850-1200 м от порога ИВПП;
указателей (пультов дистанционного управления) - на рабочих местах метеонаблюдателей.
8.5.9. и 8.5.10. Визуально определяется наличие измерителей атмосферного давления в рабочем помещении метеонаблюдателей, измерителей температуры и влажности воздуха на метеоплощадке.
8.5.11. Оценка соответствия требованиям размещения метеорологических измерительных систем (АМИС) производится визуально. При этом определяется:
наличие специализированной ЭВМ в рабочем помещении метеонаблюдателя;
наличие и соответствие в пунктах 8.5.1, 8.5.7, 8.5.8, 8.5.9, 8.5.10 размещения первичных измерительных преобразователей МДВ, ВНГО (ВВ), параметров ветра, атмосферного давления, температуры и влажности воздуха.
Оценка соответствия размещения первичных измерительных преобразователей МДВ, параметров ветра, атмосферного давления, температуры и влажности воздуха производится по методике, изложенной в пункте 8.5.1, ВНГО (ВВ) - в пункте 8.5.7 Методик.
Визуально проверяется наличие в рабочем помещении метеонаблюдателей средств регистрации метеоинформации, передаваемой лицам ГРП.
8.6. Методика оценки соответствия передачи, регистрации и отображения метеоинформации
8.6.1. Визуально проверяется наличие средств отображения (блоков индикации) метеоинформации на КДП, в рабочих помещениях синоптиков и метеонаблюдателей (контрольный).
Визуально проверяется наличие громкоговорящей и телефонной связи между пунктами наблюдений и КДП на некатегорированных аэродромах класса III или IV.
8.6.2. Оценка соответствия объема передаваемой на выносные средства отображения (блоки индикации) метеоинформации, отображаемой на выносных и контрольном средствах отображения (блоки индикации) с указанной в пункте 8.6.2 Норм. Для проверки используется громкоговорящая и телефонная связь.
8.6.3. Проверка обеспеченности регистрации всей передаваемой на средства отображения метеоинформации производится методом сличения регистрируемой на телеграфном аппарате или персональных компьютерах и высвечиваемой на средствах отображения (блоках индикации) метеоинформации, а также проверяется наличие и качество магнитофонной записи метеоинформации, передаваемой по радиоканалу метеовещания, по громкоговорящей, телефонной связи, а также наличие специального журнала для регистрации данных метеонаблюдений с борта ВС. Метеоинформация, высвечиваемая на средствах отображения (блоках индикации), должна быть идентичной регистрируемой и по объему, и по значению метеовеличин. Для проверки используется громкоговорящая и телефонная связь.
8.6.4. Измерение сопротивления постоянного тока и сопротивления изоляции линий связи, предназначенных для передачи сигналов от первичных измерительных преобразователей метеовеличин до пультов управления и для передачи метеоинформации на выносные блоки индикации, производится с помощью кабельного прибора типа КМ-61С или другого, имеющего диапазон измерения сопротивления от 0 до 2000 Ом и сопротивление изоляции до 2000 МОм при напряжении до 100 В, в такой последовательности:
каждые два провода, выделенные для передачи сигналов от первичных измерительных преобразователей метеовеличин и передачи метеоинформации на выносные блоки индикации, соединяются в месте подсоединения их к первичным измерительным преобразователям или блокам индикации; на входе к пультам управления или к контрольному блоку индикации подсоединяется на омметр и измеряется сопротивление. Суммарное значение сопротивления должно быть не более 100 1, Ом км (1 - длина двух замкнутых жил линий связи, км);
одна из жил кабеля связи подсоединяется к мегомметру, остальные соединяются между собой и с землей и подсоединяются к другому входу мегомметра; при напряжении 100 В производится измерение сопротивления изоляции, которое должно быть не менее 2000 МОм/км; эта операция повторяется поочередно для всех проводов.
8.6.5. Обеспеченность передачи метеоинформации на средства отображения после окончания обработки измерений (наблюдений) за время не более 15 секунд проверяется методом определения фактического времени между последующими сменами метеоинформации на средствах отображения (на выносных и контрольном пультах). Проверка передачи метеоинформации производится непрерывно в течение не менее 10 мин. Для определения фактического времени обновления метеоинформации на средствах отображения используется секундомер.
(образец заполнения)
Таблица соответствия метеорологического
оборудования аэродрома________________________________
(наименование
аэродрома)
требованиям Норм годности к эксплуатации аэродромов экспериментальной авиации
ВПП № 1 класса I, МКпос=117°, категории II; МКпос=297°, категории I
ВПП № 2 класса II, МКпос=120°, без категории; МКпос=300°, без категории
|
Пункт НГЭА ЭА |
Результаты проверок и испытаний |
Соответствие НГЭА ЭА |
Примечания |
|
1 |
2 |
4 |
5 |
|
8.1.1. |
На аэродроме проводятся наблюдения за состоянием погоды, доводится метеоинформация до органов УВД, экипажей ВС, служб аэродрома и осуществляется ее регистрация. |
Соответствует |
|
|
8.1.2. |
Метеорологическое оборудование аэродрома и соответствующая контрольно-измерительная аппаратура своевременно проходит метрологическую поверку. |
Соответствует |
|
|
8.1.3. |
Эксплуатационная документация на все оборудование имеется. |
Соответствует |
|
|
8.2.1. |
На аэродроме проводятся регулярные и специальные наблюдения, а также наблюдения по запросу лиц ГРП. |
Соответствует |
|
|
8.2.2. |
При обеспечении взлета и посадки ВС по минимуму II категории метеоинформация автоматически передается на средства отображения и регистрируется на средствах регистрации с частотой обновления не реже, чем через 1 мин. |
Соответствует |
|
|
8.2.3. |
На аэродроме проводятся измерения (наблюдения) за видимостью; видимостью на ВПП; направлением и скоростью ветра; количеством, формой и высотой нижней границы облаков (вертикальной видимости); температурой и влажностью воздуха; атмосферным давлением, а также за явлениями погоды. |
Соответствует |
|
|
8.3.1. |
Метеооборудование аэродрома обеспечивает измерение метеовеличин в диапазонах и с пределами допускаемых погрешностей измерений согласно ице 8.1 Норм, за исключением ФИ-1, установленных у ВПП № 2 без отражателей ближних (по диапазону) измерений видимости (нижний предел диапазона измерения 250 м вместо 50 м) |
Эквивалентно соответствует |
Заключение об обеспечении эквивалентного уровня безопасности, утв. |
|
8.4.1. |
Состав метеооборудования ВПП № 1 КРАМС-2, один комплект в следующей комплектации: |
Соответствует |
|
|
|
специализированные ЭВМ типа УВЦС - 2 комплекта; |
|
|
|
|
первичные измерительные преобразователи видимости типа ФИ-1 - 3 комплекта; |
|
|
|
|
первичные измерительные преобразователи ВНГО (ВВ) типа ДВО - 2 комплекта; |
|
|
|
|
измерители ВНГО (ВВ) типа РВО-2М - 1 комплект; |
|
|
|
|
первичные измерительные преобразователи параметров ветра типа М-127 - 2 комплекта; |
|
|
|
|
первичные измерительные преобразователи атмосферного давления типа ДД - 1 шт.; |
|
|
|
|
первичные измерительные преобразователи температуры и влажности воздуха типа БДТВ - 1 комплект; |
|
|
|
|
средства отображения метеоинформации типа БИ АИУ - 6 комплектов; |
|
|
|
|
средства регистрации метеоинформации типа РТА-80 - 1 комплект. |
|
|
|
|
Состав метеооборудования ВПП № 2 |
Соответствует |
|
|
|
измерители-регистраторы видимости типа ФИ-1 - 3 комплекта; |
|
|
|
|
дистанционные измерители ВНГО (ВВ) типа РВО-2М с ДВ-1М - 2 комплекта; |
|
|
|
|
измерители ВНГО (ВВ) типа РВО-2М - 1 комплект; |
|
|
|
|
измерители параметров ветра типа М63М-1 - 2 комплекта; |
|
|
|
|
измерители атмосферного давления типа СР-А - 1 шт.; |
|
|
|
|
измерители температуры и влажности воздуха типа психрометр неаспирационный - 1 комплект; |
|
|
|
|
средства отображения метеоинформации типа БИ АИУ - 6 комплектов; |
|
|
|
|
средства регистрации метеоинформации типа РТА-80 - 1 комплект. |
|
|
|
8.5.1, 8.5.6 -8.5.11. |
Метеорологическое оборудование размещено на аэродроме согласно требованиям Норм, за исключением двух комплектов ФИ-1, установленных в районе траверза середины ВПП № 1 на удалении 200 м от осевой линии ВПП. |
Эквивалентно соответствует |
Заключение об обеспечении эквивалентного уровня безопасности, утв. |
|
8.6.1. |
Средства отображения установлены на диспетчерских пунктах органов УВД, в рабочих помещениях синоптиков и метеонаблюдателей (контрольный). |
Соответствует |
|
|
8.6.2; 8.6.3. |
На средствах отображения передается, а на средствах регистрации регистрируется весь объем метеоинформации, соответствующий рабочему курсу взлета и посадки воздушных судов. Метеоинформация, передаваемая по громкоговорящей и телефонной связи документируется магнитофонной звукозаписью. |
Соответствует |
|
|
8.6.4. |
Технические характеристики линий связи удовлетворяют требованиям, изложенным в эксплуатационной документации на тип метеооборудования. |
Соответствует |
|
|
8.6.5. |
При обеспечении взлета и посадки ВС по минимуму II категории метеоинформация автоматически передается на средства отображения и регистрируется на средствах регистрации не позднее чем через 15 с после окончания обработки измерений (наблюдений). |
Эквивалентно соответствует |
Заключение об обеспечении эквивалентного уровня безопасности, утв. |
Нумерация граф таблицы приводится в соответствии с источником
Подтверждающие документы:
1. Акт проверки метеооборудования аэродрома (наименование аэродрома)
от "___"__________20__г. № ____
Руководитель авиационной организации ЭА _______ _________________ _______
(подпись) (Ф.И.О.) (дата)
М.П.
Начальник АМСГ ________________ _________________ _________________
(подпись) (Ф.И.О.) (дата)
9.1.1.-9.1.4. Оценка состава и правильности организации пунктов УВД и их размещение осуществляется визуальным осмотром пунктов УВД на конкретном аэродроме.
9.2.1.-9.2.3. Оценка оснащенности пунктов УВД производится визуальным осмотром пункта УВД и сравнением состава фактически установленного оборудования с составом, приведенным в таблице 9.
9.2.4. Методика оценки соответствия средств электросвязи
9.2.4.1.-9.2.4.2. Оценка оснащенности аэродрома средствами воздушной и наземной электросвязи производится путем определения возможности произвести радиообмен по каналам воздушной электросвязи с экипажами ВС и по каналам наземной электросвязи с взаимодействующими пунктами УВД и службами.
Средства воздушной электросвязи
9.2.4.3. Проверка качества связи производится при оценке переговоров диспетчеров с экипажами ВС.
Качество переговоров на каналах воздушной связи и наземной электросвязи оценивается следующим образом:
"отлично" - понимание радиообмена без малейшего напряжения внимания;
"хорошо" - понимание радиообмена без затруднений;
"удовлетворительно" - понимание радиообмена с напряжением внимания;
"неудовлетворительно" - невозможность разобрать текст радиообмена.
Результаты проверки средств воздушной электросвязи заносятся в акт летной проверки по оценке качества связи.
9.2.4.4. Оценка наличия на диспетчерских пунктах электропитания одного из комплектов средств электросвязи от химических источников осуществляется при проверке их наличия и подключении их к приемопередающему устройству (приемнику, передатчику).
Кроме того, необходимо проверить выполнение профилактических работ по обслуживанию химических источников электросвязи в соответствии с эксплуатационной документацией.
Продолжительность работы радиостанции от химических источников электросвязи определяется на основе данных эксплуатационной документации на химический источник и радиостанцию.
9.2.4.5. Оценка наличия основного и резервного комплектов приемного и передающего устройств с антенно-фидерной системой для каждого канала производится при их осмотре, а также при определении возможности ведения связи на основном и резервном комплектах.
9.2.4.6.-9.2.4.12. Проверка технических параметров связного оборудования выполняется в соответствии с эксплуатационной документацией на оборудование данного типа и по результатам протоколов наземной проверки.
Средства проводной связи
9.2.4.13.-9.2.4.14. Проверка качества связи производится при оценке переговоров диспетчеров.
Средства внутриаэродромной связи
9.2.4.15. Проверка качества связи производится при оценке переговоров диспетчеров с абонентами внутриаэродромной электросвязи.
Результаты проверки средств внутриаэродромной электросвязи заносятся в протокол наземной проверки по оценке качества связи.
9.2.4.16.-9.2.4.17. Проверка технических параметров оборудования выполняется в соответствии с эксплуатационной документацией на оборудование данного типа.
9.2.5. Методика оценки соответствия средств объективного контроля
9.2.5.1.-9.2.5.2. Оценка точности регистрации на звуконосителе сигналов времени производится в течение трех или шести часов путем сравнения записанных сигналов с показаниями хронометра (точных часов или секундомера). Проверка осуществляется с использованием воспроизводящего магнитофона.
9.2.5.3.-9.2.5.5. Оценка качества записи и воспроизведения переговоров на каналах воздушной связи производится прослушиванием магнитофонных записей переговоров диспетчера с экипажем ВС.
Качество переговоров на каналах воздушной связи, наземной электросвязи и метеовещания оценивается следующим образом:
"отлично" - понимание записанной информации без малейшего напряжения внимания;
"хорошо" - понимание записанной информации без затруднений;
"удовлетворительно" - понимание записанной информации с напряжением внимания;
"неудовлетворительно" - невозможность разобрать записанную информацию.
Результаты проверки средств обеспечения контроля заносятся в протокол наземной проверки средств объективного контроля.
Таблица 9
(образец заполнения)
Таблица соответствия
пунктов УВД требованиям Норм годности к эксплуатации аэродромов
экспериментальной авиации
|
Пункты НГЭА ЭА |
Результаты проверок и испытаний |
Подтверждающий документ |
Соответствие НГЭА ЭА |
Примечание |
|
1 |
2 |
3 |
4 |
5 |
|
Пункты УВД |
||||
|
9.1.1-9 .1.5; 9.2.1-9 .2.2. |
Состав и размещение диспетчерских пунктов УВД: ДПК (РБЗ) ПДП (РЗП) СДП (ПРП, СКП) соответствует требованиям Норм |
1, 2 |
Соответствует |
Среднесуточная ИВД в месяц 68 взл/посадок |
|
9.2.3. |
Диспетчерские пункты службы движения гражданской авиации (рабочие места лиц ГРП) оснащены оборудованием в соответствии с требованиями таблицы 9.1 |
1, 2 |
Соответствует |
|
|
Подтверждающие документы: |
||||
|
1. Протокол проверки пунктов УВД аэродрома (наименование аэродрома). |
||||
|
2. ИПП в районе аэродрома (наименование аэродрома). |
||||
|
Средства электросвязи |
||||
|
9.2.4.1, 9.2.4.2 |
Аэродром оснащен средствами воздушной и наземной электросвязи |
3 |
Соответствует |
|
|
9.2.4.3 |
Средства воздушной электросвязи обеспечивают электросвязь с качеством не ниже "хорошо" |
1, 3 |
Соответствует |
|
|
9.2.4.4 |
Средства воздушной электросвязи на СКП, КДП, |
2, 3 |
Соответствует |
|
|
|
КП обеспечены электропитанием от химических источников не менее чем на 2 часа работы |
|
|
|
|
9.2.4.5 -9.2.4. 12. |
Технические характеристики средств воздушной электросвязи отвечают требованиям Норм |
1, 2 |
Соответствует |
|
|
9.2.4.1 3.-9.2. 4.17. |
Технические характеристики средств проводной и внутриаэродромной связи отвечают требованиям Норм. |
2, 3 |
Соответствует |
|
|
Подтверждающие документы: |
||||
|
1. Акты летной проверки. |
||||
|
2. Протоколы наземной проверки. |
||||
|
3. Протокол проверки РТО. |
||||
|
Средства объективного контроля |
||||
|
9.2.5.1 -9.2.5. 5. |
Средства звукозаписи обеспечивают регистрацию сигналов текущего времени с точностью не хуже 1 секунды в сутки, звукозапись и воспроизведение переговоров с качеством не ниже "хорошо" |
1 |
Соответствует |
|
|
Подтверждающие документы: |
||||
|
1. Протокол проверки РТО. |
||||
Руководитель авиационной организации ЭА _________ __________ _______
(подпись) (Ф.И.О.) (дата)
М.П.
Оценка соответствия электроснабжения и электрооборудования Норм производится на основе наземных проверок состава, размещения, параметров и характеристик имеющегося на аэродроме оборудования и сопоставления полученных результатов с требованиями Норм.
Результаты проверки электроснабжения должны быть сведены в таблицу соответствия (таблица 10). Пример заполнения таблицы соответствия по электроснабжению и электрооборудованию приводится далее.
Порядок заполнения таблицы 10 следующий:
графа 1 - указываются номера пунктов Норм, на соответствие которым проверяется электроснабжение;
графа 2 - указываются результаты проверок и испытаний по соответствующим пунктам Норм;
графа 3 - указываются результаты сопоставления итогов проверок с требованиями Норм и делается запись:
"Соответствует" - в случае соответствия оцениваемого параметра требованиям Норм;
"Эквивалентно соответствует" - в случае наличия заключения об обеспечении эквивалентного уровня безопасности полетов при имеющемся отступлении от требований Норм;
"Не соответствует" - в случае несоответствия оцениваемого параметра требованиям Норм и отсутствия вышеуказанного заключения;
графа 4 - в случае наличия отступлений указываются номера, даты и названия документов, в соответствии с которыми авиационной организацией выполнены мероприятия по обеспечению эквивалентного уровня безопасности полетов, а также отражается дополнительная информация, поясняющая содержание других граф таблицы.
В конце таблицы 10 указывается подтверждающий документ. Документом соответствия электроснабжения и электрооборудования аэродрома и его объектов требованиям Норм, является акт проверки, подтвержденный руководителем авиационного предприятия.
В акте, составляемом в произвольной форме, должны быть отражены результаты проверки электроснабжения по всем пунктам гл. X Норм.
10.1. Методика оценки соответствия электроснабжения объектов аэродрома
10.1.1, 10.1.2. Количество независимых источников централизованного электроснабжения, питающих аэродром, проверяется по одному из следующих документов: ТУ энергоснабжающей организации, акт Госэнергонадзора, акт приемки в эксплуатацию электроустановок, исполнительная документация по проекту на строительство или реконструкцию электрических сетей аэродрома.
Соответствие пропускной способности вводных ЛЭП требованиям Норм устанавливается в результате сравнения максимальной потребляемой мощности в нормальном или послеаварийном режиме с пропускной способностью вводных ЛЭП от каждого источника. Максимальная потребляемая мощность в нормальном режиме принимается по графику нагрузок. Расчеты производятся ежегодно. Максимальная потребляемая мощность в послеаварийном режиме (для питания от каждого источника) может быть получена, как и потребляемая мощность, в нормальном режиме при одном отключенном внешнем источнике или расчетным путем.
10.1.3, 10.1.4, 10.1.5, 10.1.11. Визуально на объекте проверяется наличие оборудования, обеспечивающего электроснабжение по заданной для данного объекта категории надежности (вводные устройства от централизованных источников электроснабжения, автономные источники, устройства АВР, РУ, трансформаторы).
Время перерыва подачи электропитания при переключении оборудования на резервный источник электроэнергии проверяется путем имитации пропадания напряжения поочередно на каждом из источников. При этом определяется время с момента отключения напряжения до момента его восстановления.
10.1.6-10.1.10, 10.2.3. Производится визуальная проверка по методике, изложенной в предыдущем пункте настоящего раздела.
По электрическим схемам объекта в результате их анализа определяется возможность использования автономной дизель-генераторной установки в качестве основного источника электроэнергии, резервируемого электрической сетью;
наличие АВР на стороне низкого напряжения;
расположение щитов гарантированного (бесперебойного) питания.
Возможное время непрерывной работы от химического источника электропитания определяется сравнением паспортных данных источника электроэнергии и оборудования.
10.2. Методика оценки соответствия автономных источников питания
10.2.1, 10.2.2. Степень автоматизации и мощность дизель-генератора проверяются по эксплуатационной документации на дизель-генератор.
При натурном обследовании проверяется подача напряжения от автономного источника к оборудованию (при отключенных источниках централизованного электроснабжения).
(образец заполнения)
Таблица соответствия электроснабжения и
электрооборудования аэродрома ________________________ требованиям
(наименование
аэродрома)
Норм годности к эксплуатации аэродромов экспериментальной авиации
|
Пункт НГЭА ЭА |
Результаты проверок и испытаний |
Соответствие НГЭА ЭА |
Примечание |
|
1 |
2 |
3 |
4 |
|
10.1.1. |
Количество независимых источников централизованного электроснабжения - 2. |
Соответствует |
|
|
10.1.2. |
Пропускная способность каждой ЛЭП обеспечивает подачу электроэнергии ко всем электроприемникам первой и особой группы первой категории в нормальном и послеаварийном режимах. |
Соответствует |
|
|
10.1.3. |
Электроснабжение ССО, объектов УВД, радионавигации, посадки и связи осуществляется от щитов гарантированного питания электроэнергией. |
Соответствует |
|
|
10.1.4. |
Сторонних потребителей, подключенных к ЩГП - НЕТ |
Соответствует |
|
|
10.1.5. |
Категории надежности электроснабжения устройств дистанционного управления, контроля и отображения информации не ниже категорий электроснабжения соответствующих объектов УВД, радиооборудования, светосигнального и метеорологического оборудования. |
Соответствует |
|
|
10.1.11 |
Электроснабжение осуществляется: |
|
|
|
- |
по особой группе I категории |
|
|
|
10.1.6. |
от двух внешних независимых источников электроэнергии и ДГА - ССО-66, ГРМ-66, КРМ-66 - со временем перехода на резерв не более 15 секунд; |
Соответствует |
|
|
10.1.9. |
по I категории от одного внешнего источника электроэнергии и ДГА - ПРЦ, ПМРЦ, БПРМ-66, ДПРМ-66 - со временем перехода на резерв не более 60 сек: |
Соответствует |
|
|
10.1.8. |
Электропитание основных и резервных комплектов оборудования объекта предусматривается от разных секций шин низковольтного распределительного устройства. |
Соответствует |
|
|
10.2.1, 10.2.2. |
Степень автоматизации ДГА - 2-3. Мощность каждого ДГА обеспечивает максимальную нагрузку потребителей ОГ I категории и I категории, а также потребителей, обеспечивающих нормальные условия их работы и обслуживания |
Соответствует |
|
|
10.2.3. |
Аккумуляторные батареи или источники бесперебойного питания, используемые в качестве резервных источников питания, обеспечивают работу потребителей, отнесенных по степени надежности к ОГ I категории, в течение не менее 15 минут. |
Соответствует |
|
Подтверждающий документ: "Акт проверки электроснабжения и электрооборудования аэродрома (наименование аэродрома)"
от "____"_______20___г. № _____
Руководитель авиационной организации ЭА _________ _________________ _______
(подпись) (Ф.И.О.) (дата)
М.П.
Результаты оценки соответствия поисково-спасательных и аварийно-спасательных средств требованиям Норм заносятся в таблицу соответствия (таблица 11.1 Методик).
Порядок заполнения таблицы следующий:
графа 1 - указываются номера оцениваемых пунктов Норм;
графа 2 - указываются результаты проверок и испытаний по соответствующим пунктам Норм;
графа 3 - указываются результаты сопоставления итогов проверок и испытаний с требованиями Норм и делается запись:
"Соответствует" - в случае соответствия оцениваемого параметра требованиям Норм;
"Эквивалентно соответствует" - в случае наличия заключения об обеспечении эквивалентного уровня безопасности полетов при имеющемся отступлении от требований Норм;
"Не соответствует" - в случае несоответствия оцениваемого параметра требованиям Норм и отсутствия вышеуказанного заключения.
- графа 4 - в случае наличия отступлений от требований Норм указываются номера, даты и названия документов, в соответствии с которыми авиационной организацией выполнены мероприятия по обеспечению эквивалентного уровня безопасности полетов, а также отражается дополнительная информация, поясняющая, при необходимости, содержание других граф таблицы.
В конце таблицы 11.1 указывается документ проверки поисково-спасательных и аварийно-спасательных средств, утвержденный руководителем авиационного предприятия. В документе должны быть отражены результаты проверки по всем пунктам главы XI Норм. Проверка соответствия поисково-спасательных и аварийно-спасательных средств на аэродроме производится комиссией не реже одного раза в год.
11.1. Методика оценки соответствия поисково-спасательных средств
11.1.1. Наличие на аэродроме поисково-спасательного ВС определяется инструкцией по организации и проведению поисково-спасательных работ. Проверяется наличие на ВС требуемого аварийно-спасательного имущества и снаряжения (часть имущества и снаряжения может находиться и храниться вне ВС), а также средств десантирования (парашюты, спусковые устройства, лебедка) и подъема (лебедка).
При отсутствии собственного поисково-спасательного ВС проверяется наличие договора (плана взаимодействия или иных документов), согласно которому для поиска используется поисково-спасательное ВС, базирующееся на другом аэродроме (аэродромах).
11.1.2. Наличие на аэродроме наземного транспортного средства повышенной проходимости для проведения поисково-спасательных работ определяется осмотром при обследовании аэродрома. При этом рассматриваются документы на данное транспортное средство и проверяется работоспособность средств воздушной электросвязи с КДП, и поисково-спасательным ВС. Проверяется наличие аварийно-спасательного оборудования и снаряжения, доставляемого транспортным средством.
11.1.3. Наличие комплекта аварийно-спасательного имущества и снаряжения определяется осмотром. Состав указанного комплекта должен удовлетворять требованиям, определенным в соответствии с Федеральными авиационными правилами поиска и спасания в Российской Федерации*. Проверяется возможность своевременной доставки аварийно-спасательного имущества и снаряжения, хранящегося отдельно, к поисково-спасательному ВС.
11.1.4. Наличие ультракоротковолнового радиопеленгатора для приема радиосигналов на аварийных частотах определяет визуальным осмотром радиопеленгатора, проверкой документов (формуляр (паспорт), руководство по эксплуатации) на радиопеленгатор. Проверяется работоспособность радиопеленгатора.
11.1.5. Наличие на аэродроме плавучих транспортных средств и их оснащения групповыми и/или индивидуальными плавсредствами определяется при обследовании аэродрома. При осмотре плавсредств проверяется работоспособность средств связи и освещения.
В случае если транспортные плавсредства и их оснащение выделяются другими юридическими лицами на основе договорных отношений, то рассматриваются вышеуказанные договора (планы взаимодействия).
11.1.6. Наличие помещения для дежурного экипажа поисково-спасательного ВС определяется осмотром помещения. При осмотре проверяется наличие в помещении оборудования и снаряжения, а также соответствие состава указанного оборудования и снаряжения требованиям, определенным в соответствии с Федеральными авиационными правилами поиска и спасания в Российской Федерации*.
В случае значительного удаления помещения от места стоянки поисково-спасательного ВС проверяется наличие дежурного транспортного средства (автомобиля) для своевременной доставки дежурного экипажа к ВС, проверяется порядок вызова и подачи транспортного средства (автомобиля) и время доставки экипажа к ВС (от момента вызова транспортного средства (автомобиля)).
11.1.7. Наличие на аэродроме стоянки для поисково-спасательного ВС определяется путем осмотра стоянки. При этом проверяется возможность выруливания поисково-спасательного ВС для взлета в любое время года и суток, радио- и телефонной связи с КДП и наличие электропитания для запуска двигателей.
11.2. Методика оценки соответствия аварийно-спасательных средств
11.2.1. Категория ИВПП по уровню требуемой пожарной защите (далее - УТПЗ) определяется в следующем порядке:
устанавливаются типы ВС, совершающие на аэродроме полеты, относящиеся к полетам экспериментальной авиации, из них определяется ВС, имеющее наибольшую длину фюзеляжа, определяется максимальный диаметр его фюзеляжа;
по длине фюзеляжа наибольшего ВС и данных, представленных в таблице 11.1 Норм, определяется категория ИВПП по УТПЗ;
проверяется необходимость повышения категории на единицу в зависимости от максимальной ширины фюзеляжа. В случае если максимальная ширина фюзеляжа наибольшего ВС превышает значение, указанное в таблице 11.1 Норм, категория ИВПП по УТПЗ, установленная по длине фюзеляжа, повышается на единицу (за исключением десятой).
Пример: На аэродроме выполняют полеты самолеты Ту-154 и Ту-204 (длина фюзеляжа 47,9 м и 45,17 м соответственно, максимальная ширина фюзеляжа 3,8 м и 4,1 м соответственно). В данном случае наибольшим ВС является самолет Ту-154. Исходя из длины фюзеляжа данного ВС и таблицы 11.1 Норм определяется, что категория ИВПП по УТПЗ седьмая. Поскольку ширина фюзеляжа Ту-154 меньше значения соответствующего параметра, указанного в таблице 11.1 Норм (5 м), необходимости повышения категории на единицу не имеется. Окончательно устанавливается седьмая категория по УТПЗ.
11.2.2. Проверка обеспечения установленного уровня пожарной защиты ВС, заданного категорией по УТПЗ, включает:
проверку наличия на аэродроме аэродромных пожарных автомобилей, находящихся на дежурстве по обеспечению полетов ВС, их количества и типов;
определение суммарного количества водопенных огнетушащих веществ (далее - ОТВ), находящегося на дежурстве ПА, и суммарной производительности подачи;
проверку укомплектованности каждого ПА съемным пожарно-техническим и аварийно-спасательным оборудованием.
Наличие, количество и типы ПА, находящихся на дежурстве, определяются при их осмотре, рассмотрении плана тушения пожаров на ВС и паспортных данных на ПА. При этом указанные ПА должны относиться к классу аэродромных пожарных автомобилей.
Суммарное количество ОТВ определяется по паспортным данным дежурных ПА. При этом определяется общее количество воды и пенообразователя на ПА. Суммарная производительность подачи ОТВ (суммарный расход) определяется по паспортным данным на ПА, устанавливающим номинальные значения расхода лафетных стволов.
Пример: На аэродроме (ВПП установлена седьмая категория по УТПЗ) на дежурстве находятся три аэродромных ПА: АА-8/60(43118) - 1 ед. и АА-5/40(43114) - 2 ед. Проверкой устанавливается: общее количество ПА, находящихся на дежурстве - 3 ед., все ПА относятся к классу аэродромных пожарных автомобилей, суммарное количество ОТВ (вода и пенообразователь) на ПА - 18000 л, суммарный расход - 160 л/с.
Укомплектованность каждого ПА съемным пожарно-техническим и аварийно-спасательным оборудованием проверяется по ведомости комплектации, установленной заводом-изготовителем пожарного автомобиля, и представленной в паспорте на ПА, путем осмотра ПА и самого оборудования. Проверяется работоспособность комплектующего оборудования.
11.2.3. Время развертывания ПА определяется для каждого конца ИВПП и по каждому ПА, обеспечивающему требуемый уровень защиты ВС, путем проведения опытной проверки. Время развертывания определяется временем от момента объявления сигнала тревоги пожарно-спасательному расчету до момента начала подачи пенной струи из лафетного ствола пожарного автомобиля, прибывшего на конец ИВПП. Исходное место нахождения каждого ПА при проверке времени развертывания соответствует месту его базирования при взлетах и посадках ВС, установленному в плане тушения пожаров на ВС.
Пример: На аэродроме (ВПП установлена 7-я категория по УТПЗ) на дежурстве находятся три аэродромных ПА (АА-5/40(43114) - 2 ед. и АА-8/60(43118) - 1 ед.). При полетах один ПА (АА-5/40(43114) № 1 дежурит на временном пожарном посту у КПП, другие ПА (АА-5/40(43114) № 2 и АА-8/60(43118) в пожарном депо. Путем опытной проверки получены следующие значения времени развертывания (в секундах):
|
Тип ПА |
МКпос = 100° |
МКпос = 280° |
|
АА-5/40(43114) № 1 |
160 |
170 |
|
АА-5/40(43114) № 2 |
210 |
200 |
|
АА-8/60(43118) |
205 |
195 |
11.2.4. Наличие двукратного запаса пенообразователя по отношению к количеству ПО, находящемуся на дежурных ПА, определяется по фактическому наличию пенообразователя, предназначенного для использования в ПА, в организации-эксплуатанте аэродрома (за исключением находящегося на ПА) на момент проверки.
Пример: На аэродроме на дежурстве находятся три аэродромных ПА (АА-8/60(43118) - 1 ед. и АА-5/40(43114) - 2 ед.). Количество ПО, находящегося на этих ПА составляет 1100 л. На момент проверки в емкости, находящейся в пожарном депо имелось 3000 л пенообразователя.
Наличие на аэродроме пунктов для заправки ПА водой определяется путем осмотра указанных пунктов.
11.2.5. Наличие на аэродроме пожарного депо проверяется путем их осмотра. При этом проверяется наличие и работоспособность средств оповещения личного состава дежурных пожарно-спасательных расчетов.
11.2.6. Наличие на аэродроме пожарного поста определяется при рассмотрении плана тушения пожара на ВС и осмотром поста.
11.2.7. Оснащение санитарного автомобиля медицинским оборудованием, инструментом, медикаментами и материалом определяется путем осмотра.
11.2.8. Обеспеченность аэродрома транспортными средствами для оперативной доставки пострадавших с места аварии в медицинские учреждения определяется путем осмотра указанных средств при обследовании аэродрома. Проверяются планы взаимодействия.
11.2.9. Наличие на аэродроме средств для эвакуации аварийных ВС, потерявших способность двигаться, определяется при обследовании аэродрома.
11.3. Методика оценки соответствия средств управления при проведении поисково-спасательных и аварийно-спасательных работ
11.3.1. Наличие на аэродроме стационарного командного пункта (СКП) определяется осмотром помещения на аэродроме (в предприятии), выделенного под СКП. Проверяется наличие на СКП требуемых средств связи.
11.3.2. Наличие на аэродроме передвижного пункта (далее - ПКП) для руководства аварийно-спасательными работами проверяется путем его осмотра, оценки проходимости (по документам на базовое шасси) и проверкой наличия и работоспособности громкоговорящей установки (или мегафона), бинокля и требуемых средств воздушной электросвязи. При этом проверяется возможность осуществления связи ПКП с СКП, КДП, подразделением ГО и ЧС авиационного предприятия, аэродромными ПА, наземным транспортным средством для поисково-спасательных работ и экипажем аварийного ВС.
(образец заполнения)
Таблица соответствия
аварийно-спасательных и противопожарных средств
аэродрома_______________________требованиям
(наименование аэродрома)
Норм годности к эксплуатации аэродромов экспериментальной авиации
ВПП № 1, длина__________м, класс А МКпос = 100/280°
ВПП № 2, длина__________м, класс В МКпос = 60/240°
|
Пункт НГЭА ЭА |
Результаты испытаний и проверок |
Соответствует НГЭА ЭА |
Примечание |
|
1 |
2 |
3 |
4 |
|
11.1.1. |
Поисково-спасательный самолет, оснащенный требуемым аварийно-спасательным имуществом и снаряжением, - имеется |
Соответствует |
Договор от " ___ " ________ 20___ г. № ___ |
|
11.1.2. |
Поисково-спасательный вертолет, оснащенный требуемым аварийно-спасательным имуществом и снаряжением, - имеется |
Соответствует |
|
|
11.1.3. |
Наземное транспортное средство для проведения поисково-спасательных работ, оснащенное требуемым оборудованием и средствами связи, - имеется |
Соответствует |
|
|
11.1.4. |
Комплект аварийно-спасательного имущества и снаряжения - имеется |
Соответствует |
|
|
11.1.5. |
Ультракоротковолновый радиопеленгатор для приема радиосигналов на аварийных частотах - имеется |
Соответствует |
|
|
11.1.6. |
Плавучие транспортные средства с требуемым оборудованием - отсутствуют |
|
Взлеты и посадки над водным пространством не производятся |
|
11.1.7. |
Помещение для дежурного экипажа поисково-спасательного ВС с оборудованием, удовлетворяющим требованиям, определенным в соответствии с Федеральными авиационными правилами поиска и спасания в Российской Федерации - имеется |
Соответствует |
|
|
11.1.8. |
Стоянка для поисково-спасательного ВС - имеется |
Соответствует |
|
|
11.2.1 |
Категория по УТПЗ: |
Соответствует |
|
|
|
ВПП № 1 - восьмая |
|
|
|
|
ВПП № 2 - шестая |
|
|
|
11.2.2 |
Количество аэродромных пожарных автомобилей (ПА) на аэродроме - 4. |
Соответствует |
|
|
|
Количество водопенных огнетушащих веществ, кг (л) -25000. |
|
|
|
|
Суммарная подача огнетушащих веществ, кг/с (л/с) -200. |
|
|
|
|
Все ПА требуемьм съемным оборудованием - укомплектованы |
|
|
|
11.2.3 |
Время развертывания ПА, с |
|
|
|
|
ВПП № 1 |
Соответствует |
|
|
|
МК пос = 100° 160 (первый ПА) 235 (последний ПА) |
|
|
|
|
МК пос = 280° 150 (первый ПА) 220 (последний ПА) |
|
|
|
|
ВПП № 2 |
|
|
|
|
МК пос = 60° 170 (первый ПА) 220 (последний ПА) |
|
|
|
|
МК пос = 240° 160 (первый ПА) 200 (последний ПА) |
|
|
|
11.2.4 |
Резерв пенообразователя, кг - 8000. Количество пунктов для заправки ПА водой - 4. |
Соответствует |
|
|
11.2.5 |
Пожарное депо, оснащенное требуемым оборудованием и средствами оповещения и связи, - имеются |
Соответствует |
|
|
11.2.6 |
Пожарный пост для дежурства ПА при полетах ВС - имеется |
Соответствует |
|
|
11.2.7 |
Санитарный автомобиль (автомобили) с требуемым оснащением - имеется |
Соответствует |
|
|
11.2.8 |
Транспортные средства для доставки пострадавших в лечебное учреждение - обеспечены |
Соответствует |
|
|
11.2.9 |
Средства для эвакуации ВС, потерявших способность двигаться, - имеются. |
Соответствует |
|
|
11.3.1 |
Стационарный командный пункт, оснащенный требуемым оборудованием и средствами связи, - имеется. |
Соответствует |
|
|
11.3.2 |
Передвижной командный пункт, оснащенный требуемым оборудованием и средствами воздушной электросвязи, имеется. |
Соответствует |
|
Подтверждающий документ: акт проверки соответствия поисково-спасательных и аварийно-спасательных средств на аэродроме
____________________, утвержденный "____"__________20 г.
(наименование)
Руководитель авиационной организации ЭА ____________ ______________ ___________
(подпись) (Ф.И.О.) (дата)
М.П.
Председатель комиссии __________________ ___________________ ____________
(подпись) (Ф.И.О.) (дата)
Члены комиссии __________________ ___________________ ____________
(подпись) (Ф.И.О.) (дата)
__________________ ___________________ ____________
(подпись) (Ф.И.О.) (дата)
______________________________
* Постановление Правительства Российской Федерации от 15 июля 2008 г. № 530 (Собрание законодательства Российской Федерации, 2008, № 29 (ч. 2), ст. 3525).