|
|
Составители В.И. Воронов М.М. Губанова Е.П. Донец |
Рецензент
Кандидат архитектуры, профессор Московского архитектурного института (Государственная академия архитектуры) В.А. Сосновский
Печатается по решению редакционно-издательского совета Владимирского государственного университета
Методические указания по архитектурному проектированию промышленных зданий / Владим. гос. ун-т; Сост. В.И. Воронов, М.М. Губанова, Е.П. Донец. Владимир, 1999. 58 с.
Предназначены для студентов дневной формы обучения специальности 2901 "Архитектура" в соответствии с программой курса "Архитектурное проектирование промышленных зданий".
Содержат общие сведения о технологических процессах в промышленных зданиях, требования по проектированию промышленных зданий, указания по подбору несущих конструкций производственных корпусов, расчет помещений и объемно-планировочные решения административно-бытового корпуса, список литературы.
Подразд. 1.1, 1.3 - 1.9 составил В.И. Воронов, разд. 2 - М.М. Губанова, подразд. 1.2 - Е.П. Донец.
Табл. 9. Ил. 26. Библиогр.: 24 назв.
Цель методических указаний - кратко изложить основы и методику архитектурного проектирования промышленных объектов на примере цехов машиностроительного завода.
При выполнении проекта производственного корпуса студенты знакомятся с основными принципами формирования объемно-планировочной структуры промышленного объекта с учетом всего комплекса градостроительных, функционально-технологических, социальных, санитарно-гигиенических и художественно-эстетических факторов при выборе оптимального архитектурно-строительного решения цеха.
При выполнении проекта административно-бытового корпуса студенты обучаются методике разработки объемно-планировочного решения достаточно сложного многофункционального объекта общественного назначения и архитектурно-художественным средствам создания их архитектурного образа.
Рабочей программой дисциплины "Архитектурное проектирование" предусматривается выполнение проекта одного из цехов машиностроительного завода. Необходимые для проектирования исходные данные по основным цехам завода приведены в п. 1.1.
Машиностроение является одной из ведущих отраслей народного хозяйства и характеризуется широкой номенклатурой изделий и их значительными габаритами. Проектируемый машиностроительный завод специализируется на производстве двигателей и запасных частей к ним. В составе завода - основные производственные цеха, вспомогательные цеха, склады, энергетические установки и различные объекты общезаводского назначения. Характеристика цехов приведена в табл. 1.1 - 1.7, а состав работающих на заводе - в табл. 1.8.
Исходные материалы на склады завода поступают железнодорожным транспортом, а готовая продукция отгружается из цехов автомобильным и железнодорожным транспортом. Внутрицеховые и межцеховые перевозки осуществляются специализированным транспортом. Схема основных технологических потоков завода приведена на рис. 1.1, а схемы технологических потоков цехов - на рис. 1.2 - 1.7.
Цех предназначен для производства стального и чугунного листа объемом 14 тыс. т в год. Дневная плавка чугуна составляет 14 т, а стали - 44 т. Максимальная масса отливок достигает 2 т. Процессы в цехе являются вредными по санитарной характеристике производственного цикла с избыточным выделением тепла и пыли, что требует обязательного устройства дополнительной светоаэрации. В качестве конструкций дополнительной аэрации следует использовать фонари в коньковой части покрытия.
Основная часть продукции поступает в кузнечно-прессовый и механический цеха для дальнейшей обработки. Состав литейного цеха по основным отделениям приведен в табл. 1.1, а схема технологических потоков дана на рис. 1.1, 1.2.
|
п/п |
Характеристика литейного цеха |
||||
|
Наименование объектов |
Площадь цеха, отделения, тыс. м2 |
Пролет несущих конструкций, м |
Грузоподъемность крана, тс |
Отметка низа строп. констр., м |
|
|
1 |
Склад исходных материалов для плавки |
0,7 |
18 |
10 |
14,4 |
|
2 |
Плавильное отделение |
2,4 |
24 |
15 |
14,4 |
|
3 |
Склад земли и смесеприготовительное отделение |
0,8 |
24 |
10 |
14,4 |
|
4 |
Отделение стального литья |
1,0 |
24 |
15 |
14,4 |
|
5 |
Отделение чугунного литья |
0,4 |
24 |
10 |
14,4 |
|
6 |
Участки выбивки отливок |
0,5 |
24 |
15 |
14,4 |
|
7 |
Термообрубное отделение |
0,9 |
24 |
15 |
14,4 |
|
8 |
Участок исправления отливок и склад готовых отливок |
0,3 |
18 |
15 |
14,4 |
|
9 |
Склад моделей |
0,3 |
24 |
10 |
14,4 |
|
10 |
Ремонтное отделение |
0,4 |
24 |
15 |
14,4 |
|
|
ИТОГО: |
7,7 |
|
|
|

Рис. 1.1. Схема основных технологических процессов завода

Рис. 1.2. Схема технологического процесса литейного цеха
Цех предназначен для производства деталей и заготовок из слитков или проката черных металлов методом свободной ковки на молотах и прессах. Производительность цеха - 6 тыс. т поковок в год. Максимальный вес поковок достигает 3 т. Состав цеха и характеристика его отделений и участков приведены в табл. 1.1, а схема технологических потоков - на рис. 1.3.

Рис. 1.3. Схема технологических потоков кузнечно-прессового цеха
|
№ п/п |
Наименование объектов |
Площадь цеха, отделения, тыс. м2 |
Пролет несущих конструкций, м |
Грузоподъемность крана, тс |
Отметка низа строп. констр., м |
|
1 |
Заготовительное отделение с промежуточным складом |
1,0 |
18 |
20 |
18,0 |
|
2 |
Отделение ковки на прессах |
2,0 |
24 |
20 |
18,0 |
|
3 |
Отделение ковки на молотах |
1,0 |
24 |
20 |
18,0 |
|
4 |
Термическое отделение |
1,0 |
24 |
20 |
18,0 |
|
5 |
Очистное отделение |
0,8 |
24 |
20 |
18,0 |
|
6 |
Ремонтно-механический участок |
0,4 |
12 |
15 |
6,0 |
|
7 |
Насосно-аккумуляторное отделение |
0,2 |
12 |
10 |
12,0 |
|
8 |
Кладовые инструментов |
0,15 |
12 |
- |
6,0 |
|
9 |
Склад готовой продукции |
0,75 |
24 |
200 |
18,0 |
|
|
ИТОГО: |
7,3 |
|
|
|
В механическом цехе производится обработка деталей, узлов и корпусов двигателей, изготавливаемых на проектируемом предприятии. Необходимые для этого заготовки, металл и отливки поступают со склада металла, заготовок и прочих материалов в отделение металлообрабатывающих станков.
Изготовленные и обработанные в механических отделениях детали, части и узлы передаются в сборочный цех завода. Схема технологического процесса приведена на рис. 1.4.
Характеристика механического цеха
|
№ п/п |
Наименование объектов |
Площадь цеха, отделения, тыс. м2 |
Пролет несущих конструкций, м |
Грузоподъемность крана, тс |
Отметка низа строп. констр., м |
|
1 |
Склад материалов и полуфабрикатов |
1,0 |
18 |
10 |
14,4 |
|
2 |
Отделение металлообрабатывающих станков |
7,0 |
24 |
20 |
14,4 |
|
3 |
Ремонтная мастерская |
0,3 |
12 |
10 |
10,8 |
|
4 |
Заточное отделение |
0,2 |
12 |
- |
- |
|
5 |
Инструментально-раздаточный склад |
0,3 |
12 |
- |
- |
|
6 |
Баббитно-заливочный участок |
0,2 |
12 |
5 |
10,8 |
|
7 |
Отделение приготовления смазочно-охлаждающих жидкостей |
0,1 |
12 |
5 |
10,8 |
|
|
ИТОГО |
9,1 |
|
|
|

Рис. 1.4. Схема технологических потоков механического и сборочного цехов
В сборочном цехе осуществляются сборка, испытание, отделочные операции и упаковка готовых изделий. В цехе принят следующий порядок операций:
подготовка деталей для сборки (очистка и промывка, проверка ряда деталей и узлов на герметичность и балансировка);
сборка комплексов и узлов с применением запрессовки, посадки и т.д.;
общая сборка деталей на стендах и обкатка;
окраска двигателей, сдача отделу технического контроля и консервация,
Детали и узлы к месту сборки подаются рельсовыми передаточными тележками, кран-балками и электрокарами. Склад готовой продукции имеет железнодорожный ввод для отгрузки продукции потребителям. Схема технологического процесса приведена на рис. 1.4.
Характер сборочного цеха
|
№ п/п |
Наименование объектов |
Площадь цеха, отделения, тыс. м2 |
Пролет несущих конструкций, м |
Грузоподъемность крана, тс |
Отметка низа строп. констр., м |
|
1 |
Промежуточные склады узлов и деталей |
0,3 |
24 |
20 |
12,6 |
|
2 |
Отделение узлов сборки |
1,6 |
24 |
20 |
12,6 |
|
3 |
Отделение общей сборки |
2,4 |
24 |
20 |
12,6 |
|
4 |
Участок покраски и упаковки |
0,3 |
24 |
20 |
12,6 |
|
5 |
Склад готовой продукции |
0,4 |
24 |
20 |
12,6 |
|
6 |
Кладовая вспомогательных материалов |
0,1 |
- |
- |
12,6 |
|
7 |
Инструментально-раздаточный склад |
0,1 |
- |
- |
12,6 |
|
|
ИТОГО: |
5,2 |
|
|
|
Цех предназначен для изготовления деталей и узлов изделий, имеющих неразъемные соединения, выполненные преимущественно сваркой. Основным исходным материалом для производства металлоконструкция служит прокат металлов. Могут выполняться комбинированные конструкции из поковок, отливок, проката.
Технологические операции обслуживаются самоходными безрельсовыми тележками, а также мостовыми кранами. После сварки изделия могут проходить комплекс дополнительной обработки: механическую и термическую обработки травления, гидравлические испытания и окраску. Передача металлоконструкций на соответствующие участки производится тележками и мостовыми кранами. Готовые изделия поступают на цеховой склад готовой продукции и далее в сборочный цех. Схема технологического процесса в цехе приведена на рис. 1.5.

Рис. 1.5. Схема технологических потоков цеха металлоконструкций
Характеристика цеха металлоконструкций
|
№ п/п |
Наименование объектов |
Площадь цеха, отделения, тыс. м2 |
Пролет несущих конструкций, м |
Грузоподъемность крана, тс |
Отметка низа строп. констр., м |
|
1 |
Подготовительное отделение |
0,6 |
18 |
30 |
14,4 |
|
2 |
Сборочно-сварочное отделение крупных узлов |
0,8 |
18 |
30 |
14,4 |
|
3 |
Сборочно-сварочное отделение мелких узлов |
0,5 |
18 |
10 |
14,4 |
|
4 |
Резервуарный участок |
0,4 |
18 |
30 |
14,4 |
|
5 |
Участок термообработки |
0,5 |
18 |
30 |
14,4 |
|
6 |
Травильное отделение |
0,2 |
18 |
10 |
14,4 |
|
7 |
Участок гидравлических испытаний |
0,2 |
12 |
20 |
12,6. |
|
8 |
Окрасочный участок и склад готовой продукции |
1,5 |
24 |
30 |
12,6 |
|
9 |
Склад электродов и флюсов |
0,1 |
- |
5 |
8,0 |
|
10 |
Инструментальная кладовая |
0,1 |
- |
- |
- |
|
11 |
Ремонтно-механическое отделение |
0,3 |
- |
10 |
12,6 |
|
|
ИТОГО: |
5,2 |
|
|
|
Цех предназначен для обработки чистовых деталей после механической обработки, а также сварных узлов и прокатных валков. Детали, поступившие в цех, размещаются на складе в соответствии с требуемой технологией обработки с нагревательными печами, закалочными ваннами, а также печи для специальных видов обработки (цементация, азотирование, цианирование и т.п.).
После обработки часть деталей поступает в очистное отделение, затем в травильное, далее на участок технического контроля и на склад. Для проведения поверхностной закалки деталей цех имеет специализированный участок. Готовые детали проверяются службой технического контроля и поступают на склад готовой продукции. Цех обслуживается мостовыми кранами и напольными безрельсовыми тележками. Схема технологического процесса приведена на рис. 1.6.
Характеристика термического цеха
|
№ п/п |
Наименование объектов |
Площадь цеха, отделения, тыс. м2 |
Пролет несущих конструкций, м |
Грузоподъемность крана, тс |
Отметка низа строп. констр., м |
|
1 |
Склад деталей, поступивших для термообработки |
0,5 |
18 |
20 |
12,6 |
|
2 |
Термическое отделение |
3,0 |
24 |
20 |
12,6 |
|
3 |
Склад готовых деталей |
0,5 |
18 |
20 |
12,6 |
|
4 |
Очистное отделение |
0,4 |
18 |
20 |
12,6 |
|
5 |
Травильное отделение |
0,25 |
12 |
10 |
12,6 |
|
6 |
Участок закалки ТВЧ |
1,0 |
24 |
20 |
12,6 |
|
7 |
Отделение трансформаторов и генераторов |
0,15 |
12 |
5 |
8,4 |
|
8 |
Склад вспомогательных материалов |
0,25 |
12 |
- |
8,4 |
|
|
ИТОГО: |
6,05 |
|
|
|

Рис. 1.6. Схема технологических потоков термического цеха
|
№ п/п |
Наименование объектов |
Площадь цеха, отделения, тыс. м2 |
Пролет несущих конструкций, м |
Грузоподъемность крана, тс |
Отметка низа строп. констр., м |
|
1 |
Инструментальный |
3,0 |
12 |
5 |
10,8 |
|
2 |
Термический |
1,0 |
24 |
10 |
12,6 |
|
3 |
Модельный |
2,0 |
12 |
5 |
10,8 |
|
|
Складское хозяйство |
|
|
|
|
|
1 |
Склад шихты и формовочных материалов |
1,0 |
24 |
30 |
10,8 |
|
2 |
Склад металлов |
1,0 |
24 |
15 |
12,6 |
|
3 |
Склад пиломатериалов |
0,5 |
12 |
5 |
8,4 |
|
4 |
Склад химматериалов |
0,3 |
6 |
- |
- |
|
5 |
Склад топлива и смазочных материалов |
0,3 |
- |
- |
- |
|
6 |
Склад полуфабрикатов |
0,5 |
12 |
4 |
8,4 |
|
|
Энергетическое хозяйство |
|
|
|
|
|
1 |
Понизительная подстанция |
0,2 |
- |
- |
- |
|
2 |
Компрессорная станция |
0,4 |
- |
- |
- |
|
3 |
Центральная котельная |
1,0 |
- |
- |
- |
|
|
Общезаводские объекты |
|
|
|
|
|
1 |
Центральная лаборатория |
1,0 |
- |
- |
- |
|
2 |
Главная контора |
0,3 |
- |
- |
- |
|
3 |
Проходная конторы, столовая, медпункт |
0,3 |
- |
- |
- |
|
4 |
Пожарное депо |
0,2 |
24 |
- |
- |
Состав работающих на заводе, чел
|
№ п/п |
Цеха и хозяйства завода |
Всего работающих |
Рабочих |
ИТР |
Служащих |
МОП |
В одну смену |
Процент женщин |
|
Производственные цеха |
||||||||
|
1 |
Литейный |
556 |
492 |
42 |
12 |
10 |
310 |
30 |
|
2 |
Кузнечно-прессовый |
342 |
290 |
35 |
9 |
8 |
140 |
25 |
|
3 |
Металлоконструкций |
386 |
352 |
29 |
3 |
2 |
211 |
35 |
|
4 |
Механический |
463 |
412 |
41 |
5 |
5 |
242 |
30 |
|
5 |
Сборочный |
706 |
633 |
55 |
10 |
8 |
381 |
35 |
|
6 |
Термический |
290 |
258 |
26 |
4 |
2 |
158 |
20 |
|
Вспомогательные цеха |
||||||||
|
1 |
Инструментальный |
270 |
236 |
23 |
6 |
4 |
167 |
30 |
|
2 |
Модельный |
297 |
266 |
21 |
6 |
4 |
187 |
50 |
|
Складское хозяйство |
||||||||
|
|
64 |
62 |
1 |
1 |
- |
60 |
80 |
|
|
Энергетическое хозяйство |
||||||||
|
|
102 |
83 |
12 |
4 |
3 |
56 |
50 |
|
|
Общезаводские объекты |
||||||||
|
|
480 |
70 |
323 |
70 |
17 |
460 |
60 |
|
|
|
ВСЕГО: |
3956 |
|
|
|
|
|
|
Генеральный план завода является одной из важнейших составных частей проекта, где комплексно развиваются вопросы планировки, застройки и благоустройства территории (рис. 1.7). При проектировании генерального плана необходимо знакомство с существующими решениями аналогичных предприятий в отечественной и зарубежной практике.
Площадка предприятия по его функциональному использованию делится на следующие зоны: предзаводскую; производственную; подсобную; складскую.
Главный вход на предприятие следует предусмотреть со стороны основного подхода или подъезда рабочих к предприятию. Расстояние от проходных пунктов до выходов в бытовые помещения основных цехов не должно превышать 800 м. При большем расстоянии предусматривается внутризаводской пассажирский транспорт.
Предприятие площадью более 5 га должно иметь не менее двух въездов, расстояние между которыми не превышает 1,5 км. Расстояния между зданиями и сооружениями следует принимать наименьшими в соответствии с технологическими условиями, но не менее норм, установленных противопожарными и санитарно-гигиеническими требованиями. Коэффициент плотности застройки должен быть не менее 0,6.
Производственные, подсобные и вспомогательные здания, а также закрытые склады целесообразно объединять в более крупные здания, когда такое объединение экономически обосновано по условиям производства, строительства, санитарной гигиены, безопасности и по противопожарным требованиям.
Здания, сооружения, открытые установки, выделяющие в атмосферу газ, дым и пыль, а также взрывоопасные и пожароопасные объекты необходимо располагать по отношению к другим производственным зданиям с подветренной стороны для ветров преобладающего направления. Брызгальные бассейны располагают длиной перпендикулярно к преобладающему направлению летних ветров.
Здания или сооружения располагают относительно сторон света и преобладающего направления ветров с учетом благоприятного естественного освещения, проветривания площадок предприятия, предотвращения снежных заносов и с соблюдением следующих требований:
продольные стороны световых фонарей и основные стены с оконными проемами располагают под углом 45... 110° к меридиану;
СХЕМА ГЕНПЛАНА №1

СХЕМА ГЕНПЛАНА №2

Рис. 1.7. Схемы генеральных планов машиностроительного завода:
1 - литейный цех; 2 - кузнечно-прессовый цех; 3 - механический цех; 4 - цех металлоконструкций; 5 - инструментальный цех; 6 - термический цех; 7 - сборочный цех; 8 - модельный цех; А - складские помещения; Б - общезаводские; В - энергетическое хозяйство

продольные оси фонарей и стен с проемами ориентируют под углом не менее 45° к преобладающему направлению летних ветров;
в районах со снежным покровом 50 см и более продольные оси крупных зданий располагают под углом не более 45° к преобладающему направлению зимних ветров.
Здания с полузакрытыми внутренними дворами допускается применять по условиям типологии, ширина двора должна быть не менее 15 м. Разбивочные оси противостоящих зданий должны совпадать. В решении генерального плана необходимо предусматривать применение наименьшего количества планировочных элементов, типоразмеров зданий, а также типов проездов и дорог.
Автомобильные дороги проектируются исходя из грузооборота. При устройстве тупиковых автомобильных дорог в конце тупика предусматриваются петлевые объезды или площадки не менее 12×12 м для разворота автомобилей.
К зданиям и сооружениям по всей их длине должен быть обеспечен подъезд пожарных автомобилей: с одной стороны - при ширине здания до 18 м и с двух сторон - при ширине более 18 м. При ширине здания более 100 м подъезд пожарных автомобилей обеспечивается со всех сторон. Расстояние от края проезжей части дороги, обеспечивающей подъезд пожарных машин, до стены должно быть не более 25 м.
Ширину тротуаров надлежит назначать не менее 1,5 м. Площадь озеленяемых участков планируют не более 15 % от общей площади предприятия (рис. 1.8). Ширина участков озеленения принимается не менее 5 м. По условиям эксплуатации и охраны предприятия требуется ограждение его площади по всему периметру. Ширину ворот автомобильных въездов на территорию следует делать не менее 4,5 м, а для железнодорожных въездов - не менее 4,9 м.
Благоустроенные площадки для отдыха и гимнастических упражнений следует делать из расчета не более 1 м2 на одного работающего в наиболее многочисленной смене. Входы в бытовые помещения нельзя располагать со стороны железнодорожных путей, проходящих вблизи от промышленного здания.
Для разработки генерального плана завода студентам предлагается две схемы генерального плана (см. рис. 1.7). Каждый студент выбирает вариант схемы и после уточнения размеров цехов в плане (взаимный обмен информацией) разрабатывает генеральный план в масштабе, учитывая перечисленные выше требования.
Дополнительные данные:
Радиусы поворотов:
грузовых автомобилей - 12 - 25 м;
легковых автомобилей - 6 м;
железнодорожных путей - 100 - 180 м;
Покрытия:
проезды - асфальтобетон;
тротуары - тротуарные плитки, асфальт.

Рис. 1.8. Расстояние от зеленых насаждений до зданий и проездов
Смысл возведения любого промышленного здания состоит в оптимальном решении, с одной стороны, технических проблем, с другой - социальных. Первая группа проблем - размещение технологического оборудования, транспортное и другие виды его обслуживания, обеспечение производства всеми необходимыми энергетическими и сырьевыми ресурсами. Вторая группа обусловлена пребыванием человека в цехе и связана с необходимостью создания комфортного микроклимата, системы бытового обслуживания работающих, обеспечения надежной охраны труда.
Объемно-планировочное решение производственного здания в первую очередь определяется особенностями технологического процесса, характером оборудования и параметрами внутрицеховой среды. При этом существенную роль имеют градостроительные условия, положение здания в окружающей застройке, людские и грузовые потоки на генеральном плане предприятия.
В основу объемно-планировочных решений цеха следует положить такие принципы:
четкое функциональное зонирование производственных площадей с максимальной протяженностью технологических потоков;
максимальная унификация строительных параметров зданий;
компактное размещение производственных участков;
обеспечение комфортных условий труда и бытового обслуживания рабочих и служащих.
Общий принцип внутрицехового зонирования следующий:
с лицевой стороны производственного здания размещают объекты общественного назначения и главные входы:
в центральной части размещают основные производственные отделения;
с тыльной и боковой сторон располагают подсобно-складские помещения.
При организации технологического процесса желательно строить его по петлевой схеме, предусматривая начало и окончание процесса с тыльной стороны здания. Пути перемещения грузов должны быть прямоточными без возвратных движений и взаимных пересечений, а пути движения работающих - кратчайшими и безопасными. В случае пересечения их с напряженными грузовыми потоками желательно разносить их в разные уровни, либо устраивать в местах пересечения развязки в виде пешеходных мостиков, туннелей и т.п. (рис. 1.9).

Рис. 1.9. Схема грузо- и людопотоков
Отделения с наибольшими производственными вредностями размещают в стороне от основного движения работающих из бытовых помещений с подветренной стороны и выполняют с обязательным естественным проветриванием помещений, с устройством тамбуров. Помещения со значительными тепловыделениями размещают у наружных стен, а помещения с особыми требованиями к температурно-влажностному режиму располагают в средней части здания.
Принципиальная компоновка технологического потока цеха, размещение объектов общественного назначения, выбор длины и ширины здания определяются на стадии разработки генерального плана завода. На данном этапе имеет место уточнение габаритов цеха и его архитектурно-конструктивная разработка. Для упрощения решения узлов и сопряжений, сокращения числа размеров сборных элементов установлены правила привязки элементов производственных зданий к модульным разбивочным осям [4, 14].
В соответствии с принципиальной компоновкой технологического потока цеха и основными параметрами производственного здания определяются площади помещений цеха, уточняется связь между планировкой отделений, принятой сеткой колонн и взаимным расположением пролетов в здании.
Площадь каждого отделения цеха может занимать несколько пролетов или один пролет, а также часть его по длине. Следует добиваться того, чтобы границы отделений совпадали с сеткой колонн здания. Частичное несовпадение границ отделений с сеткой колонн допускается только в зданиях ячейкового типа.
По границам соприкосновения основного производства с подсобно-производственными складами, вспомогательными и бытовыми зонами в производственном здании делаются проезды шириной не менее 4 м с воротами в противоположных концах здания. По условиям противопожарной безопасности эти одновременно эксплуатируемые проезды устраиваются не реже чем через 50 - 75 м.
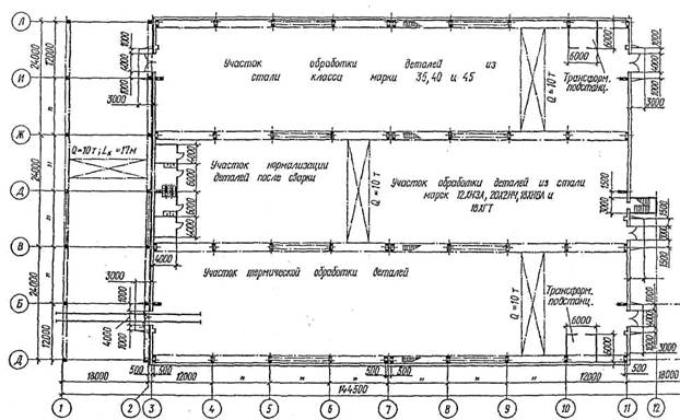
На плане цеха показываются границы отделений, ход технологического процесса, ворота для въезда грузового транспорта, пути движения рабочих из административно-бытовых помещений к рабочим местам, а также пункты питания. Намечаются на плане места для размещения помещений и устройств внутрицехового обслуживания рабочих. Основные пешеходные пути могут проектироваться подземными, на уровне пола или на антресолях. Аналогичным образом могут располагаться объекты внутрицехового обслуживания или часть из них. Пример планировки цеха приведен на рис. 1.10.

Рис. 1.10. Планировка термического цеха автомобильного завода
Проектируемое производственное здание должно быть каркасного типа. Основные элементы каркаса могут приниматься железобетонными, металлическими или смешанными. Покрытие, играющее важную роль в архитектуре одноэтажных производственных зданий, может проектироваться из плоскостных, пространственных или смешанных конструкций. Стеновые ограждения проектируются самонесущими или навесными. Материалом стен могут служить железобетон в виде панелей различных конструкций, металл в виде стеновых панелей с эффективным утеплителем типа "Сэндвич", естественные и искусственные камни и др. Типовые габаритные размеры ворот в стенах для электрокаров, вагонеток и автомашин -3×3 м и 3×4 м.
Высота здания цеха зависит от отметки головки рельса подкрановых путей, грузоподъемности крана, сетки колонн здания и конструкции покрытия.
При конструировании покрытия цеха необходимо обращать внимание на выполнение водостока с крыши, который может оказать влияние как на конструктивное решение, так и на архитектурную выразительность цеха. Во всех случаях следует принимать систему внутреннего водоотвода. Однако допускается дополнительно к внутренним водостокам предусматривать наружные аварийные водостоки, которые могут обогащать фасады зданий.
При устройстве верхнего освещения наиболее распространенные в России прямоугольные двусторонние П-образные коньковые продольные фонари удобны для производств с пыле-газо-и тепловыделениями. Однако они наиболее материалоемки, дороги, громоздки, а светоактивность их не очень высока. Большой интерес представляют фонари, входящие в состав несущей конструкции и покрытия, - зенитные, шедовые и др.
Основные элементы каркаса и покрытия рекомендуется принимать по данным [13, 14]. Компоновка конструктивной схемы производственного здания осуществляется по рекомендациям [5]. Узлы сопряжений сборных конструкций могут выполняться по [14], а необходимые узлы сопряжений принимаются по заданию руководителя проекта. Примеры привязки и разрезы цеха см. на рис. 1.11, 1.12.

Рис. 1.11. Привязка элементов к разбивочным осям зданий и организация перепадов высот:
1. Привязка элементов к разбивочным осям зданий, оборудованных кранами:
а - железобетонные колонны с шагом 6 или 12 м; б - стальные колонны; в - средние ряды колонн; г - поперечный температурный шов; д - продольный температурный шов.
2. Организация перепадов высот;
а - вдоль пролета; б - поперек пролета; в взаимно перпендикулярные пролеты

Рис. 1.12. Схематичные поперечный и продольный разрезы термического цеха автозавода
Для современных промышленных зданий характерен простой, удобный для монтажа, тектонический строй, простые архитектурные формы, высокий уровень комфорта в помещениях.
Форма и объем здания в значительной степени предопределяются функционально-технологическими факторами, обусловливающими размер сетки колонн и этажность зданий, конструктивные особенности, вид освещения, воздухообмен.
Выбор материала стен зависит от особенностей производства: наличия избыточных тепловыделений, агрессивности среды. Так, для объектов, выделяющих большое количество пыли и копоти, наружная поверхность стен должна быть гладкой, а для чистых производств может быть рифленой.
Большинство современных зданий - каркасные, что не ограничивает форму и размеры остекленных поверхностей, служащих одним из элементов архитектурной композиции здания. Важным средством архитектурной композиции является членение фасадов здания на основе многократного повторения каких-либо планировочных или технологических особенностей, элементов технологического оборудования. Вынос за плоскость фасада лестничных клеток, входов, встроенных административно-бытовых помещений, вентиляционных шахт, отверстий и других элементов оживляет монотонность протяженных фасадов, обогащает композиционное решение и выявляет крупный масштаб здания.
Промышленная архитектура формируется с учетом многих факторов, закономерностей и категорий: генерального плана, рельефа, площади, масштабности, пропорций, тектоники, симметрии и асимметрии, ритма и др. В последнее время для повышения выразительности архитектурного облика производственных зданий широко используются:
применение вертикальных панелей наружных стен, что, однако, не является оптимальным для зданий с производственным процессом, требующим равномерного освещения;
поиск пластики наружных панелей, выполнение их рельефными, с ребрами криволинейной формы, с разнообразной фактурой;
поиск пропорций оконных проемов, выполнение их неленточными, деление крупных проемов на несколько мелких;
использование цвета и фактуры материалов;
применение различных форм световых фонарей с комплексным учетом климата, освещенности, вентиляции, прочих факторов.
Производственные здания проектируют в соответствии со СНиП II-90-81 "Производственные здания промышленных предприятий". Для детальной проработки элементов фасада и достижения с их помощью определенной художественной выразительности фасад здания (или фрагмент фасада) выполняется в крупном масштабе.

Рис. 1.13. Примеры архитектурного решения корпусов:
А. Одноэтажное здание павильонного типа:
а - основной производственный объем; б - подсобно-вспомогательные помещения;
в - открыто установленное оборудование.
Б. Архитектурное решение литейного корпуса завода
В решении интерьера производственного здания весьма важное значение имеет цвет. Применением цвета в интерьере решаются не только эстетические, но и функциональные задачи. При этом использование цвета имеет целью обеспечить оптимальные условия зрительной работы и производственной среды, уменьшить опасность технологического процесса и облегчить эксплуатацию оборудования. Художественное использование цвета имеет целью обеспечить оптимальные условия зрительной работы и производственной среды, уменьшить опасность технологического процесса и облегчить эксплуатацию оборудования, а также позволяет выполнить корректировку пространства и пропорций помещений и создать эмоциональное воздействие на работающих.
Строительные конструкции, занимающие максимальную площадь в интерьере, рекомендуется окрашивать в светлые малонасыщенные тона. В задачу окраски помещений, кроме создания яркостного и цветового контраста в интерьере и повышения освещенности, входит выявление тектоники здания. Цвета строительных конструкций необходимо увязывать между собой на основе нюансных гармонических схем, не допуская в помещениях, где люди проводят много времени, резких контрастов, утомляющих зрение.
Помещения не рекомендуется окрашивать только в теплые или только в холодные тона. Преобладающий цвет должен гарантировать гармонию с другими цветами. При этом не должно быть резких контрастов основного и дополнительного тонов.
Основными элементами, формирующими цветовую среду интерьера, являются технологическое оборудование и элементы рабочего места. Правилами техники безопасности предусмотрена функциональная окраска подъемно-транспортного оборудования. Функциональная опознавательная окраска инженерных коммуникаций и электрических устройств облегчает управление технологическим процессом и обеспечивает безопасность обслуживающего персонала.
При выполнении проектов промышленных зданий у студентов обычно возникают затруднения при составлении пояснительной записки и графическом оформлении чертежей. Примерный перечень вопросов, которые должны найти отражение в пояснительной записке проекта, следующий:
1 - введение;
2 - исходные данные для проектирования;
3 - технологический процесс производства;
4 - ситуационный план (схема планировки промышленного района);
5 - генеральный план завода и производственных площадей;
6 - схема организации грузовых и людских потоков;
7 - схема размещения объектов бытового обслуживания;
8 - объемно-планировочное решение;
9 - конструктивное решение здания и его элементов;
10 - теплотехнический и светотехнический расчеты;
11 - отделка помещений;
12 - инженерное оборудование;
13 - использованная литература.
Рабочим чертежам, на которых показывают архитектурно-строительное решение здания, присваивается условное обозначение - марка АР. Рекомендуются следующие состав, порядок расположения чертежей на листах марки АР, а также их масштаб:
генеральный план завода и производств М: 1: 1000; 1: 2000;
планы здания М: 1: 200; 1: 400;
разрезы М: 1: 100; 1: 200; (1: 400);
фасады М: 1:200; (1: 400);
детали планов и разрезов М: 1: 20; 1: 50 (в необходимых случаях);
планы полов М: 1:400; 1: 800.
В настоящем параграфе приводятся материалы, которые рекомендуется положить в основу пояснительной записки, а в приложении - чертежи, являющиеся образцами оформления графической части проекта.
1. 9. 1 Пояснительная записка
Перечень вопросов, отражаемый в пояснительной записке, представлен в подразд. 1.8, а здесь раскрыто их содержание.
Во введении кратко излагаются следующие вопросы:
актуальность разработки проекта;
основные технико-экономические показатели и рационализаторские мероприятия, предложенные в процессе разработки проекта, обеспечивающие снижение стоимости строительства;
характеристика примененных в проекте прогрессивных конструктивных и планировочных решений, новой техники, индустриальных деталей и конструкций, эффективных материалов и всего, что сопутствовало ускорению и удешевлению строительства.
В разделе "Исходные данные для проектирования" указывают следующие сведения:
пункт строительства по существующему административному делению;
размещение участка строительства и его площадь;
характеристику здания или сооружения (объем, мощность предприятия, и т.п.);
климатическую зону и подрайон, назначаемый в зависимости от места строительства по данным СНиП 2.01.01-82 "Строительная климатология и геофизика";
средние расчетные температуры наружного воздуха наиболее холодной пятидневки и суток для теплотехнического расчета ограждающих конструкций;
нормативный скоростной напор ветра и нормативный вес снегового покрова для данного района строительства по СНиП 2.01.07-85 "Нагрузки и воздействия";
нормативную глубину промерзания грунта в зависимости от характера грунта по СНиП 2.01.01-82 "Строительная климатология и геофизика";
отметку уровня грунтовых вод с указанием их агрессивности;
общую характеристику рельефа строительной площадки и грунтов основания, расчетное сопротивление грунта основания;
основные местные условия (сейсмичность в баллах, характер вечной мерзлоты, горные выработки и т.п.);
степень пожарной опасности и класс объекта проектирования;
санитарную характеристику производственных процессов основных производств;
количество рабочих смен;
наличие транспортных магистралей в районе строительства, а также сведения об имеющихся местных материалах и поставщиках строительных конструкций и изделий.
В разделе "Технологический процесс производства" дается краткое описание технологического процесса, на основе которого будут разрабатываться генеральный план, объемно-планировочное и конструктивное решения.
В разделе "Генеральный план" необходимо показать, какую форму и площадь имеет участок строительства, в каком городе он расположен. Генеральный план разрабатывается в соответствии с рациональной схемой технологического процесса. В этом разделе приводят перечень всех зданий с указанием их размеров. Используя требования санитарных и противопожарных норм, необходимо осветить принципы зонирования промышленной территории с учетом технологических вредностей, повторяемости направлений ветра, указанных в розе ветровки принцип блокирования зданий.
В рукописной части этого раздела нужно обосновать взаимное расположение на площадке проектируемых зданий и сооружений с указанием санитарных и противопожарных разрывов, применение панельно-блочной системы планировки и застройки, принятую систему магистралей и проездов. Необходимо запроектировать транспортные связи и вид транспорта для внешних перевозок, обосновать выбор вида транспорта для внутриплощадочных перевозок и дать характеристику дорог (конструкции, ширина, уклон), обосновать компоновку предзаводской зоны (заводоуправление, проходные, столовая, площадки для стоянки личного транспорта и др.).
Кратко описываются мероприятия по вертикальной планировке территории с учетом возможного сохранения естественного рельефа при минимальных объемах земляных работ и обеспечения отвода поверхностных вод. Необходимо также предусмотреть благоустройство и озеленение (с выбором пород древесно-кустарниковых насаждений), наличие отмосток, тротуаров, пешеходных, садовых дорожек и устройство ограждения территории.
В конце раздела следует привести следующие технико-экономические показатели генерального плана предприятия:
общую площадь территории предприятия, га (м2);
площадь застройки, га (м2);
площадь автодорог и стоянок транспорта, га (м2);
площадь тротуаров и отмосток, га (м2);
площадь железнодорожных путей, га (м2);
общую длину железнодорожных путей, км;
общую длину автомобильных дорог, км;
протяженность ограждения по внешним границам предприятия, км;
коэффициент застройки, %;
коэффициент использования территории, %;
коэффициент озеленения территории, %.
В разделе "Объемно-планировочное решение" отдельно описываются производственные и бытовые помещения.
Производственные здания. Следует определить площадь здания в зависимости от мощности предприятия на основе укрупненных показателей. Указать размеры здания в плане, сетку колонн, высоту до низа несущей конструкции покрытия (балки, фермы, затяжки арки и т.д.).
Следует описать транспортное оборудование, краны с их грузоподъемностью и зоной действия, напольный транспорт, расположение транспортных путей.
Необходимо кратко описать расположение основных производств в здании, а также отобразить противопожарные мероприятия и эвакуацию людей из помещений, описать решение фасада здания и интерьера, подчеркнув связь архитектурных решений с пространственным назначением здания.
Бытовые помещения. Надо обосновать расположение бытовых помещений (встроенные, пристроенные, отдельно стоящие), указать их размер в плане, сетку колонн, этажность и перечень необходимых помещений с обозначением их площади согласно расчету (гардеробы, душевые, умывальники, комнаты обслуживания, фотарии и т.д.) в соответствии с группой производственных процессов. Необходимо перечислить другие помещения административно-хозяйственного назначения, располагаемые в бытовых зданиях.
Следует описать, как решается вопрос питания работающих (столовые, комнаты приема пищи, кафе и т.д., количество посадочных мест и пропускная способность), как обеспечивается медицинское обслуживание (места расположения пунктов медицинской помощи, категории).
Необходимо провести расчет потребного количества площадей бытовых помещений и оборудования для принятого списочного состава работающих и числа рабочих смен. При расчете гардеробов надо указать, какой способ хранения принят. Подробные указания смотри во втором разделе.
В разделе "Конструктивное решение здания и его элементов" требуется охарактеризовать принятую конструктивную схему здания и последовательно описать конструктивное решение всех элементов здания с указанием их материала, размеров, веса, класса бетона: фундаментов и фундаментных балок; колонн (основных и фахверковых); ферм, балок, оболочек и т.д.; плит покрытий и перекрытий; стен и перегородок; лестниц; полов, ворот, оконных и дверных заполнений; кровли, систему водоотвода; световые и аэрационные фонари.
В разделе "Отделочные работы" необходимо описать характер отделки помещений (стеньг, полы, потолки), а также фасадов зданий. Следует указать мероприятия по защите конструкций от воздействия агрессивных производственных выделений (если они имеются), по герметизации отдельных помещений, устройству гидроизоляции фундаментов, подвалов, перекрытий производственных и бытовых помещений.
В разделе "Инженерное оборудование" необходимо кратко описать принятые решения по теплогазоснабжению, вентиляции, аэрации и кондиционированию воздуха помещений; водопроводу и канализации; горячему водоснабжению; электроосвещению и слаботочным устройствам (радио, телефон, телевидение и пр.), лифтовому хозяйству.
В конце пояснительной записки приводятся теплотехнический расчет ограждающих конструкций (наружной стены и перекрытия), светотехнический расчет естественного освещения производственного помещения, а также список использованной литературы.
1.9.2. Оформление графической проектной документации
Состав, порядок расположения чертежей на листах марки АР приведены в подразд. 1.8.
Планы. План здания представляет собой сечение горизонтальной плоскостью, проходящей обязательно в пределах оконных и дверных проемов. На планах наносят сетку разбивочных осей. Марки осей в кружках располагают по левой и нижней сторонам плана. Если расположение осей противоположных сторон плана не совпадает, их выносят по правой и верхней сторонам плана, но только в местах расхождения разбивки.
На плане кроме стен, колонн и других несущих и ограждающих конструкций, попадающих в сечение, должны быть показаны:
тонкими линиями - обозначения открывания ворот и дверей, санитарно-технические приборы, открытые приямки, каналы, лотки, выступы в полу и площадки, возвышающиеся над уровнем пола не выше 2 м;
штриховыми линиями - подкрановые пути и монорельсы, опорные и подвесные краны в условных обозначениях ГОСТа с установленными поясняющими надписями, габариты площадок и антресолей, расположенных на высоте более 2 м от уровня пола этажа. Габарит перекрещивают штриховой линией. К штриховому изображению должна бить дана выносная линия и поясняющая надпись (например, "Вентиляционная площадка на отм. 3,600).
Железнодорожные пути широкой и узкой колеи изображают на плане сплошными линиями, соответствующими обозначениям ГОСТа.
На планах бытовых помещений следует показывать гардеробное оборудование, изображая его тонкой линией и надписывая вид и количество оборудования.
На планах проставляют следующие размеры:
вне габаритов плана - расстояние между крайними разбивочными осями, расстояния между всеми разбивочными осями с привязкой крайних осей к наружной грани стен и осям крайних колонн; размеры проемов и простенков; привязку простенков к разбивочным осям;
в габаритах плана - привязку стен к разбивочным осям, а перегородок к разбивочным осям или к поверхности стен; толщину стен и перегородок; размеры проемов во внутренних стенах и стационарных перегородках; привязку граней проемов к разбивочным осям или характерным узлам стен (углам, пилястрам, пересечениям и пр.); привязку осей железнодорожных путей и монорельсов к разбивочным осям.
Разрезы. Места и количество поперечных и продольных разрезов следует выбирать так, чтобы при их минимальном количестве были ясно выявлены все объемные и конструктивные особенности здания.
На разрезах должны быть показаны разбивочные оси здания; расстояния между отдельными осями; суммарное расстояние между крайними осями; привязка осей крайних колонн к разбивочными осям; отметка уровня земли, полов этажей и основных площадок, размеры от пола до пола (в многоэтажных зданиях); отметка низа несущих конструкций покрытия (в одноэтажных зданиях); размеры проемов в стенах, размеры участков стен между проемами при многоярусном расположении проемов; отметки низа и верха проемов, обрезов и верха внутренних стен, верха наружных стен (под парапетной плитой), опор заделанных в стены балок, карниза при наружном отводе воды, отметки этажных площадок внутренних и наружных лестниц; подкрановые пути и краны (в условном изображении) с указанием их грузоподъемности; отметки головки подкранового рельса; деформационные швы; высоты ярусов переплетов фонарей с условным обозначением их открывания; материал и толщина слоев конструкции покрытия здания (с указанием в выноске).
Фасады. Фасады именуются по крайним разбивочным осям, между которыми располагается участок здания, изображенный на чертеже (например, "Фасад 1-27", "Фасад 27-1", "Фасад А-Г").
На фасадах должны быть показаны окна, ворота, двери, фонари, отверстия, жалюзийные решетки, пожарные лестницы, элементы наружного водостока, деформационные швы. На фасадах зданий со стенами из крупноразмерных элементов (панелей или блоков) обозначаются швы разрезки на панели или блоки. Элементы, находящиеся ниже уровня земли, на фасадах показывать не следует.
На фасадах должны быть вынесены и замаркированы разбивочные оси, проходящие в характерных местах - крайние у деформационных швов, в местах перепада высот здания, у одной из сторон проема ворот и у каждого чем-либо отличающегося участка стены.
На фасадах наносят отметки уровня земли, верха стен, верха карнизов, низа и верха проемов.
План кровли. Этот план обязателен для зданий с внутренним водостоком. Для зданий с наружным водостоком - в случае сложной конфигурации кровли. На плане кровли должны быть нанесены парапеты, фонари, деформационные швы, ендовы, воронки внутреннего водостока, пожарные лестницы.
На этом плане должны быть вынесены и замаркированы разбивочные оси здания и те из них, которые проходят в наиболее характерных местах - у деформационных швов, в местах перепадов высот, у воронок, у одного из концов разрыва фонарей и т.п.
На планах кровли многопролетных зданий при сложном профиле кровли наносится схематический поперечный профиль основных участков кровли в виде жирной линии с отштриховкой. Профиль должен представлять собой вид по стрелке справа налево или снизу вверх по чертежу.
Пример графического оформления плана кровли одноэтажного промышленного здания с внутренним водостоком приведен в [4].
План полов. На чертеже плана полов схематично показывают наружные и внутренние стены здания (жирной линией) и границы участков с различной конструкцией пола (тонкой линией). На каждом участке плана полов ставится кружок с номером типа пола.
На плане полов выносятся и маркируются разбивочные оси здания: крайние и на границах участков с различной конструкцией пола. Расстояние между осями не проставляют. Проемы показывают только для ворот. К плану полов должна быть приложена их экспликация, составленная по форме, приведенной в [4, 12]. Примеры графического оформления частей проекта смотри на рис. 1.14-1.18.

Рис. 1.14. Общий вид заводов:
а - подшипникового; б - станкостроительного

Рис. 1.15. Пример графического оформления фасадов одноэтажного здания: а - продольного; б - торцового

Рис. 1.16. Пример графического оформления плана кровли одноэтажного промышленного здания с внутренним водостоком-

Рис. 1.17. Примеры графического оформления разрезов одноэтажного промышленного здания: а - поперечного; б - продольного
а

б

Рис. 1.18. Пример
графического оформления плана полов:
а - схема плана полов на отметке 0,00: б - экспликация полов
Завершив работу над проектом производственного здания, необходимо приступить к проектированию административно-бытового корпуса. В основу берется схема генерального плана завода, выбранная студентом ранее. В планировочной структуре генерального плана предварительно было определено местоположение административно-бытового корпуса. Основные задачи, которые ставятся в процессе проектирования административно-бытового корпуса:
определение планировочной структуры проектируемого здания с учетом его коммуникаций с цехом;
проведение расчета требуемой площади санитарно-гигиенических помещений административно-бытового корпуса (АБК);
составление региональной схемы функционального процесса в здании с учетом всех взаимосвязей и людопотоков;
создание на базе функциональной схемы оптимального объемно-планировочного решения АБК;
поиск выразительного образа АБК в комплексе с производственным зданием и окружающей средой.
Административно-бытовой корпус является сложным многофункциональным организмом, включающим в себя наряды с административными, инженерно-техническими и гардеробно-душевыми помещениями, объекты общественного питания, медицинского и культурно-бытового назначения. Поэтому здесь требуется четкое представление о взаимосвязях отдельных функциональных частей здания между собой, а также с производственными зданиями и городом. Каждая группа помещений обладает определенной самостоятельностью и требует кропотливой проработки планировочных решений с учетом ее функциональных особенностей. В настоящее время проектирование АБК осуществляется в соответствии со СНиП II-92-76, а также СНиП 2.09.04 [1, 2].
В общезаводском комплексе общественных зданий располагаются учреждения системы культурно-бытового обслуживания и административно-технологического управления предприятием, объекты эпизодического обслуживания и заводские учреждения и помещения, которые подразделяются на общезаводской АБК и прицеховые АБК. Помимо сложного функционального содержания объекты общественного комплекса играют немаловажную роль в композиции всего заводского ансамбля. Объекты общественного назначения разнообразят заводской ансамбль своими архитектурными формами, создают гармоничный переход от промышленной застройки к жилой.
Общезаводской административно-бытовой корпус размещается на предзаводской площади, где организованы транспортные и пешеходные потоки и предусматриваются остановочные пункты для общественного и стоянки для личного транспорта. Число мест на стоянках принимается из расчета 10 машин на 100 человек, работающих на заводе. Площадь стоянки одного автомобиля - 25 м2. Общезаводской административно-бытовой корпус - в отдельно стоящем здании.
Цеховые административно-бытовые корпуса могут быть пристроены к производственному зданию или размещены в отдельно стоящем здании, но обязательно соединенном с цехом теплым переходом. Перед входом в АБК, проходную и столовую предусматриваются площадки для пользующихся этими объектами из расчета 0,15 м2 на одного человека наибольшей смены [1].
Предлагаемый для разработки административно-бытовой корпус включает административно-конторскую часть с конференц-залом; бытовые помещения, столовую и здравпункт, обеспечивающие жизнедеятельность и высокую трудовую активность работающих; комнаты для учебных занятий и общественных организаций, повышения профессиональных знаний и проведения общественных цеховых мероприятий.
2.3.1. Административно-конторский блок с конференц-залом
В административно-конторской части концентрируются службы цеха, осуществляющие сбор и обработку информации о работе всех участков и отделений цеха, планирования и прогнозирования производственной деятельности цеха и другие виды управления, В составе этого блока должны быть предусмотрены площади для следующих помещений:
кабинет начальника цеха - 36 м2;
кабинет заместителя начальника - 36 м2;
приемная - 18 м2;
производственно-технологическая служба (отдел технического контроля, технологии, отдел снабжения и сбыта, механик, энергетик, металлург) - 100...200 м2;
финансово-экономическая служба (отдел кадров, отдел труда, планово-экономический отдел, бухгалтерия) - 100...200 м2;
отдел технического обучения рабочих - 50... 150 м2;
административно-хозяйственная служба (копировально-множительный отдел, архив, экспедиция и хозяйственные помещения) - 50... 100 м2;
общественные организации - 36 м2.
В проектируемом административно-бытовом корпусе следует разместить общий зал для собраний, площадь которого определяется по наибольшей численности работающих в смену из расчета 0,9 м2 на зрительское место и фойе из расчета 0,3 м2 на одно место в зале.
2.3.2. Помещения производственно-технического обучения
Для повышения квалификации рабочих, изучения передовых методов труда, обучения вторым профессиям и для других учебных целей в условиях производства необходимо предусматривать помещения для занятий. Для упрощения расчетов следует принимать 90 ученических мест на 8000 работающих по норме 1,75 м2 на одного ученика и площадь библиотеки учебной литературы 24... 36 м2.
2.3.3. Санитарно-бытовые помещения
К бытовым помещения при основных цехах машиностроительного завода относятся: гардеробные, душевые, умывальные, уборные и помещения для личной гигиены женщин, помещения для сушки спецодежды, а также полудуши и питьевые фонтанчики, установленные вблизи рабочих мест.
Бытовые помещения проектируются в зависимости от санитарной характеристики производственных процессов. По этому признаку цеха завода делятся на две группы. В механических, сборочных, модельных цехах процессы протекают без выделений вредных газов и пыли. Работа в этих цехах вызывает в основном загрязнение одежды и рук. В литейных, кузнечно-прессовых, термических цехах и цехах металлоконструкций производственный процесс осуществляется при неблагоприятных метеорологических условиях с выделением лучистого и конвекционного тепла, пыли и вредных газов. Работа в этих цехах вызывает загрязнение одежды, рук, тела.
Перед началом смены рабочие заходят в санитарно-бытовые помещения, где в гардеробной оставляют уличную и домашнюю одежду и обувь и надевают спецодежду. После окончания рабочей смены рабочие принимают здесь санитарно-гигиенические процедуры и переодеваются в домашнюю одежду.
Санитарно-бытовые помещения должны быть максимально приближены к рабочим местам и расположены на пути следования к ним без встречных и возвратных движений. Минимальный разрыв от отдельно стоящего бытового корпуса до цеха - 12 м. Отдельно стоящее здание должно соединяться с цехом закрытым отапливаемым переходом. Переходы могут быть подземными, надземными и наземными. Высота проезда под надземным переходом должна быть не менее 4,2 м, а длина переходов - кратна 6 м.
Гардеробные. Они должны быть общими для всех видов одежды при производственных процессах групп 1 и 2а по СНиП 2.09.04-87. В других случаях должны предусматриваться отдельные гардеробные для спецодежды. Входы в гардеробные следует предусматривать через тамбуры. Сообщение между гардеробной спецодежды и гардеробной уличной и домашней одежды должны быть для идущих с работы через преддушевые, а для идущих на работу - минуя преддушевые.
При гардеробных должны предусматриваться площади для размещения дежурного персонала, для глажения одежды, чистки обуви, сушки волос и маникюрных.
Площадь гардеробных определяется в зависимости от списочного состава рабочих во всех сменах и уточняется при детальной планировке в соответствии со СНиП П-92-76 и СНиП 2.09.04-87. При гардеробных должны быть кладовые, отдельные для хранения чистой и загрязненной спецодежды площадью 1,5 % от площади гардеробной.
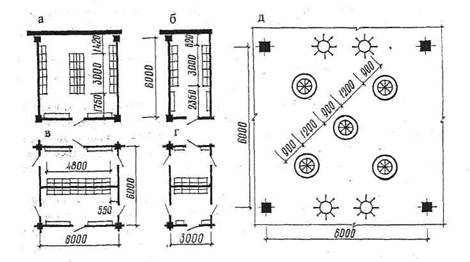
Гардеробные, душевые и умывальные сводятся практически к двум принципиальным схемам: к зально-секционной или к зальной. Зальная схема предусматривает в гардеробном блоке размещение рабочих только одного пола (мужчин или женщин). Зально-секционная позволяет на одном этаже разместить как секции для мужчин, так и для женщин. Примеры планировки блоков смотри на рис. 2.1,2.2.

Рис. 2.1. Схемы решения гардеробных блоков:
а - с возвратным движением (в крупнопанельных конструкциях);
б - с прямоточным движением (в каркасных конструкциях).
Душевые должны размещаться смежно с преддушевыми и гардеробными. Размеры открытых душевых кабин в плане 0,9×0,9 м, закрытых - 1,8×0,9 м. Ширина проходов между рядами кабин для душа должна приниматься 2 м, между стеной и рядом кабин - 1,5 м.

Рис. 2.2. Пример секционной планировки бытовых помещений автозавода:
1 - место для сушки волос и глажения одежды; 2 - мужской гардероб домашней и рабочей одежды на 1540 шкафов; 3 - ножные ванны;
4 - электрополотенца; 5 - вентиляционные шкафы

Рис. 2.3. Пример решения и оборудования душевой
Количество душевых сеток принимается по количеству работающих в наиболее многочисленной смене соответственно группе производственного процесса. Площадь душевой определяется из расчета 2,1 м на одну душевую кабину (сетку), включая проходы.
При душевых устраиваются преддушевые помещения для переодевания или обтирания тела, имеющие полочки для хранения губок, мочалок, полотенец (рис. 2.3).
Преддушевые оборудуются вешалками и крючками для полотенец из расчета 2 крючка на одну душевую сетку, располагаемыми через 20 см, полочками для туалетных принадлежностей, а также скамьями шириной 20 см и длиной 40 см на одну душевую сетку. Площадь преддушевой ориентировочно равна 0,6 площади душевой для групп 2 б, в, г, д и 3 и площади душевых для групп 1 а, б, в и 2 а согласно СНиП 2.09.04-87.
Размещение душевых и преддушевых у наружных стен не допускается. В связи с возможностью протекания полов и проникновения пара в ограждающие конструкции душевые помещения максимально блокируются в центре здания одно под другим. Нежелательно размещение душевых в верхних этажах, поскольку это связано с необходимостью устройства вентилируемой кровли над всем гардеробным блоком.
Умывальные размещают смежно с гардеробными рабочей одежды. До 40 % расчетного количества умывальников допускается размещать в производственных помещениях вблизи рабочих мест. Количество кранов в умывальных принимают по количеству работающих в наиболее многочисленной смене из расчета 10 человек на один кран.
Ножные ванны размещают в преддушевых, умывальных или гардеробных. Количество ножных ванн определяется по количеству работающих из расчета 50 мужчин и 40 женщин на одну ванну. Ширина прохода между ванными - 2 м, а расстояние между кранами - не менее 0,7 м (рис. 2.4, 2.5);
Уборные размещаются смежно с душевыми помещениями, но имеют отдельный вход через тамбур. Общее количество принимается из расчета 15 человек на один прибор в наиболее многочисленной смене. В мужских уборных количество писуаров должно быть равно количеству унитазов. Количество унитазов и писуаров в одной уборной планируется не более 16.
Размеры кабины в плане должны быть 0,8×1,2 м при открывании двери наружу и 0,8×1,5 при открывании двери внутрь. Расстояние между осями писуаров - 0,7 м.
В тамбуре должны предусматриваться умывальники, вешалки для полотенец и полочки для мыла. Один умывальник на 4 унитаза или писсуара.

Рис. 2.4. Планировочные элементы умывален с оборудованием:
а, в - размером 6×6 м; б, г - 6×3 м; д - с круглыми групповыми умывальниками
Ширина проходов между рядами кабин, писуаров - 2 м при количестве в ряду 6 и более, 1,5 м - при меньшем количестве. Ширина проходов между рядом кабин и стеной или перегородкой - 1,3 м.
Тамбур туалета может быть совмещен с умывальными. Тогда число умывальников принимается по расчету умывальных 10 человек в наибольшей смене на 1 кран.
Помещения для сушки и обеспыливания рабочей одежды делаются обособленными, а при самообслуживании их располагают смежно с гардеробными для хранения рабочей одежды.
Респираторные
предназначены для хранения, приема, выдачи, проверки респираторов (приборы для
защиты органов дыхания от пыли и газа). Площадь респираторных принимают из
расчета 0,15 м2 на одного пользующегося респиратором. 
Рис. 2.5. Санитарно-техническое оборудование и элементы планировки умывальных, душевых, уборных:
1. а - общий вид душевых кабин; б- сквозные душевые кабины; г - закрытые душевые кабины;
2. а - общий вид ножных ванн; б - варианты их размещения;
3. а - общий вид настенных умывальников; б - варианты их размещения; в - пример размещения круглых групповых умывальников;
4. а - общий вид мужской уборной; б - пример размещения оборудования в мужской уборной; в - пример размещения оборудования в женской уборной с помещением для личной гигиены
2.3.4. Столовая
Столовые, размещаемые на предприятии, являются доготовочными и работают на полуфабрикатах. Они обслуживают в основном только работающих на предприятии. Столовую рекомендуется размещать на первом этаже либо обеденный зал на этаже, ближайшем к уровню перехода между зданиями. Количество посадочных мест в столовой принимают из расчета 1 место на 4 человека, работающих в более многочисленной смене. Состав и площади помещений столовых определяют по СНиП II-Л.8-71 или по таблице.
Состав и площади помещений столовых
|
№ п/п |
Помещения |
Количество мест в залах |
|||
|
100 |
150 |
200 |
250 |
||
|
Площадь, м2 |
|||||
|
|
Для посетителей |
|
|
|
|
|
1 |
Вестибюль (включая гардероб, умывальные, уборные) |
34 |
51 |
63 |
102 |
|
2 |
Залы с раздаточными |
180 |
270: |
360 |
540 |
|
3 |
Буфет |
- |
6 |
8 |
11 |
|
|
Производственные |
|
|
|
|
|
4 |
Горячий цех (кухня) |
50 |
60 |
75 |
90 |
|
5 |
Холодный цех |
10 |
11 |
13 |
15 |
|
6 |
Помещение для резки хлеба |
7 |
7 |
7. |
8 |
|
7 |
Догртовочный цех |
12 |
14 |
18 |
20 |
|
8 |
Мясо-рыбный цех |
15 |
.18 |
20 |
21 |
|
9 |
Овошной цех |
15 |
18 |
20 |
21 |
|
10 |
Помещение для мучных изделий |
- |
15 |
22 |
28 |
|
11 |
Моечная кухонной посуды |
6 |
8 |
10 |
12 |
|
12 |
Моечная и кладовая тары |
6 |
8 |
10 |
12 |
|
13 |
Помещение зав.производством |
- |
5 |
6 |
7 |
|
14 |
Моечная столовой посуды |
24 |
26 |
28 |
60 |
|
|
Складские |
|
|
|
|
|
15 |
Охлаждающие камеры для мяса и др. |
7 |
7 |
7 |
8 |
|
17 |
Кладовая овощей, солений |
7 |
8 |
9 |
12 .. |
|
16 |
Кладовая сухих продуктов |
7 |
9 |
10 |
11 |
|
18 |
Кладовая тары |
7 |
8 |
11 |
13 |
|
19 |
Кладовая инвентаря |
7 |
9 |
10 |
11 |
|
20 |
Загрузочная |
12 |
18 |
21 |
23 |
|
|
Административные и бытовые |
|
|
|
|
|
21 |
Контора |
8 |
12 |
12 |
15 |
|
22 |
Касса |
- |
- |
5 |
5 |
|
23 |
Помещение персонала |
- |
6 |
8 |
10 |
|
24 |
Бельевая |
4 |
6 |
6 |
7 |
|
25 |
Гардероб для персонала |
11 |
16 |
22 |
30 |
|
26 |
Душевые; уборные и комнаты личной гигиены |
6 |
7 |
11 |
14 |
|
|
ИТОГО: |
433 |
622 |
791 |
1106 |
Высоту помещений следует принимать 3,3 м. Высота помещений горячих цехов в моечных должна быть не менее высоты смежных с ним залов. Высоту складских помещений в подвалах следует принимать не менее 2,5 м до низа выступающих конструкций. Кухня (горячий цех) обязательно должна иметь естественное освещение (рис. 2.6).
2.3.5. Медико-оздоровительные пункты
Действующими нормами на предприятии предусматривается минимум медицинского обслуживания, которое обеспечивают фельдшерские и врачебные здравпункты. На предприятии машиностроения с численностью работающих более 300 человек должны предусматриваться фельдшерские здравпункты. Для цехов проектируемого завода рекомендуется планировать медицинский кабинет площадью до 24 м2, который размещается на первом этаже, с самостоятельным входом с промышленной территории (из цеха).
2.3.6. Пример расчета санитарно-бытовых помещений для литейного цеха
Исходные данные: количество работающих - 540 чел., в том числе: рабочих - 480 чел., ИТР - 39 чел., служащих - 1.1 чел., МОП - 10 чел. В одну смену работает 300 человек, из них 30 % - женщин. Определяем общее количество: женщин 480×30 % = 144 чел.; мужчин 480 - 144 = 336 чел.
В первую смену работает 300 человек, из них: женщин 300×30 % = 90 чел; мужчин 300 - 90 = 210 чел. Остальное количество - 180 человек работает во вторую смену, из них: женщин 144 - 90 = 54 чел.; мужчин 336 - 210 = 126 чел.

Рис. 2.6. Пример планировки столовой на 250 мест:
а - план второго этажа; б - план первого этажа; 1 - помещение шеф-повара; 2 - доготовочная; 3 - кухня; 4 - мойки; 5 - обеденный зал; 6 - конторы и комнаты персонала; 7 - кладовая; 8 - вентиляционная камера; 9 - камера охлаждения; 10 - кабинет врача; 11 - диетстоловая; 12 - вестибюль
Расчет гардеробных. Принимаем способ хранения всех видов одежды в закрытых шкафах с самообслуживанием. На каждого рабочего полагается шкаф для уличной одежды размерами 50×33 см без скамьи и двойной шкаф для домашней и рабочей одежды размерами 50×40 см со скамьей шириной 30 см, которые размещены в разных помещениях.
Для мужчин - 336 шкафов для уличной и столько же для домашней и рабочей одежды; для женщин - по 144 шкафа каждого типа.
Расчет душевых сеток делается по многочисленной смене, т. е. для 210 мужчин и 90 женщин по табл. 6 [1]. Для группы производств 2а полагается одна душевая сетка на 7 мужчин и 6 женщин. Количество сеток: для мужских душевых 210:7 = 30 шт., в женских душевых 90:6 = 15 шт.
Умывальные рассчитываются также по многочисленной смене (табл. 7 [1]): для мужчин 210 : 20 = 11 шт., для женщин 90 : 20 = 5 шт.
Расчет уборных: для мужчин 210:30 = 7 унитазов и 7 писуаров, для женщин 90 : 15 = 6 унитазов
Курительные помещения: для мужчин 210×0,03 м2 = 6,3 м2, берем тип = 9,0 м2, для женщин - также 9,0 м2.
Столовая. Количество посадочных мест принимается 1 на 4 работающих в многочисленной смене, т. е. 300:4 = 75 мест. По приведенной таблице состав и площади помещений столовой берем по столбцу, соответствующему наиболее близкому количеству мест - 100.
При столовой следует устроить умывальники из расчета 1 умывальник на 15 мест (75 : 15 = 5 шт.). В уборной количество унитазов - 1 в мужской и 1 в женской.
ИТР и служащие работают в одну смену, и часы обеденного перерыва у них не совпадают с рабочими, поэтому при расчетах их количество не принималось во внимание.
Зал заседаний рассчитываем на 300 человек наибольшей смены: 300×0,9 м2 на одно зрительское место = 270 м2, фойе перед залом должно быть не менее 300×0,3 м2 = 90 м2.
Туалеты для служащих и ИТР: всего 39 + 11 + 10 = 60 чел.; 60:15 = = 4 унитаза.
Принимаем 3 унитаза в женском и 1 унитаз в мужском туалете.
Административно-бытовой корпус имеет разнообразные по функциональному назначению и объемно-планировочному решению помещения. В каждом из них свое размещение оборудования, свой температурно-влажностный режим, свои требования к освещенности. При проектировании АБК используется принцип формирования их из отдельных блоков гардеробно-душевых, административных помещений, столовой и конференц-зала.
Архитектурный облик и формирование планировочной структуры корпуса в значительной мере зависят от средств архитектурно-планировочной взаимосвязи помещений. К ним относятся вестибюли и лестницы, коридоры и холлы, соединительные галереи.
В здании должно быть не менее двух лестниц, устроенных по правилам пожарной безопасности. Главные лестницы, располагаемые обычно при главном вестибюле, имеют ширину марша большую, чем у служебных или вспомогательных лестниц, но не более 2,4 м. Ширина марша служебной лестницы - не менее 1,15 м. Ширина коридора проектируется не менее 1,8 м. Лестничные клетки, вынесенные за пределы основного объема здания, активно участвуют в формировании архитектурного облика последнего.
Несмотря на различие функциональных частей корпуса, целостности решения способствует применение единых строительных параметров (ширина зданий, высота этажей, размер шагов и пролетов). Типовая конструктивная ячейка размерами 6 x 6м лежит в основе всех принимаемых решений. Оптимальная ширина отдельно стоящих административно-бытовых корпусов - 18 м. Имеется тенденция к внедрению сетки колонн размерами 6 х 9 и 6 х 12 м, что позволит увеличить степень гибкости планировки зданий. Нормативные высоты этажей следующие: 3, 3,3, 3,6, 4,2 и 4,8 м. Для перекрытия зальных помещений можно использовать крупно-пролетные конструкции (фермы, балки, оболочки и др.).
Объемно-планировочная структура административно-бытового корпуса может быть компактной между отдельными блоками помещений.
Наиболее часто посещаемые помещения (гардеробно-душевые, столовая, медпункт, отдел снабжения и сбыта) целесообразно размещать в нижних этажах здания, а помещения, не требующие естественного света - в подвальных этажах и центральной части наземных этажей.
Известны следующие схемы планировочных решений типовых этажей административно-технических зданий:
линейная, коридорная система с покомнатным размещением сотрудников;
бескоридорная большезальная;
смешанная система - сочетание ячейковой комнатной структуры с большезальной.
Особое внимание уделяется организации входа в здание. Вестибюль рекомендуется делать парадным, просторным и светлым. Архитектурно-планировочное решение вестибюля тесно связано с обликом фасада здания. Возможно вынесение вестибюля за пределы основных габаритов здания, объединение всех помещений первого этажа в подстилающий одноэтажный объем (стилобат) под высотный корпус. Большую выразительность облику здания могут придать интересные конструктивные решения козырьков над входами, портальных обрамлений и других деталей.
Гардеробные, душевые и умывальные следует объединять в гардеробные блоки. Все многообразие планировочных решений гардеробных блоков может быть сведено к двум основным схемам: зальной и зально-секционной.
Зальная система предусматривает гардеробные в виде общих залов в торцах здания или в крайних пролетах вдоль него. Душевые размещены в средних пролетах здания между гардеробными.
Если требуется гибкость планировки, которая позволит легко перепланировать помещение при изменении процентного соотношения обслуживаемых мужчин и женщин, то следует применить зально-секционную систему. Зал разделяется на отдельные изолированные секции, и вдоль стен устраиваются коридоры, связывающие секции коммуникационными связями, ведущими на производство. В каждой секции в центральных пролетах размещаются душевые и туалеты, которые блокируются между собой.
В зальной системе тоже можно разделить душевые и туалеты по секционному принципу. Это позволит сократить до минимума преодолеваемые рабочими расстояния при пользовании бытовыми помещениями (см. рис. 2.1, 2.2).
Проектируя административно-бытовой корпус, необходимо стремиться к созданию цельного композиционного решения в увязке с окружающей застройкой.
Внешний облик административно-бытового корпуса определяется в тесной взаимосвязи с его внутренним содержанием. Одним из наиболее эффективных средств создания разнообразных пространственных композиций стало выявление отдельных функциональных объемов - конференц-залов, столовой, конторских помещений и т. д. Большой выразительности можно достичь, используя контраст больших и малых объемов, горизонтальных и вертикальных членений, противопоставление глухих участков стенового ограждения и остекленных поверхностей, игру света и тени, графическую систему пересекающихся горизонтальных и вертикальных членений, выявленных при помощи различных фактур и цветов облицовки (рис. 2.7, 2.8).

Рис. 2.7. Крупнопанельное административно-бытовое здание с высотой типовых этажей 2,8 м. Общий вид

Рис. 2.8.. Административно-бытовой корпус электросталеплавильного цеха. Общий вид, план
Все шире находят применение стеновые панели с развитой рельефной поверхностью, наружные несущие панели с развитой рельефной поверхностью, наружные несущие панели в виде решеток с глубоким рельефом и другие железобетонные элементы с декоративной обработкой.
В данном курсовом проекте студентам предложено выполнить АБК из неполного каркаса со стенами из кирпича, что позволит, используя широкие возможности этого материала, создать фасады с интересной и богатой пластикой.
Расчетно-пояснительная записка выполняется в составе общей пояснительной записки к проекту цеха.
Графическая часть состоит из не менее 4 планшетов форматом 75×55 см или 4 листов форматом А4. В составе графической части должно быть следующее:
план первого этажа М: 1:100, 1:200;
план типового этажа М: 1:100, 1:200:
разрезы корпуса (продольный и поперечный) М: 1:100;
конструктивные детали и узлы (не менее 5 узлов по согласованию с руководителями);
главный фасад корпуса М: 1:100;
боковые фасады М: 1:200.
1. Полезная площадь здания, м2.
2. Площадь застройки, м2.
3. Строительный объем здания, м3.
Технико-эконимические показатели следует поместить в пояснительную записку в заключительной ее части.
Пояснительная записка должна быть аккуратно и прочно сшита, иметь обложку, оформленную по принятому образцу. Листы пояснительной записки должны иметь рамку со штампом, где дается название раздела и номер листа.
Раздел 1
1. СНиП II-90-81. Производственные здания промышленных предприятий. - М. : Стройиздат, 1982 г 32 с.
2. СНиП II-2-80. Противопожарные нормы проектирования зданий и сооружений. - М.: Стройиздат, 1982. - 24 с.
3. ГОСТ 21.508-85. Генпланы - М.: Изд-во стандартов, 1986. - 16 с.
4. ГОСТ 21.501-80. Архитектурные решения. Рабочие чертежи. - М.: Изд-во стандартов, 1986 г 48 с.
5. Архитектурное проектирование промышленных предприятий / Под ред. С.Б. Демидова и А.А. Хрусталева. - М.: Стройиздат, 1984. - 286 с.
6. Архитектура промышленных зданий и сооружений: Справ, проектировщика / Под ред. Н.Н. Кима. - М.: Стройиздат, 1990 г. 440 с.
7. Архитектурная типология промышленных предприятий / Под ред. Н.С. Николаева, В.А. Мыслина, Е.С. Матвеева. - М.: Высш. шк., 1975. - 176 с.
8. Блохин В.В. Композиция в промышленной архитектуре-М.: Высш. шк., 1977. - 232 с.
9. Дятков С.В. Архитектура промышленных зданий. - М: Высш. шк., 1976. - 334 с.
10. Орловский Б.Я. Промышленные здания-М.: Высш. шк., 1975. Госстрой СССР. - 312 с.
11. Руководство по повышению архитектурно-художественного качества планировки и застройки предприятий машиностроения.- М.: Стройиздат, 1972 г. 84 с.
12. Сербинович П.П., Орловский Б.Я., Абрамов В.К. Архитектурное проектирование промышленных зданий. - М.: Высш. шк., 1972 г. 402 с.
13. Конструкции промышленных зданий / Под ред. А.Н. Попова. - М.: Стройиздат, 1979 г. - 304 с.
14. Шерешевский И.А. Конструирование промышленных зданий и сооружений. - Л.: Стройиздат, 1979. - 176 с.
15. Шубин Л.Ф. Архитектура гражданских и промышленных зданий. - М.: Стройиздат, 1977 г. 370 с.
Раздел 2
1. СНиП II-92-76. Вспомогательные здания и помещения промышленных предприятий. - М.: Стройиздат, 1977 г. 42 с.
2. СНиП 2.09.04-87. Административные здания и помещения. - М.: Стройиздат, 1985 - 38 с.
3. СНиП II-Л-8-71. Предприятия общественного питания - М.: Стройиздат, 1972 г. 28 с.
4. Магай А.А. Архитектурное проектирование промышленных предприятий. - М.: Стройиздат, 1984. - 240 с.
5. Десятов В.Г., Иванов В.В., Тераян O.K. Помещения бытового назначения на промышленных предприятиях. - М.: Стройиздат, 1979 г. - 186с.
6. Проектирование вспомогательных зданий и помещений промышленных предприятий / Под ред. проф. А.Ф. Шубина. - М.: Высш. шк., 1986. - 262 с.
7. Серия "Архитектрру-проектировщику". ЦНИЭП зрелищных зданий и спортивных сооружений. Административные здания - М.: Стройиздат, 1975.-52 с.
8. Соколов Л.К. Здания культурно-бытового обслуживания на промышленных предприятиях - М.: Стройиздат, 1980 г. - 280 с.
9. Хенн В. Здания бытового обслуживания на промышленных предприятиях - М.: Стройиздат, 1972. - 142 с.