Нормативные документы размещены исключительно с целью ознакомления учащихся ВУЗов, техникумов и училищ.
Объявления:

ОРДЕНА ЛЕНИНА ГЛАВМОССТРОЙ ПРИ МОСГОРИСПОЛКОМЕ
МОСОРГСТРОЙ

КАРТЫ ТРУДОВЫХ ПРОЦЕССОВ
НА ОБЛИЦОВКУ ПОВЕРХНОСТЕЙ ПАНЕЛЯМИ
ИЗ ДРЕВЕСНОСТРУЖЕЧНЫХ ПЛИТ,
ОФАНЕРОВАННЫХ ШПОНОМ

МОСКВА - 1982

ВВОДНАЯ ЧАСТЬ

1. Карта разработана на основе изучения и обобщения опыта столяров СУ-89 объединения Мосотделстрой (бригадиры А.Д. Морозов, и В.П. Синицын).

2. Режим труда и отдыха принят из условий оптимального темпа выполнения трудовых процессов в соответствии с «Основами методики технического нормирования труда в строительстве».

3. Древесностружечные плиты, офанерованные шпоном, предназначаются для облицовки кирпичных и бетонных стен в помещениях, где влажность воздуха не превышает 70 %.

4. В результате применения совершенных инструментов и наиболее рациональных приемов труда сокращение трудозатрат по сравнению с § 12-6-72 местных норм составит:

Карта трудового процесса строительного производства

УСТАНОВКА КАРКАСА

Входит в комплект карт ККТ

на облицовку поверхностей панелями из древесностружечных плит, офанерованных шпоном

КТ

Разработана трестом Мосоргстрой Главмосстроя с участием ЦНИБ «Мосстрой»

Рассмотрена, откорректирована и рекомендована ВНИПИ труда в строительстве Госстроя СССР для внедрения в строительное производство

1. ОБЛАСТЬ И ЭФФЕКТИВНОСТЬ ПРИМЕНЕНИЯ КАРТЫ

1.1. Карта предназначена для организации труда рабочих при установке каркаса при облицовке поверхностей панелями из древесностружечных плит, офанерованных шпоном.

1.2. Показатели производительности труда:

выработка на 1 чел.-дн., м2                   - 13,8

затраты труда на 10 м2, чел.-ч.              - 5,8

ПРИМЕЧАНИЕ: в затраты труда входит время на подготовительно-заключительные работы (5 %) и отдых (10 %).

2. УСЛОВИЯ И ПОДГОТОВКА ПРОЦЕССА

2.1. До начала работ необходимо:

закончить строительно-монтажные, электромонтажные и сантехнические работы, а также отделочные работы, связанные с мокрыми процессами (устройство цементных стяжек, штукатурные работы и др.).

2.2. Во время работы температурно-влажностный режим в помещении должен соответствовать режиму эксплуатации, в зимнее время работы выполняют при постоянно действующем отоплении и вентиляции.

2.3. Облицовка стен должна производиться в соответствии с требованиями СНиП III-21-73 «Отделочные покрытия строительных конструкций», раздел 2:

влажность кирпичных и бетонных поверхностей не должна превышать 8 %; влажность воздуха - не более 60 %.

2.4. Элементы деревянных каркасов должны быть антисептированными с влажностью не более 18 % и антиперированными; влажность пробок должна быть на 2 - 3 % ниже.

2.5. При производстве работ должны выполняться правила техники безопасности и охраны труда рабочих согласно СНиП III-4-80 «Техника безопасности в строительстве».

3. ИСПОЛНИТЕЛИ, ПРЕДМЕТЫ И ОРУДИЯ ТРУДА

3.1. Исполнители:

столяр IV разряда (С1)             - 1

столяр III разряда (С2)              - 1

3.2. Инструменты, приспособления и инвентарь

Наименование, назначение и основные параметры

ГОСТ, № чертежа, изготовитель

Количество, шт.

Электросверлилка ИЭ-1032 (до 9 мм)

ГОСТ 8524-75

1

Шуруповерт реверсивный ИЭ-3602А

ТУ 22-4019-77

1

Молоток плотничный

ГОСТ 11042-72

1

Пила ручная электрическая дисковая ИЭ-5102Б

Объединение Электростройинструмент

1

Молоток слесарный

ГОСТ 2310-70

1

Рубанок с одиночным ножом

ГОСТ 14664-69

1

Топор плотничный

ГОСТ 18578-73

1

Ножовка по дереву

ТУ 14-1-302-72

2

Пассатижи

ГОСТ 17438-72

1

Отвертка слесарно-монтажная

ГОСТ 17199-71

1

Отвес ОТ-200

ГОСТ 7948-71

1

Уровень гибкий (водяной)

ТУ 25-11-760-72

1

Рейка контрольная

Черт. 1226 треста Мосоргстрой Главмосстроя*)

1

Уровень строительный УС2-300

ГОСТ 9416-76

1

Метр складной металлический

ГОСТ 7253-54

1

Стол для нарезки брусьев

Изготавливается по месту

1

Универсальные сборно-разборные передвижные подмости

Черт. 611.00.00 Управления механизации отделочных работ объединения Мосотделстрой**)

2

*) Москва, Б. Полянка, 51а

**) Москва, Кольская ул., 12

4. ТЕХНОЛОГИЯ ПРОЦЕССА И ОРГАНИЗАЦИЯ ТРУДА

4.1. Установку каркаса выполняют в следующей последовательности:

провешивание поверхности;

разметка стен для установки пробок;

сверление отверстий для установки пробок;

заготовка и установка пробок;

нарезка брусьев;

установка брусьев с креплением.

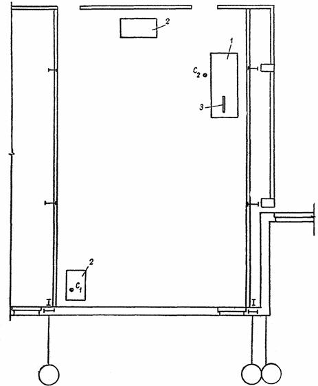
4.2. Схема организации рабочего места.

С1 и С2 - столяры

1 - стол для нарезки брусьев;

2 - подмости;

3 - пила дисковая электрическая

4.3. График трудового процесса

4.4. Описание операций

№ по графику

Наименование операций, их продолжительность*), исполнители, орудия труда, характеристика приемов труда

1.

Провешивание поверхности; 3 мин; С1, С2; отвес, молоток, подмости.

Столяр С1, стоя на подмостях в верхнем углу, на расстоянии 30 - 40 см от лузга стены и потолка, закрепляет гвоздь, с которого спускает шнур с отвесом; столяр С2, стоя на полу, закрепляет внизу по отвесу второй гвоздь на расстоянии 20 - 30 см от пола. К гвоздям привязывает туго натянутый шнур и посередине его закрепляет еще один гвоздь. То же самое делают у другого угла стены и между гвоздями одной и другой стороны натягивают шнуры по горизонтали. По этим шнурам также закрепляют промежуточные гвозди; затем натягивают шнуры по диагоналям стены. Высота гвоздей показывает, где на стене имеются выступы и углубления. Один из максимальных выступов принимают за контрольный и по нему выравнивают высоту гвоздей (рис. 1).

2.

Разметка поверхностей; 3 мин.; С1, С2; метр, рейка, подмости. Столяры С1 и С2 производят разметку стен при помощи метра и рейки для установки пробок (по 3 - 4 отметки под каждый вертикальный брус и по 2 отметки под каждый горизонтальный брус).

3.

Сверление отверстий; 27 мин; С1; электросверлилка, подмости.

Столяр С1 производит сверление отверстий глубиной 6 - 8 см для установки пробок при помощи электросверлилки.

4.

Заготовка и установка пробок; 10 мин; С1, С2; топор, ножовка, молоток.

Столяр С1 производит заготовку пробок на рабочем месте из деревянного бруска при помощи топора и ножовки. Столяр С2 забивает пробки молотком в высверленные отверстия.

5.

Нарезка брусьев; 29 мин; С2; пила дисковая, метр, подмости.

Столяр С2 производит нарезку брусьев на столе дисковой пилой, предварительно разметив их по заданным размерам (рис. 2).

6.

Установка брусьев с выверкой; 88 мин; С1, С2; шуруповерт, отвертка, отвес, молоток, пассатижи, подмости.

Столяры С1 и С2 устанавливают вертикальные бруски с шагом 50 - 60 см (в зависимости от ширины панели) и крепят их к пробкам шурупами (рис. 3). Установленные брусья выверяют по отвесу; если имеются отклонения по вертикали, то под брусья (около пробок) подкладывают деревянные клинья требуемой толщины и крепят их к брусьям гвоздями. После установки вертикальных брусьев между ними устанавливают горизонтальные брусья и крепят их шурупами к пробкам (рис. 4).

7.

Выверка каркаса; 22 мин; С1, С2; отвес, рейка контрольная, уровень.

Столяры С1 и С2 производят выверку установленного каркаса на вертикальность при помощи отвеса и горизонтальность при помощи контрольной рейки и уровня.

*) на 10 м2 поверхности

Рис. 1

(1 - 12 - гвозди)

Рис. 2

Рис. 3

Рис. 4

Карта трудового процесса строительного производства

УСТАНОВКА ПАНЕЛЕЙ

Входит в комплект карт ККТ

на облицовку поверхностей панелями из древесностружечных плит, офанерованных шпоном

КТ

Разработана трестом Мосоргстрой Главмосстроя с участием ЦНИБ «Мосстрой»

Рассмотрена, откорректирована и рекомендована ВНИПИ труда в строительстве Госстроя СССР для внедрения в строительное производство

1. ОБЛАСТЬ И ЭФФЕКТИВНОСТЬ ПРИМЕНЕНИЯ КАРТЫ

1.1. Карта предназначена для организации труда рабочих при установке панелей из древесностружечных плит, офанерованных шпоном.

1.2. Показатели производительности труда:

по карте

выработка на 1 чел.-дн., м2                             - 7,5

затраты труда на 10 м2, чел.-ч.                       - 10,67

ПРИМЕЧАНИЕ: в затраты труда входит время на подготовительно-заключительные работы (5 %) и отдых (8 %).

2. УСЛОВИЯ И ПОДГОТОВКА ПРОЦЕССА

2.1. До начала работ необходимо подготовить инструменты, приспособления и инвентарь, проверить прочность и устойчивость подмостей.

2.2. Относительная влажность воздуха в помещениях должна быть не более 70 %.

2.3. Панели из древесностружечных плит, офанерованных шпоном, должны изготавливаться в соответствии с ТУ 400-1-467-73:

панели должны иметь правильную форму, без искривлений и покоробленности;

лицевая поверхность должна быть ровной, без царапин и других повреждений;

допускаемые отклонения по длине панелей не должны превышать ±2 мм, по ширине ±1 мм.

2.4. При офанеровке древесностружечных плит шпоном ценных пород дерева в целях предохранения плит от коробления покрытие выполняется с двух сторон, причем для обратной стороны используется шпон менее ценных пород дерева.

2.5. Доставку, складирование и хранение панелей необходимо осуществлять плашмя, сложенными попарно лицевой стороной внутрь с прокладкой их бумагой. Хранить изделия необходимо в закрытых помещениях с влажностью воздуха до 60 %.

2.6. Стены, облицованные панелями, должны иметь правильные геометрические стыки и ровную поверхность облицовки, на которой не должно быть пятен, царапин и других дефектов.

2.7. При производстве работ должны выполняться правила техники безопасности и охраны труда рабочих согласно СНиП III-4-80 «Техника безопасности в строительстве».

3. ИСПОЛНИТЕЛИ, ПРЕДМЕТЫ И ОРУДИЯ ТРУДА

3.1. Исполнители:

столяр IV разряда (С1)             - 1

столяр III разряда (С2)              - 1

3.2. Инструменты, приспособления и орудия труда

Наименование, назначение и основные параметры

ГОСТ или № чертежа, изготовитель

Количество, шт.

Пила ручная электрическая дисковая

ИЭ-5102Б объединения «Электростройинструмент»

1

Ножовка по дереву

ТУ 14-1-302-72

1

Рубанок с одиночным ножом

ГОСТ 14664-69

1

Шуруповерт реверсивный ИЭ-3602А

ТУ 22-4019-77

2

Отвертка слесарно-монтажная

ГОСТ 17199-71

2

Коловорот с трещоткой

ГОСТ 7467-75

1

Клещи строительные КС-250

ГОСТ 14184-69

2

Молоток плотничный

ГОСТ 11042-72

2

Метр складной металлический

ГОСТ 7253-54

2

Отвес ОТ-200

ГОСТ 7948-71

1

Рейка контрольная

Черт. 1226 треста Мосоргстрой Главмосстроя*)

1

Уровень строительный УС2-300

ГОСТ 9416-76

1

Стол для раскроя панелей

Изготавливается по месту

1

Стол для нарезки раскладок

-«-

1

Универсальные сборно-разборные передвижные подмости

Черт. 611.00.00 Управления механизации отделочных работ объединения Мосотделстрой**)

 

Очки защитные

ГОСТ 9496-60

1

*) Москва, Б. Полянка, 51а

**) Москва, Пушкинская 23/8

3.3. Расход материалов на 100 м2 стен

Плиты древесностружечные, офанерованные шпоном, - 102,5 м2

4. ТЕХНОЛОГИЯ ПРОЦЕССА И ОРГАНИЗАЦИЯ ТРУДА

4.1. Работы по установке панелей выполняются в следующей последовательности:

раскрой панелей;

вырезка отверстий в панелях для электроарматуры;

крепление вертикальных раскладок;

заготовка закладных;

установка закладных с креплением;

установка панелей с креплением и выверкой;

установка горизонтальных раскладок.

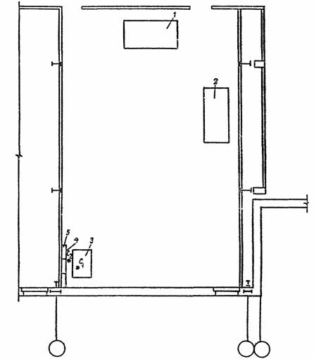
4.2. Схема организации рабочего места

С1, С2 - столяры;

1 - стол для нарезки раскладок;

2 - стол для нарезки панелей;

3 - подмости;

4 - панель;

5 - каркас

4.3. График трудового процесса

4.4. Описание операций

№ по графику

Наименование операций; их продолжительность*), исполнители, орудия труда, характеристика приемов труда

1.

Раскрой панелей; 58 мин; С1, С2; пила дисковая, стол для раскроя панелей, метр

Столяр С2 размечает панель по заданным размерам при помощи метра и карандаша, а столяр С1 производит раскрой панели при помощи дисковой пилы (рис. 1).

2.

Вырезка отверстий в панелях; 32 мин; С1; коловорот, стол

Столяр С1 производит вырезку отверстий в панелях для различного вида проводок при помощи коловорота.

3.

Крепление вертикальных раскладок; 42 мин; С2; молоток, ножовка, стол

Столяр С2 производит нарезку раскладок (деревянных реек шириной 10 мм) ножовкой, предварительно разметив их по заданным размерам, затем крепит раскладки к торцу панели гвоздями с шагом 20 - 25 см (рис. 2).

4.

Заготовка закладных; 10 мин; С1; пила дисковая, стол для раскроя панелей.

Столяр С1 производит заготовку закладных размером 100×50 мм из листа фанеры толщиной 5 мм при помощи дисковой пилы.

5.

Установка закладных деталей с креплением; 65 мин; С1, С2; шуруповерт, пассатижи, стол.

Столяры С1 и С2 устанавливают закладные детали с тыльной стороны панели в четырех местах в двух уровнях по высоте и крепят их к панели шурупами при помощи шуруповерта (рис. 3). Закладные детали должны выступать из-за панели на 4 - 5 см.

6.

Установка панелей с выверкой; 130 мин; С1, С2; молоток, отвес, подмости.

Столяры С1 и С2 устанавливают рядовые панели следующим образом: с одной стороны панели закладные детали заводят за ранее установленную панель и опирают на закладные детали этой панели, а с другой стороны панели выступающие закладные детали крепятся к каркасу гвоздями (рис. 4). Каждую установленную панель выверяют по отвесу. Угловые панели устанавливают так: торец панели, примыкающий к углу помещения, прикрепляют к каркасу гвоздями с шагом крепления 20 - 25 см, шляпки гвоздей срезают, а гвозди забивают при помощи добойника. С другой стороны панель прикрепляется к каркасу при помощи закладных деталей.

7.

Установка горизонтальных раскладок; 25 мин; С1, С2; молоток, клещи, подмости.

Столяр С1 производит нарезку раскладок, предварительно разметив их по заданным размерам.

Столяр С2 устанавливает горизонтальные раскладки, закрывая ими швы между верхними и нижним рядами установленных панелей. Раскладки крепятся к каркасу гвоздями (рис. 5 ).

*) на 10 м2 поверхности

Рис. 1

Рис. 2

Рис. 3

Рис. 4

Рис. 5

СОДЕРЖАНИЕ

1. Область и эффективность применения карты.. 1

2. Условия и подготовка процесса. 1

3. Исполнители, предметы и орудия труда. 2

4. Технология процесса и организация труда. 2

1. Область и эффективность применения карты.. 6

2. Условия и подготовка процесса. 6

3. Исполнители, предметы и орудия труда. 7

4. Технология процесса и организация труда. 7

 

2008-2013. ГОСТы, СНиПы, СанПиНы - Нормативные документы - стандарты.