|
КАРТА ТРУДОВОГО ПРОЦЕССА СТРОИТЕЛЬНОГО ПРОИЗВОДСТВА |
КТ-4.1-7.6-77 |
|
|
Разработана конструкторско-технологическим институтом Минпромстроя СССР* Откорректирована и рекомендована ВНИПИ труда в строительстве Госстроя СССР для внедрения в строительное производство |
||
|
УКЛАДКА СВЯЗНЫХ (РАСПОРНЫХ) ПАНЕЛЕЙ ПЕРЕКРЫТИЙ ПРИ ПОМОЩИ РШИ |
||
|
Входит в комплект карт ККТ-4.1-4 Монтаж сборных железобетонных конструкций каркасных зданий |
||
|
Взамен КТ-4.1-7.6-70 |
* 300600, г. Тула, проспект Ленина, 108.
1.1. Карта предназначена для организации труда рабочих при укладке связных (распорных) панелей перекрытий площадью до 10 м2 с помощью рамно-шарнирных индикаторов (РШИ).
1.2. Показатели производительности труда
|
|
По карте |
По ЕНиР |
|
Выработка на 1 чел.-день, панелей |
14,3 |
10,5 |
|
Затраты труда на одну панель, чел.-ч |
0,56 |
0,76 |
Примечание. В затраты труда включено время на подготовительно-заключительные работы и отдых.
1.3. Снижение затрат труда и повышение выработки рабочих достигается за счет использования рамно-шарнирных индикаторов (РШИ).
2.1. До начала работ необходимо: установить, выверить и закрепить колонны и ригели; проверить размеры панелей и правильность установки закладных деталей; доставить в зону монтажа приспособления, инструменты, инвентарь и расположить их на рабочем месте.
2.2. Работы следует выполнять, строго соблюдая правила техники безопасности и охраны труда рабочих согласно СНиП III-А.11-70, § 14.
3.1. Исполнители:
монтажник конструкций V разряда (М1) - 1
монтажник конструкций IV (М2) - 1
монтажник конструкций III (М3) - 1
монтажник конструкций II (М4) - 1
3.2. Инструменты, приспособления и инвентарь
|
Наименование, назначения и основные параметры |
ГОСТ, № чертежа |
Количество, шт. |
|
Строп четырехветвевой с двумя укороченными ветвями |
РЧ-508-72 ЦНИИОМТП* |
1 |
|
Щетка стальная |
Каталог-справочник ЦНИИТЭстроймаша,** стр. 83 |
2 |
|
Лом монтажный |
ГОСТ 1405-72 |
3 |
* Рабочие чертежи можно приобрести в Бюро внедрения ЦНИИОМТП.
** 121019, .Москва, Г-19, ул. Маркса и Энгельса, 7/10.
4.1. Операции по монтажу связной панели выполняют в следующем порядке: устанавливают поворотно-выдвижные люльки в рабочее положение; подготовляют панель к монтажу; стропят и подают панель к месту укладки; подготовляют места опирания панели; укладывают панель в проектное положение и расстроповывают ее.
4.2. Электроприхватку панели к колоннам перед ее расстроповкой выполняет электросварщик, не входящий в состав звена.
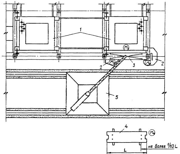
4.3. Организация рабочего места

- рабочие места монтажников
1 - рамно-шарнирные индикаторы; 2 - поворотно-выдвижные люльки; 3 - монтируемая панель; 4 - место складирования панелей; 5 - башенный кран
4.4. График трудового процесса

4.5. Описание операций
|
№ по графику |
Наименование операций, их продолжительность, * исполнители и орудия труда; характеристика приемов труда |
|
1 |
2 |
|
1 |
ПОДГОТОВКА ПАНЕЛИ К МОНТАЖУ; 6 мин; М4; строп, лом Осмотрев и при необходимости выправив ломом монтажные петли панели, монтажник М4 принимает строп, поданный машинистом крана
|
|
2 |
УСТАНОВКА ПОВОРОТНО-ВЫДВИЖНЫХ ЛЮЛЕК В РАБОЧЕЕ ПОЛОЖЕНИЕ; 1,5 мин; М2, М3 Монтажники М2 и М3 ослабив зажимные винты фиксаторов, вращением рукояток против часовой стрелки поворачивают люльки в рабочее положение. Вращая рукоятки по часовой стрелке, они закрепляют люльки фиксаторами
|
|
3 |
СТРОПОВКА И ПОДАЧА ПАНЕЛИ К МЕСТУ УКЛАДКИ; М1 - 1,5 мин; М4 - 0,5 мин; строп Монтажник М1 стропит панель и, убедившись в надежности строповки, отходит на безопасное расстояние. По его команде машинист крана поднимает панель и подает ее к месту укладки. Монтажник М1 следит за подъемом и перемещением панели
|
|
4 |
ПОДГОТОВКА МЕСТА ОПИРАНИЯ ПАНЕЛИ; 2,5 мин; М2, М3; щетки Монтажники М2 и М3, стоя в поворотно-выдвижных люльках, стальными щетками очищают поверхность закладных деталей от ржавчины, грязи и брызг бетона
|
|
5 |
УКЛАДКА ПАНЕЛИ; 2,5 мин; М1, М2, М3; ломы, строп Монтажник М1, стоя на верхней площадке РШИ, подает команду машинисту крана опустить связную панель над консолями колонн. Монтажник М2, находясь на одной из промежуточных площадок РШИ, а монтажник М3 - в нижней люльке РШИ, наводят наклоненную часть панели на опору со стороны хомута, расположенного в пролете РШИ.
По команде монтажника М1 машинист крана медленно опускает панель на опоры, а монтажник М2, придерживает ее сбоку. При необходимости он ломом рихтует опорную часть панели так, чтобы закладные детали ее и ригеля совпали. Другой конец панели укладывают на опоры аналогично
|
|
6 |
РАССТРОПОВКА ПАНЕЛИ; 1 мин; М2, М3; строп Монтажник М2 подает команду машинисту крана ослабить натяжение ветвей стропа и совместно с монтажником М3 расстроповывает панель. По команде монтажника М2 машинист крана поднимает строп и отводит его в сторону |
* На одну панель.
СОДЕРЖАНИЕ
|
1. Область и эффективность применения карты.. 1 2. Условия и подготовка выполнения процесса. 1 |