ПРАВИТЕЛЬСТВО МОСКВЫ
МОСКОМАРХИТЕКТУРА
РЕКОМЕНДАЦИИ
по
проектированию специальных
учебно-воспитательных
учреждений закрытого типа
для детей и подростков
с девиантным поведением
Выпуск 1
СПЕЦИАЛЬНАЯ ОБЩЕОБРАЗОВАТЕЛЬНАЯ ШКОЛА
ЗАКРЫТОГО ТИПА ДЛЯ ДЕТЕЙ
И ПОДРОСТКОВ
С ДЕВИАНТНЫМ ПОВЕДЕНИЕМ
2002
ПРЕДИСЛОВИЕ
1. РАЗРАБОТАНЫ: ГУП МНИИП «Моспроект-4» (архитекторы Любомудрова К. И., Кряжевских М. А., инженер Тихомирова И. Б.).
2. ПОДГОТОВЛЕНЫ К УТВЕРЖДЕНИЮ И ИЗДАНИЮ Управлением перспективного проектирования и нормативов Москомархитектуры (архитектор Шалов Л. А., инженер Щипанов Ю. Б.).
3. СОГЛАСОВАНЫ: Московским комитетом образования, Москомархитектурой, ГУВД г. Москвы.
4. УТВЕРЖДЕНЫ И ВВЕДЕНЫ В ДЕЙСТВИЕ указанием Москомархитектуры от 25.09.02 № 60.
СОДЕРЖАНИЕ
|
4. Требования к размещению, участку и территории. 3 5. Требования к архитектурно-планировочным решениям и инженерному оборудованию.. 4 |
Специальная общеобразовательная школа закрытого типа для детей и подростков с девиантным поведением (далее ЗОШ) является самостоятельным типом общеобразовательного учреждения с принудительным пребыванием детей и подростков с криминальной девиантностью. Эта школа создает оптимальные условия для реабилитации, воспитания, образования, оздоровления, социализации и профессиональной ориентации воспитанников.
Назначением ЗОШ является обеспечение психологической, медицинской и социальной реабилитации детей и подростков, включая коррекцию их поведения и адаптацию в обществе, а также условий, необходимых для получения ими общего и начального профессионального образования.
1.1. Настоящие «Рекомендации» разработаны в развитие нормативных документов по проектированию и строительству в г. Москве. Их положения распространяются на проектирование новых и реконструкцию существующих ЗОШ.
1.2. Настоящие «Рекомендации» устанавливают основные положения и требования к размещению, участку, территории, архитектурно-планировочным решениям и инженерному оборудованию ЗОШ.
1.3. Проектирование ЗОШ должно вестись в соответствии с положениями настоящих «Рекомендаций», а также требованиями нормативно-методических документов в строительстве, действующих на территории г. Москвы.
В настоящих Рекомендациях приведены ссылки на следующие нормативно-методические документы:
2.1. СНиП 10.01-94. «Система нормативных документов в строительстве. Основные положения».
2.2. СНиП 2.08.02-89* «Общественные здания и сооружения».
2.3. СНиП 21-01-97 «Пожарная безопасность зданий и сооружений»
2.4. СНиП 2.07.01-89* «Градостроительство Планировка и застройка городских и сельских поселений».
2.5. СНиП 2.04.09-84 «Пожарная автоматика зданий и сооружений».
2.6. СНиП 2.04.05-91* «Отопление, вентиляция и кондиционирование воздуха».
2.7. СНиП 23-05-95 «Естественное и искусственное освещение».
2.8. СНиП 2.04.01-85* «Внутренний водопровод и канализация зданий».
2.9. СанПиН 2.4.2.782-99 «Гигиенические требования к условиям обучения школьников в различных видах современных общеобразовательных учреждений».
2.10. СанПиН 2.2.1/2.1.1.1076-01 «Гигиенические требования к инсоляции и солнцезащите помещений жилых и общественных зданий и территорий».
2.11. СН 441-72* «Указания по проектированию ограждений площадок и участков предприятий, зданий и сооружений».
2.12. МГСН 4.06-96 «Общеобразовательные учреждения».
2.13. МГСН 4.15-98 «Общеобразовательные учреждения для детей-сирот и детей, оставшихся без попечения родителей».
2.14. МГСН 1.01-99 «Нормы и правила проектирования, планировки и застройки г. Москвы».
2.15. МГСН 4.12-97 «Лечебно-профилактические учреждения»
2.16. МГСН 2.06-99 «Естественное, искусственное и совмещенное освещение».
2.17. МГСН 2.01-99 «Энергосбережение в зданиях».
2.18. МГСН 4.07-96 «Дошкольные учреждения».
2.19. «Рекомендации по проектированию образовательных учреждений для детей, нуждающихся в психолого-педагогической и медико-социальной помощи», М., 2000 г.
2.20. «Рекомендации по проектированию сети и зданий детских внешкольных учреждений для г. Москвы», М, 1997 г.
2.21. «Проектирование бассейнов». Справочное пособие к СНиП 2.08.02-89*, М., Стройиздат, 1991 г.
3.1. К основным видам деятельности, которые осуществляются в ЗОШ, относятся: образовательная деятельность, начальное профессиональное образование, дополнительное образование, оздоровление воспитанников, педиатрическая и иная врачебная помощь, психологическая и социально-педагогическая диагностика, психологическая коррекция, соблюдение режимных требований.
3.2. Основными задачами ЗОШ являются:
- оказание медико-социальной коррекционной помощи воспитанникам на основе индивидуальной диагностики;
- организация образовательной деятельности и компенсирующего обучения по общеобразовательным программам (основным и дополнительным) и начального профессионального образования в соответствии с индивидуальными особенностями воспитанников и их уровнем обученности;
- организация развивающего досуга (культурное и эстетическое развитие, оздоровление и занятия спортом);
- организация мероприятий, направленных на формирование законопослушного поведения воспитанников;
- обеспечения проживания и питания несовершеннолетних.
3.3. В ЗОШ следует предусматривать специальные условия содержания воспитанников:
- охрана территории и материальных ценностей;
- организация безопасных условий содержания воспитанников и работы персонала;
- временная изоляция воспитанников, исключение возможности самовольного ухода с территории учреждения;
- круглосуточное наблюдение и контроль за поведением (в т.ч. во время их сна);
- проведение личного досмотра воспитанников;
- проведение выборочного досмотра писем, посылок, почтовых сообщений и т.д.
3.4. Контингент воспитанников ЗОШ составляют несовершеннолетние в возрасте от 11 до 18, совершившие общественно опасные деяния, установленные Уголовным кодексом, нуждающиеся в особых условиях воспитания и обучения и требующие специального педагогического подхода. К данному контингенту относятся лица, которые не подлежат уголовной ответственности в связи с недостижением соответствующего возраста и (или) вследствие отставания в психическом развитии, не связанным с психическим расстройством; или осужденные и освобожденные судом от отбытия наказания в исправительной колонии. В этом случае по решению суда несовершеннолетний направляется в ЗОШ. Срок содержания воспитанника в учреждении определяется данным решением.
3.5. В ЗОШ воспитанники содержатся не более 3 лет.
3.6. Срок пребывания воспитанника в ЗОШ может быть сокращен или продлен психолого-медико-педагогической комиссией этого учреждения после проведения диагностики его личности.
3.7. ЗОШ, как правило, организуются отдельно для мальчиков и для девочек.
3.8. Воспитанники, выпущенные из учреждения, имеют право продолжать обучение в том образовательном учреждении, где они обучались ранее до пребывания в ЗОШ. Они принимаются в соответствующий класс на основании документов об их промежуточной аттестации в ЗОШ.
3.9. ЗОШ должна быть полностью рассчитана на использование внутренней инфраструктуры. Его воспитанники не могут посещать обычные общеобразовательные учреждения, учреждения дополнительного образования, учреждения начальной профессиональной подготовки (УПК), культурно-массовые и спортивные, и т.п. Функции этих учреждений должны быть обеспечены в ЗОШ за счет соответственной расширенной номенклатуры помещений.
3.10. В соответствии с Типовым положением о специальном учебно-воспитательном учреждении для детей и подростков с девиантным поведением (Постановление Правительства РФ от 25 апреля 1995 г. № 420) вместимость ЗОШ принимается не более 100 мест.
3.11. Состав и площади помещений ЗОШ должны определяться в соответствии с Разделом 5 настоящих Рекомендаций и уточняются в каждом конкретном случае заданием на проектирование.
4.1. ЗОШ следует размещать в периферийной зоне города, вне жилой застройки.
4.2. Здания ЗОШ следует размещать на обособленных земельных участках.
4.3. Площадь участка ЗОШ принимается из расчета 140-160 м2 на 1 воспитанника с учетом размещения на участке площадок и сооружений оздоровительного и досугового характера, обеспечивающих психолого-терапевтическую коррекцию.
4.4. В составе территории участка ЗОШ предусматриваются следующие зоны:
- учебная и общественная;
- проживания;
- физкультурно-оздоровительная;
- медицинского изолятора;
- хозяйственная.
4.5. Размеры и состав зон участков в зависимости от объемно-планировочного решения уточняются в процессе проектирования с учетом положений настоящего раздела.
4.6. В зоне размещения функциональных блоков учебного и общественного назначения рекомендуется предусматривать мощеную площадку для массовых сборов воспитанников из расчета 0,8 м2 на 1 воспитанника.
4.7. В зоне проживания рекомендуется предусматривать прогулочную территорию, оборудованную газонами, цветниками, навесами, качелями, скамейками для отдыха и т.п. Прогулочные площадки должны быть оборудованы специальным ограждением, по периметру ограждения не должны присутствовать посторонние предметы.
4.8. В составе физкультурно-оздоровительной зоны рекомендуется предусматривать:
- баскетбольную и волейбольную площадки;
- гимнастическую площадку (15 × 16 м);
- комбинированную площадку для спортивных игр, метания мяча и прыжков (60 × 40 м).
4.9. В связи с тем, что помимо оздоровительной функции, физкультурно-оздоровительный комплекс является базой для проведения психолого-коррекционных мероприятий, в его состав рекомендуется включать помимо перечисленных площадок также сооружения и площадки для нетрадиционных активных видов занятий (катание на роликах, скейтах и т.п.).
Состав и количество физкультурных площадок уточняется заданием на проектирование.
4.10. Медицинский изолятор должен иметь самостоятельный выход на участок и подъездные пути, обеспечивающие возможность проезда специального медицинского транспорта для госпитализации заболевших.
4.11. Хозяйственная зона должна размещаться со стороны производственных помещений пищеблока. На ее территории допускается размещать гараж с мастерскими, навесы для инвентаря и оборудования, мусоросборники и т.п. Гараж рекомендуется проектировать на 3 машины (2 - служебные, 1 - учебная) и использовать как для хозяйственных нужд учреждения, так и для обучения автоделу воспитанников.
4.12. Земельный участок должен иметь глухое ограждение по всему периметру, высотой 4 м, без выступов с наружной и внутренней сторон, с периметральной охранной сигнализацией. По всему периметру ограждения следует устанавливать ряд скрытых телекамер для внутреннего обозрения территории и наружного обозрения ограждения. Все телекамеры должны быть выведены на центральный пункт режимной службы.
4.13. Въезд и проход на территорию ЗОШ осуществляется через контрольно-пропускной пункт. Дежурный по КПП осуществляет пропускной режим на территорию. КПП оборудуется автоматически закрывающимися дверьми, турникетом для сотрудников и посетителей, решетками на окнах, сигнализацией с выходом на центральный пульт дежурной части, телефонами оперативной связи.
4.14. Площадь озеленения территории участка должна составлять 40 % от общей площади участка. В состав зеленой зоны входят газоны с низкорастущими декоративными растениями, кустарники (не выше 50 см), цветники и отдельно стоящие лиственные деревья, размещаемые в центральной зоне участка. По периметру ограждения рекомендуется предусматривать полосу газона, шириной не менее 5 м.
4.15. Участок ЗОШ должен быть освещен в соответствии с требованиями СНиП 23-05-95 с постоянным освещением в вечернее и ночное время.
4.16 Планировка участка должна обеспечивать подъезды с твердым покрытием к хозяйственной зоне, подъезды пожарных машин ко всем зданиям и блокам, а также объезды вокруг них в соответствии с СНиП 21-01-97*.
4.17. Для автомашин сотрудников ЗОШ следует предусматривать открытую стоянку в соответствии с требованиями МГСН 1.01-99 за пределами ограждаемой территории.
Общие требования
5.1. В состав ЗОШ входят следующие функциональные группы помещений:
- вестибюльная;
- проживания;
- общего образования;
- начальной профессиональной подготовки и дополнительного образования;
- лечебно-реабилитационная (психолого-коррекционные и медицинские помещения);
- культурно-досуговая и физкультурно-оздоровительная;
- медицинского изолятора;
- питания;
- административно-бытовая;
- хозяйственного обслуживания.
Архитектурно-планировочные решения ЗОШ должны учитывать требования функционального зонирования помещений с учетом осуществляемой в них деятельности.
Различные функциональные группы помещений, рассчитанные на работу с детьми, помимо своих основных функций, должны обеспечивать также коррекционно-реабилитационную функцию, что учитывается составом и площадями их помещений и должно быть отражено в архитектурно-планировочных решениях.
5.2. При проектировании помещений ЗОШ рекомендуется пользоваться габаритными схемами, приведенными в Приложениях. Рекомендуемые площади отдельных помещений в зависимости от конкретных планировочных и конструктивных решений могут быть откорректированы (уменьшены или увеличены) на 15 %.
5.3. Функциональные группы помещений могут размещаться либо в отдельных корпусах или блоках, либо непосредственно примыкающих друг к другу, либо соединенных отапливаемыми переходами. В случае непосредственного примыкания корпусов (блоков) должны предусматриваться пожарные отсеки площадью не более 5000 м2, разделяемые противопожарными стенами 1-го типа (в соответствии с требованиями СНиП 21-01-97*), а из каждого пожарного отсека должно быть предусмотрено не менее двух эвакуационных выходов, один из входов допускается предусматривать в соседний блок.
5.4. Учитывая специфику контингента ЗОШ, отдельные блоки помещений, непосредственно рассчитанные на пребывание воспитанников, следует проектировать непроходными, с возможностью их изоляции в течении суток в зависимости от режима работы каждой группы помещений. Объединение различных групп помещений может осуществляться через общее коммуникационное пространство. В том случае, когда в одном блоке размещены различные группы помещений, их следует проектировать поэтажно, предусматривая возможность изоляции.
Общая функционально-планировочная схема ЗОШ представлена на Рис. 1.
5.5. Здания ЗОШ не должны превышать 4 этажей.
Рис. 1. Схема функциональной структуры ЗОШ.
1. Вестибюльная группа помещений. 2. Помещения проживания. 3. Помещения питания. 4. Помещения общего образования. 5. Помещения досугового и физкультурно-оздоровительного назначения: а - физкультурно-оздоровительные, б - досуговые; в - начальное профессиональное и дополнительное образование. 6. Лечебно-реабилитационные помещения. 7. Медицинский изолятор. 8. Административно-бытовые помещения.
Условные обозначения.
- Коммуникационное пространство
- Обязательные связи
- Необязательные связи
5.6. Объемно-планировочная структура здания должна обеспечивать оптимальные условия осуществления протекающих в нем функциональных процессов, отражать специфику учреждения и обеспечивать соответствующие условия эксплуатации и необходимую связь с участком.
5.7. Ширина лестничных маршей должна быть не менее 1,35 м. Лестничные марши и площадки должны иметь защитное ограждение на всю высоту.
Ширину дверей основных помещений следует принимать не менее 1 м.
Ширину коридоров в группах помещений административно-бытового, методического и хозяйственного назначения следует принимать не менее 1,4 м; а во всех группах помещений, рассчитанных на работу с детьми - не менее 2,2 м.
5.8. Коммуникационные помещения не должны иметь «карманов» и непросматриваемых зон.
5.9. На каждом этаже в коридорах и холлах следует размещать посты режимной службы. Посты режимной службы следует оборудовать средствами оперативной связи с директором ЗОШ и ответственным дежурным по режиму. В местах массового скопления воспитанников (вестибюле, холлах для развода, фойе при актовом зале и т.п.) следует предусматривать помещения режимной службы.
5.10. На входах в здание следует предусматривать металлические двери.
5.11. Остекление наружных окон на всех этажах зданий следует производить с применением противоударных и тонированных стекол. Оконные запоры должны быть скрытыми и недоступными для воспитанников.
5.12. Все окна и наружные двери следует оборудовать автоматической сигнализацией с выводом сигнала на центральный пункт режимной службы.
5.13. На входах в здание ЗОШ, а также в актовый и спортивный залы и бассейн следует устанавливать телекамеры наблюдения с выводом сигнала на центральный пункт режимной службы.
5.14. Высота наземных этажей здания ЗОШ должна быть не менее 3,3 м (от пола до пола вышележащего этажа). Высота зрительного зала принимается не менее 3,6 м, высота спортзала - 6 м (до низа несущих конструкций).
5.15. Внутренняя отделка помещений ЗОШ должна быть выполнена из материалов, разрешенных для применения органами Госсанэпиднадзора Минздрава РФ, допускающих влажную уборку, а также применение дезинфицирующих средств.
5.16. Все помещения групп общего образования, начальной профессиональной подготовки и дополнительного образования, лечебно-реабилитационных помещений, рассчитанные на пребывание детей, должны быть оборудованы умывальниками.
5.17. Естественное, искусственное и совмещенное освещение в помещениях следует проектировать в соответствии с требованиями МГСН 2.06-99.
5.18. Рабочие места в учебных помещениях и помещениях начальной профессиональной подготовки должны иметь естественное освещение с КЕО не менее 1,5 на поверхности столов и освещаться боковым с левой стороны светом. Для организации мобильных форм (групповых и индивидуальных) ведения занятий необходимо предусматривать равномерное освещение по всей рабочей плоскости в помещении за счет дополнительного верхнего света или дополнительного искусственного освещения в глубине помещения.
5.19. Допускается не предусматривать естественного освещения:
- в зрительном зале;
- в умывальных, душевых и уборных при спортивном зале, санитарных узлах для персонала, комнатах личной гигиены женщин;
- в радиоузле;
- в столовой для персонала;
- в кладовых инвентаря, комнатах хранения предметов уборки;
- в помещениях технических служб.
В зависимости от архитектурно-планировочного решения допускается проектировать с искусственным освещением санитарные узлы для детей и подростков (при соблюдении необходимой кратности обмена воздуха).
5.20. Санитарные узлы и туалетные комнаты в ЗОШ проектируются с учетом специфики работы каждого подразделения в соответствии с действующими нормативными документами: МГСН 4.15-98, МГСН 4.06-96.
Внутренний водопровод и канализацию следует проектировать в соответствии с СНиП 2.04.01-85*.
Учитывая специфику контингента воспитанников, размещение санитарных приборов осуществляется только в общих санитарных узлах в открытых кабинах. Санитарные приборы должны быть в антивандальном исполнении.
5.21. В комнатах хранения уборочного инвентаря следует предусматривать умывальник и слив.
5.22. Инсоляцию помещений, в которых находятся дети, следует предусматривать в соответствии с требованиями СанПиН 2.2.1/2.1.1.1076-01.
5.23. Отопление и вентиляцию зданий следует проектировать в соответствии с требованиями СНиП 2.04.05-91*, МГСН 4.06-96, МГСН 2.01-99. Отопительные приборы и тубы в спальных помещениях следует предусматривать скрытыми в строительные конструкции.
5.24. Энергоснабжение, электрооборудование, электрическое освещение здания и наружное освещение территории следует предусматривать в соответствии с требованиями МГСН 2.06-99 , МГСН 4.06-96, МГСН 2.01-99.
5.25. Проектирование здания должно осуществляться с учетом принципов максимального энергосбережения в соответствии с требованиями МГСН 2.01-99.
5.26. Здания следует проектировать не менее II степени огнестойкости в соответствии с СНиП 21-01-97*.
5.27. В зданиях должна быть предусмотрена автоматическая пожарная сигнализация в соответствии с требованиями СНиП 2.04.09-84. Перечень помещений, в которых необходимо предусматривать автоматическую пожарную сигнализацию, следует определять в соответствии с МГСН 4.06-96 и МГСН 4.15-98. Сигнал о срабатывании системы АПС (автоматической пожарной сигнализации) выводится в помещение с круглосуточным пребыванием персонала.
5.28. На путях эвакуации из здания должно быть предусмотрено аварийное и эвакуационное освещение, проектируемое в соответствии с требованиями СНиП 21-01-97* и СНиП 23-05-95.
Вестибюльная группа помещений.
5.29. Рекомендуемый состав помещений вестибюльной группы ЗОШ приведен в таблице 5.1.
5.30. Вход воспитанников во все блоки различных групп помещений осуществляется через вестибюльную группу.
5.31. Помещение гардероба для воспитанников должно быть зонировано на изолированные секции для отдельных групп, отделяемых сетчатыми перегородками как друг от друга, так и от гардероба в целом.
5.32. В составе оборудования гардероба для воспитанников рекомендуется предусматривать сушильные шкафы для одежды и обуви с подогревом и вытяжкой, а также вешалки консольного типа.
5.33. Гардероб для верхней одежды персонала и посетителей рекомендуется предусматривать в отдельном помещении при вестибюле.
5.34. В состав вестибюльной группы рекомендуется включать комнату свиданий воспитанников с посетителями с остекленным проемом в стене для организации наблюдения.
5.35. В состав вестибюльной группы следует включать пост сотрудника режимной службы с помещением отдыха.
5.36. Входы в вестибюль и служебные входы в здание следует оборудовать тамбурами.
Таблица 5.1.
Рекомендуемые состав и площади помещений вестибюльной группы.
|
Наименование помещений |
Площадь помещений, м2 |
Примечание |
||
|
На 1 место |
Всего |
|||
|
1 |
2 |
3 |
4 |
5 |
|
1. |
Вестибюль |
0,5 |
- |
С учетом численности персонала и возможностью организации поста режимной службы |
|
2. |
Гардероб для верхней одежды воспитанников |
0,8 |
- |
|
|
3. |
Гардероб для верхней одежды персонала и посетителей |
0,1 |
- |
|
|
4. |
Комната свиданий с посетителями |
- |
12 |
|
|
5. |
Помещение сотрудника режимной службы |
- |
10 |
|
|
6. |
Санитарный узел с умывальником в шлюзе |
- |
3 |
|
|
7. |
Комната хранения предметов уборки |
- |
4 |
|
Помещения проживания.
5.37. Рекомендуемые состав и площади помещений проживания приведены в таблице 5.2.
5.38. Помещения проживания следует размещать в отдельных корпусе или блоке, непосредственно примыкающих к блокам других групп помещений или соединенным с ними теплым переходом.
5.39. Помещения проживания рекомендуется проектировать в виде изолированных секций, организованных по возрастному принципу, и состоящих из двух жилых групп на 9 воспитанников каждая.
5.40. Количество секций (на 18 воспитанников) определяется заданием на проектирование в зависимости от общего количества воспитанников ЗОШ.
5.41. В состав жилой секции входят:
- две жилые группы;
- комната дежурного воспитателя;
- санитарный узел персонала;
- бытовая комната;
- комната уборочного инвентаря.
5.42. В состав жилой группы входят:
- три спальные комнаты на 1 место;
- две спальные комнаты на 3 места;
- комната приготовления уроков;
- комната тихого отдыха;
- санитарный узел;
- душевая;
- комната хранения личных вещей воспитанников;
- гардероб для хранения одежды воспитанников.
5.43. Входы в жилые группы и спальные комнаты проектируются с дверными проемами без дверного полотна для организации наблюдения за воспитанниками в ночное время. В проеме входа в жилую группу организуется пост режимной службы.
5.44. Вход в жилую секцию оборудуется запирающейся дверью.
5.45. Функционально-планировочная схема помещений жилой секции представлена на Рис. 2.
5.46. В состав оборудования спальных комнат входят кровати и стулья в соответствии с количеством мест в комнате. Гардеробная оборудуется шкафами-купе с секциями по количеству воспитанников в жилой группе. Комната хранения личных вещей воспитанников оборудуется стеллажами с закрывающимися ячейками.
5.47. Рекомендуемый состав оборудования санитарного узла: 2 унитаза, огороженных экранами высотой не более 1 м, и 2 умывальника. Рекомендуемый состав оборудования душевой: душ (2 душевые сетки), умывальник, скамья для раздевания, вешалка для одежды. В учреждении для мальчиков в состав оборудования санитарного узла следует включать 2 писсуара. В учреждении для девочек - бидэ.
5.48. Оборудование комнаты тихого отдыха должно быть приспособлено к проведению групповых психолого-коррекционных занятий.
5.49. Помещения для хранения чистого и грязного белья рекомендуется размещать поэтажно на 2-3 секции.
5.50. В блоке помещений проживать рекомендуется организовывать кабинеты дежурных медсестер, размещая их поэтажно на 2-3 секции.
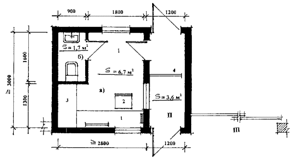
Рис. 2. Функционально-планировочная схема жилой секции
1. Комната приготовления уроков. 2. Санитарный узел. 3. Душевая. 4. Спальная комната на 3 места. 5. Спальная комната на 1 место. 6. Гардеробная. 7. Комната тихого отдыха. 8. Комната хранения личных вещей. 9. Комната уборочного инвентаря. 10. Санитарный узел персонала. 11. Комната дежурного воспитателя. 12. Бытовая комната. 13. Коммуникационное пространство. ● Пост режимной службы.
Таблица 5.2.
Рекомендуемые состав и площади помещений проживания.
|
Наименование помещений |
Площадь помещений, м2 |
Примечания |
|
|
1 |
2 |
3 |
4 |
|
Жилая группа |
|||
|
1. |
Спальная на 3 мест (2 шт.) |
12 × 2 = 24 |
|
|
2. |
Спальная на 1 место (3 шт.) |
4 × 3 = 12 |
|
|
3. |
Комната приготовления уроков |
22 |
Приложение, Рис. П.1. |
|
4. |
Комната тихого отдыха |
32 |
Приложение, Рис. П.2. |
|
5. |
Санитарный узел для мальчиков |
5 |
|
|
6. |
Санитарный узел для девочек |
6 |
|
|
7. |
Душевая |
4 |
|
|
8. |
Комната для хранения личных вещей воспитанников |
4 |
|
|
9. |
Гардеробная |
6 |
|
|
Жилая секция |
|||
|
1. |
Комната дежурного воспитателя |
9 |
|
|
2. |
Санузел персонала |
4 |
В состав санузла входят: унитаз, умывальник, душ |
|
3. |
Бытовая комната |
6 |
|
|
4. |
Комната уборочного инвентаря |
4 |
|
|
Общие помещения на 2-3 жилые секции |
|||
|
1. |
Комната хранения грязного белья |
3 |
|
|
2. |
Комната хранения чистого белья |
4 |
|
Помещения общего образования.
5.51. Рекомендуемые состав и площади помещений общего образования приведены в таблице 5.3.
5.52. Данная группа помещений обеспечивает проведение мероприятий, направленных на:
- обучение по образовательным программам в соответствии с возрастными и индивидуальными особенностями детей и подростков, на уровне, предусмотренном законом «Об образовании»;
- психолого-педагогическую помощь в усвоении образовательных программ;
- образование воспитанников с отклонениями в развитии.
5.53. Наполняемость всех классов принимается в соответствии с «Рекомендациями по проектированию образовательных учреждений для детей, нуждающихся в психолого-педагогической и медико-социальной помощи» - 9 чел.
5.54. В составе группы помещений общего образования предусмотрены неспециализированные классные помещения и специализированные кабинеты: физики-химии, иностранного языка, биологии, компьютерный класс. Учебные помещения должны отвечать требованиям активного ведения учебного урока с организацией как фронтальных, так групповых и индивидуальных форм обучения с широким привлечением технических средств.
5.55. Учитывая специфику контингента воспитанников, неспециализированные классные помещения следует проектировать с трехрядной расстановкой одноместных парт. Количество неспециализированных классных помещений определяется в каждом конкретном случае заданием на проектирование в зависимости от общей вместимости учреждения.
5.56. Учитывая специфику контингента воспитанников, в оборудование как специализированных, так и неспециализированных классных помещений не следует включать стеллажи с пособиями. Хранение пособий следует предусматривать либо в лаборантских, либо в учительской.
5.57. В состав помещений общего образования входит библиотека с книгохранилищем без читального зала.
5.58. В связи с комплектованием классов не по возрастному принципу (по которому комплектуются группы проживания), а по принципу обученности воспитанника, в состав группы помещений общего образования следует включать холл для развода учащихся. В холле следует предусмотреть место ожидания воспитателей. Рекомендуется проектировать данный холл на нижнем этаже блока помещений общего образования.
5.59. Проектирование санитарных узлов при учебных помещениях осуществляется в соответствии с МГСН 4.06-96.
Таблица 5.3.
Рекомендуемые состав и площади помещений общего образования.
|
Наименование помещений |
Площадь помещений, м2 |
Примечания |
||
|
На 1 учащегося |
Всего |
|||
|
1 |
2 |
3 |
4 |
5 |
|
1. |
Класс |
- |
36 |
Приложение, Рис. П.3. |
|
2. |
Кабинет занятий физикой и химией с двумя лаборантскими |
- |
50 9 × 2 |
Приложение, Рис. П.4. |
|
3. |
Кабинет биологии с лаборантской |
- |
50 14 |
|
|
4. |
Кабинет иностранного языка |
- |
40 |
|
|
5. |
Компьютерный класс |
- |
50 |
Приложение, Рис. П.5. |
|
6. |
Библиотека: |
|
|
|
|
|
книгохранилище на 10000 единиц хранения |
0,0035 на 1 ед. хранения |
35 |
Размещаются смежно |
|
|
- комната выдачи книг |
- |
10 |
|
|
7. |
Методический кабинет |
- |
24 |
|
|
8. |
Кабинет заведующего учебной частью |
- |
20 |
|
|
9. |
Учительская |
- |
36 |
|
|
10. |
Холл для развода воспитанников |
1,2 |
- |
|
|
11. |
Комната сотрудников режимной службы |
- |
10 |
|
|
12. |
Санитарный узел для учащихся с умывальниками в шлюзе |
- |
16 |
Размещаются поэтажно |
|
13. |
Санитарный узел персонала с умывальником в шлюзе |
- |
3 |
|
Помещения начальной профессиональной подготовки и дополнительного образования.
5.60. Рекомендуемые состав и площади помещений начальной профессиональной подготовки и дополнительного образования приведены в таблице 5.4.
5.61. Данная группа помещений обеспечивает проведение мероприятий, направленных на:
- предоставление воспитанникам возможности получения начальной профессиональной подготовки аналогично учебно-производственным комплексам - УПК - для обычных общеобразовательных школ;
- трудовую терапию и привитие навыков к труду;
- формирование у воспитанников потребности в групповом и межличностном общении;
- раскрытие врожденных склонностей воспитанника, формирование его культурных интересов;
- осуществление социально-бытовой адаптации, дающей навыки самостоятельного жизнеобеспечения.
5.62. Наполняемость мастерских начальной профессиональной подготовки и помещений для дополнительного образования принимается в соответствии с «Рекомендациями по проектированию образовательных учреждений для детей, нуждающихся в психолого-педагогической и медико-социальной помощи» - 9 чел.
5.63. Учитывая специфику контингента воспитанников, рекомендуется использование мастерских начальной профессиональной подготовки во внеурочное время в качестве помещений для дополнительного образования. Вследствие этого, рекомендуется их располагать в блоке досуговых помещений.
5.64. В качестве холла для развода воспитанников в данном случае используется фойе при актовом зале.
5.65. Состав и профиль мастерских начальной профессиональной подготовки и помещений дополнительного образования в каждом конкретном случае уточняются заданием на проектирование.
Рекомендуемый состав мастерских начальной профессиональной подготовки в ЗОШ для мальчиков: мастерская по обработке металла, мастерская по обработке дерева, автодело (теория), электротехники, радиоэлектроники. Практические занятия по автоделу проводятся в гараже и на территории учреждения.
Рекомендуемый состав мастерских начальной профессиональной подготовки в ЗОШ для девочек: мастерская швейная, вязальная, изготовления головных уборов, делопроизводства, кулинарная.
Номенклатура видов начальной профессиональной подготовки должна быть расширенной, предоставляющей возможность подбирать каждому воспитаннику занятия, соответствующие его склонностям.
5.66. В связи с тем, что у воспитанников ЗОШ полностью отсутствуют элементарные навыки ведения домашнего хозяйства, кулинарная мастерская является обязательной и должна включать в свой состав две зоны: зону производства и зону «чаепития». В оборудование первой зоны входят разделочные столы, плита, холодильник, шкаф сухих продуктов, шкаф кухонной посуды, мойка. Оборудование второй зоны составляют обеденный стол со стульями, шкаф с чайной посудой.
5.67. Учитывая специфику контингента воспитанников, планировка мастерских для занятий, проведение которых связано с использованием ценного оборудования, должна обеспечивать выделение двух зон доступности:
- зону занятий с руководителем;
- зону ограниченной доступности (хранения ценного оборудования, сырья, изделий).
5.68. При помещениях начальной профессиональной подготовки следует предусматривать кладовые для хранения материалов и готовых изделий.
5.69. Мастерские следует оборудовать шкафами для хранения спецодежды.
5.70. Производственные помещения начальной профессиональной подготовки, в которых процесс обучения связан с выделением химических веществ и пыли (в т.ч. мастерские радиотехники, электроники, монтажные и др.), следует оборудовать эффективной вентиляционной системой в соответствии со СНиП 2.04.05-91*.
Монтажные мастерские, в которых проводится рубка и резка металла, а также мастерские с крупногабаритным и тяжелым оборудованием, с крупногабаритными материалоемкими объектами работ учащихся, необходимо располагать на первом этаже.
Таблица 5.4.
Рекомендуемые состав и площади помещений начальной профессиональной подготовки и дополнительного образования.
|
Наименование помещений |
Площадь помещений, м2 |
Примечания |
||
|
На 1 учащегося |
Всего |
|||
|
1 |
2 |
3 |
4 |
5 |
|
1. |
Мастерские начальной профессиональной подготовки с кладовыми в ЗОШ для мальчиков |
- |
(70 + 12) × 5 |
|
|
2. |
Мастерские начальной профессиональной подготовки в ЗОШ для девочек |
- |
(60 + 8) × 5 |
|
|
3. |
Мастерская кулинарного творчества |
4,5 |
- |
Приложение, Рис. П.6 |
|
4. |
Театрально-художественная мастерская с кладовой |
- |
49 + 15 |
Приложение, Рис. П.7 |
|
5. |
Кинофотолаборатория |
- |
18 |
|
|
6. |
Комната музыкальных занятий с кладовой инструментов |
- |
32 + 14 |
Приложение, Рис. П.8. |
|
7. |
Изостудия с кладовой |
- |
38 + 14 |
Приложение, Рис. П.9. |
|
8. |
Комната мастеров |
- |
25 |
|
|
9. |
Кладовые для хранения сырья, материалов и готовой продукции |
- |
24-36 |
|
|
10. |
Санитарные узлы для учащихся с умывальниками в шлюзе |
- |
16 |
Разместить поэтажно |
|
11. |
Санитарный узел персонала с умывальником |
- |
3 |
|
|
12. |
Комната хранения предметов уборки |
- |
4 |
|
Лечебно-реабилитационные помещения (психолого-коррекционные и медицинские).
5.71. Рекомендуемые состав и площади лечебно-реабилитационных помещений приведены в таблице 5.5. Состав, количество кабинетов и их площади должны уточняться заданием на проектирование в каждом конкретном случае.
5.72. Группа лечебно-реабилитационных помещений предназначена для проведения мероприятий, направленных на:
- оздоровление и профилактику, лечение физических и психических заболеваний у воспитанников;
- нормализацию психического состояния воспитанников;
- преодоление отклонений в эмоционально-волевой сфере воспитанников;
- формирование законопослушного поведения несовершеннолетних;
- социально-средовую адаптацию воспитанников.
5.73. Группа медицинских помещений рассчитана на профилактику соматических заболеваний у воспитанников и общее укрепление организма.
5.74. Медицинские помещения следует проектировать с учетом положений МГСН 4.12-97 и Пособия по проектированию учреждений здравоохранения к СНиП 2.08.02-89*. Все кабинеты, входящие в данную группу, рассчитаны на индивидуальную работу с воспитанниками.
Учитывая специфику контингента, номенклатура медицинских помещений в ЗОШ должна быть достаточно расширенной и включать кабинеты специалистов различного профиля.
5.75. Психолого-коррекционные помещения предназначены для проведения мероприятий, направленных на:
- индивидуальную психологическую коррекцию;
- преодоление социальной дезадаптации.
5.76. В состав оборудования кабинета групповой психотерапии рекомендуется включать кресла, журнальный столик, компьютерный стол специалиста. Кабинет рассчитан на проведение занятий группы из 9 чел.
5.77. Кабинет релаксации рассчитан на проведение индивидуальной психолого-терапевтической коррекции. В состав оборудования его рекомендуется включать мягкую мебель (кресло или диван), светомузыкальную установку, аквариум с рыбками, зеленый уголок.
5.78. Кабинет групповых занятий ЛФК рассчитан на проведение занятий в группе из 9 чел.
5.79. Расстановка оборудования в кабинетах специалистов и помещениях для коррекционной работы с детьми представлена в Приложении на соответствующих рисунках.
Таблица 5.5.
Рекомендуемые состав и площади лечебно-реабилитационных помещений (психолого-коррекционных и медицинских).
|
Наименование помещений |
Площадь помещений, м2 |
Примечания |
|
|
1 |
2 |
3 |
4 |
|
А. Медицинские помещения. |
|||
|
1. |
Кабинет врача-педиатра |
10 |
|
|
2. |
Кабинет дефектолога |
10 |
|
|
3. |
Кабинет нарколога |
10 |
|
|
4. |
Кабинет гинеколога-венеролога |
12 |
В ЗОШ для девочек Приложение, Рис. П.10 |
|
5. |
Кабинет венеролога |
10 |
В ЗОШ для мальчиков |
|
6. |
Кабинет детского психиатра |
10 |
|
|
7. |
Кабинет психоневролога |
10 |
|
|
8. |
Кабинет психотерапевта |
10 |
|
|
9. |
Кабинет патопсихолога |
10 |
|
|
10. |
Кабинет стоматолога |
16 |
Приложение, Рис. П.10. |
|
11. |
Кабинет офтальмолога с темной комнатой |
18 + 8 |
Приложение, Рис. П.11. |
|
12. |
Кабинет медицинской сестры |
10 |
|
|
13. |
Процедурная |
12 |
|
|
14. |
Фитокабинет с кладовой |
10 + 3 |
|
|
15. |
Ингаляторий на 3 места со стерилизационной |
15 |
Приложение, Рис. П.12. |
|
16. |
Кабинет физиотерапии |
24 |
Приложение, Рис. П.13. |
|
17. |
Кабинет групповых занятий ЛФК с кладовой и раздевалкой |
60 + 6 + 8 |
Приложение, Рис. П.14. |
|
18. |
Кабинет массажа на 1 место |
8 |
|
|
Б. Психолого-коррекционные помещения |
|||
|
1. |
Кабинет психолога |
14 |
|
|
2. |
Кабинет групповой психотерапии |
44 |
Приложение, Рис. П.15. |
|
3. |
Кабинет релаксации |
12 |
|
|
4. |
Санузлы для воспитанников с умывальниками в шлюзе |
16 |
|
|
5. |
Санузел персонала с умывальником |
3 |
|
|
6. |
Комната сотрудников режимной службы |
10 |
|
|
7. |
Комната хранения предметов уборки |
4 |
|
Культурно-досуговые и физкультурно-оздоровительные помещения
5.80. Рекомендуемый состав и площади культурно-досуговых и физкультурно-оздоровительных помещений приведены в таблице 5.6.
5.81. Эта группа помещений обеспечивает проведение мероприятий, направленных на:
- культурное и эстетическое развитие;
- проведение массовых мероприятий;
- физическое развитие, предоставление позитивной возможности дать выход своей энергии.
5.82. Актовый зал рекомендуется проектировать на 100 % вместимости ЗОШ.
5.83. При актовом зале рекомендуется предусматривать фойе, которое используется как холл для развода воспитанников и музей детских поделок.
5.84. Одновременная загрузка спортзала - 18 чел. При зале проектируется 2 раздевальные, на 9 чел. каждая.
При спортивном зале предусматривается кладовая спортинвентаря, смежная с ним.
5.85. Зал гимнастических занятий, рассчитанный на одновременную загрузку 9 чел., при необходимости может использовать для проведения занятий борьбой и тяжелоатлетических занятий. Раздевальная проектируется на 9 чел. Раздевальная и кладовая спортинвентаря располагаются смежно с залом гимнастических занятий.
5.86. Проектирование бассейна следует осуществлять в соответствии с положениями справочного пособия «Проектирование бассейнов» к СНиП 2.08.02-89* и СП 2.1.2.568-96. Рекомендуемый размер ванны бассейна 25 × 11,5 м, глубина допускается 1,2 м - в мелкой части и 1,8 м - в глубокой. Одновременная загрузка бассейна - 9 чел.
5.87. Размер ножной ванны при бассейне необходимо предусмотреть 1,8 м (по направлению движения от душевой к чаше бассейна) во всю ширину прохода.
5.88. Раздевальная при бассейне проектируются на группу 9 чел. Площадь раздевальной следует рассчитывать исходя из нормы 2,5 м2 на 1 воспитанника. В ЗОШ для девочек в раздевальной следует предусмотреть установку для сушки волос.
5.89. В ЗОШ рекомендуется дополнительно предусматривать помещения для хранения лыж и велосипедов, площади которых определяются заданием на проектирование.
Таблица 5.6.
Рекомендуемые состав и площади досуговых и физкультурно-оздоровительных помещений
|
Наименование помещений |
Площадь помещений, м2 |
Примечания |
||
|
на 1 место |
всего |
|||
|
1 |
2 |
3 |
4 |
5 |
|
А. Досуговые помещения |
||||
|
1. |
Актовый зал |
1,0 |
- |
Используется также для занятий театральной студии |
|
2. |
Эстрада при зале |
- |
Не менее 36 |
Глубина эстрады - 3,5-4 м |
|
3. |
Кинопроекционная с перемоточной и радиоузлом |
- |
26 |
|
|
4. |
Фойе |
0,9 |
- |
На 1 место в зале. |
|
5. |
Комната сотрудников режимной службы |
- |
10 |
|
|
6. |
Санитарный узел для воспитанников с умывальником в шлюзе при фойе |
- |
16 |
|
|
7. |
Помещение для артистов |
- |
15 |
|
|
8. |
Филъмовидеотека |
- |
8 |
|
|
9. |
Помещение пожарного поста |
- |
10 |
|
|
10. |
Кладовая мебели и реквизита |
- |
20 |
|
|
11. |
Кладовая аппаратуры |
- |
10 |
|
|
Б. Физкультурно-оздоровительные помещения |
||||
|
1. |
Спортивный зал 12 × 24 м |
- |
288 |
|
|
2. |
Раздевальные для воспитанников с душевыми и санитарными узлами при спортзале |
- |
18 × 2 |
По 2 душевые, 1 унитазу и умывальнику на раздевальную |
|
3. |
Снарядная |
- |
16 |
Смежно со спортивным залом |
|
4. |
Зал гимнастических занятий |
- |
72 |
|
|
- раздевальная |
- |
12 |
|
|
|
5. |
Кладовая спортинвентаря |
- |
10 |
|
|
6. |
Тренажерный зал |
- |
72 |
|
|
- раздевальная |
- |
12 |
|
|
|
7. |
Комната инструкторов-методистов с санузлом в шлюзе |
|
10 + 3 |
С состав санузла входят: унитаз, умывальник, душ |
|
8. |
Комната сотрудников режимной службы |
- |
10 |
|
|
9. |
Санузел для воспитанников с умывальниками в шлюзе |
- |
16 |
|
|
10. |
Комната гигиены для девочек |
- |
4 |
Разместить при санитарном узле в ЗОШ для девочек |
|
11. |
Санитарный узел с умывальником для персонала |
- |
3 |
|
|
12. |
Комната хранения предметов уборки |
- |
4 |
|
|
13. |
Бассейн с ванной 25 × 11,5 м |
- |
- |
|
|
14. |
Инвентарная при бассейне |
- |
10 |
|
|
15. |
Раздевальная на 9 чел. |
- |
16 |
|
|
16. |
Душевая при раздевальной включая ножную ванну |
- |
6 |
2 душевые сетки |
|
17. |
Уборная при раздевальной с умывальником |
- |
3 |
|
|
18. |
Комната инструктора с санузлом |
|
10 + 3 |
В состав оборудования санузла входят: унитаз, умывальник, душ |
|
19. |
Комната медсестры |
- |
|
Должны располагаться смежно и иметь выход на обходную дорожку |
|
20. |
Лаборатория анализ воды |
- |
||
|
21. |
Узел управления |
- |
||
|
22. |
Помещение хранения химических реактивов |
- |
4 |
|
|
23. |
Реагентная |
- |
4 |
|
|
24. |
Помещение хранения уборочного инвентаря |
- |
4 |
|
Помещения медицинского изолятора.
5.90. Рекомендуемый состав и площади помещений медицинского изолятора приведены в таблице 5.7.
5.91. Вместимость изолятора следует предусматривать из расчета 10-15 % от числа воспитанников.
5.92. Помещения изолятора соединяется с остальными помещениями ЗОШ через тамбур-шлюз, в котором следует размещать умывальник и вешалку для смены халатов.
5.93. В состав помещений изолятора следует включать изоляционные палаты на 1 и 3 чел.
5.94. Между изоляционными палатами и коридором следует предусматривать глухие (не открывающиеся) окна для наблюдения за детьми.
5.95. Для организации питания детей, находящихся в изоляторе, в состав его помещений следует включать буфетную с моечной посуды. Оборудование буфетной рассчитано на подогрев готовой пищи.
5.96. Вход в санитарные узлы в изоляторе следует проектировать из коридора для возможного наблюдения за воспитанниками.
Учитывая возможность возникновения различных инфекционных заболеваний и трудности госпитализации воспитанников учреждения, в состав помещений изолятора следует включать 2 санузла и 2 туалетные. Рекомендуемое оборудование санитарного узла: унитаз, умывальник; туалетной: унитаз, умывальник, ванна. В ЗОШ для мальчиков в состав оборудования санитарного узла следует включать писсуар. В ЗОШ для девочек - бидэ.
Таблица 5.7.
Рекомендуемый состав и площади помещений медицинского изолятора.
|
Наименование помещений |
Площадь помещений, м2 |
Примечания |
|
|
1 |
2 |
3 |
4 |
|
1. |
Изоляционная палата на 1 место |
6 |
|
|
2. |
Изоляционная палата на 3 места |
15 |
|
|
3. |
Санитарный узел для воспитанников |
4 |
|
|
4. |
Туалетная для воспитанников |
5 |
|
|
5. |
Процедурная |
8 |
|
|
6. |
Кабинет врача, медицинской сестры |
16 |
|
|
7. |
Комната персонала с раздевальной и санузлом |
10 + 4 + 3 |
Состав оборудования санузла: душ, унитаз, умывальник |
|
8. |
Буфетная с моечной посуды |
12 |
|
|
9. |
Кладовая со шкафами для чистого и грязного белья |
6 |
|
|
10. |
Комната сотрудников режимной службы |
10 |
|
|
11. |
Комната хранения уборочного инвентаря |
4 |
|
Помещения питания
5.97. Питание для воспитанников ЗОШ организуется в одну смену в общей столовой.
5.98. Площадь обеденного зала принимается из расчета 1,8 м на 1 посадочное место; при зале предусматривается умывальная из расчета 3 м2 (1 умывальник) на каждые 18-20 мест.
5.99. Производственные помещения кухни следует рассчитывать на работу на сырье. Кроме питания детей, помещения кухни должны обеспечивать питание персонала.
В производственные помещения столовой должен предусматриваться отдельный вход.
5.100. Для питания персонала предусматривается обеденный зал самообслуживания (или буфет) из расчета 1,8 м2 на 1 посадочное место. Его следует располагать в составе помещений кухни (если по архитектурно-планировочному решению группа помещений питания непосредственно примыкает к административной группе помещений) в противном случае - в группе административных помещений. Количество мест определяется заданием на проектирование, исходя из количества питающихся в учреждении, продолжительности обеденного времени и количества смен. При зале предусматривается подсобное помещение, предназначенное для раздачи пищи, хранения и мойки посуды площадью 8 м2.
5.101. Для обслуживания изолятора при помещениях кухни следует предусматривать раздаточную с удобным доступом к внутренним коммуникационным связям (коридорам, лестницам).
5.102. Учитывая специфику контингента воспитанников ЗОШ (большое количество детей с хроническими заболеваниями в запущенной форме) в состав производственных помещений кухни следует включать кабинет диетсестры.
5.103. Рекомендуемые состав и площади производственных помещений кухни приведены в табл. 5.8.
Таблица 5.8.
Рекомендуемый состав и площади производственных помещений кухни
|
Наименование помещений |
Площадь помещений, м2 |
Примечания |
|
|
1 |
2 |
3 |
4 |
|
1. |
Горячий цех |
|
|
|
2. |
Холодный цех |
|
|
|
3. |
Рыбный цех |
|
|
|
4. |
Мясной цех |
|
|
|
5. |
Хлеборезка, хранение хлеба |
8 |
|
|
6. |
Цех мучных изделий |
14 |
|
|
7. |
Раздаточная |
18 |
|
|
8. |
Сервизная |
8 |
|
|
9. |
Моечная кухонной посуды |
10 |
|
|
10. |
Моечная столовой посуды |
18 |
|
|
11. |
Моечная котлов |
10 |
|
|
12. |
Охлаждаемая камера для хранения: |
|
|
|
- молочных продуктов |
8 |
|
|
|
- рыбы, мяса |
8 |
|
|
|
- яиц |
6 |
|
|
|
13. |
Кладовая сухих продуктов |
6 |
|
|
14. |
Кладовая овощей |
12 |
|
|
15. |
Кладовая суточного запаса |
8 |
|
|
16. |
Помещение первичной обработки овощей |
8 |
|
|
17. |
Загрузочная, кладовая тары |
14 |
|
|
18. |
Камера утилизации отходов с техническим сливом |
4 |
|
|
19. |
Комната заведующего производством |
8 |
|
|
20. |
Кабинет диетсестры |
8 |
|
|
21. |
Бельевая, гардеробная персонала, душевая, уборная |
18 |
|
|
22. |
Комната сотрудников режимной службы |
10 |
Разместить при обеденном зале для воспитанников |
|
23. |
Комната хранения предметов уборки |
4 |
|
Административно-бытовые помещения
5.104. Рекомендуемый состав и площади административно-бытовых помещений приведены в таблице 5.9.
5.105. В состав административно-бытовых помещений рекомендуется включать кабинет сотрудника по организации перевозки несовершеннолетних воспитанников. Основная задача данной службы - организация доставки и сопровождения воспитанника, например, к месту его дальнейшего проживания. Кабинет специалистов рассчитан на одновременное пребывание 2 сотрудников.
5.106. Комната дежурной части должна быть оборудована центральным пультом, телефонами оперативной связи. Входная дверь в дежурную часть должна автоматически закрываться.
5.107. Дисциплинарное помещение, находящееся при комнате дежурной части, рассчитано на воспитательный эффект от пребывания воспитанника без контактов со сверстниками. Данное помещение следует располагать в непосредственной близости от центрального поста режимной службы. В помещении следует предусмотреть решетки на окнах. Дверь в данное помещение должна закрываться на секретную защелку и на висячий замок. В двери должен быть предусмотрен смотровой проем, оборудованный решеткой. В состав оборудования комнаты следует включать: кровать, стол, стул, унитаз и умывальник, не огороженные экранами.
5.108. Кладовую чистого белья с починкой и кладовую грязного белья рекомендуется располагать рядом с прачечной.
5.109. Прачечная, кладовая сезонной одежды и инвентарные могут располагаться в подвальном помещении.
5.110. Помещение кладовой сезонной одежды и обуви следует оборудовать принудительной вентиляцией.
5.111. Комнату для сбора и досмотра передач для воспитанников рекомендуется располагать вблизи комнаты персонала режимной службы. Прием передач осуществляется дежурным на КПП.
5.112. В состав помещений КПП входят: помещение для охранника с санитарным узлом, проход с автоматически закрывающимися металлическими дверями и турникетом для сотрудников и посетителей.
Таблица 5.9.
Рекомендуемые состав и площади помещений административно-бытового обслуживания.
|
Наименование помещений. |
Площадь помещений, м2 |
Примечания. |
|
|
1 |
2 |
3 |
4 |
|
1. |
Кабинет директора |
36 |
|
|
2. |
Приемная |
18 |
Смежно с кабинетом директора |
|
3. |
Канцелярия |
12 |
|
|
4. |
Кабинет заместителя директора по хозяйственной части |
16 |
|
|
5. |
Помещение дежурного персонала технического обслуживания |
14 |
|
|
6. |
Бухгалтерия с кассой |
18 + 4 |
|
|
7. |
Комната сестры-хозяйки |
12 |
|
|
8. |
Кабинет сотрудников службы организации перевозки воспитанников |
12 |
|
|
9. |
Комната психологической разгрузки персонала |
18 |
|
|
10. |
Комната отдыха персонала |
36 |
|
|
11. |
Компьютерный центр с архивом |
24 + 10 |
|
|
12. |
Помещение пожарного поста |
12 |
|
|
13. |
Кладовая чистого белья |
20 |
|
|
14. |
Кладовая грязного белья |
18 |
|
|
15. |
Прачечная |
22 |
|
|
16. |
Кладовая сезонной одежды и обуви |
22 |
|
|
17. |
Инвентарные |
40 |
|
|
18. |
Санитарные узлы для мужчин и женщин с умывальниками в шлюзе |
3 × 2 |
|
|
19. |
Кабины личной гигиены для женщин |
2 |
Разместить при санитарном узле |
|
20. |
Комната хранения уборочного инвентаря |
4 |
|
|
21. |
Центральный пост режимной службы с кладовой для хранения видеозаписей слежения |
16 + 6 |
|
|
22. |
Комната для сбора и досмотра корреспонденции и передач для воспитанников |
8 |
|
|
23. |
Комната персонала режимной службы с гардеробной и санузлом |
14 |
В состав оборудования санузла входят: душ, унитаз, умывальник |
|
24. |
Дисциплинарное помещение |
6 |
|
|
25. |
Комната начальника смены |
10 |
|
|
26. |
Помещение КПП |
12 |
Приложение, Рис. 16. |
ЭКСПЛИКАЦИЯ ОБОРУДОВАНИЯ
1. Стол ученический
2. Стул
3. Стол воспитателя
Рис. П.1. Комната приготовления уроков.

ЭКСПЛИКАЦИЯ ОБОРУДОВАНИЯ
1. Игровой стол
2. Стул
3. Комбинированный шкаф
4. Мягкая мебель
5. Журнальный стол
6. Телевизор
Рис. П.2. Планировка и примеры расстановки оборудования комнаты тихого отдыха: а) для тихого отдыха, б) для проведения психолого-коррекционных занятий
ЭКСПЛИКАЦИЯ ОБОРУДОВАНИЯ
1. Стол ученический
2. Стул
3. Стол учителя
4. Классная доска
5. Умывальник
6. Вешалка для полотенца
Рис. П.3. Класс
ЭКСПЛИКАЦИЯ ОБОРУДОВАНИЯ
I. КАБИНЕТ
1. Стол ученический - лабораторный
2. Стул ученический
3. Стол демонстрационный
4. Стул учительский
5. Мойка (умывальник)
6. Бак для мусора
7. Классная доска
8. Комбинированный шкаф
II, III. ЛАБОРАНТСКИЕ
9. Шкаф-стеллаж
10. Вытяжной шкаф
Рис. П.4. Кабинет для занятий физикой и химией (I) с лаборантскими (II) и (III)
ЭКСПЛИКАЦИЯ ОБОРУДОВАНИЯ
1. Стол
2. Стул
3. Стол специалиста
4. Компьютерный стол специалиста
5. Классная доска
6. Компьютер
7. Вешалка для полотенца
8. Умывальник
9. Ученический компьютерный стол
10. Комбинированный шкаф
Рис. П.5. Компьютерный класс
ЭКСПЛИКАЦИЯ ОБОРУДОВАНИЯ
1. Стол - шкаф кухонный
2. Холодильник
3. Мойка
4. Плита
5. Сервировочная стойка с разделочным столом
6. Комбинированная стенка
7. Табурет
8. Обеденный стол
9. Стул
10. Умывальник
11. Вешалка для полотенца
12. Стол резервный
Рис. П.6. Мастерская кулинарного творчества
ЭКСПЛИКАЦИЯ ОБОРУДОВАНИЯ
I. МАСТЕРСКАЯ
1. Стол ученический для индивидуальной работы
2. Стул
3. Рабочий стол
4. Швейная машина
5. Табурет регулируемый
6. Мольберт
7. Стол мастера
8. Стул мастера
9. Умывальник
10. Вешалка для полотенца
11. Шкаф для экспозиций
II. КЛАДОВАЯ
12. Комбинированный шкаф
Рис. П.7. Театрально-художественная мастерская с кладовой
ЭКСПЛИКАЦИЯ ОБОРУДОВАНИЯ
I. КОМНАТА
1. Стул
2. Пюпитр
3. Помост для преподавателя
4. Пианино
5. Табурет винтовой
6. Стол преподавателя
II. КЛАДОВАЯ
7. Комбинированный шкаф
Рис. П.8. Комната музыкальных занятий с кладовой инструментов
ЭКСПЛИКАЦИЯ ОБОРУДОВАНИЯ
I. ИЗОСТУДИЯ
1. Мольберт
2. Помост для моделей
3. Стенд для рисунков и картин
4. Стол преподавателя
5. Стул преподавателя
6. Умывальник
7. Вешалка для полотенца
II. КЛАДОВАЯ
8. Комбинированный шкаф
Рис. П.9. Изостудия с кладовой

ЭКСПЛИКАЦИЯ ОБОРУДОВАНИЯ
I. КАБИНЕТ ВЕНЕРОЛОГА-ГИНЕКОЛОГА
1. Кресло гинекологическое
2. Винтовой табурет
3. Передвижной светильник
4. Стол врача
5. Стул
6. Столик инструментальный
7. Бачок для мусора
8. Умывальник
9. Шкаф медицинский
10. Ширма
II. КАБИНЕТ СТОМАТОЛОГА
1. Кресло стоматологическое
2. Столик инструментальный
3. Установка стоматологическая, универсальная
4. Винтовой табурет
5. Плевательница
6. Светильник
7. Шкаф медицинский
8. Умывальник
9. Бачок для мусора
10. Стол врача
11. Стул
Рис. П.10. Кабинеты венеролога-гинеколога (I) и стоматолога (II)
ЭКСПЛИКАЦИЯ ОБОРУДОВАНИЯ
1. Стол врача
2. Стул
3. Столик с набором линз для проверки остроты зрения
4. Офтальмологические установки
5. Табурет винтовой
6. Кушетка смотровая
7. Таблица
8. Шкаф медицинский
9. Умывальник
10. Бачок для мусора
11. Столик инструментальный
12. Светозащитная штора
Рис. П.11. Кабинет офтальмолога с темной комнатой
ЭКСПЛИКАЦИЯ ОБОРУДОВАНИЯ
1. Стационарная ингаляционная установка
2. Винтовой табурет
3. Стол процедурной медсестры
4. Стул
5. Умывальник
6. Бачок для мусора
Рис. П.12. Ингаляторий на 3 места
ЭКСПЛИКАЦИЯ ОБОРУДОВАНИЯ
1. Кушетка
2. Столик с аппаратурой
3. Столик с аппаратурой для приема процедур сидя
4. Стул
5. Стол врача
6. Шкаф медицинский
7. Умывальник
Рис. П.13. Кабинет физиотерапии
ЭКСПЛИКАЦИЯ ОБОРУДОВАНИЯ
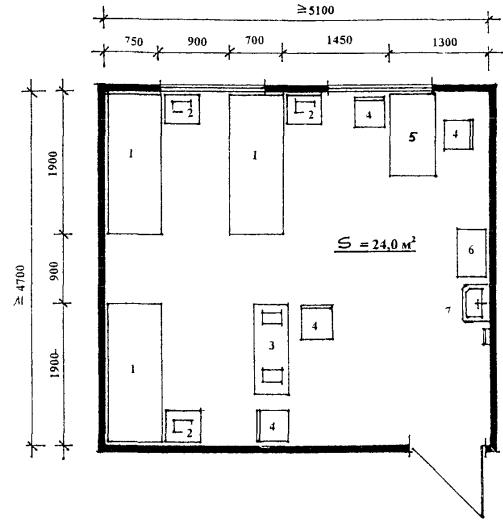
I. ЗАЛ
1. Стол методиста
2. Стул методиста
3. Шведская стенка
4. Скамья
5. Зеркало
6. Маты для занятий
II. КЛАДОВАЯ
7. Комбинированный шкаф
8. Манеж для складирования мячей
III. РАЗДЕВАЛКА
9. Скамья для переодевания
10. Шкаф методиста
11. Крючки для одежды
12. Умывальник
13. Вешалка для полотенца
Рис. П.14. Кабинет групповых занятий ЛФК с кладовой и раздевалкой
ЭКСПЛИКАЦИЯ ОБОРУДОВАНИЯ
1. Стол
2. Стул
3. Стол специалиста
4. Кресло
5. Шкаф - стеллаж
6. Умывальник
7. Вешалка для полотенца
Рис. П.15. Кабинет групповой психотерапии на 9 человек
ЭКСПЛИКАЦИЯ ОБОРУДОВАНИЯ
I. ПОМЕЩЕНИЕ ПОСТА РЕЖИМНОЙ СЛУЖБЫ
а) Комната дежурного
1. Стол с пультом управления
2. Стул
3. Стеллаж для складирования передач
б) Санузел
II. ПРОХОД ДЛЯ СОТРУДНИКОВ И ПОСЕТИТЕЛЕЙ НА ТЕРРИТОРИЮ ЗОШ
4. Турникет
III. ВОРОТА ДЛЯ ПРОЕЗДА АВТОТРАНСПОРТА НА ТЕРРИТОРИЮ ЗОШ
Рис. П.16. Помещение контрольно-пропускного пункта