
ГОСУДАРСТВЕННЫЙ СТАНДАРТ СОЮЗА ССР
УСТАНОВКИ
СУШИЛЬНЫЕ
ДЛЯ ЛАКОКРАСОЧНЫХ ПОКРЫТИЙ
ТИПЫ И ОСНОВНЫЕ РАЗМЕРЫ
ГОСТ 23093-78
ГОСУДАРСТВЕННЫЙ КОМИТЕТ СССР ПО СТАНДАРТАМ
Москва
ГОСУДАРСТВЕННЫЙ СТАНДАРТ СОЮЗА ССР
|
УСТАНОВКИ
СУШИЛЬНЫЕ Типы и основные размеры Drying
installations for varnish-and-paint |
ГОСТ
|
Срок
действия с 01.07.79
до 01.07.94
Несоблюдение стандарта преследуется по закону
Настоящий стандарт распространяется на конвективные, терморадиационные и терморадиационно-конвективные сушильные установки с подвесным и напольным конвейером, предназначенные для сушки лакокрасочных покрытий и покрытий на основе порошковых материалов.
(Измененная редакция, Изм. № 2).
1.1. Типы сушильных установок в зависимости от способа передачи энергии и ее вида указаны в табл. 1.
Таблица 1
|
Обозначение |
Вид потребляемой энергии |
Обозначение |
|
|
Конвективный |
К |
Г |
|
|
Электроэнергия |
Э |
||
|
Пар |
П |
||
|
Горячая вода |
В |
||
|
Терморадиационный |
Т |
Газ |
Г |
|
Электроэнергия |
Э |
||
|
Терморадиационно-конвективный |
Т/К |
Газ Электроэнергия |
Г Э |
1.2. Сушильные установки могут иметь любое конструктивное исполнение, указанное в табл. 2.
Таблица 2
|
Обозначение |
|
|
Проходные с подвесным непрерывно движущимся конвейером с одним или более числом ходов |
ПП-1, ПП-2 и т.п. |
|
Проходные с подвесным циклически движущимся конвейером с одним или более числом ходов |
ППЦ-1, ППЦ-2 и т.п. |
|
Проходные с напольным непрерывно движущимся конвейером с одним или более числом ходов |
ПН-1, ПН-2 и т.п. |
|
Проходные с напольным циклически движущимся конвейером с одним или более числом ходов |
ПНЦ-1, ПНЦ-2 и т.п. |
|
Тупиковые с подвесным конвейером с одной или большим числом секций |
СП-1, СП-2 и т.п. |
|
Тупиковые с напольным конвейером с одной или большим числом секций |
СН-1, СН-2 и т.п. |
|
Проходные с подвесным непрерывно движущимся конвейером с тепловым подпором воздуха с одним или более числом ходов |
ППВ-1, ППВ-2 и т.п. |
|
Проходные с подвесным толкающим непрерывно движущимся конвейером с тепловым подпором воздуха с одним или более числом ходов |
ПТВ-1, ПТВ-2 и т.п. |
|
Проходные с подвесным толкающим непрерывно движущимся конвейером с одним или более числом ходов |
ПТ-1, ПТ-2 и т.п. |
|
Проходные с подвесным толкающим циклически движущимся конвейером с одним или более числом ходов |
ПТЦ-1, ПТЦ-2 и т.п. |
Примечания:
1. Число ходов указывает, сколько раз изделие перемещается в проходной сушильной установке в прямом и обратном направлении.
2. Циклическими называют установки, у которых движение конвейера осуществляется по определенной программе периодически (циклами).
3. Число секций - количество параллельно движущихся зон сушки в тупиковой установке.
4. Тепловой подпор воздуха означает расположение проема зоны сушки выше уровня входных и выходных проемов.
(Измененная редакция, Изм. № 2).
1.2а. Обозначение размерных рядов изделий, обрабатываемых в сушильных установках проходных с подвесным толкающим непрерывно движущимся конвейером с одним ходом, указаны в табл. 2а.
Таблица 2а
|
Размеры обрабатываемого изделия B´h, м |
Шифр |
|
0,4´1,0 |
01 |
|
0,4´1,6 |
02 |
|
0,4´2,0 |
03 |
|
0,63´1,0 |
04 |
|
0,63´1,6 |
05 |
|
0,63´2,0 |
06 |
|
1,0´1,6 |
07 |
|
1,0´2,0 |
08 |
|
1,0´2,5 |
09 |
|
1,6´1,6 |
10 |
|
1,6´2,0 |
11 |
|
1,6´2,5 |
12 |
|
2,0´1,6 |
13 |
|
2,0´2,0 |
14 |
|
2,0´2,5 |
15 |
(Введен дополнительно, Изм. № 2).
1.3. Устанавливают следующую структуру обозначения сушильных установок:

Примечание. Размеры обрабатываемого изделия указывают следующим образом: для установок проходных с подвесным толкающим непрерывно движущимся конвейером с одним ходом приводится шифр;
для установок проходных с напольным непрерывно движущимся конвейером с одним ходом - ширина и высота изделия в метрах, для остальных установок - длина, длина, ширина и высота в метрах.
Пример условного обозначения терморадиационно-конвективной (Т/К) сушильной установки с электрообогревом (Э) проходной (П) с подвесным толкающим (Т) непрерывно движущимся конвейером с тепловым подпором воздуха (В), одноходовой (1), в которой обрабатываются изделия шириной 0,63 м и высотой 1,6 м (05);
Сушильная установка Т/К-ЭПТВ-1-05 ГОСТ 23093-78
Пример условного обозначения терморадиационной (Т) сушильной установки с электрообогревом (Э) проходной (П) с напольным (Н) непрерывно движущимся конвейером, однопроходной (1), в которой обрабатываются изделия шириной 0,4 м и высотой 1,0 м;
Сушильная установка Т-ЭПН-1-0,4×1,0 ГОСТ 23093-78
Пример условного обозначения конвективной (К) сушильной установки с газовым обогревом (Г) проходной (П) с напольным циклически движущимся конвейером (НЦ), двухходовой (2), в которой обрабатываются изделия длиной 1,5 м, шириной 0,63 м и высотой 1,0 м;
Сушильная установка К-ГПНЦ-2-1,5×0,63×1,0 ГОСТ 23093-78
(Измененная редакция, Изм. № 2).
1.4. Выбор типов сушильных установок приведен в рекомендуемом приложении.
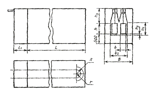
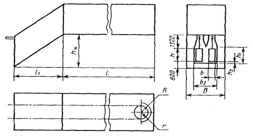
2.1. Основные размеры сушильных установок конвективных проходных с подвесным конвейером одноходовых (черт. 1) должны соответствовать табл. 3.
Черт. 1
Таблица 3
мм
|
Высота изделия h |
Ширина проема b1 |
Высота проема h1 |
Внутренняя ширина установки В, не более |
Расстояние от низа изделия до проема h2 |
|
|
630 |
1000 |
900 |
1120 |
2500 |
100 |
|
1600 |
1700 |
||||
|
2000 |
2120 |
||||
|
1000 |
1600 |
1320 |
1700 |
3000 |
|
|
2000 |
2120 |
||||
|
2500 |
2650 |
||||
|
1600 |
1600 |
2000 |
1900 |
3550 |
200 |
|
2000 |
2360 |
||||
|
2500 |
2800 |
||||
|
2000 |
1600 |
2360 |
1900 |
4000 |
|
|
2000 |
2360 |
||||
|
2500 |
2800 |
(Измененная редакция, Изм. № 2).
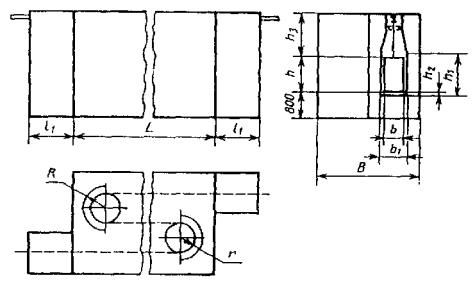
2.2. Размеры конвективных проходных с подвесным конвейером двухходовых (черт. 2) и трехходовых (черт. 3) сушильных установок должны соответствовать табл. 4.
Черт. 2

Черт. 3
Таблица 4
мм
|
Высота изделия h |
Ширина проема b1 |
Высота проема h1 |
Расстояние от низа изделия до проема h2 |
|
|
630 |
1000 |
900 |
1120 |
100 |
|
1600 |
1700 |
|||
|
2000 |
2120 |
|||
|
1000 |
1600 |
1320 |
1700 |
|
|
2000 |
2120 |
|||
|
2500 |
2650 |
|||
|
1600 |
1600 |
2000 |
1900 |
200 |
|
2000 |
2360 |
|||
|
2500 |
2800 |
|||
|
2000 |
1600 |
2360 |
1900 |
|
|
2000 |
2360 |
|||
|
2500 |
2800 |
Примечания:
1. Внутренняя ширина установки В определяется числом ходов конвейера в установке и радиусом разворота изделия R с учетом необходимых зазоров; минимальное расстояние от изделия до стенки - 700 мм.
2. Двухходовые установки могут иметь два самостоятельных проема, каждый шириной b1, или один проем шириной b2.
При развороте изделий в установке на одной звездочке:
b2 = b1 + 1000´2r, мм.
Радиус звездочки r выбирают по ГОСТ 593-75.
2.3. Размеры сушильных установок конвективных проходных с подвесным конвейером циклических (черт. 4) должны соответствовать табл. 5.
Черт. 4
Таблица 5
мм
|
Высота изделия h |
Ширина проема b1 |
Высота проема h1 |
Внутренняя ширина установки В, не более |
|
|
630 |
1000 |
900 |
2500 |
2500 |
|
1600 |
3150 |
|||
|
2000 |
3550 |
|||
|
1000 |
1600 |
1320 |
3150 |
3000 |
|
2000 |
3550 |
|||
|
2500 |
4000 |
|||
|
1600 |
1600 |
2000 |
3150 |
3550 |
|
2000 |
3550 |
|||
|
2500 |
4000 |
|||
|
2000 |
1600 |
2360 |
3150 |
4000 |
|
2000 |
3550 |
|||
|
2500 |
4000 |
2.4. Размеры сушильных установок конвективных проходных с напольным конвейером циклических (черт. 5) должны соответствовать табл. 6.
Черт. 5
Таблица 6
мм
|
Высота изделия h |
Ширина проема b1 |
Высота проема h1 |
Внутренняя ширина уста попки В, не более |
Внутренняя высота установки H, не более |
||
|
2000 |
2000 |
2500 |
2240 |
4000 |
3000 |
|
|
3550 |
3750 |
4500 |
||||
|
2500 |
2000 |
3000 |
2240 |
4500 |
3000 |
|
|
3550 |
3750 |
4500 |
||||
|
3000 |
3550 |
5000 |
||||
|
4000 |
4250 |
5000 |
||||
|
3550 |
4500 |
4000 |
4750 |
5600 |
5600 |
|
|
5000 |
5300 |
6000 |
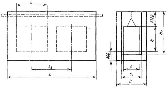
2.5. Размеры конвективных тупиковых односекционных сушильных установок (черт. 6) должны соответствовать табл. 7.

Черт. 6
Таблица 7
мм
|
Ширина изделия b |
Высота изделия h |
Ширина проема b1 |
Высота проема h1 |
Внутренняя длина установки L, не более |
Внутренняя ширина установки В, не более |
Внутренняя высота установки Н, не более |
|
|
|
2000 |
1000 |
2000 |
1400 |
2240 |
3750 |
3000 |
3000 |
|
|
2500 |
1600 |
2000 |
4250 |
3500 |
|
|||
|
3000 |
2000 |
3550 |
2500 |
3750 |
4750 |
4000 |
4500 |
|
|
3550 |
2000 |
2240 |
5300 |
3000 |
|
|||
|
3550 |
3750 |
4500 |
|
|||||
|
4000 |
2000 |
2240 |
6000 |
3000 |
|
|||
|
3550 |
3750 |
4500 |
|
|||||
|
5000 |
2500 |
2000 |
3000 |
2240 |
7100 |
4500 |
3000 |
|
|
3000 |
3550 |
3550 |
3750 |
5000 |
4500 |
|
||
|
6000 |
2500 |
3000 |
8000 |
4500 |
|
|||
|
3000 |
4000 |
3550 |
4250 |
5000 |
5000 |
|
||
|
7500 |
2500 |
3550 |
3000 |
3750 |
9500 |
4500 |
4500 |
|
|
3000 |
4000 |
3550 |
4250 |
5000 |
5000 |
|||
|
11200 |
||||||||
|
9000 |
3550 |
4500 |
4000 |
4750 |
5600 |
5600 |
|
|
|
10000 |
3000 |
4000 |
3550 |
4250 |
12500 |
5000 |
5000 |
|
|
3550 |
4500 |
4000 |
4750 |
5600 |
5600 |
|||
|
12000 |
14000 |
|
||||||
|
15000 |
17000 |
|
||||||
|
18000 |
20000 |
|
||||||
|
20000 |
5000 |
5300 |
22400 |
6000 |
|
|||
|
25000 |
28000 |
|
2.6. Размеры сушильных установок терморадиационных и терморадиационно-конвективных, проходных с подвесным непрерывно движущимся конвейером одноходовых (черт. 7) должны соответствовать табл. 8.
Черт. 7
Таблица 8
|
Высота изделия h |
Ширина проема b1 |
Высота проема h1 |
Внутренняя ширина установки В, не более |
|
|
400 |
1000 |
710 |
1120 |
1900 |
|
1600 |
1700 |
|||
|
2000 |
2120 |
|||
|
630 |
1000 |
900 |
1120 |
2000 |
|
1600 |
1700 |
|||
|
2000 |
2120 |
|||
|
1000 |
1600 |
1320 |
1700 |
2500 |
|
2000 |
2120 |
|||
|
2500 |
2650 |
2.3-2.6. (Измененная редакция, Изм. № 2).
2.7. Основные размеры сушильных конвективных установок проходных с подвесным толкающим непрерывно движущимся конвейером одноходовых (черт. 8) должны соответствовать табл. 9.

Черт. 8
Таблица 9
мм
|
Высота изделия h |
Ширина проема b1 |
Высота проема h1 |
Внутренняя ширина установки В, не более |
Расстояние от низа изделия до проема h2 |
Расстояние от верха изделия до потолка установки h3 |
|
|
630 |
1000 |
900 |
1120 |
2500 |
100 |
1600; 2000* |
|
1600 |
1700 |
|||||
|
2000 |
2120 |
|||||
|
1000 |
1600 |
1320 |
1700 |
3000 |
||
|
2000 |
2120 |
|||||
|
2500 |
2650 |
|||||
|
1600 |
1600 |
2000 |
1900 |
3550 |
200 |
2000 |
|
2000 |
2360 |
|||||
|
2500 |
2800 |
|||||
|
2000 |
1600 |
2360 |
1900 |
4000 |
||
|
2000 |
2360 |
|||||
|
2500 |
2800 |
* Размер допускается принимать только при шаге цепи конвейера 160 мм для подвесок сложной конфигурации.
2.8. Основные размеры конвективных сушильных установок проходных с подвесным непрерывно движущимся конвейером с тепловым подпором одноходовых (черт. 9) должны соответствовать табл. 10.
Таблица 10
мм
|
Высота изделия h |
Ширина проема b1 |
Высота проема h1 |
Внутренняя ширина установки В, не более |
Расстояние от низа изделия до проема h2 |
Высота подъема h1, не менее |
|
|
630 |
1000 |
900 |
1120 |
2500 |
100 |
2500 |
|
1600 |
1700 |
3150 |
||||
|
2000 |
2120 |
3550 |
||||
|
1000 |
1600 |
1320 |
1700 |
3000 |
3150 |
|
|
2000 |
2120 |
3550 |
||||
|
2500 |
2650 |
4000 |
||||
|
1600 |
1600 |
2000 |
1900 |
3550 |
200 |
3150 |
|
2000 |
2360 |
3550 |
||||
|
2500 |
2800 |
4250 |
||||
|
2000 |
1600 |
2360 |
1900 |
4000 |
3150 |
|
|
2000 |
2360 |
3550 |
||||
|
2500 |
2800 |
4250 |
Примечание. h3 - расстояние от верха изделия до потолка установки величина постоянная (1320 мм) и указана на черт. 9.
Черт. 9
2.9. Основные размеры конвективных сушильных установок проходных с подвесным толкающим непрерывно движущимся конвейером с тепловым подпором воздуха одноходовых (черт. 10) должны соответствовать табл. 11.
Таблица 11
мм
|
Высота изделия h |
Ширина проема b1 |
Высота проема h1 |
Внутренняя ширина установки В, не более |
Расстояние от низа изделия до проема h2 |
Расстояние от верха изделия до потолка установки h3 |
Высота подъема h4, не менее |
|
|
630 |
1000 |
900 |
1120 |
2500 |
100 |
1600; 2000* |
2800; 3150* |
|
1600 |
1700 |
3350; 3750* |
|||||
|
2000 |
2120 |
3750; 4250* |
|||||
|
1000 |
1600 |
1320 |
1700 |
3000 |
3350; 3750* |
||
|
2000 |
2120 |
3750; 4250* |
|||||
|
2500 |
2650 |
4250; 4750* |
|||||
|
1600 |
1600 |
2000 |
1900 |
3550 |
200 |
3350; 4000* |
|
|
2000 |
2360 |
4000; 4250* |
|||||
|
2500 |
2800 |
4500; 4750* |
|||||
|
2000 |
1600 |
2360 |
1900 |
4000 |
2000 |
4000 |
|
|
2000 |
2360 |
4250 |
|||||
|
2500 |
2800 |
4750 |
* Размеры допускается принимать только при шаге цепи конвейера 160 мм для подвесок сложной конфигурации.
2.10. Размеры конвективных сушильных установок проходных с подвесным толкающим непрерывно движущимся конвейером двухходовых (черт. 11) и трехходовых (черт. 12) должны соответствовать табл. 12.

Черт. 11
Черт. 12
Таблица 12
мм
|
Высота изделия h |
Ширина проема b1 |
Высота проема h1 |
Расстояние от низа изделия до проема h2 |
Расстояние от верха изделия до потолка установки h3 |
|
|
630 |
1000 |
900 |
1120 |
100 |
1600; 2000* |
|
1600 |
1700 |
||||
|
2000 |
2120 |
||||
|
1000 |
1600 |
1320 |
1700 |
||
|
2000 |
2120 |
||||
|
2500 |
2650 |
||||
|
1600 |
1600 |
2000 |
1900 |
200 |
|
|
2000 |
2360 |
||||
|
2500 |
2800 |
||||
|
2000 |
1600 |
2360 |
1900 |
2000 |
|
|
2000 |
2360 |
||||
|
2500 |
2800 |
* Размеры допускается принимать только при шаге цепи конвейера 160 мм для подвесок сложной конфигурации.
2.11. Размеры конвективных сушильных установок проходных с подвесным непрерывно движущимся конвейером с тепловым подпором воздуха двухходовых (черт. 13) и трехходовых (черт. 14) должны соответствовать табл. 13.
Черт. 13
Черт. 14
Таблица 13
мм
|
Высота изделия h |
Ширина проема b1 |
Высота проема h1 |
Расстояние от низа изделия до проема h2 |
Высота подъема, h4, не менее |
|
|
630 |
1000 |
900 |
1120 |
100 |
2500 |
|
1600 |
1700 |
3150 |
|||
|
2000 |
2120 |
3550 |
|||
|
1000 |
1600 |
1320 |
1700 |
100 |
3150 |
|
2000 |
2120 |
3550 |
|||
|
2500 |
2650 |
4000 |
|||
|
1600 |
1600 |
2000 |
1900 |
200 |
3150 |
|
2000 |
2360 |
3550 |
|||
|
2500 |
2800 |
4250 |
|||
|
2000 |
1600 |
2300 |
1900 |
3150 |
|
|
2000 |
2360 |
3550 |
|||
|
2500 |
2800 |
4250 |
Примечание. h3 - расстояние от верха изделия до потолка установки величина постоянная (1320 мм) и указана на черт. 13 и 14.
2.12. Размеры конвективных сушильных установок проходных с подвесным толкающим непрерывно движущимся конвейером с тепловым подпором воздуха двухходовых (черт. 15) и трехходовых (черт. 16) должны соответствовать табл. 14.

Черт. 15
Черт. 16
Таблица 14
мм
|
Высота изделия h |
Ширина проема b1 |
Высота проема h1 |
Расстояние от низа изделия до проема h2 |
Расстояние от верха изделия до потолка установки h3 |
Высота подъема, h4, не менее |
|
|
630 |
1000 |
900 |
1120 |
100 |
1600; 2000 |
2800; 3150* |
|
1600 |
1700 |
3350; 3750* |
||||
|
2000 |
2120 |
3750; 4250* |
||||
|
1000 |
1600 |
1320 |
1700 |
3350; 3750* |
||
|
2000 |
2120 |
3750; 4250* |
||||
|
2500 |
2650 |
4250; 4750* |
||||
|
1600 |
1600 |
2000 |
1900 |
200 |
3550; 4000* |
|
|
2000 |
2360 |
4050; 4250* |
||||
|
2500 |
2800 |
4500; 4750* |
||||
|
2000 |
1600 |
2360 |
1900 |
2000 |
4000 |
|
|
2000 |
2360 |
4250 |
||||
|
2500 |
2800 |
4750 |
* Размеры допускается принимать только при шаге цепи конвейера 100 мм для подвесок сложной конфигурации.
2.13. Размеры конвективных сушильных установок проходных с подвесным толкающим конвейером циклических одноходовых (черт. 17) должны соответствовать табл. 15.

Черт. 17
Таблица 15
мм
|
Высота изделия h |
Ширина проема b1 |
Высота проема h1 |
Внутренняя ширина установки В, не более |
Расстояние от верха изделия до потолка установки h3 |
|
|
630 |
1000 |
900 |
2800; 3155* |
2500 |
1600; 2000* |
|
1600 |
3350; 3750* |
||||
|
2000 |
3750; 4250* |
||||
|
1000 |
1600 |
1320 |
3350; 3750* |
3000 |
|
|
2000 |
3750; 4250* |
||||
|
2500 |
4250; 4750* |
||||
|
1600 |
1600 |
2000 |
3350; 3750* |
3550 |
2000 |
|
2000 |
3750; 4250* |
||||
|
2500 |
4250; 4750* |
||||
|
2000 |
1600 |
2360 |
3750 |
4000 |
|
|
2000 |
4250 |
||||
|
2500 |
4750 |
* Размеры допускается принимать только при шаге цепи конвейера 100 мм для подвесок сложной конфигурации.
Примечание. h2 = h1 - (h + h3) зависит от размера двери.
2.14. Размеры терморадиационных и терморадиационно-конвективных сушильных установок проходных с подвесным непрерывно движущимся толкающим конвейером одноходовых (черт. 18) должны соответствовать табл. 16.
Черт. 18
Таблица 16
мм
|
высота изделия h |
Ширина проема b1 |
Высота проема h1 |
Внутренняя ширина установки В, не более |
Расстояние от верха изделия до потолка установки h3 |
|
|
400 |
1000 |
710 |
1120 |
1900 |
1600; 2000* |
|
1600 |
1700 |
||||
|
2000 |
2120 |
||||
|
630 |
1000 |
900 |
1120 |
2000 |
|
|
1600 |
1700 |
||||
|
2000 |
2120 |
||||
|
1000 |
1600 |
1320 |
1700 |
2500 |
|
|
2000 |
2120 |
||||
|
2500 |
2650 |
* Размер допускается принимать только при шаге цепи конвейера 160 мм для подвесок сложной конфигурации.
2.15. Размеры длины зоны сушки и тамбура.
2.15.1. Длину зоны сушки проходной установки (L), мм, определяют по формуле:
L = 1000 V×t,
где V - скорость конвейера, м/мин;
t - продолжительность сушки, мин.
2.15.2. Длину двухходовой и трехходовой установок (L), мм, определяют по формулам:
для двухходовой:
,
где V и t по п. 2.15.1;
r - радиус звездочки, м;
R - радиус разворота изделия, м;
для трехходовой:
;
для трехходовой с тепловым подпором:
.
2.15.3. Длину зоны сушки установки с циклическим перемещением конвейера (L), мм, определяют по формуле:
L = l + l2 (n-1) + (1600 + 2000),
где l - размер изделия, включая приспособления для навески в направлении оси движения конвейера, мм;
l2 - расстояние (шаг) между изделиями, мм;
п - количество изделий в установке.
2.15.4. Длину тамбура l1 определяют размерами изделий и конструкций воздушных завес у проемов; минимальная длина тамбура 1320 мм, для многоходовых - 1500 мм.
2.15.5. Длину тамбура l1 в установках с тепловым подпором воздуха определяют по стандартным элементам вертикальных поворотов трассы в зависимости от высоты подъема, h4.
2.7-2.15.5. (Введены дополнительно, Изм. № 2).
Рекомендуемое
Выбор сушильных установок
1. Сушильные установки выбирают в зависимости от характера производства и конструктивных особенностей окрашиваемых изделий по табл. 1 настоящего приложения.
Таблица 1
|
Характеристика окрашиваемых изделий |
Тип установки |
|
|
Массовое и крупносерийное, средне-серийное |
Различных размеров I и II групп сложности |
Терморадиационные и терморадиационно-конвективные с подвесным или напольным непрерывно движущимся конвейером. |
|
Различных размеров любой группы сложности |
Конвективные с подвесным или напольным непрерывно движущимся конвейером. |
|
|
Мелкосерийное |
Различных размеров любой группы сложности |
Конвективные тупиковые с подвесным или напольным конвейером |
(Измененная редакция, Изм. № 2).
1а. Установки сушильные с тепловым подпором воздуха целесообразны при температуре сушки более 150 °С.
(Введен дополнительно, Изм. № 2).
2. Вид энергии выбирают в зависимости от температуры сушки лакокрасочного материала по табл. 2 настоящего приложения.
Таблица 2
|
Вид потребляемой энергии |
|
|
До 90° |
Электроэнергия, газ, пар, горячая вода |
|
Более 90° |
Электроэнергия, газ |
(Измененная редакция, Изм. № 2).
3. Нагрев окрашенной поверхности непосредственно топочными газами используют только в тех случаях, когда продукты сгорания химически не взаимодействуют с лакокрасочным покрытием и если в них не содержится веществ, влияющих на его декоративные свойства. В противном случае применяют воздух, нагреваемый в теплообменниках топочными газами.
4. В полевых условиях применяют сушку терморадиационным методом
ИНФОРМАЦИОННЫЕ ДАННЫЕ
1. РАЗРАБОТАН И ВНЕСЕН Министерством химической промышленности СССР
ИСПОЛНИТЕЛИ
А.М. Елисаветский, канд. хим. наук; Г.К. Козловцева; Л.Л. Павловский, канд. техн. наук (руководитель темы); Л.В. Таршиц; А.Т. Щеголева; О.А. Барышева
2. УТВЕРЖДЕН И ВВЕДЕН В ДЕЙСТВИЕ Постановлением Государственного комитета СССР по стандартам от 28.04.78 № 1168
3. Срок проверки - 1992 г.,
периодичность проверки - 5 лет
4. ВВЕДЕН ВПЕРВЫЕ
5. ССЫЛОЧНЫЕ НОРМАТИВНО-ТЕХНИЧЕСКИЕ ДОКУМЕНТЫ
|
Обозначение НТД, на который дана ссылка |
Номер пункта |
|
ГОСТ 593-75 |
6. ПЕРЕИЗДАНИЕ (февраль 1989 г.) с Изменениями № 1, 2, утвержденными в феврале 1984 г., октябре 1988 г. (ИУС 5-84, 1-89).
7. Срок действия продлен до 01.07.94 (Постановление Госстандарта СССР от 14.10.88 № 3446)
СОДЕРЖАНИЕ